Entre saint michel et wazemmes dans une petite rue très calme, un type 2 très lumineux, bien conçu avec de belles pièces. Petite copropriété, renseignements 06 15 98 37 67.
Les informations sur les risques auxquels ce bien est exposé sont disponibles sur le site Géorisques : www.georisques.gouv.fr
Mise en ligne:
Dernière mise à jour:
Référence de l'annonce: GB00209341Découvrez ce charmant appartement T2, situé en rez-de-jardin d'une résidence moderne construite en 2020, au cœur de Lille. Avec une surface de 40 m², cet appartement se distingue par son excellent état, vous offrant ainsi un espace de vie agréable sans nécessiter de travaux. La pièce de vie lumineuse avec cuisine ouverte vous accueille chaleureusement, tandis que la chambre confortable et la salle d'eau moderne avec WC complètent idéalement l'ensemble. Profitez également d'une loggia de 8 m², un atout indéniable pour savourer des moments de détente en plein air. Les visiteurs apprécient particulièrement la propreté de la copropriété et l'entretien exemplaire des lieux. Par ailleurs, la résidence offre un parking sous-terrain avec une place nominative, facilitant vos déplacements quotidiens. Situé dans un quartier vivant de Lille, à deux pas des commerces, des transports en commun et des principaux axes routiers, cet appartement bénéficie d'un emplacement stratégique. Les écoles avoisinantes ajoutent à son attrait pour les jeunes familles. Caractéristiques techniques - Taxe foncière : 966 € - Charges de copropriété : 89 € / mois - DPE : C - Mode de chauffage : individuel électrique - Distribution de l'eau chaude : ballon d'eau chaude électrique Les informations sur les risques auxquels ce bien est exposé sont disponibles sur le site Géorisques : . Annonce présentée par Zefir.
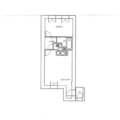
Découvrez ce charmant appartement en cours de rénovation. Idéalement situé au coeur du quartier de wazemmes, rue des sarrazins, à proximité des commerces, transports et du célèbre marché. Descriptif : pièce de vie parqueté offrant un bel espace de détente avec cuisine ouverte équipée. Ouverture avec porte fenêtre sur une cour à aménager (photo virtuelle dans le diaporama) chambre séparée au calme salle de bains équipée d'une douche wc suspendu indépendants surface de 35,5 m² appartement rénové avec goût, alliant charme et confort copropriété de 5 lots parfait pour premier achat ou investisseur. Prix : 158 000 euros dont 8000 euros d'honoraires soit 150 000 euros net vendeur. Dpe : c ges : c montant estimé des dépenses annuelles d'énergie pour un usage standard entre 480 euros et 720 euros indexées au 1er janvier 2023 pour visiter et vous accompagner dans votre projet, contactez corinne defrance, au 06 78 66 43 29 ou, par courriel à c.defrance@proprietes-privees.com. Selon l'article l. 561.5 du code monétaire et financier, pour l'organisation de la visite, la présentation d'une pièce d'identité vous sera demandée. Cette présente annonce a été rédigée sous la responsabilité éditoriale de corinne defrance agissant sous le statut d'agent commercial immatriculé au rsac douai 822355244 auprès de sas proprietes privees, au capital de 44 920 euros, zac le chêne ferré - 44 allée des cinq continents 44120 vertou; siret 487 624 777 00040, rcs nantes. Carte professionnelle transactions sur immeubles et fonds de commerce (t) et gestion immobilière (g) n°cpi 4401 2016 000 010 388 délivrée par la cci nantes - saint nazaire. Compte séquestre n°309 32 50 84 67 bpa saint-sebastien-sur-loire (44230). Garantie galian-smabtp - 89 rue de la boétie, 75008 paris - n°28137 j pour 2 000 000 euros pour t et 120 000 euros pour g. Assurance responsabilité civile professionnelle par galian-smabtp n° de police 28137. J mandat réf : 429 941 le professionnel garantit et sécurise votre projet immobilier. (5.33 % honoraires ttc à la charge de l'acquéreur.) copropriété de 6 lots - dont 6 lots habitation. Charges annuelles : 200 euros. Corinne defrance (ei) agent commercial - numéro rsac : douai 822355244 -. Les informations sur les risques auxquels ce bien est exposé sont disponibles sur le site géorisques : www. Georisques. Gouv. Fr.
Iad France - Aurélien Thopart vous propose : Opportunité Rare - Charmant Duplex en Centre-Ville de Lille Découvrez ce magnifique appartement de type duplex situé en plein cOEur de la ville de Lille. Ce bien atypique offre un espace de vie cocooning sur deux niveaux, idéal pour un premier achat ou un investissement locatif. La superficie totale de 30 m² est parfaitement optimisée pour offrir un confort absolu. Au premier niveau, vous trouverez une entrée accueillante avec rangements, donnant accès à une salle d'eau / WC avec emplacement machine à laver ainsi qu'à une chambre au calme. L'étage quant à lui accueille un salon lumineux et son coin cuisine parfaitement aménagé et équipé. Construit avant 1948, cet appartement bénéficie d'une très bonne condition générale, offrant ainsi une qualité de vie agréable à ses résidents. Les labels présents garantissent une ventilation mécanique, un accès à la fibre optique, un réseau d'assainissement performant et un espace de stockage pratique. Situé au premier étage d'un immeuble de 4 niveaux et étant construit à l'arrière de l'immeuble, cet appartement duplex offre une réelle intimité (pas de logement au dessus), tout en étant proche des commodités du centre-ville, du métro République beaux arts, et à 10 minutes à pieds de l'université Catholique de Lille ! La résidence propose un environnement sécurisé grâce à un interphone. Les aménagements annexes comprennent une cave en sous-sol pratique pour le rangement et les divers besoins des occupants. Ce nid douillet n'attend que vous pour être personnalisé à votre goût et en faire un véritable cocon urbain. Cette perle rare saura séduire les amateurs de biens atypiques et de l'ambiance vibrante de Lille. Ne manquez pas cette chance unique, contactez-moi pour organiser une visite dès maintenant. La presente annonce immobiliere vise 2 lots situés dans une copropriété de 12 lots au total et ne faisant l'objet d'aucune procédure en cours citée à l'article L. 721-1 du code de la construction et de l'habitation. Montant moyen mensuel de charges déclaré par le vendeur : 69€ par mois (soit 828 € annuel). Honoraires d'agence à la charge du vendeur. Information d'affichage énergétique sur ce bien : classe ENERGIE D indice 253 et classe CLIMAT B indice 9. Les informations sur les risques auxquels ce bien est exposé, y compris l'obligation légale de débroussaillement, sont disponibles sur le site Géorisques : La présente annonce immobilière a été rédigée sous la responsabilité éditoriale de M Aurélien Thopart mandataire indépendant en immobilier (sans détention de fonds), agent commercial de la SAS I@D France immatriculé au RSAC de ARRAS sous le numéro 912521689, titulaire de la carte de démarchage immobilier pour le compte de la société I@D France SAS.
Résidence Liberté – Une adresse rare au cœur de Lille Située sur le prestigieux boulevard de la Liberté, la Résidence Liberté dévoile un ensemble immobilier d'exception mêlant cachet historique et confort contemporain. À deux pas du Palais des Beaux-Arts, de la Préfecture, et du métro République, cette adresse emblématique offre un cadre de vie unique au cœur de la capitale des Flandres. Une situation privilégiée au centre de Lille Implantée dans l'une des avenues les plus élégantes de la ville, la résidence bénéficie d'un environnement culturel et urbain incomparable : À 100 mètres du Palais des Beaux-Arts et de la Préfecture. À 5 minutes à pied du théâtre Sébastopol, des rues piétonnes et des commerces du centre-ville. À proximité immédiate du métro République – Beaux-Arts et des transports en commun. Un emplacement exceptionnel, à la croisée du dynamisme du centre-ville et du charme du vieux Lille. Un projet de rénovation haut de gamme La Résidence Liberté fait l'objet d'une restauration complète d'un immeuble de caractère, transformé en 5 logements de prestige, signés par un cabinet d'architecture reconnu pour son exigence et son sens du détail. Chaque appartement conjugue esthétique raffinée et optimisation des volumes, pour offrir un confort moderne au sein d'une bâtisse au charme préservé. Ces logements sont proposés en adhésion ou en investissement, éligibles aux dispositifs de déficit foncier ou de location meublée selon les besoins des acquéreurs. Des intérieurs lumineux et élégants Les appartements, du T1 au T3 duplex, se distinguent par : Des volumes généreux et de grandes hauteurs sous plafond. Des pièces de vie baignées de lumière naturelle. Des prestations de qualité : parquet bois, cuisines équipées, salles de bains aménagées, rangements intégrés. Des versions meublées pensées pour l'investissement locatif haut de gamme. L'alliance du charme de l'ancien et du confort moderne crée une atmosphère chaleureuse et intemporelle. Un cadre de vie unique au cœur de la métropole Avec à proximité immédiate des espaces culturels emblématiques (Musée des Beaux-Arts, Beffroi de Lille, Parc Jean-Baptiste Lebas) et de tous les commerces de centre-ville, la Résidence Liberté offre un mode de vie à la fois pratique, vivant et prestigieux. Résidence Liberté : l'élégance du patrimoine lillois alliée au confort moderne, pour habiter ou investir dans une adresse d'exception.
Exclusivite republique beaux arts, résidence de standing et sécurisée, un type 2 de 42 m² composé d'une entrée, séjour avec grande fenêtre plein sud, jolie vue sur les toits de lille sans vis à vis. Cuisine, une chambre, salle de bains, toilettes, un stationnement privé dans la résidence. Ce bien est vendu par une excellente locataire. Renseignements 06 15 98 37 67.
Lille centre gares, un type 2 calme sans vis à vis, avec une belle terrasse orientée sud. Ce bien est composé d'une entrée avec placard, séjour, cuisine, une chambre, salle de bains. Renseignements 05 15 98 37 67.
Jonathan frelat, votre conseiller immobilier indépendant depuis 2014 vous amène à découvrir : a proximité immédiate du métro porte de douai, rue armand carrel, t3 de 61 m² situé au éème étage d'une copropriété de 8 lots. Ce bien peut tout aussi bien convenir pour une résidence principale que pour un investissement locatif (possibilité colocation en louant 2 chambres ou 3 en utilisant le séjour comme chambre. Le logement comprend une entrée, une salle de bains, wc séparé, cuisine, séjour, 2 chambres et une cave. Le bien se trouve dans une résidence des années 60 (dalle béton), la toiture principale est sous décennale (2019) et les communs ont été refait à neuf. Bien soumis au statut juridique de la copropriété. Nb de lots : 8. Pas de procédure en cours. Prix de vente 155 600 € honoraires : 4,43 % ttc à la charge de l'acquéreur prix hors honoraires d'agence : 149 000 € montant estimé des dépenses annuelles d'énergie pour un usage standard : entre 1 190 € et 1 640 € par an. Prix moyens des énergies indexés au 01 / 01 / 2021 (abonnement compris). Dpe : e ges : b pour visiter et vous accompagner dans votre projet, contactez jonathan frelat 06 13 04 58 39 honoraires : 4,43 % ttc à la charge de l'acquéreur prix hors honoraires d'agence : 149 000 € prix de vente 155 600 € selon l'article l. 561.5 du code monétaire et financier, pour l'organisation de la visite, la présentation d'une pièce d'identité vous sera demandée. Les informations sur les risques auxquels ce bien est exposé sont disponibles sur le site géorisques : cette présente annonce a été rédigée sous la responsabilité éditoriale de jonathan frelat agissant sous le statut d'agent commercial immatriculé au ville du greffe : lille sous le numéro rsac n° 805 325 578 auprès de la sas immo reseau au capital de 10 000€ - réseau national immobilier sur internet, 44 allée des cinq continents - 44120 vertou - rne nantes 519 718 886. Carte professionnelle t et g n° cpi 3002 2018 000 024 971 cci de nantes-saint-nazaire (44) ; garantie par galian 89 rue de la boétie - 75008 paris n°171379g pour 120 000€ pour t. Assurance responsabilité civile professionnelle par galian n° de police 120 137 405 (réf. 36133) - le professionnel garantit et sécurise votre projet immobilier bien soumis au statut juridique de la copropriété. Nb de lots : 8. Pas de procédure en cours. Prix de vente 155 600 € honoraires : 4,43 % ttc à la charge de l'acquéreur prix hors honoraires d'agence : 149 000 € montant estimé des dépenses annuelles d'énergie pour un usage standard : entre 1 190 € et 1 640 € par an. Prix moyens des énergies indexés au 01 / 01 / 2021 (abonnement compris). Dpe : e ges : b.

Vieux lille, rue st catherine : dans petite copropriété, charmant studio, séjour avec espace cuisine équipée, coin chambre sur arriére au calme, vendu avec les meubles, trés bon état, charges 74 € / mois, 4 lots, pas de procédure. Secteur prise, vendu louer, a decouvrir rapidement. Copropriã©tã© : oui nombre de lots : 4 procã©dures en cours : non prix fai montant honoraires 5,70% soit 9 000€ ã la charge de l'acquã©reur.