
Immobilier Bagnolet (93170), les chiffres de 2025
En 2025, Bagnolet (93170) confirme son attractivité aux…
10 résultats
Iad France - Sabrina Brakha (06 62 80 89 05) vous propose : Opportunité pour investisseur ou premier achat à Bagnolet ! Charmant appartement de 2 pièces, mansardé, à rénover, situé au 2ème étage d'un immeuble de 3 étages avec ascenseur, dans une résidence privée à Bagnolet. Cet appartement est idéal pour un investissement locatif, un pied-à-terre ou pour un premier achat pour une personne seule ou un couple. Il se compose d'une chambre lumineuse, d'un espace salone t cuisine à aménager selon vos goûts, un WC, la salle d'eau est à créer. L'appartement nécessite des travaux de rénovation pour le remettre à neuf et en faire un cocon confortable et personnalisé. Situé dans une résidence sécurisée, cet appartement offre un bon potentiel et une excellente localisation à proximité des transports en commun (5mn à pied de métro les Lilas et 7mn à pied du métro Gallieni), des commerces, des écoles et des espaces verts. Emplacement idéal pour profiter de la vie urbaine tout en bénéficiant d'un cadre calme et agréable. Des photos générées par l'IA et le plan vous permettront de vous projeter. La copropriété est en cours de constitution. Ne manquez pas cette opportunité d'investir dans l'immobilier à Bagnolet et de créer votre espace de vie sur-mesure ! Contactez moi dès maintenant pour organiser une visite et découvrir le potentiel de cet appartement à rénover. Honoraires d’agence à la charge du vendeur. Information d'affichage énergétique sur ce bien : classe ENERGIE G indice 811 et classe CLIMAT C indice 27. Les informations sur les risques auxquels ce bien est exposé sont disponibles sur le site Géorisques : . La présente annonce immobilière a été rédigée sous la responsabilité éditoriale de Mme Sabrina Brakha EI (ID 16080), mandataire indépendant en immobilier (sans détention de fonds), agent commercial de la SAS I@D France immatriculé au RSAC de EVRY sous le numéro 812501112, titulaire de la carte de démarchage immobilier pour le compte de la société I@D France SAS. Le présent bien est commercialisé dans le cadre d'une délégation de mandat. Retrouvez tous nos biens sur notre site internet. .
Iad France - Sabrina Brakha (06 62 80 89 05) vous propose : Superbe Opportunité d'Investissement à Bagnolet - Appartement deux pièces à rénover. Bienvenue à Bagnolet, dans le quartier Mairie, à proximité de Paris ! Venez découvrir cet appartement de deux pièces situé au cOEur d'un quartier animé, à deux pas des commerces, 5 minutes à pied du Métro Les Lilas et 7 mn du métro Gallieni. Cet appartement, idéal pour un premier investissement ou un projet de rénovation, offre de belles perspectives d'aménagement. Il est situé au 2ème étage d'un immeuble de 3 niveaux, dans une résidence sécurisée. Le bien se compose d'un espace de vie agréable, d'une cuisine avec douche, d'une chambre lumineuse, et d'un wc séparé, à aménager selon vos goûts. L'immeuble, situé dans une résidence calme et sécurisée, propose une belle opportunité pour les investisseurs et les personnes en quête d'un pied-à-terre à rénover selon leurs envies. Les travaux à prévoir offrent la possibilité de personnaliser entièrement cet appartement et d'en faire un cocon chaleureux et moderne, à votre image. Des photos générées avec l'IA et le plan, vous permettrons de vous projeter. Une belle opportunité à saisir rapidement dans un quartier dynamique en plein essor. N'hésitez pas à prendre contact pour plus d'informations ou pour organiser une visite. Honoraires d’agence à la charge du vendeur. Information d'affichage énergétique sur ce bien : classe ENERGIE G indice 539 et classe CLIMAT C indice 17. Les informations sur les risques auxquels ce bien est exposé sont disponibles sur le site Géorisques : . La présente annonce immobilière a été rédigée sous la responsabilité éditoriale de Mme Sabrina Brakha EI (ID 16080), mandataire indépendant en immobilier (sans détention de fonds), agent commercial de la SAS I@D France immatriculé au RSAC de EVRY sous le numéro 812501112, titulaire de la carte de démarchage immobilier pour le compte de la société I@D France SAS. Le présent bien est commercialisé dans le cadre d'une délégation de mandat. Retrouvez tous nos biens sur notre site internet. .
Iad France - Marie Vovard vous propose : Un appartement avec un séjour double et un grand balcon sans vis-à-vis situé dans le bâtiment du fond au calme au 4èmé étage avec ascenseur, Positionné à proximité des transports (bus) et à 15 mn à pied du métro ligne 11 Station Serge Gainsbourg. Ce bien comprend une entrée, une salle de bains avec WC, un double séjour permettant de positionner une chambre, une cuisine séparée. Une cave complète le bien. Travaux de remise en état à prévoir. Chauffage collectif (inclus dans les charges) La presente annonce immobiliere vise 2 lots situés dans une copropriété de 177 lots au total et ne faisant l'objet d'aucune procédure en cours citée à l'article L. 721-1 du code de la construction et de l'habitation. Montant moyen mensuel de charges déclaré par le vendeur : 200€ par mois (soit 2400 € annuel). Honoraires d'agence à la charge du vendeur. Information d'affichage énergétique sur ce bien : classe ENERGIE E indice 270 et classe CLIMAT E indice 58. Les informations sur les risques auxquels ce bien est exposé, y compris l'obligation légale de débroussaillement, sont disponibles sur le site Géorisques : La présente annonce immobilière a été rédigée sous la responsabilité éditoriale de Mme Marie Vovard mandataire indépendant en immobilier (sans détention de fonds), agent commercial de la SAS I@D France immatriculé au RSAC de Pontoise sous le numéro 840290506, titulaire de la carte de démarchage immobilier pour le compte de la société I@D France SAS.
Iad france - maurice lanoë vous propose : bagnolet – métro gallieni à seulement 5 minutes du métro, dans une résidence bien entretenue, découvrez cet appartement de 2 pièces d’environ 50 m² à rénover, situé au 8ᵉ étage avec vue dégagée sur le parc des guilands. Il se compose d’une entrée avec dressing, d’un séjour / salle à manger ouvrant sur un grand balcon, d’une cuisine, d’une chambre et d’une salle d’eau avec wc. Parking en sous sol charges collectives : chauffage, eau chaude et froide, gardien, ascenseur. Taxe foncière : 1 780 €. La presente annonce immobiliere vise 3 lots situés dans une copropriété de 340 lots au total et ne faisant l'objet d'aucune procédure en cours citée à l'article l. 721-1 du code de la construction et de l'habitation. Montant moyen mensuel de charges déclaré par le vendeur : 184€ par mois (soit 2208 € annuel). Honoraires d'agence à la charge du vendeur. Information d'affichage énergétique sur ce bien : classe energie e indice 304 et classe climat e indice 62. Les informations sur les risques auxquels ce bien est exposé, y compris l'obligation légale de débroussaillement, sont disponibles sur le site géorisques : la présente annonce immobilière a été rédigée sous la responsabilité éditoriale de m maurice lanoë mandataire indépendant en immobilier (sans détention de fonds), agent commercial de la sas i@d france immatriculé au rsac de bobigny sous le numéro 925392284, titulaire de la carte de démarchage immobilier pour le compte de la société i@d france sas.

Recevez en temps réel les dernières annonces correspondant à votre recherche
Appartement t1 (avril 2 0 2 6) dans une résidence haut de gamme, beau studio très bien agencé. Pièce de vie lumineuse avec cuisine ouverte, ouvrant sur une loggia couverte idéale pour profiter de l'extérieur. Salle d'eau moderne avec wc, rangements intégrés. 7 minutes à pied du métro gallieni ligne 3. Matériaux nobles. Espaces paysagers intérieurs contribuent à l'ambiance intimiste. Pour visiter et vous accompagner dans votre projet, contactez imane rosso 06 26 75 35 32 honoraires à la charge du vendeur prix de vente 266 000 € selon l'article l. 561.5 du code monétaire et financier, pour l'organisation de la visite, la présentation d'une pièce d'identité vous sera demandée. Les informations sur les risques auxquels ce bien est exposé sont disponibles sur le site géorisques : cette présente annonce a été rédigée sous la responsabilité éditoriale de imane rosso agissant sous le statut d'agent commercial immatriculé au ville du greffe : nanterre sous le numéro rsac n° 819 908 773 auprès de la sas immo reseau au capital de 10 000€ - réseau national immobilier sur internet, 44 allée des cinq continents - 44120 vertou - rne nantes 519 718 886. Carte professionnelle t et g n° cpi 3002 2018 000 024 971 cci de nantes-saint-nazaire (44) ; garantie par galian 89 rue de la boétie - 75008 paris n°171379g pour 120 000€ pour t. Assurance responsabilité civile professionnelle par galian n° de police 120 137 405 (réf. 32501) - le professionnel garantit et sécurise votre projet immobilier bien soumis au statut juridique de la copropriété. Pas de procédure en cours. Prix de vente 266 000 € honoraires à la charge du vendeur surface carrez : 30.36 m² bien soumis au statut juridique de la copropriété. Pas de procédure en cours. Prix de vente 266 000 € honoraires à la charge du vendeur.
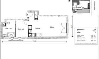
Un bien fonctionnel, prêt à accueillir aussi bien un projet de résidence principale qu'une activité professionnelle : la copropriété autorise les professions libérales (hors musique, danse, chant et activité vétérinaire). Situé sur l'avenue Stalingrad à Bagnolet, cet appartement bénéficie d'un emplacement recherché, à proximité immédiate des commerces, écoles et services du quotidien. Idéalement desservi par le bus 115 au pied de la résidence, vous rejoignez directement Château de Vincennes (métro 1), Nogent-sur-Marne RER A, Le Raincy RER E et Montfermeil. Un cadre pratique pour conjuguer vie active et familiale. La copropriété est entretenue et bénéficie actuellement de travaux de ravalement avec isolation par l'extérieur (votés et payés), un atout indéniable pour le confort thermique et la valorisation future. Vous profiterez également d'un emplacement de parking en sous-sol, accessible directement par ascenseur, ainsi que d'une agréable loggia de 10,12 m². Au rez-de-chaussée, cet appartement de 2 pièces 59 m² bien agencé comprend : Une entrée avec rangements (4,5 m²), un séjour lumineux (20 m²) donnant accès direct à la loggia, une cuisine indépendante (6,8 m²), une chambre confortable (11,72 m²), une salle de bains (3,45 m²), des WC séparés Le bien comprend 2 lots, et il est situé dans une copropriété de 16 lots (les charges courantes annuelles moyennes de copropriété sont de 1320 € et le syndicat des copropriétaires ne fait pas l'objet d'une procédure citée à l'article L. 721-1 du code de la construction et de l'habitation). Les informations sur les risques auxquels ce bien est exposé sont disponibles sur le site Géorisques : Prix de vente : 209 000 € Honoraires charge vendeur Contactez votre conseiller SAFTI : Annie LEANG, Tél. : 06 23 18 26 91, E-mail : annie.leang@safti.fr - EI - Agent commercial immatriculé au RSAC de BOBIGNY sous le numéro 495 404 949.
Iad France - Cinthya Placido Larrazabal vous propose : Appartement coup de cOEur – Traversant, haut plafond sans vis-à-vis, charme de l’ancien avec combles aménagés et cave Situé rue de Noisy-le-Sec, entre Les Lilas et Paris 20 (Bagnolet), ce bien atypique se trouve dans une petite copropriété bien entretenue. Surface pondérée : 46 m² (36 m² loi Carrez + combles aménagés de 80 m²) Emplacement idéal : à 8 min à pied du métro Mairie des Lilas (L. 11) et à 5 min de Paris 20. Il est a Bagnolet limite Les Lilas. L’appartement se compose de : une cuisine / salle à manger / salon pleine de cachet une chambre avec coin bureau une salle d’eau et WC, à l’étage : environ 80 m² au sol de combles isolées et aménagées, comprenant un espace bureau, un dressing et une zone de couchage (plafond bas, mais espace optimisé). Quartier vivant et pratique : commerces, marché, écoles et transports à proximité immédiate. La presente annonce immobiliere vise 2 lots situés dans une copropriété de 8 lots au total et ne faisant l'objet d'aucune procédure en cours citée à l'article L. 721-1 du code de la construction et de l'habitation. Montant moyen mensuel de charges déclaré par le vendeur : 230€ par mois (soit 2760 € annuel). Honoraires d'agence à la charge du vendeur. Information d'affichage énergétique sur ce bien : classe ENERGIE F indice 423 et classe CLIMAT F indice 92. Les informations sur les risques auxquels ce bien est exposé, y compris l'obligation légale de débroussaillement, sont disponibles sur le site Géorisques : La présente annonce immobilière a été rédigée sous la responsabilité éditoriale de Mme Cinthya Placido Larrazabal mandataire indépendant en immobilier (sans détention de fonds), agent commercial de la SAS I@D France immatriculé au RSAC de BOBIGNY sous le numéro 951270479, titulaire de la carte de démarchage immobilier pour le compte de la société I@D France SAS.
Iad France - Maurice Lanoë vous propose : À Bagnolet – Quartier de la Dhuys À seulement 10 minutes à pied du métro Galliéni, dans une résidence bien entretenue avec parc privé, découvrez ce très beau 2 pièces de 41 m², lumineux et en excellent état, aucun travaux à prévoir. Il se compose d’une entrée, d’un séjour avec vue dégagée sur le parc de la résidence, d’une chambre, d'une cuisine indépendante et équipée, d’une salle d’eau et de toilettes séparées. En complément : une cave en sous-sol et un local vélo. Idéal pour un premier achat ou un investissement locatif ! La presente annonce immobiliere vise 2 lots situés dans une copropriété de 306 lots au total et ne faisant l'objet d'aucune procédure en cours citée à l'article L. 721-1 du code de la construction et de l'habitation. Montant moyen mensuel de charges déclaré par le vendeur : 140€ par mois (soit 1680 € annuel). Honoraires d'agence à la charge du vendeur. Information d'affichage énergétique sur ce bien : classe ENERGIE E indice 311 et classe CLIMAT E indice 10. Les informations sur les risques auxquels ce bien est exposé, y compris l'obligation légale de débroussaillement, sont disponibles sur le site Géorisques : La présente annonce immobilière a été rédigée sous la responsabilité éditoriale de M Maurice Lanoë mandataire indépendant en immobilier (sans détention de fonds), agent commercial de la SAS I@D France immatriculé au RSAC de Bobigny sous le numéro 925392284, titulaire de la carte de démarchage immobilier pour le compte de la société I@D France SAS.
Stop tma pour l'ensemble du bâtiment ! À bagnolet, votre avenir s'écrit aux portes de paris ! À seulement 7 minutes à pied du métro gallieni (ligne 3) et à 10 minutes du cœur de paris, la résidence new age s’impose par son architecture audacieuse et son cadre de vie végétalisé, dans un quartier en pleine transformation. Découvrez des appartements du studio au 5 pièces, pensés pour tous les styles de vie, tous ouverts sur un balcon, une terrasse plein-ciel ou un jardin privatif. Certains logements d’exception en rez-de-chaussée offrent une double hauteur permettant la création de mezzanines façon loft. Et pour concrétiser votre projet dans les meilleures conditions, vous pouvez bénéficier du prêt à taux zéro (ptz) et de la tva réduite à 5,5 % (sous conditions), deux leviers puissants pour acheter dans le neuf aux portes de la capitale. Saisissez cette opportunité rare de devenir propriétaire dans un lieu de vie durable, urbain et inspirant. Les informations sur les risques auxquels ce bien est exposé sont disponibles sur le site géorisques : .
L'agence Stéphane Plaza vous propose ce charmant 2 pièces de 49 m² à Bagnolet. Vous le retrouverez au sein d'une résidence calme et paisible à deux pas de Paris. Au 7ème étage d'une copropriété des années 70, vous profiterez d'une vue panoramique et sans vis-à-vis. Il est composé comme suit : un séjour, une cuisine indépendante et aménagée, une chambre, une salle de bains et un WC séparé. Plusieurs possibilités de rangement, dont un cellier accessible par la cuisine. Idéal pour les primo-accédants et / ou les jeunes couples. Une place de parking en sous-sol complète ce bien. Quelques rafraichissements sont à prévoir. Contactez-nous au plus vite ! (6.51 % d'honoraires TTC à la charge de l'acquéreur.) Copropriété de 150 lots (Pas de procédure en cours). Charges annuelles : 2100.00 euros.
Autres annonces à proximité de Bagnolet (93170) avec vos critères
Découvrez cet appartement deux pièces de 34 m² situé au 1er étage sur 5e d'un immeuble ancien, Rue des Guilands à Montreuil. Un local à vélos est présent dans la cour. L'appartement, accessible depuis une coursive intérieure partagée avec un autre appartement, se compose comme suit : - une entrée équipée d'un interphone menant à un séjour lumineux de 11,7 m² exposé Est sur rue ; - une cuisine séparée de 4,30 m² et équipée (four, feux à gaz, hotte à filtre, frigo) ; - une chambre de 10,8 m² avec grande armoire encastrée, sans vis-à-vis direct sur rue ; - une salle de bain avec fenêtre accessible depuis la chambre avec baignoire, vasque, sèche-serviettes et emplacement pour lave-linge. Un WC séparés complète le bien. Le chauffage et l'eau chaude sont fournis par une chaudière à gaz individuelle. Les charges de copropriété s'élèvent à 421 € par trimestre. La taxe foncière annuelle est de 600 €. L'appartement est situé dans un secteur résidentiel à proximité de multiples commerces et restaurants. Le centre commercial Croix de Chavaux ainsi que le marché sont accessibles à moins de 10 minutes à pied. Le Parc des Guilands est également situé à quelques centaines de mètres de l'appartement. Pour les transports, la station de métro Croix de Chavaux (ligne 9) est à 7 minutes à pied, et la station Robespierre (ligne 9) est à 10 minutes. Le bien est soumis au statut de copropriété. Planifiez facilement votre visite en choisissant le créneau qui vous convient depuis le site d'Hosman. Hosman s'efforce de réinventer l'agence immobilière en offrant un service innovant et transparent aux acheteurs et aux vendeurs. Nos frais d'agence sont de 9900 euros fixes à la charge du vendeur. Si vous êtes un professionnel de l'immobilier (agent, mandataire ou chasseur immobilier), sachez que toutes les annonces Hosman sont ouvertes à la collaboration. N'hésitez pas à nous contacter pour en discuter.
Charmant 2 pièces de 39 mètres carrés avec cave - rue de Bagnolet, Paris 20ème Coup de cœur assuré pour ce superbe appartement 2 pièces de 38,97 m² (loi Carrez) situé rue de Bagnolet dans le 20ème arrondissement de Paris. Idéalement placé dans un quartier dynamique et en pleine mutation, proche du métro et de toutes commodités. Au dernier étage d'un immeuble de caractère de 1903, ce bien traversant vous séduira par son charme authentique avec parquets et cheminées d'époque, allié à un agencement optimisé et fonctionnel. Caractéristiques : • 1 séjour lumineux avec cheminée • 1 cuisine ouverte équipée (vendue équipée) • 1 chambre confortable avec cheminée • 1 salle d'eau avec WC intégré • 1 cave de 3,4 m² • Exposition Nord-Ouest traversant (rue-cour) Prestations de qualité : • Charme de l'ancien préservé avec parquets et cheminées • Double vitrage pour un confort acoustique optimal • Bien agencé sans perte de place • Aucun travaux à prévoir • Chauffage individuel électrique • Digicode et interphone • Copropriété à taille humaine Informations pratiques : • Surface Carrez : 38,97 m² • 3ème étage sur 3 (sans ascenseur) • Copropriété de 14 lots • Charges : 1942 euros / an • Taxe foncière : 696 € / an • DPE : E • Vendu occupé (bail de location meublée en cours jusqu'au 15 / 08 / 2026) Environnement privilégié : • Métro ligne 3 (Porte de Bagnolet, Galliéni) à proximité immédiate • Ligne 11 accessible rapidement • Nombreux bus et accès facile au périphérique • Quartier dynamique avec commerces, restaurants et services • Proche du Parc de Bagnolet et des espaces verts • Secteur en pleine transformation urbaine Quartier en pleine transformation : • Le 20ème arrondissement bénéficie d'importants projets d'aménagement urbain • végétalisation et développement des mobilités douces dans le secteur • Amélioration continue des espaces publics et de la qualité de vie • Quartier en forte valorisation avec de nombreux projets de renouvellement urbain Cet appartement fonctionnel conjugue parfaitement le charme parisien authentique avec un aménagement moderne et pratique. Idéal pour un investissement locatif avec locataire en place jusqu'en août 2026, offrant une rentabilité immédiate ou pour une future résidence principale au départ du locataire. À visiter sans tarder ! Présenté par imkiz, l'agence en ligne 100% proche de vous. Honoraires inclus dans le prix de vente, dès 2490 €.
À seulement 250 mètres du métro Robespierre, dans une rue calme du Bas-Montreuil, découvrez en exclusivité Optimhome ce 2 pièces de 24 m² carrez (26 m² sol + cave de 12 m²) situé en rez-de-chaussée. Une véritable opportunité pour celles et ceux qui recherchent un bien avec travaux, que ce soit pour un projet de location ou pour y vivre. L'appartement est traversant et bénéficie d'une cave d'environ 12 m². Celle-ci n'est pas pour le moment accessible directement depuis le logement, mais la création d'un accès depuis l'intérieur est facilement envisageable, sans perte de surface habitable, ce qui ouvre la voie à un projet d'aménagement de souplex très intéressant. Si vous savez vous projeter et que les travaux ne vous font pas peur, cet appartement est fait pour vous. Vous profiterez de faibles charges, d'une copropriété à taille humaine, et de la proximité immédiate de toutes les commodités du quartier. Une visite s'impose pour apprécier tout le potentiel de ce bien ! Nombre de lots de la copropriété : 5, Montant moyen de la quote-part annuelle de charges (budget prévisionnel) : 900€ soit 75€ par mois. Les honoraires sont à la charge du vendeur. Logement à consommation énergétique excessive : classe G Les informations sur les risques auxquels ce bien est exposé sont disponibles sur le site Géorisques : www. georisques. gouv. fr. Contactez Cyprien GÉRARD Entrepreneur Individuel, Agent commercial OptimHome (RSAC N°889 371 787 Greffe de BOBIGNY) 06 26 63 81 42 (réf. 598193 ).
Appartement lumineux avec grande terrasse à seulement 15 min du métro Mairie de Montreuil. Situé au 4ᵉ et dernier étage d'une charmante petite copropriété, Ce superbe appartement lumineux vous séduira par ses volumes, son agencement fonctionnel ainsi que par sa terrasse, véritable prolongement de l'espace de vie, qui vous charmera par son calme et sa luminosité. L'appartement propose une distribution harmonieuse et fonctionnelle : - Une pièce de vie de 25 m², agréable, baignée de lumière et agrémentée d'une cheminée ; - Une cuisine indépendante, à aménager selon vos envies ; - Une chambre confortable et paisible ; - Une salle de bain baignée de lumière naturelle; Ce bien rare comprend également une place de parking extérieure et une cave privative. Chauffage électrique – Charges annuelles : 1 300 €. Situé dans un environnement calme et proche des commerces, ce bien exceptionnel sur le secteur allie confort, luminosité et espace extérieur généreux. Une belle opportunité à saisir ! À visiter sans tarder ! Nombre de lots de la copropriété : 7, Montant moyen annuel de la quote-part de charges (budget prévisionnel) : 1300€ soit 108€ par mois. Les honoraires sont à la charge du vendeur. Logement à consommation énergétique excessive : classe F Les informations sur les risques auxquels ce bien est exposé sont disponibles sur le site Géorisques : www. georisques. gouv. fr. Réseau Immobilier CAPIFRANCE - Votre agent commercial (RSAC N°920 618 998 - Greffe de CRETEIL) Christophe BERNET Entrepreneur Individuel 06 59 60 71 90 - Réf. 912559.
Iad France - Vincent Huillet vous propose : Square des Saints-Simoniens Clair, traversant, sans vis à vis, vue sur Basilique du Sacré COEur, 4ème étage sans ascenseur. Appartement 2 pièces de 39 m², composé d’un salon lumineux exposé Ouest (vue sur Basilique du Sacré COEur) avec coin cuisine ouverte, d’une chambre lumineuse exposée Est avec placards, d’une petite salle de bain, d’un WC séparé et d’un couloir desservant toutes les pièces. La localisation centrale de cet appartement vous permettra de profiter pleinement de la vie parisienne, avec ses nombreux commerces, cafés et restaurants à proximité. Les stations de métro et les arrêts de bus à quelques pas vous offriront une excellente mobilité dans la ville. Cet appartement nécessite quelques petits travaux pour atteindre son plein potentiel. Avec un peu de créativité et d'investissement, vous pourrez créer un espace de vie à votre image, alliant confort moderne et éléments d'origines. Pour compléter ce bien, une cave est incluse, offrant un espace de rangement supplémentaire. Métro Gambetta (3) Télégraphe (11) et Pelleport (3bis) à moins de 10 mn à pieds. Contactez-moi dès maintenant pour organiser une visite. Conseiller dispo 7 / 7. La presente annonce immobiliere vise 2 lots situés dans une copropriété de 53 lots au total et ne faisant l'objet d'aucune procédure en cours citée à l'article L. 721-1 du code de la construction et de l'habitation. Montant moyen mensuel de charges déclaré par le vendeur : 150€ par mois (soit 1800 € annuel). Honoraires d'agence à la charge du vendeur. Information d'affichage énergétique sur ce bien : classe ENERGIE F indice 382 et classe CLIMAT F indice 59. Les informations sur les risques auxquels ce bien est exposé, y compris l'obligation légale de débroussaillement, sont disponibles sur le site Géorisques : La présente annonce immobilière a été rédigée sous la responsabilité éditoriale de M Vincent Huillet mandataire indépendant en immobilier (sans détention de fonds), agent commercial de la SAS I@D France immatriculé au RSAC de PARIS sous le numéro 490 775 616, titulaire de la carte de démarchage immobilier pour le compte de la société I@D France SAS.
Iad France - Mikael Jerusalmy vous propose : Charmant appartement T2 proche Gambetta, Idéal pour une PROFESSION LIBÉRALE, Premier Investissement où Pied-à-Terre. Situé au cOEur de Gambetta en intérieur de cours, ce charmant appartement de 42 m² offre un cadre de vie authentique et plein de charme. Calme, Lumineux. Cet appartement se compose d'une entrée, d'une chambre lumineuse, d'une salle à manger conviviale et d'une cuisine fonctionnelle ouverte ainsi que d’une salle d'eau et d’un WC séparé. Érigé dans un immeuble de caractère datant de 1914, cet appartement bénéficie d'un cachet indéniable avec ses hauts plafonds, son parquet d'origine et ses moulures décoratives. L'ambiance cosy et intimiste ravira les amateurs d'authenticité. La localisation centrale, à 2 pas du métro Gambetta, de cet appartement vous permettra de profiter pleinement de la vie parisienne. Commerces, marché, traiteurs, mairie à proximité immédiate. Ne laissez pas passer cette occasion unique de vous installer dans un cocon parisien plein de charme. Contactez-moi dès maintenant pour organiser une visite. La presente annonce immobiliere vise 1 lot situé dans une copropriété de 32 lots au total et ne faisant l'objet d'aucune procédure en cours citée à l'article L. 721-1 du code de la construction et de l'habitation. Montant moyen mensuel de charges déclaré par le vendeur : 80.67€ par mois (soit 968 € annuel). Honoraires d'agence à la charge du vendeur. Information d'affichage énergétique sur ce bien : classe ENERGIE G indice 557 et classe CLIMAT G indice 107. Les informations sur les risques auxquels ce bien est exposé, y compris l'obligation légale de débroussaillement, sont disponibles sur le site Géorisques : La présente annonce immobilière a été rédigée sous la responsabilité éditoriale de M Mikael Jerusalmy mandataire indépendant en immobilier (sans détention de fonds), agent commercial de la SAS I@D France immatriculé au RSAC de Paris sous le numéro 884758962, titulaire de la carte de démarchage immobilier pour le compte de la société I@D France SAS.
Iad France - Michaël Bendriss vous propose : Opportunité rare au cOEur de Paris (20) - Charmant appartement T2 de 47 m² avec très grande chambre. Niché au 8ème et dernier étage d'un immeuble datant de 1948, cet appartement 1 chambre entièrement rénové offre confort et praticité. L'immeuble dispose d'un ascenseur. Situé à Paris, cet appartement bénéficie d'une situation privilégiée à proximité des commodités. La station de métro Saint Fargeau se situe a 30 mètres seulement du bien. L'appartement se compose d'une grande chambre de 16 m², d'une salle de bain avec WC, d'une cuisine équipée et d'un séjour avec espace de vie très lumineux pour se détendre après une longue journée. Les équipements de confort tels que la fibre optique, la climatisation et le chauffage au gaz naturel assurent un quotidien agréable et fonctionnel. La résidence sécurisée avec digicode offre une tranquillité d'esprit aux résidents. L'appartement bénéficie d'une rénovation récente qui lui confère un état impeccable. Sa localisation centrale permet un accès rapide à de nombreux parcs et espaces verts environnants. Ne manquez pas cette opportunité rare d'acquérir un appartement entièrement rénové dans un quartier prisé de Paris. Contactez-nous dès aujourd'hui pour organiser une visite et laissez-vous séduire par ce charmant cocon en plein cOEur de la capitale française. Michael Bendriss iad France, votre conseiller immobilier sur paris Avis de valeur offert. Me contacter pour plus d'informations. Je suis entièrement ouvert au partage d'affaire. La presente annonce immobiliere vise 1 lot situé dans une copropriété de 28 lots au total et ne faisant l'objet d'aucune procédure en cours citée à l'article L. 721-1 du code de la construction et de l'habitation. Montant moyen mensuel de charges déclaré par le vendeur : 116.67€ par mois (soit 1400 € annuel). Honoraires d'agence à la charge du vendeur. Information d'affichage énergétique sur ce bien : classe ENERGIE E indice 282 et classe CLIMAT B indice 9. Les informations sur les risques auxquels ce bien est exposé, y compris l'obligation légale de débroussaillement, sont disponibles sur le site Géorisques : La présente annonce immobilière a été rédigée sous la responsabilité éditoriale de M Michaël Bendriss mandataire indépendant en immobilier (sans détention de fonds), agent commercial de la SAS I@D France immatriculé au RSAC de Pontoise sous le numéro 944915149, titulaire de la carte de démarchage immobilier pour le compte de la société I@D France SAS.
Beau 2-Pièces de 46 m² - Porte de Bagnolet Superbe 2-pièces de 46 m² situé Boulevard Davout dans un magnifique immeuble de 1901. Emplacement idéal dans le quartier dynamique de Saint-Blaise, à deux pas des commerces, des restaurants, et des transports (métro ligne 3, tram T3b et bus) Situé au 3ème étage (avec ascenseur), l’appartement est composé d’une grande pièce de vie lumineuse de 24 m², d’une grande chambre de 12,60 m², d’un dressing / bureau de 5 m² et d’une salle d’eau. Vous y trouverez le charme de l’ancien (moulures, cheminée et parquet massif) et les atouts de la modernité. Une cave complète ce bien. Copropriété de 18 lots. Charges annuelles de 1378euros. Taxe Foncière 543euros. Aucune procédure en cours. Le DPE en E et GES en B. Honoraires d'agence de 4,5% du prix de vente à charge acquéreur.
Iad France - Gaelle David vous propose : Rue Denoyez, rue semi-piétonne de Belleville, emblématique pour son ambiance vibrante et artistique mêlant street art, cafés, restaurants, commerces de quartier et centre sportif. Au sein d’un immeuble début XXème, le bâtiment, très bien entretenu, donne sur deux grandes cours arborées et profite d’un environnement paisible, au calme absolu de l’animation du quartier. Situé au 5ᵉ et dernier étage, accessible par un escalier lumineux, cet appartement de 2 pièces, en très bon état, offre une atmosphère raffinée et apaisante et ouvre des vues dégagées sur la verdure et les toits parisiens. Les 2,60 m de hauteur sous plafond (non mansardée) et sa distribution optimisée offrent de confortables volumes : - entrée avec rangements, - chambre, - séjour de 15 m² environ, - cuisine séparée aménagée et équipée (lave-linge et lave-vaisselle), - salle de bains avec WC - dressing. Digicode et porte blindée. Cave. La presente annonce immobiliere vise 2 lots situés dans une copropriété de 254 lots au total et ne faisant l'objet d'aucune procédure en cours citée à l'article L. 721-1 du code de la construction et de l'habitation. Montant moyen mensuel de charges déclaré par le vendeur : 60€ par mois (soit 720 € annuel). Honoraires d'agence à la charge du vendeur. Information d'affichage énergétique sur ce bien : classe ENERGIE G indice 470 et classe CLIMAT C indice 18. Les informations sur les risques auxquels ce bien est exposé, y compris l'obligation légale de débroussaillement, sont disponibles sur le site Géorisques : La présente annonce immobilière a été rédigée sous la responsabilité éditoriale de Mme Gaelle David mandataire indépendant en immobilier (sans détention de fonds), agent commercial de la SAS I@D France immatriculé au RSAC de PARIS sous le numéro 900499344, titulaire de la carte de démarchage immobilier pour le compte de la société I@D France SAS.
Iad France - Michael Perez vous propose : Métro porte de Bagnolet au 6ᵉ étages avec ascenseur d’un immeuble bien entretenu de 10 étages, cet appartement 2 pièces séduit par sa luminosité et sa vue dégagée. L’entrée dessert un séjour lumineux, offrant un espace de vie confortable et chaleureux. La cuisine équipée, fonctionnelle, a été pensée pour un usage quotidien pratique. La chambre, au calme, dispose d’un accès direct à la salle de bains, et des WC séparés complètent l’agencement. La résidence est sécurisée, garantissant tranquillité et confort. Contactez-moi 7 jours sur 7 pour organiser une visite. La presente annonce immobiliere vise 2 lots situés dans une copropriété de 213 lots au total et ne faisant l'objet d'aucune procédure en cours citée à l'article L. 721-1 du code de la construction et de l'habitation. Montant moyen mensuel de charges déclaré par le vendeur : 151.67€ par mois (soit 1820 € annuel). Honoraires d'agence à la charge du vendeur. Information d'affichage énergétique sur ce bien : classe ENERGIE D indice 188 et classe CLIMAT C indice 40. Les informations sur les risques auxquels ce bien est exposé, y compris l'obligation légale de débroussaillement, sont disponibles sur le site Géorisques : La présente annonce immobilière a été rédigée sous la responsabilité éditoriale de M Michael Perez mandataire indépendant en immobilier (sans détention de fonds), agent commercial de la SAS I@D France immatriculé au RSAC de Paris sous le numéro 980618573, titulaire de la carte de démarchage immobilier pour le compte de la société I@D France SAS.
Ce bel appartement de 2 pièces et 35 m² au charme typiquement parisien se situe à la limite du 11ème arrondissement, dans le 20ème, à deux pas du Père Lachaise. Entre les stations Philippe Auguste et Alexandre Dumas (métro ligne 2), vous profiterez d'une vie de quartier dynamique, avec ses commerces, le marché Charonne et une accessibilité parfaite à toute la capitale. Le Père Lachaise, véritable poumon vert du secteur, offre en plus un cadre de promenade calme et chargé d'histoire. La copropriété, composée de 22 lots d'habitation et d'un seul bâtiment de six étages avec ascenseur, est typique de l'Haussmannien et bien entretenue. Le ravalement de façade a été effectué en 2022, les portes d'entrée remplacées, les caves actuellement en cours de réfection et la cage d'escalier refaite sous peu. L'appartement situé au 3ème étage avec ascenseur, est parfaitement agencé et a été rénové en 2018. Aucun travaux à prévoir. Il comprend une entrée, des WC séparés, une cuisine semi-ouverte sur le salon, une salle d'eau et une chambre. Le parquet, la cheminée et les moulures participent pleinement au charme de l'ancien, tandis que le double vitrage et les volets roulants électriques assurent confort et tranquillité. Ce que nous aimons particulièrement : L'emplacement idéal, Le charme de l'appartement et son excellent état, Le bon état et l'entretien régulier de la copropriété, L'ascenseur, Le calme, L'agencement optimisé de l'appartement, Aucun travaux à prévoir. Informations pratiques : Charges courantes mensuelles : 70€ Chauffage électrique. Taxe foncière 2025 : 771€ Diagnostic de performance énergétique (DPE) : Classe E. Consommation énergétique : 331 kWhEP / m2. an ClasseE Émission de gaz à effet de serre : 13 kg éqCO2 / m2. an Classe C Estimation des coûts annuels d'énergie entre 1.090€ et 1.500€ Ce joli bien s'adresse à celles et ceux qui veulent se créer leur propre cocon pour un premier achat, pour un investissement locatif ou encore pour un pied à terre avec un emplacement idéal. Prix net vendeur : 370.000 € Prix honoraires d'agence inclus : 383.000 € Honoraires de 3,5%TTC à la charge de l'acquéreur Contactez-nous pour le découvrir en images et en vidéo, et laissez-vous séduire par son charme et son atmosphère parisienne. Votre conseiller Feelhoome : Fondateur - Francois PLACET Carte T CPI 9201 2020 000 045 302 RCP 153006 L.
Iad France - Karine Vanborren vous propose : Situé au 1er étage avec ascenseur d’un immeuble parisien des années 1900, cet appartement deux pièces de 31 m² offre un cadre de vie agréable alliant charme de l’ancien et fonctionnalité. L’appartement se compose d’une entrée avec rangements, d’un séjour exposé Nord-Est avec cheminée, d’une chambre spacieuse avec parquet, d’une cuisine indépendante aménagée et équipée, rénovée en 2022, ainsi que d’une salle de douche avec WC. Les éléments de caractère tels que les moulures au plafond et la cheminée d’origine ont été préservés. Une cave privative en sous-sol, un local à vélo et une très grande cour intérieure végétalisée viennent renforcer le confort et la qualité de vie de ce bien. L’appartement bénéficie d’un emplacement recherché dans le quartier vivant Père Lachaise / Gambetta, apprécié pour ses commerces de proximité, ses cafés et ses espaces verts, tout en conservant une atmosphère résidentielle. Les stations de métro Pelleport (ligne 3bis) et Gambetta (lignes 3 et 3bis) sont à quelques minutes à pied. Plusieurs lignes de bus desservant le secteur, assurant une bonne connexion vers le centre de Paris et les arrondissements voisins. Un bien idéal pour une résidence principale, un pied-à-terre parisien ou un investissement locatif, au cOEur d’un arrondissement en constante évolution. La presente annonce immobiliere vise 2 lots situés dans une copropriété de 164 lots au total et ne faisant l'objet d'aucune procédure en cours citée à l'article L. 721-1 du code de la construction et de l'habitation. Montant moyen mensuel de charges déclaré par le vendeur : 113.86€ par mois (soit 1366.36 € annuel). Honoraires d'agence à la charge du vendeur. Information d'affichage énergétique sur ce bien : classe ENERGIE E indice 324 et classe CLIMAT E indice 70. Les informations sur les risques auxquels ce bien est exposé, y compris l'obligation légale de débroussaillement, sont disponibles sur le site Géorisques : La présente annonce immobilière a été rédigée sous la responsabilité éditoriale de Mme Karine Vanborren mandataire indépendant en immobilier (sans détention de fonds), agent commercial de la SAS I@D France immatriculé au RSAC de NANTERRE sous le numéro 918267956, titulaire de la carte de démarchage immobilier pour le compte de la société I@D France SAS.
Village jourdain - jean garcia optimhome vous présente dans un immeuble haussmannien, charmant appartement traversant 2 pièces d'une surface de 47 m² – orientation est-ouest situé dans un bel immeuble haussmannien de 1900, cet appartement de deux pièces d'une surface de 47 m² se trouve au troisième étage avec ascenseur, dans le quartier recherché de jourdain. Il se compose de : une entrée spacieuse un grand séjour lumineux avec parquet massif et moulures une chambre avec placard intégré une grande salle de bain une cuisine aménagée et équipée wc séparés vous apprécierez les prestations : parquet massif, moulures, belle hauteur sous plafond, ainsi que le double vitrage garantissant un confort optimal, faible charge. L'immeuble a été entièrement rénové dans les parties communes, cave, ravalement cours, toiture et vous bénéficierez également d'un local à vélo sécurisé. La station de métro jourdain (ligne 11) se trouve à seulement 286 m, facilitant vos déplacements dans la capitale. Vous serez également à proximité immédiate de tous commerces, restaurants, et d'une salle de sport. Visite virtuelle sur demande profession libérale possible nombre de lots de la copropriété : 27, montant moyen de la quote-part annuelle de charges (budget prévisionnel) : 1303€ soit 108€ par mois. Les honoraires sont à la charge du vendeur. Les informations sur les risques auxquels ce bien est exposé sont disponibles sur le site géorisques : www. Georisques. Gouv. Fr. Contactez jean garcia entrepreneur individuel, agent commercial optimhome (rsac n°329 409 007 greffe de paris) 06 12 70 87 08 (réf. 580346 ).
Iad France - Mirjana Djermanovic vous propose : Appartement prêt à vivre ! – 2 PIECES, LUMINEUX – Possibilité profession libérale. – A deux pas de la place de La Réunion, dans une petite copropriété agréable, cet appartement de 2 pièces, a été entièrement rénové avec goût (fenêtres, électricité, cuisine, salle d’eau, sols, murs…). Atouts du bien : - Disposition optimisée : un salon orienté Sud, avec une cuisine ouverte et neuve, une chambre très spacieuse et une salle d’eau avec douche à l’italienne. - Grande cave - Emplacement recherché, au cOEur de Paris, à proximité immédiate des commerces, restaurants et transports. - A seulement 7 minutes à pied de la station Alexandre Dumas. - Copropriété à taille humaine. - Possibilité d’exercice d’une profession libérale. Contactez-nous pour organiser une visite et découvrir ce bel appartement ! La presente annonce immobiliere vise 2 lots situés dans une copropriété de 12 lots au total et ne faisant l'objet d'aucune procédure en cours citée à l'article L. 721-1 du code de la construction et de l'habitation. Montant moyen mensuel de charges déclaré par le vendeur : 193.33€ par mois (soit 2320 € annuel). Honoraires d'agence à la charge du vendeur. Information d'affichage énergétique sur ce bien : classe ENERGIE E indice 324 et classe CLIMAT B indice 10. Les informations sur les risques auxquels ce bien est exposé, y compris l'obligation légale de débroussaillement, sont disponibles sur le site Géorisques : La présente annonce immobilière a été rédigée sous la responsabilité éditoriale de Mme Mirjana Djermanovic mandataire indépendant en immobilier (sans détention de fonds), agent commercial de la SAS I@D France immatriculé au RSAC de Créteil sous le numéro 877655183, titulaire de la carte de démarchage immobilier pour le compte de la société I@D France SAS.
Iad france - pierre-yves charrier vous propose : au quatrième étage du 9 rue le bua (75020) t2 de 36,87 m². À voir sans tarder. La presente annonce immobiliere vise 2 lots situés dans une copropriété de 120 lots au total et ne faisant l'objet d'aucune procédure en cours citée à l'article l. 721-1 du code de la construction et de l'habitation. Montant moyen mensuel de charges déclaré par le vendeur : 100€ par mois (soit 1200 € annuel). Honoraires d'agence à la charge du vendeur. Information d'affichage énergétique sur ce bien : classe energie e indice 335 et classe climat e indice 54. Les informations sur les risques auxquels ce bien est exposé, y compris l'obligation légale de débroussaillement, sont disponibles sur le site géorisques : la présente annonce immobilière a été rédigée sous la responsabilité éditoriale de m pierre-yves charrier mandataire indépendant en immobilier (sans détention de fonds), agent commercial de la sas i@d france immatriculé au rsac de orleans sous le numéro 518 923 313, titulaire de la carte de démarchage immobilier pour le compte de la société i@d france sas.