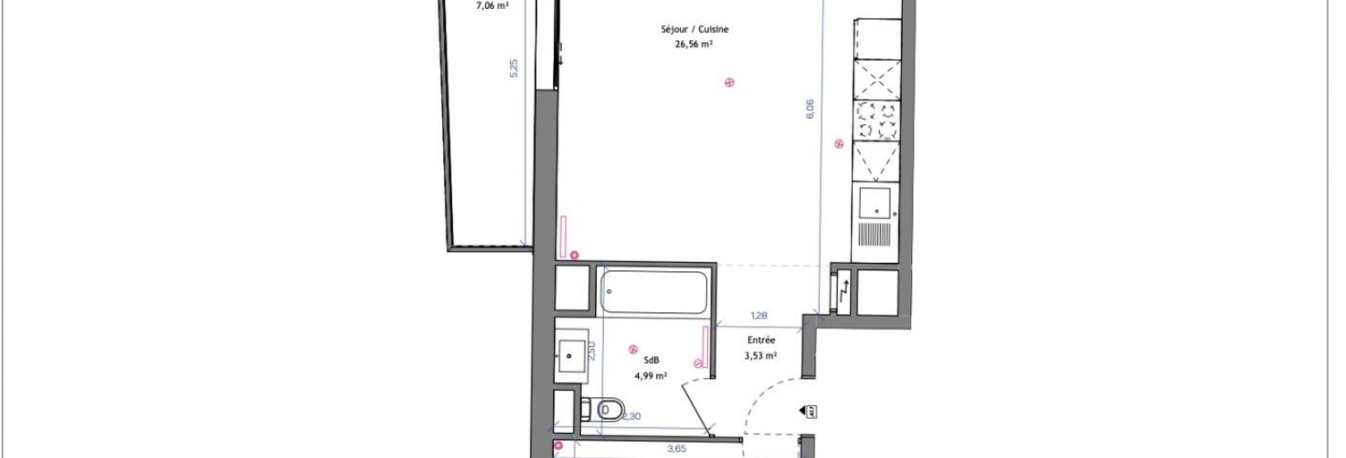
Iad France - Florian Vandeputte-Houbre (06 60 98 78 38) vous propose : Idéal primo accédant ou investisseurs - appartement 2 pièces avec balcon situé au 1er étage d'un immeuble de 2 étages. Situé rue de Barentin à Argenteuil, petite copropriété intimiste et de standing parfaitement desservie par les transports en commun pour rejoindre la gare du Val d'Argenteuil ainsi que le tramway au pont de Bezons. Vous pourrez profiter également des nombreux commerces de proximité du quartier. Agencement optimal pour cet appartement de 2 pièces situé au 1er étage d'un immeuble de 2 étages et offrant une entrée, un séjour avec cuisine ouverte de plus de 26 m² environ et donnant accès sur le balcon, et une salle de bains avec WC. Cave et emplacement de parking disponible en sus. Résidence réalisée dans le cadre du label Bâtiment Basse Consommation selon la norme RE 2020. N'hésitez plus et contactez-moi pour obtenir plus de renseignements. Honoraires d’agence à la charge du vendeur. Bien non soumis au DPE. Les informations sur les risques auxquels ce bien est exposé sont disponibles sur le site Géorisques : . La présente annonce immobilière a été rédigée sous la responsabilité éditoriale de M. Florian Vandeputte-Houbre EI (ID 86088), mandataire indépendant en immobilier (sans détention de fonds), agent commercial de la SAS I@D France immatriculé au RSAC de Pontoise sous le numéro 819907007, titulaire de la carte de démarchage immobilier pour le compte de la société I@D France SAS. Retrouvez tous nos biens sur notre site internet. .
Les informations sur les risques auxquels ce bien est exposé sont disponibles sur le site Géorisques : www.georisques.gouv.fr
Mise en ligne:
Dernière mise à jour:
Référence de l'annonce: 1736460-3Travaux en cours – nouveaux appartements disponibles à 400 m de la gare ! À seulement 15 minutes de paris saint-lazare, découvrez villa nymphea, une nouvelle résidence idéalement située à l’angle des rues alfred labrière et de montmorency, en plein cœur de ville. Composée de 3 bâtiments à taille humaine (4 étages seulement), cette adresse confidentielle vous propose des appartements du studio au 4 pièces, tous dotés de balcons, terrasses ou jardins privatifs, pour une qualité de vie rare en centre-ville. À 400 m de la gare, proche des commerces, des services et des transports, vous profitez d’un cadre à la fois pratique et paisible. Pensée pour le bien-être de ses résidents, villa nymphea bénéficie : d’une certification nf habitat, de la conformité à la re 2020, garantissant performance énergétique et confort au quotidien, et d’un jardin commun avec bac à sable, un espace de détente idéal pour les familles. Une opportunité à ne pas manquer pour vivre ou investir aux portes de paris. Les informations sur les risques auxquels ce bien est exposé sont disponibles sur le site géorisques : .

DEVENEZ PROPRIETAIRE AVEC LA TVA réduite à 5.5% au lieu de 20% La résidence Sileo, bénéficie d'un emplacement stratégique au coeur du quartier du Val Notre-Dame. Emplacement idéal à moins de 300 mètres avec tous les commerces de proximité pharmacie, boulangerie, coiffeur, pressing, tabac, la poste, etc ainsi que son marché avec ses produits frais. Cette résidence profite de la proximité de divers établissements scolaires et des services de santé. Alliant matériaux de qualité et conception moderne, Sileo est idéal pour la famille comme les actifs par sa proximité et son accessibilité, le bus ligne 9 au pied de la résidence qui permet de rejoindre la gare Argenteuil en 18 min, desservit par la ligne J pour aller à Saint Lazare en 27 min, possibilité de récupérer également le RER A avec le bus ligne 9 pour aller à la gare de Sartrouville (RER A) en 26 min. Son architecture gagnée en concours, comporte une venelle paysagée privative reliant l'avenue Jean Jaurès à la rue de l'Union, permettant une circulation agréable et facile pour ses résidents. Argenteuil offre un cadre dynamique aux portes de Paris tout en restant paisible. Ses quartiers variés, ses berges de Seine et ses parcs séduisent les familles. Bien desservie par les transports, la ville dispose aussi d'écoles, médiathèques et équipements sportifs. Son ambiance conviviale renforce son attrait résidentiel. * Les prix affichés tiennent compte de la TVA 5.5%. Voir conditions auprès de nos conseillers Les informations sur les risques auxquels ce bien est exposé sont disponibles sur le site Géorisques : .
Argenteuil hyper centre, 2 minutes gare principale 12 minutes St Lazare, ce beau T2 sans aucun travaux à prévoir situé au 3eme étage sur 6 avec ascenseur vous séduira : il se compose d'une entrée, wc, grande pièce de vie baignée de lumièreGrande place de parking en sous sol. Tous les types d'établissements scolaires (de la maternelle au lycée).
Pitois nicolas vous propose à argenteuil, au quartier recherché d'orgemont, un appartement de type f2 de 43 m² dans une résidence sécurisée. L'appartement se compose d'une grande entrée, d'un couloir desservant une salle de bains, une chambre et un séjour avec accès balcon. (vue dégagée sur paris) beaucoup de rangements. Fenêtres doubles vitrages avec stores électriques. Chauffage collectif. Digicode. Gardien. Une cave et une place de parking complètent ce bien. Appartement refait. Pas de travaux à prévoir. Proches des écoles et des commerces (grand frais. ) proche de la gare d'argenteuil centre ville. Nombre de lots de la copropriété : 600, montant moyen de la quote-part annuelle de charges (budget prévisionnel) : 2640€ soit 220€ par mois. Les honoraires sont à la charge du vendeur. Les informations sur les risques auxquels ce bien est exposé sont disponibles sur le site géorisques : www. Georisques. Gouv. Fr. Contactez nicolas pitois entrepreneur individuel, agent commercial optimhome (rsac n°453 152 357 greffe de pontoise) 06 99 32 06 32 (réf. 586721 ).
À découvrir sans tarder : lumineux 4 pièces de 68 m² avec balcon secteur Orgemont / Vaucelle. Situé au 3 ? étage sur 8 d'une résidence sécurisée et à taille humaine, cet appartement offre un cadre de vie à la fois convivial et pratique. Dès l'entrée, vous apprécierez ses volumes bien pensés, ses grands placards intégrés et son agencement optimisé. L'espace de vie, initialement conçu pour 3 chambres, a été transformé en double séjour spacieux et baigné de lumière, grâce aux larges portes-fenêtres donnant accès à un agréable balcon. La cuisine aménagée et équipée, ouverte sur le séjour, renforce le confort et la convivialité. L'espace nuit se compose de 2 chambres chaleureuses avec parquet, d'une salle de bain fonctionnelle et de WC indépendants. Côté praticité, l'appartement bénéficie de nombreux atouts : 2 ascenseurs, 1 cave privative, 1 place de parking extérieure, accès rapide à l'A15, proximité immédiate des transports en commun, commerces et écoles. Contactez-moi dès maintenant pour organiser une visite et laissez-vous séduire ! Le bien comprend 3 lots, et il est situé dans une copropriété de 144 lots (les charges courantes annuelles moyennes de copropriété sont de 3110.2 € et le syndicat des copropriétaires fait l'objet d'une procédure citée à l'article L. 721-1 du code de la construction et de l'habitation). Les informations sur les risques auxquels ce bien est exposé sont disponibles sur le site Géorisques : Prix de vente : 199 000 € Honoraires charge vendeur Contactez votre conseiller SAFTI : Virginie MARANGON, Tél. : 06 51 25 95 21, E-mail : virginie.marangon@safti.fr - EI - Agent commercial immatriculé au RSAC de Pontoise sous le numéro 983 675 869.
Découvrez ce charmant appartement situé dans un immeuble récent de 2011, idéalement situé à seulement 10 mn à pied de la gare. Beau séjour lumineux avec accès à un balcon, cuisine équipée ouverte, 2 chambres spacieuses, 1 salle de bain et 1 WC séparé. De nombreux rangements pour un maximum de confort, place de parking en s / sol. Proposition d'aménagement virtuel non contractuelle en dernière photo. Honoraires inclus dans le prix : 5.44%.
Au cœur du quartier Orgemont / Vaucelle, dans une résidence calme et bien entretenue, découvrez ce charmant T2 en RDC sur 4 étages qui séduit par son séjour lumineux ouvrant sur une terrasse et un jardin privatif en jouissance exclusive. La cuisine séparée et équipée ainsi que la chambre exposées nord-est, offrent une vue sur le jardin. La salle de bains avec WC complète cet intérieur fonctionnel. Vous apprécierez également le confort d'un ballon d'eau chaude récent ainsi que la commodité d'un parking en sous-sol sécurisé. À moins de 5 minutes à pied : commerces de proximité (boulangerie, boucherie, épiceries, restaurants, pharmacie), écoles Jules Ferry et arrêts de bus (lignes 7 et 361). La gare d'Argenteuil, reliant Paris Saint-Lazare en 10 minutes, se situe à seulement 1,1 km. Un appartement rare, bien agencé, qui conjugue confort, extérieur et praticité. Idéal pour un premier achat ou un investissement serein. Intéressé(e) ? Contactez-moi pour plus d'informations ou pour organiser une visite ! Le bien comprend 2 lots, et il est situé dans une copropriété de 120 lots (les charges courantes annuelles moyennes de copropriété sont de 1089 € et le syndicat des copropriétaires ne fait pas l'objet d'une procédure citée à l'article L. 721-1 du code de la construction et de l'habitation). Les informations sur les risques auxquels ce bien est exposé sont disponibles sur le site Géorisques : Prix de vente : 175 000 € Honoraires charge vendeur Contactez votre conseiller SAFTI : Virginie MARANGON, Tél. : 06 51 25 95 21, E-mail : virginie.marangon@safti.fr - EI - Agent commercial immatriculé au RSAC de Pontoise sous le numéro 983 675 869.
À saisir à 10 minutes de la gare du val, t3 avec ascenseur et parking, proche des commerces, écoles, transports publics, centre hospitalier et dans une résidence de 2011, faibles charges. Ce charmant appartement très lumineux de trois pièces 60 m² qui se compose; d'une grande entrée avec placard, deux chambres, wc, salle de bains, une cuisine aménagée us et un vaste séjour avec balcon. Il nous offre également un parking en sous-sol. Le bien comprend 2 lots, et il est situé dans une copropriété de 86 lots (les charges courantes annuelles moyennes de copropriété sont de 1556 € et le syndicat des copropriétaires ne fait pas l'objet d'une procédure citée à l'article l. 721-1 du code de la construction et de l'habitation). Les informations sur les risques auxquels ce bien est exposé sont disponibles sur le site géorisques : prix de vente : 208 000 € honoraires charge vendeur contactez votre conseiller safti : claudia lopes, tél. : 06 24 41 57 05, e-mail : claudia.lopes@safti.fr - ei - agent commercial immatriculé au rsac de pontoise sous le numéro 853 372 555.
À 3 minutes de la gare d'argenteuil soit moins de 15 minutes de saint lazare. En plein centre ville et à proximité de toute commodité (coté seine, restaurants, salle de sport,. ). Un appartement de 57 m² de 3 pièces comprenant un beau séjour avec cuisine ouverte aménagée et équipée, deux chambres, une salle d'eau et un wc séparé. Une place de parking complète ce bien. Lumineux, bien isolé et au calme.