Logo LSI sombre

Terrain  408 m² à vendre à Rognes (13840)
Photo N° 2
Photo N° 3
3

Vente terrain 408 m² Rognes (13840)

210 000 €

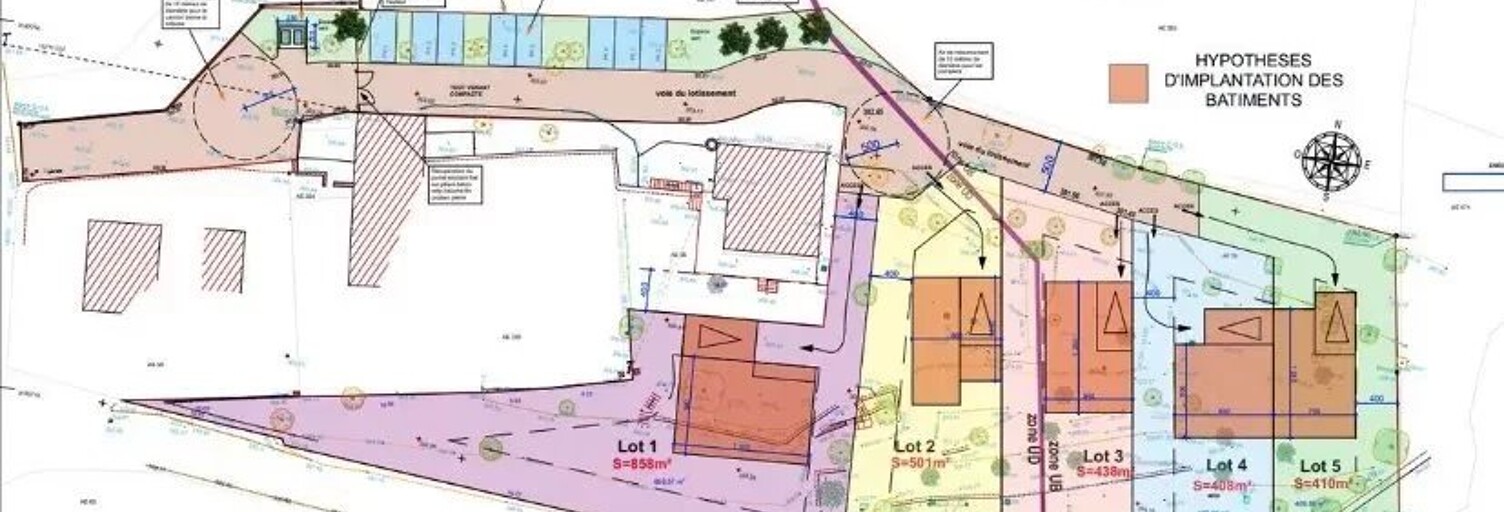
Terrain constructible 408m² viabilisé Rognes 13840

Terrain constructible 408 m² viabilisé Rognes 13840 Bienvenue chez Abriculteurs, l’agence familiale qui s’engage à un service d’exception. Découvrez une présentation soignée de ce bien : des photos pro, un plan détaillé et une visite virtuelle immersive pour vous projeter. Faites confiance à notre expertise pour transformer vos projets immobiliers en réussites remarquables. Nous sommes ravis de vous proposer ces terrains constructibles à la vente à Rognes (13840). Ces parcelles, viabilisées et libres de constructeur, sont situées au sein d’une résidence sécurisée et arborée composée de seulement six lots. Vous y découvrirez un véritable havre de paix, idéal pour les familles souhaitant concevoir leur maison sur mesure, dans un cadre de vie intime et verdoyant. À quelques pas des commodités du village, l’un des terrains disponibles offre une superficie de 408 m², avec une emprise au sol de 180 m², au prix de 210 000 euros. D’autres opportunités sont également disponibles, avec des prix variant entre 210 000 euros et 304 500 euros, selon les caractéristiques des lots. Prix de vente : 200 000 euros TTC (hors honoraires agence) Honoraires à la charge de l'acquéreur de 10 000 euros représentant un total de 210 000 euros (honoraires d'agence inclus), soit 5 % du prix de vente. Ce bien a retenu votre intérêt ? Pour organiser la visite avec nous, rien de plus simple, prenez rendez-vous en ligne au moment qui vous convient le mieux. Les informations sur les risques auxquels ce bien est exposé sont disponibles sur le site Géorisques : Annonce rédigée sous la responsabilité éditoriale de Mme PEFFERT Laura, agent commercial (EI), immatriculé au RSAC de Salon-de-Provence sous le n° 904 617 404, sans détention de fonds, agissant pour le compte de la SARL Abriculteurs immobilier, au capital de 5 000 euros, immatriculée sous le SIREN n° 837 704 584, titulaire de la carte professionnelle n° CPI 7501 2018 000 025 842 délivrée par la CCI de Paris Île-de-France, dont le représentant légal est M. Adrien Piot, ayant son siège social au 12 rue des Halles, 75001 Paris.

Caractéristiques

Les plus de cette annonce
  • Jardin

A propos du prix de ce terrain

  • Prix : 210 000 € (soit 515 € / m²)
  • Prix hors honoraires acquéreur : 200 000 €

À propos de cette annonce

Mise en ligne:

Dernière mise à jour:

Référence de l'annonce: LPVT3360
Abriculteurs agence immobilière à Paris (75)
Abriculteurs
Afficher le numéro

À voir pour le même budget

Terrain  199000 €
199 000 €

Terrain 345 m²

Lambesc (13410)

Terrains constructibles viabilisés – lambesc bienvenue chez abriculteurs, l’agence familiale qui s’engage à un service immobilier d’exception. Faites confiance à notre expertise pour transformer vos projets immobiliers en réussites remarquables. Trois terrains à bâtir libres de constructeur, idéalement situés à lambesc, dans un environnement résidentiel agréable, avec commerces, écoles et services accessibles à pied. Caractéristiques des lots disponibles : lot n°6 : 362 m² – 249.000 euros ttc lot n°7 : 338 m² – 239.000 euros ttc lot n°8 : 345 m² – 199.000 euros ttc prix ttc, honoraires à la charge du vendeur. Terrains viabilisés : raccordement à l’eau, l’électricité et aux télécommunications. Libres de constructeur : vous êtes libre de choisir le professionnel de votre choix pour votre projet. Localisation : - à seulement 15 minutes de salon-de-provence - à 25 minutes d’aix-en-provence - gare sncf aix tgv à 30 minutes - aéroport marseille provence à 35 minutes - accès rapide aux transports et aux grands axes routiers une belle opportunité de construire votre projet de vie dans un cadre privilégié et calme, tout en restant proche des grandes villes. Les informations relatives aux risques liés à ce bien sont disponibles sur le site géorisques : le bien n'est pas soumis au dpe. Annonce rédigée sous la responsabilité éditoriale de m. Richier matthieu, agent commercial (ei), immatriculé au rsac de salon-de-provence sous le n° 850 335 530, sans détention de fonds, agissant pour le compte de la sarl abriculteurs immobilier, au capital de 5 000 euros, immatriculée sous le siren n° 837 704 584, titulaire de la carte professionnelle n° cpi 7501 2018 000 025 842 délivrée par la cci de paris île-de-france, dont le représentant légal est m. Adrien piot, ayant son siège social au 12 rue des halles, 75001 paris.

Terrain  221875 €
221 875 €

Terrain

La Roque-d'Anthéron (13640)

M-OI La Roque-d'Anthéron vous propose à la vente en exclusivité plusieurs lots à bâtir dans le lotissement "Le hameau de la source" libre constructeur ref 4988-ASA L'adresse du bien, la vidéo de visite virtuelle et toutes les informations financières sont disponibles en ligne sur le site de Mon Office Immobilier avec la référence 4988 (Lien direct sur les photos) Situation et contexte : Situé sur l'avenue Sainte-Anne de Goiron, à proximité du centre du village, ces terrains vous offrent un cadre naturel exceptionnel tout en étant proches des commodités. Avantages extérieurs : Le lot 7 bénéficie d'une superficie de 834 m² avec une emprise au sol possible de 125 m² et une vue dominante. Vous avez la possibilité de construire une maison en R + 1 et le terrain est piscinable. Le terrain, viabilisé, est plat, très ensoleillé et orienté vers le sud, avec des espaces communs arborés et aménagés. Prestations complémentaires : Le terrain est viabilisé, il est doté de toutes les installations nécessaires pour accueillir votre future maison, dans un environnement calme et bien structuré. - À votre service : Anthony SANS - 06 17 57 00 16 Agent commercial Mon Office Immobilier immatriculé au RSAC de Aix en provence - N°821128758 Référence annonce : 4988-ASA Le prix indiqué comprend les honoraires à la charge de l'acheteur d'un montant de 4.72% inclus dans le prix affiché. Les informations sur les risques auxquels ce bien est exposé sont disponibles sur le site Géorisques : .

Terrain  250000 €
250 000 €

Terrain 1073 m²

La Roque-d'Anthéron (13640)

M-OI La Roque-d'Anthéron vous propose à la vente en exclusivité plusieurs lots à bâtir dans le lotissement "Le hameau de la source". L'adresse du bien, la vidéo de visite virtuelle et toutes les informations financières sont disponibles en ligne sur le site de Mon Office Immobilier avec la référence 4982 (Lien direct sur les photos) Situation et contexte : Situé sur l'avenue Sainte-Anne de Goiron, à proximité du centre du village, ces terrains vous offrent un cadre naturel exceptionnel tout en étant proches des commodités. Avantages extérieurs : Le lot 1 bénéficie d'une superficie de 1 073 m² avec une emprise au sol possible de 161 m². Vous avez la possibilité de construire une maison en R + 1 et le terrain est piscinable. Le terrain, viabilisé, est plat, très ensoleillé et orienté vers le sud, avec des espaces communs arborés et aménagés. Prestations complémentaires : Le terrain est viabilisé, il est doté de toutes les installations nécessaires pour accueillir votre future maison, dans un environnement calme et bien structuré. - À votre service : Anthony SANS - 06 17 57 00 16 Agent commercial Mon Office Immobilier immatriculé au RSAC de Aix en provence - N°821128758 Référence annonce : 4982-ASA Le prix indiqué comprend les honoraires à la charge de l'acheteur d'un montant de 4.17% inclus dans le prix affiché. Les informations sur les risques auxquels ce bien est exposé sont disponibles sur le site Géorisques : Le bien est soumis au statut de la copropriété. Dans une copropriété de 9 lots. Sans procédure en cours. Environ 120 € de charges annuelles de copropriété.

Terrain  230000 €
230 000 €

Terrain 469 m²

Le Puy-Sainte-Réparade (13610)

Le puy ste reparade, aux abords d'une zone boisée et d'un canal et à proximité d'un domaine viticole de renom, nous vous proposons un terrain constructible d'environ 469 m² dans un lotissement de 31 lots. Surface de plancher maximum 200 m². Viabilités en bordure. Libre constructeur.

Terrain  230000 €
230 000 €

Terrain 578 m²

Le Puy-Sainte-Réparade (13610)

Profitez du pret a taux zero en investissant sur le puy ste reparade, aux abords d'une zone boisée et d'un canal, proche d'un domaine viticole de renommé international, nous vous proposons un terrain constructible d'environ 578 m² dans un lotissement de 31 lots. Surface de plancher maximum 200 m². Viabilités en bordure. Libre constructeur.

Terrain  250000 €
250 000 €

Terrain 558 m²

Le Puy-Sainte-Réparade (13610)

Profitez du pret a taux zero en investissant sur le puy ste reparade aux abords d'une zone boisée et d'un canal, proche d'un domaine viticole de renommé international, nous vous proposons un terrain constructible d'environ 558 m² dans un lotissement de 31 lots. Surface de plancher maximum 200 m². Viabilités en bordure. Libre constructeur.