
Taux crédit immobilier mars 2026 : les banques baissent encore leurs offres
En mars 2026, deux grandes banques baissent leurs taux de crédit immobilier. Analyse des meilleures offres et conseils pour optimiser son financement.
3 résultats
Située dans un environnement calme et verdoyant, cette maison de campagne de 153 m² allie caractère, confort et potentiel. Parfaite pour une famille en quête d'espace et d'authenticité, elle offre de très beaux volumes et le charme de l'ancien. La maison se compose d'une spacieuse pièce de vie baignée de lumière, d'une cuisine familiale, de quatre grandes chambres, d'une salle de bains et de plusieurs espaces annexes permettant divers aménagements selon vos besoins. Côté confort, le bien est équipé d'un chauffage par pompe à chaleur (PAC), garantissant efficacité énergétique et économies (DPE : classe D). Bien que la propriété ne dispose pas de jardin attenant, un terrain à proximité immédiate permet de profiter pleinement de l'extérieur. Ce terrain est en zone constructible sous condition d'obtention d'un permis de construire. Quelques travaux de rafraîchissement sont à prévoir, offrant la possibilité de personnaliser ce bien au fort potentiel selon vos goûts. Les atouts : - Superficie de 153 m² - 4 chambres spacieuses - Charme de l'ancien (poutres, pierres, beaux volumes) - Chauffage économique par PAC - Environnement calme et campagne à proximité des commodités - Terrain constructible à proximité N'hésitez pas à contacter l'agence et prendre rendez- vous pour une visite ! Référence agence : 146.
! . Nouveauté limo à découvrir. ! . Beau potentiel de rénovation ou d'activité professionnelle, idéalement situé sur un terrain de 2224 m². À 30 min de limoges. 10 min de châlus. Dans le centre de la commune des cars. Venez découvrir cette magnifique surface de rénovation comprenant une ancienne maison avec une partie à réaménager de 91 m² ainsi qu'un garage de 202 m² accompagné de son atelier de 98 m² avec un vestiaire de 3 m². Ce bien exceptionnel, est idéal pour un artisan ou toutes personnes à la recherche d'une rénovation atypique. À visiter au plus vite. ! Mandat no650.
Grange de bourg à fort potentiel, idéal projet de création d'un logement, la toiture est impeccable, les murs sains, ouvertures, et raccordée au tout-à-l'égout (WC et cheminée inclus). Cour avant et jardin clos à l'arrière. Certificat d'Urbanisme positif pour transformation en habitation. Proche commodités. À visiter sans tarder ! Honoraires inclus dans le prix : 16.67%.
Autres annonces à proximité de Les Cars (87230) avec vos critères
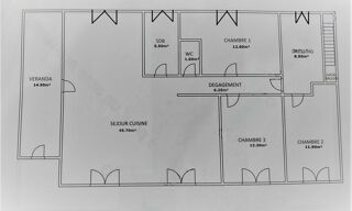
À VENDRE – Maison 89 m² avec jardin clos et garage Maison fonctionnelle comprenant au rez-de-chaussée : cuisine, salon-séjour, chambre, salle d’eau avec WC. À l’étage : deux chambres avec placard. Garage, petites dépendances et terrain entièrement clôturé complètent l’ensemble. Maison agréable, bien entretenue, idéale pour une famille ou un premier achat.

Recevez en temps réel les dernières annonces correspondant à votre recherche
Iad France - Romain Sabourdy vous propose : Sublime Maison Traditionnelle à Pageas avec vaste jardin, deux grange et une ancienne porcherie. Découvrez cette maison traditionnelle située à Pageas, offrant un cadre de vie paisible. Construite en 1948 et en bon état, cette demeure allie charme d'antan et confort, idéale pour une famille en quête d'authenticité et de nature. Dès l'entrée, vous serez charmé par l'atmosphère chaleureuse qui règne dans cette maison. En entrant dans cette maison vous disposez d'une cuisine à rénover, d'un salon et d'une salle a manger. À l'étage vous arrivez sur un pallier pouvant servir de bureau, il y a aussi une salle de bain et deux chambres qui complète l'étage. Un grenier pouvant être aménagé en une troisième chambre vous offre un espace de vie agréable et spacieux. À l'extérieur, un vaste jardin arboré de 2120 m² et clôturée vous invite à la détente en plein air. Profitez également d'un garage et d'une grande grange pour protéger votre véhicule ou votre matériels. Une petite dépendance qui été anciennement une porcherie complète l'extérieur. Les alentours de la maison offrent un cadre de vie agréable, avec des complexes sportifs, des groupes scolaires, des supermarchés, des restaurants accessibles à quelques kilomètres seulement. Les balades en forêt et sport en plein air seront vos meilleurs passe temps. Cette maison bénéficie d'une exposition idéale, offrant une belle luminosité tout au long de la journée. Une opportunité rare d'acquérir une maison traditionnelle dans un cadre naturel préservé. Contactez moi dès maintenant pour organiser une visite et laissez-vous séduire par le charme de cette propriété unique à Pageas. Honoraires d'agence à la charge du vendeur. Information d'affichage énergétique sur ce bien : classe ENERGIE C indice 163 et classe CLIMAT A indice 5. Les informations sur les risques auxquels ce bien est exposé, y compris l'obligation légale de débroussaillement, sont disponibles sur le site Géorisques : La présente annonce immobilière a été rédigée sous la responsabilité éditoriale de M Romain Sabourdy mandataire indépendant en immobilier (sans détention de fonds), agent commercial de la SAS I@D France immatriculé au RSAC de LIMOGES sous le numéro 940586910, titulaire de la carte de démarchage immobilier pour le compte de la société I@D France SAS.
Venez découvrir cette charmante maison située dans un petit hameau calme de PAGEAS, composée d'une grange, deux chambres à l'étage. En rez-de-chaussée, vous trouverez un bureau, une salle de bains avec WC et douche. Cave, une cuisine, un salon / séjour avec la possibilité d'installer un poêle à bois. Terrain d'environ 785 m². Honoraires inclus dans le prix : 8.6%. Logement à consommation énergétique excessive : classe F.
Maison des années 60 / 70 entiérement rénovée, composée, 1 chambre, salon avec poêle à bois, cuisine ouverte, buanderie, dressing, salle d'eau avec douche à l'italienne, wc. Les combles sont aménageables, et la propriété est entiérement clôturée. La toiture est récente, la plomberie et l'électricité date de 5 ans. À visiter. Proposition d'aménagement virtuel non contractuelle en dernière photo. Honoraires inclus dans le prix : 8.48%.
Vieille bâtisse en pierre dans laquelle ont été conservés les éléments anciens (poutres, parquet). Située dans le bourg, vous succomberez à ses volumes. Vous disposerez de 3 chambres mais le grenier reste entièrement aménageable. À quelques pas de la maison, vous profiterez d'un jardinet. Prenez rendez-vous pour une visite ! Proposition d'aménagement virtuel non contractuelle en dernière photo. Honoraires inclus dans le prix : 8.5%.
Fiche id-sit179952 : située au coeur de flavignac, cette agréable maison de plain-pied offre un cadre de vie pratique et confortable, à deux pas des commerces et des services. Elle se compose d'une belle pièce à vivre lumineuse de 26 m², de trois chambres et d'un sous-sol complet avec un grand garage,. (jusqu'à 4 véh icules). Vous profiterez également d'un terrain plat de 900 m² avec une grande terrasse bien exposée, idéal pour les beaux jours. Les fenêtres sont en pvc double vitrage. Cette maison est prête à vous accueillir avec votre petite famille. (6.75 \% d'honoraires ttc à la charge de l'acquéreur.) - mentions légales : proposé à la vente à 170800 euros (dont 6.75% ttc d'honoraires à la charge de l'acquéreur, soit un prix hors honoraires de 160000 euros) - dpe réalisé le : 23 / 01 / 2026 - affaire suivie par mr nicolas valois (agent immobilier - responsable) - reseau immo-diffusion aixe sur vienne - pour plus d'informations, contactez notre secrétariat au 09 74 53 13 81 (appel gratuit ou prix d'une communication locale).
Authentique longère avec grange sur 2585 m² offrant une vue d'exception sur le Limousin. Ce bien révèle un potentiel rare : ses vastes dépendances saines permettent de beaux projets d'extension ou de stockage. Un puit agrémente ce havre de paix. Une opportunité à 25min de Limoges, idéale pour créer votre futur domaine sur mesure. Proposition d'aménagement virtuel non contractuelle en dernière photo. Honoraires inclus dans le prix : 9.04%.
Fiche id-sit179903 : maison contemporaine de 2017, de plain-pied avec mezzanine, sur un terrain clos de 2956 m². Grand salon séjour lumineux avec cuisine ouverte, donnant sur la terrasse. Trois chambres dont avec dressing de plus de 15 m². Et une vaste salle de bains avec douche et baignoiremezzanine de 20 m² idéale bu reau ou espace détente. Double garage, cellier et chalet récent de 20 m² complètent l'ensemble. Confort moderne : chauffage au sol par pompe à chaleur air / eau. (5.50 \% d'honoraires ttc à la charge de l'acquéreur.) - mentions légales : proposé à la vente à 253200 euros (dont 5.5% ttc d'honoraires à la charge de l'acquéreur, soit un prix hors honoraires de 240000 euros) - dpe réalisé le : 30 / 01 / 2026 - classe-energie a : 35 kwh. M2. An - montant estimé des dépenses annuelles d'énergie pour un usage standard compris entre 500 et 720 euros - affaire suivie par mr nicolas valois (agent immobilier - responsable) - reseau immo-diffusion aixe sur vienne - pour plus d'informations, contactez notre secrétariat au 09 74 53 13 81 (appel gratuit ou prix d'une communication locale).
Maison de caractère sur terrain, offrant vaste pièce de vie, suite parentale au rez-de-chaussée, trois chambres et bureau à l’étage. Dépendances avec cuisine d’été et buanderie.
Iad France - Jason Poupard vous propose : Grande maison familiale sur 3 hectares – Pageas Amoureux de nature, de calme et de grands espaces ? Cette maison de 213 m² habitables située à Pageas est faite pour vous ! Installée sur un terrain de 30 000 m², elle offre une vie au vert, entre prairies, arbres fruitiers et présence d'eau naturelle sur la parcelle. Un cadre parfait pour un projet familial, professionnel ou agricole. Composition du bien : Sous-sol : cave, buanderie, garage Rez-de-chaussée : cuisine séparée, séjour lumineux, 1 chambre, 2 bureaux, salle de bain, WC séparé, second garage Étage : 4 chambres, salle d’eau, WC indépendant, accès combles Côté technique, vous profiterez du double vitrage bois sur l’ensemble de la maison, d’un chauffage au bois complété par des radiateurs électriques et d’un tunnel agricole idéal pour vos cultures ou votre matériel. Environnement calme et verdoyant, à quelques minutes des commodités. Un bien rare à fort potentiel, qui n’attend plus que votre projet pour entamer une nouvelle vie ! Honoraires d'agence à la charge du vendeur. Information d'affichage énergétique sur ce bien : classe ENERGIE D indice 238 et classe CLIMAT B indice 7. Les informations sur les risques auxquels ce bien est exposé, y compris l'obligation légale de débroussaillement, sont disponibles sur le site Géorisques : La présente annonce immobilière a été rédigée sous la responsabilité éditoriale de M Jason Poupard mandataire indépendant en immobilier (sans détention de fonds), agent commercial de la SAS I@D France immatriculé au RSAC de LIMOGES sous le numéro 853148856, titulaire de la carte de démarchage immobilier pour le compte de la société I@D France SAS.
Ivez en plein cœur du bourg de Lavignac ! Grande maison de bourg comprenant au rez-de-chaussée : entrée, cuisine, salle à manger, séjour. À l'étage : Un grand palier distribue trois chambres de grandes tailles, vous trouverez également une salle de bains, un grand dressing des toilettes séparées. Les + Un joli jardin de plus de 2000 m² avec vue dégagée et une dépendance de 40 m² au sol complètent ce bien. Bien Eligible au prêt à taux zéro ! ️ Vous n’avez plus qu’à m’appeler pour convenir d’une visite.
Venez découvrir cette maison en pierre composée en rez-de-chaussée : d'un salon / séjour, une cuisine, un WC, une salle de bains avec dégagement. À l'étage, vous trouverez trois chambres, un bureau, une salle d'eau, un WC. Plusieurs dépendances viennent compléter ce bien, piscine hors service, jardin d'environ 2000 m². À VISITER ! Proposition d'aménagement virtuel non contractuelle en dernière photo. Honoraires inclus dans le prix : 9.6%.
Maison de village avec jardin à rénover entièrement. Composée de 5 chambres, séjour, cuisine, salle de bains, salle d'eau, WC, garage. Terrain clos. Honoraires inclus dans le prix : 12%. Logement à consommation énergétique excessive : classe G.
Idéalement située dans le bourg à deux pas de la gare et des commerces de proximité, venez découvrir cette maison en pierre de 135 m² habitable à remettre au gout du jour, composée de 4 chambres, garage, atelier, puits et un joli parc arboré, sur une parcelle de 2755 m². Tout à l'égout, toiture récente. Honoraires inclus dans le prix : 7.36%. Logement à consommation énergétique excessive : classe F.
Maison rénovée au bourg de Bussière-Galant : séjour, cuisine design, arrière-cuisine. À l’étage, 3 chambres, bureau, superbe salle de bain, 2 WC. Combles aménageables, cave, dépendance. Profitez d'un agréable jardin clos et verdoyant de 347 m². Un cocon moderne, calme et clé en main, idéal pour votre famille ! Proposition d'aménagement virtuel non contractuelle en dernière photo. Honoraires inclus dans le prix : 7.48%.
Au sud ouest de limoges, un trés beau projet à envisager, projet familial ou de tourisme, ou tout autre projet, pour ce trés joli corps de ferme rénové composé d'une maison d'habitation de 102 m², 4 chambres, d'une autre maison rénovée mitoyenne indépendante de 112 m², 3 chambres, piscine hors sol. Dans la cour privée se trouve une grange en pierres et garage. La deuxième maison est louée en locations saisonnières et procure des revenus le bati est sur 7 hectares de terres agricoles avec la présence d'un joli étang de 1,77 hectares, empoissonnée, agréables journée de pèche à envisager. Le prix de vente de ce bien est de 383 400 euros honoraires charge vendeur pour visiter et vous accompagner dans votre projet, contactez laurette duris, au 06 88 69 87 68 ou, par courriel à l.duris@proprietes-privees.com. Pour la maison principale dpe c et ges a pour la 2e maison dpe f et ges c pour la maison principale montant estimé des dépenses annuelles d'énergie pour un usage standard entre 750 et 1014 euros pour la 2e maison montant estimé des dépenses annuelles d'énergie pour un usage standart entre 2110 et 2910 euros pour les 2 maisons, prix moyens des énergies indexés au 1er janvier 2021 (abonnements compris) selon l'article l. 561.5 du code monétaire et financier, pour l'organisation de la visite, la présentation d'une pièce d'identité vous sera demandée. Cette présente annonce a été rédigée sous la responsabilité éditoriale de laurette duris agissant sous le statut d'agent commercial immatriculé au rsac 328106356 limoges auprès de sas proprietes privees, au capital de 44 920 euros, zac le chêne ferré - 44 allée des cinq continents 44120 vertou; siret 487 624 777 00040, rcs nantes. Carte professionnelle transactions sur immeubles et fonds de commerce (t) et gestion immobilière (g) n°cpi 4401 2016 000 010 388 délivrée par la cci nantes - saint nazaire. Compte séquestre n°309 32 50 84 67 bpa saint-sebastien-sur-loire (44230). Garantie galian-smabtp - 89 rue de la boétie, 75008 paris - n°28137 j pour 2 000 000 euros pour t et 120 000 euros pour g. Assurance responsabilité civile professionnelle par galian-smabtp n° de police 28137. J mandat réf : 434645 le professionnel garantit et sécurise votre projet immobilier. Laurette duris (ei) agent commercial - numéro rsac : 328106356 limoges -. Les informations sur les risques auxquels ce bien est exposé sont disponibles sur le site géorisques : www. Georisques. Gouv. Fr.
Dans le bourg de Bussiere Galant, Booster vous propose cette maison à rénover comprenant une entrée, une cuisine, une pièce de vie. À l'étage, un palier, trois chambres, salle de bains, pièce avec point d'eau. Sous sol, grange en face de la maison avec terrain d'environ 1400 m². Honoraires : 7,50 % TTC inclus charge acquéreur (80 000 € hors honoraires).
Cette maison avec une architecture élégante, allie le charme classique à des touches de modernitée. Les grandes fenêtres laissent entrer la lumiére naturelle. À l'intérieur, un vaste salon, un bureau, une cuisine, 3 chambres. La maison n'est plus habitée depuis quelques temps, et posséde également une grange proche avec terrain. Honoraires inclus dans le prix : 10%. Logement à consommation énergétique excessive : classe F.
Au sud ouest de limoges, un trés beau projet à envisager, projet familial ou de tourisme, ou tout autre projet, pour ce trés joli corps de ferme rénové composé d'une maison d'habitation de 102 m², 4 chambres, d'une autre maison rénovée mitoyenne indépendante de 112 m², 3 chambres, piscine hors sol. Euros dans la cour privée se trouve une grange en pierres et garage. La deuxième maison est louée en locations saisonnières et procure des revenus. Le prix de vente de ce bien est de 319 500 euros pour visiter et vous accompagner dans votre projet, contactez laurette duris, au 06 88 69 87 68 ou, par courriel à l.duris@proprietes-privees.com. Pour la maison principale dpe c et ges a pour la 2e maison dpe f et ges c pour la maison principale montant estimé des dépenses annuelles d'énergie pour un usage standard entre 750 et 1014 euros pour la 2e maison montant estimé des dépenses annuelles d'énergie pour un usage standart entre 2110 et 2910 euros pour les 2 maisons, prix moyens des énergies indexés au 1er janvier 2021 (abonnements compris) selon l'article l. 561.5 du code monétaire et financier, pour l'organisation de la visite, la présentation d'une pièce d'identité vous sera demandée. Cette présente annonce a été rédigée sous la responsabilité éditoriale de laurette duris agissant sous le statut d'agent commercial immatriculé au rsac 328106356 limoges auprès de sas proprietes privees, au capital de 44 920 euros, zac le chêne ferré - 44 allée des cinq continents 44120 vertou; siret 487 624 777 00040, rcs nantes. Carte professionnelle transactions sur immeubles et fonds de commerce (t) et gestion immobilière (g) n°cpi 4401 2016 000 010 388 délivrée par la cci nantes - saint nazaire. Compte séquestre n°309 32 50 84 67 bpa saint-sebastien-sur-loire (44230). Garantie galian-smabtp - 89 rue de la boétie, 75008 paris - n°28137 j pour 2 000 000 euros pour t et 120 000 euros pour g. Assurance responsabilité civile professionnelle par galian-smabtp n° de police 28137. J mandat réf : 435538 le professionnel garantit et sécurise votre projet immobilier. Laurette duris (ei) agent commercial - numéro rsac : 328106356 limoges -. Les informations sur les risques auxquels ce bien est exposé sont disponibles sur le site géorisques : www. Georisques. Gouv. Fr.
Venez découvrir cette maison atypique de 3 chambres située dans la commune de Bussière-Galant. À seulement quelques minutes de la gare de Bussière et également de la plus grande ville de Châlus. L'entrée de la maison possède son propre poêle à bois pour créer un petit coin cosy, un grand salon ouvert avec cuisine et salle à manger donnant sur le jardin à l'arrière. À l'arrière de la propriété se trouve une pièce actuellement utilisée comme buanderie / salon avec des escaliers menant à la salle de bain familiale avec douche et WC, un WC séparé, une chambre double, une chambre légèrement plus petite et la chambre principale avec sa propre baignoire ! En face de la maison se trouve une petite grange avec un jardin.
Maison d'habitation sur sous sol comprenant à l'étage, une cuisine, un séjour, deux chambres, salle d'eau, wc. Chauffage fioul chaudière à condensation Terrain clôturé 600 m².
Iad France - Adrien Triboulet vous propose : Sublime Domaine de Caractère avec Parc Arboré et Piscine à Séréilhac Niché dans un écrin de verdure en plein cOEur de Séréilhac, ce domaine d'exception saura vous séduire par son charme authentique et son atmosphère paisible. Datant de 1900 et entièrement rénové, cette propriété offre un cadre de vie unique et raffiné, idéal pour les amoureux de la nature et de l'histoire. La maison principale, d'une surface de 173 m², déploie des pièces lumineuses et spacieuses. Au rez-de-chaussée, découvrez un agréable espace de vie comprenant une cuisine séparée entièrement équipée, une chambre, une salle d'eau et un WC. L'étage supérieur se compose de deux chambres supplémentaires, une salle de bain, une mezzanine et un espace bureau offrant de multiples possibilités d'aménagement. Un magnifique parc arboré de 3034 m², agrémenté d'une piscine, d'une terrasse et d'un jardin paysager, vous invite à la détente et à la sérénité. Profitez de moments en famille ou entre amis dans cet environnement préservé et enchanteur. possibilité d'acquérir 4 hectares supplémentaire. Les équipements de confort tels que la fibre optique, le chauffage individuel au fuel assurent un cadre de vie moderne et agréable. De plus, la maison bénéficie d'une exposition prévilégier, offrant une luminosité naturelle tout au long de la journée. Pour compléter ce bien d'exception, vous disposerez de plusieurs annexes, dont une grange pouvant accueillir plusieurs véhicules, une partie atelier, un espace piscine, un parc paysager. Ne manquez pas l'opportunité de devenir propriétaire de ce domaine unique à Séréilhac. Contactez-nous dès maintenant pour organiser une visite et laissez-vous séduire par le charme intemporel de cette propriété d'exception. Honoraires d'agence à la charge de l'acquéreur. Prix honoraires inclus : 299000 euros. Prix hors honoraires : 290000 euros. Honoraires TTC à la charge de l'acquéreur (3,10% du prix du bien hors honoraires) : 9000 euros. Information d'affichage énergétique sur ce bien : classe ENERGIE D indice 156 et classe CLIMAT D indice 46. Les informations sur les risques auxquels ce bien est exposé, y compris l'obligation légale de débroussaillement, sont disponibles sur le site Géorisques : La présente annonce immobilière a été rédigée sous la responsabilité éditoriale de M Adrien Triboulet mandataire indépendant en immobilier (sans détention de fonds), agent commercial de la SAS I@D France immatriculé au RSAC de LIMOGES sous le numéro 889084646, titulaire de la carte de démarchage immobilier pour le compte de la société I@D France SAS.

En mars 2026, deux grandes banques baissent leurs taux de crédit immobilier. Analyse des meilleures offres et conseils pour optimiser son financement.

Le marché immobilier débute 2026 dans une phase d’équilibre. Taux de crédit autour de 3 %, stabilisation des prix, pouvoir d’achat en reconstruction et comparatif de départements : découvrez notre baromètre bimestriel Janvier–Février 2026 pour comprendre où et comment acheter intelligemment.

Prix au m², taux de crédit, régions en hausse, villes en correction et impact du DPE : le baromètre immobilier Lesiteimmo décrypte le marché français en décembre 2025.