Logo LSI sombre

Maison 7 Pièces 146 m² à vendre à Vélines (24230)
Photo N° 2
Photo N° 3
Photo N° 4
Photo N° 5
5

Vente maison 7 pièces 146 m² Vélines (24230)

263 900 €

Maison à construire à Vélines (24230)

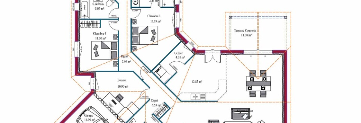
David LOPES des maisons MCA vous propose d'adapter le modèle Plaisir Sud, sur ce joli terrain de 1321 m², située sur la commune de Vélines, à 15 minutes de Castillon la Bataille. Notre modèle Plaisir Sud d'une superficie de 146 m² est la maison familiale par excellence ! Elle dispose d'une une cuisine semi ouverte avec cellier attenant, donnant sur une magnifique pièce de vie traversante, baignée de lumière grâce à ses nombreuses ouvertures, donnant sur une belle terrasse couverte, pour offrir un espace jour de plus de 60 m². Le coté nuit est composé de 3 grandes chambres avec placards, une suite parentale avec sa propre salle d'eau, un bureau de plus de 11 m², et une salle de bains avec wc. Un garage de près de 17 m², vient compléter ce bel ensemble. N'attendez plus, contactez vite votre conseiller David LOPES au O6-5O-88-58-8O à l'agence MCA de Libourne, afin qu'il vous guide dans les démarches et vous accompagne dans ce projet de construction personnalisé. Idée de réalisation en modèle prêt à décorer sur l'un de nos terrains partenaires, sous réserve de disponibilités. Voir détails en agence. Les informations sur les risques auxquels ce bien est exposé sont disponibles sur le site Géorisques : .

Caractéristiques

Les plus de cette annonce
  • Garage
  • Terrasse
  • Jardin
Pièces
  • 7 pièces
  • 4 chambres
  • Salle d'eau
  • Salle de bain
Superficies
  • Surface habitable : 146 m²

Consommation énergétique et gaz à effet de serre

Bilan énergétique (DPE)
NC
Bilan gaz à effet de serre (GES)
NC

Géorisques

Les informations sur les risques auxquels ce bien est exposé sont disponibles sur le site Géorisques : www.georisques.gouv.fr

A propos du prix de cette maison

  • Prix : 263 900 € (soit 1 808 € / m²)

À propos de cette annonce

Mise en ligne:

Dernière mise à jour:

Référence de l'annonce: DL2382620_1
Maisons Mca agence immobilière à Artigues-près-Bordeaux (33370)
Maisons Mca
Afficher le numéro

Maison similaires à acheter Vélines (24230)

Maison 6 pièces 266000 €
266 000 €

Maison 6 pièces 164 m²

Vélines (24230)

Située à Vélines, cette maison en pierre pleine de caractère a été entièrement rénovée pour offrir un cadre de vie chaleureux et confortable. Son emplacement privilégié est idéal pour une famille, avec des écoles de la maternelle au collège, la gare SNCF à seulement 2 minutes, ainsi qu'un pôle santé, des commerces de proximité, une pharmacie, un vétérinaire et la gendarmerie à quelques pas. Dès l'entrée, le charme opère. L'espace de vie de 56 m², sublimé par un parquet en teck, séduit par sa luminosité et ses volumes généreux. La cuisine fermée de 10 m², fonctionnelle et bien pensée, s'accompagne d'un bureau baigné de lumière et d'une buanderie pratique. Une belle mezzanine de 30 m² surplombe le séjour, offrant un espace modulable selon vos envies. Une chambre est également disponible en rez-de-chaussée, ajoutant un vrai confort de vie. À l'étage, deux chambres de 12 m² et 17 m² accueillent votre famille, complétées par une salle d'eau avec WC. L'extérieur, exposé plein sud, invite à la détente avec son jardin arboré et clos de 420 m², parfait pour profiter des beaux jours. Un garage / atelier permet un rangement supplémentaire selon vos besoins. Le pigeonnier classé, en excellent état, apporte une touche unique et préserve le charme du patrimoine local. Côté technique, cette maison bénéficie d'un double vitrage, de volets roulants et PVC, d'un chauffage central au gaz de ville, avec une partie en chauffage au sol, et du tout-à-l'égout. Une opportunité rare à saisir : un cadre de vie alliant confort moderne et cachet de l'ancien, sans aucun travaux à prévoir. Venez la découvrir ! ? Vente en collaboration avec Audrey Marceteau Les informations sur les risques auxquels ce bien est exposé sont disponibles sur le site Géorisques : Prix de vente : 266 000 € Honoraires charge vendeur Contactez votre conseiller SAFTI : Marie DUCOUSSO, Tél. : 06 64 99 81 29, E-mail : marie.ducousso@safti.fr - EI - Agent commercial immatriculé au RSAC de Libourne sous le numéro 914 848 098.

Maison 6 pièces 255000 €
255 000 €

Maison 6 pièces 145 m²

Vélines (24230)

Venez découvrir cette maison d'environ 145 m² prête à vous accueillir sans travaux. Implantée sur un terrain d'environ 700 m², la maison comprend un garage, atelier avec mezzanine, deux abris de jardin, et une piscine hors-sol. Cette ravissante maison se compose en rez-de-chaussée : d'un salon-séjour cosy et lumineux, d'une salle à manger, d'une cuisine séparée, une buanderie attenante, un toilette séparé, deux chambres confortables ainsi qu' une salle d'eau. À l'étage vous bénéficierez de deux chambres dont une avec un dressing attenant, la seconde avec une terrasse avec vue sur le jardin, enfin une salle d'eau complète ce niveau. Coté jardin, vous pourrez vous détendre au calme sous les arbres, déjeuner sous la pergola, ou vous reposer au abords de la piscine hors sol. Informations techniques : toiture saine et isolée, menuiserie pvc double vitrage, chauffage par pompe à chaleur, assainissement tout à l'égout Les informations sur les risques auxquels ce bien est exposé sont disponibles sur le site Géorisques : Prix de vente : 255 000 € Honoraires charge vendeur Contactez votre conseiller SAFTI : Ronny NORDIN, Tél. : 06 95 30 24 42, E-mail : ronny.nordin@safti.fr - EI - Agent commercial immatriculé au RSAC de LIBOURNE sous le numéro 918 443 847.

À voir pour le même budget

Maison 5 pièces 315000 €
315 000 €

Maison 5 pièces 135 m²

Vélines (24230)

Belle maison rénovée entièrement en 2021 comprenant une cuisine ouverte sur séjour d'environ 60 m², 4 chambres dont une salle de bains et douche, un cellier, une salle d'eau, une belle terrasse avec piscine et vue sur la campagne, dépendance, appenti et cabanon bois sur terrain d'environ 1700 m², possibilité davantage. Honoraires inclus dans le prix : 5.88%.

Maison 6 pièces 255000 €
255 000 €

Maison 6 pièces 145 m²

Vélines (24230)

Venez découvrir cette maison d'environ 145 m² prête à vous accueillir sans travaux. Implantée sur un terrain d'environ 700 m², la maison comprend un garage, atelier avec mezzanine, deux abris de jardin, et une piscine hors-sol. Cette ravissante maison se compose en rez-de-chaussée : d'un salon-séjour cosy et lumineux, d'une salle à manger, d'une cuisine séparée, une buanderie attenante, un toilette séparé, deux chambres confortables ainsi qu' une salle d'eau. À l'étage vous bénéficierez de deux chambres dont une avec un dressing attenant, la seconde avec une terrasse avec vue sur le jardin, enfin une salle d'eau complète ce niveau. Coté jardin, vous pourrez vous détendre au calme sous les arbres, déjeuner sous la pergola, ou vous reposer au abords de la piscine hors sol. Informations techniques : toiture saine et isolée, menuiserie pvc double vitrage, chauffage par pompe à chaleur, assainissement tout à l'égout Les informations sur les risques auxquels ce bien est exposé sont disponibles sur le site Géorisques : Prix de vente : 255 000 € Honoraires charge vendeur Contactez votre conseiller SAFTI : Ronny NORDIN, Tél. : 06 95 30 24 42, E-mail : ronny.nordin@safti.fr - EI - Agent commercial immatriculé au RSAC de LIBOURNE sous le numéro 918 443 847.

Maison 6 pièces 266000 €
266 000 €

Maison 6 pièces 164 m²

Vélines (24230)

Située à Vélines, cette maison en pierre pleine de caractère a été entièrement rénovée pour offrir un cadre de vie chaleureux et confortable. Son emplacement privilégié est idéal pour une famille, avec des écoles de la maternelle au collège, la gare SNCF à seulement 2 minutes, ainsi qu'un pôle santé, des commerces de proximité, une pharmacie, un vétérinaire et la gendarmerie à quelques pas. Dès l'entrée, le charme opère. L'espace de vie de 56 m², sublimé par un parquet en teck, séduit par sa luminosité et ses volumes généreux. La cuisine fermée de 10 m², fonctionnelle et bien pensée, s'accompagne d'un bureau baigné de lumière et d'une buanderie pratique. Une belle mezzanine de 30 m² surplombe le séjour, offrant un espace modulable selon vos envies. Une chambre est également disponible en rez-de-chaussée, ajoutant un vrai confort de vie. À l'étage, deux chambres de 12 m² et 17 m² accueillent votre famille, complétées par une salle d'eau avec WC. L'extérieur, exposé plein sud, invite à la détente avec son jardin arboré et clos de 420 m², parfait pour profiter des beaux jours. Un garage / atelier permet un rangement supplémentaire selon vos besoins. Le pigeonnier classé, en excellent état, apporte une touche unique et préserve le charme du patrimoine local. Côté technique, cette maison bénéficie d'un double vitrage, de volets roulants et PVC, d'un chauffage central au gaz de ville, avec une partie en chauffage au sol, et du tout-à-l'égout. Une opportunité rare à saisir : un cadre de vie alliant confort moderne et cachet de l'ancien, sans aucun travaux à prévoir. Venez la découvrir ! ? Vente en collaboration avec Audrey Marceteau Les informations sur les risques auxquels ce bien est exposé sont disponibles sur le site Géorisques : Prix de vente : 266 000 € Honoraires charge vendeur Contactez votre conseiller SAFTI : Marie DUCOUSSO, Tél. : 06 64 99 81 29, E-mail : marie.ducousso@safti.fr - EI - Agent commercial immatriculé au RSAC de Libourne sous le numéro 914 848 098.

Maison 6 pièces 266000 €
266 000 €

Maison 6 pièces 180 m²

Vélines (24230)

Vélines - maison de caractère 6 pièces avec pigeonnier historique 185 m² habitables - terrain de 424 m² -entièrement restaurée. Le charme de l'authentique, le confort du moderne cette maison de bourg en pierres et moellons entièrement restaurée vous séduira par son caractère exceptionnel et ses finitions soignées. Située idéalement entre castillon-la-bataille (20 min) et sainte-foy-la-grande (14 min), elle offre un parfait équilibre entre tranquillité campagnarde et accessibilité vers bordeaux et bergerac. Les atouts qui font la différence pigeonnier historique : il donne une âme unique à cette propriété pierres apparentes et poutres de charpente : un cachet architectural préservé restauration complète : emménagez sans travaux terrain compact et fonctionnel : 424 m² parfaits pour une famille, faciles d'entretien amenagements pensés pour le confort familial rez-de-chaussée (parfait pour la vie de famille ) : grande entrée (19 m²) avec cheminée en pierres d'époque séjour spacieux (57 m²) - l'espace central pour se retrouver cuisine bipartite : espace ouvert convivial + arrière-cuisine équipée chambre parentale avec placard intégré wc séparé véranda - prolongement naturel vers le jardin buanderie et mezzanine aux usages multiples étage (l'espace nuit des enfants). : 2 chambres idéales pour les enfants salle d'eau complète une grande mezzanine surplombant le séjour un exterieur à taille humaine le terrain de 424 m² représente l'équilibre parfait pour une jeune famille. Surface idéale pour profiter sans subir l'entretien d'un grand jardin espace terrasse généreux pour les repas en extérieur coin potager pour initier les enfants au jardinage vue sur le pigeonnier : un décor unique au quotidien équipements et performances confort moderne : chauffage central gaz de ville avec plancher chauffant rdc volets aluminium et double-vitrage tout à l'égout performance énergétique : dpe classe c ges classe c charges énergétiques estimées : 1 490 euros à 2 070 euros / an charges courantes : taxe foncière 618 euros / an prix : 266 000 euros (honoraires charge vendeur) idéal pour : petite famille recherchant le charme de l'ancien dans un cadre pratique et authentique pour visiter et vous accompagner dans votre projet, contactez jean marie deletrain, au 06 38 02 69 55 ou, par courriel à jm.deletrain@proprietes-privees.com. Selon l'article l. 561.5 du code monétaire et financier, pour l'organisation de la visite, la présentation d'une pièce d'identité vous sera demandée. Cette présente annonce a été rédigée sous la responsabilité éditoriale de jean marie deletrain agissant sous le statut d'agent commercial immatriculé au rsac bergerac 325262749 auprès de sas proprietes privees, au capital de 44 920 euros, zac le chêne ferré - 44 allée des cinq continents 44120 vertou; siret 487 624 777 00040, rcs nantes. Carte professionnelle transactions sur immeubles et fonds de commerce (t) et gestion immobilière (g) n°cpi 4401 2016 000 010 388 délivrée par la cci nantes - saint nazaire. Compte séquestre n°309 32 50 84 67 bpa saint-sebastien-sur-loire (44230). Garantie galian-smabtp - 89 rue de la boétie, 75008 paris - n°28137 j pour 2 000 000 euros pour t et 120 000 euros pour g. Assurance responsabilité civile professionnelle par galian-smabtp n° de police 28137. J mandat réf : 395947 - le professionnel garantit et sécurise votre projet immobilier. Jean marie deletrain (ei) agent commercial - numéro rsac : bergerac 325262749 -. Les informations sur les risques auxquels ce bien est exposé sont disponibles sur le site géorisques : www. Georisques. Gouv. Fr.

Maison 7 pièces 239300 €
239 300 €

Maison 7 pièces 258 m²

Saint-Antoine-de-Breuilh (24230)

En exclusivite emplacement idéal entre dordogne et gironde située à saint-antoine-de-breuilh, cette authentique demeure périgourdine bénéficie d'une localisation privilégiée : gare ter dans le village (bordeaux 1h, libourne 40 min), commerces à sainte-foy-la-grande (5 min), bergerac (30 min), bordeaux et aéroport (1h15). Le calme de la campagne avec tous les services à portée de main. Authenticité de la pierre périgourdine maison d'avant-guerre (antérieure à 1948) en pierre massive locale. Charpente avec poutres apparentes d'origine, cheminée d''orignie équipée d'un poêle à bois avec répartiteur de chaleur. Le charme intemporel des constructions périgourdines traditionnelles. Des volumes exceptionnels - 258 m² habitables sur 2 niveaux ? Pièce de vie spacieuse de 60 m² : cuisine ouverte, salle à manger et salon ? 5 grandes chambres dont une suite parentale de plus de 30 m² ? Salle de bains, salle d'eau, wc, buanderie ? Hauteurs sous plafond généreuses ? Des espaces bien au-delà des standards actuels terrain et extérieurs - 1 436 m² ? Terrain entièrement clôturé garantissant intimité et sécurité ? Grande terrasse prolongeant la maison ? Piscine hors-sol 4×4 m habillée bois ? Environnement calme et préservé fort potentiel : dépendances 100 m² en pierre un véritable atout pour développer vos projets : gîte, chambres d'hôtes (secteur touristique), ateliers professionnels, bureaux, studio indépendant, salle de loisirs. Surface modifiable selon vos besoins. Équipements économiques déja en place ? 32 m² de panneaux photovoltaïques ? Chauffe-eau thermodynamique ? Chauffage bois avec répartiteur les atouts en résumé ? Localisation : gare ter, commerces 5 min, bordeaux 1h ? Caractère : pierre périgourdine, poutres, cheminée d'époque ? Volumes : 60 m² de séjour, chambre 30 m², 258 m² habitables ? Potentiel : 100 m² de dépendances à aménager ? Économies : photovoltaïque, thermodynamique, bois ? Cadre familial : terrain clos, piscine, calme absolu informations pratiques prix : 239 300 euros (honoraires inclus charge vendeur) dpe classe e - ges classe b montant estimé des dépenses annuelles d'énergie pour un usage standard entre 3650 euros et 4990 euros indexées aux années 2021,2022 et 2023 pour visiter et vous accompagner dans votre projet, contactez jean marie deletrain, au 06 38 02 69 55 ou, par courriel à jm.deletrain@proprietes-privees.com. Selon l'article l. 561.5 du code monétaire et financier, pour l'organisation de la visite, la présentation d'une pièce d'identité vous sera demandée. Cette présente annonce a été rédigée sous la responsabilité éditoriale de jean marie deletrain agissant sous le statut d'agent commercial immatriculé au rsac bergerac 325262749 auprès de sas proprietes privees, au capital de 44 920 euros, zac le chêne ferré - 44 allée des cinq continents 44120 vertou; siret 487 624 777 00040, rcs nantes. Carte professionnelle transactions sur immeubles et fonds de commerce (t) et gestion immobilière (g) n°cpi 4401 2016 000 010 388 délivrée par la cci nantes - saint nazaire. Compte séquestre n°309 32 50 84 67 bpa saint-sebastien-sur-loire (44230). Garantie galian-smabtp - 89 rue de la boétie, 75008 paris - n°28137 j pour 2 000 000 euros pour t et 120 000 euros pour g. Assurance responsabilité civile professionnelle par galian-smabtp n° de police 28137. J mandat réf : 431923- le professionnel garantit et sécurise votre projet immobilier. Jean marie deletrain (ei) agent commercial - numéro rsac : bergerac 325262749 -. Les informations sur les risques auxquels ce bien est exposé sont disponibles sur le site géorisques : www. Georisques. Gouv. Fr.

Maison 7 pièces 245000 €
245 000 €

Maison 7 pièces 258 m²

Saint-Antoine-de-Breuilh (24230)

Exclusivite à saint-antoine de breuilh - maison en pierre de 258 m² + dépendances 100 m² 245 000 euros l'authenticite de la pierre, espace d'une vie de famille : découvrez cette maison en pierre qui raconte l'histoire du savoir-faire local. Ses murs épais et ses poutres apparentes témoignent d'une construction pensée pour traverser les siècles, offrant aujourd'hui à votre famille un cadre de vie exceptionnel. Un espace de vie genereux : 258 m² habitables répartis sur 2 niveaux pièce de vie inhabituelle de plus de 60 m² : cuisine ouverte, salle à manger et salon 5 grandes chambres dont une de plus de 30 m² salle de bains, salle d'eau, wc et buanderie un ilot de calme et de tranquilite : terrain entièrement clôturé de 1 436 m² garantissant intimité et sécurité grande terrasse prolongeant naturellement les espaces de vie piscine hors-sol de 4x4m habillée bois pour les plaisirs familiaux environnement préservé à moins de 7 km de bergerac le potentiel qui fait la difference : dépendances en pierre de 100 m² : un plateau d'expression pour tous vos projets (ateliers, bureaux, chambres d'hôtes, espaces de loisirs. ) 32 m² de panneaux photovoltaïques + chauffe-eau thermodynamique chauffage bois avec répartiteur de chaleur pourquoi cette propriete ? - authenticité : pierre et poutres apparentes - modularité : espaces à personnaliser selon vos envies - potentiel : dépendances à fort potentiel d'aménagement - localisation : calme absolu, proximité bergerac - écologie : équipements durables déjà en place saint-antoine de breuilh (24230) - secteur recherché : 245 000 euros - honoraires inclus charge vendeur une propriété pour les familles qui voient grand et savent apprécier l'authenticité des maisons d'antan. Transparence : travaux à prévoir pour améliorer la performance énergétique dpe classe e - ges classe b montant estimé des dépenses annuelles d'énergie pour un usage standard entre 3650 euros et 4990 euros indexées aux années 2021,2022 et 2023 pour visiter et vous accompagner dans votre projet, contactez jean marie deletrain, au 06 38 02 69 55 ou, par courriel à jm.deletrain@proprietes-privees.com. Selon l'article l. 561.5 du code monétaire et financier, pour l'organisation de la visite, la présentation d'une pièce d'identité vous sera demandée. Cette présente annonce a été rédigée sous la responsabilité éditoriale de jean marie deletrain agissant sous le statut d'agent commercial immatriculé au rsac bergerac 325262749 auprès de sas proprietes privees, au capital de 44 920 euros, zac le chêne ferré - 44 allée des cinq continents 44120 vertou; siret 487 624 777 00040, rcs nantes. Carte professionnelle transactions sur immeubles et fonds de commerce (t) et gestion immobilière (g) n°cpi 4401 2016 000 010 388 délivrée par la cci nantes - saint nazaire. Compte séquestre n°309 32 50 84 67 bpa saint-sebastien-sur-loire (44230). Garantie galian-smabtp - 89 rue de la boétie, 75008 paris - n°28137 j pour 2 000 000 euros pour t et 120 000 euros pour g. Assurance responsabilité civile professionnelle par galian-smabtp n° de police 28137. J mandat réf : 420039 - le professionnel garantit et sécurise votre projet immobilier. Jean marie deletrain (ei) agent commercial - numéro rsac : bergerac 325262749 -. Les informations sur les risques auxquels ce bien est exposé sont disponibles sur le site géorisques : www. Georisques. Gouv. Fr.