Logo LSI sombre

Maison 4 Pièces 94 m² à vendre à Vindry-sur-Turdine (69490)
Photo N° 2
Photo N° 3
Photo N° 4
Photo N° 5
Photo N° 6
Photo N° 7
7

Vente maison 4 pièces 94 m² Vindry-sur-Turdine (69490)

324 000 €

Vente maison 4 pièces 94 m² Vindry-sur-Turdine (69490)

10 m² offert + cuisine offerte + pack deco offert (peintures + parquet des chambres + faïence sdb + placards pour nos 50 ans. Produit rare à saisir au plus vite. Situé sur la jolie commune de fareins dans un cadre calme et arboré. Sur une parcelle de 400 m² entièrement viabilisée, maisons punch vous propose une construction neuve à étage de 92 m² jusqu'à 130 m². Cette maison est composée d’une partie jour avec une très belle pièce de vie de 42 m² avec cuisine ouverte sur le séjour et un wc suspendu. La pièce de nuit est répartie en 4 chambres dont une possible suite parentale avec dressing et salle d'eau. Les 3 autres chambres font respectivement desservie par une salle de bain avec baignoire et douche, un lavabo double vasque et un wc suspendu. Carrelage 60x60 en option. Chauffage en pompe à chaleur atlantic plancher chauffant. Pour finir, la maison possède un garage permettant de garer une voiture et d’avoir un espace de stockage au fond. Plan entièrement personnalisables au bon vouloir des futurs acquéreurs. Nombreuses prestations possibles construction, terrain, frais de notaire et vrd inclus dans le prix. Me contacter au plus vite pour plus d’informations sur le terrain. Maison conforme à la re 2020 terrain proposé et vendu par notre partenaire foncier selon disponibilités, le constructeur n’étant pas mandaté pour réaliser la vente du terrain. Prix terrain inclus : 155 000 € frais de notaire non inclus : € prix maison inclus : 169 000 € vrd non inclus : € hors aménagements extérieurs (extensions, terrasse, piscine etc), papiers peints, peintures, moquettes dans les chambres (tarif en vigueur au 20 mai 2025, modifiable sans préavis, prix variables suivant les prestations souhaitées). Hors frais d’hypothèque. Différents modèles disponibles pour chaque terrain. Assurance rc professionnelle / décennale / dommage ouvrage groupe aviva. Garantie de remboursement de l'acompte / livraison à prix et délai convenu cgi. Partenaire financier : à préciser le numéro de tva intracommunautaire : fr 14 498 627 272 00012 contact : contact@maisons-punch.fr.

Caractéristiques

Les plus de cette annonce
  • Garage
  • Parquet
  • Terrasse
  • Jardin
  • Piscine
  • Calme
Pièces
  • 4 pièces
  • 3 chambres
  • Salle d'eau
  • Salle de bain
  • Cuisine ouverte
Superficies
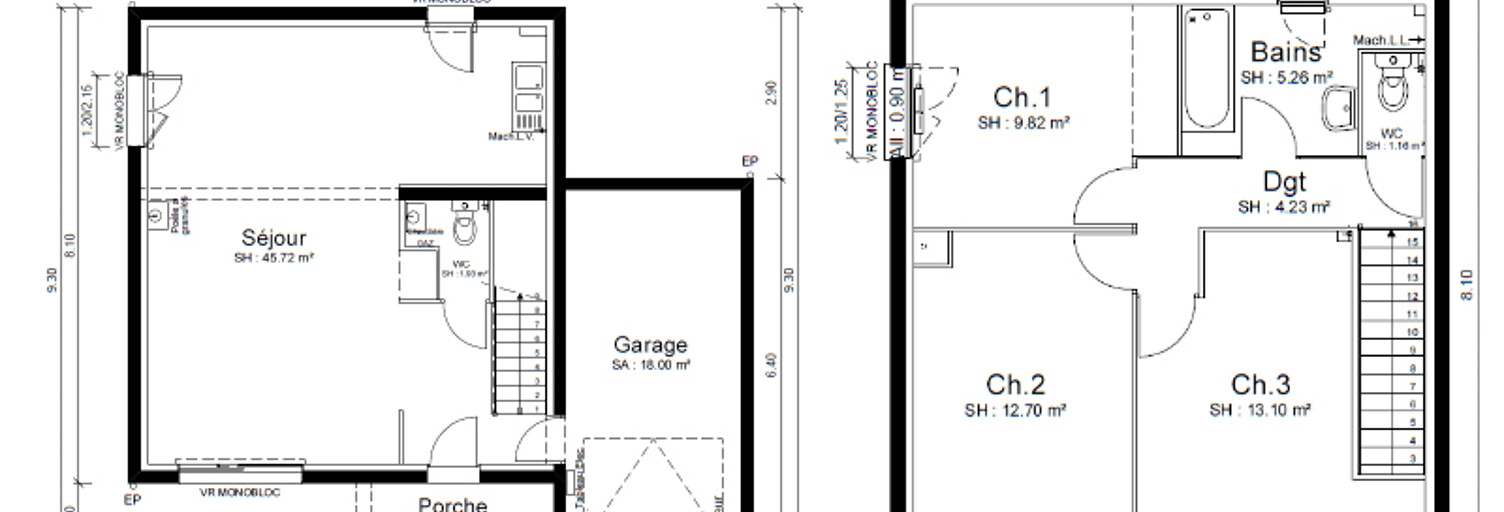
  • Surface habitable : 94 m²

Consommation énergétique et gaz à effet de serre

Bilan énergétique (DPE)
NC
Bilan gaz à effet de serre (GES)
NC

Géorisques

Les informations sur les risques auxquels ce bien est exposé sont disponibles sur le site Géorisques : www.georisques.gouv.fr

A propos du prix de cette maison

  • Prix : 324 000 € (soit 3 447 € / m²)

À propos de cette annonce

Mise en ligne:

Dernière mise à jour:

Référence de l'annonce: 5007328
Maisons Punch Saint-Priest agence immobilière à Saint-Priest (69800)
Maisons Punch Saint-Priest
Afficher le numéro

Maison similaires à acheter Vindry-sur-Turdine (69490)

Maison 4 pièces 315000 €
315 000 €

Maison 4 pièces 109 m²

Vindry-sur-Turdine (69490)

METROPOLE IMMOBILIER vous propose en exclusivité cette charmante maison de plain-pied, située dans un environnement paisible sur la commune de Saint-Romain-de-Popey. Ce bien offre une surface habitable de 110 m², ainsi qu'un agréable jardin entourant la maison. Dès l'entrée, vous accédez à un hall desservant une chaufferie, suivi d'une vaste pièce de vie de 48 m². Cet espace, composé d'une salle à manger, d'un salon et d'une cuisine ouverte, est particulièrement lumineux grâce à ses cinq portes-fenêtres donnant accès à la terrasse extérieure, un cadre idéal pour profiter des beaux jours en famille ou entre amis. Dans la continuité, un couloir équipé de nombreux rangements intégrés mène aux pièces de nuit ainsi qu'aux sanitaires. La maison comprend trois chambres confortables et lumineuses, dont l'une avec un accès direct à la terrasse, et une autre d'une superficie généreuse de 15 m². À cela s'ajoutent une salle de bains fonctionnelle ainsi qu'un WC indépendant, le tout parfaitement agencé pour offrir un quotidien agréable et pratique. À l'extérieur, la terrasse longe une grande partie de la maison et s'ouvre sur un terrain arboré, idéal pour profiter du plein air. Cette maison de plain-pied, alliant calme, luminosité et fonctionnalité, est idéale pour une vie sereine à Saint-Romain-de-Popey. Une belle opportunité à saisir dans un environnement recherché. Pour plus d'informations ou organiser une visite, contactez votre agence METROPOLE IMMOBILIER. 1.

À voir pour le même budget

Maison 5 pièces 364000 €
364 000 €

Maison 5 pièces 110 m²

Vindry-sur-Turdine (69490)

METROPOLE IMMOBILIER vous propose en EXCLUSIVITE dans le charmant village de Saint-Romain-de-Popey : cette maison récente de plain-pied, construite en 2010, alliant confort moderne, luminosité et tranquillité. Dès l'entrée, un hall accueillant avec rangements intégrés vous mène vers un vaste séjour baigné de lumière, grâce à ses deux grandes baies vitrées. Cet espace de vie est ouvert sur une cuisine fonctionnelle et parfaitement intégrée, le tout formant un espace convivial, idéal pour les moments en famille ou entre amis. La maison offre 4 chambres, toutes spacieuses et lumineuses, dont une avec accès direct au jardin via une porte-fenêtre. Une salle de bain, une salle d'eau, ainsi qu'un WC séparé viennent compléter la partie nuit, bien distribuée via deux couloirs distincts, offrant intimité et praticité. À l'extérieur, vous serez séduit par un grand terrain arboré de 1035 m², offrant un bel espace de jeu ou de détente, avec une terrasse idéale pour les repas d'été, orientée côté séjour. Le jardin bénéficie de très peu de vis-à-vis et d'un cadre verdoyant rare sur le secteur. Un garage attenant permet le stationnement d'un véhicule et un accès direct à la maison, tandis que plusieurs places de parking extérieur facilitent le quotidien. La maison est équipée de volets roulants électriques. Située dans un quartier calme et familial, cette maison est idéale pour ceux qui recherchent un bien récent, bien entretenu, et prêt à vivre, à quelques minutes seulement des commodités, écoles et axes de transport. Pour plus d'informations ou organiser une visite contactez votre agence METROPOLE Immobilier. 1.

Maison 4 pièces 315000 €
315 000 €

Maison 4 pièces 109 m²

Vindry-sur-Turdine (69490)

METROPOLE IMMOBILIER vous propose en exclusivité cette charmante maison de plain-pied, située dans un environnement paisible sur la commune de Saint-Romain-de-Popey. Ce bien offre une surface habitable de 110 m², ainsi qu'un agréable jardin entourant la maison. Dès l'entrée, vous accédez à un hall desservant une chaufferie, suivi d'une vaste pièce de vie de 48 m². Cet espace, composé d'une salle à manger, d'un salon et d'une cuisine ouverte, est particulièrement lumineux grâce à ses cinq portes-fenêtres donnant accès à la terrasse extérieure, un cadre idéal pour profiter des beaux jours en famille ou entre amis. Dans la continuité, un couloir équipé de nombreux rangements intégrés mène aux pièces de nuit ainsi qu'aux sanitaires. La maison comprend trois chambres confortables et lumineuses, dont l'une avec un accès direct à la terrasse, et une autre d'une superficie généreuse de 15 m². À cela s'ajoutent une salle de bains fonctionnelle ainsi qu'un WC indépendant, le tout parfaitement agencé pour offrir un quotidien agréable et pratique. À l'extérieur, la terrasse longe une grande partie de la maison et s'ouvre sur un terrain arboré, idéal pour profiter du plein air. Cette maison de plain-pied, alliant calme, luminosité et fonctionnalité, est idéale pour une vie sereine à Saint-Romain-de-Popey. Une belle opportunité à saisir dans un environnement recherché. Pour plus d'informations ou organiser une visite, contactez votre agence METROPOLE IMMOBILIER. 1.

Maison 4 pièces 375000 €
375 000 €

Maison 4 pièces 100 m²

Vindry-sur-Turdine (69490)

Située dans la paisible commune de Vindry-sur-Turdine (Saint-Loup), à seulement 30 minutes de Lyon, cette charmante maison individuelle (aucune mitoyenneté) profite d'un cadre calme et verdoyant tout en bénéficiant de la proximité des commodités : écoles, bus, commerces, autoroute A89. Cette propriété de plain pied, édifiée en 2015 dans un lotissement récent, bénéficie d'un terrain plat et clos de 709 m² (piscinable). À l'extérieur, à l'abri des regards, vous disposez d'une belle terrasse en carrelage sur plots récemment équipée d'une pergola à store enroulable afin de profiter des beaux jours. Un garage d'environ 30 m², attenant et entièrement carrelé, ainsi que des parties extérieures pouvant accueillir plusieurs véhicules, offrent un espace de stationnement confortable pour ses résidents et ses visiteurs. À l'intérieur, vous découvrirez une pièce de vie traversante d'environ 45 m², lumineuse et chaleureuse grâce notamment à son poêle à bois. Ce séjour donne sur une cuisine équipée moderne avec îlot, créant ainsi un espace de partage convivial. Coté nuit, un couloir avec rangements intégrés dessert 3 chambres confortables et une grande salle de bain fonctionnelle proposant baignoire, douche et meuble vasque avec rangements. Cette maison moderne de 97 m² habitables répondant aux normes RT2012 bénéficie de belles performances énergétiques et de tout le confort nécessaire grâce à ses équipements et ses prestations de qualité : fenêtres et baies vitrées double-vitrage, volets roulants électriques avec moustiquaires sur mesure, murs et combles isolés, vide-sanitaire isolé, VMC, chaudière gaz à condensation CHAPPEE (radiateurs et eau chaude) avec en appoint un poêle à bois JOTUL, portillon sécurisé par digicode et porte de garage sectionnelle électrique, pergola avec store enroulable télécommandé. Les informations sur les risques auxquels ce bien est exposé sont disponibles sur le site Géorisques : Prix de vente : 375 000 € Honoraires charge vendeur Contactez votre conseiller SAFTI : William JUNON, Tél. : 06 37 38 74 67, E-mail : william.junon@safti.fr - EI - Agent commercial immatriculé au RSAC de SAINT ETIENNE sous le numéro 898 785 001.

Maison 6 pièces 329000 €
329 000 €
-3 %

Maison 6 pièces 101 m²

Vindry-sur-Turdine (69490)

Sur la belle commune de Vindry sur Turdine (Pontcharra sur Turdine), à proximité de la A89, des écoles et de toutes commodités, votre agence Logideal vous propose de venir visiter cette superbe maison d'une surface habitable de 101 m². Vous y découvrirez un hall d'entrée, une pièce de vie lumineuse avec cheminée et climatisation reversible, une cuisine équipée (meubles, four, plaque de cuisson et hotte), 4 chambres dont deux avec placard, une salle d'eau avec meuble double vasque et enfin un wc séparé. Elevée sur un sous-sol complet, vous pourrez également profiter d'un garage, d'une banderie, d'une salle de jeux et d'un deuxième salon / bar. Du coté extérieur, vous pourrez profiter d'un beau terrain arboré d'une supercie de 999 m² ! Les informations sur les risques auxquels ce bien est exposé sont disponibles sur le site Géorisques : 1.

Maison 5 pièces 285000 €
285 000 €

Maison 5 pièces 112 m²

Vindry-sur-Turdine (69490)

METROPOLE Immobilier vous propose en exclusivité cette charmante maison des années 70, d'une superficie de 112 m², idéalement située en plein coeur de la commune de Pontcharra-sur-Turdine. Elle se compose de quatre chambres, d'un grand sous-sol ainsi que de combles aménageables, offrant un important potentiel d'aménagement pour répondre à tous vos projets. Nichée dans un environnement calme et agréable, cette propriété saura séduire les amateurs de tranquillité et d'espace. Implantée sur une parcelle entièrement clôturée d'environ 800 m², elle bénéficie d'une localisation stratégique à seulement 3 minutes de l'entrée de l'A89, tout en étant à proximité immédiate de toutes les commodités. N'attendez plus pour organiser une visite et contactez dès maintenant votre agence METROPOLE Immobilier au 04 51 26 27 24.1.

Maison 4 pièces 349000 €
349 000 €

Maison 4 pièces 100 m²

Vindry-sur-Turdine (69490)

Exclusivité ! Assez de la ville et ses bouchons ? … Pour vous qui recherchez le calme et la nature dans un centre village située à 20 mins de Porte de Lyon par l'A89, cette maison récente d'environ 100 m² avec son jardin, sa terrasse et sa piscine est pour vous ! - En rez de jardin vous apprécierez une entrée desservant un beau salon lumineux avec un carrelage imitation parquet ouvrant sur la terrasse au sud avec vue sur la campagne, une cuisine américaine tout équipée, des toilettes, et un grand garage avec sa buanderie. - A l'étage, 3 belles chambres avec parquet et placard, des toilettes et une salle de bain. Belles prestations, décoration contemporaine et faible cout de chauffage (isolation RT 2012 de qualité, chauffe-eau thermodynamique, prises RJ45 pour la domotique). Petite copropriété de 2016 en centre bourg. Prix de la maison d'environ 100 m² avec son garage 349.000€ Contact Nicole au 06.33. 985.185, agent commercial immatriculé au RSAC n° 490 895 208. Photos complémentaires et visite virtuelle sur demande.