1 résultats
Iad France - Christelle Laignel vous propose : Maison de village rénovée avec charme et potentiel – 10 min de Belleville Un bien rare, prêt à vivre, avec possibilité d’agrandissement. Située à Saint-Étienne-sur-Chalaronne, cette maison de village de 125 m² entièrement rénovée allie authenticité et confort moderne. Au rez-de-chaussée : spacieux séjour lumineux de 40 m² exposé Sud-Ouest, cuisine indépendante avec possibilité d’ouverture sur le salon, buanderie et WC. À l’étage : 3 chambres, dont une suite parentale avec salle d’eau (possibilité d’agrandissement), seconde salle de bain et WC indépendant. Petit plus : Combles aménageables d’environ 50 m² qui offre un beau potentiel d'agrandissement. Maison en état impeccable, aucun travaux à prévoir avec terrain de 250 m² et appentis.
Autres annonces à proximité de Saint-Étienne-sur-Chalaronne (01140) avec vos critères
Offre exceptionnelle : 10 m² offert + 1 pack au choix produit rare à saisir au plus vite. Situé sur la jolie commune de dompierre sur chalaronne dans un cadre calme et arboré. Sur une parcelle de 600 m² entièrement viabilisée, maisons punch vous propose une construction neuve de plain-pied de 80 m². Cette maison est composée d’une partie jour avec une très belle pièce de vie de 38 m² avec cuisine ouverte sur le séjour. La partie nuit est répartie en 3 chambres dont 2 de 10,50 m² et une de 11,50 m² ainsi qu’une salle de bain avec baignoire ou douche au choix, un lavabo et un wc séparé. Pour finir, la maison possède un garage de 15 m². Plan entièrement personnalisables au bon vouloir des futurs acquéreurs. Nombreuses prestations possibles. Construction, terrain et vrd inclus dans le prix. Prestations de qualités : volets roulants intégrés électrique et connectés, pompe à chaleur maison conforme à la re 2020 terrain proposé et vendu par notre partenaire foncier selon disponibilités, le constructeur n’étant pas mandaté pour réaliser la vente du terrain. Prix terrain inclus : 115 900 € frais de notaire non inclus : € prix maison inclus : 155 100 € vrd non inclus : € hors aménagements extérieurs (extensions, terrasse, piscine etc), papiers peints, peintures, moquettes dans les chambres (tarif en vigueur au 20 mai 2025, modifiable sans préavis, prix variables suivant les prestations souhaitées). Hors frais d’hypothèque. Différents modèles disponibles pour chaque terrain. Assurance rc professionnelle / décennale / dommage ouvrage groupe aviva. Garantie de remboursement de l'acompte / livraison à prix et délai convenu cgi. Partenaire financier : à préciser le numéro de tva intracommunautaire : fr 14 498 627 272 00012 contact : contact@maisons-punch.fr.
Beau potentiel 158 m² à la campagne, à quelques minutes des commodités, commerces. En exclusivité Optimhome immobilier a distingué cette maison -coup de cœur- au charme rural et au fort potentiel, à Flurieux- Mogneneins. Un véritable havre de paix pour cette maison ancienne et sa cabane de jardin nichées au cœur des paysages verdoyants de la campagne. L'ensemble est édifié sur une parcelle de 1500 m². Elle permet l'installation d'une piscine. Elle déploie 160 m² env. qui se composent d'une part; d'une habitation de 77 m² comprenant une pièce de vie, un espace commun aux 2 chambres, une salle d'eau, un WC, et d'autre part, des annexes attenantes comprenant une grande cave avec WC ind., un hangar de 60 m² avec un atelier de 20 m² environ. Ces annexes aménageables peuvent accueillir une multitude de projets; loft, atelier d'artiste ou tout autre projet d'aménagement, d'agrandissement selon les envies. Et pourquoi pas une véranda comme trait-d'union entre l'habitation et l'actuelle cabane du jardin ? La cabane du jardin de 20 m² comprend 2 fenêtres. À l'extérieur, le terrain arboré déploie une palette végétale apaisante : un beau jardin qui invite au repos, aux rires d'enfants, au bien-être sur chacun des espaces de vie. Assainissement collectif. Chauffage poêle à bois. Fort potentiel pour celles et ceux qui privilégient qualité et authenticité. À 14 km de Villié-Morgon, 20 km de Mâcon et 23 km de Villefranche-sur-Saône. Visite possible le dimanche matin. Les honoraires d'agence sont à la charge de l'acquéreur, soit 4,55% TTC du prix hors honoraires. Logement à consommation énergétique excessive : classe G Les informations sur les risques auxquels ce bien est exposé sont disponibles sur le site Géorisques : www. georisques. gouv. fr. Contactez Anne-Marie SERMOLINI Entrepreneur Individuel, Agent commercial OptimHome (RSAC N°382 853 422 Greffe de BOURG EN BRESSE) 06 34 29 24 09 (réf. 593666 ).
10 m² offert + cuisine offerte + pack deco offert (peintures + parquet des chambres + faïence sdb + placards pour nos 50 ans. Produit rare à saisir au plus vite. Situé sur la jolie commune de dompierre sur chalaronne dans un cadre calme et arboré. Sur une parcelle de 600 m² entièrement viabilisée, maisons punch vous propose une construction neuve à étage de 94 m². Cette maison est composée d’une partie jour avec une très belle pièce de vie de 45 m² avec cuisine ouverte sur le séjour et un wc au rez de chaussé. La partie nuit est répartie en 3 chambres dont 2 de 13 m² et une de 10 m² ainsi qu’une salle de bain avec baignoire ou douche au choix, un lavabo et un wc séparé. Pour finir, la maison possède un garage de 18 m² permettant de garer une voiture et d’avoir un espace de stockage au fond. Plan entièrement personnalisables au bon vouloir des futurs acquéreurs. Nombreuses prestations possibles construction, terrain et vrd inclus dans le prix. Prestations de qualités : volets roulants intégrés électrique et connectés, pompe à chaleur maison conforme à la re 2020 terrain proposé et vendu par notre partenaire foncier selon disponibilités, le constructeur n’étant pas mandaté pour réaliser la vente du terrain. Prix terrain inclus : 115 900 € frais de notaire non inclus : € prix maison inclus : 169 100 € vrd non inclus : € hors aménagements extérieurs (extensions, terrasse, piscine etc), papiers peints, peintures, moquettes dans les chambres (tarif en vigueur au 20 mai 2025, modifiable sans préavis, prix variables suivant les prestations souhaitées). Hors frais d’hypothèque. Différents modèles disponibles pour chaque terrain. Assurance rc professionnelle / décennale / dommage ouvrage groupe aviva. Garantie de remboursement de l'acompte / livraison à prix et délai convenu cgi. Partenaire financier : à préciser le numéro de tva intracommunautaire : fr 14 498 627 272 00012 contact : contact@maisons-punch.fr.

Recevez en temps réel les dernières annonces correspondant à votre recherche
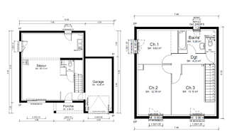
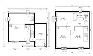
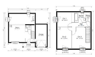
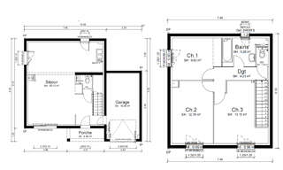
Offre exceptionnelle : 10 m² offert + 1 pack au choix produit rare à saisir au plus vite. Situé sur la jolie commune de saint didier sur chalaronne dans un cadre calme et arboré. Sur une parcelle de 425 m² entièrement viabilisée, maisons punch vous propose une construction neuve à étage de 94 m². Cette maison est composée d’une partie jour avec une très belle pièce de vie de 45 m² avec cuisine ouverte sur le séjour et un wc au rez de chaussé. La pièce de nuit est répartie en 3 chambres dont 2 de 13 m² et une de 10 m² ainsi qu’une salle de bain avec baignoire ou douche au choix, un lavabo et un wc séparé. Pour finir, la maison possède un garage de 18 m² permettant de garer une voiture et d’avoir un espace de stockage au fond. Plan entièrement personnalisables au bon vouloir des futurs acquéreurs. Nombreuses prestations possibles construction, terrain et vrd inclus dans le prix. Me contacter au plus vite pour plus d’informations sur le terrain. Maison conforme à la re 2020 terrain proposé et vendu par notre partenaire foncier selon disponibilités, le constructeur n’étant pas mandaté pour réaliser la vente du terrain. Prix terrain inclus : 92 500 € frais de notaire non inclus : € prix maison inclus : 166 200 € vrd non inclus : € hors aménagements extérieurs (extensions, terrasse, piscine etc), papiers peints, peintures, moquettes dans les chambres (tarif en vigueur au 20 mai 2025, modifiable sans préavis, prix variables suivant les prestations souhaitées). Hors frais d’hypothèque. Différents modèles disponibles pour chaque terrain. Assurance rc professionnelle / décennale / dommage ouvrage groupe aviva. Garantie de remboursement de l'acompte / livraison à prix et délai convenu cgi. Partenaire financier : à préciser le numéro de tva intracommunautaire : fr 14 498 627 272 00012 contact : contact@maisons-punch.fr.
Maison de plain-pied 81 m² 3 chambres, terrain plat de 600 m² au calme, et sans vis à vis idéalement située à st etienne sur chalaronne proche de bourg-en-bresse, châtillon-sur-chalaronne, macon (gare tgv), montmerle-sur-saône et belleville sur saône à 15mn (gare ter et accès autoroute a6 ), à 5mn de toutes les commodités. Cette jolie maison offre un bel espace de vie lumineux de 40 m² avec salon-séjour et une cuisine ouverte équipée, ainsi qu'un poêle à bois en partie nuit : 3 belles chambres (dont 2 avec placards ), une salle de bains neuve avec douche à l'italienne, ainsi qu'un wc indépendant. Le garage de 13 m² a été isolé et est équipé avec une baie vitrée offrant un beau potentiel d'aménagement supplémentaire pour une chambre supplémentaire, un bureau. Un atelier attenant de 8 m² pour les bricoleurs complète ce bien. Cette maison allie confort, fonctionnalité et emplacement stratégique, à visiter sans tarder. Dominique notin - safti estimation gratuite les informations sur les risques auxquels ce bien est exposé sont disponibles sur le site géorisques : prix de vente : 285 000 € honoraires charge vendeur contactez votre conseiller safti : dominique notin, tél. : 06 08 37 87 17, e-mail : dominique.notin@safti.fr - ei - agent commercial immatriculé au rsac de villefranche-tarare sous le numéro 853 892 768.
Venez découvrir nos offres 2026 10 m² supplémentaires + Pack Déco ou Pack Cuisine OFFERTS !* Durée limitée — Conditions en agence À Garnerans, dans un cadre paisible et verdoyant, à moins de 15 minutes de Mâcon Sur une spacieuse parcelle de 500 m², profitez d’un cadre paisible, idéal pour une retraite active ou simplement pour vivre au calme, dans une commune agréable et bien desservie. Une maison pensée pour votre confort au quotidien Maisons Punch vous propose une maison moderne et fonctionnelle comprenant : Un séjour lumineux de 40 m², parfait pour recevoir famille et amis 3 chambres, dont une pouvant facilement devenir un bureau, un atelier ou une chambre d’amis Un garage attenant, pratique pour le rangement, les déplacements et la sérénité Prestations incluses pour plus de sérénité (Moins d’entretien — Plus de confort) Volets roulants motorisés et connectés, pour plus de simplicité Débords de toit en PVC, sans entretien Pompe à chaleur AIR / AIR réversible, pour un confort été comme hiver Carrelage 45 x 45 cm, élégant et durable Un budget tout compris et sans surprise 245 000 € incluant : Terrain + frais de notaire + VRD (estim.) + construction Maison Punch. Une maison prête à vivre, avec un intérieur fonctionnel et agréable à aménager. Un projet personnalisable selon vos besoins Possibilité d’adapter les plans : Aménagements pratiques pour anticiper l’avenir Nous construisons une maison qui s’ajuste à votre rythme et vos habitudes. Pour plus d’informations Contactez Mme Da Costa : 06 07 11 47 19 Et construisons ensemble la maison où vos enfants grandiront. Et parlons ensemble de votre futur lieu de vie, serein et confortable. Terrain proposé et vendu par notre partenaire foncier selon disponibilités, le constructeur n’étant pas mandaté pour réaliser la vente du terrain. Prix terrain inclus : 71 900 € Frais de notaire non inclus : € Prix maison inclus : 151 500 € VRD non inclus : € Hors aménagements extérieurs (extensions, terrasse, piscine etc), papiers peints, peintures, moquettes dans les chambres (tarif en vigueur au 20 mai 2025, modifiable sans préavis, prix variables suivant les prestations souhaitées). Hors frais d’hypothèque. Différents modèles disponibles pour chaque terrain. Assurance RC professionnelle / décennale / dommage ouvrage groupe Aviva. Garantie de remboursement de l'acompte / livraison à prix et délai convenu CGI. Partenaire financier : à préciser Le numéro de TVA intracommunautaire : FR 14 498 627 272 00012 Contact : contact@maisons-punch.fr.
Offre exceptionnelle : 10 m² offert + 1 pack au choix produit rare à saisir au plus vite. Situé sur la jolie commune de garnerans dans un cadre calme et arboré. Sur une parcelle de 500 m² entièrement viabilisée, maisons punch vous propose une construction neuve de plain-pied de 80 m². Cette maison est composée d’une partie jour avec une très belle pièce de vie de 38 m² avec cuisine ouverte sur le séjour. La partie nuit est répartie en 3 chambres dont 2 de 10,50 m² et une de 11,50 m² ainsi qu’une salle de bain avec baignoire ou douche au choix, un lavabo et un wc séparé. Pour finir, la maison possède un garage de 15 m². Plan entièrement personnalisables au bon vouloir des futurs acquéreurs. Nombreuses prestations possibles. Construction, terrain et vrd inclus dans le prix. Prestations de qualités : volets roulants intégrés électrique et connectés, pompe à chaleur maison conforme à la re 2020 terrain proposé et vendu par notre partenaire foncier selon disponibilités, le constructeur n’étant pas mandaté pour réaliser la vente du terrain. Prix terrain inclus : 71 900 € frais de notaire non inclus : € prix maison inclus : 159 600 € vrd non inclus : € hors aménagements extérieurs (extensions, terrasse, piscine etc), papiers peints, peintures, moquettes dans les chambres (tarif en vigueur au 20 mai 2025, modifiable sans préavis, prix variables suivant les prestations souhaitées). Hors frais d’hypothèque. Différents modèles disponibles pour chaque terrain. Assurance rc professionnelle / décennale / dommage ouvrage groupe aviva. Garantie de remboursement de l'acompte / livraison à prix et délai convenu cgi. Partenaire financier : à préciser le numéro de tva intracommunautaire : fr 14 498 627 272 00012 contact : contact@maisons-punch.fr.
10 m² offert + cuisine offerte + pack deco offert (peintures + parquet des chambres + faïence sdb + placards pour nos 50 ans. Dernière disponibilité ! Sur une parcelle de 500 m² entièrement viabilisée, maisons punch vous propose une construction neuve de plain-pied de 80 m². Cette maison est composée d’une partie jour avec une très belle pièce de vie de 38 m² avec cuisine ouverte sur le séjour. La partie nuit est répartie en 3 chambres dont 2 de 10,50 m² et une de 11,50 m² ainsi qu’une salle de bain avec baignoire ou douche au choix, un lavabo et un wc séparé. Pour finir, la maison possède un garage de 15 m². Plan entièrement personnalisables au bon vouloir des futurs acquéreurs. Nombreuses prestations possibles. Construction, terrain et vrd inclus dans le prix. Prestations de qualités : volets roulants intégrés électrique et connectés, pompe à chaleur maison conforme à la re 2020 terrain proposé et vendu par notre partenaire foncier selon disponibilités, le constructeur n’étant pas mandaté pour réaliser la vente du terrain. Prix terrain inclus : 71 900 € frais de notaire non inclus : € prix maison inclus : 143 100 € vrd non inclus : € hors aménagements extérieurs (extensions, terrasse, piscine etc), papiers peints, peintures, moquettes dans les chambres (tarif en vigueur au 20 mai 2025, modifiable sans préavis, prix variables suivant les prestations souhaitées). Hors frais d’hypothèque. Différents modèles disponibles pour chaque terrain. Assurance rc professionnelle / décennale / dommage ouvrage groupe aviva. Garantie de remboursement de l'acompte / livraison à prix et délai convenu cgi. Partenaire financier : à préciser le numéro de tva intracommunautaire : fr 14 498 627 272 00012 contact : contact@maisons-punch.fr.
Offre exceptionnelle : 10 m² offert + 1 pack au choix produit rare à saisir au plus vite. Situé sur la jolie commune de garnerans dans un cadre calme et arboré. Sur une parcelle de 500 m² entièrement viabilisée, maisons punch vous propose une construction neuve de plain-pied de 80 m². Cette maison est composée d’une partie jour avec une très belle pièce de vie de 38 m² avec cuisine ouverte sur le séjour. La partie nuit est répartie en 3 chambres dont 2 de 10,50 m² et une de 11,50 m² ainsi qu’une salle de bain avec baignoire ou douche au choix, un lavabo et un wc séparé. Pour finir, la maison possède un garage de 15 m². Plan entièrement personnalisables au bon vouloir des futurs acquéreurs. Nombreuses prestations possibles. Construction, terrain et vrd inclus dans le prix. Prestations de qualités : volets roulants intégrés électrique et connectés, pompe à chaleur maison conforme à la re 2020 terrain proposé et vendu par notre partenaire foncier selon disponibilités, le constructeur n’étant pas mandaté pour réaliser la vente du terrain. Prix terrain inclus : 71 900 € frais de notaire non inclus : € prix maison inclus : 159 600 € vrd non inclus : € hors aménagements extérieurs (extensions, terrasse, piscine etc), papiers peints, peintures, moquettes dans les chambres (tarif en vigueur au 20 mai 2025, modifiable sans préavis, prix variables suivant les prestations souhaitées). Hors frais d’hypothèque. Différents modèles disponibles pour chaque terrain. Assurance rc professionnelle / décennale / dommage ouvrage groupe aviva. Garantie de remboursement de l'acompte / livraison à prix et délai convenu cgi. Partenaire financier : à préciser le numéro de tva intracommunautaire : fr 14 498 627 272 00012 contact : contact@maisons-punch.fr.
Offre exceptionnelle : 10 m² offert + 1 pack au choix produit rare à saisir au plus vite. Situé sur la jolie commune de saint didier sur chalaronne dans un cadre calme et arboré. Sur une parcelle de 425 m² entièrement viabilisée, maisons punch vous propose une construction neuve à étage de 94 m². Cette maison est composée d’une partie jour avec une très belle pièce de vie de 45 m² avec cuisine ouverte sur le séjour et un wc au rez de chaussé. La pièce de nuit est répartie en 3 chambres dont 2 de 13 m² et une de 10 m² ainsi qu’une salle de bain avec baignoire ou douche au choix, un lavabo et un wc séparé. Pour finir, la maison possède un garage de 18 m² permettant de garer une voiture et d’avoir un espace de stockage au fond. Plan entièrement personnalisables au bon vouloir des futurs acquéreurs. Nombreuses prestations possibles construction, terrain et vrd inclus dans le prix. Me contacter au plus vite pour plus d’informations sur le terrain. Maison conforme à la re 2020 terrain proposé et vendu par notre partenaire foncier selon disponibilités, le constructeur n’étant pas mandaté pour réaliser la vente du terrain. Prix terrain inclus : 92 500 € frais de notaire non inclus : € prix maison inclus : 166 200 € vrd non inclus : € hors aménagements extérieurs (extensions, terrasse, piscine etc), papiers peints, peintures, moquettes dans les chambres (tarif en vigueur au 20 mai 2025, modifiable sans préavis, prix variables suivant les prestations souhaitées). Hors frais d’hypothèque. Différents modèles disponibles pour chaque terrain. Assurance rc professionnelle / décennale / dommage ouvrage groupe aviva. Garantie de remboursement de l'acompte / livraison à prix et délai convenu cgi. Partenaire financier : à préciser le numéro de tva intracommunautaire : fr 14 498 627 272 00012 contact : contact@maisons-punch.fr.
Offres a saisir : 10 m² offerts + cuisine offerte + pack deco projet de construction à dompierre sur chalaronne ! Situé à seulement 5 minutes de châtillon sur chalaronne, ce magnifique terrain de 600 m² vous offre un cadre de vie paisible en pleine campagne. Caractéristiques de la maison proposée : maison de plain-pied (possible étage) 3 chambres spacieuses garage intégré construction conforme aux normes re 2020 pour une efficacité énergétique optimale profitez de ce superbe emplacement pour réaliser votre projet de vie dans un environnement serein et verdoyant. Pour plus d'informations, contactez mme viana au 06 07 10 89 44. Vrd inclus terrain proposé et vendu par notre partenaire foncier selon disponibilités, le constructeur n’étant pas mandaté pour réaliser la vente du terrain. Prix terrain inclus : 115 900 € frais de notaire non inclus : € prix maison inclus : 162 000 € vrd non inclus : € hors aménagements extérieurs (extensions, terrasse, piscine etc), papiers peints, peintures, moquettes dans les chambres (tarif en vigueur au 20 mai 2025, modifiable sans préavis, prix variables suivant les prestations souhaitées). Hors frais d’hypothèque. Différents modèles disponibles pour chaque terrain. Assurance rc professionnelle / décennale / dommage ouvrage groupe aviva. Garantie de remboursement de l'acompte / livraison à prix et délai convenu cgi. Partenaire financier : à préciser le numéro de tva intracommunautaire : fr 14 498 627 272 00012 contact : contact@maisons-punch.fr.
Produit rare à saisir au plus vite. Situé sur la jolie commune de saint didier sur chalaronne dans un cadre calme et arboré. Sur une parcelle de 420 m² entièrement viabilisée, maisons punch vous propose une construction neuve de plain-pied de 101 m². Cette maison est composée d’une partie jour avec une très belle pièce de vie de plus de 45 m² avec cuisine ouverte sur le séjour. La partie nuit est répartie en 4 chambres dont 3 entre 9 et 10 m² et une de 12,75 m² ainsi qu’une salle de bain avec baignoire ou douche au choix, un lavabo et un wc séparé. Pour finir, la maison possède un garage très grand garage de 23,30 m². Plan entièrement personnalisables au bon vouloir des futurs acquéreurs. Nombreuses prestations possibles. Construction, terrain et vrd inclus dans le prix. Prestations de qualités : volets roulants intégrés électrique et connectés, pompe à chaleur maison conforme à la re 2020 terrain proposé et vendu par notre partenaire foncier selon disponibilités, le constructeur n’étant pas mandaté pour réaliser la vente du terrain. Prix terrain inclus : 92 500 € frais de notaire non inclus : € prix maison inclus : 154 500 € vrd non inclus : € hors aménagements extérieurs (extensions, terrasse, piscine etc), papiers peints, peintures, moquettes dans les chambres (tarif en vigueur au 20 mai 2025, modifiable sans préavis, prix variables suivant les prestations souhaitées). Hors frais d’hypothèque. Différents modèles disponibles pour chaque terrain. Assurance rc professionnelle / décennale / dommage ouvrage groupe aviva. Garantie de remboursement de l'acompte / livraison à prix et délai convenu cgi. Partenaire financier : à préciser le numéro de tva intracommunautaire : fr 14 498 627 272 00012 contact : contact@maisons-punch.fr.
10 m² offert + cuisine offerte + pack deco offert (peintures + parquet des chambres + faïence sdb + placards pour nos 50 ans. Produit rare à saisir au plus vite. Situé sur la jolie commune de chatillon sur chalaronne dans un cadre calme et arboré. Sur une parcelle de 456 m² entièrement viabilisée, maisons punch vous propose une construction neuve à étage de 94 m². Cette maison est composée d’une partie jour avec une très belle pièce de vie de 45 m² avec cuisine ouverte sur le séjour et un wc au rez de chaussé. La partie nuit est répartie en 3 chambres dont 2 de 13 m² et une de 10 m² ainsi qu’une salle de bain avec baignoire ou douche au choix, un lavabo et un wc séparé. Pour finir, la maison possède un garage de 18 m² permettant de garer une voiture et d’avoir un espace de stockage au fond. Plan entièrement personnalisables au bon vouloir des futurs acquéreurs. Nombreuses prestations possibles construction, terrain et vrd inclus dans le prix. Prestations de qualités : volets roulants intégrés électrique et connectés, pompe à chaleur maison conforme à la re 2020 terrain proposé et vendu par notre partenaire foncier selon disponibilités, le constructeur n’étant pas mandaté pour réaliser la vente du terrain. Prix terrain inclus : 134 900 € frais de notaire non inclus : € prix maison inclus : 165 100 € vrd non inclus : € hors aménagements extérieurs (extensions, terrasse, piscine etc), papiers peints, peintures, moquettes dans les chambres (tarif en vigueur au 20 mai 2025, modifiable sans préavis, prix variables suivant les prestations souhaitées). Hors frais d’hypothèque. Différents modèles disponibles pour chaque terrain. Assurance rc professionnelle / décennale / dommage ouvrage groupe aviva. Garantie de remboursement de l'acompte / livraison à prix et délai convenu cgi. Partenaire financier : à préciser le numéro de tva intracommunautaire : fr 14 498 627 272 00012 contact : contact@maisons-punch.fr.
Situé sur la jolie commune de chatillon sur chalaronne dans un cadre calme et arboré. Sur une parcelle de 600 m² entièrement viabilisée, maisons punch vous propose une construction neuve à étage de 97 m² + 10 m² offert. Cette maison est composée d’une partie jour avec une très belle pièce de vie de 45 m² avec cuisine ouverte sur le séjour et un wc au rez de chaussé. La partie nuit est répartie en 3 chambres dont 2 de 13 m² et une de 10 m² ainsi qu’une salle de bain avec baignoire ou douche au choix, un lavabo et un wc séparé. Pour finir, la maison possède un garage de 18 m² permettant de garer une voiture et d’avoir un espace de stockage au fond. Plan entièrement sur mesure, dessin fait avec les clients. Nombreuses prestations possibles construction, terrain et vrd inclus dans le prix. Prestations de qualités : volets roulants intégrés électrique et connectés, pompe à chaleur maison conforme à la re 2020 terrain proposé et vendu par notre partenaire foncier selon disponibilités, le constructeur n’étant pas mandaté pour réaliser la vente du terrain. Prix terrain inclus : 131 000 € frais de notaire non inclus : € prix maison inclus : 191 000 € vrd non inclus : € hors aménagements extérieurs (extensions, terrasse, piscine etc), papiers peints, peintures, moquettes dans les chambres (tarif en vigueur au 20 mai 2025, modifiable sans préavis, prix variables suivant les prestations souhaitées). Hors frais d’hypothèque. Différents modèles disponibles pour chaque terrain. Assurance rc professionnelle / décennale / dommage ouvrage groupe aviva. Garantie de remboursement de l'acompte / livraison à prix et délai convenu cgi. Partenaire financier : à préciser le numéro de tva intracommunautaire : fr 14 498 627 272 00012 contact : contact@maisons-punch.fr.
Venez découvrir nos offres 2026 10 m² supplémentaires + Pack Déco ou Pack Cuisine OFFERTS !* Durée limitée — Conditions en agence Votre futur projet de famille à Bey Sur une belle parcelle de 750 m², découvrez un projet idéal pour accueillir vos enfants dans un environnement calme, sécurisé et proche des commodités. Une maison pensée pour les jeunes familles Maisons Punch vous propose une maison moderne et fonctionnelle comprenant : Un séjour lumineux de 40 m², parfait pour partager les moments du quotidien 3 chambres confortables, adaptées pour bébé, enfant ou bureau Un garage attenant, pratique pour poussettes, vélos et rangements Les prestations déjà incluses (Pour un quotidien simple, confortable et sans surprise) Volets roulants motorisés et connectés Débords de toit sans entretien (PVC) Pompe à chaleur AIR / AIR réversible pour un confort été / hiver Carrelage 45 x 45 cm élégant et facile d’entretien Budget maîtrisé 258 000 € tout compris, incluant : Terrain + frais de notaire + VRD (estim.) + construction Maison Punch. Packs Déco & Cuisine offerts De quoi emménager plus sereinement et créer un intérieur à votre image dès la remise des clés. Un projet 100% personnalisable Plans, agencements, matériaux… nous adaptons tout selon vos envies et votre style de vie. Plus d’infos ? Contactez Mme Da Costa : 06 07 11 47 19 Et construisons ensemble la maison où vos enfants grandiront. Et parlons ensemble de votre futur lieu de vie, serein et confortable. Terrain proposé et vendu par notre partenaire foncier selon disponibilités, le constructeur n’étant pas mandaté pour réaliser la vente du terrain. Prix terrain inclus : 85 000 € Frais de notaire non inclus : € Prix maison inclus : 150 000 € VRD non inclus : € Hors aménagements extérieurs (extensions, terrasse, piscine etc), papiers peints, peintures, moquettes dans les chambres (tarif en vigueur au 20 mai 2025, modifiable sans préavis, prix variables suivant les prestations souhaitées). Hors frais d’hypothèque. Différents modèles disponibles pour chaque terrain. Assurance RC professionnelle / décennale / dommage ouvrage groupe Aviva. Garantie de remboursement de l'acompte / livraison à prix et délai convenu CGI. Partenaire financier : à préciser Le numéro de TVA intracommunautaire : FR 14 498 627 272 00012 Contact : contact@maisons-punch.fr.
À Bey, charmante commune au cœur de la campagne et proche de Mâcon, Saint-Didier-sur-Chalaronne, Thoissey et Pont-de-Veyle, découvrez ce projet de construction idéal pour une famille. Cette maison à étage moderne comprend 3 chambres spacieuses, un garage et une entrée couverte, implantée sur un terrain plat et viabilisé de 753 m². Offrez-vous confort et sérénité dans un cadre verdoyant tout en profitant de notre OFFRES EXCEPTIONNELLES : 10 m² supplémentaires offerts, une cuisine équipée offerte ou un pack déco. Ne manquez pas cette opportunité unique ! Pour plus de renseignements, contactez dès maintenant Mme Viana au 06 07 10 89 44. Terrain proposé et vendu par notre partenaire foncier selon disponibilités, le constructeur n’étant pas mandaté pour réaliser la vente du terrain. Prix terrain inclus : 87 000 € Frais de notaire non inclus : € Prix maison inclus : 166 000 € VRD non inclus : € Hors aménagements extérieurs (extensions, terrasse, piscine etc), papiers peints, peintures, moquettes dans les chambres (tarif en vigueur au 20 mai 2025, modifiable sans préavis, prix variables suivant les prestations souhaitées). Hors frais d’hypothèque. Différents modèles disponibles pour chaque terrain. Assurance RC professionnelle / décennale / dommage ouvrage groupe Aviva. Garantie de remboursement de l'acompte / livraison à prix et délai convenu CGI. Partenaire financier : à préciser Le numéro de TVA intracommunautaire : FR 14 498 627 272 00012 Contact : contact@maisons-punch.fr.
Venez découvrir nos offres 2026 10 m² supplémentaires + Pack Déco ou Pack Cuisine OFFERTS !* Durée limitée — Conditions en agence Votre futur projet de famille à Bey Sur une belle parcelle de 750 m², découvrez un projet idéal pour accueillir vos enfants dans un environnement calme, sécurisé et proche des commodités. Une maison pensée pour les jeunes familles Maisons Punch vous propose une maison moderne et fonctionnelle comprenant : Un séjour lumineux de 40 m², parfait pour partager les moments du quotidien 3 chambres confortables, adaptées pour bébé, enfant ou bureau Un garage attenant, pratique pour poussettes, vélos et rangements Les prestations déjà incluses (Pour un quotidien simple, confortable et sans surprise) Volets roulants motorisés et connectés Débords de toit sans entretien (PVC) Pompe à chaleur AIR / AIR réversible pour un confort été / hiver Carrelage 45 x 45 cm élégant et facile d’entretien Budget maîtrisé 258 000 € tout compris, incluant : Terrain + frais de notaire + VRD (estim.) + construction Maison Punch. Packs Déco & Cuisine offerts De quoi emménager plus sereinement et créer un intérieur à votre image dès la remise des clés. Un projet 100% personnalisable Plans, agencements, matériaux… nous adaptons tout selon vos envies et votre style de vie. Plus d’infos ? Contactez Mme Da Costa : 06 07 11 47 19 Et construisons ensemble la maison où vos enfants grandiront. Et parlons ensemble de votre futur lieu de vie, serein et confortable. Terrain proposé et vendu par notre partenaire foncier selon disponibilités, le constructeur n’étant pas mandaté pour réaliser la vente du terrain. Prix terrain inclus : 85 000 € Frais de notaire non inclus : € Prix maison inclus : 150 000 € VRD non inclus : € Hors aménagements extérieurs (extensions, terrasse, piscine etc), papiers peints, peintures, moquettes dans les chambres (tarif en vigueur au 20 mai 2025, modifiable sans préavis, prix variables suivant les prestations souhaitées). Hors frais d’hypothèque. Différents modèles disponibles pour chaque terrain. Assurance RC professionnelle / décennale / dommage ouvrage groupe Aviva. Garantie de remboursement de l'acompte / livraison à prix et délai convenu CGI. Partenaire financier : à préciser Le numéro de TVA intracommunautaire : FR 14 498 627 272 00012 Contact : contact@maisons-punch.fr.
Venez découvrir nos offres 2026 10 m² supplémentaires + Pack Déco ou Pack Cuisine OFFERTS !* Durée limitée — Conditions en agence Votre futur projet de famille à Bey Sur une belle parcelle de 750 m², découvrez un projet idéal pour accueillir vos enfants dans un environnement calme, sécurisé et proche des commodités. Une maison pensée pour les jeunes familles Maisons Punch vous propose une maison moderne et fonctionnelle comprenant : Un séjour lumineux de 40 m², parfait pour partager les moments du quotidien 3 chambres confortables, adaptées pour bébé, enfant ou bureau Un garage attenant, pratique pour poussettes, vélos et rangements Les prestations déjà incluses (Pour un quotidien simple, confortable et sans surprise) Volets roulants motorisés et connectés Débords de toit sans entretien (PVC) Pompe à chaleur AIR / AIR réversible pour un confort été / hiver Carrelage 45 x 45 cm élégant et facile d’entretien Budget maîtrisé 258 000 € tout compris, incluant : Terrain + frais de notaire + VRD (estim.) + construction Maison Punch. Packs Déco & Cuisine offerts De quoi emménager plus sereinement et créer un intérieur à votre image dès la remise des clés. Un projet 100% personnalisable Plans, agencements, matériaux… nous adaptons tout selon vos envies et votre style de vie. Plus d’infos ? Contactez Mme Da Costa : 06 07 11 47 19 Et construisons ensemble la maison où vos enfants grandiront. Et parlons ensemble de votre futur lieu de vie, serein et confortable. Terrain proposé et vendu par notre partenaire foncier selon disponibilités, le constructeur n’étant pas mandaté pour réaliser la vente du terrain. Prix terrain inclus : 85 000 € Frais de notaire non inclus : € Prix maison inclus : 150 000 € VRD non inclus : € Hors aménagements extérieurs (extensions, terrasse, piscine etc), papiers peints, peintures, moquettes dans les chambres (tarif en vigueur au 20 mai 2025, modifiable sans préavis, prix variables suivant les prestations souhaitées). Hors frais d’hypothèque. Différents modèles disponibles pour chaque terrain. Assurance RC professionnelle / décennale / dommage ouvrage groupe Aviva. Garantie de remboursement de l'acompte / livraison à prix et délai convenu CGI. Partenaire financier : à préciser Le numéro de TVA intracommunautaire : FR 14 498 627 272 00012 Contact : contact@maisons-punch.fr.
À Bey, au cœur de la campagne et proche de Mâcon, Saint-Didier-sur-Chalaronne, Thoissey et Pont-de-Veyle, découvrez ce superbe projet de construction de plain-pied. Cette maison familiale de 3 chambres dispose d’un garage et d’une entrée couverte, le tout sur un beau terrain plat et viabilisé de 753 m². Idéal pour accueillir votre famille dans un cadre paisible et verdoyant. Profitez en exclusivité de nos offres : 10 m² supplémentaires offerts d'une cuisine équipée offerte ou un pack déco pour votre confort. Un projet clé en main alliant qualité, modernité et sérénité, prêt à concrétiser vos envies de maison neuve. VRD inclus dans le prix Pour plus d'informatons, contacter Mme Viana au : 06 07 10 89 44 Terrain proposé et vendu par notre partenaire foncier selon disponibilités, le constructeur n’étant pas mandaté pour réaliser la vente du terrain. Prix terrain inclus : 87 000 € Frais de notaire non inclus : € Prix maison inclus : 154 000 € VRD non inclus : € Hors aménagements extérieurs (extensions, terrasse, piscine etc), papiers peints, peintures, moquettes dans les chambres (tarif en vigueur au 20 mai 2025, modifiable sans préavis, prix variables suivant les prestations souhaitées). Hors frais d’hypothèque. Différents modèles disponibles pour chaque terrain. Assurance RC professionnelle / décennale / dommage ouvrage groupe Aviva. Garantie de remboursement de l'acompte / livraison à prix et délai convenu CGI. Partenaire financier : à préciser Le numéro de TVA intracommunautaire : FR 14 498 627 272 00012 Contact : contact@maisons-punch.fr.
Offre exceptionnelle : 10 m² offert + 1 pack au choix produit rare à saisir au plus vite. Situé sur la jolie commune de montceaux dans un cadre calme et arboré. Sur une parcelle de 400 m² entièrement viabilisée, maisons punch vous propose une construction neuve à étage de 94 m². Cette maison est composée d’une partie jour avec une très belle pièce de vie de 45 m² avec cuisine ouverte sur le séjour et un wc au rez de chaussé. La partie nuit est répartie en 3 chambres dont 2 de 13 m² et une de 10 m² ainsi qu’une salle de bain avec baignoire ou douche au choix, un lavabo et un wc séparé. Pour finir, la maison possède un garage de 18 m² permettant de garer une voiture et d’avoir un espace de stockage au fond. Plan entièrement personnalisables au bon vouloir des futurs acquéreurs. Nombreuses prestations possibles construction, terrain et vrd inclus dans le prix. Prestations de qualités : volets roulants intégrés électrique et connectés, pompe à chaleur maison conforme à la re 2020 terrain proposé et vendu par notre partenaire foncier selon disponibilités, le constructeur n’étant pas mandaté pour réaliser la vente du terrain. Prix terrain inclus : 79 900 € frais de notaire non inclus : € prix maison inclus : 173 700 € vrd non inclus : € hors aménagements extérieurs (extensions, terrasse, piscine etc), papiers peints, peintures, moquettes dans les chambres (tarif en vigueur au 20 mai 2025, modifiable sans préavis, prix variables suivant les prestations souhaitées). Hors frais d’hypothèque. Différents modèles disponibles pour chaque terrain. Assurance rc professionnelle / décennale / dommage ouvrage groupe aviva. Garantie de remboursement de l'acompte / livraison à prix et délai convenu cgi. Partenaire financier : à préciser le numéro de tva intracommunautaire : fr 14 498 627 272 00012 contact : contact@maisons-punch.fr.
Offre exceptionnelle : 10 m² offert + 1 pack au choix produit rare à saisir au plus vite. Situé sur la jolie commune de montceaux dans un cadre calme et arboré. Sur une parcelle de 400 m² entièrement viabilisée, maisons punch vous propose une construction neuve de plain-pied de 80 m². Cette maison est composée d’une partie jour avec une très belle pièce de vie de 38 m² avec cuisine ouverte sur le séjour. La partie nuit est répartie en 3 chambres dont 2 de 10,50 m² et une de 11,50 m² ainsi qu’une salle de bain avec baignoire ou douche au choix, un lavabo et un wc séparé. Pour finir, la maison possède un garage de 15 m². Plan entièrement personnalisables au bon vouloir des futurs acquéreurs. Nombreuses prestations possibles. Construction, terrain et vrd inclus dans le prix. Prestations de qualités : volets roulants intégrés électrique et connectés, pompe à chaleur maison conforme à la re 2020 terrain proposé et vendu par notre partenaire foncier selon disponibilités, le constructeur n’étant pas mandaté pour réaliser la vente du terrain. Prix terrain inclus : 79 900 € frais de notaire non inclus : € prix maison inclus : 152 000 € vrd non inclus : € hors aménagements extérieurs (extensions, terrasse, piscine etc), papiers peints, peintures, moquettes dans les chambres (tarif en vigueur au 20 mai 2025, modifiable sans préavis, prix variables suivant les prestations souhaitées). Hors frais d’hypothèque. Différents modèles disponibles pour chaque terrain. Assurance rc professionnelle / décennale / dommage ouvrage groupe aviva. Garantie de remboursement de l'acompte / livraison à prix et délai convenu cgi. Partenaire financier : à préciser le numéro de tva intracommunautaire : fr 14 498 627 272 00012 contact : contact@maisons-punch.fr.
10 m² OFFERT + CUISINE OFFERTE + PACK DECO OFFERT (peinture + parquet des chambres + faïence sdb + placard pour nos 50 ans. Exclusivité : Construction sur Rillieux la pape Nous sommes ravis de vous présenter notre projet de construction d'une magnifique maison neuve, située sur un terrain spacieux de 343 m² sur la commune de Rillieux la pape. Caractéristiques du bien : Superficie totale : 93 m² 3 chambres confortables (possibilité 4) avec placards, plancher chauffant pour un confort optimal tout au long de l'année Volets roulants motorisés et centralisé pour une sécurité accrue et une gestion aisée de la luminosité un salon cuisine de plus de 40 m² et un garage de 18 m². Les plans sont entièrement modifiable et personnalisable en fonction de vos souhaits et de votre budget. Cette maison est conçue pour offrir à ses occupants un cadre de vie exceptionnel, alliant confort, modernité et fonctionnalité. Située dans un quartier paisible, cette maison bénéficie d'un environnement calme et verdoyant, tout en étant proche des commodités et des infrastructures essentielles (1 minutes à pied des écoles maternelles, primaires, collège et lycée. Contactez-nous dès aujourd'hui pour en savoir plus sur ce projet de construction exceptionnel. Terrain proposé et vendu par notre partenaire foncier selon disponibilités, le constructeur n’étant pas mandaté pour réaliser la vente du terrain. Prix terrain inclus : 79 000 € Frais de notaire non inclus : € Prix maison inclus : 170 000 € VRD non inclus : € Hors aménagements extérieurs (extensions, terrasse, piscine etc), papiers peints, peintures, moquettes dans les chambres (tarif en vigueur au 20 mai 2025, modifiable sans préavis, prix variables suivant les prestations souhaitées). Hors frais d’hypothèque. Différents modèles disponibles pour chaque terrain. Assurance RC professionnelle / décennale / dommage ouvrage groupe Aviva. Garantie de remboursement de l'acompte / livraison à prix et délai convenu CGI. Partenaire financier : à préciser Le numéro de TVA intracommunautaire : FR 14 498 627 272 00012 Contact : contact@maisons-punch.fr.
Offre exceptionnelle : 10 m² offert + 1 pack au choix produit rare à saisir au plus vite. Situé sur la jolie commune de montceaux dans un cadre calme et arboré. Sur une parcelle de 400 m² entièrement viabilisée, maisons punch vous propose une construction neuve de plain-pied de 80 m². Cette maison est composée d’une partie jour avec une très belle pièce de vie de 38 m² avec cuisine ouverte sur le séjour. La partie nuit est répartie en 3 chambres dont 2 de 10,50 m² et une de 11,50 m² ainsi qu’une salle de bain avec baignoire ou douche au choix, un lavabo et un wc séparé. Pour finir, la maison possède un garage de 15 m². Plan entièrement personnalisables au bon vouloir des futurs acquéreurs. Nombreuses prestations possibles. Construction, terrain et vrd inclus dans le prix. Prestations de qualités : volets roulants intégrés électrique et connectés, pompe à chaleur maison conforme à la re 2020 terrain proposé et vendu par notre partenaire foncier selon disponibilités, le constructeur n’étant pas mandaté pour réaliser la vente du terrain. Prix terrain inclus : 79 900 € frais de notaire non inclus : € prix maison inclus : 152 000 € vrd non inclus : € hors aménagements extérieurs (extensions, terrasse, piscine etc), papiers peints, peintures, moquettes dans les chambres (tarif en vigueur au 20 mai 2025, modifiable sans préavis, prix variables suivant les prestations souhaitées). Hors frais d’hypothèque. Différents modèles disponibles pour chaque terrain. Assurance rc professionnelle / décennale / dommage ouvrage groupe aviva. Garantie de remboursement de l'acompte / livraison à prix et délai convenu cgi. Partenaire financier : à préciser le numéro de tva intracommunautaire : fr 14 498 627 272 00012 contact : contact@maisons-punch.fr.
Offre exceptionnelle : 10 m² offert + 1 pack au choix produit rare à saisir au plus vite. Situé sur la jolie commune de montceaux dans un cadre calme et arboré. Sur une parcelle de 400 m² entièrement viabilisée, maisons punch vous propose une construction neuve à étage de 94 m². Cette maison est composée d’une partie jour avec une très belle pièce de vie de 45 m² avec cuisine ouverte sur le séjour et un wc au rez de chaussé. La partie nuit est répartie en 3 chambres dont 2 de 13 m² et une de 10 m² ainsi qu’une salle de bain avec baignoire ou douche au choix, un lavabo et un wc séparé. Pour finir, la maison possède un garage de 18 m² permettant de garer une voiture et d’avoir un espace de stockage au fond. Plan entièrement personnalisables au bon vouloir des futurs acquéreurs. Nombreuses prestations possibles construction, terrain et vrd inclus dans le prix. Prestations de qualités : volets roulants intégrés électrique et connectés, pompe à chaleur maison conforme à la re 2020 terrain proposé et vendu par notre partenaire foncier selon disponibilités, le constructeur n’étant pas mandaté pour réaliser la vente du terrain. Prix terrain inclus : 79 900 € frais de notaire non inclus : € prix maison inclus : 173 700 € vrd non inclus : € hors aménagements extérieurs (extensions, terrasse, piscine etc), papiers peints, peintures, moquettes dans les chambres (tarif en vigueur au 20 mai 2025, modifiable sans préavis, prix variables suivant les prestations souhaitées). Hors frais d’hypothèque. Différents modèles disponibles pour chaque terrain. Assurance rc professionnelle / décennale / dommage ouvrage groupe aviva. Garantie de remboursement de l'acompte / livraison à prix et délai convenu cgi. Partenaire financier : à préciser le numéro de tva intracommunautaire : fr 14 498 627 272 00012 contact : contact@maisons-punch.fr.