Logo LSI sombre

Maison 4 Pièces 102 m² à vendre à Porte-de-Savoie (73800)
Photo N° 2
2

Vente maison 4 pièces 102 m² Porte-de-Savoie (73800)

399 000 €

Maison à vendre 4 pièces LES MARCHES (73) - 101,53 M2

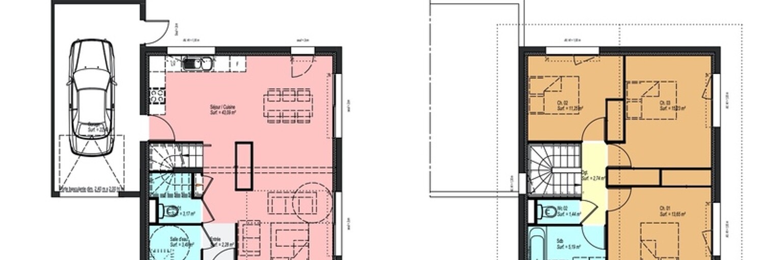
Ref lot 4 située au coeur de la commue des marches, découvrez ce lotissement neuf de maisons modernes, alliant confort, fonctionnalité et qualité de construction. Ces maisons mitoyennes par le garage offrent un cadre de vie idéal, alliant intimité et convivialité, dans un environnement calme et résidentiel. Chaque maison se compose : - d'une belle pièce de vie de 43 m² lumineuse ouverte sur le séjour - de 3 belles chambres à l'étage - d'une salle de bains moderne à l'étage - d'une salle d'eau en rez de chaussée pouvant être transformé en buanderie - d'un garage attenant (mitoyenneté uniquement par celui ci ) - d'un terrain privatif de 226 m² des prestations de qualités : - chauffage au sol par pompe à chaleur sur les 2 niveaux - normes énergétiques récentes - carrelage 60 * 60 - menuiserie en aluminium pour la baie vitrée - matériaux modernes et finitions soignées emplacement privilégié, proche des commodités et des axes principaux, tout en profitant d'un cadre paisible idéal pour une résidence principale ou un investissement les honoraires sont à la charge du vendeur. Les informations sur les risques auxquels ce bien est exposé sont disponibles sur le site géorisques : www. Georisques. Gouv. Fr. Réseau immobilier capifrance - votre agent commercial (rsac n°522 248 087 - greffe de chambery) nelly massat entrepreneur individuel 06 72 29 46 34 - réf. 950438.

Caractéristiques

Les plus de cette annonce
  • Garage
  • Jardin
  • Calme
Confort
  • Chauffage au sol
Pièces
  • 4 pièces
  • Salle d'eau
  • Salle de bain
Superficies
  • Surface habitable : 102 m²
  • Surface carrez : 101 m²
Style
  • Lotissement

Consommation énergétique et gaz à effet de serre

Bilan énergétique (DPE)
NC
Bilan gaz à effet de serre (GES)
NC

Géorisques

Les informations sur les risques auxquels ce bien est exposé sont disponibles sur le site Géorisques : www.georisques.gouv.fr

A propos du prix de cette maison

  • Prix : 399 000 € (soit 3 912 € / m²)
  • Honoraires à charge vendeur

À propos de cette annonce

Mise en ligne:

Dernière mise à jour:

Référence de l'annonce: 340932845658
Capifrance agent mandataire à Castelnau-le-Lez (34170)
Capifrance
Afficher le numéro

Maison similaires à acheter Porte-de-Savoie (73800)

Maison 4 pièces 379000 €
379 000 €

Maison 4 pièces 102 m²

Porte-de-Savoie (73800)

Ref lot 8 située au coeur de la commue des marches, découvrez ce lotissement neuf de maisons modernes, alliant confort, fonctionnalité et qualité de construction. Ces maisons mitoyennes par le garage offrent un cadre de vie idéal, alliant intimité et convivialité, dans un environnement calme et résidentiel. Chaque maison se compose : - d'une belle pièce de vie de 43 m² lumineuse ouverte sur le séjour - de 3 belles chambres à l'étage - d'une salle de bains moderne à l'étage - d'une salle d'eau en rez de chaussée pouvant être transformé en buanderie - d'un garage attenant (mitoyenneté uniquement par celui ci ) - d'un terrain privatif de 239 m² des prestations de qualités : - chauffage au sol par pompe à chaleur sur les 2 niveaux - normes énergétiques récentes - carrelage 60 * 60 - menuiserie en aluminium pour la baie vitrée - matériaux modernes et finitions soignées emplacement privilégié, proche des commodités et des axes principaux, tout en profitant d'un cadre paisible idéal pour une résidence principale ou un investissement les honoraires sont à la charge du vendeur. Les informations sur les risques auxquels ce bien est exposé sont disponibles sur le site géorisques : www. Georisques. Gouv. Fr. Réseau immobilier capifrance - votre agent commercial (rsac n°522 248 087 - greffe de chambery) nelly massat entrepreneur individuel 06 72 29 46 34 - réf. 950437.

Maison 4 pièces 409000 €
409 000 €

Maison 4 pièces 102 m²

Porte-de-Savoie (73800)

Ref lot 1 située au coeur de la commue des marches, découvrez ce lotissement neuf de maisons modernes, alliant confort, fonctionnalité et qualité de construction. Ces maisons mitoyennes par le garage offrent un cadre de vie idéal, alliant intimité et convivialité, dans un environnement calme et résidentiel. Chaque maison se compose : - d'une belle pièce de vie de 43 m² lumineuse ouverte sur le séjour - de 3 belles chambres à l'étage - d'une salle de bains moderne à l'étage - d'une salle d'eau en rez de chaussée pouvant être transformé en buanderie - d'un garage attenant (mitoyenneté uniquement par celui ci ) - d'un terrain privatif de 266 m² des prestations de qualités : - chauffage au sol par pompe à chaleur sur les 2 niveaux - normes énergétiques récentes - carrelage 60 * 60 - menuiserie en aluminium pour la baie vitrée - matériaux modernes et finitions soignées emplacement privilégié, proche des commodités et des axes principaux, tout en profitant d'un cadre paisible idéal pour une résidence principale ou un investissement les honoraires sont à la charge du vendeur. Les informations sur les risques auxquels ce bien est exposé sont disponibles sur le site géorisques : www. Georisques. Gouv. Fr. Réseau immobilier capifrance - votre agent commercial (rsac n°522 248 087 - greffe de chambery) nelly massat entrepreneur individuel 06 72 29 46 34 - réf. 950443.

Maison 4 pièces 405000 €
405 000 €

Maison 4 pièces 102 m²

Porte-de-Savoie (73800)

Ref lot 2 située au coeur de la commue des marches, découvrez ce lotissement neuf de maisons modernes, alliant confort, fonctionnalité et qualité de construction. Ces maisons mitoyennes par le garage offrent un cadre de vie idéal, alliant intimité et convivialité, dans un environnement calme et résidentiel. Chaque maison se compose : - d'une belle pièce de vie de 43 m² lumineuse ouverte sur le séjour - de 3 belles chambres à l'étage - d'une salle de bains moderne à l'étage - d'une salle d'eau en rez de chaussée pouvant être transformé en buanderie - d'un garage attenant (mitoyenneté uniquement par celui ci ) - d'un terrain privatif de 254 m² des prestations de qualités : - chauffage au sol par pompe à chaleur sur les 2 niveaux - normes énergétiques récentes - carrelage 60 * 60 - menuiserie en aluminium pour la baie vitrée - matériaux modernes et finitions soignées emplacement privilégié, proche des commodités et des axes principaux, tout en profitant d'un cadre paisible idéal pour une résidence principale ou un investissement les honoraires sont à la charge du vendeur. Les informations sur les risques auxquels ce bien est exposé sont disponibles sur le site géorisques : www. Georisques. Gouv. Fr. Réseau immobilier capifrance - votre agent commercial (rsac n°522 248 087 - greffe de chambery) nelly massat entrepreneur individuel 06 72 29 46 34 - réf. 950440.

À voir pour le même budget

Maison 4 pièces 379000 €
379 000 €

Maison 4 pièces 102 m²

Porte-de-Savoie (73800)

Ref lot 6 située au coeur de la commue des marches, découvrez ce lotissement neuf de maisons modernes, alliant confort, fonctionnalité et qualité de construction. Ces maisons mitoyennes par le garage offrent un cadre de vie idéal, alliant intimité et convivialité, dans un environnement calme et résidentiel. Chaque maison se compose : - d'une belle pièce de vie de 43 m² lumineuse ouverte sur le séjour - de 3 belles chambres à l'étage - d'une salle de bains moderne à l'étage - d'une salle d'eau en rez de chaussée pouvant être transformé en buanderie - d'un garage attenant (mitoyenneté uniquement par celui ci ) - d'un terrain privatif de 228 m² des prestations de qualités : - chauffage au sol par pompe à chaleur sur les 2 niveaux - normes énergétiques récentes - carrelage 60 * 60 - menuiserie en aluminium pour la baie vitrée - matériaux modernes et finitions soignées emplacement privilégié, proche des commodités et des axes principaux, tout en profitant d'un cadre paisible idéal pour une résidence principale ou un investissement les honoraires sont à la charge du vendeur. Les informations sur les risques auxquels ce bien est exposé sont disponibles sur le site géorisques : www. Georisques. Gouv. Fr. Réseau immobilier capifrance - votre agent commercial (rsac n°522 248 087 - greffe de chambery) nelly massat entrepreneur individuel 06 72 29 46 34 - réf. 950434.

Maison 4 pièces 409000 €
409 000 €

Maison 4 pièces 102 m²

Porte-de-Savoie (73800)

Ref lot 5 située au coeur de la commue des marches, découvrez ce lotissement neuf de maisons modernes, alliant confort, fonctionnalité et qualité de construction. Ces maisons mitoyennes par le garage offrent un cadre de vie idéal, alliant intimité et convivialité, dans un environnement calme et résidentiel. Chaque maison se compose : - d'une belle pièce de vie de 43 m² lumineuse ouverte sur le séjour - de 3 belles chambres à l'étage - d'une salle de bains moderne à l'étage - d'une salle d'eau en rez de chaussée pouvant être transformé en buanderie - d'un garage attenant (mitoyenneté uniquement par celui ci ) - d'un terrain privatif de 269 m² des prestations de qualités : - chauffage au sol par pompe à chaleur sur les 2 niveaux - normes énergétiques récentes - carrelage 60 * 60 - menuiserie en aluminium pour la baie vitrée - matériaux modernes et finitions soignées emplacement privilégié, proche des commodités et des axes principaux, tout en profitant d'un cadre paisible idéal pour une résidence principale ou un investissement les honoraires sont à la charge du vendeur. Les informations sur les risques auxquels ce bien est exposé sont disponibles sur le site géorisques : www. Georisques. Gouv. Fr. Réseau immobilier capifrance - votre agent commercial (rsac n°522 248 087 - greffe de chambery) nelly massat entrepreneur individuel 06 72 29 46 34 - réf. 950447.

Maison 4 pièces 379000 €
379 000 €

Maison 4 pièces 102 m²

Porte-de-Savoie (73800)

Ref lot 8 située au coeur de la commue des marches, découvrez ce lotissement neuf de maisons modernes, alliant confort, fonctionnalité et qualité de construction. Ces maisons mitoyennes par le garage offrent un cadre de vie idéal, alliant intimité et convivialité, dans un environnement calme et résidentiel. Chaque maison se compose : - d'une belle pièce de vie de 43 m² lumineuse ouverte sur le séjour - de 3 belles chambres à l'étage - d'une salle de bains moderne à l'étage - d'une salle d'eau en rez de chaussée pouvant être transformé en buanderie - d'un garage attenant (mitoyenneté uniquement par celui ci ) - d'un terrain privatif de 239 m² des prestations de qualités : - chauffage au sol par pompe à chaleur sur les 2 niveaux - normes énergétiques récentes - carrelage 60 * 60 - menuiserie en aluminium pour la baie vitrée - matériaux modernes et finitions soignées emplacement privilégié, proche des commodités et des axes principaux, tout en profitant d'un cadre paisible idéal pour une résidence principale ou un investissement les honoraires sont à la charge du vendeur. Les informations sur les risques auxquels ce bien est exposé sont disponibles sur le site géorisques : www. Georisques. Gouv. Fr. Réseau immobilier capifrance - votre agent commercial (rsac n°522 248 087 - greffe de chambery) nelly massat entrepreneur individuel 06 72 29 46 34 - réf. 950437.

Maison 4 pièces 405000 €
405 000 €

Maison 4 pièces 102 m²

Porte-de-Savoie (73800)

Ref lot 2 située au coeur de la commue des marches, découvrez ce lotissement neuf de maisons modernes, alliant confort, fonctionnalité et qualité de construction. Ces maisons mitoyennes par le garage offrent un cadre de vie idéal, alliant intimité et convivialité, dans un environnement calme et résidentiel. Chaque maison se compose : - d'une belle pièce de vie de 43 m² lumineuse ouverte sur le séjour - de 3 belles chambres à l'étage - d'une salle de bains moderne à l'étage - d'une salle d'eau en rez de chaussée pouvant être transformé en buanderie - d'un garage attenant (mitoyenneté uniquement par celui ci ) - d'un terrain privatif de 254 m² des prestations de qualités : - chauffage au sol par pompe à chaleur sur les 2 niveaux - normes énergétiques récentes - carrelage 60 * 60 - menuiserie en aluminium pour la baie vitrée - matériaux modernes et finitions soignées emplacement privilégié, proche des commodités et des axes principaux, tout en profitant d'un cadre paisible idéal pour une résidence principale ou un investissement les honoraires sont à la charge du vendeur. Les informations sur les risques auxquels ce bien est exposé sont disponibles sur le site géorisques : www. Georisques. Gouv. Fr. Réseau immobilier capifrance - votre agent commercial (rsac n°522 248 087 - greffe de chambery) nelly massat entrepreneur individuel 06 72 29 46 34 - réf. 950440.

Maison 5 pièces 459000 €
459 000 €

Maison 5 pièces 119 m²

Porte-de-Savoie (73800)

Ref lot 9 située au coeur de la commue des marches, découvrez ce lotissement neuf de maisons modernes, alliant confort, fonctionnalité et qualité de construction. Ces maisons offrent un cadre de vie idéal, alliant intimité et convivialité, dans un environnement calme et résidentiel. Chaque maison se compose : - d'une belle pièce de vie de 43 m² lumineuse ouverte sur le séjour - d'une suite parentale face salle de bains et dressing au rez de chaussée - de 3 belles chambres à l'étage - d'une salle de bains moderne à l'étage - d'une deuxième salle d'eau en rez de chaussée pouvant être transformé en buanderie - d'un garage attenant - d'un jardin des prestations de qualités : - chauffage au sol par pompe à chaleur sur les 2 niveaux - normes énergétiques récentes - carrelage 60 * 60 - menuiserie en aluminium pour la baie vitrée - matériaux modernes et finitions soignées emplacement privilégié, proche des commodités et des axes principaux, tout en profitant d'un cadre paisible idéal pour une résidence principale les honoraires sont à la charge du vendeur. Les informations sur les risques auxquels ce bien est exposé sont disponibles sur le site géorisques : www. Georisques. Gouv. Fr. Réseau immobilier capifrance - votre agent commercial (rsac n°522 248 087 - greffe de chambery) nelly massat entrepreneur individuel 06 72 29 46 34 - réf. 950455.

Maison 4 pièces 405000 €
405 000 €

Maison 4 pièces 102 m²

Porte-de-Savoie (73800)

Ref lot 3 située au coeur de la commue des marches, découvrez ce lotissement neuf de maisons modernes, alliant confort, fonctionnalité et qualité de construction. Ces maisons mitoyennes par le garage offrent un cadre de vie idéal, alliant intimité et convivialité, dans un environnement calme et résidentiel. Chaque maison se compose : - d'une belle pièce de vie de 43 m² lumineuse ouverte sur le séjour - de 3 belles chambres à l'étage - d'une salle de bains moderne à l'étage - d'une salle d'eau en rez de chaussée pouvant être transformé en buanderie - d'un garage attenant (mitoyenneté uniquement par celui ci ) - d'un terrain privatif de 254 m² des prestations de qualités : - chauffage au sol par pompe à chaleur sur les 2 niveaux - normes énergétiques récentes - carrelage 60 * 60 - menuiserie en aluminium pour la baie vitrée - matériaux modernes et finitions soignées emplacement privilégié, proche des commodités et des axes principaux, tout en profitant d'un cadre paisible idéal pour une résidence principale ou un investissement les honoraires sont à la charge du vendeur. Les informations sur les risques auxquels ce bien est exposé sont disponibles sur le site géorisques : www. Georisques. Gouv. Fr. Réseau immobilier capifrance - votre agent commercial (rsac n°522 248 087 - greffe de chambery) nelly massat entrepreneur individuel 06 72 29 46 34 - réf. 950446.