Logo LSI sombre

Maison 4 Pièces 94 m² à vendre à La Côte-Saint-André (38260)
Photo N° 2
Photo N° 3
Photo N° 4
Photo N° 5
Photo N° 6
Photo N° 7
7

Vente maison 4 pièces 94 m² La Côte-Saint-André (38260)

228 000 €

Vente maison 4 pièces 94 m² La Côte-Saint-André (38260)

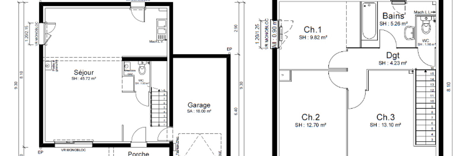
Offre exceptionnelle pour les 50ans : 10 m² offert + 2 pack au choix produit rare à saisir au plus vite. Situé sur la jolie commune de pajay dans un cadre calme et arboré. Sur une parcelle de 452 m² entièrement viabilisée, maisons punch vous propose une construction neuve à étage de 94 m². Cette maison est composée d’une partie jour avec une très belle pièce de vie de 45 m² avec cuisine ouverte sur le séjour et un wc au rez de chaussé. La partie nuit est répartie en 3 chambres dont 2 de 13 m² et une de 10 m² ainsi qu’une salle de bain avec baignoire ou douche au choix, un lavabo et un wc séparé. Pour finir, la maison possède un garage de 18 m² permettant de garer une voiture et d’avoir un espace de stockage au fond. Plan entièrement personnalisables au bon vouloir des futurs acquéreurs. Nombreuses prestations possibles construction, terrain et vrd inclus dans le prix. Prestations de qualités : volets roulants intégrés électrique et connectés, pompe à chaleur maison conforme à la re 2020 terrain proposé et vendu par notre partenaire foncier selon disponibilités, le constructeur n’étant pas mandaté pour réaliser la vente du terrain. Prix terrain inclus : 58 000 € frais de notaire non inclus : € prix maison inclus : 170 000 € vrd non inclus : € hors aménagements extérieurs (extensions, terrasse, piscine etc), papiers peints, peintures, moquettes dans les chambres (tarif en vigueur au 20 mai 2025, modifiable sans préavis, prix variables suivant les prestations souhaitées). Hors frais d’hypothèque. Différents modèles disponibles pour chaque terrain. Assurance rc professionnelle / décennale / dommage ouvrage groupe aviva. Garantie de remboursement de l'acompte / livraison à prix et délai convenu cgi. Partenaire financier : à préciser le numéro de tva intracommunautaire : fr 14 498 627 272 00012 contact : contact@maisons-punch.fr.

Caractéristiques

Les plus de cette annonce
  • Garage
  • Terrasse
  • Jardin
  • Piscine
  • Calme
Pièces
  • 4 pièces
  • 3 chambres
  • Salle de bain
  • Cuisine ouverte
Superficies
  • Surface habitable : 94 m²

Consommation énergétique et gaz à effet de serre

Bilan énergétique (DPE)
NC
Bilan gaz à effet de serre (GES)
NC

Géorisques

Les informations sur les risques auxquels ce bien est exposé sont disponibles sur le site Géorisques : www.georisques.gouv.fr

A propos du prix de cette maison

  • Prix : 228 000 € (soit 2 426 € / m²)

À propos de cette annonce

Mise en ligne:

Dernière mise à jour:

Référence de l'annonce: 5021952
Maisons Punch Saint-Priest agence immobilière à Saint-Priest (69800)
Maisons Punch Saint-Priest
Afficher le numéro

Maison similaires à acheter La Côte-Saint-André (38260)

Maison 4 pièces 234000 €
234 000 €

Maison 4 pièces 91 m²

La Côte-Saint-André (38260)

Offre Exceptionnelle pour les 50 ans de Maisons Punch ! 10 m² supplémentaires offerts sur votre maison + 2 pack au choix offert ! Vous rêvez de vivre dans un cadre paisible et verdoyant ? Profitez de cette offre unique pour construire votre maison sur le charmant village du Mottier, à seulement 20 minutes des axes autoroutiers et de Bourgoin-Jallieu. À proximité des écoles, commerces et services pour une vie pratique et agréable ! Maisons Punch vous propose une maison neuve de 90 m² sur une parcelle de 660 m² hors lotissement, conçue dans le respect de l'environnement et conforme à la norme RE 2020 pour un habitat durable et performant. Caractéristiques de votre nouvelle maison : • Spacieuse pièce de vie de 43 m² avec cuisine ouverte sur le salon pour un espace convivial et lumineux • 3 chambres (de 10 à 11 m²) et la possibilité d’ajouter une quatrième chambre selon vos besoins • Salle de bain personnalisable (baignoire ou douche) avec meuble vasque et WC séparés • Garage de 25 m² : espace pour voiture et rangement supplémentaire à l’arrière Les plans de la maison sont entièrement personnalisables selon vos envies pour créer la maison de vos rêves ! Prestations incluses : • Volets roulants intégrés et connectés à votre smartphone • Pompe à chaleur pour un confort optimal et des économies d’énergie • Débords de toiture en PVC pour un entretien simplifié Le prix indiqué inclut : CONSTRUCTION, TERRAIN, VIABILITE ET VRD, tout est déjà compris ! Saisissez cette offre exceptionnelle et profitez de 10 m² supplémentaires pour plus d’espace à vivre ! Pour plus d’informations ou pour débuter votre projet, contactez-moi dès maintenant. Je serai ravi de vous accompagner tout au long de cette belle aventure immobilière. Maisons Punch - 50 ans d’expertise à votre service ! Mr Matthias PAQUET Responsable secteur Maisons Punch Terrain proposé et vendu par notre partenaire foncier selon disponibilités, le constructeur n’étant pas mandaté pour réaliser la vente du terrain. Prix terrain inclus : 69 850 € Frais de notaire non inclus : € Prix maison inclus : 164 150 € VRD non inclus : € Hors aménagements extérieurs (extensions, terrasse, piscine etc), papiers peints, peintures, moquettes dans les chambres (tarif en vigueur au 20 mai 2025, modifiable sans préavis, prix variables suivant les prestations souhaitées). Hors frais d’hypothèque. Différents modèles disponibles pour chaque terrain. Assurance RC professionnelle / décennale / dommage ouvrage groupe Aviva. Garantie de remboursement de l'acompte / livraison à prix et délai convenu CGI. Partenaire financier : à préciser Le numéro de TVA intracommunautaire : FR 14 498 627 272 00012 Contact : contact@maisons-punch.fr.

Maison 4 pièces 227000 €
227 000 €

Maison 4 pièces 93 m²

La Côte-Saint-André (38260)

Sur les hauteurs, dans un emplacement dominant avec vue dégagée et exposition plein Sud Cette maison de plain-pied de 93 m² habitables, construite en 1993 sur un terrain clos et arboré de 1 015 m², bénéficie dun ensoleillement optimal dans un environnement hors lotissement, à proximité du centre et des écoles. Elle se compose dune entrée, dun séjour double lumineux, dune cuisine, de deux chambres (possibilité de recréer facilement une 3ème chambre), dune salle deau, WC séparé et dun cellier. Deux garages sont à disposition : un garage intégré de 16 m² offrant un potentiel dagrandissement ainsi qu'un garage indépendant À lextérieur, vous profiterez dun jardin arboré, dune terrasse et dune cour de stationnement. Des travaux de modernisation sont à prévoir pour révéler tout le potentiel de cette maison Exclusivité.

À voir pour le même budget

Maison 6 pièces 249000 €
249 000 €

Maison 6 pièces 169 m²

La Côte-Saint-André (38260)

Sur la commune de la cote saint andre. Belle villa traditionnelle sur sous-sol complet, bénéficiant de très beaux volumes ! Habitation de 169 m² comprenant un hall d'entrée, une cuisine équipée indépendante; un séjour / salon avec cheminée, 5 chambres (dont 2 très grandes) + un bureau, une grande salle de bains avec baignoire et douche. Deux pièces peuvente encore être aménagées à l'étage (création de salle de bains ou chambre). Une véranda ainsi qu'une terrasse exposée à l'est complètent l'habitation. Le sous-sol est composé d'un grand garage avec fosse, une cave, un coin atelier, une chaufferie, un wc et 2 volumes ouverts. Le terrain est entièrement clos et arboré pour une surface de 2.500 m² avec espace potager. Pour visiter et vous accompagner dans votre projet, contactez philippe leroy 06 88 12 39 32 prix ttc et honoraires à charge vendeur ttc prix de vente 249 000 € selon l'article l. 561.5 du code monétaire et financier, pour l'organisation de la visite, la présentation d'une pièce d'identité vous sera demandée. Les informations sur les risques auxquels ce bien est exposé sont disponibles sur le site géorisques : cette présente annonce a été rédigée sous la responsabilité éditoriale de philippe leroy agissant sous le statut d'agent commercial immatriculé au ville du greffe : vienne sous le numéro rsac n° 443 711 957 auprès de la sas immo reseau au capital de 10 000€ - réseau national immobilier sur internet, 44 allée des cinq continents - 44120 vertou - rne nantes 519 718 886. Carte professionnelle t et g n° cpi 3002 2018 000 024 971 cci de nantes-saint-nazaire (44) ; garantie par galian – 89 rue de la boétie - 75008 paris n°171379g pour 120 000€ pour t. Assurance responsabilité civile professionnelle par galian n° de police 120 137 405 (réf. 36793) - le professionnel garantit et sécurise votre projet immobilier prix de vente 249 000 € prix ttc et honoraires à charge vendeur ttc montant estimé des dépenses annuelles d'énergie pour un usage standard : entre 3 940 € et 5 380 € par an. Prix moyens des énergies indexés sur les années 2021 2022 2023 (abonnement compris). Dpe : d ges : d.

Maison 8 pièces 225000 €
225 000 €
-19 %

Maison 8 pièces 380 m²

La Côte-Saint-André (38260)

En Exclusivité dans votre agence Saint André Immobilier ! Dans un quartier historique, sur les hauteurs de La Côte Saint-André, maison bourgeoise aux beaux volumes, avec jardinet. Cette bâtisse en pierres et pisé est élevée sur quatre niveaux, pour une surface habitable de 170 m² environ et une surface totale de 380 m². Composée en sous-sol d'un grand garage, de deux caves saines et de plusieurs ateliers. Le premier niveau propose, sur parquets et magnifiques tommettes, un salon, une salle à manger avec alcôve, une cuisine équipée. À l'étage : un bureau mezzanine, une chambre parentale avec sa salle d'eau et un jardin d'hiver. Enfin trois chambres supplémentaires ainsi qu'une salle de bains et des toilettes au dernier. Une surface confortable de combles aménageables est disponible (environ 100 m²). La rénovation est récente (2024), pour les prestations le chauffage est au gaz de ville, complété par les cheminées, les menuiseries sont en bois simple vitrage, l'électricité est d'époque. Des travaux d'isolation ont récemment été réalisés dans les deux principales pièces de vie, par le remplacement de menuiseries et l'installation de radiateurs à fluide caloporteur. Cachet très présent avec ses matériaux de qualité : superbes parquets et pièces menuisées, cheminées en marbre, moulures. L'extérieur est agrémenté de bassins, d'un kiosque, d'un jardinet de 300 m² environ, et profite d'une agréable vue. À visiter avec Sabrina au 06 70 18 49 50. Honoraires charge vendeurs.

Maison 4 pièces 227000 €
227 000 €

Maison 4 pièces 93 m²

La Côte-Saint-André (38260)

Sur les hauteurs, dans un emplacement dominant avec vue dégagée et exposition plein Sud Cette maison de plain-pied de 93 m² habitables, construite en 1993 sur un terrain clos et arboré de 1 015 m², bénéficie dun ensoleillement optimal dans un environnement hors lotissement, à proximité du centre et des écoles. Elle se compose dune entrée, dun séjour double lumineux, dune cuisine, de deux chambres (possibilité de recréer facilement une 3ème chambre), dune salle deau, WC séparé et dun cellier. Deux garages sont à disposition : un garage intégré de 16 m² offrant un potentiel dagrandissement ainsi qu'un garage indépendant À lextérieur, vous profiterez dun jardin arboré, dune terrasse et dune cour de stationnement. Des travaux de modernisation sont à prévoir pour révéler tout le potentiel de cette maison Exclusivité.

Maison 5 pièces 185000 €
185 000 €

Maison 5 pièces 88 m²

La Côte-Saint-André (38260)

Nouveauté ! À proximité du centre ville de la cote saint andre, sur le coteau plein sud avec vue dégagée. Villa traditionnelle de 90 m² habitables + annexes. Habitation à l'étage comprenant un hall d'entrée, une cuisine, un salon avec balcon, 3 chambres, sde et wc. Une pièce en rez-de-chaussée servant de chambre ou bureau et grand espace atelier. Prévoir travaux intérieurs de remises aux normes et amélioration énérgétique à savoir isolation, menuiseries, remplacement système de chauffage, électricité, sols. Garage indépendant de 29 m². Exposition sud avec vue dégagée sur l'est et l'ouest. Terrain de 1.010 m², à moins de 5 minutes du centre ville à pieds ! Pour visiter et vous accompagner dans votre projet, contactez philippe leroy 06 88 12 39 32. Honoraires ttc charge vendeur - prix de vente 185 000 €. Selon l'article l. 561.5 du code monétaire et financier, pour l'organisation de la visite, la présentation d'une pièce d'identité vous sera demandée. Les informations sur les risques auxquels ce bien est exposé sont disponibles sur le site géorisques : cette présente annonce a été rédigée sous la responsabilité éditoriale de philippe leroy agissant sous le statut d'agent commercial immatriculé au ville du greffe : vienne sous le numéro rsac n° 443 711 957 auprès de la sas immo reseau au capital de 10 000€ - réseau national immobilier sur internet, 44 allée des cinq continents - 44120 vertou - rne nantes 519 718 886. Carte professionnelle t et g n° cpi 3002 2018 000 024 971 cci de nantes-saint-nazaire (44) ; garantie par galian – 89 rue de la boétie - 75008 paris n°171379g pour 120 000€ pour t. Assurance responsabilité civile professionnelle par galian n° de police 120 137 405 (réf. 32448) - le professionnel garantit et sécurise votre projet immobilier prix de vente 185 000 € honoraires ttc charge vendeur montant estimé des dépenses annuelles d'énergie pour un usage standard : entre 5 560 € et 7 560 € par an. Prix moyens des énergies indexés au 01 / 01 / 2023 (abonnement compris). Dpe : g ges : g.

Maison 7 pièces 265000 €
265 000 €
-18 %

Maison 7 pièces 193 m²

La Côte-Saint-André (38260)

5 minutes à l'est de la cote saint andre, à proximité des écoles et arrêt de bus. Belle maison bourgeoise sur 2 niveaux avec sous-sol complet. Habitation de 193 m² comprenant un beau hall d'entrée, une cuisine équipée indépendante, un grand séjour, une salle à manger, 5 chambres (dont 1 en rdc), 1 salle de bains, et 2 salle d'eau. Sous-sol complet divisé en plusieurs volumes mais non accessible en voiture + garage indépendant. Prévoir des travaux de remises aux normes tels que les menuiseries, l'électricité, les sanitaires et l'isolation. Chauffage central au gaz de ville, maison raccordée à l'assainissement collectif. Portail motorisé, visiophone, alarme. Cabanon de jardin. Joli parc, entièrement clos et plat, avec de très beaux arbres, pour une superficie totale de 2.230 m². Propriété facile d'accès. Pour visiter et vous accompagner dans votre projet, contactez philippe leroy 06 88 12 39 32 honoraires ttc charge vendeur - prix de vente 325 000 € selon l'article l. 561.5 du code monétaire et financier, pour l'organisation de la visite, la présentation d'une pièce d'identité vous sera demandée. Les informations sur les risques auxquels ce bien est exposé sont disponibles sur le site géorisques : cette présente annonce a été rédigée sous la responsabilité éditoriale de philippe leroy agissant sous le statut d'agent commercial immatriculé au ville du greffe : vienne sous le numéro rsac n° 443 711 957 auprès de la sas immo reseau au capital de 10 000€ - réseau national immobilier sur internet, 44 allée des cinq continents - 44120 vertou - rne nantes 519 718 886. Carte professionnelle t et g n° cpi 3002 2018 000 024 971 cci de nantes-saint-nazaire (44) ; garantie par galian – 89 rue de la boétie - 75008 paris n°171379g pour 120 000€ pour t. Assurance responsabilité civile professionnelle par galian n° de police 120 137 405 (réf. 31169) - le professionnel garantit et sécurise votre projet immobilier prix de vente 325 000 € honoraires ttc charge vendeur - montant estimé des dépenses annuelles d'énergie pour un usage standard : entre 3 680 € et 5 030 € par an. Prix moyens des énergies indexés au 01 / 01 / 2021 (abonnement compris). Dpe : e ges : e.

Maison 4 pièces 199000 €
199 000 €

Maison 4 pièces 86 m²

La Côte-Saint-André (38260)

À deux pas du centre de La Côte Saint-André et de ses commerces de proximité (5 mn à pied du centre bourg), cette jolie maison de village rénovée entièrement est à découvrir avec votre agence Saint-André Immobilier. Au sein d'une résidence de très belle gamme comprenant 5 lots, en cours de rénovation globale, ce charmant habitat T4 d'une surface habitable de 86 m² est proposé avec jardinet, terrasse, garage et cave. Prestations de belle facture, neuves. En duplex elle est composé d'un bel espace de vie avec coin cuisine aménagée, d'une arrière-cuisine / cellier accédant au garage et de toilettes. En étage nous trouvons un pallier confortable lequel dessert trois chambres à la belle exposition Sud donnant sur jardin ainsi qu'une salle d'eau avec toilettes. Vous profiterez du confort et de l'esthétique de menuiseries en aluminium, d'un chauffage électrique par inertie, d'une bonne qualité d'isolation et d'agréments intérieurs aux tons doux et actuels. Vous aurez la sécurité de vivre dans une petite copropriété aux charges minimes puisque sans communs et à l'état neuf sur tous postes (toiture, façade, réseaux). Excellent lieu de vie avec une localisation tout près du centre dans un logement prêt à être investi, avec espace extérieur et garage. Bien en cours de rénovation, visuels de projection en ligne, plus de photos sur demandes. DPE VIERGE. Plus de détails avec Céline : o6 66 96 83 51. Honoraires charge vendeur.