Logo LSI sombre

Maison 4 Pièces 107 m² à vendre à Châtillon-sur-Chalaronne (01400)
Photo N° 2
Photo N° 3
Photo N° 4
4

Vente maison 4 pièces 107 m² Châtillon-sur-Chalaronne (01400)

322 000 €

Vente maison 4 pièces 107 m² Châtillon-sur-Chalaronne (01400)

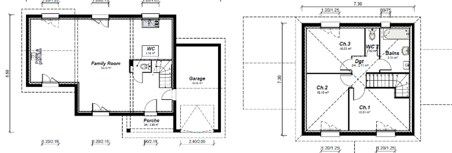
Situé sur la jolie commune de chatillon sur chalaronne dans un cadre calme et arboré. Sur une parcelle de 600 m² entièrement viabilisée, maisons punch vous propose une construction neuve à étage de 97 m² + 10 m² offert. Cette maison est composée d’une partie jour avec une très belle pièce de vie de 45 m² avec cuisine ouverte sur le séjour et un wc au rez de chaussé. La partie nuit est répartie en 3 chambres dont 2 de 13 m² et une de 10 m² ainsi qu’une salle de bain avec baignoire ou douche au choix, un lavabo et un wc séparé. Pour finir, la maison possède un garage de 18 m² permettant de garer une voiture et d’avoir un espace de stockage au fond. Plan entièrement sur mesure, dessin fait avec les clients. Nombreuses prestations possibles construction, terrain et vrd inclus dans le prix. Prestations de qualités : volets roulants intégrés électrique et connectés, pompe à chaleur maison conforme à la re 2020 terrain proposé et vendu par notre partenaire foncier selon disponibilités, le constructeur n’étant pas mandaté pour réaliser la vente du terrain. Prix terrain inclus : 131 000 € frais de notaire non inclus : € prix maison inclus : 191 000 € vrd non inclus : € hors aménagements extérieurs (extensions, terrasse, piscine etc), papiers peints, peintures, moquettes dans les chambres (tarif en vigueur au 20 mai 2025, modifiable sans préavis, prix variables suivant les prestations souhaitées). Hors frais d’hypothèque. Différents modèles disponibles pour chaque terrain. Assurance rc professionnelle / décennale / dommage ouvrage groupe aviva. Garantie de remboursement de l'acompte / livraison à prix et délai convenu cgi. Partenaire financier : à préciser le numéro de tva intracommunautaire : fr 14 498 627 272 00012 contact : contact@maisons-punch.fr.

Caractéristiques

Les plus de cette annonce
  • Garage
  • Terrasse
  • Jardin
  • Piscine
  • Calme
Pièces
  • 4 pièces
  • 3 chambres
  • Salle de bain
  • Cuisine ouverte
Superficies
  • Surface habitable : 107 m²

Consommation énergétique et gaz à effet de serre

Bilan énergétique (DPE)
NC
Bilan gaz à effet de serre (GES)
NC

Géorisques

Les informations sur les risques auxquels ce bien est exposé sont disponibles sur le site Géorisques : www.georisques.gouv.fr

A propos du prix de cette maison

  • Prix : 322 000 € (soit 3 009 € / m²)

À propos de cette annonce

Mise en ligne:

Dernière mise à jour:

Référence de l'annonce: 5084119
Maisons Punch Saint-Priest agence immobilière à Saint-Priest (69800)
Maisons Punch Saint-Priest
Afficher le numéro

À voir pour le même budget

Maison 7 pièces 345000 €
345 000 €

Maison 7 pièces 160 m²

Châtillon-sur-Chalaronne (01400)

Trop tard : offre acceptée ! Immeuble au coeur de la ville, en partie rénovée avec plusieurs entrées indépendantes. Grenier entièrement aménageable. Structure et charpente en très bon état. Les informations sur les risques auxquels ce bien est exposé sont disponibles sur le site géorisques : prix de vente : 345 000 € honoraires charge vendeur contactez votre conseiller safti : christophe françoise, tél. : 06 24 28 64 69, e-mail : christophe.francoise@safti.fr - ei - agent commercial immatriculé au rsac de thonon les bains sous le numéro 892 460 494.

Maison 4 pièces 258700 €
258 700 €

Maison 4 pièces 94 m²

Châtillon-sur-Chalaronne (01400)

Offre exceptionnelle : 10 m² offert + 1 pack au choix produit rare à saisir au plus vite. Situé sur la jolie commune de saint didier sur chalaronne dans un cadre calme et arboré. Sur une parcelle de 425 m² entièrement viabilisée, maisons punch vous propose une construction neuve à étage de 94 m². Cette maison est composée d’une partie jour avec une très belle pièce de vie de 45 m² avec cuisine ouverte sur le séjour et un wc au rez de chaussé. La pièce de nuit est répartie en 3 chambres dont 2 de 13 m² et une de 10 m² ainsi qu’une salle de bain avec baignoire ou douche au choix, un lavabo et un wc séparé. Pour finir, la maison possède un garage de 18 m² permettant de garer une voiture et d’avoir un espace de stockage au fond. Plan entièrement personnalisables au bon vouloir des futurs acquéreurs. Nombreuses prestations possibles construction, terrain et vrd inclus dans le prix. Me contacter au plus vite pour plus d’informations sur le terrain. Maison conforme à la re 2020 terrain proposé et vendu par notre partenaire foncier selon disponibilités, le constructeur n’étant pas mandaté pour réaliser la vente du terrain. Prix terrain inclus : 92 500 € frais de notaire non inclus : € prix maison inclus : 166 200 € vrd non inclus : € hors aménagements extérieurs (extensions, terrasse, piscine etc), papiers peints, peintures, moquettes dans les chambres (tarif en vigueur au 20 mai 2025, modifiable sans préavis, prix variables suivant les prestations souhaitées). Hors frais d’hypothèque. Différents modèles disponibles pour chaque terrain. Assurance rc professionnelle / décennale / dommage ouvrage groupe aviva. Garantie de remboursement de l'acompte / livraison à prix et délai convenu cgi. Partenaire financier : à préciser le numéro de tva intracommunautaire : fr 14 498 627 272 00012 contact : contact@maisons-punch.fr.

Maison 5 pièces 325000 €
325 000 €

Maison 5 pièces 135 m²

Châtillon-sur-Chalaronne (01400)

Maison d'exception. Situé sur la jolie commune de dompierre sur chalaronne dans un cadre calme. Sur une parcelle de 6000 m² entièrement viabilisée, maisons punch vous propose une construction neuve à étage de 135 m². Cette maison est composée d’une partie jour avec une très belle pièce de vie de 50 m² avec cuisine ouverte sur le séjour et un wc suspendu au rez de chaussé. La partie nuit est répartie en 4 chambres dont 3 de 13,14 et 16 m²et une d'une suite parentale en bas de 18 m² avec dressing et salle d'eau. À l'étage, une salle de bain avec baignoire et douche, un lavabo double vasque et un wc séparé. Pour finir, la maison possède un garage de 27 m² permettant de garer une voiture et d’avoir un espace de stockage au fond. Plan entièrement personnalisables au bon vouloir des futurs acquéreurs. Nombreuses prestations possibles construction, terrain et vrd inclus dans le prix. Prestations de qualités : volets roulants intégrés électrique et connectés, pompe à chaleur maison conforme à la re 2020 terrain proposé et vendu par notre partenaire foncier selon disponibilités, le constructeur n’étant pas mandaté pour réaliser la vente du terrain. Prix terrain inclus : 115 900 € frais de notaire non inclus : € prix maison inclus : 209 100 € vrd non inclus : € hors aménagements extérieurs (extensions, terrasse, piscine etc), papiers peints, peintures, moquettes dans les chambres (tarif en vigueur au 20 mai 2025, modifiable sans préavis, prix variables suivant les prestations souhaitées). Hors frais d’hypothèque. Différents modèles disponibles pour chaque terrain. Assurance rc professionnelle / décennale / dommage ouvrage groupe aviva. Garantie de remboursement de l'acompte / livraison à prix et délai convenu cgi. Partenaire financier : à préciser le numéro de tva intracommunautaire : fr 14 498 627 272 00012 contact : contact@maisons-punch.fr.

Maison 5 pièces 341000 €
341 000 €

Maison 5 pièces 135 m²

Châtillon-sur-Chalaronne (01400)

Maison d'exception. Situé sur la jolie commune de dompierre sur chalaronne dans un cadre calme et arboré. Sur une parcelle de 1040 m² entièrement viabilisée, maisons punch vous propose une construction neuve à étage de 135 m². Cette maison est composée d’une partie jour avec une très belle pièce de vie de 50 m² avec cuisine ouverte sur le séjour et un wc suspendu au rez de chaussé. La partie nuit est répartie en 4 chambres dont 3 de 13,14 et 16 m²et une d'une suite parentale en bas de 18 m² avec dressing et salle d'eau. À l'étage, une salle de bain avec baignoire et douche, un lavabo double vasque et un wc séparé. Pour finir, la maison possède un garage de 27 m² permettant de garer une voiture et d’avoir un espace de stockage au fond. Plan entièrement personnalisables au bon vouloir des futurs acquéreurs. Nombreuses prestations possibles construction, terrain et vrd inclus dans le prix. Prestations de qualités : volets roulants intégrés électrique et connectés, pompe à chaleur maison conforme à la re 2020 terrain proposé et vendu par notre partenaire foncier selon disponibilités, le constructeur n’étant pas mandaté pour réaliser la vente du terrain. Prix terrain inclus : 140 000 € frais de notaire non inclus : € prix maison inclus : 201 000 € vrd non inclus : € hors aménagements extérieurs (extensions, terrasse, piscine etc), papiers peints, peintures, moquettes dans les chambres (tarif en vigueur au 20 mai 2025, modifiable sans préavis, prix variables suivant les prestations souhaitées). Hors frais d’hypothèque. Différents modèles disponibles pour chaque terrain. Assurance rc professionnelle / décennale / dommage ouvrage groupe aviva. Garantie de remboursement de l'acompte / livraison à prix et délai convenu cgi. Partenaire financier : à préciser le numéro de tva intracommunautaire : fr 14 498 627 272 00012 contact : contact@maisons-punch.fr.

Maison 4 pièces 277900 €
277 900 €

Maison 4 pièces 93 m²

Châtillon-sur-Chalaronne (01400)

Offres a saisir : 10 m² offerts + cuisine offerte + pack deco projet de construction à dompierre sur chalaronne ! Situé à seulement 5 minutes de châtillon sur chalaronne, ce magnifique terrain de 600 m² vous offre un cadre de vie paisible en pleine campagne. Caractéristiques de la maison proposée : maison de plain-pied (possible étage) 3 chambres spacieuses garage intégré construction conforme aux normes re 2020 pour une efficacité énergétique optimale profitez de ce superbe emplacement pour réaliser votre projet de vie dans un environnement serein et verdoyant. Pour plus d'informations, contactez mme viana au 06 07 10 89 44. Vrd inclus terrain proposé et vendu par notre partenaire foncier selon disponibilités, le constructeur n’étant pas mandaté pour réaliser la vente du terrain. Prix terrain inclus : 115 900 € frais de notaire non inclus : € prix maison inclus : 162 000 € vrd non inclus : € hors aménagements extérieurs (extensions, terrasse, piscine etc), papiers peints, peintures, moquettes dans les chambres (tarif en vigueur au 20 mai 2025, modifiable sans préavis, prix variables suivant les prestations souhaitées). Hors frais d’hypothèque. Différents modèles disponibles pour chaque terrain. Assurance rc professionnelle / décennale / dommage ouvrage groupe aviva. Garantie de remboursement de l'acompte / livraison à prix et délai convenu cgi. Partenaire financier : à préciser le numéro de tva intracommunautaire : fr 14 498 627 272 00012 contact : contact@maisons-punch.fr.

Maison 5 pièces 302000 €
302 000 €

Maison 5 pièces 91 m²

Châtillon-sur-Chalaronne (01400)

Produit rare à saisir au plus vite. Situé sur la jolie commune de chatillon sur chalaronne dans un cadre calme et arboré. Sur une parcelle de 500 m² entièrement viabilisée, maisons punch vous propose une construction neuve de plein pied de 101 m² (possibilité d'agrandir plan sur mesure). Cette maison est composée d’une partie jour avec une très belle pièce de vie de 45 m² avec cuisine ouverte sur le séjour et un wc au rez de chaussé. La partie nuit est répartie en 4 chambres ainsi qu’une salle de bain avec baignoire ou douche au choix, un lavabo et un wc séparé. Pour finir, la maison possède un garage de 21 m² permettant de garer une voiture et d’avoir un espace de stockage au fond. Système de chauffage par plancher chauffant de partout ou climatisation par split mural. Plan entièrement personnalisables au bon vouloir des futurs acquéreurs. Nombreuses prestations possibles construction, terrain, vrd et frais de notaire inclus dans le prix. Prestations de qualités : volets roulants intégrés électrique et connectés, pompe à chaleur maison conforme à la re 2020 terrain proposé et vendu par notre partenaire foncier selon disponibilités, le constructeur n’étant pas mandaté pour réaliser la vente du terrain. Prix terrain inclus : 134 900 € frais de notaire non inclus : € prix maison inclus : 167 100 € vrd non inclus : € hors aménagements extérieurs (extensions, terrasse, piscine etc), papiers peints, peintures, moquettes dans les chambres (tarif en vigueur au 20 mai 2025, modifiable sans préavis, prix variables suivant les prestations souhaitées). Hors frais d’hypothèque. Différents modèles disponibles pour chaque terrain. Assurance rc professionnelle / décennale / dommage ouvrage groupe aviva. Garantie de remboursement de l'acompte / livraison à prix et délai convenu cgi. Partenaire financier : à préciser le numéro de tva intracommunautaire : fr 14 498 627 272 00012 contact : contact@maisons-punch.fr.