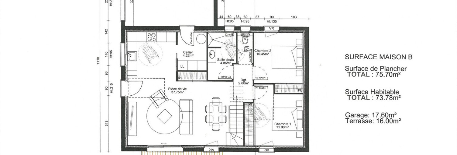
Vallée des Gaves - Projet de construction de maison neuve T3 avec terrasse, garage et jardin sur terrain de 455 m². Terrain entièrement clôturé. Elle présente une surface au sol de 73.78 m² et se décompose comme suit : Entrée, pièce de vie avec cuisine ouverte, cellier, salle d'eau, WC et 2 chambres. En sus, elle bénéfice d'un combles aménageables sur plancher bois avec fermettes autoporteuses. Fenêtres PVC et Baies vitrées Aluminium, volets roulants électriques. Chauffage par climatisation réversible avec pompe à chaleur, cumulus thermodynamique. Toiture en Ardoises naturelles avec écran sous-toiture. Maison à la norme RE 2020. Livraison prévue entre le dernier trimestre 2026 et le 3ème trimestre 2027. Choix des peintures, cuisine et des sols par le client. Autres projets de vente neuf possible, nous consulter. Informations complémentaires sur demandes.
Les informations sur les risques auxquels ce bien est exposé sont disponibles sur le site Géorisques : www.georisques.gouv.fr
Mise en ligne:
Dernière mise à jour:
Référence de l'annonce: PG-ARG-13259Iad France - Hélène Closhourcade vous propose : Rare sur le secteur ! Maison de village située à Ayzac-Ost à 5 minutes d'Argelès-Gazost de ses commerces et commodités. Une atmosphère chaleureuse se dégage de cette maison familiale de 182 m² avec jardinet d'accueil ne réclamant que peu d'entretien, terrasse dotée d'une vue magnifique sur les montagnes ainsi qu'un double garage. Dotée de 4 chambres dont une suite parentale avec salle de bains (douche et baignoire), d'une alcôve bureau, de 2 salles d'eau et 2 wc, cette maison saura vous séduire par son alchimie entre cachet ancien et prestations modernes grâce à une rénovation très réussie. Son salon lumineux s'ouvre sur une magnifique terrasse plein sud de 30 m² sans vis-à-vis qui vous permettra de profiter au plus près des sommets environnants. Il se poursuit par une très agréable cuisine aménagée et équipée et salle à manger spacieuse et fonctionnelle offrant un espace convivial et familial. En sus de la partie habitable, une pièce encore brute avec entrée indépendante vous permettra un aménagement au gré de vos envies : un espace jeux, un studio indépendant de rapport locatif ou un espace de travail. Autres atouts non négligeables : son toit récent, son isolation performante (DPE en C), la fibre optique, et ses 2 modes de chauffage : une chaudière gaz à condensation récente et un poêle à granulés. Idéalement située à proximité des commerces locaux, des écoles, des services de santé, cette maison bénéficie d'un emplacement stratégique facilitant ainsi le quotidien des futurs occupants tout en privilégiant un cadre de vie agréable proche des chemins de randonnées et des pistes de skis. Honoraires d'agence à la charge du vendeur. Information d'affichage énergétique sur ce bien : classe ENERGIE C indice 131 et classe CLIMAT C indice 17. Les informations sur les risques auxquels ce bien est exposé, y compris l'obligation légale de débroussaillement, sont disponibles sur le site Géorisques : La présente annonce immobilière a été rédigée sous la responsabilité éditoriale de Mme Hélène Closhourcade mandataire indépendant en immobilier (sans détention de fonds), agent commercial de la SAS I@D France immatriculé au RSAC de TARBES sous le numéro 801966946, titulaire de la carte de démarchage immobilier pour le compte de la société I@D France SAS.
Aux portes d'Argelès-Gazost, venez visite ce petit ensemble immobilier composé d'une bigourdane au cahet indéniable de 125 m² habitables, comprenant en RDC une pièce de vie / cuisine de 38 m², une chambre, une salle d'eau / wc, une véranda de 12 m² et une chaufferie. Au 1er niveau, un couloir desert 4 couchages, un wc. Vous pourrez profiter d'une grange attenante accueillant un garage de 28 m², une salle d'eau / wc et au 1er niveau, 2 pièces mansardées. les cours, lla parcelle de 417 m² et les petites dépendances viennent complèter ce petit havre de paix. Vous profiterez de toitures ardoises récentes, murs en pierres, tout à l'égout, double vitrage, insert bois, chauffage central fuel et du calme proche de toutes les commodités. face à nos belles montagnes Pyrénées. Pour visiter, contactez Frédéric BEUGIN au 06 80 88 21 50 ou par mail : f.beugin01@gmail.com. Prix 295 000EUR incluant 5% d'honoraires charge acquéreurs et le prêt d'un véhicule de déménagement. Prix hors honoraires : 280 000EUR.
Proche d'argelés gazost, agréable maison de 110 m² édifiée en 2011 sur une parcelle d'environ 408 m². Elle est composée en rez de chaussée d'une vaste pièce de vie avec cuisine ouverte et salon d'environ 34 m² (ensemble bénéficiant de la luminosité d'une baie vitrée au sud), d'un wc, d'un cellier et d'un garage le tout donnant sur une terrasse bien exposée. À l'étage nous retrouvons 3 chambres, une salle de bains avec baignoire et douche et un wc indépendant. Si vous recherchez un plain pied, il est tout a fait possible d'aménager en rez de chaussée une chambre et une salle d'eau. L'environnement est calme et accessible rapidement depuis argelès gazost. N'hésitez pas à me contacter afin d'échanger sur ce bien, visite uniquement sur rendez vous. Les honoraires d'agence sont à la charge de l'acquéreur, soit 6,15% ttc du prix hors honoraires. Les informations sur les risques auxquels ce bien est exposé sont disponibles sur le site géorisques : www. Georisques. Gouv. Fr. Réseau immobilier capifrance - votre agent commercial (rsac n°390 280 865 - greffe de tarbes) laurent gerbet entrepreneur individuel 06 87 51 44 20 - réf. 945951.

Dans le village d'Agos-Vidalos, situé à seulement 5 min du centre ville d'Argelès-Gazost, venez sans tarder découvrir cette superbe maison de 150 m² construite dans les années 90 avec des matériaux de qualité. Une seule visite et vous serez séduit par sa superficie, son agencement, sa piscine, son ensoleillement, sans oublier son atout majeur, sa merveilleuse vue de nos montagnes. Elle est composée d'une pièce de vie avec cheminée, d'une cuisine, de 4 chambres, d'un bureau, d'une salle de bain, d'une salle d'eau, de 2 WC et d'un garage. Prix : 267 000 euros dont 5.53 % d'honoraires charge acquéreur comprenant la garantie revente et le prêt d'un véhicule de déménagement. (Prix hors honoraires : 253 000 euros) Contacter Douglas Valens au 06 49 28 27 20 pour visiter ou pour de plus amples renseignements.
Iad france - nathalie diaz vous propose : * située à beaucens, village calme et agréable * vous rêvez d'un pied à terre, résidence principale ou secondaire. Idéalement située dans une vallée pittoresque des pyrénées. À 7 km d'argelès-gazost, 17 km de lourdes et proche de nombreuses stations de ski. Ancienne grange de montagne rénovée en 1998. Garage et abris de jardin. Vous serez séduit par son organisation intérieure qui offre 177 m² habitables au sol et 139 m² environ en carrez. Jardin de 300 m². Le rdc propose : une superbe pièce de vie de 54 m² avec cuisine ouverte aménagée, un vaste salon / séjour avec insert, une salle d'eau, wc, buanderie / cellier de 7,69 m². L'étage accueille : un grand dégagement de 20 m² qui offre plusieurs possibilités (bureau, rangements etc. ). 4 superbes chambres qui offres de beaux volumes, une salle de bain avec un wc. Confort : double vitrage menuiseries bois. Assainissement au tout à l'égout. Fibre. Chauffage base consommation, pompe à chaleur. Tableau électrique aux normes. Charpente traditionnelle. Rafraichissements et mises au gout du jour à prévoir. Pas de travaux. * cadre bucolique * honoraires d'agence à la charge du vendeur. Information d'affichage énergétique sur ce bien : classe energie c indice 128 et classe climat a indice 4. Les informations sur les risques auxquels ce bien est exposé, y compris l'obligation légale de débroussaillement, sont disponibles sur le site géorisques : la présente annonce immobilière a été rédigée sous la responsabilité éditoriale de mme nathalie diaz mandataire indépendant en immobilier (sans détention de fonds), agent commercial de la sas i@d france immatriculé au rsac de tarbes sous le numéro 829310986, titulaire de la carte de démarchage immobilier pour le compte de la société i@d france sas.
Iad France - Alexia Poli vous propose : En exclusivité, je vous présente sur la commune de Pierrefitte-Nestalas, cette grande maison pleine de potentiel nichée au pied des montagnes, à deux pas de toutes commodités. Actuellement organisée en deux appartements, un T3 en rez-de-chaussée et un T4 à l'étage avec deux accès et un garage, ce bien peut facilement redevenir une grande et élégante maison familiale. L'appartement du rez-de-chaussée dispose d'une entrée, d'une pièce de vie avec cuisine ouverte, de deux chambres, une chaufferie, une salle d'eau et un wc. Une véranda orientée sud complète ce logement. À l'étage, vous disposerez d'une grande pièce de vie baignée de lumière avec une cuisine moderne et épurée, entièrement équipée. Une loggia vient prolonger astucieusement la cuisine. Vous profiterez également de la grande terrasse orientée sud avec vue sur les montagnes. L'espace nuit dispose de trois chambres, d'une salle d'eau et d'un wc séparé. Un grand garage vient compléter la propriété. D'importants travaux ont été réalisés récemment : électricité, menuiseries, isolation, PAC air / eau… Le terrain de 459 m² offre un jardin fleuri et bien exposé. L'environnement est calme tout en restant à deux pas des commodités. Vous l'aurez compris, il ne faut surtout pas passer à côté de cette opportunité d'acquérir cette grande maison idéale pour les grandes familles ou les projets intergénérationnels, parfaite pour profiter d'un appartement spacieux tout en bénéficiant d'un rendement locatif grâce à la location courte durée possible tout le long de l'année. Les investisseurs sont conquis pas ces deux logements clés en main avec accès séparés. Ne tardez pas à venir découvrir cette maison à fort potentiel. Honoraires d'agence à la charge du vendeur. Information d'affichage énergétique sur ce bien : classe ENERGIE C indice 162 et classe CLIMAT A indice 5. Les informations sur les risques auxquels ce bien est exposé, y compris l'obligation légale de débroussaillement, sont disponibles sur le site Géorisques : La présente annonce immobilière a été rédigée sous la responsabilité éditoriale de Mme Alexia Poli mandataire indépendant en immobilier (sans détention de fonds), agent commercial de la SAS I@D France immatriculé au RSAC de Tarbes sous le numéro 884087578, titulaire de la carte de démarchage immobilier pour le compte de la société I@D France SAS.