Logo LSI sombre

Maison 3 Pièces 65 m² à vendre à Prigonrieux (24130)
Photo N° 2
Photo N° 3
Photo N° 4
Photo N° 5
5

Vente maison 3 pièces 65 m² Prigonrieux (24130)

154 000 €

Maison à construire à Prigonrieux (24130)

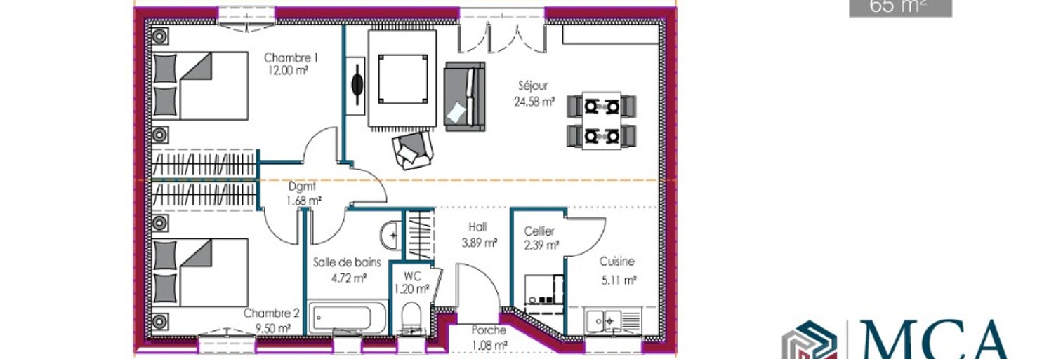
Prigonrieux : maison de 3 pièces (65 m²) à construiremaison 3 pièces neuve - proche de bergeracen vente à 7 km de bergerac, à prigonrieux (24130), notre agence maisons de la côte atlantique bergerac est heureuse de vous proposer cette maison de 3 pièces de plain-pied de 65 m² et de 400 m² de terrain. Elle compte 2 chambres, une cuisine et une salle de bains. Cette maison sera aux normes re2020 en contrat ccmi, le seul contrat qui vous apporte la sécurité d'une maison faite dans les règles de l'art avec une garantie de livraison, dommage ouvrage, décennales, délai respecté etc. Avec les maisons mca vous bénéficierez aussi d'un espace personnalisé pour le suivi et échanges avec tous les intermédiaires de votre chantier. La re2020 vous garantit une maison plus économe en énergie (classifiée a / a), plus confortable en été comme hiver, plus respectueuse de l'environnement. Son prix de vente est de 154 000 €, tout est compris dans cette offre : maison en prête à décorer, terrain, branchements raccordements, viabilisation, adaptation au sol, carrelage. Avantage, tout est encore modifiable. Contactez notre agent local gardonnais benoit durand au o6-65-85-53-20 pour toute information sur la maison et les démarches à suivre. Avec les maisons mca, faites bâtir votre maison avec l'un des acteurs les plus solides du marché et une des meilleures cotation banque de france, indice de fiabilité et pérennité. Nous sommes là aujourd'hui, et nous le serons demain. Idée de réalisation en modèle prêt à décorer sur l'un de nos terrains partenaires, sous réserve de disponibilités. Voir détails en agence. Les informations sur les risques auxquels ce bien est exposé sont disponibles sur le site géorisques : .

Caractéristiques

Les plus de cette annonce
  • Jardin
Pièces
  • 3 pièces
  • 3 chambres
  • Salle de bain
Superficies
  • Surface habitable : 65 m²

Consommation énergétique et gaz à effet de serre

Bilan énergétique (DPE)
NC
Bilan gaz à effet de serre (GES)
NC

Géorisques

Les informations sur les risques auxquels ce bien est exposé sont disponibles sur le site Géorisques : www.georisques.gouv.fr

A propos du prix de cette maison

  • Prix : 154 000 € (soit 2 369 € / m²)

À propos de cette annonce

Mise en ligne:

Dernière mise à jour:

Référence de l'annonce: BD2354185_3
Maisons Mca agence immobilière à Artigues-près-Bordeaux (33370)
Maisons Mca
Afficher le numéro

À voir pour le même budget

Maison 4 pièces 168000 €
168 000 €

Maison 4 pièces 84 m²

Prigonrieux (24130)

Maison de 4 pièces (84 m²) à vendre à prigonrieuxproche de bergerac - maison 4 pièces neuveà deux pas de bergerac, en vente à prigonrieux (24130), notre agence maisons de la côte atlantique bergerac est heureuse de vous proposer cette maison de 4 pièces de plain-pied de 84 m² et de 400 m² de terrain. Elle offre trois chambres, une cuisine donnant sur salon / séjour et une salle de bains. Cette maison sera aux normes re2020 en contrat ccmi, le seul contrat qui vous apporte la sécurité d'une maison faite dans les règles de l'art avec une garantie de livraison, dommage ouvrage, décennales, délai respecté etc. Avec les maisons mca vous bénéficierez aussi d'un espace personnalisé pour le suivi et échanges avec tous les intermédiaires de votre chantier. La re2020 vous garantit une maison plus économe en énergie (classifiée a / a), plus confortable en été comme hiver, plus respectueuse de l'environnement. Son prix de vente est de 168 000 €, tout est compris dans cette offre : maison, terrain, raccordements, branchements, adaptation au sol, carrelage, peinture. Avantage, tout est encore modifiable. Contactez notre agent local benoit durand au o6-65-85-53-20 pour toute information sur la maison et les démarches à suivre. Avec les maisons mca, faites bâtir votre maison avec l'un des acteurs les plus solides du marché et une des meilleures cotation banque de france, indice de fiabilité et pérennité. Nous sommes là aujourd'hui, et nous le serons demain. Idée de réalisation en modèle prêt à décorer sur l'un de nos terrains partenaires, sous réserve de disponibilités. Voir détails en agence. Les informations sur les risques auxquels ce bien est exposé sont disponibles sur le site géorisques : .

Maison 5 pièces 129000 €
129 000 €

Maison 5 pièces 102 m²

Prigonrieux (24130)

Iad France - Marie-Christine Danckers vous propose : Située à Prigonrieux, dans un quartier calme, cette maison de 100 m² construite en 1963 offre un cadre de vie agréable. Elle se compose d’une entrée desservant un séjour / salon de 30 m² avec cheminée, d’une cuisine indépendante de 15 m², buanderie attenante, ainsi que d’un espace nuit comprenant trois chambres de 9 à 11 m², une salle d’eau et un WC séparé. À l’extérieur, vous profiterez d’une terrasse exposée Sud, d’un garage attenant de 30 m², d’un abri bois et d’un terrain clos et arboré de 750 m². La maison est équipée du chauffage au gaz, de menuiseries en double vitrage et d’un assainissement individuel. Des travaux de rénovation sont à prévoir, offrant la possibilité de personnaliser le bien selon vos envies. Honoraires d'agence à la charge du vendeur. Information d'affichage énergétique sur ce bien : classe ENERGIE D indice 231 et classe CLIMAT D indice 38. Les informations sur les risques auxquels ce bien est exposé, y compris l'obligation légale de débroussaillement, sont disponibles sur le site Géorisques : La présente annonce immobilière a été rédigée sous la responsabilité éditoriale de Mme Marie-Christine Danckers mandataire indépendant en immobilier (sans détention de fonds), agent commercial de la SAS I@D France immatriculé au RSAC de BERGERAC sous le numéro 884127697, titulaire de la carte de démarchage immobilier pour le compte de la société I@D France SAS.

Maison 5 pièces 129600 €
129 600 €

Maison 5 pièces 96 m²

Prigonrieux (24130)

Proche de la Dordogne et des commerces, cette maison sur sous-sol à faire revivre se compose à l'étage d'une cuisine, un séjour avec cheminée, une véranda, de 2 chambres et une salle de bains. Le rez-de-jardin a été aménagé d'une cuisine, 2 chambres et une salle d'eau. Garage et cave. Le jardin d'environ 2500 m² est clos et arboré. Honoraires inclus dans le prix : 8%.

Maison 4 pièces 170000 €
170 000 €

Maison 4 pièces 91 m²

Prigonrieux (24130)

- rare sur prigonrieux, maison de plain pied a ce prix - prigonrieux, située dans un quartier résidentiel et au calme belle maison de plain-pied style périgourdine de l'année 1991, bonne construction de 91 m² habitables composée : entrée sur dégagement, beau séjour-salon de 38.3 m² avec cheminée ouverte, une cuisine aménagée de 13.60 m², une buanderie de 7.20 m², couloir avec placards, 2 chambres de 15.80 m² et 10.20 m², une salle de bains, toilette avec fenêtre, garage communicant avec la cuisine de 18.40 m². Chauffage électrique, menuiseries bois doubles vitrages, assainissement tout à l'égout, cette maison bénéficie d'un puits et d'un agréable terrain clos et arborés de 1200 m² avec portail électrique et interphone. Taxes foncières de 1619 euros toutes les photos sont prises avec un simple téléphone portable et reflète la réalité du lieu, tous nos biens sur agence fdimmo lalinde en perigord tel : 05 24 10 61 99 retrouvez toutes nos annonces sur - consultez notre barème d'honoraires sur .

Maison 4 pièces 173000 €
173 000 €

Maison 4 pièces 100 m²

Prigonrieux (24130)

Envie de vous lancer dans un projet de rénovation en famille ou en couple ? Cette maison est idéale pour vous ! Maison de plain pied à Prigonrieux, au calme, proposant de beaux volumes de vie, et 3 grandes chambres. À 10 min à l'Est de Bergerac, Prigonrieux est reconnu pour la qualité de ses services de proximité. Dans un quartier résidentiel recherché pour sa tranquilité, avec les commerces et écoles accessibles à pied. Emplacement rare, dans une impasse, et attenant à une parcelle communale d'espace vert. Jardin clos et portail, pas de vis-à-vis. Cette maison a été construite en 1977, sa structure est saine, sur un vide sanitaire. Surface habitable de 100 m², ainsi répartis : - entrée spacieuse 8 m² - une pièce de vie lumineuse de 30 m², avec cheminée - 3 chambres de 13,14, 50 et 13 m² - cuisine séparée de 13 m² - salle d'eau et WC indépendant - plusieurs grands placards de rangements Une terrasse couverte par une pergola récente, en bois, complète le bien. Un jardin d'environ 650 m², joliement arboré, vous permettra de profiter de l'extérieur. Il dispose d'un carport 1 place. La maison est reliée au réseau d'assainissement collectif. Toiture saine et nettoyée récement. Fibre prochainement raccordable. Il faudra envisager une rénovation complète de cette maison : électricité, menuiseries, isolation, système de chauffage, peinture, sols. Des aides de l'état ou pour un crédit sont envisageables selon votre situation. Photos avec proposition d'aménagement dans l'annonce. Une visite vous permettra de comprendre tout le potentiel de cette maison ! Un contact par téléphone sera le plus rapide. Les honoraires d'agence sont à la charge de l'acquéreur, soit 6,13% TTC du prix hors honoraires. Les informations sur les risques auxquels ce bien est exposé sont disponibles sur le site Géorisques : www. georisques. gouv. fr. Réseau Immobilier CAPIFRANCE - Votre agent commercial (RSAC N°514 139 062 - Greffe de BERGERAC) Natacha BOUBEKEUR Entrepreneur Individuel 06 12 13 37 89 - Réf. 886965.

Maison 4 pièces 175000 €
175 000 €

Maison 4 pièces 84 m²

Prigonrieux (24130)

À construire : à quelques kilomètres de Bergerac, à Prigonrieux (24130), venez découvrir cette maison de 4 pièces de plain-pied de 84 m². Elle comporte trois chambres, une cuisine et une salles de bains, salon séjour et garage de 15 m²Cette maison sera aux normes RE2020 en contrat CCMI, le contrat qui vous apporte la sécurité d'une maison faite dans les règles de l'art avec une garantie de livraison, délai respecté etc. Avec les maisons MCA vous bénéficierez aussi d'un espace personnalisé pour le suivi et échanges avec tous les intermédiaires de votre chantier. Son prix de vente est de 175000 €, terrain, maison en PAD, hors frais de viabilisation et adaptation. Contactez notre agent local (DURAND Benoit : O6-65-85-53-20) pour tout renseignement sur cette maison ou sur les modalités de vente. Avec les maisons MCA, faites bâtir votre maison avec l'un des acteurs les plus solides du marché et une des meilleures cotation banque de France, indice de fiabilité et pérennité. Nous sommes là aujourd'hui, et nous le serons demain. Idée de réalisation en modèle prêt à décorer sur l'un de nos terrains partenaires, sous réserve de disponibilités. Voir détails en agence. Les informations sur les risques auxquels ce bien est exposé sont disponibles sur le site Géorisques : .