Logo LSI sombre

Maison 1 Pièce 120 m² à vendre à Pau (64000)
Photo N° 2
Photo N° 3
Photo N° 4
4

Vente maison 1 pièce 120 m² Pau (64000)

155 150 €

Grange de 1 pièces principales

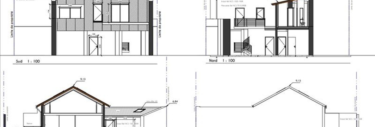
Fort potentiel pour cette grange en plein centre ville de Pau, située au calme en fond de cour. Le projet consiste en la rénovation et la création de deux logements de type T3 en duplex d'une superficie de 57 m² chacun. Un espace de parking et des caves seront en RDC. Dossier de permis de construire a été déposé avec avis favorable. Honoraires inclus dans le prix : 7%.

Caractéristiques

Les plus de cette annonce
  • Parking
  • Cave
  • Calme
Pièces
  • 1 pièce
Superficies
  • Surface habitable : 120 m²
Etage
  • Duplex

Consommation énergétique et gaz à effet de serre

Bilan énergétique (DPE)
NC
Bilan gaz à effet de serre (GES)
NC

Géorisques

Les informations sur les risques auxquels ce bien est exposé sont disponibles sur le site Géorisques : www.georisques.gouv.fr

À propos de la copropriété

  • Nombre de lots de la copropriété : 4

A propos du prix de cette maison

  • Prix : 155 150 € (soit 1 293 € / m²)
  • Prix hors honoraires acquéreur : 145 000 €

À propos de cette annonce

Mise en ligne:

Dernière mise à jour:

Référence de l'annonce: 551-153
Human Immobilier - PAU
Afficher le numéro

À voir pour le même budget

Maison 4 pièces 169000 €
169 000 €

Maison 4 pièces 74 m²

Pau (64000)

Iad France - Freddy Vandeput vous propose : Le confort d’une maison non mitoyenne, au prix d’un appartement en ville. Maison de ville non mitoyenne de 74 m² loi Carrez, soit plus de 80 m² sur 2 niveaux, idéale pour un 1er achat ou un investissement locatif, proche centre-ville & université (bus / commerces). RDC : cuisine équipée, coin repas, séjour et WC. Étage : 2 chambres + un grand bureau pouvant faire office de chambre d’enfant, salle d’eau, 2e WC. Pas de travaux à prévoir, double vitrage, chaudière à condensation (02 / 2023), parquets refaits (06 / 2023). Stationnement gratuit dans la rue. Visite virtuelle disponible. Appelez-moi pour que nous voyions ensemble si ce bien correspond à votre projet. Honoraires d'agence à la charge du vendeur. Information d'affichage énergétique sur ce bien : classe ENERGIE D indice 168 et classe CLIMAT D indice 36. Les informations sur les risques auxquels ce bien est exposé, y compris l'obligation légale de débroussaillement, sont disponibles sur le site Géorisques : La présente annonce immobilière a été rédigée sous la responsabilité éditoriale de M Freddy Vandeput mandataire indépendant en immobilier (sans détention de fonds), agent commercial de la SAS I@D France immatriculé au RSAC de PAU sous le numéro 422678680, titulaire de la carte de démarchage immobilier pour le compte de la société I@D France SAS.

Maison 3 pièces 172000 €
172 000 €
-5 %

Maison 3 pièces 60 m²

Pau (64000)

Pau maison mitoyenne recente avec jardin : entrée grand séjour lumineux avec baie ouvrant sur terrasse et jardin clos sans vis-à-vis, 2 chambres avec gds placards et vue jardin, 1 salle d'eau moderne, 1 cellier, 2 parkings sécurisés, calme, sans vis è vis, proche toutes commodités. Copropriété de 36 lots - dont 12 lots habitation. (pas de procédure en cours). Charges annuelles : 591.00 euros.

Maison 4 pièces 171000 €
171 000 €

Maison 4 pièces 119 m²

Buros (64160)

Maison de caractère à rénover, idéale pour projet familial ou investissement, proche d'une école. Datant de 1900, cette propriété de 119.48 m² offre un fort potentiel : 3 chambres, 1 séjour, combles aménageables qui permettent d'imaginer une belle maison principale et des dépendances offrant un vrai potentiel. Grand jardin et grande parcelle, parfaits pour les amateurs d'extérieur, plus parking intérieur et extérieur pour faciliter le stationnement. Située dans un secteur calme et recherché, cette bâtisse offre de belles possibilités de transformation grâce à ses volumes et ses annexes — un vrai potentiel pour créer des espaces contemporains tout en conservant le charme de l'ancien. État général : à rénover (travaux à prévoir). Prix demandé : 171 000 EUR. Ne manquez pas cette opportunité rare d'investir dans une propriété avec dépendances et grand terrain, proche des commodités et d'une école et crèche. Contactez-nous pour plus d'informations ou pour organiser une visite. Référence agence : 1939.

Maison 3 pièces 182000 €
182 000 €

Maison 3 pièces 62 m²

Billère (64140)

Située sur la commune recherchée de Billère, cette maison offre un beau potentiel de rénovation et d'agrandissement sur une grande parcelle de terrain. Sur un terrain plat d'environ 1 054 m², vous trouverez une maison existante d'environ 60 m², entièrement à rénover, ainsi qu'un agrandissement déjà construit mais à terminer, permettant d'envisager une surface habitable nettement plus importante selon votre projet. La parcelle bénéficie d'un CU positif, offrant des perspectives intéressantes pour un projet d'habitation principale, d'investissement ou de construction personnalisée. Idéal pour : Bricoleurs, investisseurs ou particuliers souhaitant créer une maison sur mesure dans un environnement agréable, proche des commodités. (7.06 % d'honoraires TTC à la charge de l'acquéreur.).

Maison 4 pièces 160000 €
160 000 €
-7 %

Maison 4 pièces 139 m²

Pau (64000)

10 min. de PAU, sur la commune d'ARESSY - Découvrez cette belle béarnaise à rénover de 1850 érigée sur un terrain d'environ 760 m². Cette maison se compose au rez-de-chaussée d'une pièce de vie avec cheminée, une salle à manger, une cuisine, une buanderie, une salle de bains et une chambre. L'étage offre un palier qui dessert 2 chambres et un bureau. À l'extérieur, profitez d'un jardin verdoyant, clôturé et arboré. De plus, vous trouverez deux garages de 17 m² et 41 m². Gros travaux à prévoir : Système de chauffage, menuiserie, électricité, plomberie, cuisine, salle d'eau, sol, mur. Possibilité de séparer une partie du terrain pour une nouvelle construction. Une propriété pleine de potentiel vous attend. Visite virtuelle sur demande.

Maison 6 pièces 170000 €
170 000 €

Maison 6 pièces 165 m²

Morlaàs (64160)

Iad France - Benoit Poeymiroo vous propose : * Ensemble immobilier à rénover - 165 m² hab. - 820 m² de Terrain - Morlaàs * Situé au coeur de Morlaàs, venez découvrir cet ensemble immobilier à rénover comprenant : - une maison d'habitation de 110 m² de 4 pièces sur 2 niveaux. - trois annexes (dont une a servi de bureau) en enfilade. - un grand hangar - une maison de 55 m², indépendante et aménagée en bureau La localisation, au cOEur de Morlaàs, vous permet de profiter de la tranquillité d'une vie de village tout en étant à proximité des commodités et des points d'intérêt de la commune. Cet ensemble immobilier à rénover est une véritable opportunité pour vous, les investisseurs et les amateurs de travaux et de projets de rénovation. Laissez libre cours à votre imagination pour faire de cette propriété un lieu de vie unique et harmonieux. Contactez-moi dès maintenant pour planifier une visite et découvrir le potentiel de ce lieu à Morlaàs. Honoraires d'agence à la charge du vendeur. Information d'affichage énergétique sur ce bien : classe ENERGIE F indice 371 et classe CLIMAT C indice 12. Les informations sur les risques auxquels ce bien est exposé, y compris l'obligation légale de débroussaillement, sont disponibles sur le site Géorisques : La présente annonce immobilière a été rédigée sous la responsabilité éditoriale de M Benoit Poeymiroo mandataire indépendant en immobilier (sans détention de fonds), agent commercial de la SAS I@D France immatriculé au RSAC de PAU sous le numéro 979027968, titulaire de la carte de démarchage immobilier pour le compte de la société I@D France SAS.