Logo LSI sombre

Local industriel 2 Pièces 709 m² à vendre à Rillieux-la-Pape (69140)
Photo N° 2
Photo N° 3
Photo N° 4
Photo N° 5
Photo N° 6
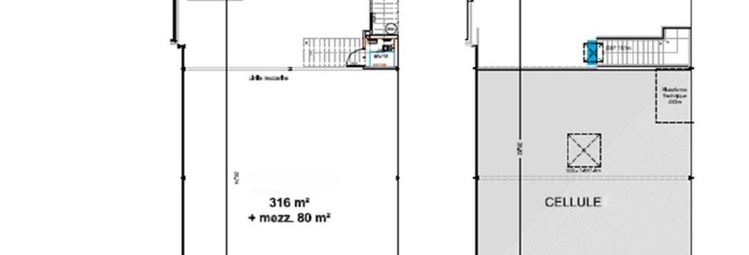
6

Vente local industriel 2 pièces 709 m² Rillieux-la-Pape (69140)

1 388 706 €

Locaux d’activités neufs à vendre – Rillieux-la-Pape (69)

Situé dans un secteur économique dynamique de la première couronne de l'est-lyonnaise, sur la commune de rillieux-la-pape au sein du parc d'activité innovespace, nous proposons à la vente des locaux d'activités, fonctionnels et évolutifs, adaptés aussi bien aux utilisateurs finaux qu'aux investisseurs à la recherche d'actifs de qualité. Innovespace est un parc d'activité comprenant des locaux avec mezzanine offrant un potentiel d'aménagement supplémentaire, ainsi que des stationnements privatifs. Les bâtiments bénéficient de prestations techniques de qualité répondant aux standards actuels des locaux d'activités et de logistique urbaine. Prestations principales : hauteur libre importante – portes sectionnelles – accès plain-pied – site clos et sécurisé – voiries lourdes – raccordements complets accessibilité : accès rapide a46 / a42 – transports en commun à proximité – gare sncf – aéroport à 25 min livraison 1er trimestre 2027 surfaces disponibles : de 230 m² à 2 439 m² (activité + mezzanine) prix de vente : à partir de 425 000 € ht parkings inclus dossier complet, plans et conditions sur demande. Opportunité rare sur le secteur est lyonnais pour implanter ou développer votre activité – contactez-nous pour plus d'informations. Les honoraires sont partagés entre acquéreur et vendeur, les honoraires à la charge de l'acquéreur sont de 3,60% ttc du prix hors honoraires. Les informations sur les risques auxquels ce bien est exposé sont disponibles sur le site géorisques : www. Georisques. Gouv. Fr. Réseau immobilier capifrance - votre agent commercial (rsac n°503 204 471 - greffe de bourg en bresse) georges candelier entrepreneur individuel 06 61 45 88 35 - réf. 940617.

Caractéristiques

Les plus de cette annonce
  • Parking
Pièces
  • 2 pièces
Superficies
  • Surface habitable : 709 m²

Consommation énergétique et gaz à effet de serre

Bilan énergétique (DPE)
NC
Bilan gaz à effet de serre (GES)
NC

Géorisques

Les informations sur les risques auxquels ce bien est exposé sont disponibles sur le site Géorisques : www.georisques.gouv.fr

A propos du prix de ce local industriel

  • Prix : 1 388 706 € (soit 1 959 € / m²)

À propos de cette annonce

Mise en ligne:

Dernière mise à jour:

Référence de l'annonce: 340931350578
Capifrance agent mandataire à Castelnau-le-Lez (34170)
Capifrance
Afficher le numéro