
Rhône : les ventes immobilières repartent, les prix restent sous pression
Le marché immobilier du Rhône montre des signes de reprise avec une hausse des ventes, mais les prix restent sous pression. Décryptage d’un marché en phase de rééquilibrage.
13 résultats
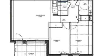
Iad France - Audrey Moulin vous propose : À La Tronche, T3 de 58 m² traversant, Grande Cave, Balcon. Garage en sus. Avenue de l’Obiou (ancien chemin de la Grenouille), à deux pas du relais tram Grand-Sablon et de l’Hôpital Michallon, à côté de la faculté de médecine. Découvrez ce charmant T3 traversant de 58 m² situé en rez-de-chaussée surélevé. L’appartement séduit dès l’entrée par sa luminosité et son atmosphère chaleureuse. La pièce de vie de 18,46 m², baignée de soleil, s’ouvre sur une cuisine indépendante d’environ 8 m² avec la possibilité d’en faire un bel espace ouvert d'environ 27 m². L’espace nuit comprend deux chambres confortables de 10,44 m² et 12,66 m²(grands placards). Une entrée avec rangements. une salle de bain avec rangements et WC. Le parquet massif présent dans les pièces de vie et les chambres apporte un cachet indéniable à l’ensemble. Le balcon exposé plein Sud, offrant une vue dégagée sur les montagnes, le Vercors et les Trois tours emblématiques de Grenoble. L’exposition traversante garantit clarté et ensoleillement tout au long de la journée, sans vis-à-vis. Les prestations sont soignées : double vitrage PVC (hors cuisine), chauffage individuel au gaz de ville, eau chaude instantanée et fibre déployée. L’appartement est en très bon état général et agréable à vivre au quotidien. Les éléments de cuisine peuvent être à améliorer. En complément, une cave spacieuse d’environ 9 m² offre un bel espace de stockage et accessible par rampe pour les vélos. La copropriété dispose également d’espaces communs pratiques, avec notamment des étendages grand format et des aménagements favorisant le confort des résidents dans un cadre verdoyant. Elle est équipé de Digicode et interphone. 21 lots, très peu de turnover, ambiance conviviale avec un espace vert collectif, banc, barbecue entre voisins et local vélo Un garage fermé de 16,43 m² est proposé en sus, avec possibilité de stationnement devant, un véritable atout dans le secteur. Taxe foncière 2025 : 1 322 euros Charges de copropriété : 170 euros par trimestre (environ 56 euros par mois) comprenant les espaces verts, l'entretien de la montée, l'eau du jardin ainsi que les charges de gestion. Vous payez que ce que vous consommez ! Idéal pour investisseur également ! L’emplacement est idéal : accès au tram B et au parking relais en une minute, proximité immédiate des commerces, des axes autoroutiers, du centre-ville de Grenoble et des quartiers recherchés comme l’Île Verte. Un cadre de vie privilégié, alliant praticité, calme et vue exceptionnelle. La presente annonce immobiliere vise 3 lots situés dans une copropriété de 21 lots au total et ne faisant l'objet d'aucune procédure en cours citée à l'article L. 721-1 du code de la construction et de l'habitation. Montant moyen mensuel de charges déclaré par le vendeur : 56.67€ par mois (soit 680 € annuel). Honoraires d'agence à la charge du vendeur. Information d'affichage énergétique sur ce bien : classe ENERGIE E indice 300 et classe CLIMAT E indice 66. Les informations sur les risques auxquels ce bien est exposé, y compris l'obligation légale de débroussaillement, sont disponibles sur le site Géorisques : La présente annonce immobilière a été rédigée sous la responsabilité éditoriale de Mme Audrey Moulin mandataire indépendant en immobilier (sans détention de fonds), agent commercial de la SAS I@D France immatriculé au RSAC de GRENOBLE sous le numéro 950741793, titulaire de la carte de démarchage immobilier pour le compte de la société I@D France SAS.
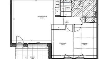
Chez comptoir immobilier : idéal premier logement ou investisseurs situé avenue de l'obiou à la tronche, à 50m du tram (grand sablon), à 2 arrêt du campus et du chu, à deux 2min de grenoble centre-ville, corenc et meylan, à 10 min de crolles et montbonnot proche de toutes les commodités dans un immeuble sécurisé et bien entretenu de 1960 comprenant un parking collectif et une cave de 12 m² avec électricité. Venez découvrir ce lumineux appartement t4 de 81 m² traversant nord-sud, au 3ème étage avec ascenseur en demi-pallier sans vis à vis et sans travaux à effectuer. Il se compose d'un hall d'entrée de 8 m², d'une cuisine séparée et équipée de 8 m², d'un séjour / salle à manger de 28 m² donnant sur un balcon, de trois chambres allant de 10 et 12 m², d'une salle d'eau et d'un wc séparé. Son balcon offrant une vue dégagée sur les massifs finira de vous charmer ! Porte blindée / taxe foncière : 1350eur / double vitrage / chaudière gaz / climatisation de 2023 / fibre installée / charges annuelles de copropriété 1060eur / honoraires charge vendeur / dpe : d / montant estimé des dépenses annuelles d'énergie pour un usage standard : entre 1400eur et 2000eur par an. Besoin de plus d'informations, d'une estimmation gratuite ou de conseils ? => contactez titouan nicolas au 06 67 58 83 30 - cette annonce vous est proposée par m. Titouan nicolas - ei - norsac : 889 187 969, enregistré au greffe du tribunal de commerce de grenoble comptoir immobilier de france - plus d'informations sur cif-immo. Com - « les informations sur les risques auxquels ce bien est exposé sont disponibles sur le site géorisques : ».
LA TRONCHE – Rue Doyen Gosse | Appartement 5 pièces – 3 chambres Dans un secteur très recherché de La Tronche, à proximité immédiate des commerces, écoles, services et du tramway, découvrez cet appartement traversant situé au 3ᵉ étage d'un immeuble récemment ravalé avec isolation thermique. L'appartement se compose d'un double séjour lumineux, de trois chambres, d'une cuisine fonctionnelle et bénéficie de deux balcons offrant de jolies vues dégagées sur les massifs de Belledonne et de la Chartreuse. Son exposition traversante garantit une belle luminosité tout au long de la journée. Confort et sécurité sont au rendez-vous grâce à une chaudière individuelle au gaz, une porte d'entrée blindée. Une cave vient compléter ce bien. À seulement deux arrêts de tram du campus universitaire, cet appartement conviendra aussi bien à une famille qu'à un projet d'investissement locatif. Ses points forts : Emplacement privilégié Traversant et lumineux 3 chambres Double séjour Deux extérieurs Vues sur les massifs Charges faibles Immeuble avec une isolation thermique Cave Une opportunité rare sur le secteur ! À saisir rapidement ! Nombre de lots de la copropriété : 32, Montant moyen annuel de la quote-part de charges (budget prévisionnel)(entretien, fonds travaux, assurance immeuble) : 867€ soit 72€ par mois, avec Syndic Bénévole. Les honoraires sont à la charge du vendeur. Les informations sur les risques auxquels ce bien est exposé sont disponibles sur le site Géorisques : www. georisques. gouv. fr. Réseau Immobilier CAPIFRANCE - Votre agent commercial (RSAC N°483 825 048 - Greffe de GRENOBLE) Cécile CEYTE Entrepreneur Individuel 06 84 90 15 31 - Réf. 929945.
Nichée au sein d'un quartier résidentiel paisible de la commune de La Tronche, cette nouvelle résidence jouit d'une position privilégiée au pied des massifs de la Chartreuse, offrant des vues époustouflantes sur les montagnes environnantes et s'inscrivant dans un cadre villageois charmant. L'établissement se distingue par son architecture traditionnelle, mêlant habilement le bois et des enduits colorés sur ses façades, se fondant ainsi harmonieusement dans son environnement naturel. Elle offre une gamme d'appartements neufs, variant du deux au cinq pièces, chacun caractérisé par un agencement intérieur soigneusement conçu, des volumes généreux bien orientés pour maximiser la lumière naturelle. Les appartements sont dotés d'équipements haut de gamme, incluant une sélection de revêtements de sol de qualité, des volets roulants électriques, un local à vélos, un accès sécurisé par badge, un visiophone, et des portes d'entrée renforcées. Chaque logement bénéficie également d'un espace extérieur des plus agréables, avec des terrasses ou des balcons qui, pour la plupart, offrent une vue imprenable sur les paysages montagneux. Ces espaces sont idéaux pour des moments de convivialité en famille ou entre amis, en pleine nature. Découvrez également nos 98 autres résidences dans le 38 : Rendez-vous dans notre Agence Médicis Immobilier Neuf, 73 avenue de la république, Seyssinet-Pariset 38170. Les informations sur les risques auxquels ce bien est exposé sont disponibles sur le site Géorisques : .

Recevez en temps réel les dernières annonces correspondant à votre recherche
Iad france - marie-rose gilles (06 98 85 33 80) vous propose : a saisir, très beau t3 neuf livré d'ici la fin de l'année 2025 et profitez des frais de notaire réduis (environ 2,5%). Le logement est éligible au prêt à taux zéro. La résidence, intimiste à l’architecture moderne et élégante, offre un cadre de vie paisible et privilégié. Prestations haut de gamme : · espaces lumineux avec grandes ouvertures · grande terrasse · chauffage au sol, volets roulants électriques, visiophone · résidence sécurisée avec portail automatisé · local à vélos & bornes pour véhicules électriques emplacement idéal : · à 10 min du centre-ville de grenoble (tram b & bus) · proche des commerces, écoles, universités et chu grenoble · cadre verdoyant au pied du parc de la chartreuse prix du garage en sous-sol en sus du prix : 20 000€ investisseurs : loyer prévisionnel en pinel 2023 : 769,83€ loyer marché : 770€ contactez moi pour toute information complémentaire et visite. Honoraires d’agence à la charge du vendeur. Bien non soumis au dpe. Les informations sur les risques auxquels ce bien est exposé sont disponibles sur le site géorisques : . La présente annonce immobilière a été rédigée sous la responsabilité éditoriale de mlle marie-rose gilles ei (id 83761), mandataire indépendant en immobilier (sans détention de fonds), agent commercial de la sas i@d france immatriculé au rsac de grenoble sous le numéro 478110612, titulaire de la carte de démarchage immobilier pour le compte de la société i@d france sas. Retrouvez tous nos biens sur notre site internet. .
Iad france - marie-rose gilles (06 98 85 33 80) vous propose : a saisir, très beau t3 neuf livré d'ici la fin de l'année 2025 et profitez des frais de notaire réduis (environ 2,5%). Le logement est éligible au prêt à taux zéro. La résidence, intimiste à l’architecture moderne et élégante, offre un cadre de vie paisible et privilégié. Prestations haut de gamme : · espaces lumineux avec grandes ouvertures · grande terrasse · chauffage au sol, volets roulants électriques, visiophone · résidence sécurisée avec portail automatisé · local à vélos & bornes pour véhicules électriques emplacement idéal : · à 10 min du centre-ville de grenoble (tram b & bus) · proche des commerces, écoles, universités et chu grenoble · cadre verdoyant au pied du parc de la chartreuse prix du garage en sous-sol en sus du prix : 20 000€ investisseurs : loyer prévisionnel en pinel 2023 : 769,83€ loyer marché : 760€ contactez moi pour toute information complémentaire et visite. Honoraires d’agence à la charge du vendeur. Bien non soumis au dpe. Les informations sur les risques auxquels ce bien est exposé sont disponibles sur le site géorisques : . La présente annonce immobilière a été rédigée sous la responsabilité éditoriale de mlle marie-rose gilles ei (id 83761), mandataire indépendant en immobilier (sans détention de fonds), agent commercial de la sas i@d france immatriculé au rsac de grenoble sous le numéro 478110612, titulaire de la carte de démarchage immobilier pour le compte de la société i@d france sas. Retrouvez tous nos biens sur notre site internet. .
Iad france - marie-rose gilles (06 98 85 33 80) vous propose : a saisir, très beau t3 neuf livré d'ici la fin de l'année 2025 et profitez des frais de notaire réduis (environ 2,5%). Le logement est éligible au prêt à taux zéro. La résidence, intimiste à l’architecture moderne et élégante, offre un cadre de vie paisible et privilégié. Prestations haut de gamme : · espaces lumineux avec grandes ouvertures · grande terrasse · chauffage au sol, volets roulants électriques, visiophone · résidence sécurisée avec portail automatisé · local à vélos & bornes pour véhicules électriques emplacement idéal : · à 10 min du centre-ville de grenoble (tram b & bus) · proche des commerces, écoles, universités et chu grenoble · cadre verdoyant au pied du parc de la chartreuse prix du garage en sous-sol en sus du prix : 20 000€ investisseurs : loyer prévisionnel en pinel 2023 : 738,23€ loyer marché : 700€ contactez moi pour toute information complémentaire et visite. Honoraires d’agence à la charge du vendeur. Bien non soumis au dpe. Les informations sur les risques auxquels ce bien est exposé sont disponibles sur le site géorisques : . La présente annonce immobilière a été rédigée sous la responsabilité éditoriale de mlle marie-rose gilles ei (id 83761), mandataire indépendant en immobilier (sans détention de fonds), agent commercial de la sas i@d france immatriculé au rsac de grenoble sous le numéro 478110612, titulaire de la carte de démarchage immobilier pour le compte de la société i@d france sas. Retrouvez tous nos biens sur notre site internet. .
LA TRONCHE - Rue du Vercors - Idéalement placé à proximité immédiate du CHU et au pied du tramway (Grands Sablons).Spécial investisseur, appartement de 2 pièces avec coin cuisine au 4ème et dernier étage sans ascenseur, exposé SUD avec belle vue dégagée. Vendu loué à 533.03 hors charges / mois. D'une superficie de 37.35 m², il est composé d'un hall d'entrée qui dessert la salle d'eau, les toilettes séparées et la pièce à vivre. Il comprend également un coin cuisine aménagé ouvert sur le séjour, la chambre, le dressing, et le balcon. Le chauffage, et l'eau chaude sont individuels électriques, et l'eau froide est également individuelle. En dépendance : une cave en sous-sol.
LA TRONCHE, Résidence Villa Hermione de 2012 située dans un écrin de verdure au calme, agréable 3P + C de 67,91 m² au premier étage. Il est composé d'une pièce de vie avec cuisine ouverte ouvrant sur une belle terrasse avec une vue pleine nature, d'un coin nuit desservant 2 chambres, salle de bains. Cet appartement offre des prestations de qualité (chauffage individuel au sol basse température, menuiseries alu, BSO motorisé sur baie du séjour, parquet dans les chambres). Il bénéficie d'une cave et un garage avec porte motorisée en annexes. Garage à vélos.
À la recherche d'un confort de vie exceptionnel et privilégié ? la résidence de standing s'implante dans un environnement paisible et verdoyant tout en étant à proximité des commodités ! Ses appartements du T1 au T4 aux prestations raffinées, vous proposent des volumes intérieurs et extérieurs généreux avec des vues imprenables sur le coeur d'îlot arboré et sur les massifs environnants. Renseignements sur les lots et plans : Laetitia MENDUNI 06 74 79 22 31 / laetitia.menduni@novalim.fr DPE en cours. Les informations sur les risques auxquels ce bien est exposé sont disponibles sur le site Géorisques : georisques. gouv. fr.
À la recherche d'un confort de vie exceptionnel et privilégié ? la résidence de standing s'implante dans un environnement paisible et verdoyant tout en étant à proximité des commodités ! Ses appartements du T1 au T4 aux prestations raffinées, vous proposent des volumes intérieurs et extérieurs généreux avec des vues imprenables sur le coeur d'îlot arboré et sur les massifs environnants. Renseignements sur tous lesvlots et plans : Laetitia MENDUNI 06 74 79 22 31 / laetitia.menduni@novalim.fr DPE en cours. Les informations sur les risques auxquels ce bien est exposé sont disponibles sur le site Géorisques : georisques. gouv. fr.
À la recherche d'un confort de vie exceptionnel et privilégié ? la résidence de standing s'implante dans un environnement paisible et verdoyant tout en étant à proximité des commodités ! Ses appartements du T1 au T4 aux prestations raffinées, vous proposent des volumes intérieurs et extérieurs généreux avec des vues imprenables sur le coeur d'îlot arboré et sur les massifs environnants. Renseignements sur tous lesvlots et plans : Laetitia MENDUNI 06 74 79 22 31 / laetitia.menduni@novalim.fr DPE en cours. Les informations sur les risques auxquels ce bien est exposé sont disponibles sur le site Géorisques : georisques. gouv. fr.
À la recherche d'un confort de vie exceptionnel et privilégié ? la résidence de standing s'implante dans un environnement paisible et verdoyant tout en étant à proximité des commodités ! Ses appartements du T1 au T4 aux prestations raffinées, vous proposent des volumes intérieurs et extérieurs généreux avec des vues imprenables sur le coeur d'îlot arboré et sur les massifs environnants. Renseignements sur tous lesvlots et plans : Laetitia MENDUNI 06 74 79 22 31 / laetitia.menduni@novalim.fr DPE en cours. Les informations sur les risques auxquels ce bien est exposé sont disponibles sur le site Géorisques : georisques. gouv. fr.
Autres annonces à proximité de La Tronche (38700) avec vos critères
La résidence LE CARRARE bénéficie d'une situation exceptionnelle dans le quartier de l'Île Verte, offrant un accès direct aux commodités, aux transports en commun et aux espaces verts. Vous apprécierez la qualité de vie dans ce quartier recherché, à la fois calme et dynamique. La résidence est intimiste avec seulement 8 appartements. Tous équipés d'une pompe à chaleur (PAC) avec plancher chauffant / rafraîchissant, ils assurent un confort thermique optimal en toute saison. Pour encore plus de confort en été, les fenêtres sont dotées d'occultations par brise-soleil orientables (BSO) motorisés, système moderne permettant de réguler la luminosité et la température intérieure, tout en préservant l'intimité intérieure. Côté pratique, chaque logement dispose d'un local à vélos privatif sur le palier d'étage, facilitant ainsi leur rangement. Visites sur rendez-vous. Emménagement immédiat ! Les informations sur les risques auxquels ce bien est exposé sont disponibles sur le site Géorisques : .
Appartement 5 pièces de 89 m² sans vis-à-vis avec vue imprenable sur le massif de Belledonne. Au 4ème étage (sans ascenseur) d’un immeuble classé idéalement situé, ce lot de 2 appartements offre un projet 3 en 1 : 1. Création d’un T5 en ouvrant les 2 appartements (usage d’origine avec ouverture existante), 2. Location de 2 appartements indépendants en T2 et T3 (usage actuel, belle rentabilité), 3. Occupation d'un lot en résidence principale et location du second. Il comprend : - un T3 de 56 m² loi Carrez composé d’une pièce de vie de 29 m² avec séjour et cuisine ouverte équipée (plaque, hotte, four), de 2 chambres de 8,5 et 9 m² avec placard, d’une salle de bains de 3,4 m²et de WC indépendants. - un T2 de 33 m² loi Carrez composé d’un séjour de 16,4 m² avec kitchenette équipée, d’une chambre de 8,5 m² avec placard et d’une salle de bains de 4 m² avec WC. Les 2 appartements sont ouvrables pour une superficie globale 88,99 m². Côté équipement, le T3 bénéficie d'un système de chauffage par chaudière individuelle gaz à condensation et le T2 d’un système de chauffage individuel électrique par radiateur avec robinets thermostatiques, le tout garantissant un confort et une température idéale tout au long de l’année En outre, les appartements sont équipés d’un double vitrage PVC et de ballons d’eau chaude de 150 litres. Faibles charges de copropriété : 722€ / an. Pas de garage ou parking mais 2 caves près de 2 m² chacune complètent ce bien. Situé rue Saint-Laurent, l’emplacement donne accès à toutes les commodités. BELLE RENTABILITÉ - Possibilité de vente meublée et équipée. - T3 loué 935€ / mois (eau et électricité non compris) avec possibilité d’augmentation à 1000€ / mois car loyer bloqué depuis 3 ans. Libre. - T2 loué 690€ / mois (eau et électricité non compris). Bail en cours jusqu'au 15 / 10 / 2026 mais possible de sortie avant fin de bail. Présenté par imkiz, l'agence en ligne 100% proche de vous. Honoraires inclus dans le prix de vente, dès 2490 €.
Iad france - martin bondis vous propose : appartement t2 de 44 m² rénové – quartier saint-laurent – idéal premier achat venez découvrir ce charmant appartement t2 de 44 m², situé au 3ᵉ étage d’un immeuble ancien datant de 1850, au coeur du quartier saint-laurent, l’un des secteurs les plus recherchés de grenoble. Implanté dans un environnement calme, tout en bénéficiant de la proximité immédiate de l’hyper-centre, des commerces, transports et activités culturelles, ce bien constitue une opportunité idéale pour un premier achat. Il se compose de : une entrée un séjour lumineux avec cuisine ouverte une chambre une salle d’eau avec wc les atouts : emplacement privilégié : hyper-centre, commerces et commodités à proximité appartement rénové et bien entretenu fort potentiel locatif dpe : c local vélo sécurisé informations complémentaires : taxe foncière : 954 € charges de copropriété : 53€ / mois contactez-moi vite pour organiser votre visite ! La presente annonce immobiliere vise 1 lot situé dans une copropriété de 53 lots au total et ne faisant l'objet d'aucune procédure en cours citée à l'article l. 721-1 du code de la construction et de l'habitation. Montant moyen mensuel de charges déclaré par le vendeur : 53€ par mois (soit 636 € annuel). Honoraires d'agence à la charge du vendeur. Information d'affichage énergétique sur ce bien : classe energie c indice 148 et classe climat a indice 5. Les informations sur les risques auxquels ce bien est exposé, y compris l'obligation légale de débroussaillement, sont disponibles sur le site géorisques : la présente annonce immobilière a été rédigée sous la responsabilité éditoriale de m martin bondis mandataire indépendant en immobilier (sans détention de fonds), agent commercial de la sas i@d france immatriculé au rsac de grenoble sous le numéro 879346104, titulaire de la carte de démarchage immobilier pour le compte de la société i@d france sas.
Iad France - Clément FAURE vous propose : Opportunité à Saisir - Idéal investisseur ou résidence principale ! Appartement 4 Pièces à Rénover à Meylan : rue du Pré d'Elle Visite virtuelle disponible ! Cet appartement de 66.74 m², situé au 5ème étage d'une résidence de 1969 à Meylan, offre un beau potentiel pour créer un espace de vie personnalisé selon vos goûts et besoins. L'appartement se compose de 3 chambres avec placards intégrés, d'une salle d'eau, d'un WC séparé, d'une cuisine séparée et d'un salon-séjour à réaménager selon vos envies. Ce bien étant traversant, assure une belle luminosité tout au long de la journée. Vous bénéficierez d'une cave pour du rangement supplémentaire. Des travaux de rénovation sont à prévoir pour mettre ce bien au goût du jour. Situé à Meylan, vous serez à proximité des commodités, des écoles, des transports en commun et des espaces verts, offrant un cadre de vie agréable. Cette propriété est une opportunité rare pour les bricoleurs et les investisseurs cherchant à réaliser un projet de rénovation et à créer un espace de vie unique et personnalisé. Ne passez pas à côté de cette occasion unique. La presente annonce immobiliere vise 2 lots situés dans une copropriété de 168 lots au total et ne faisant l'objet d'aucune procédure en cours citée à l'article L. 721-1 du code de la construction et de l'habitation. Montant moyen mensuel de charges déclaré par le vendeur : 85€ par mois (soit 1020 € annuel). Honoraires d'agence à la charge du vendeur. Information d'affichage énergétique sur ce bien : classe ENERGIE E indice 244 et classe CLIMAT E indice 53. Les informations sur les risques auxquels ce bien est exposé, y compris l'obligation légale de débroussaillement, sont disponibles sur le site Géorisques : La présente annonce immobilière a été rédigée sous la responsabilité éditoriale de M Clément FAURE mandataire indépendant en immobilier (sans détention de fonds), agent commercial de la SAS I@D France immatriculé au RSAC de GRENOBLE sous le numéro 838791663, titulaire de la carte de démarchage immobilier pour le compte de la société I@D France SAS.
Votre appartement 4 pièces pour 1 593 € / mois. Idéalement située au coeur de Meylan, dans le secteur recherché des Aiguinards, la résidence VILLA DES SOURCES bénéficie d'un environnement privilégié, à la fois urbain et entouré de nature. Depuis votre appartement, tout est accessible à pied : petits commerces (boulangerie, boucherie, poissonnerie, primeur, pharmacie, coiffeur, habillement, etc.), hypermarchés, établissements scolaires, services. De nombreux équipements sportifs (terrains de tennis et de pétanque, complexe multisports, grand parc. ) et culturels (bibliothèque, salle de spectacles l'Hexagone. ) combleront les plus actifs d'un grand choix d'activités de loisirs. À proximité immédiate du réseau de transports et des grands axes routiers, ce quartier à l'esprit village, apprécié pour sa convivialité et sa praticité, attire une population fidèle, soucieuse de préserver son cadre de vie tout en restant connectée à l'agglomération grenobloise. Les informations sur les risques auxquels ce bien est exposé sont disponibles sur le site Géorisques : .
Votre appartement 4 pièces pour 1 593 € / mois. Idéalement située au coeur de Meylan, dans le secteur recherché des Aiguinards, la résidence VILLA DES SOURCES bénéficie d'un environnement privilégié, à la fois urbain et entouré de nature. Depuis votre appartement, tout est accessible à pied : petits commerces (boulangerie, boucherie, poissonnerie, primeur, pharmacie, coiffeur, habillement, etc.), hypermarchés, établissements scolaires, services. De nombreux équipements sportifs (terrains de tennis et de pétanque, complexe multisports, grand parc. ) et culturels (bibliothèque, salle de spectacles l'Hexagone. ) combleront les plus actifs d'un grand choix d'activités de loisirs. À proximité immédiate du réseau de transports et des grands axes routiers, ce quartier à l'esprit village, apprécié pour sa convivialité et sa praticité, attire une population fidèle, soucieuse de préserver son cadre de vie tout en restant connectée à l'agglomération grenobloise. Les informations sur les risques auxquels ce bien est exposé sont disponibles sur le site Géorisques : .
Votre appartement 4 pièces pour 1 593 € / mois. Idéalement située au coeur de Meylan, dans le secteur recherché des Aiguinards, la résidence VILLA DES SOURCES bénéficie d'un environnement privilégié, à la fois urbain et entouré de nature. Depuis votre appartement, tout est accessible à pied : petits commerces (boulangerie, boucherie, poissonnerie, primeur, pharmacie, coiffeur, habillement, etc.), hypermarchés, établissements scolaires, services. De nombreux équipements sportifs (terrains de tennis et de pétanque, complexe multisports, grand parc. ) et culturels (bibliothèque, salle de spectacles l'Hexagone. ) combleront les plus actifs d'un grand choix d'activités de loisirs. À proximité immédiate du réseau de transports et des grands axes routiers, ce quartier à l'esprit village, apprécié pour sa convivialité et sa praticité, attire une population fidèle, soucieuse de préserver son cadre de vie tout en restant connectée à l'agglomération grenobloise. Les informations sur les risques auxquels ce bien est exposé sont disponibles sur le site Géorisques : .
Iad france - jessica sanfilippo vous propose : meylan – allée des saules / 3 chambres / appartement traversant - lumineux / ascenseur / balcon / cave / stationnement facile situé allée des saules à meylan, cet appartement t4 bénéficie d’un environnement agréable, à proximité des commodités, des transports et des axes principaux, tout en offrant un cadre de vie confortable et lumineux. Après avoir franchi la porte d’entrée, vous découvrirez une grande entrée de 6,59 m², permettant une circulation fluide entre les différentes pièces de l’appartement. Sur la droite, une cuisine séparée et équipée, avec un espace coin repas et une vue dégagée. En face, un séjour lumineux de 17,59 m², donnant accès à un balcon de 13,50 m², idéal pour profiter de l’extérieur. L’espace nuit se compose de trois chambres : - une première chambre spacieuse de 19,35 m², - une deuxième chambre de 12,37 m², - une troisième chambre de 12,08 m². Vous trouverez également une salle de bain de 3,88 m², un wc séparé, ainsi qu’un dressing de 3,70 m², offrant un espace de rangement appréciable. L’appartement est traversant, ce qui lui permet d'avoir une belle luminosité tout au long de la journée. Informations complémentaires : - chauffage gaz individuel (chaudière de 2023) - charges mensuelles : 106 € (incluant entretien de la chaudière, syndic, ménage, assurance…) - taxe foncière : 1 613 € / an - montant des travaux essentiels pour améliorer la note énergétique estimé entre '3304€ à 5207€' (cf dpe) pour plus de renseignements ou pour organiser une visite, contactez-moi. En cas d’indisponibilité, laissez-moi un message, de préférence par sms, je vous recontacterai. La presente annonce immobiliere vise 2 lots situés dans une copropriété de 72 lots au total et ne faisant l'objet d'aucune procédure en cours citée à l'article l. 721-1 du code de la construction et de l'habitation. Montant moyen mensuel de charges déclaré par le vendeur : 106€ par mois (soit 1272 € annuel). Honoraires d'agence à la charge du vendeur. Information d'affichage énergétique sur ce bien : classe energie e indice 279 et classe climat e indice 61. Les informations sur les risques auxquels ce bien est exposé, y compris l'obligation légale de débroussaillement, sont disponibles sur le site géorisques : la présente annonce immobilière a été rédigée sous la responsabilité éditoriale de mme jessica sanfilippo mandataire indépendant en immobilier (sans détention de fonds), agent commercial de la sas i@d france immatriculé au rsac de grenoble sous le numéro 883992745, titulaire de la carte de démarchage immobilier pour le compte de la société i@d france sas.
T3 terrasse / jardin à 2 min de la porte de france ch du canet, sur coteau expo sud, dans la résidence récente, prisée et sécurisée oxygreen. T3 en dernier étage de 75 m² se vivant comme une maison avec 450 m² de jardin paysagé et terrasses. Refait en 2025 av belles prestations (parquet, bso, placards amenagés). Piéce de vie av cuisine ouverte donnant sur belle terrasse expo sud av vue panoramique, buanderie, dressing, sdb. Aucuns trvx à prévoir, chauffage au sol, climatisation. Vendu av stationnement privatif / un box en sus. Faibles charges 83 € / mois. Contact : alice montaillard 06 25 36 27 30. Les informations sur les risques auxquels ce bien est exposé sont disponibles sur le site géorisques honoraires à la charge du vendeur. Dans une copropriété de 93 lots. Quote-part moyenne du budget prévisionnel 996 € / an. Aucune procédure n'est en cours. Classe énergie c, classe climat c montant estimé des dépenses annuelles d'énergie pour un usage standard : entre 900.00 € et 1280.00 € sur les années 2021,2022 et 2023 (abonnements compris). Les informations sur les risques auxquels ce bien est exposé sont disponibles sur le site géorisques : georisques. Gouv. Fr. Votre conseiller premium immobilier : alice montaillard agent commercial (entreprise individuelle) rsac 812668143.
Découvrez ce superbe T3 de 55 m², entièrement rénové avec goût et des matériaux de qualité, situé au 1er étage avec ascenseur d'une copropriété sécurisée et bien entretenue. Dès l'entrée, vous serez séduit par la qualité de la rénovation et l'optimisation intelligente des espaces. Chaque pièce a été pensée pour offrir fonctionnalité, confort et esthétisme, créant une atmosphère chaleureuse et contemporaine. La configuration est idéale : Un séjour lumineux accédant au balcon, bénéficiant d'une exposition Sud-Ouest, offrant une belle clarté tout au long de la journée. Deux chambres confortables, parfaitement adaptées à un couple, une petite famille, un télétravailleur ou des colocataires. Une salle d'eau moderne aux finitions soignées. Un toilette individuel Une cuisine indépendante et entièrement équipée, pratique et conviviale, avec accès direct au balcon de 6 m² véritable espace de vie supplémentaire. L'appartement dispose également : D'un stationnement extérieur libre au sein de la copropriété et d'une cave de 3,35 m² Ce bien allie parfaitement modernité, praticité et qualité de vie. Il conviendra aussi bien à une résidence principale qu'à un investissement serein. À proximité immédiate des commerces, transports, écoles et toutes commodités. Une opportunité rare pour ceux qui recherchent un appartement clé en main, confortable et parfaitement agencé. Contactez M. ROSSO Allan au O6.98. 41.44. 25. Les informations sur les risques auxquels ce bien est exposé sont disponibles sur le site Géorisques : . Honoraires à la charge du vendeur. Dans une copropriété de 112 lots. Quote-part moyenne du budget prévisionnel 1 369 € / an. Aucune procédure n'est en cours. Classe énergie C, Classe climat C Montant moyen estimé des dépenses annuelles d'énergie pour un usage standard, établi à partir des prix de l'énergie de l'année 2021 : entre 676.00 et 915.00 €. Les informations sur les risques auxquels ce bien est exposé sont disponibles sur le site Géorisques : georisques. gouv. fr.
À vendre ideal investisseur et face a la presqu'ile - saint martin le vinoux : résidence le latino - 3 rue conrad killian - t2 de 37.46 m² au 2ème étage (avec ascenseur), résidence de 2010, bien entretenue. L'appartement se compose d'une pièce principale de 23 m² avec kitchenette équipée (frigo + plaque de cuisson), d'une chambre de 11 m² et d'une salle d'eau avec wc de 3 m². Double vitrage pvc. L'accès à la résidence est sécurisé par un interphone. L'immeuble dispose d'un local à vélos et d'une laverie. Il se situe à côté du tram e - arrêt 'hôtel de ville'. Actuellement disponible a propos de la copropriété : pas de procédure en cours nombre de lots : 67 lots charges prévisionnelles annuelles pour l'appartement : 1008.68 € tf 2023 : 817 € dpe : c estimation des coûts annuels d'énergie : les coûts sont estimés en fonction des caractéristiques du logement et pour une utilisation standard sur 5 usages (chauffage, eau chaude sanitaire, climatisation, éclairage, auxiliaires) : entre 720 € et 1010 € annuels (prix moyens des énergies indexés sur les années 2021,2022, 2023 (abonnements compris) « les informations sur les risques auxquels ce bien est exposé sont disponibles sur le site géorisques » les honoraires sont à la charge du vendeur. Pour plus de renseignements et visites, contactez sarah charrier ei au 06 10 62 46 46 ou par mail : scharrier@agenceapart.com. Annonce rédigée par un agent mandataire immatriculée au rsac de grenoble sous le no 887 532 562.
Situé dans la commune de Saint-Martin-le-Vinoux, à proximité immédiate des transports en commun (Tram E), des commerces et des établissements scolaires, cet appartement bénéficie d'un emplacement privilégié. Installé au troisième étage d'une petite copropriété dépourvue d'ascenseur, il se compose d'une agréable pièce de vie lumineuse de 15 m², prolongée par un balcon offrant une vue dégagée. La cuisine attenante, aménagée avec soin, se veut à la fois fonctionnelle et pratique. La chambre, d'une surface confortable de 11 m², jouxte une salle d'eau avec toilettes. Un cellier vient utilement compléter ce bien. Par ailleurs, des emplacements de stationnement non attribués sont librement accessibles au sein de la copropriété. Si une visite de cette propriété vous intéresse, je reste à votre disposition pour toute demande de renseignements, et vous pouvez me joindre au numéro suivant : zéro-six 44774243. Les informations sur les risques auxquels ce bien est exposé sont disponibles sur le site Géorisques : Copropriété de 12 lots (Pas de procédure en cours). Charges annuelles : 700.00 euros. Dane BELLO (EI) Agent Commercial - Numéro RSAC : 838397107 - GRENOBLE.

Le marché immobilier du Rhône montre des signes de reprise avec une hausse des ventes, mais les prix restent sous pression. Décryptage d’un marché en phase de rééquilibrage.

Le marché immobilier débute 2026 dans une phase d’équilibre. Taux de crédit autour de 3 %, stabilisation des prix, pouvoir d’achat en reconstruction et comparatif de départements : découvrez notre baromètre bimestriel Janvier–Février 2026 pour comprendre où et comment acheter intelligemment.

Prix au m², taux de crédit, régions en hausse, villes en correction et impact du DPE : le baromètre immobilier Lesiteimmo décrypte le marché français en décembre 2025.