4 résultats
* en exclusivité chez capifrance * vous cherchez un appartement confortable lumineux et bien situé ? Ne cherchez plus ! Venez découvrir cet appartement spacieux à quelques minutes de l'a15, idéalement situé dans une résidence clôturée, sécurisée avec gardien et entourée de verdure, à proximité des commerces, école et collège et arrêt de bus. Cet appartement familial offre un cadre de vie agréable et fonctionnel, il vous offre : - belle entrée accueillante avec son grand placard ! - vaste séjour baigné de lumière donnant sur un loggia agréable pour vos moments de détente. - trois chambres pour toute la famille dont une avec un grand placard intégré. - une cuisine équipée et aménagée fonctionnelle avec cellier. - deux salles d'eau (salle de bain + salle de douche) pour plus de confort. - wc séparé une place de parking en sous-sol complète ce bien. Bon à savoir : chauffage collectif fenêtres en doubles vitrage pvc et volets électrique de 2021 classe énergétique d. Gare à moins de 15 minutes en bus. Une visite s'impose ! Nombre de lots de la copropriété : 447, montant moyen annuel de la quote-part de charges (budget prévisionnel) : 3600€ soit 300€ par mois. Les honoraires sont à la charge du vendeur. Les informations sur les risques auxquels ce bien est exposé sont disponibles sur le site géorisques : www. Georisques. Gouv. Fr. Réseau immobilier capifrance - votre agent commercial (rsac n°810 394 056 - greffe de pontoise) farah husson entrepreneur individuel 06 43 77 54 69 - réf. 897681.
Nouveauté immo-réseau : votre conseillère en immobilier immo-réseau, disponible 7 jours sur 7, vous propose ce très bel appartement sans travaux à prévoir. Il se compose d'une entrée, séjour, cuisine séparée aménagée, grand couloir avec de nombreux placards et rangements. 4 chambres, 1 salle de bain, 1 wc séparé. Les + : une cave; double vitrage, ravallement entièrement refait avec isolation thermique, boites aux lettres neuves, portes blindées et huisseries parties communes entièrement neuves. Commerces, écoles, mairie, parcs et arrêts de bus en bas de la résidence. À 2 pas de l'a15 et de la zone commerçante de la patte d'oie d'herblay et montigny-lès-cormeilles. Tout est là ! Un box est également disponible en supplément au pied l'immeuble. N'hésitez plus et contactez une mandataire experte de votre secteur ! Prix de vente 189 000 € prix ttc et honoraires à charge vendeur ttc montant estimé des dépenses annuelles d'énergie pour un usage standard : entre 1 140 € et 1 590 € par an. Prix moyens des énergies indexés au 01 / 01 / 2021 (abonnement compris). Dpe : d ges : d pour visiter et vous accompagner dans votre projet, contactez laurianne danguilhen 07 50 81 55 08 prix ttc et honoraires à charge vendeur ttc prix de vente 189 000 € selon l'article l. 561.5 du code monétaire et financier, pour l'organisation de la visite, la présentation d'une pièce d'identité vous sera demandée. Les informations sur les risques auxquels ce bien est exposé sont disponibles sur le site géorisques : cette présente annonce a été rédigée sous la responsabilité éditoriale de laurianne danguilhen agissant sous le statut d'agent commercial immatriculé au ville du greffe : pontoise sous le numéro rsac n° 522 314 285 auprès de la sas immo reseau au capital de 10 000€ - réseau national immobilier sur internet, 44 allée des cinq continents - 44120 vertou - rne nantes 519 718 886. Carte professionnelle t et g n° cpi 3002 2018 000 024 971 cci de nantes-saint-nazaire (44) ; garantie par galian 89 rue de la boétie - 75008 paris n°171379g pour 120 000€ pour t. Assurance responsabilité civile professionnelle par galian n° de police 120 137 405 (réf. 34929) - le professionnel garantit et sécurise votre projet immobilier prix de vente 189 000 € prix ttc et honoraires à charge vendeur ttc montant estimé des dépenses annuelles d'énergie pour un usage standard : entre 1 140 € et 1 590 € par an. Prix moyens des énergies indexés au 01 / 01 / 2021 (abonnement compris). Dpe : d ges : d pour visiter et vous accompagner dans votre projet, contactez laurianne danguilhen 07 50 81 55 08 selon l'article l. 561.5 du code monétaire et financier, pour l'organisation de la visite, la présentation d'une pièce d'identité vous sera demandée. Les informations sur les risques auxquels ce bien est exposé sont disponibles sur le site géorisques : cette présente annonce a été rédigée sous la responsabilité éditoriale de laurianne danguilhen agissant sous le statut d'agent commercial immatriculé au ville du greffe : pontoise sous le numéro rsac n° 522 314 285 auprès de la sas immo reseau au capital de 10 000€ - réseau national immobilier sur internet, 44 allée des cinq continents - 44120 vertou - rne nantes 519 718 886. Carte professionnelle t et g n° cpi 3002 2018 000 024 971 cci de nantes-saint-nazaire (44) ; garantie par galian 89 rue de la boétie - 75008 paris n°171379g pour 120 000€ pour t. Assurance responsabilité civile professionnelle par galian n° de police 120 137 405 (réf. 34929) - le professionnel garantit et sécurise votre projet immobilier.
Appartement de 2 pièces avec terrasse exceptionnelle de 74 m² au pied de la gare montigny-lès-cormeilles (95370) bénéficiant d'un accès direct aux transports et toutes commodités à proximité (commerces, écoles, services). Bérengère gomy vous propose cet appartement pour un budget de 205 000 euros, honoraires à la charge du vendeur. Coup de coeur assuré ! Magnifique t2 de 44 m² en dernier étage, bénéficiant d'une terrasse xxl de 74 m² offrant un véritable espace de vie extérieur. Lumineux et bien agencé exposition sud idéale, séjour baigné de lumière avec cuisine équipée et meublée ouverte, prête à vivre. Confort une chambre spacieuse, salle de bain avec wc. Une place de parking en sous-sol et une cave complètent ce bien. L'atout majeur cette immense terrasse de 74 m² au dernier étage vous offre un cadre exceptionnel, véritable prolongement de votre intérieur pour profiter des beaux jours en toute tranquillité. Un luxe rare ! Idéal premier achat, investissement locatif ou pied-à-terre ! Le loyer depuis 6 ans était à 840 euros cc, logement libre depuis. Dpe : d, ges : b montant estimé des dépenses annuelles d'énergie pour un usage standard entre 940 euros et 1330 euros indexées aux années 2021,2022 et 2023. Pour visiter et vous accompagner dans votre projet, contactez berengere gomy- frederic page, au 06 42 20 57 19 ou, par courriel à b.gomy@proprietes-privees.com. Selon l'article l. 561.5 du code monétaire et financier, pour l'organisation de la visite, la présentation d'une pièce d'identité vous sera demandée. Cette présente annonce a été rédigée sous la responsabilité éditoriale de berengere gomy- frederic page agissant sous le statut d'agent commercial immatriculé au rsac pontoise 480384122 auprès de sas proprietes privees, au capital de 44 920 euros, zac le chêne ferré - 44 allée des cinq continents 44120 vertou; siret 487 624 777 00040, rcs nantes. Carte professionnelle transactions sur immeubles et fonds de commerce (t) et gestion immobilière (g) n°cpi 4401 2016 000 010 388 délivrée par la cci nantes - saint nazaire. Compte séquestre n°309 32 50 84 67 bpa saint-sebastien-sur-loire (44230). Garantie galian-smabtp - 89 rue de la boétie, 75008 paris - n°28137 j pour 2 000 000 euros pour t et 120 000 euros pour g. Assurance responsabilité civile professionnelle par galian-smabtp n° de police 28137. J mandat réf : 430248gbe- le professionnel garantit et sécurise votre projet immobilier. Copropriété de 199 lots - dont 91 lots habitation. (). Charges annuelles : 1720 euros. Berengere gomy- frederic page (ei) agent commercial - numéro rsac : pontoise 480384122 -. Les informations sur les risques auxquels ce bien est exposé sont disponibles sur le site géorisques : www. Georisques. Gouv. Fr.
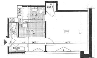
Iad France - Florian Vandeputte-Houbre vous propose : Appartement situé au coeur de Montigny village. Commerces et transport a proximité. Vous disposerez d'une séjour, cuisine, salle d'eau, WC. Idéalement premier achat ou investissement locatif. La presente annonce immobiliere vise 1 lot situé dans une copropriété de 4 lots au total et ne faisant l'objet d'aucune procédure en cours citée à l'article L. 721-1 du code de la construction et de l'habitation. Montant moyen mensuel de charges déclaré par le vendeur : 20€ par mois (soit 240 € annuel). Honoraires d'agence à la charge de l'acquéreur. Prix honoraires inclus : 149999 euros. Prix hors honoraires : 140500 euros. Honoraires TTC à la charge de l'acquéreur (6,76% du prix du bien hors honoraires) : 9499 euros. Information d'affichage énergétique sur ce bien : classe ENERGIE D indice 240 et classe CLIMAT D indice 7. Les informations sur les risques auxquels ce bien est exposé, y compris l'obligation légale de débroussaillement, sont disponibles sur le site Géorisques : La présente annonce immobilière a été rédigée sous la responsabilité éditoriale de M Florian Vandeputte-Houbre mandataire indépendant en immobilier (sans détention de fonds), agent commercial de la SAS I@D France immatriculé au RSAC de Pontoise sous le numéro 819907007, titulaire de la carte de démarchage immobilier pour le compte de la société I@D France SAS.

Recevez en temps réel les dernières annonces correspondant à votre recherche
Autres annonces à proximité de Montigny-lès-Cormeilles (95370) avec vos critères
ORPI vous propose dans la résidence de l'Epine Guyon cet appartement lumineux de 71 m² offrant une belle distribution. Il se compose d'une entrée avec rangements, d'une cuisine aménagée, d'une salle d'eau, WC séparé, d'un séjour double spacieux (ou 3ème chambre) et de deux chambres confortables. Vous bénéficiez également d'un coin buanderie ainsi que d'une loggia de 8 m². Cave en rez-de-chaussée. Référence agence : 2144.
Iad France - Thomas Broutin vous propose : Appartement Spacieux et Lumineux de 4 Pièces à Franconville - Résidence très prisée du Cadet de Vaux Découvrez ce superbe appartement de 86 m² situé dans la charmante ville de Franconville. Avec ses 2 chambres, cet appartement est idéal pour une famille ou un couple à la recherche d'un espace confortable et lumineux. L'appartement se compose d'un séjour double de 36 m² (possibilité de créer une troisième chambre) offrant un espace de vie convivial et chaleureux, d'une cuisine séparée entièrement rénovée et équipée pour préparer de délicieux repas en toute sérénité. Deux salles d'eau dont une refaite à neuf et un WC offrent un confort supplémentaire pour les occupants. Les deux chambres spacieuses permettent d'aménager des espaces nuit confortables et accueillants. L'ensemble de l'appartement bénéficie d'une exposition plein sud, offrant une belle luminosité tout au long de la journée. La vue dégagée sur les le parc ajoute une touche de sérénité à cet espace de vie agréable. Cet appartement se situe dans un immeuble bien entretenu de 5 étages avec ascenseur, datant de 1975, ravalé en 2023 et en bon état général. La résidence propose des prestations de qualité, notamment la fibre optique, un chauffage au gaz de ville, et un gardien. Pour votre confort au quotidien, l'appartement dispose d'une place de parking privative en extérieur ainsi qu'une grande cave de plus de 6 m². Les aménagements extérieurs comprennent un parc à proximité pour les moments de détente en plein air. Emplacement idéal à proximité de toutes les commodités : un parc à seulement 100m de l'appartement, des écoles maternelles, élémentaires et un collège à 250m, le centre-ville à 450m et la gare à 1km. Vous pourrez ainsi profiter pleinement de tous les attraits de la ville tout en bénéficiant d'un environnement calme et paisible. Ne manquez pas cette opportunité unique d'acquérir un appartement spacieux et lumineux à Franconville. Contactez-moi dès maintenant pour organiser une visite ! La presente annonce immobiliere vise 3 lots situés dans une copropriété de 730 lots au total et ne faisant l'objet d'aucune procédure en cours citée à l'article L. 721-1 du code de la construction et de l'habitation. Montant moyen mensuel de charges déclaré par le vendeur : 275.83€ par mois (soit 3309.96 € annuel). Honoraires d'agence à la charge de l'acquéreur. Prix honoraires inclus : 269000 euros. Prix hors honoraires : 260000 euros. Honoraires TTC à la charge de l'acquéreur (3,46% du prix du bien hors honoraires) : 9000 euros. Information d'affichage énergétique sur ce bien : classe ENERGIE D indice 196 et classe CLIMAT C indice 16. Les informations sur les risques auxquels ce bien est exposé, y compris l'obligation légale de débroussaillement, sont disponibles sur le site Géorisques : La présente annonce immobilière a été rédigée sous la responsabilité éditoriale de M Thomas Broutin mandataire indépendant en immobilier (sans détention de fonds), agent commercial de la SAS I@D France immatriculé au RSAC de Pontoise sous le numéro 932613268, titulaire de la carte de démarchage immobilier pour le compte de la société I@D France SAS.
Situé à Franconville (95130), en centre ville, proche des écoles, et des transports en commun, nous vous proposons cet appartement 4 pièces de 71 m². L'intérieur de ce bien se compose d'un double séjour-salle à manger lumineux, d'une cuisine séparée fonctionnelle, de 2 chambres confortables, d'une salle d'eau et d'un WC séparé. Ses 4 pièces offrent des volumes bien répartis, idéaux pour une vie de famille agréable et organisée. Une place de parking extérieure ainsi qu'une cave complète le bien. Le bien comprend 3 lots, et il est situé dans une copropriété de 300 lots (les charges courantes annuelles moyennes de copropriété sont de 3500 € et le syndicat des copropriétaires ne fait pas l'objet d'une procédure citée à l'article L. 721-1 du code de la construction et de l'habitation). Les informations sur les risques auxquels ce bien est exposé sont disponibles sur le site Géorisques : Prix de vente : 189 500 € Honoraires charge vendeur Contactez votre conseiller SAFTI : Vanessa BAQUET, Tél. : 06 17 15 65 87, E-mail : vanessa.baquet@safti.fr - EI - Agent commercial immatriculé au RSAC de Pontoise sous le numéro 508 537 396.
Dans résidence ravalée, sécurisé dans un secteur calme et verdoyant et proche de toutes commodites venir decouvrir cet appartement se composant d une entrée, cuisine équipée, un séjour lumineux avec accès balcon oriénté sud, deux chambres avec accès balcon, d'une salle de bains, un wc séparé. Une cave et une place de parking en sous-sol sécurisé complete ce bien. Le bien comprend 3 lots, et il est situé dans une copropriété de 208 lots (les charges courantes annuelles moyennes de copropriété sont de 3200 € et le syndicat des copropriétaires ne fait pas l'objet d'une procédure citée à l'article l. 721-1 du code de la construction et de l'habitation). Les informations sur les risques auxquels ce bien est exposé sont disponibles sur le site géorisques : prix de vente : 160 000 € honoraires charge vendeur contactez votre conseiller safti : thierry ragot-braconi, tél. : 06 17 66 06 56, e-mail : thierry.ragot-braconi@safti.fr - ei - agent commercial immatriculé au rsac de pontoise sous le numéro 489 205 872.
Résidence Les Bucherets - Appartement familial de 86 m², lumineux et bien entretenu. Il se compose de trois chambres, d'un séjour agréable ouvrant sur une belle terrasse, ainsi que de nombreux espaces de rangement. Les prestations sont complétées par une cave, une place de parking en sous-sol, la présence d'un gardien et un ascenseur dans la résidence. Idéalement situé à deux minutes du centre-ville, à proximité des écoles et des transports en commun (gare accessible en 10 minutes). Contactez-nous pour organiser une visite ! Référence agence : 2152 (orpi argenteuil centre immo).
À vendre Appartement 4 pièces avec balcon Franconville Situé au 4ème et dernier étage d'une petite copropriété de seulement quatre niveaux, découvrez cet appartement lumineux et parfaitement entretenu de 74 m². Il se compose d'un séjour avec balcon, d'une cuisine équipée, de trois chambres confortables, ainsi que d'une salle de bains et de WC séparés. L'appartement a bénéficié de rénovations de qualité : Fenêtres en PVC double vitrage, Tableau électrique remis à neuf, Ensemble en très bon état, prêt à accueillir ses nouveaux propriétaires. Côté localisation, un vrai atout : vous êtes à seulement 10 à 15 minutes à pied de la gare de Franconville Le Plessis-Bouchard (RER C, ligne H, Transilien), idéal pour vos trajets quotidiens vers Paris et sa région. La commune offre un cadre de vie recherché : écoles maternelles, primaires, collèges et lycées à proximité, commerces, infrastructures sportives et espaces verts. Un bien rare sur le secteur, alliant confort, praticité et qualité de vie. À visiter sans tarder ! Les informations sur les risques auxquels ce bien est exposé sont disponibles sur le site Géorisques Bien en copropriété : 210 lots Charges courantes : 3436 / an Pas de procédure en cours Prix : 189 500 * Honoraires à la charge du vendeur - Montant estimé des dépenses annuelles d'énergie pour un usage standard : Entre 1480 et 2060 par an. Prix moyens des énergies indexés au 1er janvier 2023 (abonnement compris).
Exclusivité ! Franconville, au coeur d'une résidence verdoyante, récemment ravalée à proximité des commerces, des écoles et à 10 minutes par le bus de la gare de franconville - le plessis bouchard (ligne h et rer c), bel appartement de type f3 d'une superficie de 64.25 m² environ situé au rez-de-chaussée vous offrant entrée avec placard, séjour donnant accès à une cuisine équipée semi ouverte, dégagement, wc, salle d'eau douche aménagée, cellier, 2 chambres avec accès à la terrasse. Une cave et une place de parking privée en sous-sol complètent ce bien. Bien en copropriété : 58 lots charges courantes : 3248.52 / an pas de procédure en cours prix : 167 500 * dont honoraires 4.69 % ttc à la charge de l'acquéreur calculés sur la base du prix net vendeur prix hors honoraires : 160 000 montant estimé des dépenses annuelles d'énergie pour un usage standard : non communiqué.
Franconville - pied gare appartement 3 pièces dans résidence récente avec toutes les comodités sur place. Entrée, séjour avec balcon, cuisine ouverte, 2 belles chambres, salle de bains, wc, placards. Très belle vue dégagée. Cave et parking au sous-sol. Le chauffage est inclus dans les charges. Bien en copropriété : lots charges courantes : 3255.59 / an pas de procédure en cours prix : 239 500 * honoraires à la charge du vendeur - montant estimé des dépenses annuelles d'énergie pour un usage standard : entre 850 et 1220 par an. Prix moyens des énergies indexés au 1er janvier 2022 (abonnement compris).
Appartement de 2 pièces de 49,53 m² Carrez à FRANCONVILLE (95130). Il est situé au 1er étage d'un immeuble de cinq étages des années 70 de bon standing avec gardien et équipé d'un ascenseur. Cet appartement se compose : une entrée et un séjour de 16 m², une cuisine indépendante équipée, une chambre de 11 m², une salle de bains et des toilettes indépendantes. Cet appartement est en bon état général. Pour des rangements supplémentaires, il est aussi agrémenté d'une cave. Pour votre véhicule, il est mis en vente avec une place de parking. À proximité vous trouverez des établissements scolaires de tous types (de la maternelle au lycée) ainsi que des commerces. Contactez l'agence Orpi Franconville pour une visite Référence agence : 2063.
À vendre – Appartement T4 secteur rue de l’Hostellerie à Franconville. Bel appartement lumineux avec 3 chambres, séjour, cuisine, salle de bains. Cave et garage inclus. Quartier calme, proche commerces et transports. Contactez-nous vite pour une visite ! Proposition d'aménagement virtuel non contractuelle en dernière photo. Honoraires inclus dans le prix : 6.8%.
Iad France - Hassan Laabouss vous propose : Venez découvrir ce bel appartement de 4 pièces, 82 m² dans une résidence prisée, verdoyante et sécurisée. Idéalement situé, vous trouverez la gare de Franconville à seulement 700m ainsi que les écoles ou autres commodités. L'appartement est très bien agencé, pas de perte de place. Il se compose d'une belle entrée avec rangements et placards donnant sur un grand séjour lumineux et cuisine ouverte de 29 m² avec son balcon. Deux belles chambres de 10 et 12 m² donnant sur le parc arboré de la résidence sans vis-à-vis. Possibilité d'en créer une troisième de 10 m² très facilement. La cuisine neuve et entièrement équipée donne sa touche de modernité à ce bien. La salle de bains entièrement rénovée également avec sa baignoire. Un dressing de 6 m². Coté isolation, les fenêtres et la porte blindée sont neuves et le ravalement plus isolation extérieure sont votés et payés. Une cave et une place de stationnement dans la résidence viennent compléter le tout. Un excellent choix pour débuter, il n'y a plus qu'à poser ses valises et profiter d'un environnement calme et sécurisant La presente annonce immobiliere vise 2 lots situés dans une copropriété de 96 lots au total et ne faisant l'objet d'aucune procédure en cours citée à l'article L. 721-1 du code de la construction et de l'habitation. Montant moyen mensuel de charges déclaré par le vendeur : 251€ par mois (soit 3012 € annuel). Honoraires d'agence à la charge du vendeur. Information d'affichage énergétique sur ce bien : classe ENERGIE D indice 228 et classe CLIMAT D indice 49. Les informations sur les risques auxquels ce bien est exposé, y compris l'obligation légale de débroussaillement, sont disponibles sur le site Géorisques : La présente annonce immobilière a été rédigée sous la responsabilité éditoriale de M Hassan Laabouss mandataire indépendant en immobilier (sans détention de fonds), agent commercial de la SAS I@D France immatriculé au RSAC de PONTOISE sous le numéro 982247017, titulaire de la carte de démarchage immobilier pour le compte de la société I@D France SAS.
Iad France - Arnaud Francois vous propose : T4 au coeur de Franconville - Coup de coeur assuré ! Découvrez cet appartement idéalement situé en plein centre-ville de Franconville, offrant un cadre de vie agréable et pratique au quotidien. Vous serez séduit par son vaste salon / séjour lumineux, bénéficiant d'une vue dégagée et d'une exposition Sud-Est. La cuisine, entièrement équipée et fonctionnelle, est pensée pour un usage quotidien confortable. L'espace nuit, parfaitement séparé, se compose de deux grandes chambres et d'une salle de bains avec lumière naturelle. Un W. C indépendant complète l'ensemble. Deux atouts supplémentaires : Une place de stationnement privative. Une grande cave pour plus de rangement. Côté commodités, trouverez un arrêt de bus en bas de l'immeuble. Vous êtes ainsi à moins de 10 mn de la gare SNCF de Franconville. Tous les commerces essentiels sont à votre disposition au pied de cet appartement. Ne tardez pas à me contacter pour organiser une visite. La presente annonce immobiliere vise 3 lots situés dans une copropriété de 430 lots au total et ne faisant l'objet d'aucune procédure en cours citée à l'article L. 721-1 du code de la construction et de l'habitation. Montant moyen mensuel de charges déclaré par le vendeur : 236€ par mois (soit 2832 € annuel). Honoraires d'agence à la charge du vendeur. Information d'affichage énergétique sur ce bien : classe ENERGIE E indice 326 et classe CLIMAT E indice 59. Les informations sur les risques auxquels ce bien est exposé, y compris l'obligation légale de débroussaillement, sont disponibles sur le site Géorisques : La présente annonce immobilière a été rédigée sous la responsabilité éditoriale de M Arnaud Francois mandataire indépendant en immobilier (sans détention de fonds), agent commercial de la SAS I@D France immatriculé au RSAC de PONTOISE sous le numéro 938194735, titulaire de la carte de démarchage immobilier pour le compte de la société I@D France SAS.
En centre ville, au 6ᵉ et dernier étage d'une résidence bien entretenue, découvrez ce spacieux appartement de 4 pièces doté d'une agréable terrasse. Il se compose d'une entrée avec dégagement, d'un séjour lumineux, d'une cuisine, de trois chambres, d'une salle de bains, d'une salle d'eau, d'un WC indépendant ainsi que de nombreux rangements. L'appartement est vendu avec une cave et deux places de stationnement en sous-sol. Idéal pour une famille ou pour ceux recherchant confort et fonctionnalité. (270€ charges courantes / mois) Référence agence : 2151.
ORPI vous propose cet appartement offrant : une entrée, un séjour lumineux, une cuisine, une chambre avec rangements intégrés et une salle de bains auquel s'ajoute une cave et une place de stationnement. Un bien idéal pour un premier achat ou un investissement, proche des commodités. Charges : 242€ / mois (chauffage collectif + provisions pour eau chaude et eau froide inclues) Référence agence : 2145.
Iad France - Antoine Flippe vous propose : Découvrez ce bel appartement situé au cOEur de Franconville, idéalement agencé pour offrir un espace de vie confortable et fonctionnel. Ce bien, d'une surface habitable de 42 m², se trouve au deuxième d'un immeuble de quatre étages construit en 1965, offrant ainsi une allure moderne et des finitions de qualité. L'entrée donne sur un séjour salle à manger, donnant lui même sur la cuisine, créant ainsi une ambiance conviviale et lumineuse. La cuisine, dotée de l'équipement nécessaire, est idéale pour préparer de délicieux repas. Le salon permet d'aménager un espace détente agréable. Une belle salle de bains avec WC et une chambre complètent ce bien. Ses avantages ne s'arrêtent pas là, vous disposerez d'une place de parking privative permettant un stationnement facile au quotidien. L'appartement dispose également de deux caves, idéales pour du stockage. Il bénéficie d'une exposition est, vous assurant une luminosité naturelle tout au long de la journée. Idéalement situé, il est à proximité des commodités essentielles telles que les commerces, les écoles, les transports en commun (8 mn en voiture et 20 mn à pied de la ligne H et du REC C) et les espaces verts. Une occasion à saisir pour les amateurs d'appartement bien agencé. Ne manquez pas cette opportunité unique et planifiez une visite dès à présent pour vous laisser séduire. La presente annonce immobiliere vise 4 lots situés dans une copropriété de 400 lots au total et ne faisant l'objet d'aucune procédure en cours citée à l'article L. 721-1 du code de la construction et de l'habitation. Montant moyen mensuel de charges déclaré par le vendeur : 198€ par mois (soit 2376 € annuel). Honoraires d'agence à la charge du vendeur. Information d'affichage énergétique sur ce bien : classe ENERGIE E indice 327 et classe CLIMAT E indice 53. Les informations sur les risques auxquels ce bien est exposé, y compris l'obligation légale de débroussaillement, sont disponibles sur le site Géorisques : La présente annonce immobilière a été rédigée sous la responsabilité éditoriale de M Antoine Flippe mandataire indépendant en immobilier (sans détention de fonds), agent commercial de la SAS I@D France immatriculé au RSAC de PONTOISE sous le numéro 941604043, titulaire de la carte de démarchage immobilier pour le compte de la société I@D France SAS.
Situé à Franconville (95130), cet appartement bénéficie d'un emplacement idéal dans un quartier calme et résidentiel. Proche des commerces, des écoles et des transports en commun, il offre un cadre de vie agréable pour ses habitants. Cet appartement de 58 m², situé au 3ème étage sans ascenseur, se compose de 4 pièces, dont 2 chambres (possibilité d'en faire une 3ème). Il dispose d'un box et d'une cave pour un stationnement pratique. L'entrée mène à une cuisine équipée, une salle à manger lumineuse, un salon chaleureux, 2 chambres confortables, une salle d'eau fonctionnelle et un wc séparé. Idéal pour un couple ou une petite famille, ce F4 offre des espaces bien agencés et fonctionnels. L'appartement bénéficie d'une belle luminosité et d'une vue dégagée sur un étang. Les résidents pourront profiter de la tranquillité de ce quartier tout en profitant de la proximité des commodités. Le bien comprend 3 lots, et il est situé dans une copropriété de 1 ? 143 lots (les charges courantes annuelles moyennes de copropriété sont de 3000 € et le syndicat des copropriétaires ne fait pas l'objet d'une procédure citée à l'article L. 721-1 du code de la construction et de l'habitation). Les informations sur les risques auxquels ce bien est exposé sont disponibles sur le site Géorisques : Prix de vente : 175 000 € Honoraires charge vendeur Contactez votre conseiller SAFTI : Miria FERNANDES, Tél. : 06 12 22 48 83, E-mail : miria.fernandes@safti.fr - EI - Agent commercial immatriculé au RSAC de Pontoise sous le numéro 877748822.
Investissement - résidence "les sources" f1 comprenant : entrée avec placard, cuisine aménagée, séjour avec placard, salle de bains, wc. Cave et parking s / sol. Chauffage collectif. Vendu loué 590 / mois (490 + 100).
Iad France - Odile Movrel vous propose : Dans la résidence 'les Bucherets' fermée, sécurisée avec gardien, à 600 mètres du centre ville, proche des commerces, des écoles et à 10 minutes en bus de la Gare de Franconville, appartement 4 pièces de 85 m², comprenant : une entrée avec rangements, une cuisine séparée aménagée et équipée, la salle à manger de 19 m², un salon (ou chambre), un couloir avec rangements, dessert l'espace nuit composé de 2 chambres, une salle bain, une salle d'eau et un WC. Le balcon filant de 14 m² est accessible depuis la salle à manger, le salon et les 2 chambres. Une Cave, un box en sous sol complètent le bien. La presente annonce immobiliere vise 3 lots situés dans une copropriété de 420 lots au total et ne faisant l'objet d'aucune procédure en cours citée à l'article L. 721-1 du code de la construction et de l'habitation. Montant moyen mensuel de charges déclaré par le vendeur : 270.33€ par mois (soit 3244 € annuel). Honoraires d'agence à la charge du vendeur. Information d'affichage énergétique sur ce bien : classe ENERGIE C indice 132 et classe CLIMAT C indice 14. Les informations sur les risques auxquels ce bien est exposé, y compris l'obligation légale de débroussaillement, sont disponibles sur le site Géorisques : La présente annonce immobilière a été rédigée sous la responsabilité éditoriale de M Odile Movrel mandataire indépendant en immobilier (sans détention de fonds), agent commercial de la SAS I@D France immatriculé au RSAC de PONTOISE sous le numéro 879555720, titulaire de la carte de démarchage immobilier pour le compte de la société I@D France SAS.
Iad France - Aymen Rakrouki vous propose : À Franconville, dans une résidence calme, sécurisée et verdoyante, spacieux F2 de 46,5 m² en rez-de-chaussée avec balcon, cave et parking couvert double. Il se compose d’une entrée avec placard, d’un séjour lumineux de 18 m² avec cuisine ouverte, d’une chambre avec rangements, dressing, cellier, salle de bains et WC séparés. Balcon exposé Sud. Aucun travaux à prévoir. Chauffage collectif, eau froide et eau chaude inclus dans les charges. Copropriété entretenue avec gardienne, espaces verts, parties communes rénovées et vidéosurveillance. Charges : env. 785 € / trimestre. Taxe foncière : 1 405 €. Classe énergétique : E – 314 kWh / m² / an. À 5 min en bus ou 15 min à pied de la gare Franconville – Le Plessis-Bouchard (RER C & H). Autres gares accessibles : Cernay (RER C & H), Cormeilles-en-Parisis (Train J). Centre-ville et commerces à 5 min à pied. Centre commercial Leclerc à 5 min en voiture. Idéal pour un primo-accédant ou un investissement locatif. La presente annonce immobiliere vise 3 lots situés dans une copropriété de 60 lots au total et ne faisant l'objet d'aucune procédure en cours citée à l'article L. 721-1 du code de la construction et de l'habitation. Montant moyen mensuel de charges déclaré par le vendeur : 261.67€ par mois (soit 3140 € annuel). Honoraires d'agence à la charge du vendeur. Information d'affichage énergétique sur ce bien : classe ENERGIE E indice 314 et classe CLIMAT E indice 68. Les informations sur les risques auxquels ce bien est exposé, y compris l'obligation légale de débroussaillement, sont disponibles sur le site Géorisques : La présente annonce immobilière a été rédigée sous la responsabilité éditoriale de M Aymen Rakrouki mandataire indépendant en immobilier (sans détention de fonds), agent commercial de la SAS I@D France immatriculé au RSAC de Pontoise sous le numéro 943505875, titulaire de la carte de démarchage immobilier pour le compte de la société I@D France SAS.
Iad France - Thomas Broutin vous propose : Appartement de Charme 2 Pièces à Franconville - Idéal Investissement ou Premier Achat Situé dans un quartier prisé de Franconville pour sa proximité avec le centre-ville, cet appartement de 2 pièces, lumineux et confortable, est une opportunité à ne pas manquer. Avec une surface totale de 33.14 m², cet appartement offre un cadre de vie agréable et fonctionnel. L'espace de vie se compose d'une chambre spacieuse, d'une salle d'eau avec WC, d'un séjour avec coin cuisine équipée, d'une entrée accueillante et d'un dressing pratique. Chaque recoin de cet appartement a été optimisé pour offrir un maximum de confort et de praticité au quotidien. Construit en 1975, cet appartement offre une exposition sud-ouest, apportant une belle luminosité et un ensoleillement optimal à l'intérieur. La résidence est sécurisée, équipée d'une fibre optique et d'un interphone, offrant un cadre de vie serein et moderne. De plus, la présence d'un gardien renforce la sécurité et le bien-être des résidents. Les commodités essentielles telles que les bus à 200m et les commerces à 250m sont facilement accessibles, facilitant le quotidien de ses habitants. Pour finir, cet appartement est accompagné d'une cave et d'une place de parking en sous-sol, offrant un confort supplémentaire et une sécurité pour votre véhicule. Que vous soyez à la recherche d'un investissement locatif ou d'une première acquisition, cet appartement à Franconville saura répondre à vos attentes. N'hésitez pas à nous contacter pour organiser une visite et découvrir ce petit bijou immobilier dans un cadre privilégié. La presente annonce immobiliere vise 3 lots situés dans une copropriété de 420 lots au total et ne faisant l'objet d'aucune procédure en cours citée à l'article L. 721-1 du code de la construction et de l'habitation. Montant moyen mensuel de charges déclaré par le vendeur : 127.24€ par mois (soit 1526.88 € annuel). Honoraires d'agence à la charge du vendeur. Information d'affichage énergétique sur ce bien : classe ENERGIE C indice 184 et classe CLIMAT C indice 12. Les informations sur les risques auxquels ce bien est exposé, y compris l'obligation légale de débroussaillement, sont disponibles sur le site Géorisques : La présente annonce immobilière a été rédigée sous la responsabilité éditoriale de M Thomas Broutin mandataire indépendant en immobilier (sans détention de fonds), agent commercial de la SAS I@D France immatriculé au RSAC de Pontoise sous le numéro 932613268, titulaire de la carte de démarchage immobilier pour le compte de la société I@D France SAS.
Iad France - Nina Hariton vous propose : Opportunité à saisir - Appartement 2 pièces à Franconville - Proche de toutes commodités Situé dans la charmante ville de Franconville, à quelques minutes du centre-ville et de toutes ses commodités, cet appartement de 2 pièces vous offre un cadre de vie agréable et pratique. Ce bien, d'une surface de 42.8 m², comprend une chambre lumineuse, un salon cosy, une cuisine équipée, un WC séparé et une salle de bains. Idéal pour un couple ou une personne seule en quête de confort et de praticité au quotidien. Situé au 4ème étage d'un immeuble de 4 niveaux, l'appartement profite d'une exposition sud, offrant une luminosité naturelle tout au long de la journée. De plus, sa situation au nord permet une fraîcheur appréciable pendant les chaudes journées d'été. La résidence est dotée de toutes les sécurités nécessaires avec un digicode et un interphone, offrant à ses habitants un environnement serein. De plus, le chauffage est assuré par le système de chauffage collectif au gaz, garantissant un confort thermique optimal. Pour votre confort au quotidien, une place de parking privative est incluse, ainsi que 2 caves pour le rangement supplémentaire. Pas de travaux à prévoir, l'appartement est en bon état général et prêt à accueillir ses nouveaux propriétaires. Ne manquez pas cette opportunité rare sur le marché ! Contactez-nous dès maintenant pour organiser une visite et découvrir ce petit bijou niché à Franconville. La presente annonce immobiliere vise 4 lots situés dans une copropriété de 733 lots au total et ne faisant l'objet d'aucune procédure en cours citée à l'article L. 721-1 du code de la construction et de l'habitation. Montant moyen mensuel de charges déclaré par le vendeur : 164.67€ par mois (soit 1976 € annuel). Honoraires d'agence à la charge du vendeur. Information d'affichage énergétique sur ce bien : classe ENERGIE D indice 247 et classe CLIMAT D indice 37. Les informations sur les risques auxquels ce bien est exposé, y compris l'obligation légale de débroussaillement, sont disponibles sur le site Géorisques : La présente annonce immobilière a été rédigée sous la responsabilité éditoriale de Mme Nina Hariton mandataire indépendant en immobilier (sans détention de fonds), agent commercial de la SAS I@D France immatriculé au RSAC de Versailles sous le numéro 953842952, titulaire de la carte de démarchage immobilier pour le compte de la société I@D France SAS.