28 résultats
Contact hugo enjalbert 06 59 69 27 76 sauvian - t3 proche des commerces secteur sauvian, situé à proximité des commerces. Dans un cadre de vie préservé et proche de toutes les commodités, découvrez cette belle résidence. T3 en étage d’une superficie de 59 m². Belle pièce de vie de 24 m² donnant sur un balcon 10 m². Il dispose de 2 chambres, d'une salle de bain, d'un wc indépendant et de placards de rangement. Prestations : carrelage grande taille, résidence sécurisée, digicode, stationnements en s / sol, sèche serviette dans les sdb etc. Prix : 229 000€ 1 stationnement en sus : 10 000€ livraison 3t2027. Avantages du neuf : frais de notaire réduits (2.5%) isolation thermique renforcée isolation phonique entre étages charges réduites car bâtiment basse consommation et rt2012 ou re2020 garantie constructeur 10 ans éligible au prêt à taux zéro, tva 5.5% ou à la loi pinel * personnalisez votre logement au gré de vos envies. Possibilité d’exonération partielle ou total de la taxe foncière pendant 2 ans les + bonaparte promotion : -un accompagnement d’experts -un savoir-faire de plus de 15 ans -un gain de temps ! Recherche d’appartements personnalisée -un interlocuteur unique -un prix direct promoteur -une étude de financement -un accès à plus de 150 résidences en cours sur la régon. Le plus grand choix de résidences neuves dans votre région : bonaparte promotion. Fr pour obtenir des renseignements rapidement, contactez votre conseiller dédié bonaparte promotion : hugo 06 59 69 27 76 et / ou rendez-vous en agence sur rdv : bonaparte promotion 357 av. Du professeur etienne antonelli 34000 montpellier tel : 04 34 48 01 55.
Très bien placé sur Sauvian à 5mn des plages. Dans un cadre naturel et exceptionnel. Ce superbe et rarissime appartement T3 neuf livré offrant 68 m² avec terrasse 56 m² au 3° étage d'une résidence de standing avec espaces verts, ascenseur, parking privatif en frais de notaires de réduits OFFERTS. Très beau séjour avec cuisine américaine aménagée et équipée de 30 m² donnant sur superbe terrasse de 56 m² exposée sud avec une très belle vue dégagée et verdoyante. 2 chambres, salle de d'eau aménagées, WC indépendant, placards aménagés. Très belles prestations : PVC double vitrage, volets roulants élec, climatisation, domotique. À visiter au plus vite. À ne surtout pas manquer ! Bien soumis au statut juridique de la Copropriété. Nb de lots : 31. Pas de procédure en cours. Prix TTC et Honoraires à charge vendeur TTC.
Très bien placé sur Sauvian à 5mn des plages. Dans un cadre naturel et exceptionnel. Ce superbe et rarissime appartement T3 neuf livré offrant 68,5 m² avec terrasse 29,60 m² au 3° étage d'une résidence de standing avec espaces verts, ascenseur, parking privatif en frais de notaires de réduits OFFERTS. Très beau séjour avec cuisine américaine aménagée et équipée de 31,60 m² donnant sur superbe terrasse de 29,60 m² exposée ouest avec une très belle vue dégagée et verdoyante. 2 chambres, salle d'eau aménagée, WC indépendant, placards aménagés. Très belles prestations : PVC double vitrage, volets roulants élec, climatisation, domotique. À visiter au plus vite. À ne surtout pas manquer ! Bien soumis au statut juridique de la Copropriété. Nb de lots : 31. Pas de procédure en cours. Prix TTC et Honoraires à charge vendeur TTC.
Très bien placé sur Sauvian à 5mn des plages. Dans un cadre naturel et exceptionnel. Ce superbe et rarissime appartement T3 neuf livré offrant 72 m² avec terrasse 22 m² au 3° étage d'une résidence de standing avec espaces verts, ascenseur, parking privatif en frais de notaires de réduits OFFERTS. Très beau séjour avec cuisine américaine aménagée et équipée de 33 m² donnant sur superbe terrasse de 22 m² exposée sud avec une très belle vue dégagée et verdoyante. 2 chambres, salle de bains aménagées, WC indépendant, placards aménagés. Très belles prestations : PVC double vitrage, volets roulants élec, climatisation, domotique. À visiter au plus vite. À ne surtout pas manquer ! Bien soumis au statut juridique de la Copropriété. Nb de lots : 31. Pas de procédure en cours. Prix TTC et Honoraires à charge vendeur TTC.

Recevez en temps réel les dernières annonces correspondant à votre recherche
Très bien placé sur Sauvian à 5 mn des plages. Dans un cadre naturel et exceptionnel. Ce superbe et rarissime appartement T3 offrant 66 m² avec terrasse 14 m² au 1° étage d'une résidence de standing avec espaces verts, ascenseur, parking privatif avec frais de notaires OFFERTS. Très beau séjour avec cuisine américaine aménagée et équipée de 28 m² donnant sur superbe terrasse de 14 m² exposée sud avec une très belle vue dégagée et verdoyante. 2 chambres, salle de bains aménagées, WC indépendant, placards aménagés. Très belles prestations : PVC double vitrage, volets roulants élec, climatisation, domotique. À visiter au plus vite. À ne surtout pas manquer ! Bien soumis au statut juridique de la Copropriété. Nb de lots : 40. Charges annuelles de copropriété (Montant moyen annuel quote-part du budget prévisionnel vendeur) : 1 040 €. Pas de procédure en cours. Prix TTC et Honoraires à charge vendeur TTC.
À seulement 10 minutes à pied du cœur de Sauvian et en bordure d'un parc arboré, venez découvrir cet appartement situé au premier étage de notre nouvelle résidence avec ascenseur. Ce logement, prêt à emménager, offre des prestations de standing comprenant une cuisine aménagée, du carrelage 60x60 cm, peinture lisse. Vous bénéficierez également d'un espace extérieur privatif avec une vue dégagée et d'une place de parking. N'attendez plus pour nous contacter ! Livraison immédiate. DPE : À Référence agence : 26811.
Dans un cadre calme et verdoyant, cet appartement de 58,71 m² offre un séjour de 24 m² baigné de lumière grâce à son exposition ouest, prolongé par un balcon et un jardin privatif idéaux pour profiter de l'extérieur et des soirées ensoleillées. L'espace nuit comprend 2 chambres. L'appartement bénéficie d'un accès sécurisé par vidéophone et d'une place de parking privative. À proximité immédiate de toutes les commodités : crèche, écoles, commerces, grandes surfaces, médecins, complexes sportifs et médiathèque. Profitez d'un cadre de vie pratique et serein, tout en étant à seulement 10 minutes des plages. Prix : 234 000 euros (honoraires à la charge du vendeur) dpe en cours. Pour visiter et vous accompagner dans votre projet, contactez michel hornecker, au 06 99 40 50 21 ou, par courriel à m.hornecker@proprietes-privees.com. Selon l'article l. 561.5 du code monétaire et financier, pour l'organisation de la visite, la présentation d'une pièce d'identité vous sera demandée. Cette présente annonce a été rédigée sous la responsabilité éditoriale de michel hornecker agissant sous le statut d'agent commercial immatriculé au rsac beziers 493044283 auprès de sas proprietes privees, au capital de 44 920 euros, zac le chêne ferré - 44 allée des cinq continents 44120 vertou; siret 487 624 777 00040, rcs nantes. Carte professionnelle transactions sur immeubles et fonds de commerce (t) et gestion immobilière (g) n°cpi 4401 2016 000 010 388 délivrée par la cci nantes - saint nazaire. Compte séquestre n°309 32 50 84 67 bpa saint-sebastien-sur-loire (44230). Garantie galian-smabtp - 89 rue de la boétie, 75008 paris - n°28137 j pour 2 000 000 euros pour t et 120 000 euros pour g. Assurance responsabilité civile professionnelle par galian-smabtp n° de police 28137. J mandat réf : 433616 le professionnel garantit et sécurise votre projet immobilier. Copropriété de 270 lots - dont 100 lots habitation. (). Charges annuelles : 1500 euros. Michel hornecker (ei) agent commercial - numéro rsac : beziers 493044283 -.
Dans un cadre calme et verdoyant, cet appartement de 38,47 m² offre un séjour de 20 m² exposition est, prolongé par un balcon et un jardin privatif. L'espace nuit comprend une chambre. L'appartement bénéficie d'un accès sécurisé par vidéophone et d'une place de parking privative. À proximité immédiate de toutes les commodités : crèche, écoles, commerces, grandes surfaces, médecins, complexes sportifs et médiathèque. Profitez d'un cadre de vie pratique et serein, tout en étant à seulement 10 minutes des plages. Prix : 175 000 euros (honoraires à la charge du vendeur) dpe en cours. Pour visiter et vous accompagner dans votre projet, contactez michel hornecker, au 06 99 40 50 21 ou, par courriel à m.hornecker@proprietes-privees.com. Selon l'article l. 561.5 du code monétaire et financier, pour l'organisation de la visite, la présentation d'une pièce d'identité vous sera demandée. Cette présente annonce a été rédigée sous la responsabilité éditoriale de michel hornecker agissant sous le statut d'agent commercial immatriculé au rsac beziers 493044283 auprès de sas proprietes privees, au capital de 44 920 euros, zac le chêne ferré - 44 allée des cinq continents 44120 vertou; siret 487 624 777 00040, rcs nantes. Carte professionnelle transactions sur immeubles et fonds de commerce (t) et gestion immobilière (g) n°cpi 4401 2016 000 010 388 délivrée par la cci nantes - saint nazaire. Compte séquestre n°309 32 50 84 67 bpa saint-sebastien-sur-loire (44230). Garantie galian-smabtp - 89 rue de la boétie, 75008 paris - n°28137 j pour 2 000 000 euros pour t et 120 000 euros pour g. Assurance responsabilité civile professionnelle par galian-smabtp n° de police 28137. J mandat réf : 433648 le professionnel garantit et sécurise votre projet immobilier. Copropriété de 270 lots - dont 100 lots habitation. (). Charges annuelles : 1500 euros. Michel hornecker (ei) agent commercial - numéro rsac : beziers 493044283 -.
Dans un cadre calme et verdoyant, cet appartement de 38,47 m² offre un séjour de 20 m² exposition ouest, prolongé par un balcon. L'espace nuit comprend une chambre. L'appartement bénéficie d'un accès sécurisé par vidéophone et d'une place de parking privative. À proximité immédiate de toutes les commodités : crèche, écoles, commerces, grandes surfaces, médecins, complexes sportifs et médiathèque. Profitez d'un cadre de vie pratique et serein, tout en étant à seulement 10 minutes des plages. Prix : 178 000 euros (honoraires à la charge du vendeur) dpe en cours. Pour visiter et vous accompagner dans votre projet, contactez michel hornecker, au 06 99 40 50 21 ou, par courriel à m.hornecker@proprietes-privees.com. Selon l'article l. 561.5 du code monétaire et financier, pour l'organisation de la visite, la présentation d'une pièce d'identité vous sera demandée. Cette présente annonce a été rédigée sous la responsabilité éditoriale de michel hornecker agissant sous le statut d'agent commercial immatriculé au rsac beziers 493044283 auprès de sas proprietes privees, au capital de 44 920 euros, zac le chêne ferré - 44 allée des cinq continents 44120 vertou; siret 487 624 777 00040, rcs nantes. Carte professionnelle transactions sur immeubles et fonds de commerce (t) et gestion immobilière (g) n°cpi 4401 2016 000 010 388 délivrée par la cci nantes - saint nazaire. Compte séquestre n°309 32 50 84 67 bpa saint-sebastien-sur-loire (44230). Garantie galian-smabtp - 89 rue de la boétie, 75008 paris - n°28137 j pour 2 000 000 euros pour t et 120 000 euros pour g. Assurance responsabilité civile professionnelle par galian-smabtp n° de police 28137. J mandat réf : 433673 le professionnel garantit et sécurise votre projet immobilier. Copropriété de 270 lots - dont 100 lots habitation. (). Charges annuelles : 1500 euros. Michel hornecker (ei) agent commercial - numéro rsac : beziers 493044283 -.
Dans un cadre calme et verdoyant, cet appartement de 38,47 m² offre un séjour de 20 m² exposition ouest, prolongé par un balcon. L'espace nuit comprend une chambre. L'appartement bénéficie d'un accès sécurisé par vidéophone et d'une place de parking privative. À proximité immédiate de toutes les commodités : crèche, écoles, commerces, grandes surfaces, médecins, complexes sportifs et médiathèque. Profitez d'un cadre de vie pratique et serein, tout en étant à seulement 10 minutes des plages. Prix : 172 000 euros (honoraires à la charge du vendeur) dpe en cours. Pour visiter et vous accompagner dans votre projet, contactez michel hornecker, au 06 99 40 50 21 ou, par courriel à m.hornecker@proprietes-privees.com. Selon l'article l. 561.5 du code monétaire et financier, pour l'organisation de la visite, la présentation d'une pièce d'identité vous sera demandée. Cette présente annonce a été rédigée sous la responsabilité éditoriale de michel hornecker agissant sous le statut d'agent commercial immatriculé au rsac beziers 493044283 auprès de sas proprietes privees, au capital de 44 920 euros, zac le chêne ferré - 44 allée des cinq continents 44120 vertou; siret 487 624 777 00040, rcs nantes. Carte professionnelle transactions sur immeubles et fonds de commerce (t) et gestion immobilière (g) n°cpi 4401 2016 000 010 388 délivrée par la cci nantes - saint nazaire. Compte séquestre n°309 32 50 84 67 bpa saint-sebastien-sur-loire (44230). Garantie galian-smabtp - 89 rue de la boétie, 75008 paris - n°28137 j pour 2 000 000 euros pour t et 120 000 euros pour g. Assurance responsabilité civile professionnelle par galian-smabtp n° de police 28137. J mandat réf : 433672 le professionnel garantit et sécurise votre projet immobilier. Copropriété de 270 lots - dont 100 lots habitation. (). Charges annuelles : 1500 euros. Michel hornecker (ei) agent commercial - numéro rsac : beziers 493044283 -.
Dans un cadre calme et verdoyant, cet appartement de 38,47 m² offre un séjour de 20 m² exposition ouest, prolongé par un balcon. L'espace nuit comprend une chambre. L'appartement bénéficie d'un accès sécurisé par vidéophone et d'une place de parking privative. À proximité immédiate de toutes les commodités : crèche, écoles, commerces, grandes surfaces, médecins, complexes sportifs et médiathèque. Profitez d'un cadre de vie pratique et serein, tout en étant à seulement 10 minutes des plages. Prix : 176 000 euros (honoraires à la charge du vendeur) dpe en cours. Pour visiter et vous accompagner dans votre projet, contactez michel hornecker, au 06 99 40 50 21 ou, par courriel à m.hornecker@proprietes-privees.com. Selon l'article l. 561.5 du code monétaire et financier, pour l'organisation de la visite, la présentation d'une pièce d'identité vous sera demandée. Cette présente annonce a été rédigée sous la responsabilité éditoriale de michel hornecker agissant sous le statut d'agent commercial immatriculé au rsac beziers 493044283 auprès de sas proprietes privees, au capital de 44 920 euros, zac le chêne ferré - 44 allée des cinq continents 44120 vertou; siret 487 624 777 00040, rcs nantes. Carte professionnelle transactions sur immeubles et fonds de commerce (t) et gestion immobilière (g) n°cpi 4401 2016 000 010 388 délivrée par la cci nantes - saint nazaire. Compte séquestre n°309 32 50 84 67 bpa saint-sebastien-sur-loire (44230). Garantie galian-smabtp - 89 rue de la boétie, 75008 paris - n°28137 j pour 2 000 000 euros pour t et 120 000 euros pour g. Assurance responsabilité civile professionnelle par galian-smabtp n° de police 28137. J mandat réf : 433676 le professionnel garantit et sécurise votre projet immobilier. Copropriété de 270 lots - dont 100 lots habitation. (). Charges annuelles : 1500 euros. Michel hornecker (ei) agent commercial - numéro rsac : beziers 493044283 -.
Aux portes de béziers et à 5 kms des plages, sauvian profite d'un emplacement exceptionnel. La commune séduit par ses équipements modernes et la mise en valeur de son patrimoine historique. Cette résidence propose 28 appartements du t1bis au t3 et de 3 duplex groupés t3 et t4, dans un ensemble à taille humaine qui a su conserver l'esprit du village. Pour votre appartement dans une résidence intimiste, vous bénéficierez d'un beau séjour avec sa cuisine américaine aménagée donnant sur une belle terrasse de 20 m², où vous pourrez passer d'agréables moments de détente. Sa chambre parentale de 14 m² avec son grand placard, vous permet un aménagement facile. Tout est compris dans son prix de 259.900 euros (parking, cuisine) pas de frais a la charge de l'acquereur bien non soumis au dpe pour visiter et vous accompagner dans votre projet, contactez roger gimenez, au 06 60 10 99 19 ou, par courriel à ro.gimenez@proprietes-privees.com. Selon l'article l. 561.5 du code monétaire et financier, pour l'organisation de la visite, la présentation d'une pièce d'identité vous sera demandée. Cette présente annonce a été rédigée sous la responsabilité éditoriale de roger gimenez agissant sous le statut d'agent commercial immatriculé au rsac 349746743 narbonne auprès de sas proprietes privees, au capital de 44 920 euros, zac le chêne ferré - 44 allée des cinq continents 44120 vertou; siret 487 624 777 00040, rcs nantes. Carte professionnelle transactions sur immeubles et fonds de commerce (t) et gestion immobilière (g) n°cpi 4401 2016 000 010 388 délivrée par la cci nantes - saint nazaire. Compte séquestre n°309 32 50 84 67 bpa saint-sebastien-sur-loire (44230). Garantie galian-smabtp - 89 rue de la boétie, 75008 paris - n°28137 j pour 2 000 000 euros pour t et 120 000 euros pour g. Assurance responsabilité civile professionnelle par galian-smabtp n° de police 28137. J mandat réf : ? 433177 ? . - le professionnel garantit et sécurise votre projet immobilier. Copropriété de 64 lots - dont 28 lots habitation.(). Roger gimenez (ei) agent commercial - numéro rsac : 349746743 narbonne -. Les informations sur les risques auxquels ce bien est exposé sont disponibles sur le site géorisques : www. Georisques. Gouv. Fr.
Situé au deuxième étage d'une résidence récente et sécurisée, cet appartement t3 de 59,60 m² offre un agencement fonctionnel et une luminosité naturelle appréciable. Il propose une pièce de vie avec cuisine ouverte, donnant accès à un balcon exposé sud de près de 20 m², apportant un extérieur agréable et un bon ensoleillement. L'espace nuit se compose de deux chambres offrant des surfaces confortables, ainsi qu'une salle d'eau moderne. Le bien dispose également d'une place de parking privative en sous-sol et d'un ascenseur au sein de la résidence. Son emplacement permet de rejoindre le centre-ville en 10 minutes à pied, avec commerces, établissements scolaires et transports accessibles à proximité. Prix : 264 900 euros (honoraires charge vendeur) dpe en cours. Pour obtenir des informations complémentaires ou organiser une visite, je suis à votre disposition. Pour visiter et vous accompagner dans votre projet, contactez michel hornecker, au 06 99 40 50 21 ou, par courriel à m.hornecker@proprietes-privees.com. Selon l'article l. 561.5 du code monétaire et financier, pour l'organisation de la visite, la présentation d'une pièce d'identité vous sera demandée. Cette présente annonce a été rédigée sous la responsabilité éditoriale de michel hornecker agissant sous le statut d'agent commercial immatriculé au rsac beziers 493044283 auprès de sas proprietes privees, au capital de 44 920 euros, zac le chêne ferré - 44 allée des cinq continents 44120 vertou; siret 487 624 777 00040, rcs nantes. Carte professionnelle transactions sur immeubles et fonds de commerce (t) et gestion immobilière (g) n°cpi 4401 2016 000 010 388 délivrée par la cci nantes - saint nazaire. Compte séquestre n°309 32 50 84 67 bpa saint-sebastien-sur-loire (44230). Garantie galian-smabtp - 89 rue de la boétie, 75008 paris - n°28137 j pour 2 000 000 euros pour t et 120 000 euros pour g. Assurance responsabilité civile professionnelle par galian-smabtp n° de police 28137. J mandat réf : 431087 le professionnel garantit et sécurise votre projet immobilier. Copropriété de 72 lots - dont 31 lots habitation. (). Charges annuelles : 1 euros. Michel hornecker (ei) agent commercial - numéro rsac : beziers 493044283 -.
Situé au premier étage d'une résidence récente et sécurisée, cet appartement t3 de 59,60 m² offre un agencement fonctionnel et une luminosité naturelle appréciable. Il propose une pièce de vie avec cuisine ouverte, donnant accès à un balcon exposé sud, apportant un extérieur agréable et un bon ensoleillement. L'espace nuit se compose de deux chambres offrant des surfaces confortables, ainsi qu'une salle d'eau moderne. Le bien dispose également d'une place de parking privative en sous-sol et d'un ascenseur au sein de la résidence. Son emplacement permet de rejoindre le centre-ville en 10 minutes à pied, avec commerces, établissements scolaires et transports accessibles à proximité. Prix : 259 900 euros (honoraires charge vendeur) dpe en cours. Pour obtenir des informations complémentaires ou organiser une visite, je suis à votre disposition. Pour visiter et vous accompagner dans votre projet, contactez michel hornecker, au 06 99 40 50 21 ou, par courriel à m.hornecker@proprietes-privees.com. Selon l'article l. 561.5 du code monétaire et financier, pour l'organisation de la visite, la présentation d'une pièce d'identité vous sera demandée. Cette présente annonce a été rédigée sous la responsabilité éditoriale de michel hornecker agissant sous le statut d'agent commercial immatriculé au rsac beziers 493044283 auprès de sas proprietes privees, au capital de 44 920 euros, zac le chêne ferré - 44 allée des cinq continents 44120 vertou; siret 487 624 777 00040, rcs nantes. Carte professionnelle transactions sur immeubles et fonds de commerce (t) et gestion immobilière (g) n°cpi 4401 2016 000 010 388 délivrée par la cci nantes - saint nazaire. Compte séquestre n°309 32 50 84 67 bpa saint-sebastien-sur-loire (44230). Garantie galian-smabtp - 89 rue de la boétie, 75008 paris - n°28137 j pour 2 000 000 euros pour t et 120 000 euros pour g. Assurance responsabilité civile professionnelle par galian-smabtp n° de police 28137. J mandat réf : 431084 le professionnel garantit et sécurise votre projet immobilier. Copropriété de 72 lots - dont 31 lots habitation. (). Charges annuelles : 1 euros. Michel hornecker (ei) agent commercial - numéro rsac : beziers 493044283 -.
À 10 minutes à pied du centre-ville, commerces, services, écoles et transports à proximité. Environnement agréable entre nature et littoral. T3 de 69 m², au troisième et dernier étage, séjour lumineux avec cuisine ouverte et intégrée, accès direct depuis le séjour à une terrasse exposée ouest d'environ 30 m². Espace nuit 2 chambres aux volumes confortables, une salle de bain moderne et équipée, wc séparés. Résidence récente, sécurisée, avec ascenseur. Prestations complémentaires, un garage privatif en sous-sol, une place de stationnement privative en sous-sol prix : 279 900 euros (honoraires charge vendeur) dpe en cours pour obtenir des informations complémentaires ou organiser une visite, je suis à votre disposition. Pour visiter et vous accompagner dans votre projet, contactez michel hornecker, au 06 99 40 50 21 ou, par courriel à m.hornecker@proprietes-privees.com. Selon l'article l. 561.5 du code monétaire et financier, pour l'organisation de la visite, la présentation d'une pièce d'identité vous sera demandée. Cette présente annonce a été rédigée sous la responsabilité éditoriale de michel hornecker agissant sous le statut d'agent commercial immatriculé au rsac beziers 493044283 auprès de sas proprietes privees, au capital de 44 920 euros, zac le chêne ferré - 44 allée des cinq continents 44120 vertou; siret 487 624 777 00040, rcs nantes. Carte professionnelle transactions sur immeubles et fonds de commerce (t) et gestion immobilière (g) n°cpi 4401 2016 000 010 388 délivrée par la cci nantes - saint nazaire. Compte séquestre n°309 32 50 84 67 bpa saint-sebastien-sur-loire (44230). Garantie galian-smabtp - 89 rue de la boétie, 75008 paris - n°28137 j pour 2 000 000 euros pour t et 120 000 euros pour g. Assurance responsabilité civile professionnelle par galian-smabtp n° de police 28137. J mandat réf : 431154 le professionnel garantit et sécurise votre projet immobilier. Copropriété de 72 lots - dont 31 lots habitation. (). Charges annuelles : 1 euros. Michel hornecker (ei) agent commercial - numéro rsac : beziers 493044283 -.
Situé au troisième et dernier étage d'une résidence récente et sécurisée, cet appartement t3 de 72,30 m² bénéficie d'un agencement fonctionnel et d'une luminosité naturelle traversante. La pièce de vie avec cuisine ouverte s'ouvre sur un balcon exposé sud d'environ 22 m², offrant un extérieur agréable et un ensoleillement optimal. L'espace nuit se compose de deux chambres aux surfaces confortables et d'une salle d'eau moderne. Le bien comprend également : 1 place de parking privative en sous-sol ascenseur accès sécurisé à la résidence idéalement situé, il permet de rejoindre le centre-ville en 10 minutes à pied, avec commerces, établissements scolaires et transports facilement accessibles. Prix : 279 900 euros (honoraires charge vendeur) dpe en cours. Pour obtenir des informations complémentaires ou organiser une visite, je suis à votre disposition. Pour visiter et vous accompagner dans votre projet, contactez michel hornecker, au 06 99 40 50 21 ou, par courriel à m.hornecker@proprietes-privees.com. Selon l'article l. 561.5 du code monétaire et financier, pour l'organisation de la visite, la présentation d'une pièce d'identité vous sera demandée. Cette présente annonce a été rédigée sous la responsabilité éditoriale de michel hornecker agissant sous le statut d'agent commercial immatriculé au rsac beziers 493044283 auprès de sas proprietes privees, au capital de 44 920 euros, zac le chêne ferré - 44 allée des cinq continents 44120 vertou; siret 487 624 777 00040, rcs nantes. Carte professionnelle transactions sur immeubles et fonds de commerce (t) et gestion immobilière (g) n°cpi 4401 2016 000 010 388 délivrée par la cci nantes - saint nazaire. Compte séquestre n°309 32 50 84 67 bpa saint-sebastien-sur-loire (44230). Garantie galian-smabtp - 89 rue de la boétie, 75008 paris - n°28137 j pour 2 000 000 euros pour t et 120 000 euros pour g. Assurance responsabilité civile professionnelle par galian-smabtp n° de police 28137. J mandat réf : 431111 le professionnel garantit et sécurise votre projet immobilier. Copropriété de 72 lots - dont 31 lots habitation. (). Charges annuelles : 1 euros. Michel hornecker (ei) agent commercial - numéro rsac : beziers 493044283 -.
Situé à 10 minutes à pied du centre-ville, cet appartement exposé plein sud vous invite à découvrir un cadre de vie idéal. Niché dans une résidence sécurisée, il allie confort et tranquillité, tout en étant à quelques pas des commodités. Un équilibre parfait entre tranquillité et accessibilité ! Cela répond-il à vos attentes ? Découvrez cet appartement unique, où chaque instant devient une invitation à la détente et au bien-être. Idéalement situé au dernier étage, cet espace de plus de 68 m² vous offre une magnifique pièce de vie baignée de lumière, s'ouvrant sur une terrasse exposée plein ouest. Véritable prolongement de votre espace intérieur, cette terrasse devient un lieu privilégié, tout en bénéficiant d'une vue dégagée. Un cadre de vie exceptionnel où confort et sérénité se rencontrent au quotidien. Deux chambres spacieuses, ainsi qu'une salle de bain moderne. L'atout supplémentaire ? Un garage, et une place de parking en sous-sol, vous garantissant confort et tranquillité d'esprit au quotidien. La résidence sécurisée vous assure une sérénité totale, un environnement où vous pourrez pleinement vous détendre. Enfin, sa localisation vous permet de bénéficier de toutes les commodités à proximité, offrant ainsi un compromis parfait entre calme et praticité. Cela correspond-il à ce que vous recherchez ? Alors, êtes-vous prêt à franchir le seuil de votre nouveau chez-vous ? Ne laissez pas passer cette opportunité unique de vivre dans un espace qui allie confort, sécurité et proximité. Prix de vente : 294 900 euros (honoraires à la charge du vendeur). Me contacter pour plus d'informations, plans (parkings, plan de masse) et notice descriptive complète sur demande. Photos non contractuelles, dpe non requis. Selon l'article l. 561.5 du code monétaire et financier, pour l'organisation de la visite, la présentation d'une pièce d'identité vous sera demandée. Pour visiter et vous accompagner dans votre projet, contactez michel hornecker, au 06 99 40 50 21 ou par courriel à m.hornecker@proprietes-privees.com cette présente annonce a été rédigée sous la responsabilité éditoriale de michel hornecker agissant sous le statut d'agent commercial immatriculé au rsac beziers 824 253 710 spécialisé du neuf, auprès de la sas proprietes privees, réseau national immobilier, au capital de 40000 euros, 44 allée des cinq continents - zac le chêne ferré, 44120 vertou, rcs nantes n° 487 624 777 00040, carte professionnelle t et g n° cpi 4401 2016 000 010 388 cci nantes-saint nazaire. Garantie galian - 89 rue de la boétie, 75008 paris mandat réf : 396256- le professionnel garantit et sécurise votre projet immobilier. Michel hornecker (ei) agent commercial - numéro rsac : beziers 824 253 710 les informations sur les risques auxquels ce bien est exposé sont disponibles sur le site géorisques : copropriété de 72 lots - dont 31 lots habitation. (). Charges annuelles : 1 euros. Michel hornecker (ei) agent commercial - numéro rsac : beziers 493044283 -.
Iad france - perfeita da costa (06 37 32 62 56) vous propose : appartement t3 neuf à sauvian - disponible immédiatement dans un cadre de vie calme et verdoyant, découvrez cet appartement t3 neuf, livré en décembre 2024. Idéalement situé à sauvian, à seulement 10 minutes de béziers et 5 km des plages, ce logement allie confort moderne et prestations de qualité. Caractéristiques : surface habitable : 65,9 m² environ terrasse : 13,6 m² environ parking privé : 1 emplacement extérieur inclus cuisine aménagée et équipée climatisation réversible domotique intégrée (gestion des volets, éclairages et équipements) résidence sécurisée avec visiophone et espaces extérieurs avantages : frais de notaire offerts éligible au dispositif pinel (zone b1) pour un investissement locatif optimisé possibilité de bénéficier du prêt à taux zéro (ptz) localisation : proximité immédiate des commerces, écoles, et transports accès rapide à béziers et aux plages méditerranéennes environnement résidentiel privilégié avec parc arboré cet appartement est parfait pour les investisseurs ou les familles souhaitant s’installer dans un logement neuf et moderne, au coeur d’une commune dynamique. Pour plus d’informations ou pour organiser une visite, contactez-nous dès maintenant. Honoraires d’agence à la charge du vendeur. Bien non soumis au dpe. Les informations sur les risques auxquels ce bien est exposé sont disponibles sur le site géorisques : . La présente annonce immobilière a été rédigée sous la responsabilité éditoriale de mlle perfeita da costa ei (id 75750), mandataire indépendant en immobilier (sans détention de fonds), agent commercial de la sas i@d france immatriculé au rsac de beziers sous le numéro 890051287, titulaire de la carte de démarchage immobilier pour le compte de la société i@d france sas. Retrouvez tous nos biens sur notre site internet. .
Non loin de Béziers, la ville de Sauvian bénéficie d'un emplacement exceptionnel, riche en patrimoine historique, d'un littoral préservé et d'une activité économique variée. Profitez du charme méditerranéen et de tous les atouts d'une métropole dynamique dans un cadre unique. À seulement 15 minutes du centre-ville de Béziers et à 10 minutes des plages de Sérignan, Sauvian promet un cadre de vie paisible au sein d'une commune active. La ville offre à ses 5 500 habitants toutes les commodités nécessaires à la vie quotidienne, dont une école maternelle et primaire ainsi que des commerces de proximité. Dans le cadre de la reconversion de l'ancien quartier artisanal, un nouveau complexe résidentiel a été construit, composé de trois bâtiments contigus de deux étages, comportant chacun une trentaine de logements. Les appartements, de 2 ou 3 pièces, disposent d'un balcon ou d'une terrasse ainsi que de parkings en sous-sol. Une cour aménagée de 2 400 m², agrémentée de 50 arbres, apportera des îlots de fraîcheur et un sentiment de tranquillité aux résidents. Appartement : Découvrez y un appartement T2 de 38.47 m² avec un balcon de 8.06 m². Il est composé d'un séjour avec une cuisine ouverte, d'une chambre, d'une salle d'eau et d'un placard. Les avantages d'acheter un logement neuf avec PRODEOM : oPrix direct promoteur : pas de frais d'agence. oFrais de notaire réduits entre 2 et 3% (contre 7 à 8% dans l'ancien). oPerformance énergétique conforme aux normes RE2020. oExonération de la taxe foncière les premières années. oPossibilité de Prêt à Taux 0% d'intérêts bancaires jusqu'à la MOITIÉ du prix du bien (50%) oMoins de charges et pas de travaux pendant au moins 15 ans. oGarantie de construction pendant 10 ans. Contactez-nous dès à présent pour découvrir ce nouvel espace de sérénité.
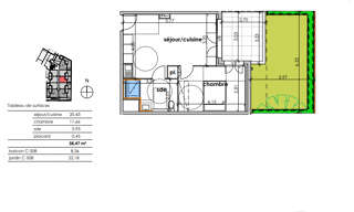
Non loin de Béziers, la ville de Sauvian bénéficie d'un emplacement exceptionnel, riche en patrimoine historique, d'un littoral préservé et d'une activité économique variée. Profitez du charme méditerranéen et de tous les atouts d'une métropole dynamique dans un cadre unique. À seulement 15 minutes du centre-ville de Béziers et à 10 minutes des plages de Sérignan, Sauvian promet un cadre de vie paisible au sein d'une commune active. La ville offre à ses 5 500 habitants toutes les commodités nécessaires à la vie quotidienne, dont une école maternelle et primaire ainsi que des commerces de proximité. Dans le cadre de la reconversion de l'ancien quartier artisanal, un nouveau complexe résidentiel a été construit, composé de trois bâtiments contigus de deux étages, comportant chacun une trentaine de logements. Les appartements, de 2 ou 3 pièces, disposent d'un balcon ou d'une terrasse ainsi que de parkings en sous-sol. Une cour aménagée de 2 400 m², agrémentée de 50 arbres, apportera des îlots de fraîcheur et un sentiment de tranquillité aux résidents. Appartement : Découvrez y un appartement T3 de 58.71 m² avec un balcon de 10.04 m². Il est composé d'un séjour avec une cuisine ouverte, de deux chambres, d'une salle de bain, d'un placard et d'un WC indépendant. Les avantages d'acheter un logement neuf avec PRODEOM : oPrix direct promoteur : pas de frais d'agence. oFrais de notaire réduits entre 2 et 3% (contre 7 à 8% dans l'ancien). oPerformance énergétique conforme aux normes RE2020. oExonération de la taxe foncière les premières années. oPossibilité de Prêt à Taux 0% d'intérêts bancaires jusqu'à la MOITIÉ du prix du bien (50%) oMoins de charges et pas de travaux pendant au moins 15 ans. oGarantie de construction pendant 10 ans. Contactez-nous dès à présent pour découvrir ce nouvel espace de sérénité.
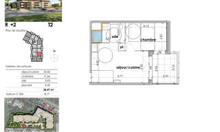
Non loin de Béziers, la ville de Sauvian bénéficie d'un emplacement exceptionnel, riche en patrimoine historique, d'un littoral préservé et d'une activité économique variée. Profitez du charme méditerranéen et de tous les atouts d'une métropole dynamique dans un cadre unique. À seulement 15 minutes du centre-ville de Béziers et à 10 minutes des plages de Sérignan, Sauvian promet un cadre de vie paisible au sein d'une commune active. La ville offre à ses 5 500 habitants toutes les commodités nécessaires à la vie quotidienne, dont une école maternelle et primaire ainsi que des commerces de proximité. Dans le cadre de la reconversion de l'ancien quartier artisanal, un nouveau complexe résidentiel a été construit, composé de trois bâtiments contigus de deux étages, comportant chacun une trentaine de logements. Les appartements, de 2 ou 3 pièces, disposent d'un balcon ou d'une terrasse ainsi que de parkings en sous-sol. Une cour aménagée de 2 400 m², agrémentée de 50 arbres, apportera des îlots de fraîcheur et un sentiment de tranquillité aux résidents. Appartement : Découvrez y un appartement T2 de 38.47 m² avec un balcon de 8.17 m². Il est composé d'un séjour avec une cuisine ouverte, d'une chambre, d'une salle d'eau et d'un placard. Les avantages d'acheter un logement neuf avec PRODEOM : oPrix direct promoteur : pas de frais d'agence. oFrais de notaire réduits entre 2 et 3% (contre 7 à 8% dans l'ancien). oPerformance énergétique conforme aux normes RE2020. oExonération de la taxe foncière les premières années. oPossibilité de Prêt à Taux 0% d'intérêts bancaires jusqu'à la MOITIÉ du prix du bien (50%) oMoins de charges et pas de travaux pendant au moins 15 ans. oGarantie de construction pendant 10 ans. Contactez-nous dès à présent pour découvrir ce nouvel espace de sérénité.
Non loin de Béziers, la ville de Sauvian bénéficie d'un emplacement exceptionnel, riche en patrimoine historique, d'un littoral préservé et d'une activité économique variée. Profitez du charme méditerranéen et de tous les atouts d'une métropole dynamique dans un cadre unique. À seulement 15 minutes du centre-ville de Béziers et à 10 minutes des plages de Sérignan, Sauvian promet un cadre de vie paisible au sein d'une commune active. La ville offre à ses 5 500 habitants toutes les commodités nécessaires à la vie quotidienne, dont une école maternelle et primaire ainsi que des commerces de proximité. Dans le cadre de la reconversion de l'ancien quartier artisanal, un nouveau complexe résidentiel a été construit, composé de trois bâtiments contigus de deux étages, comportant chacun une trentaine de logements. Les appartements, de 2 ou 3 pièces, disposent d'un balcon ou d'une terrasse ainsi que de parkings en sous-sol. Une cour aménagée de 2 400 m², agrémentée de 50 arbres, apportera des îlots de fraîcheur et un sentiment de tranquillité aux résidents. Appartement : Découvrez y un appartement T3 de 59.69 m² avec un balcon de 8.82 m². Il est composé d'un séjour avec une cuisine ouverte, de deux chambres, d'une salle de bain, de deux placards et d'un WC indépendant. Les avantages d'acheter un logement neuf avec PRODEOM : oPrix direct promoteur : pas de frais d'agence. oFrais de notaire réduits entre 2 et 3% (contre 7 à 8% dans l'ancien). oPerformance énergétique conforme aux normes RE2020. oExonération de la taxe foncière les premières années. oPossibilité de Prêt à Taux 0% d'intérêts bancaires jusqu'à la MOITIÉ du prix du bien (50%) oMoins de charges et pas de travaux pendant au moins 15 ans. oGarantie de construction pendant 10 ans. Contactez-nous dès à présent pour découvrir ce nouvel espace de sérénité.
Non loin de Béziers, la ville de Sauvian bénéficie d'un emplacement exceptionnel, riche en patrimoine historique, d'un littoral préservé et d'une activité économique variée. Profitez du charme méditerranéen et de tous les atouts d'une métropole dynamique dans un cadre unique. À seulement 15 minutes du centre-ville de Béziers et à 10 minutes des plages de Sérignan, Sauvian promet un cadre de vie paisible au sein d'une commune active. La ville offre à ses 5 500 habitants toutes les commodités nécessaires à la vie quotidienne, dont une école maternelle et primaire ainsi que des commerces de proximité. Dans le cadre de la reconversion de l'ancien quartier artisanal, un nouveau complexe résidentiel a été construit, composé de trois bâtiments contigus de deux étages, comportant chacun une trentaine de logements. Les appartements, de 2 ou 3 pièces, disposent d'un balcon ou d'une terrasse ainsi que de parkings en sous-sol. Une cour aménagée de 2 400 m², agrémentée de 50 arbres, apportera des îlots de fraîcheur et un sentiment de tranquillité aux résidents. Appartement : Découvrez y un appartement T2 de 38.47 m² avec un balcon de 8.31 m². Il est composé d'un séjour avec une cuisine ouverte, d'une chambre, d'une salle d'eau et d'un placard. Les avantages d'acheter un logement neuf avec PRODEOM : oPrix direct promoteur : pas de frais d'agence. oFrais de notaire réduits entre 2 et 3% (contre 7 à 8% dans l'ancien). oPerformance énergétique conforme aux normes RE2020. oExonération de la taxe foncière les premières années. oPossibilité de Prêt à Taux 0% d'intérêts bancaires jusqu'à la MOITIÉ du prix du bien (50%) oMoins de charges et pas de travaux pendant au moins 15 ans. oGarantie de construction pendant 10 ans. Contactez-nous dès à présent pour découvrir ce nouvel espace de sérénité.
À quelques kilomètres de Béziers et à seulement 5 kilomètres de la Méditerranée, Sauvian bénéficie d'une localisation géographique exceptionnelle, nichée entre terres agricoles et vignobles. Attrayante, dynamique et chaleureuse, la commune charme par ses équipements modernes, la mise en valeur de son riche patrimoine historique et son engagement envers la préservation de l'environnement. Située au coeur du tout nouveau quartier des Moulières et à seulement 10 minutes à pied du centre-ville, découvrez une résidence qui s'épanouit autour d'un magnifique coeur d'îlot paysager. Chaque logement est conçu pour vous offrir une qualité de vie optimale : des volumes intérieurs spacieux s'ouvrent sur des terrasses, des espaces fonctionnels et de grandes ouvertures inondant les séjours de lumière naturelle. Les étages supérieurs offrent des extérieurs généreux, de véritables pièces de vie en plein air. Enfin, la résidence se distingue par son engagement environnemental exemplaire. Respectant dès aujourd'hui le « seuil 2025 » de la Réglementation environnementale RE2020, la résidence dépasse les normes légales, garantissant ainsi des logements durables, sains, agréables à vivre et à faible consommation énergétique. Découvrez au sein de cette résidence, un Appartement neuf T3 en dernier étage de 72 m² avec une terrasse de 22 m². Il est composé d'un séjour / cuisine, de deux chambres avec placard, d'une salle d'eau avec WC, parking inclu. Label BBC et norme RT 2020 vous garantissent de faibles dépenses énergétiques et thermiques. Frais de notaire réduits à moins de 3%, Réalisez votre projet LMNP. Informations et disponibilités au 06 98 80 86 74.
À quelques kilomètres de Béziers et à seulement 5 kilomètres de la Méditerranée, Sauvian bénéficie d'une localisation géographique exceptionnelle, nichée entre terres agricoles et vignobles. Attrayante, dynamique et chaleureuse, la commune charme par ses équipements modernes, la mise en valeur de son riche patrimoine historique et son engagement envers la préservation de l'environnement. Située au coeur du tout nouveau quartier des Moulières et à seulement 10 minutes à pied du centre-ville, découvrez une résidence qui s'épanouit autour d'un magnifique coeur d'îlot paysager. Chaque logement est conçu pour vous offrir une qualité de vie optimale : des volumes intérieurs spacieux s'ouvrent sur des terrasses, des espaces fonctionnels et de grandes ouvertures inondant les séjours de lumière naturelle. Les étages supérieurs offrent des extérieurs généreux, de véritables pièces de vie en plein air. Enfin, la résidence se distingue par son engagement environnemental exemplaire. Respectant dès aujourd'hui le « seuil 2025 » de la Réglementation environnementale RE2020, la résidence dépasse les normes légales, garantissant ainsi des logements durables, sains, agréables à vivre et à faible consommation énergétique. Découvrez au sein de cette résidence, un Appartement neuf T2 en dernier étage de 41 m² avec une terrasse de 16 m². Il est composé d'un séjour / cuisine, d'une chambre avec placard, d'une salle d'eau avec WC, parking inclu. Label BBC et norme RT 2020 vous garantissent de faibles dépenses énergétiques et thermiques. Frais de notaire réduits à moins de 3%, Réalisez votre projet LMNP. Informations et disponibilités au 06 98 80 86 74.