Logo LSI sombre

Appartement 4 Pièces 83 m² à vendre à Saint-Malo (35400)
Photo N° 2
2

Vente appartement 4 pièces 83 m² Saint-Malo (35400)

472 000 €
+31 %

CLOS VALVER Une résidence intimiste clos de murs en pierres

Livraison immediate ! Visite sur rdv ! À l'entrée de st malo, dans le quartier lorette-rosais, à proximité immédiate des plages du rosais et des fours à chaux, à quelques minutes du parc de la briantais, à proximité des commerces, du lycée j. Cartier, soyez les premiers informés sur cette nouvelle résidence intimiste, à l’architecture élégante : clos valver. Cette résidence se composera de 25 appartements et 4 maisons de ville allant du t2 au t5, répartis sur 3 bâtiments indépendants. Ces logements bénéficient de prestations soignées, de spacieux balcons et de généreuses terrasses bien orientés, prolongées pour certaines par un jardin privatif. Parking ou garage sécurisé en sous-sol et garage double pour les t4 / t5. Ce cadre de vie, articulé autour d'un jardin paysager clos de mur en pierres, structuré par la présence de 2 cèdres majestueux, invite au bien-être ainsi qu'à quiétude. Idéal pour habiter à l’année, résider en vacances ou investir * en se constituant un patrimoine pérenne de qualité tout en bénéficiant due l'amortissement fiscal du dispositif jeanbrun * (*investir dans l'immobilier comporte des risques _ * sous conditions) clos valver : lorsque authenticité rime avec sérénité ! Visites sur rendez-vous !

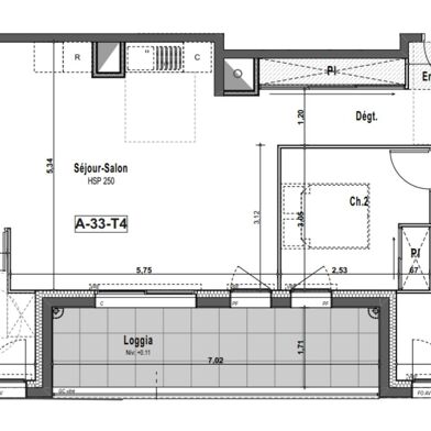
Caractéristiques

Les plus de cette annonce
  • Ascenseur
  • Garage
  • Parking
Pièces
  • 2 pièces
Superficies
  • Surface habitable : 62 m²
  • Surface minimum : 62 m²
  • Surface moyenne : 78 m²
Extérieur
  • Balcon
Sécurité
  • Digicode
  • Vidéophone
Avancement
  • Livraison prévue le 4eme trimestre 2026

Consommation énergétique et gaz à effet de serre

Bilan énergétique (DPE)
NC
Bilan gaz à effet de serre (GES)
NC

Géorisques

Les informations sur les risques auxquels ce bien est exposé sont disponibles sur le site Géorisques : www.georisques.gouv.fr

A propos du prix de cet appartement

  • Prix : 472 000 € (soit 5 687 € / m²) +31 %

À propos de cette annonce

Mise en ligne:

Dernière mise à jour:

Référence de l'annonce: CV
Promo Ouest Immobilier agence immobilière à Rennes (35)
Promo Ouest Immobilier
Afficher le numéro

Appartement similaires à acheter Saint-Malo (35400)

Appartement 4 pièces 487000 €
487 000 €

Appartement 4 pièces 94 m²

Saint-Malo (35400)

Iad France - Marine Géneril vous propose : Appartement T4 Entièrement Rénové - Intra-Muros Coup de cOEur assuré pour cet appartement rénové de 94 m², situé au 4ᵉ étage d’un immeuble de standing à Saint-Malo. L’emplacement de choix de ce bien vous permet de profiter pleinement de la vie en centre-ville tout en étant à l’abri de l’agitation urbaine, avec en prime un agréable aperçu sur la mer. Dès l’entrée, vous serez séduit par l’espace lumineux et moderne qu’offre cet appartement. Son vaste séjour est idéal pour accueillir vos moments conviviaux en famille ou entre amis. Les 3 chambres spacieuses offrent un coin de tranquillité parfait pour se reposer après une longue journée. La salle d’eau et le WC séparé apportent un confort supplémentaire aux habitants de ce bien. La cuisine totalement équipée et aménagée vous permettra de laisser libre cours à vos talents culinaires. De plus, la présence d’un ascenseur facilite l’accès au 4ᵉ étage, rendant votre quotidien plus pratique. Ne perdez pas de temps et venez vite découvrir ce bien d’exception où il fait bon vivre à Saint-Malo ! La presente annonce immobiliere vise 2 lots situés dans une copropriété de 50 lots au total et ne faisant l'objet d'aucune procédure en cours citée à l'article L. 721-1 du code de la construction et de l'habitation. Montant moyen mensuel de charges déclaré par le vendeur : 54.17€ par mois (soit 650 € annuel). Honoraires d'agence à la charge du vendeur. Information d'affichage énergétique sur ce bien : classe ENERGIE D indice 163 et classe CLIMAT D indice 35. Les informations sur les risques auxquels ce bien est exposé, y compris l'obligation légale de débroussaillement, sont disponibles sur le site Géorisques : La présente annonce immobilière a été rédigée sous la responsabilité éditoriale de Mme Marine Géneril mandataire indépendant en immobilier (sans détention de fonds), agent commercial de la SAS I@D France immatriculé au RSAC de RENNES sous le numéro 932120850, titulaire de la carte de démarchage immobilier pour le compte de la société I@D France SAS.

Appartement 4 pièces 467250 €
467 250 €

Appartement 4 pièces 95 m²

Saint-Malo (35400)

KERMARREC vous propose ce bel appartement lumineux 4 PIECES de 95 m² environ avec grande cave et espace de jardin privatif. Il se compose d'un agencement très fonctionnel avec une entrée qui dessert la pièce de vie avec cuisine aménagée et équipée, wc, salle de bain, 3 chambres, dressing. Cet appartement parfaitement entretenu offre le confort du moderne associé au charme de l'ancien avec ses beaux parquets massifs, sa cheminée en marbre et sa hauteur sous plafond, Son emplacement est privilégié à 10 mn à pied de la cale de Rochebonne et du centre de paramé. Prix FAI : 467 250 euros dont 5.00 % honoraires TTC à la charge de l'acquéreur.

Appartement 4 pièces 639000 €
639 000 €

Appartement 4 pièces 97 m²

Saint-Malo (35400)

Découvrez villa riancourt, notre nouvelle résidence intimiste nichée rue des portes rouges, à seulement quelques minutes d’intra-muros et des plages. Votre nouveau lieu de vie : - 13 logements du studio au 4 pièces, jusqu’à 100 m², avec de magnifiques t3 et t4 duplex en dernier étage,- 2 maisons t5 individuelles (4 chambres).Avec son architecture raffinée et élégante, villa riancourt s’intègre parfaitement dans le charme authentique malouin, entre bord de mer et vie de quartier. Profitez d’un emplacement privilégié où chaque détail a été pensé pour votre bien-être. Eligible au dispositif "jeanbrun" * pour de l'investissement location, toutes les informations auprès de nos conseillers commerciauxvenez découvrir la maquette de villa riancourt à notre espace de vente 33 bd féart à dinardcontact : jérôme dejan – 06 88 96 74 44 - jerome.dejan@groupearc.fr * investir comporte des risques, le non respect des engagements de location entraine la perte du bénéfice des incitations fiscales. Les informations sur les risques auxquels ce bien est exposé sont disponibles sur le site géorisques : .

À voir pour le même budget

Appartement 3 pièces 557300 €
557 300 €
-3 %

Appartement 3 pièces 117 m²

Saint-Malo (35400)

Rosa lopes vous propose à la vente un bien rare, idéalement situé au coeur de la célèbre cité corsaire de saint-malo intra-muros, à proximité immédiate des plages, des commerces et à seulement 10 minutes à pied de la gare tgv. D'une surface de 117 m², cet élégant appartement, situé au 2e étage d'un immeuble de charme, séduit par son authenticité, ses volumes généreux et sa luminosité remarquable. Dès l'entrée, une vaste entrée de 16 m² donne le ton et distribue harmonieusement les espaces. Elle s'ouvre sur une superbe pièce de vie de 42 m² avec cheminée, baignée de lumière et sublimée par une hauteur sous plafond exceptionnelle de 3,87 m, offrant un cadre à la fois chaleureux et raffiné. L'espace nuit se compose de deux grandes chambres confortables, idéales pour préserver calme et intimité. Une mezzanine vient compléter l'ensemble, parfaite pour un bureau, un espace lecture ou un couchage d'appoint. La cuisine indépendante, lumineuse et fonctionnelle, complète ce bien avec élégance. Un rafraîchissement est à prévoir, offrant ainsi l'opportunité de révéler tout le potentiel de ce bien et de le personnaliser selon vos envies. Alliant le charme de l'ancien et un emplacement privilégié, cet appartement offre un cadre de vie unique entre histoire et bord de mer, au pied des remparts emblématiques de la ville. Petite copropriété faibles charges prix de vente : 557 300 euros honoraires inclus de 5,44 % à la charge de l'acquéreur, soit 528 550 euros hors honoraires un bien d'exception, idéal en résidence principale comme en pied-à-terre de caractère dpe réalisé le 10 / 01 / 2024 classe énergétique : d= 199kw / an ges : d 34kg co2 / an, montant estimé des dépenses annuelles d'énergie pour un usage standard entre 1870 euros et 2280 euros indexées à l'année 2021 les informations sur les risques auxquels ce bien est exposé sont disponibles sur le site géorisques : pour visiter et vous accompagner dans votre projet, contactez rosa lopes, au 06 82 43 74 18 ou, par courriel à r.lopes@proprietes-privees.com. Selon l'article l. 561.5 du code monétaire et financier, pour l'organisation de la visite, la présentation d'une pièce d'identité vous sera demandée. Cette annonce a été réalisée sous la responsabilité éditoriale de rosa lopes agissant en qualité de conseiller immobilier indépendant sous portage salarial auprès de sas proprietes privees, au capital de 44 920 euros, zac le chêne ferré - 44 allée des cinq continents 44120 vertou; siret 487 624 777 00040, rcs nantes. Carte professionnelle transactions sur immeubles et fonds de commerce (t) et gestion immobilière (g) n°cpi 4401 2016 000 010 388 délivrée par la cci nantes - saint nazaire. Compte séquestre n°309 32 50 84 67 bpa saint-sebastien-sur-loire (44230). Garantie galian-smabtp - 89 rue de la boétie, 75008 paris - n°28137 j pour 2 000 000 euros pour t et 120 000 euros pour g. Assurance responsabilité civile professionnelle par galian-smabtp n° de police 28137. J mandat réf : 445988 - le professionnel garantit et sécurise votre projet immobilier. (5.44 % honoraires ttc à la charge de l'acquéreur.) copropriété de 7 lots. Charges annuelles : 960 euros.

Appartement 6 pièces 499500 €
499 500 €

Appartement 6 pièces 106 m²

Saint-Malo (35400)

Iad France - Fabien Caradec vous propose : Magnifique appartement à vendre à Saint-Malo Intra Muros ! Situé au cOEur de la charmante ville de Saint-Malo, cet appartement offre un cadre de vie de qualité et un confort optimal. Il présente un espace de vie lumineux et spacieux, idéal pour créer des espaces de vie personnalisés selon vos besoins. Il est composé d'une entrée desservant une chambre attenant à une buanderie (possibilité dressing, salle d'eau ou bureau) et le vaste salon-séjour et cuisine ouverte aménagée et équipée d'environ 40 m². Sa configuration permet l' indépendance de l'autre espace nuit avec 2 chambres dont une très grande de près de 18 m², et une salle d'eau avec les WC. Emplacement idéal, proche de toutes commodités : commerces, écoles, transports en commun. La plage n'est qu'à quelques minutes à pied, offrant un cadre de vie agréable et privilégié. En complément, vous bénéficiez d'un double grenier, d'une grande cave et d'un local à vélo. Faible charges de copropriété. À visiter sans tarder ! La presente annonce immobiliere vise 4 lots situés dans une copropriété de 27 lots au total et ne faisant l'objet d'aucune procédure en cours citée à l'article L. 721-1 du code de la construction et de l'habitation. Montant moyen mensuel de charges déclaré par le vendeur : 90€ par mois (soit 1080 € annuel). Honoraires d'agence à la charge du vendeur. Information d'affichage énergétique sur ce bien : classe ENERGIE D indice 187 et classe CLIMAT C indice 28. Les informations sur les risques auxquels ce bien est exposé, y compris l'obligation légale de débroussaillement, sont disponibles sur le site Géorisques : La présente annonce immobilière a été rédigée sous la responsabilité éditoriale de M Fabien Caradec mandataire indépendant en immobilier (sans détention de fonds), agent commercial de la SAS I@D France immatriculé au RSAC de rennes sous le numéro 842048266, titulaire de la carte de démarchage immobilier pour le compte de la société I@D France SAS.

Appartement 4 pièces 419000 €
419 000 €

Appartement 4 pièces 113 m²

Saint-Malo (35400)

Iad France - Pierre Godfrin vous propose : * 2 en 1 * Superbe Appartement (91 m²) + studio (22 m²) à Saint-Malo Intramuros - 2 Chambres - 1 Bureau + studio * Bienvenue à Saint-Malo, où se situe cet ensemble appartement + studio pour un total de 113 m² offrant des espaces à la fois chaleureux et fonctionnels. Idéalement agencé, ce bien conviendra parfaitement à une famille ou à des professionnels en quête d'un espace de travail à domicile. * Description des Pièces Appartement : * - 2 Chambres spacieuses offrant un espace de repos confortable - 1 Bureau pour travailler en toute tranquillité - 1 Salle d'eau pour plus de commodité - 1 Cuisine équipée & Aménagée - 1 Salon / salle à manger offrant un espace de vie convivial - 1 Toilette séparé * Description du Studio : * - 1 pièce de vie faisant office de chambre spacieuse offrant un espace de repos confortable - 1 Salle d'eau avec wc - 1 Cuisine équipée & Aménagée - 1 espace repas * Les Avantages : * - Spacieux - Offrant une belle surface habitable de 113 m² au total. - Excellente Situation - Au cOEur de Saint-Malo, proche des commodités et des transports - Bon État Général - Bénéficiant d'une construction de qualité datant de 1948 - Confort Optimal - Équipé de la fibre optique et d'un système de ventilation mécanique - Sécurité Assurée - Porte blindée et interphone pour votre tranquillité - Expositions Nord et Sud - Offrant une belle luminosité naturelle tout au long de la journée * Localisation et Commodités : * Idéalement situé au 4ème étage d'un immeuble de 5 niveaux avec ascenseur, cet appartement offre un accès rapide aux commerces, écoles et transports en commun. Profitez de la proximité de la plage pour des moments de détente inoubliables. * Une Opportunité à Saisir : * Ne manquez pas cette occasion unique d'acquérir un appartement et son studio avec une rentabilité intéressante à Saint-Malo. Contactez-moi dès maintenant pour planifier une visite et découvrir ce havre de paix au cOEur de la ville. La presente annonce immobiliere vise 2 lots situés dans une copropriété de 35 lots au total et ne faisant l'objet d'aucune procédure en cours citée à l'article L. 721-1 du code de la construction et de l'habitation. Montant moyen mensuel de charges déclaré par le vendeur : 50€ par mois (soit 600 € annuel). Honoraires d'agence à la charge du vendeur. Information d'affichage énergétique sur ce bien : classe ENERGIE D indice 239 et classe CLIMAT D indice 49. Les informations sur les risques auxquels ce bien est exposé, y compris l'obligation légale de débroussaillement, sont disponibles sur le site Géorisques : La présente annonce immobilière a été rédigée sous la responsabilité éditoriale de M Pierre Godfrin mandataire indépendant en immobilier (sans détention de fonds), agent commercial de la SAS I@D France immatriculé au RSAC de SAINT MALO sous le numéro 521775031, titulaire de la carte de démarchage immobilier pour le compte de la société I@D France SAS.

Appartement 4 pièces 487000 €
487 000 €

Appartement 4 pièces 94 m²

Saint-Malo (35400)

Iad France - Marine Géneril vous propose : Appartement T4 Entièrement Rénové - Intra-Muros Coup de cOEur assuré pour cet appartement rénové de 94 m², situé au 4ᵉ étage d’un immeuble de standing à Saint-Malo. L’emplacement de choix de ce bien vous permet de profiter pleinement de la vie en centre-ville tout en étant à l’abri de l’agitation urbaine, avec en prime un agréable aperçu sur la mer. Dès l’entrée, vous serez séduit par l’espace lumineux et moderne qu’offre cet appartement. Son vaste séjour est idéal pour accueillir vos moments conviviaux en famille ou entre amis. Les 3 chambres spacieuses offrent un coin de tranquillité parfait pour se reposer après une longue journée. La salle d’eau et le WC séparé apportent un confort supplémentaire aux habitants de ce bien. La cuisine totalement équipée et aménagée vous permettra de laisser libre cours à vos talents culinaires. De plus, la présence d’un ascenseur facilite l’accès au 4ᵉ étage, rendant votre quotidien plus pratique. Ne perdez pas de temps et venez vite découvrir ce bien d’exception où il fait bon vivre à Saint-Malo ! La presente annonce immobiliere vise 2 lots situés dans une copropriété de 50 lots au total et ne faisant l'objet d'aucune procédure en cours citée à l'article L. 721-1 du code de la construction et de l'habitation. Montant moyen mensuel de charges déclaré par le vendeur : 54.17€ par mois (soit 650 € annuel). Honoraires d'agence à la charge du vendeur. Information d'affichage énergétique sur ce bien : classe ENERGIE D indice 163 et classe CLIMAT D indice 35. Les informations sur les risques auxquels ce bien est exposé, y compris l'obligation légale de débroussaillement, sont disponibles sur le site Géorisques : La présente annonce immobilière a été rédigée sous la responsabilité éditoriale de Mme Marine Géneril mandataire indépendant en immobilier (sans détention de fonds), agent commercial de la SAS I@D France immatriculé au RSAC de RENNES sous le numéro 932120850, titulaire de la carte de démarchage immobilier pour le compte de la société I@D France SAS.

Appartement 5 pièces 449900 €
449 900 €

Appartement 5 pièces 118 m²

Saint-Malo (35400)

Iad France - Stéphanie Sillou vous propose : Coup de cOEur – 5 pièces lumineux avec belle hauteur sous plafond Au 3ᵉ étage, découvrez cet appartement plein de charme, lumineux et offrant une belle hauteur sous plafond. Il se compose d’une entrée, d’une cuisine aménagée et équipée, d’un séjour, d’un dégagement avec placards, de 3 chambres (dont une avec placards et une avec mezzanine), d’un bureau avec mezzanine qui peut faire office de chambre, d’une salle de bains avec douche et baignoire, ainsi que d’un WC séparé. deux greniers et une cave complète ce bien. Chauffage et eau chaude individuels électriques. La presente annonce immobiliere vise 5 lots situés dans une copropriété de 54 lots au total et ne faisant l'objet d'aucune procédure en cours citée à l'article L. 721-1 du code de la construction et de l'habitation. Montant moyen mensuel de charges déclaré par le vendeur : 83€ par mois (soit 996 € annuel). Honoraires d'agence à la charge du vendeur. Information d'affichage énergétique sur ce bien : classe ENERGIE E indice 317 et classe CLIMAT C indice 12. Les informations sur les risques auxquels ce bien est exposé, y compris l'obligation légale de débroussaillement, sont disponibles sur le site Géorisques : La présente annonce immobilière a été rédigée sous la responsabilité éditoriale de Mme Stéphanie Sillou mandataire indépendant en immobilier (sans détention de fonds), agent commercial de la SAS I@D France immatriculé au RSAC de SAINT MALO sous le numéro 485256531, titulaire de la carte de démarchage immobilier pour le compte de la société I@D France SAS.

Appartement 4 pièces 438000 €
438 000 €
-3 %

Appartement 4 pièces 97 m²

Saint-Malo (35400)

[disponibilite immediate - saint-malo] à 10 min à pied de la gare de saint-malo - appartements et maisons neufs, belles expositions - écoquartier de la caserne de lorette. Espaces de vie extérieurs privatifs pour chaque logement. Nous vous proposons 30 appartements neufs, lumineux et bien exposés, du t2 au t5 avec espaces extérieurs pour chaque logement : jardins privatifs, terrasses ou balcons. Découvrez également les maisons eko lodge : 5 maisons individuelles spacieuses et lumineuses. Les futurs habitants profiteront d'un jardin partagé aménagé et équipé d’un système de compostage, d'un local vélos équipé de panneaux solaires ou encore d'une bibliothèque partagée… la résidence favorise le lien social entre les résidents dans un environnement verdoyant. Idéalement située à 10 minutes à pied de la gare de saint-malo, eko lodge se trouve également à 5min en vélo de saint-servant et à 15 min à pied des plages. Les résidents profiteront de nombreuses commodités à proximité : commerces, pharmacie, cabinet médical, équipements scolaires, culturels et sportifs… a quelques pas, ils pourront découvrir le parc de la briantais et le grand aquarium de saint-malo. Consultez-nous ! Les informations sur les risques auxquels ce bien est exposé sont disponibles sur le site géorisques : .