Logo LSI sombre

Appartement 4 Pièces 87 m² à vendre à Meudon (92190)
Photo N° 2
Photo N° 3
3

Vente appartement 4 pièces 87 m² Meudon (92190)

549 500 €

Vente Appartement 4 pièces

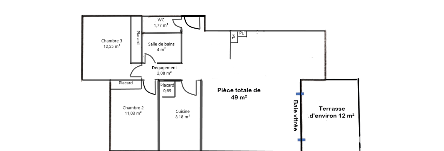
Iad France - Géraldine Faugeras vous propose : Meudon Bellevue - Appartement T3 - T4 avec Terrasse - Résidence de Standing - Calme et verdure - Proximité immédiate des commerces, transports. Au cOEur de Bellevue, niché au fond d'une résidence calme, sécurisée et verdoyante, découvrez cet appartement de 87.87 m² offrant un cadre de vie exceptionnel à ses résidents. Situé au rez de chaussée d'un immeuble de 3 niveaux construit en 1988, cet appartement est idéal pour une famille ou un couple à la recherche d'un lieu de vie confortable et paisible. Il se compose d'une entrée avec rangements, d'un WC invités, d'un vaste double séjour de 38 m² avec accès direct sur une terrasse, d'une cuisine indépendante, de 2 belles chambres, d'une salle d'eau avec WC. Les pièces sont spacieuses avec placards intégrés, offrant un espace de vie convivial et chaleureux. L’agencement actuel permet la création d’une troisième chambre avec salle d’eau, offrant une belle flexibilité selon vos besoins (famille, télétravail, suite parentale). Idéalement situé, à proximité immédiate des commerces, des écoles et des transports en commun, cet appartement bénéficie d'une localisation pratique au quotidien. Une place de parking en sous-sol et une cave viennent compléter ce bien, offrant des solutions pratiques pour le stationnement et le rangement. La presente annonce immobiliere vise 3 lots situés dans une copropriété de 64 lots au total et ne faisant l'objet d'aucune procédure en cours citée à l'article L. 721-1 du code de la construction et de l'habitation. Montant moyen mensuel de charges déclaré par le vendeur : 171.67€ par mois (soit 2060 € annuel). Honoraires d'agence à la charge de l'acquéreur. Prix honoraires inclus : 549500 euros. Prix hors honoraires : 533000 euros. Honoraires TTC à la charge de l'acquéreur (3,10% du prix du bien hors honoraires) : 16500 euros. Information d'affichage énergétique sur ce bien : classe ENERGIE D indice 247 et classe CLIMAT B indice 8. Les informations sur les risques auxquels ce bien est exposé, y compris l'obligation légale de débroussaillement, sont disponibles sur le site Géorisques : La présente annonce immobilière a été rédigée sous la responsabilité éditoriale de Mme Géraldine Faugeras mandataire indépendant en immobilier (sans détention de fonds), agent commercial de la SAS I@D France immatriculé au RSAC de NANTERRE sous le numéro 877727248, titulaire de la carte de démarchage immobilier pour le compte de la société I@D France SAS.

Caractéristiques

Les plus de cette annonce
  • Ascenseur
  • Parking
  • Cave
  • Meublé
  • Terrasse
  • Standing
  • Calme
Confort
  • Chauffage Individuel
  • Chauffage Electrique
  • Placards
Pièces
  • 4 pièces
  • 2 chambres
  • Salle d'eau
Superficies
  • Surface habitable : 87 m²
Sécurité
  • Digicode
  • Interphone

Consommation énergétique et gaz à effet de serre

Bilan énergétique (DPE)
Bilan gaz à effet de serre (GES)

Géorisques

Les informations sur les risques auxquels ce bien est exposé sont disponibles sur le site Géorisques : www.georisques.gouv.fr

À propos de la copropriété

  • Nombre de lots de la copropriété : 64

A propos du prix de cet appartement

  • Prix : 549 500 € (soit 6 316 € / m²)
  • Prix hors honoraires acquéreur : 533 000 €

À propos de cette annonce

Mise en ligne:

Dernière mise à jour:

Référence de l'annonce: 1990577
iad france agence immobilière à Lieusaint (77127)
iad france
Afficher le numéro

Appartement similaires à acheter Meudon (92190)

Appartement 4 pièces 539000 €
539 000 €

Appartement 4 pièces 80 m²

Meudon (92190)

Plongez dans le charme de cet appartement de 80 m², récemment rénové, situé au cœur de Meudon. Niché au premier étage d'un immeuble de trois étages, ce bien offre un cadre de vie paisible et verdoyant, parfait pour ceux qui souhaitent allier tranquillité et proximité des commodités urbaines. Dès votre arrivée, vous serez séduit par un vaste séjour de 27 m², inondé de lumière grâce à son orientation sud-ouest, créant une ambiance chaleureuse et sans vis-à-vis. La cuisine moderne, ouverte et entièrement équipée, prolonge cet espace convivial et s'ouvre sur un balcon de 7 m², idéal pour savourer une vue dégagée sur la nature environnante. L'appartement propose trois chambres confortables, toutes dotées de rangements intégrés et offrant une vue apaisante sur le jardin intérieur de la copropriété. Une salle de bains contemporaine vient parfaire cet ensemble harmonieux. Le bien est en excellent état général, avec une distribution des espaces optimisée et des performances énergétiques satisfaisantes, prêt à accueillir ses nouveaux occupants. En complément, vous profiterez d'une cave électrifiée, d'une place de parking extérieure et d'un local à vélos, parfait pour explorer les environs boisés. Le quartier de Bellevue est particulièrement prisé pour ses établissements scolaires de qualité, tels que les écoles Maritain Renan, La Fontaine, et le collège Bel Air, tous facilement accessibles. Les établissements privés La Source, Saint-Joseph et Notre-Dame sont également à proximité. Les familles apprécieront la présence de crèches et de haltes-garderies à deux pas. Pour vos moments de détente, le parc Gilbert Gauer et le square Nony-Brayer se trouvent à seulement 400 m, tandis que le square Lenormand est à environ 700 m. Côté transports, les gares de Bellevue et de Sèvres Rive Gauche, à moins de 800 m, facilitent vos déplacements en train. Caractéristiques techniques : - Surface : 80 m² - Étage : 1er sur 3 - Chauffage : collectif au sol, eau chaude individualisée - Charges de copropriété : 470 € / mois - Taxe foncière : 1925 € - DPE : D Mentions légales : Les informations publiées ci‑dessus sont fournies à titre indicatif et n'engagent pas la responsabilité du diffuseur. Il est conseillé aux personnes intéressées de réaliser des vérifications techniques et administratives (diagnostics, contrôle des plans, permis, cadastre, servitudes) auprès des autorités compétentes ou d'experts indépendants avant toute décision. Les données officielles relatives aux risques et à l'urbanisme sont accessibles sur . Pour toute question, contactez Zefir au 07 57 91 70 93.

Appartement 4 pièces 539000 €
539 000 €

Appartement 4 pièces 80 m²

Meudon (92190)

Abriculteurs vous invite à découvrir cet appartement de 80 m² situé au premier étage d'une résidence de trois niveaux à taille humaine (sans ascenseur). L'entrée. équipée de rangements. distribue une pièce de vie spacieuse de 28 m². Cet espace intègre une cuisine ouverte meublée et s'ouvre directement sur un balcon de 7 m². Exposé sud-ouest. cet extérieur offre un panorama direct sur la lisière du bois. sans vis-à-vis. La partie nuit. au calme. s'organise en deux pôles. D'un côté. une première chambre se situe à proximité immédiate de la salle de bains. De l'autre côté de l'entrée. le dégagement dessert une grande chambre avec un double dressing aménagé. ainsi qu'une troisième chambre dotée d'un placard et d'un espace buanderie ainsi que des toilettes indépendantes. Une cave saine avec électricité ainsi qu'une place de parking extérieure complètent ce bien. La résidence sécurisée par un gardien met également à disposition un local à vélos. La localisation permet un accès direct à la forêt pour les activités de plein air. Les infrastructures scolaires se trouvent dans un rayon immédiat : le lycée La Source est à 200 mètres. et les écoles primaires (Maritain Renan. Les Bruyères) sont accessibles en moins de 7 minutes à pied. Pour les déplacements. les gares de Bellevue et de Sèvres Rive Gauche se situent à moins de 800 mètres. Les + du bien : - Vue et Exposition : Balcon de 7 m² orienté Sud-Ouest avec vue sur la forêt. - Agencement : Trois chambres distinctes et une pièce de vie de 27 m² avec cuisine ouverte. - Annexes : Cave électrifiée. place de parking privée et local vélos dans une résidence avec gardien. À noter : - Taxes foncières : 1 925 € - Charges de copropriété : 5 116 € / an (Chauffage. eau. gardien. entretien des parties communes et espaces verts) - État du bien : Bon état - Le bien est soumis au statut de copropriété - 102 lots dont 30 lots d'habitation - Appartement lot n°8 – cave lot n°49 – Parking Lot n°79 - Pas de procédure en cours Consommation conventionnelle (kWhEP / m2. an) : 224 (D) Estimation des émissions (kg CO2 / m2. an) : 15 (C) Prix de vente : 539 000 € (Honoraires agence à la charge du vendeur) Vente en délégation de mandat Les informations sur les risques auxquels ce bien est exposé sont disponibles sur le site Géorisques : Annonce rédigée sous la responsabilité éditoriale de Mme Isabelle BRUT-FRANCIS. agent commercial (EI). immatriculé au RSAC de Nanterre sous le n° 903 553 295. sans détention de fonds. agissant pour le compte de la SARL Abriculteurs immobilier. au capital de 5 000 €. immatriculée sous le SIREN n° 837 704 584. titulaire de la carte professionnelle n° CPI 7501 2018 000 025 842 délivrée par la CCI de Paris Île-de-France. dont le représentant légal est M. Adrien Piot. ayant son siège social au 12 rue des Halles. 75001 Paris. Les informations sur les risques auxquels ce bien est exposé sont disponibles sur le site Isabelle FRANCIS RSAC NANTERRE 903 553 295.

Appartement 4 pièces 549000 €
549 000 €
-1 %

Appartement 4 pièces 86 m²

Meudon (92190)

Iad France - Emmanuel Brault vous propose : Découvrez ce magnifique Appartement en parfait état de 4 pièces, 3 chambres, avec terrasse exceptionnelle de 72 m² dans un immeuble récent de 2020 au cOEur de l'écoquartier de Meudon-La-Forêt. Nous sommes à proximité immédiate de la forêt de Meudon, de l'A86, du centre commercial Vélizy 2, et à 4 minutes à pied du tramway T6 station 'Georges Millandy'. L'appartement se situe au cOEur d'une vie de quartier avec ses commerces, ses restaurants et l'UCPA à quelques pas. Situé au 7e étage sur 8 avec ascenseur, cet appartement confortable, spacieux et lumineux de 86 m² conviendra à toute la famille. Le double séjour de 30 m² avec cuisine ouverte équipée et fonctionnelle, donne sur une terrasse exceptionnelle de 72 m² ainsi que sur un balcon de 12 m². Vous ne quitterez plus votre extérieur à la belle saison ! L'appartement dispose également de trois chambres, dont l'une avec salle d'eau privative et WC. Une salle de bains avec baignoire ainsi qu'un deuxième WC indépendant complètent le bien. Cet appartement est confortable avec de nombreux rangements (placards, penderie) et le chauffage collectif urbain. Un parking dans la résidence est vendu avec le bien. Cet appartement familial, calme, lumineux et confortable, offre un cadre de vie serein et moderne à ses futurs occupants. N'attendez plus pour visiter ! La presente annonce immobiliere vise 2 lots situés dans une copropriété de 460 lots au total et ne faisant l'objet d'aucune procédure en cours citée à l'article L. 721-1 du code de la construction et de l'habitation. Montant moyen mensuel de charges déclaré par le vendeur : 261.73€ par mois (soit 3140.76 € annuel). Honoraires d'agence à la charge du vendeur. Information d'affichage énergétique sur ce bien : classe ENERGIE C indice 119 et classe CLIMAT C indice 28. Les informations sur les risques auxquels ce bien est exposé, y compris l'obligation légale de débroussaillement, sont disponibles sur le site Géorisques : La présente annonce immobilière a été rédigée sous la responsabilité éditoriale de M Emmanuel Brault mandataire indépendant en immobilier (sans détention de fonds), agent commercial de la SAS I@D France immatriculé au RSAC de Paris sous le numéro 925042608, titulaire de la carte de démarchage immobilier pour le compte de la société I@D France SAS.

À voir pour le même budget

Appartement 4 pièces 485000 €
485 000 €

Appartement 4 pièces 77 m²

Meudon (92360)

Au cœur du nouvel écoquartier de Meudon-la-Forêt, découvrez ce superbe appartement 4 pièces situé au quatrième étage d'une résidence récente de 2022. À seulement 200 mètres du tramway T6, des commerces et à proximité immédiate du centre commercial Westfield Vélizy 2 et UCPA Sport Station Meudon, vous profitez d'un cadre de vie moderne, pratique et verdoyant, à deux pas de la forêt domaniale de Meudon. Dès l'entrée, la luminosité frappe. Exposé plein ouest, l'appartement offre un bel espace de vie de 28 m² avec séjour et cuisine ouverte contemporaine entièrement équipée. Les larges ouvertures prolongent naturellement l'espace vers une exceptionnelle terrasse de 45 m², véritable pièce à vivre extérieure avec vue dégagée sur jardin paysager. Un espace idéal pour les soirées d'été, les repas en famille ou simplement profiter du soleil en fin de journée. L'espace nuit se compose de trois chambres confortables de 11 m², 9 m² et 13 m², d'une salle d'eau avec WC, d'une salle de bains et toilettes séparées. L'agencement est fonctionnel, parfaitement adapté à une vie de famille. Les prestations sont au rendez-vous : double vitrage, volets roulants électriques, isolation aux normes RT récentes, ascenseur, accès PMR, interphone, digicode et vidéosurveillance. Une place de parking privative PMR en sous-sol accessible par ascenseur complète le bien, ainsi qu'un local vélo. Venez visiter ce bien rare sur le secteur, combinant modernité, espace extérieur exceptionnel et emplacement stratégique. Coup de cœur assuré ! Le bien comprend 2 lots, et il est situé dans une copropriété de 337 lots (les charges courantes annuelles moyennes de copropriété sont de 3520 € et le syndicat des copropriétaires ne fait pas l'objet d'une procédure citée à l'article L. 721-1 du code de la construction et de l'habitation). Les informations sur les risques auxquels ce bien est exposé sont disponibles sur le site Géorisques : Prix de vente : 485 000 € Honoraires charge vendeur Contactez votre conseiller SAFTI : Adrian DUMINICA, Tél. : 07 60 86 65 61, E-mail : adrian.duminica@safti.fr - EI - Agent commercial immatriculé au RSAC de NANTERRE sous le numéro 883 748 535.

Appartement 4 pièces 495000 €
495 000 €

Appartement 4 pièces 83 m²

Meudon (92190)

Iad France - Julien Chaput vous propose : 4 Pièces avec Balcon - Meudon Bellevue & Forêt Domaniale Situé en haut de Bellevue et à deux pas de la forêt domaniale de Meudon, découvrez cet appartement familial T4 parfaitement agencé. Un espace de vie lumineux et ouvert Dès l'entrée, vous serez séduits par la clarté du séjour spacieux, baigné de lumière naturelle grâce à ses larges ouvertures. La pièce de vie s'ouvre sur un grand balcon filant de plus de 11 m², véritable extension de l'appartement. Fonctionnalité et Modernité Le bien se compose de : •Une cuisine indépendante aménagée et équipée, moderne avec ses finitions bois, offrant de nombreux rangements et un plan de travail optimisé. •Trois chambres confortables, dont une dispose d'un accès au balcon. •Une salle de bain contemporaine avec baignoire, pare-douche et espace buanderie intégré. •Un dressing indépendant pour un rangement optimal et des WC séparés. Les atouts du bien : •Une place de parking attitrée (en extérieur), et une cave de 5 m² complètent le bien. •Emplacement privilégié : Accès immédiat à la forêt de Meudon pour les amateurs de sport et de balades. En voiture : Quais de Seine à 3 min. Westfield Vélizy à 5 min. En transport : Montparnasse à 13 min. par le Transilien N (10 min. à pied). Nombreuses écoles à proximité directe (Notre Dame, La Source …). •État impeccable : Parquet de qualité, double vitrage et décoration soignée (aucun travaux à prévoir). •Distribution idéale : Le plan 'en étoile' maximise l'espace sans perte de place. Cet appartement allie le confort urbain et la forêt à deux pas. Une opportunité sur le secteur, idéale pour une famille en quête de nature sans trop s’éloigner de Paris La presente annonce immobiliere vise 3 lots situés dans une copropriété de 78 lots au total et ne faisant l'objet d'aucune procédure en cours citée à l'article L. 721-1 du code de la construction et de l'habitation. Montant moyen mensuel de charges déclaré par le vendeur : 416.67€ par mois (soit 5000 € annuel). Honoraires d'agence à la charge du vendeur. Information d'affichage énergétique sur ce bien : classe ENERGIE D indice 218 et classe CLIMAT D indice 47. Les informations sur les risques auxquels ce bien est exposé, y compris l'obligation légale de débroussaillement, sont disponibles sur le site Géorisques : La présente annonce immobilière a été rédigée sous la responsabilité éditoriale de M Julien Chaput mandataire indépendant en immobilier (sans détention de fonds), agent commercial de la SAS I@D France immatriculé au RSAC de NANTERRE sous le numéro 504924424, titulaire de la carte de démarchage immobilier pour le compte de la société I@D France SAS.

Appartement 3 pièces 555000 €
555 000 €

Appartement 3 pièces 62 m²

Meudon (92190)

Début des ventes – un cadre de vie d’exception à meudon au cœur d’un environnement calme et arboré, à deux pas du parc de l’observatoire et aux portes de la forêt domaniale de meudon, découvrez une résidence intimiste de seulement 26 logements, offrant des vues dégagées à couper le souffle, avec paris et la tour eiffel en ligne d’horizon. L’architecture contemporaine et épurée, sublimée par des parements en bois, s’intègre harmonieusement dans ce cadre naturel et verdoyant. Les appartements, du 2 au 5 pièces, bénéficient de beaux espaces extérieurs pour profiter pleinement de la quiétude des lieux. Une résidence engagée, certifiée nf habitat hqe et conforme à la re2020 seuil 2025, gage de confort, de qualité et de performance environnementale les informations sur les risques auxquels ce bien est exposé sont disponibles sur le site géorisques : .

Appartement 6 pièces 485000 €
485 000 €

Appartement 6 pièces 104 m²

Sèvres (92310)

Iad France - Laurence Le Floc'h vous propose : Dernier étage – Appartement familial en lisière de forêt Situé au 5ᵉ et dernier étage d’une résidence à taille humaine, accessible par ascenseur et idéalement implantée en bordure de forêt, cet appartement familial aux volumes généreux offre un cadre de vie paisible et verdoyant. Dès l’entrée, vous serez séduit par sa belle luminosité sud / ouest et sa spacieuse pièce de vie, prolongée par un balcon, parfait pour profiter des beaux jours en toute tranquillité, face à un environnement préservé. La cuisine indépendante offre un réel potentiel d’ouverture sur le séjour, permettant de créer un espace de vie encore plus convivial et contemporain. L’espace nuit, parfaitement agencé, comprend : . une suite parentale avec salle d’eau,. trois chambres supplémentaires,. une salle de bains,. des toilettes indépendantes, ainsi que de nombreux rangements. Cet appartement constitue un bien idéal pour une famille, alliant calme, fonctionnalité et proximité des commodités. Des travaux de rafraîchissement permettront de révéler pleinement son potentiel et de le personnaliser selon vos envies. Une cave ainsi que deux places de stationnement complètent ce bien. La résidence dispose également d'un local à vélos. L’appartement est idéalement situé sur la rive gauche de Sèvres, offrant un accès à la gare de Sèvres Rive Gauche (ligne N vers Montparnasse). La presente annonce immobiliere vise 3 lots situés dans une copropriété de 3 lots au total et ne faisant l'objet d'aucune procédure en cours citée à l'article L. 721-1 du code de la construction et de l'habitation. Montant moyen mensuel de charges déclaré par le vendeur : 365€ par mois (soit 4380 € annuel). Honoraires d'agence à la charge du vendeur. Information d'affichage énergétique sur ce bien : classe ENERGIE E indice 312 et classe CLIMAT B indice 9. Les informations sur les risques auxquels ce bien est exposé, y compris l'obligation légale de débroussaillement, sont disponibles sur le site Géorisques : La présente annonce immobilière a été rédigée sous la responsabilité éditoriale de Mme Laurence Le Floc'h mandataire indépendant en immobilier (sans détention de fonds), agent commercial de la SAS I@D France immatriculé au RSAC de Nanterre sous le numéro 477719439, titulaire de la carte de démarchage immobilier pour le compte de la société I@D France SAS.

Appartement 3 pièces 538000 €
538 000 €

Appartement 3 pièces 62 m²

Sèvres (92310)

Du 16 / 03 / 2026 au 30 / 04 / 2026 : Jusqu'à 30000€ de remise. voir conditions sur Kaufmanbroad. fr. Calme, verdure et tradition réunis au sein de cette adresse d’exception, à proximité immédiate de la forêt de Meudon et des écoles renommées de la ville. L’architecture classique et particulièrement élégante met en scène de larges toitures mansardées avec des parements en pierre ou en meulière. Cette nouvelle résidence accueille 23 appartements  à partir du 2 pièces, avec une large palette de surfaces familiales de 4 et 5 pièces. Parfaitement agencés, ils s’ouvrent vers  de beaux espaces extérieurs. Certifiés NF Habitat et RE 2020, ils assurent un bien-être idéal et des charges réduites durablement. À 15 min à pied du Transilien ralliant Montparnasse en 15 min, cette adresse allie proximité de Paris, accès rapide à la nature et qualité d’une vie de quartier. École Les Bruyères à 5 min à pied Architecture classique Balcons, terrasses ou jardins Quartier calme et préservé Résidence intimiste * Source : Google maps Les informations sur les risques auxquels ce bien est exposé sont disponibles sur le site Géorisques : .

Appartement 4 pièces 539000 €
539 000 €

Appartement 4 pièces 80 m²

Meudon (92190)

Plongez dans le charme de cet appartement de 80 m², récemment rénové, situé au cœur de Meudon. Niché au premier étage d'un immeuble de trois étages, ce bien offre un cadre de vie paisible et verdoyant, parfait pour ceux qui souhaitent allier tranquillité et proximité des commodités urbaines. Dès votre arrivée, vous serez séduit par un vaste séjour de 27 m², inondé de lumière grâce à son orientation sud-ouest, créant une ambiance chaleureuse et sans vis-à-vis. La cuisine moderne, ouverte et entièrement équipée, prolonge cet espace convivial et s'ouvre sur un balcon de 7 m², idéal pour savourer une vue dégagée sur la nature environnante. L'appartement propose trois chambres confortables, toutes dotées de rangements intégrés et offrant une vue apaisante sur le jardin intérieur de la copropriété. Une salle de bains contemporaine vient parfaire cet ensemble harmonieux. Le bien est en excellent état général, avec une distribution des espaces optimisée et des performances énergétiques satisfaisantes, prêt à accueillir ses nouveaux occupants. En complément, vous profiterez d'une cave électrifiée, d'une place de parking extérieure et d'un local à vélos, parfait pour explorer les environs boisés. Le quartier de Bellevue est particulièrement prisé pour ses établissements scolaires de qualité, tels que les écoles Maritain Renan, La Fontaine, et le collège Bel Air, tous facilement accessibles. Les établissements privés La Source, Saint-Joseph et Notre-Dame sont également à proximité. Les familles apprécieront la présence de crèches et de haltes-garderies à deux pas. Pour vos moments de détente, le parc Gilbert Gauer et le square Nony-Brayer se trouvent à seulement 400 m, tandis que le square Lenormand est à environ 700 m. Côté transports, les gares de Bellevue et de Sèvres Rive Gauche, à moins de 800 m, facilitent vos déplacements en train. Caractéristiques techniques : - Surface : 80 m² - Étage : 1er sur 3 - Chauffage : collectif au sol, eau chaude individualisée - Charges de copropriété : 470 € / mois - Taxe foncière : 1925 € - DPE : D Mentions légales : Les informations publiées ci‑dessus sont fournies à titre indicatif et n'engagent pas la responsabilité du diffuseur. Il est conseillé aux personnes intéressées de réaliser des vérifications techniques et administratives (diagnostics, contrôle des plans, permis, cadastre, servitudes) auprès des autorités compétentes ou d'experts indépendants avant toute décision. Les données officielles relatives aux risques et à l'urbanisme sont accessibles sur . Pour toute question, contactez Zefir au 07 57 91 70 93.