Logo LSI sombre

Appartement 4 Pièces 79 m² à vendre à Ittenheim (67117)
Photo N° 2
2

Vente appartement 4 pièces 79 m² Ittenheim (67117)

275 000 €

T4 - Fort Potentiel - Environnement calme

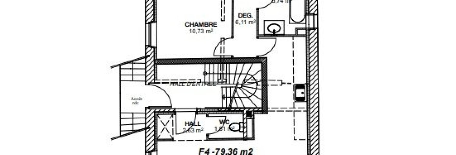
Situé à Handschuheim, dans un environnement calme et authentique à proximité d'Ittenheim, découvrez ce bel appartement 4 pièces d'environ 79 m², au sein d'un ancien corps de ferme en cours de réhabilitation. Ce bien offre de beaux volumes et un fort potentiel d'aménagement, permettant de concevoir un intérieur moderne tout en conservant le charme de l'ancien. L'appartement se compose de 4 pièces permettant d'imaginer un espace de vie convivial avec séjour, cuisine ouverte, ainsi que 3 chambres. Possibilité d'acquérir en complément un grand garage de 25 m² ainsi que des places de stationnement, pour un confort de vie optimal au quotidien. Profitez du calme d'un village tout en restant à seulement 15 minutes de Strasbourg et proche des commodités. Les atouts du bien : - Cachet d'un ancien corps de ferme - Bien en cours de réhabilitation - Fort potentiel de personnalisation - Environnement calme et agréable - Idéal famille ou primo-accédant Contactez-moi pour plus d'informations sur ce projet et ses possibilités d'aménagement. Le bien comprend 1 lot, et il est situé dans une copropriété de 39 lots (les charges courantes annuelles moyennes de copropriété sont de 1422 € et le syndicat des copropriétaires ne fait pas l'objet d'une procédure citée à l'article L. 721-1 du code de la construction et de l'habitation). Les informations sur les risques auxquels ce bien est exposé sont disponibles sur le site Géorisques : Prix de vente : 275 000 € Honoraires charge vendeur Contactez votre conseiller SAFTI : Flavien BOURASSIN, Tél. : 06 70 13 88 36, E-mail : flavien.bourassin@safti.fr - EI - Agent commercial immatriculé au RSAC de Strasbourg sous le numéro 943983304.

Caractéristiques

Les plus de cette annonce
  • Garage
  • Beaux volumes
  • Calme
Pièces
  • 4 pièces
  • 3 chambres
  • Cuisine ouverte
Superficies
  • Surface habitable : 79 m²
Environnement
  • Situation : campagne

Consommation énergétique et gaz à effet de serre

Bilan énergétique (DPE)
NC
Bilan gaz à effet de serre (GES)
NC

Géorisques

Les informations sur les risques auxquels ce bien est exposé sont disponibles sur le site Géorisques : www.georisques.gouv.fr

À propos de la copropriété

  • Nombre de lots de la copropriété : 39

A propos du prix de cet appartement

  • Prix : 275 000 € (soit 3 481 € / m²)
  • Honoraires à charge vendeur

À propos de cette annonce

Mise en ligne:

Dernière mise à jour:

Référence de l'annonce: 1627167
SAFTI agence immobilière à Toulouse (31)
SAFTI
Afficher le numéro

À voir pour le même budget

Appartement 3 pièces 279000 €
279 000 €

Appartement 3 pièces 72 m²

Ittenheim (67117)

Situé à Handschuheim, dans un environnement calme et recherché à proximité immédiate d'Ittenheim, découvrez ce bel appartement 3 pièces neuf d'environ 72 m², au sein d'une petite copropriété. Venez découvrir un espace de vie moderne et lumineux. Vous profiterez d'un vaste séjour avec cuisine ouverte, idéal pour recevoir, donnant accès à une grande terrasse d'environ 24 m², parfaite pour vos repas en extérieur ou vos moments de détente. Deux chambres confortables, une salle de bain et un WC séparé complètent ce bien fonctionnel et bien agencé. Les avantages de ce bien : - Appartement neuf (frais de notaire réduits) - Chauffage au sol - Finitions personnalisables selon vos envies - Garage + place de stationnement en sus - Petite copropriété à taille humaine À seulement 15 minutes de Strasbourg, profitez du calme d'un village tout en restant proche de toutes les commodités. Contactez-moi pour venir visiter cette opportunité, idéale pour votre premier achat ou un investissement serein ! Le bien comprend 1 lot, et il est situé dans une copropriété de 39 lots (les charges courantes annuelles moyennes de copropriété sont de 1299 € et le syndicat des copropriétaires ne fait pas l'objet d'une procédure citée à l'article L. 721-1 du code de la construction et de l'habitation). Les informations sur les risques auxquels ce bien est exposé sont disponibles sur le site Géorisques : Prix de vente : 279 000 € Honoraires charge vendeur Contactez votre conseiller SAFTI : Flavien BOURASSIN, Tél. : 06 70 13 88 36, E-mail : flavien.bourassin@safti.fr - EI - Agent commercial immatriculé au RSAC de Strasbourg sous le numéro 943983304.

Appartement 3 pièces 295000 €
295 000 €

Appartement 3 pièces 78 m²

Ittenheim (67117)

En exclusivité dans votre agence Christelle Clauss Immobilier Découvrez ce magnifique appartement construit en 2025, situé dans la commune de Ittenheim, à proximité immédiate de toutes les commodités et des axes autoroutiers. D'une superficie de 78,36 m², il offre des volumes confortables et une belle luminosité. L'appartement se situe au 1er étage, accessible par ascenseur ou escalier. Une élégante entrée dessert une très grande pièce de vie baignée de lumière, exposée plein sud. La pièce maîtresse de l'appartement est incontestablement la cuisine, aménagée et entièrement équipée, ouverte sur un coin salon cosy avec accès direct à une belle terrasse couverte, sans vis-à-vis, grâce à une grande baie vitrée coulissante. Les prestations sont haut de gamme, avec notamment un magnifique carrelage et des fenêtres de qualité signées Bieber, apportant confort et performance. L'espace nuit dispose de deux chambres, d'une grande salle d'eau avec coin buanderie et fenêtre, ainsi que de WC séparés. Le logement bénéficie également de nombreux rangements. Côté confort, l'appartement propose un chauffage au sol au gaz collectif avec compteur individuel ainsi que des volets motorisés. Le bien se complète par une place de parking extérieure et un garage en sous-sol. Contactez-nous pour organiser une visite et découvrir ce bien sans tarder. (4.61 % d'honoraires TTC à la charge de l'acquéreur.) Copropriété de 17 lots - dont 17 lots habitation. (Pas de procédure en cours). Charges annuelles : 2600.00 euros.

Appartement 2 pièces 284000 €
284 000 €

Appartement 2 pièces 70 m²

Ittenheim (67117)

Lancement ! Nouvelle residence situee a ittenheim, en bordure de champs ! 


 en bref. 

 * vivre à la campagne à 15mn seulement de strasbourg ! * 

 venez vite découvrir cette petite résidence de 15 logements, au bord des champs, dans un nouveau lotissement à ittenheim ! 
 ce grand 3p idéalement agencé, est situé en rez-de-jardin, offrant 115 m² d'espace extérieur sans vis a vis ! 
 le séjour, est ultra lumineux puisqu'il dispose d'une double orientation. Le grand cellier présent à côté de la cuisine, permet d'apporter des rangements supplémentaires au vaste placard de l'entrée. 
 les deux chambres, quant à elles, sont spacieuses puisqu'elles mesurent chacunes 13 et 12 m² ! 
 le wc est séparé, et dispose même d'un lave-main. 
 la salle de bain elle, est entièrement équipée avec lave-main et spacieuse douche. 

 l'appartement sera disponible courant du printemps 2026. 

 les +: 
- re2020 = tres peu energivore ! 
- ascenseur;
- commune du kochersberg très prisée;
- pompe a chaleur;
- plancher chauffant;
- volets roulants électriques;
- sdb entièrement équipée;
- finitions premium / coloris au choix;
- possibilité d'acquérir un garage / parking / cave en sus. 

 la commune : 

 ittenheim est une charmante commune de 2000 habitants, située à 10 km de strasbourg. Village faisant parti du kochersberg, il est connu pour la halte régulière de napoléon bonaparte en 1805.

 dans la commune on dénombre de très nombreuses et magnifiques maisons ou fermes alsaciennes, des grands corps de fermes édifiés entre 1790 et 1840 qui donnent un cachet évident au village. 

 on retrouve l'ensemble des commerces / services / écoles dans la commune. La vie associative y est également bien présente. 

 le village est facilement accessible via bus (fluo), et n'est qu'à 1 arret de strasbourg halles. (passage toutes les 30mn pour un trajet de 17mn). 
 en voiture, l'eurométropole est située à 15mn. 

 pour obtenir des renseignements rapidement, contactez votre conseiller dédié bonaparte promotion : 
 adrien lemaire
 06 38 05 60 48

 et / ou rendez-vous en agence sur rdv : 
 bonaparte promotion
 14 rue des mercuriales
 67450 lampertheim
 tel : 03 88 663 555
.

Appartement 3 pièces 305000 €
305 000 €
+6 %

Appartement 3 pièces 68 m²

Ittenheim (67117)

Le Strissel, située à Ittenheim, offre un cadre de vie exceptionnel à ses habitants.  Composée de 15 logements spacieux allant du 2 au 4 pièces, la résidence propose une diversité d'espaces adaptés aux besoins de chacun. À seulement 15 minutes en voiture de Strasbourg, elle bénéficie d'une proximité appréciable avec le dynamisme de la ville tout en offrant un havre de paix loin de l'agitation urbaine. Son emplacement privilégié facilitera le quotidien des résidents par la proximité immédiate de tous types de commerces, structures scolaires, médicales et commodités. Les logements bien agencés offrent un confort optimal, tandis que les espaces communs soigneusement aménagés favorisent les échanges entre les résidents. Que ce soit pour une vie familiale épanouissante ou pour profiter de la quiétude d'un village aux portes de Strasbourg, la résidence Le Strissel se présente comme une adresse de choix à Ittenheim ! Les prestations de la résidence  : RE2020 (-10%); Ascenseur; Isolation thermique renforcée ; Garages, parkings sous-sol et extérieurs, caves ; Local à vélos. Les prestations des logements  : Pompe à chaleur collective; Plancher chauffant basse température; Salles de bains équipées, sèche-serviettes, meuble vasque, douche à l'italienne ou baignoire; WC suspendus; Volets roulants motorisés; Parquet contrecollé, carrelage dans les pièces humides; Peinture lisse sur les murs et plafonds; Livraison clés en main et personnalisation intégrale de votre appartement dans une large gamme de choix de finition. Profitez également des avantages du neuf :  frais de notaire réduits / faibles charges / pas de travaux à prévoir Perspective non contractuelleTarifs hors annexes Les informations sur les risques auxquels ce bien est exposé sont disponibles sur le site Géorisques : .

Appartement 2 pièces 279000 €
279 000 €
-9 %

Appartement 2 pièces 73 m²

Handschuheim (67117)

Exceptionnel 3p de 73 m² dans une petite résidence de 9 logements ! 

 les nombreux atouts de ce logement en font une perle rare ! 
 grands espaces intérieurs et extérieur.


 l’appartement : 

 séjour ultra lumineux avec cuisine ouverte, de 36 m² 
 une salle de bain entièrement équipée 
 un wc suspendu avec lave-main
 deux chambres de 12 m².

 possibilité de stationnement (garage / parking) en sus. 

 equipements / deco sur mesure : 
 très belles finitions proposées : chauffage au sol par chaudière individuelle, carrelage ou parquet au choix / peinture lisse murs et plafonds.
 chaque salle de bain est équipée d'une douche / baignoire, un meuble vasque avec miroir led et un sèche-serviette

 la residence : 
 résidence neuve de 9 logements et réhabilitation de 2 bâtiments (maisons) déjà existants en coeur de village. À proximité directe d'ittenheim, où vous retrouverez l'ensemble des commodités. 

 transports / proximites : 

 strasbourg centre à 20min en bus (ligne 230)
 strasbourg centre à 15min en voiture. 


 mots clés : kochersberg / ittenheim / strasbourg / truchtersheim / wiwersheim


 pour obtenir des renseignements rapidement, contactez votre conseiller dédié bonaparte promotion : 
 stéphane cilli
 06 56 67 83 58

 et / ou rendez-vous en agence sur rdv : 
 bonaparte promotion
 14 rue des mercuriales
 67450 lampertheim
 tel : 03 88 663 555
.

Appartement 2 pièces 279000 €
279 000 €

Appartement 2 pièces 73 m²

Handschuheim (67117)

Neuf et disponible ! 
 le ptz est de retour dans cette zone / frais de notaire reduits / faibles charges / isolation renforcee ! 

 ! Spacieux duplex en dernier étage avec terrasse ! 

 à 18min de strasbourg-centre et 4min d'ittenheim ! 

 vous reliez strasbourg ou truchtersheim en 15minutes en bénéficiant d'un cadre champêtre et garantissant l'esprit village.

 le projet reste intimiste et s'intègre parfaitement à la commune puisqu'il est composé de seulement 9 logements répartis sur 2 niveaux. 

 possibilité d'acquérir en sus : parking et / ou garage ! Au choix.

 l'appartement possède quant à lui des volumes epoustouflants tant à l'interieur qu'à l'exterieur ! 

 il se compose d'une entrée avec placard et wc séparé, d'un séjour cuisine de 36 m² avec un accès à une terrasse de 25 m² ! 

 deux chambres de 12 m² et une belle salle de bain entièrement équipée.

 les + de ce logement : 

- livraison rapide
- chauffage au sol individuel 
- volumes impressionants 
- wc suspendu
- aspect unique 

 contactez-vite votre conseiller bonaparte promotion pour en savoir + !

 bonaparte promotion c'est : 

 - le plus large choix de résidences neuves dans le bas-rhin
 - une étude de financement offerte sur simple demande 
 - un interlocuteur unique 
 - 15 années d'éxperiences dans l'immobilier neuf
 - 4.9 / 5* de note en avis google


 pour obtenir des renseignements rapidement, contactez votre conseiller dédié bonaparte promotion : 
 stéphane cilli
 06 56 67 83 58 

 et / ou rendez-vous en agence sur rdv : 
 bonaparte promotion
 14 rue des mercuriales
 67450 lampertheim
 tel : 03 88 663 555
.