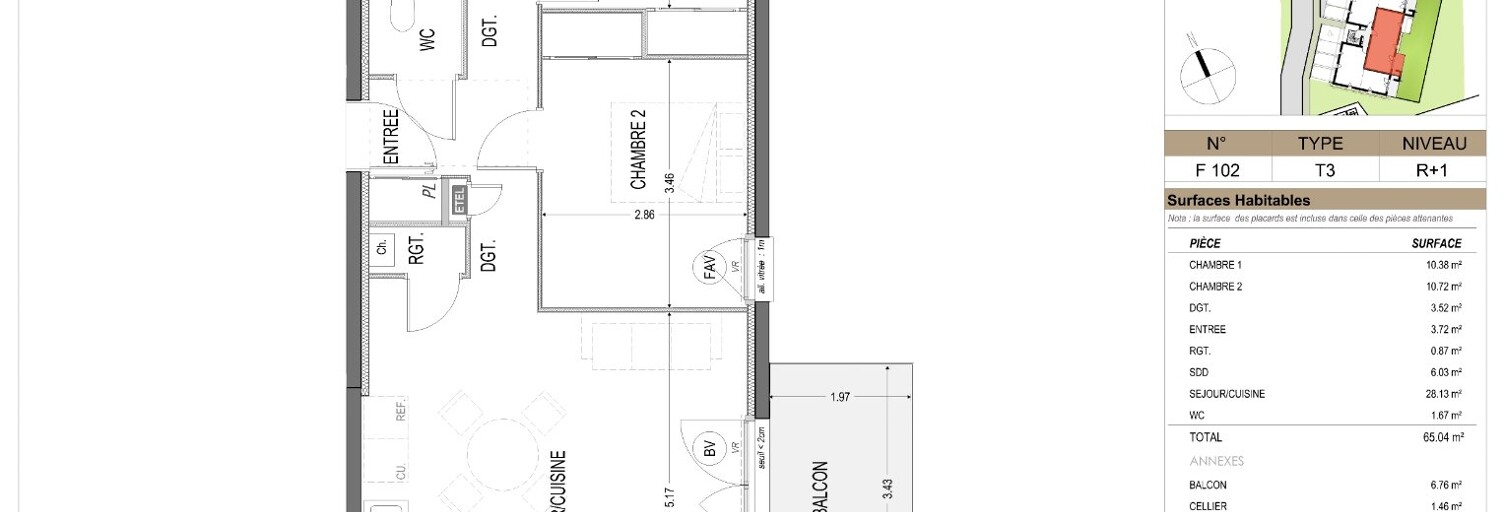
Venez découvrir dans le Programme Neuf "Terra Alba", sur la commune d'ALBENS, un Appartement T3 de 65 m² aux normes RE2020. Il dispose d'un entrée avec placard, d'un séjour cuisine ouvert sur le balcon et son cellier, 2 chambres avec chacune son placard, une salle de bains et un WC. En Annexes, vous profiterez d'une place de parking extérieur et d'un garage. Vous apprécierez le chauffage individuel gaz, les menuiseries PVC équipées de volets roulants électriques, son carrelage 45x45 et les portes fin de chantier tubulaires. Venez profitez des frais de notaire réduits à 2.5%, ainsi qu'un emplacement idéal proche du centre d'Albens, des commodités et des axes routiers desservant Aix les Bains - Annecy mais aussi Lyon et Genève. Prix de vente : 308.000 - Livraison 2ème Semestre 2027.
Les informations sur les risques auxquels ce bien est exposé sont disponibles sur le site Géorisques : www.georisques.gouv.fr
Mise en ligne:
Dernière mise à jour:
Référence de l'annonce: 7400235386Aix les Bains, 15 minutes sur la commune de Saint-Ours, dans un corps de ferme en copropriété, réalisez un bel investissement avec l'acquisition de ce lot de deux appartements meublés bien agencé comprenant respectivement : un T3 de 45 m² et un type 2 de 30 m², avec cuisine ouverte sur séjour, balcon, jardin privatif, cave voutée, garage, parking. Les deux biens sont loués en meublé pour un total de 1750 €uros par mois eau et électricité comprise. Il n'y a pas de charge dans la copro. Le tout avec une aire de stationnement aisée et un terrain encore exploitable de 2500 m² autour.
La Villa KOZY est idéalement située au centre de Cusy, à proximité immédiate des commerces et écoles du village. Elle est composée de 23 logements sur 4 niveaux et tous sont pourvus d'un balcon / terrasse et d'une cave. Des garages et des places de stationnements sont disponibles.

VOS FRAIS DE NOTAIRE SONT OFFERTS *! À 20 minutes d'Annecy direction Rumilly ! La résidence s'érige sur trois étages, auxquels s'ajoutent des combles, répartis au sein de deux édifices à l'architecture épurée. Elle se compose de 28 appartements, allant de 2 à 4 pièces, dont 6 sont éligibles au Bail Réel Solidaire (BRS est un dispositif permettant l'accession à la propriété tout en maintenant une maîtrise des prix du logement, en imposant des conditions de plafonnement des loyers et de revente. Ce dispositif est uniquement accessible sur dossier et conditions de ressources). Jardins en rez-de-chaussée ou généreux balcons qui viennent compléter ces espaces de vie résidentiels. Symbiose occupe une position centrale, offrant une proximité immédiate avec un supermarché, une banque, et des restaurants, tous accessibles dans un rayon de 100m. À moins de 500m, vous trouverez des boulangeries, une pharmacie, une école primaire, et une micro-crèche. De plus, le collège est accessible en moins de 8 minutes en voiture, suivi du lycée en 15 minutes. Vous bénéficierez également d'un accès facile aux villes d'Annecy (15 minutes) et Aix-les-Bains (20 minutes) grâce à l'entrée d'autoroute A41 à seulement 4 minutes. Contactez-nous pour en savoir plus dès à présent ! Prix hors parking. * Conditions détaillées en espace de vente. Les informations sur les risques auxquels ce bien est exposé sont disponibles sur le site Géorisques : .
L'Eden Parc - Programme neuf à Grésy-sur-Aix (Savoie) Appartement 3 pièces à vendre à quelques minutes d'AIX LES BAINS. Découvrez L'Eden Parc, une résidence neuve signée Alpina Conception Immobilière, idéalement située au coeur de Grésy-sur-Aix, à proximité immédiate d'Aix-les-Bains et du lac du Bourget. Entre dynamisme urbain et douceur de vivre, la résidence bénéficie d'un emplacement stratégique : commerces, écoles, crèche, collège, salle omnisport et pôle santé à quelques minutes. La gare est à 5 minutes à pied, et l'autoroute permet de rejoindre Annecy ou Chambéry en 20 min, Genève en 45 min. Composée de 79 appartements du T2 au T5 répartis sur trois bâtiments, L'Eden Parc séduit par son architecture contemporaine, ses volumes aérés et son environnement verdoyant. Les prestations haut de gamme assurent un confort durable : chauffage par géothermie, plancher chauffant hydraulique, isolation renforcée, terrasses spacieuses, stationnements sécurisés, finitions soignées. Réalisée par Alpina Conception Immobilière, promoteur local reconnu depuis plus de 20 ans, L'Eden Parc incarne la qualité, la modernité et la performance énergétique au coeur de la Savoie. * Prix hors annexes Georisques : Copropriété de 79 lots (Pas de procédure en cours).
L'Eden Parc - Programme neuf à Grésy-sur-Aix (Savoie) Grésy sur Aix vente appartement type 3 en étage avec ascenseur. Découvrez L'Eden Parc, une résidence neuve signée Alpina Conception Immobilière, idéalement située au coeur de Grésy-sur-Aix, à proximité immédiate d'Aix-les-Bains et du lac du Bourget. Entre dynamisme urbain et douceur de vivre, la résidence bénéficie d'un emplacement stratégique : commerces, écoles, crèche, collège, salle omnisport et pôle santé à quelques minutes. La gare est à 5 minutes à pied, et l'autoroute permet de rejoindre Annecy ou Chambéry en 20 min, Genève en 45 min. Composée de 79 appartements du T2 au T5 répartis sur trois bâtiments, L'Eden Parc séduit par son architecture contemporaine, ses volumes aérés et son environnement verdoyant. Les prestations haut de gamme assurent un confort durable : chauffage par géothermie, plancher chauffant hydraulique, isolation renforcée, terrasses spacieuses, stationnements sécurisés, finitions soignées. Réalisée par Alpina Conception Immobilière, promoteur local reconnu depuis plus de 20 ans, L'Eden Parc incarne la qualité, la modernité et la performance énergétique au coeur de la Savoie. * Prix hors annexes Georisques : Copropriété de 79 lots (Pas de procédure en cours).
À Grésy-sur-Aix, secteur calme et verdoyant sur les premières hauteurs à 8 min en voiture d'Aix-les-Bains (3,6 km) et 5 min de l'école du village (2,5 km) Appartement T4 duplex de 109,30 m² au sol (93,30 m² loi Carrez) proposé en plateau brut à aménager entièrement. Situé au sein d'une copropriété intimiste de 4 logements, ce bien profite d'une belle exposition traversante EstOuest offrant luminosité naturelle et vues dégagées sur le lac et les montagnes. Le projet d'aménagement prévoit : -Au 1er niveau : séjour avec cuisine ouverte de 43,80 m², ouvrant sur une terrasse de 22 m² orientée Ouest avec vue lac, salle d'eau avec WC. -À l'étage : dégagement, 3 chambres, salle de bains avec WC. Vendu avec un carport, une place de stationnement extérieure et une cave. Les aménagements intérieurs sont à réaliser par l'acheteur, offrant une liberté totale de conception et la possibilité de créer un logement sur mesure. Les compteurs d'eau et d'électricité seront installés par les vendeurs. Une belle opportunité pour un projet de vie personnalisé dans un cadre verdoyant et recherché. Contactez votre agence WellCome Immobilier pour organiser une visite sur place ! Bien vendu dans le cadre d'une opération immobilière dont les démarches administratives sont en cours - Acquisition possible dès mars 2026, sous réserve de réalisation du projet. Bien soumis au statut de la copropriété. Nombre total de lots : 18 (annexes incluses). Pas de procédure en cours. Bien non soumis au DPE.