Logo LSI sombre

Appartement 3 Pièces 63 m² à vendre à Challans (85300)
Photo N° 2
2

Vente appartement 3 pièces 63 m² Challans (85300)

239 000 €

APPARTEMENT AVEC TERRASSE COUVERTE, JARDIN PRIVATIF ET 2 PARKINGS

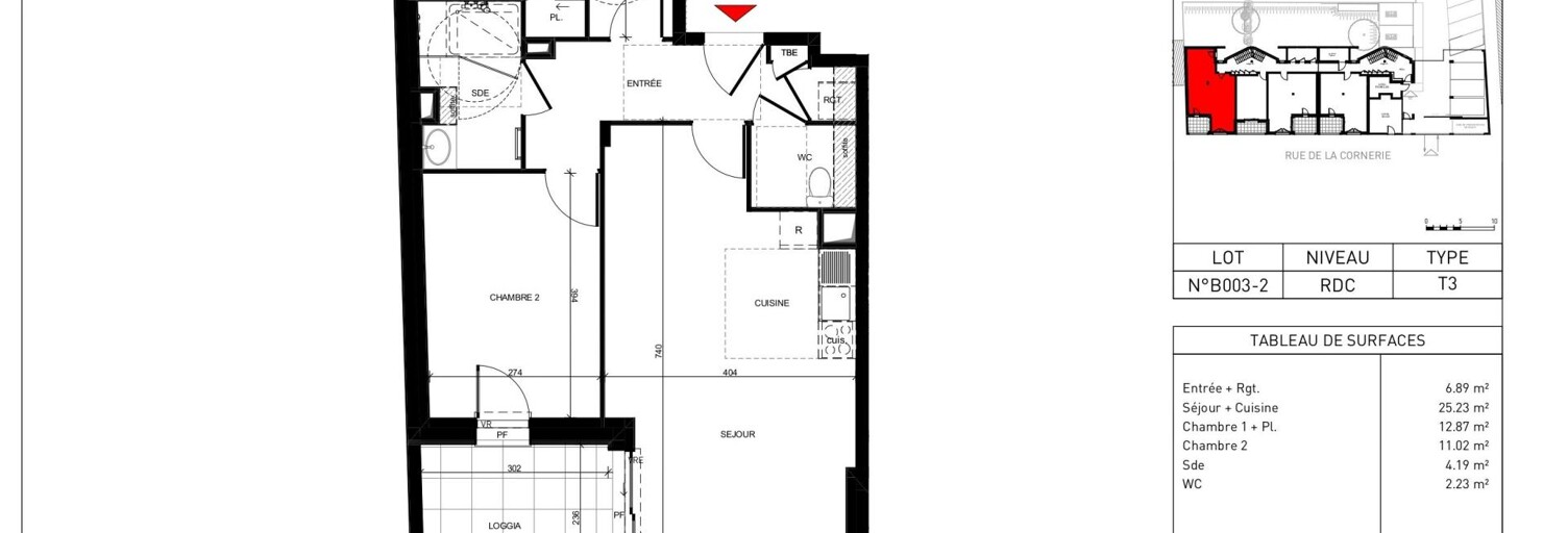
Appartement neuf avec terrasse couverte, jardin privatif et 2 parkings disponible au 1er trimestre 2026 ce bien se compose d'une entrée, d'une pièce de vie lumineuse s'ouvrant sur une loggia, et d'un dégagement desservant deux grandes chambres, une salle de douche à l'italienne, des toilettes séparées et un cellier. L'atout majeur de cet appartement est son jardin privatif de 70 m², sans vis-à-vis, parfait pour profiter des beaux jours en toute tranquillité. Pour votre confort, deux places de parking sécurisées et un local à deux-roues sont également inclus. Le chauffage individuel est assuré par une pompe à chaleur, garantissant un confort optimal tout en réalisant des économies d'énergie. N'hésitez pas à me contacter pour plus d'informations ou pour organiser une visite. Les informations sur les risques auxquels ce bien est exposé sont disponibles sur le site géorisques : prix de vente : 239 000 € honoraires charge vendeur contactez votre conseiller safti : katia héry, tél. : 06 17 56 53 39, e-mail : katia.hery@safti.fr - ei - agent commercial immatriculé au rsac de la roche sur yon sous le numéro 841 183 247.

Caractéristiques

Les plus de cette annonce
  • Parking
  • Terrasse
  • Sans vis-à-vis
Confort
  • Chauffage Individuel
Pièces
  • 3 pièces
  • 2 chambres
  • 1 WC
  • Salle de bain
Superficies
  • Surface habitable : 63 m²

Consommation énergétique et gaz à effet de serre

Bilan énergétique (DPE)
NC
Bilan gaz à effet de serre (GES)
NC

Géorisques

Les informations sur les risques auxquels ce bien est exposé sont disponibles sur le site Géorisques : www.georisques.gouv.fr

A propos du prix de cet appartement

  • Prix : 239 000 € (soit 3 794 € / m²)
  • Honoraires à charge vendeur

À propos de cette annonce

Mise en ligne:

Dernière mise à jour:

Référence de l'annonce: 1524674
SAFTI agence immobilière à Toulouse (31)
SAFTI
Afficher le numéro

Appartement similaires à acheter Challans (85300)

Appartement 3 pièces 263000 €
263 000 €

Appartement 3 pièces 57 m²

Challans (85300)

Implanté à Challans, ce programme immobilier neuf séduit par un cadre résidentiel recherché, alliant qualité de vie, dynamisme et proximité du littoral atlantique à seulement 20 minutes. La commune, vivante et attractive, offre un quotidien pratique grâce à ses commerces de centre-ville, son marché hebdomadaire et ses nombreuses infrastructures. À taille humaine, la résidence neuve s'intègre harmonieusement dans un environnement naturel et s'articule autour d'un coeur d'îlot paysager, garantissant calme et intimité. Composée de seulement 24 appartements neufs du 2 au 4 pièces, elle propose des logements lumineux aux volumes optimisés, conçus pour un confort durable. Prestations soignées, sécurité, salle de bain équipée, local à vélos et cuisine aménagée en option viennent valoriser chaque espace. Balcon, terrasse ou jardin privatif prolongent les pièces de vie et offrent un véritable atout pour profiter pleinement des beaux jours. Un emplacement stratégique et un cadre de vie privilégié pour concrétiser un projet immobilier neuf à Challans. Découvrez également nos 61 autres résidences dans le 85 : Rendez-vous dans notre Agence Médicis Immobilier Neuf, 2 avenue Biochaud, 85300 Challans. Les informations sur les risques auxquels ce bien est exposé sont disponibles sur le site Géorisques : .

Appartement 3 pièces 239000 €
239 000 €

Appartement 3 pièces 63 m²

Challans (85300)

Appartement avec terrasse couverte, jardin privatif et 2 parkings il se compose d'une entrée, une pièce de vie ouvrant sur une loggia exposée au sud, un dégagement dessert 2 grandes chambres ainsi qu'une salle de douche italienne, wc séparés et un cellier. Vous apprécierez les rangements pour optimiser votre espace de vie. L'atout de cet appartement : un jardin privatif de 70 m² sans vis-à-vis, idéal pour profiter des beaux jours en toute tranquillité. De plus, vous disposerez de 2 places de parking sécurisées et un local pour les 2 roues. Chauffage par pompe à chaleur les informations sur les risques auxquels ce bien est exposé sont disponibles sur le site géorisques : prix de vente : 239 000 € honoraires charge vendeur contactez votre conseiller safti : katia héry, tél. : 06 17 56 53 39, e-mail : katia.hery@safti.fr - ei - agent commercial immatriculé au rsac de la roche sur yon sous le numéro 841 183 247.

Appartement 3 pièces 245000 €
245 000 €

Appartement 3 pièces 61 m²

Challans (85300)

Disponible, appartement neuf situé au dernier etage d'une copropriete de 10 logements idéalement situé au calme d'une zone pavillonnaire, cet appartement neuf bénéficie d'une exposition sud & ouest. Il se compose : coté jour : une entrée, un dégagement avec placard, une pièce de vie lumineuse, un cellier, coté nuit : la chambre principale offre un espace généreux et apaisant, avec un accès direct au balcon, une seconde chambre avec placard, une salle d'eau et wc indépendants. Coté extérieur : un balcon, deux parkings privatifs et un local 2 roues. Equipements : visiophone, parking clos et sécurisé, chauffage pompe à chaleur. Atouts : frais de notaire réduits, exonération tf, ptz, faibles charges. Les informations sur les risques auxquels ce bien est exposé sont disponibles sur le site géorisques : prix de vente : 245 000 € honoraires charge vendeur contactez votre conseiller safti : katia héry, tél. : 06 17 56 53 39, e-mail : katia.hery@safti.fr - ei - agent commercial immatriculé au rsac de la roche sur yon sous le numéro 841 183 247.

À voir pour le même budget

Appartement 3 pièces 245000 €
245 000 €

Appartement 3 pièces 61 m²

Challans (85300)

Disponible, appartement neuf situé au dernier etage eligible au pret a taux zéro performances energetiques idéalement situé au calme d'une zone pavillonnaire, cet appartement bénéficie d'une exposition sud & ouest. Il se compose : coté jour : une entrée, un dégagement avec placard, une pièce de vie lumineuse, un cellier, coté nuit : la chambre principale offre un espace généreux et apaisant, avec un accès direct au balcon, une seconde chambre avec placard, une salle d'eau et wc indépendants. Coté exterieur : un balcon, deux parkings privatifs et un local 2 roues. Equipements : accès sécurisé par visiophone, parking sécurisé, chauffage pompe à chaleur. Atouts : faibles charges, frais de notaire reduits. Les informations sur les risques auxquels ce bien est exposé sont disponibles sur le site géorisques : prix de vente : 245 000 € honoraires charge vendeur contactez votre conseiller safti : katia héry, tél. : 06 17 56 53 39, e-mail : katia.hery@safti.fr - ei - agent commercial immatriculé au rsac de la roche sur yon sous le numéro 841 183 247.

Appartement 3 pièces 239000 €
239 000 €

Appartement 3 pièces 63 m²

Challans (85300)

Appartement avec terrasse couverte, jardin privatif et 2 parkings il se compose d'une entrée, une pièce de vie ouvrant sur une loggia exposée au sud, un dégagement dessert 2 grandes chambres ainsi qu'une salle de douche italienne, wc séparés et un cellier. Vous apprécierez les rangements pour optimiser votre espace de vie. L'atout de cet appartement : un jardin privatif de 70 m² sans vis-à-vis, idéal pour profiter des beaux jours en toute tranquillité. De plus, vous disposerez de 2 places de parking sécurisées et un local pour les 2 roues. Chauffage par pompe à chaleur les informations sur les risques auxquels ce bien est exposé sont disponibles sur le site géorisques : prix de vente : 239 000 € honoraires charge vendeur contactez votre conseiller safti : katia héry, tél. : 06 17 56 53 39, e-mail : katia.hery@safti.fr - ei - agent commercial immatriculé au rsac de la roche sur yon sous le numéro 841 183 247.

Appartement 3 pièces 259000 €
259 000 €

Appartement 3 pièces 67 m²

Challans (85300)

Appartement neuf aux normes pmr avec jardinet privatif et terrasse eligible au pret a taux zéro proche gare et commerces cet appartement offre un espace de vie optimisé et lumineux. L'entrée avec placard mène à une belle pièce de vie exposée plein sud. Cet espace chaleureux s'ouvre sur une terrasse et un charmant jardinet privatif de 21 m². Un cellier pratique complète la zone jour. Le coin nuit, bien séparé, dessert : deux grandes chambres sur parquet (15 m² et 12.15 m²) offrant un confort optimal. Une salle d'eau moderne à l'italienne. Des wc indépendants. Prestations et avantages : chauffage par pompe à chaleur, faibles charges de copropriété, frais de notaire réduits. Commodités : deux places de stationnement sécurisées et un local deux roues. Ne manquez pas cette opportunité. Livraison immediate les informations sur les risques auxquels ce bien est exposé sont disponibles sur le site géorisques : prix de vente : 259 000 € honoraires charge vendeur contactez votre conseiller safti : katia héry, tél. : 06 17 56 53 39, e-mail : katia.hery@safti.fr - ei - agent commercial immatriculé au rsac de la roche sur yon sous le numéro 841 183 247.

Appartement 3 pièces 263000 €
263 000 €

Appartement 3 pièces 57 m²

Challans (85300)

Implanté à Challans, ce programme immobilier neuf séduit par un cadre résidentiel recherché, alliant qualité de vie, dynamisme et proximité du littoral atlantique à seulement 20 minutes. La commune, vivante et attractive, offre un quotidien pratique grâce à ses commerces de centre-ville, son marché hebdomadaire et ses nombreuses infrastructures. À taille humaine, la résidence neuve s'intègre harmonieusement dans un environnement naturel et s'articule autour d'un coeur d'îlot paysager, garantissant calme et intimité. Composée de seulement 24 appartements neufs du 2 au 4 pièces, elle propose des logements lumineux aux volumes optimisés, conçus pour un confort durable. Prestations soignées, sécurité, salle de bain équipée, local à vélos et cuisine aménagée en option viennent valoriser chaque espace. Balcon, terrasse ou jardin privatif prolongent les pièces de vie et offrent un véritable atout pour profiter pleinement des beaux jours. Un emplacement stratégique et un cadre de vie privilégié pour concrétiser un projet immobilier neuf à Challans. Découvrez également nos 61 autres résidences dans le 85 : Rendez-vous dans notre Agence Médicis Immobilier Neuf, 2 avenue Biochaud, 85300 Challans. Les informations sur les risques auxquels ce bien est exposé sont disponibles sur le site Géorisques : .

Appartement 3 pièces 255000 €
255 000 €

Appartement 3 pièces 63 m²

Challans (85300)

Appartement neuf au 1er étage avec loggia + cave + 2 parkings emplacement privilégié pour cet appartement bénéficiant de tous les avantages d'une vie urbaine : commerces, boulangerie, cinéma, établissements scolaires, installations sportives. Il se compose d'une pièce de vie avec espace cuisine et bénéficie d'une exposition sud - ouest, 2 chambres spacieuses, un cellier, une salle d'eau, wc et bénéficie d'un espace extérieur exposé sud. Deux parkings privatifs, une cave et un local deux roues complètent ce bien. La garantie d'un logement moderne, économique et prêt à vivre ! Frais de notaire réduits, exonération taxe foncière. Livrable 1er trimestre 2026. Les informations sur les risques auxquels ce bien est exposé sont disponibles sur le site géorisques : prix de vente : 255 000 € honoraires charge vendeur contactez votre conseiller safti : katia héry, tél. : 06 17 56 53 39, e-mail : katia.hery@safti.fr - ei - agent commercial immatriculé au rsac de la roche sur yon sous le numéro 841 183 247.

Appartement 4 pièces 203200 €
203 200 €
-4 %

Appartement 4 pièces 71 m²

Challans (85300)

Iad france - christella foucaud vous propose : appartement au rdc d'un immeuble de tres beau standing, d'une surface habitable de 71 m², dont : une entrée avec placard. 2 chambres. Un grand salon / sejour avec une baie ouverte sur la véranda. Une cuisine aménagée et équipée en 2018 avec vue sur un jardin tranquille. Une salle d'eau. Un wc séparé. Et une buanderie attenante à la cuisine. Acces a la terrasse et au jardin par la veranda. Chaudière changée en 2022. Finitions soignées, très bon état général. Immeuble sécurisé, avec accès pour personnes à mobilité réduite, de belle architecture, dont la façade à été entièrement rénovée. Situé dans une rue tranquille, à 800 m du centre ville et du marché quotidien. La gare à 700 m. Centre commercial, écoles et tous les services à 2 kms environ. Les plages à 20 kms. Honoraires d'agence à la charge de l'acquéreur. Prix honoraires inclus : 203200 euros. Prix hors honoraires : 196000 euros. Honoraires ttc à la charge de l'acquéreur (3,67% du prix du bien hors honoraires) : 7200 euros. Information d'affichage énergétique sur ce bien : classe energie c indice 147 et classe climat c indice 28. Les informations sur les risques auxquels ce bien est exposé, y compris l'obligation légale de débroussaillement, sont disponibles sur le site géorisques : la présente annonce immobilière a été rédigée sous la responsabilité éditoriale de mme christella foucaud mandataire indépendant en immobilier (sans détention de fonds), agent commercial de la sas i@d france immatriculé au rsac de la roche-sur-yon sous le numéro 834938607, titulaire de la carte de démarchage immobilier pour le compte de la société i@d france sas.