9 résultats
À Archamps, à proximité directe de la douane de Landecy et de la Croix-de-Rozon, découvrez cet appartement T3 de 67,46 m², et sa superbe terrasse de 13 m² avec vue dégagée. Un espace de vie de 29 m² qui s'ouvre sur la terrasse orientée plein Sud, avec vue sur le Genevois. L'impression de vivre dedans et dehors. Au coin nuit, on trouve deux chambres et une salle de bains. Un cellier, des rangements et un WC séparé complète cette offre. Possibilité de garage, place de parking, cave. L'architecture élégante est parfaitement intégrée dans son environnement naturel. La résidence, à taille humaine, propose des espaces communs dédiés au bien-être : salle de sport, espace de coworking, salle commune, grand parc paysager, potager et cheminements piétons. Engagée dans une démarche durable, elle dispose d'un chauffage collectif au bois, de la récupération des eaux pluviales et de pré-équipements pour véhicules électriques. Situation idéale avec un accès rapide à Genève et à l'aéroport (20 min) ainsi qu'à Annecy (30 min). Un bien rare, alliant confort, nature et proximité transfrontalière. Nombre de lots de la copropriété : 65, Montant moyen annuel de la quote-part de charges (budget prévisionnel) : 1200€ soit 100€ par mois. Les honoraires sont à la charge du vendeur. Les informations sur les risques auxquels ce bien est exposé sont disponibles sur le site Géorisques : www. georisques. gouv. fr. Réseau Immobilier CAPIFRANCE - Votre agent commercial (RSAC N°827 815 028 - Greffe de ANNECY) Aude DAUBEUF Entrepreneur Individuel 06 37 01 97 60 - Réf. 940175.
T3 dans un écrin de verdure à côté de Genève Archamps, est une commune d’exception, frontalière de la Suisse et recherchée pour son cadre de vie animé et familial. Très bien desservie par les axes autoroutiers et les transports, vous bénéficiez d’un accès rapide à Genève (20 min), à l’aéroport international (20 min) et à Annecy (30 min). Cet appartement comprend une entrée, un grand séjour / cuisine de plus de 33 m² ouvert sur un large balcon exposé Sud, 2 chambres avec accès balcon, salle de bains, toilettes séparé, Buanderie / cellier. Garage à vélos. Appelez moi vite au 06 33 96 23 82.
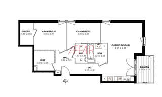
En feuilletant un magazine de déco, vous pourriez très bien tomber sur un T3 de ce type… Ceci dit, cela vous donne la tonalité de ce produit. D’emblée, ce qui apparaît de l’extérieur, c’est la parfaite adéquation entre cet appartement et son environnement, à savoir le coquet village d’Archamps, ainsi que la copropriété de standing dans laquelle il se situe. En second lieu, dès l’entrée, on est séduit par la luminosité et le calme, sachant qu’il se trouve en bout d’immeuble (pas de voisins sur trois côtés). La terrasse de 12,53 m², avec vue directe sur le Salève, prolonge cette atmosphère paisible. L’intérieur de 65,86 m², très raffiné et immédiatement “prêt à l’emploi”, est en très bon état. Harmonieusement agencé, il partage l’espace entre une belle cuisine semi-ouverte sur un salon, deux chambres avec placards, des wc séparés et une salle de bains de 3,71 m². Parlant d’un endroit idyllique, Baudelaire disait que “là-bas, tout est luxe, calme et volupté”. S’agissant de ce T3, nous dirons que là, tout “n’est que calme, standing et raffinement”. PS : Soyez rassuré, nous n’avons pas oublié la cave, le parking collectif et le garage privatif de 14 m²; cela fait partie du standing ! Toutes les informations sur le site du cabinet BIELSA Immobilier. 346 000€ FAI Tel : 06 15 14 28 45 Immeuble de 2008 Copropriété de 48 habitations Charges annuelles 2024-2025 : 1453,70€ soit 121,14€ / mois + chauffage individuel et eau individuelle. Pas de procédure en cours DPE du 18 / 03 / 2026 classe C et GES en C Loi Carrez 65,86 m² Chauffage gaz de ville avec chaudière individuelle récente de 3 ans Les honoraires du cabinet sont à la charge du vendeur et inclus dans le prix de vente. Les informations sur les risques auxquels ce bien est exposé sont disponibles sur le site Géorisques : .
Iad France - Swann Haddou vous propose : T3 de 66 m² + garage + parking. À découvrir sur les hauteurs d’Archamps, aux portes de Genève. Appartement de type 3 situé au 2ᵉ et dernier étage (sans ascenseur) d’une résidence intimiste de 9 appartements, construite en 2013. Il est composé : D’une pièce de vie avec cuisine ouverte, double exposition De 2 chambres D’une salle de bain D’un WC indépendant Balcon exposé plein ouest, avec vue dégagée, un environnement calme où l’on entend uniquement les oiseaux. Proche commodités, accès douane en 5 minutes. En annexes : un grand garage et une place de parking. Les + du bien : - Séjour très lumineux - Balcon ouest, vue dégagée, calme - Chauffage au sol - Garage + parking - Volets électriques - Cuisine, plan de travail en quartz - Charges env. 100 € / mois Venez le découvrir sans tarder ! Contactez moi pour une visite La presente annonce immobiliere vise 3 lots situés dans une copropriété de 27 lots au total et ne faisant l'objet d'aucune procédure en cours citée à l'article L. 721-1 du code de la construction et de l'habitation. Montant moyen mensuel de charges déclaré par le vendeur : 117.16€ par mois (soit 1405.96 € annuel). Honoraires d'agence à la charge du vendeur. Information d'affichage énergétique sur ce bien : classe ENERGIE D indice 230 et classe CLIMAT B indice 7. Les informations sur les risques auxquels ce bien est exposé, y compris l'obligation légale de débroussaillement, sont disponibles sur le site Géorisques : La présente annonce immobilière a été rédigée sous la responsabilité éditoriale de Mme Swann Haddou mandataire indépendant en immobilier (sans détention de fonds), agent commercial de la SAS I@D France immatriculé au RSAC de Thonons-les-bains sous le numéro 750926487, titulaire de la carte de démarchage immobilier pour le compte de la société I@D France SAS.

Recevez en temps réel les dernières annonces correspondant à votre recherche
Du 16 / 03 / 2026 au 30 / 04 / 2026 : Frais de notaire offerts. voir conditions sur Kaufmanbroad. fr. En lisière de la frontière suisse, découvrez une belle opportunité pour concrétiser votre achat immobilier. À deux pas de la douane de Rozon, Archamps a su préserver son art de vivre dans le décor champêtre et protégé des contreforts du Salève. Au cœur du village, Kaufman & Broad signe une élégante résidence inspirée des grandes villas traditionnelles. Elle se dessine en deux îlots intimistes offrant une sélection d’appartements du 2 au 4 pièces et 5 maisons individuelles de 113 m² à 130 m² habitables avec 4 chambres dont une suite parentale et un jardin privatif. Prestations de standing, beaux volumes, agencements de qualité et superbes vues pour un confort exclusif ! Les informations sur les risques auxquels ce bien est exposé sont disponibles sur le site Géorisques : .
Au centre d’Archamps, emplacement calme, proximité des commerces et écoles. Appartement T3 de 62 m² neuf + terrasse de 10 m² Situé au 1er étage, pas de voisins sur 3 côtés ! Séjour cuisine de 25,13 m², chambres de 11,56 et 12,99 m², wc séparés, salle de bains 3,57 m²… Exposition Sud-Ouest Dans ancienne ferme en rénovation pour 5 logements. Prestations et finitions aux choix (inclus dans le prix), modifications et plus-values possibles… Reste simplement à charge la cuisine. Inclus 2 places privatives Toutes les informations sur le site du cabinet Bielsa immobilier. Prix : 339 000€ FAI Tel : 06 15 14 28 45 Copropriété de 5 logements Non soumis au DPE Pas d’amiante, Pas de plomb Charges de copropriété minimes (à définir) Droits d'enregistrement 8% (frais de notaire) Zone non inondable Les honoraires sont à charge du vendeur et inclus dans le prix. Les informations sur les risques auxquels ce bien est exposé sont disponibles sur le site Géorisques : .
Au centre d’Archamps, emplacement calme, proximité des commerces et écoles. Appartement T3 de 79 m² neuf + terrasse de 10 m² Situé au 1er étage, pas de voisins sur 3 côtés ! Séjour 26,45 m² + cuisine de 16,44 m², chambres de 13,82 et 14,75 m², wc séparés, salle de bains 3,57 m²… Magnifique vue Salève, exposition Est-Sud Dans ancienne ferme en rénovation pour 5 logements. Prestations et finitions aux choix (inclus dans le prix), modifications et plus-values possibles… Reste simplement à charge la cuisine. Inclus 2 places privatives Toutes les informations sur le site du cabinet Bielsa immobilier. Prix : 399 000€ FAI Tel : 06 15 14 28 45 Copropriété de 5 logements Non soumis au DPE Pas d’amiante, Pas de plomb Charges de copropriété minimes (à définir) Droits d'enregistrement 8% (frais de notaire) Zone non inondable Les honoraires sont à charge du vendeur et inclus dans le prix. Les informations sur les risques auxquels ce bien est exposé sont disponibles sur le site Géorisques : .
Au centre d’Archamps, emplacement calme, proximité des commerces et écoles. Appartement T3 de 77 m² neuf avec jardin d’environ 140 m² ! Séjour cuisine de 38.62 m², chambres de 12.66 et 13.05 m²… Magnifique vue Salève, exposition Est-Sud Dans ancienne ferme en rénovation pour 5 logements. Prestations et finitions aux choix (inclus dans le prix), modifications et plus-values possibles… Reste simplement à charge la cuisine. inclus 2 places privatives Toutes les informations sur le site du cabinet Bielsa immobilier. Prix : 469 000€ FAI Tel : 06 15 14 28 45 Copropriété de 5 logements Non soumis au DPE Pas d’amiante, Pas de plomb Charges de copropriété minimes (à définir) Droits d'enregistrement 8% (frais de notaire) Zone non inondable Les honoraires sont à charge du vendeur et inclus dans le prix. Les informations sur les risques auxquels ce bien est exposé sont disponibles sur le site Géorisques : .
Terrain situé route de bossenaz archamps cadastré section aw n° 27 - 28 - 29 - 30. La sccv l’abondance société civile de construction vente immatriculée au registre des commerces et des sociétés de grenoble (isère), sous le numéro 950 791 335 dont le siège social est 1 rue conrad killian à saint martin le vinoux (38950). La sccv l’abondance a entrepris la réalisation d’un programme immobilier dénommé saleve parc situé route de la bossenaz à archamps 74160, comprenant 1 ensemble immobilier de 42 logements en accession répartis en 2 bâtiments collectifs r + 2+combles (bâtiments a et b), de 23 logements sociaux dont 15 locatifs et 8 en bail réél solidaire répartis en 1 bâtiment collectif r + 2+combles (bâtiment c), des stationnements répartis sur 2 niveaux de sous-sol, des caves, des stationnements visiteurs en rdc et de 3 locaux communautaires (1 par bâtiment). Le programme immobilier susvisé a fait l’objet d’un dépôt de permis de construire n° pc07401622h0019 déposé à la mairie d’archamps le 23 / 08 / 2022, complété le 06 / 10 / 2022 et accepté le 06 / 01 / 2023. Le bureau de vente de la sccv l’abondance est situé : rue de la bouvarde metz tessy. Ce bureau est ouvert sur rendez-vous. Le notaire de l’opération est : maître gabarre thierry (st julien en genevois) – 3 av. Napoléon iii, 74160 saint-julien-en-genevois– 04 50 49 00 53 le projet répond aux caractéristiques techniques et réglementaires de la re2020 et certifié en nf habitat le projet est éligible à la loi pinel zone a. Le planning prévisionnel de l’opération en fonction de la commercialisation est le suivant : - début des travaux : septembre 2024 - signature notaire : septembre 2024 - début phase tma : fin 2024 / debut 2025 - livraisons : decembre 2026 présentation programme et organisation des constructions : le terrain est situé route de bossenaz 74160 archamps. Le projet consiste en la construction de 3 bâtiments de logements collectifs en r + 2+combles pour les bâtiments. L’ensemble immobilier comprend : 65 logements collectifs répartis sur 3 bâtiments dont 15 logements sociaux / 8 brs dans le bâtiment c. Le projet consiste à la construction de 3 bâtiments destinés à l’habitation. Le niveau de sous-sols regroupe 115 places de stationnement couvertes (3 visiteurs), 47 caves, 3 locaux vélos. 13 places de stationnements sont prévues en extérieures. (visiteurs / côté route de la bossenaz) subtilité du plan de masse : 42 lots en accession sur les bâtiments a et b 15 lots en social / 8 lots brs sur le bâtiment c-séparés par deux bâtiments et volumes distincts le bailleur social et ofs pour le brs sera erilia. Le stationnement des appartements en accession et / ou social ou brs se fera en sous sol complet avec des garages / places de parking. Deux niveaux sont prévus. Entrée côté nord. Le terrain fait 13 000 m². Emprise de notre projet environ 8000 m² avec grand parc jardin en nord de notre opération. Nous avons à proximité aujourd’hui de l’autoroute, un merlon de terre pour atténuer le bruit de cette dernière. Entre l’autoroute et notre tènement, il y a aura le nouveau centre technique municipal fait par la ville. Et un mur acoustique qui longera la parcelle municipale accueillant le ctm jusqu’à la route de bossenaz. Le bruit sera donc attenuer jusqu a notre programme. Ce ctm sera un bâtiment de 4 m de haut + 1 étage permettant l’accueil d’un gardien municipal. Ce bâtiment aura pour vocation d’accueillir une station d’arrosage et un local à sel pour le déneigement. Ce sera un joli bâtiment. Le permis de construire de cet ouvrage est en cours d’attribution. Pas de servitudes sur site. Une ancienne servitude a été annulée. Il y avait un passage piéton qui longeait la route de bossenaz et allait devant la copropriété du val bois. Cette dernière n’est plus. Le passage piéton est conservé quand même puisqu’imposé sur le pc pour être en conformité avec le plu. Rétrocession de terrain limitrophe à la route de la bossenaz à la commune pour élargissement de voirie et pose de molocks pour ordure ménagère et tri sélectif. Également bacs à compost. Le transformateur électrique sera aussi présent à côté des molocks. + aire de stationnement ponctuelle pour camion remplissage de granulés important : 2 salles communes (environ 40 m² chacune) -1 salle commune pour co working dans le bâtiment c -1 salle de sport sous le bâtiment b équipé par nos soins domotique possible en option : volets roulants, chauffage, un point lumineux et une prise (options en tma : éclairages et prises supplémentaires) mode de chauffage : chaudière collective granule bois avec compteur pour sous comptage individuel pour chauffage et eau chaude. Chauffage par radiateurs aciers blancs à circuit d’eau. Chauffage au sol en dernier niveau possible sous option et validation par le maitre d’œuvre. Caisson de volets roulants apparents intérieurs de 8 / 10 cm. Menuiseries mixtes à savoir pvc plaxé avec intérieur blanc / extérieur brun pour les portes fenêtres et fenêtres, aluminium pour les baies vitrées coulissantes donnant accès aux balcons / terrasses bois en façade : pas du composite, bois traité trempé. Garde corps des balcons en aluminium et non en bois toiture tuile. Pas de marche pour aller sur la terrasse. Sauf pour le logement brs et social. Marches pour accéder aux jardins : a02, a03, a04, a05, b02 et b03 sous sol de garage : extracteur d’air mécanique. Plafond cathedrale pour les attiques du a et b : finition en placoplâtre et 2 poutres bois visibles belle aire de jeux côté nord avec cheminement piétonnier et parc arboré, verger et potager partagé belle vue sur le jet d’eau de geneve côté nord et vue jura en ouest et le salève en est. Récupération des eaux de pluie par cuve enterrée, usage arrosage extérieur programme géré par une copropriété générale incluant tous les bâtiments et espaces verts. Colonne irve pour potentielle installation de prise de recharge de véhicules électriques et équipements globaux du box (lumière et pc) en tma. Si option prise : installation d’un compteur linky spécifique au box (pas de sous compteur dans les communs) prise de recharge véhicule installée sur le parking extérieur les informations sur les risques auxquels ce bien est exposé sont disponibles sur le site géorisques : .
Autres annonces à proximité de Archamps (74160) avec vos critères
Devenez propriétaire au pied de la frontière — offres exclusives à saisir à deux pas de genève et de son technoparc, collonges, archamps et neydens offrent un cadre de vie recherché au cœur du genevois français — entre dynamisme économique et douceur résidentielle. Home line vous invite à découvrir, en 1seul rendez-vous, l'ensemble de nos programmes neufs à archamps, collonges sous salève et alentours. Nous vous proposons une sélection exclusive d'appartements neufs, du t2 au t4 en attique, alliant confort, performance énergétique et emplacement stratégique. pour habiter ou investir * le prix indiqué tient déjà compte de la remise. ref à rappeler : ls-arc-arc pour plus d'informations, contactez votre conseiller home line .
Appartement neuf type 3 de 66.17 m² situé au cœur d'un parc boisé. À 20 min de genève, collonges-sur-salève se trouve au cœur d’un bassin à l’économie florissante, totalisant environ 500 000 emplois. Les grandes zones d’emplois suisses – bardonnex, carouge, genève – se rejoignent en un quart d’heure. Voisine d’archamps et de bossey, collonges-sous-salève figure parmi les destinations favorites des travailleurs frontaliers. Très prisée pour sa situation géographique et par ses atours touristiques, collonges-sous-salève constitue un excellent choix de placement locatif comme patrimonial. Commerces de proximite, place de stationnement, box sous-sol double.
Au cœur de la Haute-Savoie, un programme immobilier neuf émerge, offrant une collection d'appartements neufs de 2 à 4 pièces, certains situés en attique avec des vues imprenables sur le majestueux lac Léman. Ces logements sont conçus avec un accent particulier sur le confort, offrant des espaces de vie spacieux et des agencements bien pensés. Les cloisons sont réduites au minimum, favorisant une circulation fluide et une communication aisée entre les différentes pièces. Les résidents bénéficient ainsi d'un espace de jour élégant avec une cuisine ouverte sur le salon, et d'un espace de nuit comprenant des chambres et une salle de bain équipée, le tout aménagé pour maximiser l'espace et le confort. Tournée vers la splendeur naturelle de la Haute-Savoie, la résidence offre un panorama spectaculaire sur le lac Léman, visible depuis les balcons ou terrasses privatives de chaque appartement. Ces vues offrent un spectacle quotidien, enrichi par une abondance de soleil et de lumière naturelle du lever au coucher du soleil. La résidence est entourée d'un cadre verdoyant, avec un parc paysager intégré, apportant une touche de fraîcheur et de nature. Découvrez également nos 179 autres résidences dans le 74 : Rendez-vous dans notre Agence Médicis Immobilier Neuf, 77 rue Madame de Staël, Saint-Julien-en-Genevois 74160. Les informations sur les risques auxquels ce bien est exposé sont disponibles sur le site Géorisques : .
Superbe T3 en rez de jardin avec terrasse Collonges-sous-Salève, dans un havre de paix avec ses vastes espaces verts et ses bâtiments à tailles humaines, Vous profiterez bientôt d'un superbe T3 traversant avec une terrasse de 18 m² et un jardin de 88 m². Cet appartement comprend un hall d’entrée, un séjour cuisine de plus de 31 m² ouvert sur sa terrasse et jardin, 2 chambres dont une avec accès jardin, une salle de bains, WC séparé et une buanderie. Garage à vélos. Appelez moi vite au 06 33 96 23 82!
Appartement neuf type 3 de 72,09 m² avec une grande terrasse de 15,06 m² Séjour / cuisine de 34,10 m² ainsi que deux chambres de 12,23 m² et de 11,39 m² Une salle de bain de 4,23 m² Exposition Ouest Située à 500m de la frontière Suisse, la résidence bénéficie d'un emplacement privilégié. Du studio au 4 pièces, les 23 appartements s'ouvrent tous sur un balcon et profitent de belles vues dégagées sur le Salève. De nombreuses lignes de bus permettent de rejoindre facilement la Suisse, Annemasse et Saint-Julien. Pour les sports d'hiver, "La Croisette" est à 7 km seulement et le domaine skiable de la Chapelle Rambaud à 10km de la résidence. Plusieurs appartements encore disponibles, contactez-nous !
Appartement type 3 de 97,38 m² avec balcon Située à 500m de la frontière Suisse, la résidence bénéficie d'un emplacement privilégié. Du studio au 5 pièces, les 23 appartements s'ouvrent tous sur un balcon et profitent de belles vues dégagées sur le Salève. De nombreuses lignes de bus permettent de rejoindre facilement la Suisse, Annemasse et Saint-Julien. Pour les sports d'hiver, "La Croisette" est à 7 km seulement et le domaine skiable de la Chapelle Rambaud à 10km de la résidence. Les avantages : Aux portes de la Suisse, idéal transfrontaliers Petite résidence intimiste au calme Ecoles de la maternelle au lycée à moins de 3 km Supermarché à 250 m et commerces à proximité Parking inclus.
Collonges sous saleve 2 min a pied croix de rozon dans une petite copropriété de 2008, au 2ème étage appartement de type 3 comprenant une entrée avec placard, une cuisine équipée ouverte sur la pièce à vivre donnant sur un balcon exposé sud / ouest. Deux chambres avec placard. Une salle de bains. Un wc. Une place de parking privative extérieure. Les informations sur les risques auxquels ce bien est exposé sont disponibles sur le site géorisques : .
2 min à pied de la douane CROIX DE ROZON Proche toutes commodités, bus Dans une impasse au 1er étage, appartement de type 3 de 73.14 m² comprenant une entrée avec un placard, une cuisine ouverte sur la pièce à vivre avec un balcon de 11.45 m², un wc, un coin nuit séparé deux chambres avec placard, une salle de bains. Une cave et un garage fermé. Chauffage au gaz individuel. Locataire en place. Loyer mensuel 1 200.03 + 90 EUR de provisions de charges. Les informations sur les risques auxquels ce bien est exposé sont disponibles sur le site Géorisques : Retrouvez toutes nos annonces sur notre site : .
5 min douane de croix de rozon 20 min aeroport geneve proche toutes commodités et bus. Au 1er étage dans un cadre de verdure au calme, appartement de type 3 comprenant une cuisine équipée ouverte sur la pièce à vivre donnant sur le balcon. Deux belles chambres avec leur placard. Une salle de bains récente. Un wc suspendu indépendant. Une cave et une place de parking en sous sol privative. Ce bien est équipé de menuiseries en aluminium et de stores roulants électriques récents. Retrouvez toutes nos annonces sur notre site : les informations sur les risques auxquels ce bien est exposé sont disponibles sur le site géorisques : .
Collonges-sous-salève (74160) proximité immédiate avec la frontière suisse et le canton de genève. Au 2eme étage appartement t3 neuf de 68 m² (surface totale de 83 m² m²) hall d'entrée avec placard, séjour / cuisine de 27 m² avec un accès sur un balcon de 16 m², deux chambres avec placard, une salle de bains, wc séparé, garage, place de parking. Commerces et services supermarché, boulangeries, boucherie, coiffeur, bar-restaurants, mairie, poste à 2 minutes. Enseignement ecoles maternelle et élémentaire à 2 minutes. Collèges à 18 minutes. Lycée à 13 minutes. Loisirs cinéma pathé gaumont d'archamps à 5 minutes. Vitam parc et sa galerie commerciale à neydens. Espace omni sports du salève à 10 minutes. Transports en commun bus ligne m : collonges / archamps / saint-julien-en-genevois bus ligne 62 : collonges-sous-salève / bachet-de-pesay. (connexion directe aux lignes 12 et 18 du tram). Gare de saint-julien-en-genevois. À 12 minutes. Accès autoroute a40 à 5 minutes. Honoraires à la charge du vendeur. Dans une copropriété de 44 lots. Aucune procédure n'est en cours. Dpe vierge. Les informations sur les risques auxquels ce bien est exposé sont disponibles sur le site géorisques : georisques. Gouv. Fr.
Collonges sous salève (74160) a 3 minutes de la douane de croix de rozon, 15 min centre geneve, 25 min aéroport. Au 2ème et dernier étage d'une petite copropriété, découvrez ce charmant appartement t3 d'environ 76 m² utiles (dont 72 m² loi carrez). Il offre une lumineuse et spacieuse pièce de vie avec une cuisine équipée ouverte, deux chambres, une salle de douche et un wc indépendant. Pour compléter ce bien, jouissance privative d'un jardin d'environ 200 m², un grand garage avec buanderie, une cave. Possibilité de parquer deux véhicules sur le parking de la copropriété. Chauffage collectif au fioul. Retrouvez toutes nos annonces sur notre site : les informations sur les risques auxquels ce bien est exposé sont disponibles sur le site géorisques : .
Collonges-sous-saleve. À 3 minutes de la douane de croix de rozon, 15 min centre geneve, 25 min aéroport. Situé sur les hauteurs de la commune, au calme cet appartement de type 3 d'environ 95.66 m² offre une entrée spacieuse avec placard, une grande pièce de vie avec balcon, une cuisine récente aménagée et équipée, deux chambres avec placard et balcon, une salle de bains et un wc indépendant. En annexe, un garage en sous-sol, une place de stationnement extérieure et une cave. Retrouvez toutes nos annonces sur notre site : les informations sur les risques auxquels ce bien est exposé sont disponibles sur le site géorisques : .
T3 à l'atmosphère paisible et naturel Collonges-sous-Salève, dans un havre de paix avec ses vastes espaces verts et ses bâtiments à tailles humaines, Vous profiterez donc bientôt d'un superbe T3 sans vis-à-vis. Cet appartement comprend un hall d’entrée, un séjour cuisine de plus de 25 m² ouvert sur un grand balcon, 2 chambres, une buanderie, une salle de bains et WC séparé. Garage à vélos. Appelez moi vite au 06 33 96 23 82!
Appartement T3 aux portes de Genève Neydens, Frais de notaires offerts ! superbe T3 de 73 m² en lisière d'une zone naturelle dans une petite résidence à l'inspiration régionale et aux matériaux de qualité : bardage en bois pré grisé, enduit blanc cassé, fins garde-corps en métal brun foncé, couvertures en tuiles brun-rouge. Il comprend une cuisine / séjour de plus de 27 m² ouvert sur balcon bien orienté, 2 chambres, un dressing, une salle de bains, WC séparé ainsi que de nombreux rangements. 2 places de parking. Garage à vélos. Une salle dédiée à la copropriété. Proche de toutes les commodités, bus, commerces, école.
Appartement T3 aux portes de Genève Neydens, Frais de notaires offerts ! superbe T3 au dernier étage de 71 m² en lisière d'une zone naturelle dans une petite résidence à l'inspiration régionale et aux matériaux de qualité : bardage en bois pré grisé, enduit blanc cassé, fins garde-corps en métal brun foncé, couvertures en tuiles brun-rouge. Il comprend une cuisine / séjour de plus de 31 m² ouvert sur balcon, 2 chambres, une salle de bains, WC séparé ainsi que de nombreux rangements. 2 places de parking. Garage à vélos. Une salle dédiée à la copropriété. Proche de toutes les commodités, bus, commerces, école.
Neydens proche école et bus, 5 min entrée autoroute bardonnex grand appartement d'environ 78 m² de caractère de type 3 lumineux, dans une petite copropriété au 2ème et dernier étage, sans ascenseur. Il offre une belle hauteur sous plafond, une grande entrée avec un placard, une spacieuse de vie avec sa cuisine équipée très fonctionnelle ouverte donnant sur une terrasse exposée sud / ouest avec une vue dégagée, deux chambres avec placard. Une salle de bains. Un wc indépendant. Un garage avec un espace cave et une place de parking privative en sous sol. Chauffage individuel au gaz au sol. Retrouvez toutes nos annonces sur notre site : les informations sur les risques auxquels ce bien est exposé sont disponibles sur le site géorisques : .