1 résultats
Iad France - Sophie Mignon vous propose : Investissement locatif – T2 vendu loué – Résidence récente 2022 À 15 minutes de Mont-de-Marsan, dans une résidence récente construite en 2022, appartement T2 vendu loué. Il comprend une pièce de vie avec salon-séjour et cuisine aménagée et équipée, un cellier, un dégagement desservant une chambre, une salle d’eau et un WC indépendant. Le bien dispose également d’un jardin privatif et d’une place de parking. Appartement actuellement loué 672 € par mois. Centre-ville et écoles accessibles à pied en 3 minutes. Idéal investisseur. Possibilité d’acquérir plusieurs lots dans la résidence pour un projet d’investissement global. La presente annonce immobiliere vise 2 lots situés dans une copropriété de 19 lots au total et ne faisant l'objet d'aucune procédure en cours citée à l'article L. 721-1 du code de la construction et de l'habitation. Montant moyen mensuel de charges déclaré par le vendeur : 0€ par mois (soit 0 € annuel). Honoraires d'agence à la charge du vendeur. Information d'affichage énergétique sur ce bien : classe ENERGIE B indice 98 et classe CLIMAT A indice 2. Les informations sur les risques auxquels ce bien est exposé, y compris l'obligation légale de débroussaillement, sont disponibles sur le site Géorisques : La présente annonce immobilière a été rédigée sous la responsabilité éditoriale de Mme Sophie Mignon mandataire indépendant en immobilier (sans détention de fonds), agent commercial de la SAS I@D France immatriculé au RSAC de Mont de Marsan sous le numéro 888186764, titulaire de la carte de démarchage immobilier pour le compte de la société I@D France SAS.
Autres annonces à proximité de Campagne (40090) avec vos critères
Découvrez votre nouvelle résidence au centre-ville de Saint-Pierre-du-Mont ! Dans un environnement dynamique, arboré et sécurisé, nous vous proposons des logements clés en mains disposant d'un confort optimal. - Respectant les dernières normes énergétiques et acoustiques - Accès PMR - Ascenseur - Terrasses - Places de parkings - Garantie 10 ans - ETC. Livraison prévue au premier trimestre 2027. Contactez notre équipe pour obtenir une présentation détaillée, nous pouvons également vous accompagnez dans le financement de votre projet grâce à nos partenaires.
Découvrez votre nouvelle résidence au centre-ville de Saint-Pierre-du-Mont ! Dans un environnement dynamique, arboré et sécurisé, nous vous proposons des logements clés en mains disposant d'un confort optimal. - Respectant les dernières normes énergétiques et acoustiques - Accès PMR - Ascenseur - Terrasses - Places de parkings - Garantie 10 ans - ETC. Livraison prévue au premier trimestre 2027. Contactez notre équipe pour obtenir une présentation détaillée, nous pouvons également vous accompagnez dans le financement de votre projet grâce à nos partenaires.
Découvrez votre nouvelle résidence au centre-ville de Saint-Pierre-du-Mont ! Dans un environnement dynamique, arboré et sécurisé, nous vous proposons des logements clés en mains disposant d'un confort optimal. - Respectant les dernières normes énergétiques et acoustiques - Accès PMR - Ascenseur - Terrasses - Places de parkings - Garantie 10 ans - ETC. Livraison prévue au premier trimestre 2027. Contactez notre équipe pour obtenir une présentation détaillée, nous pouvons également vous accompagnez dans le financement de votre projet grâce à nos partenaires.

Recevez en temps réel les dernières annonces correspondant à votre recherche
Découvrez votre nouvelle résidence au centre-ville de Saint-Pierre-du-Mont ! Dans un environnement dynamique, arboré et sécurisé, nous vous proposons des logements clés en mains disposant d'un confort optimal. - Respectant les dernières normes énergétiques et acoustiques - Accès PMR - Ascenseur - Terrasses - Places de parkings - Garantie 10 ans - ETC. Livraison prévue au premier trimestre 2027. Contactez notre équipe pour obtenir une présentation détaillée, nous pouvons également vous accompagnez dans le financement de votre projet grâce à nos partenaires.
Vous cherchez votre premier appartement ou un pied-à-terre confortable sans avoir à lever le petit doigt pour des travaux ? Découvrez ce T2 lumineux et parfaitement agencé de 47 m², situé à Saint-Pierre-du-Mont. Ce qui va vous faire craquer : L'espace de vie : Un séjour chaleureux, idéal pour se détendre ou recevoir, ouvert sur une cuisine pratique de 4,8 m². L'extérieur : Un grand balcon de 8,23 m² (exposition Nord) pour profiter de l'air frais ou prendre un café. Une chambre format XXL : Une vraie belle chambre de plus de 16 m², offrant largement la place d'installer un grand lit, des rangements et un vrai coin bureau pour le télétravail. Confort et économies : L'appartement est équipé de double vitrage. Surtout, il bénéficie d'un excellent Diagnostic de Performance Énergétique (DPE) classé C et d'une très faible émission de gaz à effet de serre (GES : A). L'estimation du coût annuel d'énergie est très raisonnable (entre 520 € et 750 €). Le côté pratique : Vous disposez de deux places de parking en extérieur, fini les longues minutes à chercher une place en rentrant. Informations financières & techniques : Prix : 119 000 € (honoraires à la charge du vendeur).Taxe foncière : 818 € / an. Chauffage : Électrique individuel. Copropriété : 390 lots au total (dont 160 lots d'habitation), sans procédure en cours. À noter : l'immeuble ne dispose pas d'ascenseur. Charges de copropriété : estimé 680 € / an Posez vos valises, installez votre déco et profitez ! Envie de le visiter ? Ne tardez pas ! Référence agence : 2715.
Saint-sever, dans une résidence de bon standing, nous vous proposons un appartement de type t2 de 41,04 m² actuellement loué 465.42 euros. Charges comprises. Il se compose d'un salon séjour cuisine ouverte aménagée, une chambre avec placard, une salle de bains, un wc séparé. Un balcon. L'appartement est vendu avec un parking privatif. À pied des commerces. Référence agence : 4301.
Dans une résidence calme et bien entretenue, découvrez cet agréable appartement T3 de 61,21 m² offrant un cadre de vie lumineux et pratique. Vous apprécierez son séjour ouvrant sur un balcon, une cuisine fonctionnelle ainsi que deux chambres confortables. Les atouts : Une résidence avec ascenseur. Une place de stationnement extérieure. Une piscine Proche des commodités (commerces, transports, écoles), il offre un quotidien simple et accessible. Une opportunité à ne pas manquer – contactez-nous pour en savoir plus ! Bien soumis au régime de la copropriété comprenant 280 lots, dont 112 à usage d'habitation. Charges annuelles : 886,39 €. Référence agence : 2642.
Iad France - Christel Lajous vous propose : Opportunité – Plateau brut à fort potentiel avec possibilité de terrasse à MONT DE MARSAN, en hyper centre. Situé au 2ᵉ étage d’un immeuble en copropriété, ce plateau brut de 71,80 m² (Loi Carrez) offre une surface utile de 85 m², idéal pour un projet d’aménagement sur mesure, résidence principale, ou investissement locatif. Composition : . 1 vaste pièce principale de 63,80 m², lumineuse avec possibilité d'aménagement comme suit : entrée, cuisine, salle d'eau, 2 chambres, 1 séjour / salon. 1 seconde pièce de 8 m², avec possibilité de création d’une terrasse (devis de 13 420 €, accord des Bâtiments de France et de l’Urbanisme obtenu). Travaux déjà réalisés : . 4 vélux neufs récemment installés. Toiture intégralement refaite. Murs en cours de sablage, apportant du cachet et un style authentique Raccordements existants : Eau, Électricité, Assainissement Un bien lumineux aux volumes généreux, idéal pour un projet à imaginer, avec des règles d’urbanisme déjà sécurisées. À visiter sans tarder ! La presente annonce immobiliere vise 1 lot situé dans une copropriété de 14 lots au total et ne faisant l'objet d'aucune procédure en cours citée à l'article L. 721-1 du code de la construction et de l'habitation. Montant moyen mensuel de charges déclaré par le vendeur : 0€ par mois (soit 0 € annuel). Honoraires d'agence à la charge du vendeur. Information d'affichage énergétique sur ce bien : classe ENERGIE E indice 312 et classe CLIMAT D indice 42. Les informations sur les risques auxquels ce bien est exposé, y compris l'obligation légale de débroussaillement, sont disponibles sur le site Géorisques : La présente annonce immobilière a été rédigée sous la responsabilité éditoriale de Mme Christel Lajous mandataire indépendant en immobilier (sans détention de fonds), agent commercial de la SAS I@D France immatriculé au RSAC de MONT-DE-MARSAN sous le numéro 984780775, titulaire de la carte de démarchage immobilier pour le compte de la société I@D France SAS.
Exclusivité capifrance – saint-pierre-du-mont t2 de 35 m² – copropriété 2006 – idéal investisseur venez découvrir ce joli t2 de 35 m², situé dans la résidence alma, se composant de 20 appartements et 15 maisons individuelles. Au cœur d'un quartier très résidentiel de saint-pierre-du-mont, en bordure de la forêt landaise et à seulement 5 minutes de mont-de-marsan. Il se compose d'un hall d'entrée, d'un séjour avec coin-cuisine ouvrant sur un balcon, d'une chambre avec placard, d'une salle de bain et de wc indépendants. Locataire en place depuis 2020, sérieux et régulier dans ses paiements : un investissement sécurisé et rentable. Une place de parking privative complète le bien. Environnement : à 1 km de l'hyper-centre, avec commerces, poste, piscine, hôpital, mairie, écoles (dont le lycée jean lacassagne à 1 km) et zones d'activités économiques à 2 km. À 10 minutes, le parcours sportif du parc de menasse offre un cadre naturel idéal pour se détendre. Taxe foncière 638 € chauffage électrique. Premier contact par téléphone au 06 30 34 53 58 nombre de lots de la copropriété : 20, montant moyen annuel de la quote-part de charges (budget prévisionnel) : 1500€ soit 125€ par mois. Les honoraires sont à la charge du vendeur. Les informations sur les risques auxquels ce bien est exposé sont disponibles sur le site géorisques : www. Georisques. Gouv. Fr. Réseau immobilier capifrance - votre agent commercial (rsac n°939 453 825 - greffe de mont de marsan) thomas dulac entrepreneur individuel 06 30 34 53 58 - réf. 930156.
Iad france - christel lajous vous propose : nouveaute : t2 moderne (2016) – hyper-centre mont-de-marsan – parking sous-sol & loggia situé au coeur de mont-de-marsan, au sein d’une résidence de standing sécurisée datant de 2016, découvrez cet appartement de type 2 d’environ 41,50 m². Alliant confort du récent et vie citadine, ce bien est idéalement placé au 3ème étage avec ascenseur, offrant une proximité immédiate avec tous les commerces et commodités. Descriptif de l'appartement : . Une entrée accueillante avec placard de rangement. Une pièce de vie lumineuse ouvrant sur une agréable loggia de 5,20 m²,. Un espace cuisine (non équipé, avec hotte installée) ouvert sur le séjour. Une chambre lumineuse avec placard de rangement. Une grande salle de bain complète comprenant baignoire et wc. Les annexes & atouts : . Une place de parking privative en sous-sol. Espace vélos : local commun sécurisé. Chauffage individuel au gaz de ville. Fibre optique. Interphone, digicode et accès badge. Localisation et environnement : profitez d’une vie 'tout à pied' ! Boulangeries, banques, restaurants et services publics sont accessibles en quelques minutes. À propos de la copropriété : pas de procédure en cours nombre de lots : 22 charges : environ 950€ / an contactez-moi dès aujourd'hui pour organiser une visite et découvrir ce bien sans tarder ! La presente annonce immobiliere vise 1 lot situé dans une copropriété de 22 lots au total et ne faisant l'objet d'aucune procédure en cours citée à l'article l. 721-1 du code de la construction et de l'habitation. Montant moyen mensuel de charges déclaré par le vendeur : 79.17€ par mois (soit 950 € annuel). Honoraires d'agence à la charge du vendeur. Information d'affichage énergétique sur ce bien : classe energie c indice 125 et classe climat a indice 3. Les informations sur les risques auxquels ce bien est exposé, y compris l'obligation légale de débroussaillement, sont disponibles sur le site géorisques : la présente annonce immobilière a été rédigée sous la responsabilité éditoriale de mme christel lajous mandataire indépendant en immobilier (sans détention de fonds), agent commercial de la sas i@d france immatriculé au rsac de mont-de-marsan sous le numéro 984780775, titulaire de la carte de démarchage immobilier pour le compte de la société i@d france sas.
Dans centre historique montois, je vous propose la possibilité d'acquerir un bel appartement dans un immeuble avec cachet un grand t2 d'une surface habitable de 65 m² environ avec de jolie hauteur sous plafond. Comprenant; entrée, grande chambre avec sa belle cheminé, placard moulure, une grande salle d'eau, wc séparé. Grand salon séjour avec une cuisine ouverte exposition plein sud avec une jolie vue sur l'église de la madeleine. À saisir rapidement le bien comprend 1 lot, et il est situé dans une copropriété de 5 lots (les charges courantes annuelles moyennes de copropriété sont de 300 € et le syndicat des copropriétaires ne fait pas l'objet d'une procédure citée à l'article l. 721-1 du code de la construction et de l'habitation). Les informations sur les risques auxquels ce bien est exposé sont disponibles sur le site géorisques : prix de vente : 88 000 € honoraires charge vendeur contactez votre conseiller safti : tarak mastoura, tél. : 06 30 84 01 67, e-mail : tarak.mastoura@safti.fr - ei - agent commercial immatriculé au rsac de mont de marsan sous le numéro 790 441 240.
Appartement T2 de 46 m² avec balcon, parking et piscine Mont-de-Marsan Situé à Mont-de-Marsan, dans une résidence agréable et bien entretenue, découvrez cet appartement de 46 m², idéal pour un premier achat ou un investissement locatif. Il se compose d'un séjour lumineux d'environ 20 m², offrant un bel espace de vie, d'une chambre, d'une cuisine fonctionnelle ainsi que d'une salle d'eau avec WC. Vous profiterez également d'un balcon, idéal pour vos moments de détente, d'une place de parking privative et de l'accès à la piscine de la résidence, parfait pour les beaux jours. Son emplacement est un véritable atout, à seulement 5 minutes du centre-ville, proche de toutes les commodités, ainsi que des écoles, collège et lycée. Une belle opportunité à découvrir rapidement ! Contactez-moi dès maintenant pour organiser une visite. Le bien comprend 2 lots, et il est situé dans une copropriété de 84 lots (les charges courantes annuelles moyennes de copropriété sont de 850 € et le syndicat des copropriétaires ne fait pas l'objet d'une procédure citée à l'article L. 721-1 du code de la construction et de l'habitation). Les informations sur les risques auxquels ce bien est exposé sont disponibles sur le site Géorisques : Prix de vente : 110 000 € Honoraires charge vendeur Contactez votre conseiller SAFTI : Sandy LAFONT, Tél. : 07 50 83 07 68, E-mail : sandy.lafont@safti.fr - EI - Agent commercial immatriculé au RSAC de Mont-de-Marsan sous le numéro 980326896.
Au cœur de ville montoise cette appartement ne vous laisse pas indifférent par ses volumes et ses hauteur sous plafond cet appartement de type t2 d'une surface de 72 m² environ comprenant (entrée, grand salon séjour salle à manger avec une belle cheminée ainsi que un pole à granulé, cuisine ouverte aménagée et équipée, grande chambre d'environ 25 m², une salle de bains avec baignoire, wc séparé. Coup de cœur assuré. À saisir rapidement le bien comprend 1 lot, et il est situé dans une copropriété de 6 lots (les charges courantes annuelles moyennes de copropriété sont de 300 € et le syndicat des copropriétaires ne fait pas l'objet d'une procédure citée à l'article l. 721-1 du code de la construction et de l'habitation). Les informations sur les risques auxquels ce bien est exposé sont disponibles sur le site géorisques : prix de vente : 110 000 € honoraires charge vendeur contactez votre conseiller safti : tarak mastoura, tél. : 06 30 84 01 67, e-mail : tarak.mastoura@safti.fr - ei - agent commercial immatriculé au rsac de mont de marsan sous le numéro 790 441 240.
Dans une résidence sécurisée en plein coeur de ville, situé au 3ème et dernier étage avec ascenseur, nous vous proposons cet appartement de type T2. Composé d'une chambre, une cuisine ouverte sur le salon, une salle de bain, un WC séparé et un cellier. Un balcon de 20 m² et place de parking dans un garage fermé complètent le bien. Honoraires inclus dans le prix : 8%.
Iad France - Flavien De Sousa vous propose : À quelques pas du centre-ville, dans un secteur calme et recherché, découvrez cet appartement T2 de 55 m², situé au sein d’une petite copropriété de seulement 4 lots. Il se compose d’un séjour avec cuisine ouverte, d'une chambre, et d’une salle de bain. L’ensemble est prêt à recevoir vos finitions : revêtements de sol, peintures, aménagement de la cuisine et de la salle d’eau. Une belle opportunité de créer un lieu de vie à votre image, comme un tableau à finir de peindre. Le bien est complété par une place de stationnement privative et une cave, idéales pour le confort au quotidien. Que vous soyez primo-accédant, jeune couple, ou investisseur à la recherche d’un bien personnalisable dans un bon secteur, cet appartement coche les bonnes cases : petit collectif, emplacement, et potentiel à valoriser. Contactez-moi pour organiser une visite et découvrir ce projet de vie ou d’investissement. La presente annonce immobiliere vise 3 lots situés dans une copropriété de 12 lots au total et ne faisant l'objet d'aucune procédure en cours citée à l'article L. 721-1 du code de la construction et de l'habitation. Montant moyen mensuel de charges déclaré par le vendeur : 1€ par mois (soit 12 € annuel). Honoraires d'agence à la charge du vendeur. Bien non soumis au DPE. Les informations sur les risques auxquels ce bien est exposé, y compris l'obligation légale de débroussaillement, sont disponibles sur le site Géorisques : La présente annonce immobilière a été rédigée sous la responsabilité éditoriale de M Flavien De Sousa mandataire indépendant en immobilier (sans détention de fonds), agent commercial de la SAS I@D France immatriculé au RSAC de MONT DE MARSAN sous le numéro 889247714, titulaire de la carte de démarchage immobilier pour le compte de la société I@D France SAS.
Christophe PIGEOT (Optimhome) Tel 07 87 39 46 23 vous propose à la vente, un bien idéal pour la location. Vous souhaitez un appartement avec un balcon terrasse dans le centre historique de Saint Sever Ce bien peut être rénové à moindre cout en bénéficiant des aides de l'état. Le charme du secteur doit opérer pour le louer éventuellement en saisonnier toute l'année. Alors suivez-moi : Cet appartement T2 duplex de 35 m² habitable attend votre créativité pour un rafraichissement. Il est de type "duplex" RDC : Pièce de vie de 12 m² avec cuisine totalement équipée, Salle d'eau / wc de 5 m² 1er étage : chambre de 10 m² avec dressing de 5,4 m² et palier. Balcon / Terrasse de 11 m² Pour améliorer le confort, Une climatisation réversible serait parfaite pour vous permettra de rester au frais l'été et d'avoir chaud l'hiver. La situation est idéale dans le centre historique plein de charme pour se déplacer à pied et découvrir cette petite ville chargée d'histoire. Plusieurs options s'offrent à vous : - Résidence principale. - Location à l'année. - Location saisonnière. Vous pourrez débuter immédiatement un régime LMNP gage d'un excellent rendement annuel Le balcon / terrasse est un très gros atout pour en profiter toute l'année en toute quiétude. Une chose est certaine, il y a un très gros potentiel sur ce petit appartement avec des travaux à la portée d'un bricoleur. Le T2 est actuellement loué 350€ par mois. Je suis à votre disposition pour tout renseignement complémentaire pour vous donner une projection des améliorations possibles et effectuer une visite. C'est un placement sur le long terme avec une rentabilité pérenne. Les honoraires sont à la charge du vendeur. Logement à consommation énergétique excessive : classe G Les informations sur les risques auxquels ce bien est exposé sont disponibles sur le site Géorisques : www. georisques. gouv. fr. Contactez Christophe PIGEOT Entrepreneur Individuel, Agent commercial OptimHome (RSAC N°839 699 519 Greffe de MONT DE MARSAN) 07 87 39 46 23 (réf. 591874 ).
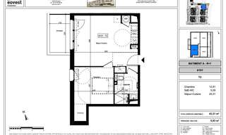
Découvrez notre nouvelle résidence connexion à mont-de-marsan. La résidence connexion avec ces logements du studio au 3 pièces modernes et confortables, elle offre un cadre de vie agréable et convivial pour ses résidents. Que vous soyez à la recherche d'un premier appartement, d'un lieu de vie paisible ou d'une opportunité d'investir, cette résidence neuve saura répondre à toutes vos attentes. Mont de marsan bénéficie d'une position stratégique qui contribue a son dynamisme. À moins de 1h30 de bordeaux, pau ou bayonne et située à proximité des plages de l'atlantique, la ville offre un équilibre parfait entre tranquillité et dynamisme. Investissez dans le neuf avec le nouveau dispositif jeanbrun ! Contactez-nous on vous explique tout pour toutes informations complémentaires, prenez contact avec nous ! Les informations sur les risques auxquels ce bien est exposé sont disponibles sur le site géorisques : .
Découvrez notre nouvelle résidence connexion à mont-de-marsan. La résidence connexion avec ces logements du studio au 3 pièces modernes et confortables, offre un cadre de vie agréable et convivial pour ses résidents. Que vous soyez à la recherche d'un premier appartement, d'un lieu de vie paisible ou d'une opportunité d'investir, cette résidence neuve saura répondre à toutes vos attentes. Mont de marsan bénéficie d'une position stratégique qui contribue a son dynamisme. À moins de 1h30 de bordeaux, pau ou bayonne et située à proximité des plages de l'atlantique, la ville offre un équilibre parfait entre tranquillité et dynamisme. Travaux actuellement en cours. Investissez dans le neuf avec le nouveau dispositif jeanbrun ! Contactez-nous on vous explique tout pour toutes informations complémentaires, prenez contact avec nous ! Les informations sur les risques auxquels ce bien est exposé sont disponibles sur le site géorisques : .
Saint Sever Ville haute, appartement en rez de chaussée de 33.94 m² rénové comprenant entrée, salon avec coin cuisine, salle d'eau avec WC et 1 chambre. Tout petit prix pour investissement immédiat dans copropriété de 4 lots d'habitation. Référence agence : 4369.