Logo LSI sombre

Appartement 2 Pièces 49 m² à vendre à Agde (34300)
Photo N° 2
Photo N° 3
Photo N° 4
Photo N° 5
Photo N° 6
Photo N° 7
Photo N° 8
Photo N° 9
Photo N° 10
Photo N° 11
11

Vente appartement 2 pièces 49 m² Agde (34300)

757 000 €

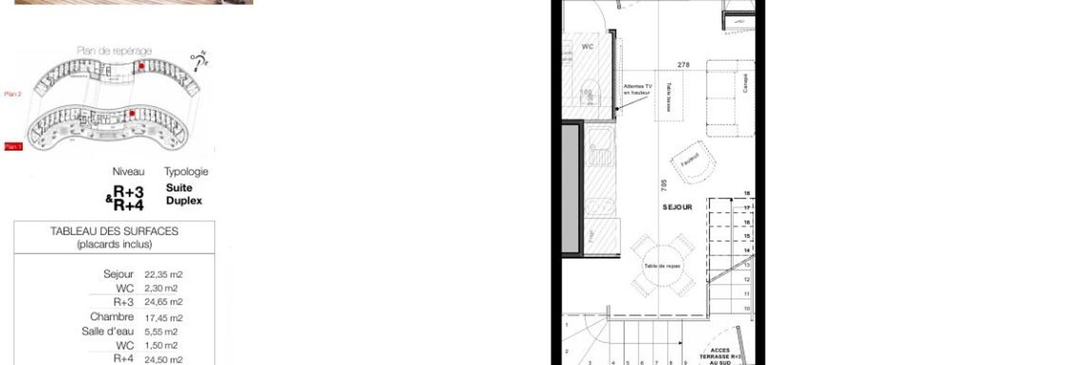
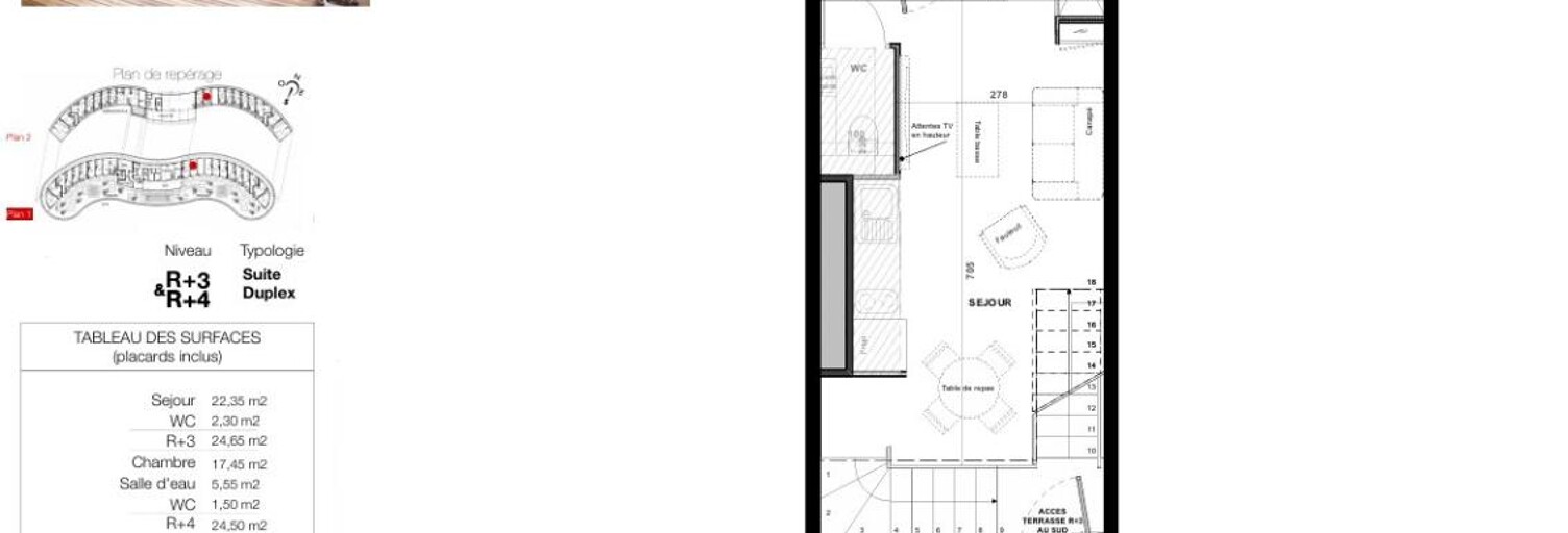
Le haut de gamme s'invite dans ce Duplex de plus de 49 m² au sein du village naturiste du Cap d'Agde

Au coeur du village naturiste du cap d'agde, cette résidence à vocation touristique s'inscrit dans un environnement recherché. Situé au dernier étage, sur le rooftop, ce duplex t2 de 49,15 m² se distingue par la qualité de ses volumes, la fluidité de ses espaces et une conception pensée pour le confort et la sérénité. L'espace de vie se compose d'un séjour lumineux aux lignes épurées, intégrant une cuisine fonctionnelle et discrètement aménagée. L'étage accueille, une chambre aux lignes épurées et une salle d'eau entièrement équipée, sublimée par des finitions d'exception, offrant un cadre de vie à la fois luxueux et harmonieux. Un atout rare complète ce bien : un garage privatif, particulièrement recherché dans le secteur. Cet appartement correspond-il à vos attentes en termes d'espace, de prestations et de standing ? Je reste à votre disposition pour organiser une présentation et vous accompagner dans votre projet prix : 757 000 euros (honoraires à la charge du vendeur) dpe en cours. Pour visiter et vous accompagner dans votre projet, contactez michel hornecker, au 06 99 40 50 21 ou, par courriel à m.hornecker@proprietes-privees.com. Selon l'article l. 561.5 du code monétaire et financier, pour l'organisation de la visite, la présentation d'une pièce d'identité vous sera demandée. Cette présente annonce a été rédigée sous la responsabilité éditoriale de michel hornecker agissant sous le statut d'agent commercial immatriculé au rsac beziers 493044283 auprès de sas proprietes privees, au capital de 44 920 euros, zac le chêne ferré - 44 allée des cinq continents 44120 vertou; siret 487 624 777 00040, rcs nantes. Carte professionnelle transactions sur immeubles et fonds de commerce (t) et gestion immobilière (g) n°cpi 4401 2016 000 010 388 délivrée par la cci nantes - saint nazaire. Compte séquestre n°309 32 50 84 67 bpa saint-sebastien-sur-loire (44230). Garantie galian-smabtp - 89 rue de la boétie, 75008 paris - n°28137 j pour 2 000 000 euros pour t et 120 000 euros pour g. Assurance responsabilité civile professionnelle par galian-smabtp n° de police 28137. J mandat réf : 433500 le professionnel garantit et sécurise votre projet immobilier. Copropriété de 125 lots - dont 122 lots habitation.(). Michel hornecker (ei) agent commercial - numéro rsac : beziers 493044283 -.

Caractéristiques

Les plus de cette annonce
  • Ascenseur
  • Garage
  • Parking
  • Ensoleillé
  • Meublé
  • Dernier étage
  • Piscine
  • Standing
  • Bien d'exception
  • Très bon état
  • Gardien
Commodités
  • 1 sous-sols
Confort
  • Chauffage Individuel
Pièces
  • 2 pièces
  • 1 chambre
  • 2 WC
  • Salle d'eau
Superficies
  • Surface habitable : 49 m²
  • Surface carrez : 49 m²
Etage
  • Duplex
Environnement
  • Quartier : Village Naturiste
Etat
  • Etat general : Excellent
Sécurité
  • Digicode
  • Interphone

Consommation énergétique et gaz à effet de serre

Bilan énergétique (DPE)
NC
Bilan gaz à effet de serre (GES)
NC

Géorisques

Les informations sur les risques auxquels ce bien est exposé sont disponibles sur le site Géorisques : www.georisques.gouv.fr

À propos de la copropriété

  • Nombre de lots de la copropriété : 125

A propos du prix de cet appartement

  • Prix : 757 000 € (soit 15 449 € / m²)
  • Honoraires à charge vendeur

À propos de cette annonce

Mise en ligne:

Dernière mise à jour:

Référence de l'annonce: 433500HKM
Propriétés Privées agence immobilière à Basse-Goulaine (44115)
Propriétés Privées
Afficher le numéro

Appartement similaires à acheter Agde (34300)

Appartement 2 pièces 747900 €
747 900 €

Appartement 2 pièces 49 m²

Agde (34300)

Au coeur du village naturiste du cap d'agde, cette résidence à vocation touristique s'inscrit dans un environnement recherché. Situé au dernier étage, sur le rooftop, cet appartement t2 de 49,35 m² se distingue par la qualité de ses volumes, la fluidité de ses espaces et une conception pensée pour le confort et la sérénité. L'espace de vie se compose d'un séjour lumineux aux lignes épurées, intégrant une cuisine fonctionnelle et discrètement aménagée. À l'étage, la chambre et la salle d'eau entièrement équipée, aux finitions soignées, complètent cet ensemble harmonieux. Un atout rare complète ce bien : une place de parking privative, particulièrement recherché dans le secteur. Cet appartement correspond-il à vos attentes en termes d'espace, de prestations et de standing ? Je reste à votre disposition pour organiser une présentation et vous accompagner dans votre projet prix : 747 900 euros (honoraires à la charge du vendeur) dpe en cours. Pour visiter et vous accompagner dans votre projet, contactez michel hornecker, au 06 99 40 50 21 ou, par courriel à m.hornecker@proprietes-privees.com. Selon l'article l. 561.5 du code monétaire et financier, pour l'organisation de la visite, la présentation d'une pièce d'identité vous sera demandée. Cette présente annonce a été rédigée sous la responsabilité éditoriale de michel hornecker agissant sous le statut d'agent commercial immatriculé au rsac beziers 493044283 auprès de sas proprietes privees, au capital de 44 920 euros, zac le chêne ferré - 44 allée des cinq continents 44120 vertou; siret 487 624 777 00040, rcs nantes. Carte professionnelle transactions sur immeubles et fonds de commerce (t) et gestion immobilière (g) n°cpi 4401 2016 000 010 388 délivrée par la cci nantes - saint nazaire. Compte séquestre n°309 32 50 84 67 bpa saint-sebastien-sur-loire (44230). Garantie galian-smabtp - 89 rue de la boétie, 75008 paris - n°28137 j pour 2 000 000 euros pour t et 120 000 euros pour g. Assurance responsabilité civile professionnelle par galian-smabtp n° de police 28137. J mandat réf : 433297 le professionnel garantit et sécurise votre projet immobilier. Copropriété de 125 lots - dont 122 lots habitation.(). Michel hornecker (ei) agent commercial - numéro rsac : beziers 493044283 -.

Appartement 2 pièces 759000 €
759 000 €

Appartement 2 pièces 52 m²

Agde (34300)

Au coeur du village naturiste du cap d'agde, cette résidence à vocation touristique s'inscrit dans un environnement recherché. Situé au dernier étage, sur le rooftop, cet appartement t2 de 52,35 m² se distingue par la qualité de ses volumes, la fluidité de ses espaces et une conception pensée pour le confort et la sérénité. L'espace de vie se compose d'un séjour lumineux aux lignes épurées, intégrant une cuisine fonctionnelle et discrètement aménagée. À l'étage, la chambre et la salle d'eau entièrement équipée, aux finitions soignées, complètent cet ensemble harmonieux. Un atout rare complète ce bien : une place de parking privative, particulièrement recherché dans le secteur. Cet appartement correspond-il à vos attentes en termes d'espace, de prestations et de standing ? Je reste à votre disposition pour organiser une présentation et vous accompagner dans votre projet prix : 759 000 euros (honoraires à la charge du vendeur) dpe en cours. Pour visiter et vous accompagner dans votre projet, contactez michel hornecker, au 06 99 40 50 21 ou, par courriel à m.hornecker@proprietes-privees.com. Selon l'article l. 561.5 du code monétaire et financier, pour l'organisation de la visite, la présentation d'une pièce d'identité vous sera demandée. Cette présente annonce a été rédigée sous la responsabilité éditoriale de michel hornecker agissant sous le statut d'agent commercial immatriculé au rsac beziers 493044283 auprès de sas proprietes privees, au capital de 44 920 euros, zac le chêne ferré - 44 allée des cinq continents 44120 vertou; siret 487 624 777 00040, rcs nantes. Carte professionnelle transactions sur immeubles et fonds de commerce (t) et gestion immobilière (g) n°cpi 4401 2016 000 010 388 délivrée par la cci nantes - saint nazaire. Compte séquestre n°309 32 50 84 67 bpa saint-sebastien-sur-loire (44230). Garantie galian-smabtp - 89 rue de la boétie, 75008 paris - n°28137 j pour 2 000 000 euros pour t et 120 000 euros pour g. Assurance responsabilité civile professionnelle par galian-smabtp n° de police 28137. J mandat réf : 433296 le professionnel garantit et sécurise votre projet immobilier. Copropriété de 125 lots - dont 122 lots habitation.(). Michel hornecker (ei) agent commercial - numéro rsac : beziers 493044283 -.

Appartement 2 pièces 739200 €
739 200 €

Appartement 2 pièces 49 m²

Agde (34300)

Village naturiste du cap d'agde, première destination naturiste en méditerranée. Un lieu d'exception, où liberté, bien-être et raffinement se rencontrent. Cela répond-il à vos attentes  ? Au coeur d'un cadre privilégié, découvrez ce duplex t2 lumineux de plus de 49 m², pensé pour allier fonctionnalité et élégance. Vous bénéficierez d'un accès direct au rooftop, offrant une vue panoramique exceptionnelle sur le village naturiste, un véritable atout pour savourer l'environnement unique et le climat méditerranéen en toute sérénité. Ce bien recherché conjugue confort quotidien et art de vivre en bord de mer. Au rez-de-chaussée, une belle pièce de vie baignée de lumière naturelle accueille une cuisine ouverte, à la fois moderne et conviviale. À l'étage, une chambre confortable et une salle d'eau entièrement équipée s'inscrivent dans une atmosphère sobre et raffinée, propice à la détente. L'agencement soigné de ce bien offre un espace de vie fluide, où chaque mètre carré est optimisé pour votre confort. Un atout supplémentaire : une place de parking en sous-sol est incluse, un vrai plus dans ce secteur recherché. Ce bien vous séduit par sa superficie, son agencement ou son style ? Je suis à votre écoute pour vous accompagner et organiser une visite à votre convenance. Prix de vente : 739 200 euros (honoraires à la charge du vendeur). Plans, notice descriptive et informations complémentaires disponibles sur demande. Photos non contractuelles, dpe non requis. Selon l'article l. 561.5 du code monétaire et financier, pour l'organisation de la visite, la présentation d'une pièce d'identité vous sera demandée. Pour visiter et vous accompagner dans votre projet, contactez michel hornecker, au 06 99 40 50 21 ou par courriel à m.hornecker@proprietes-privees.com cette présente annonce a été rédigée sous la responsabilité éditoriale de michel hornecker agissant sous le statut d'agent commercial immatriculé au rsac beziers 824 253 710 spécialisé en vente du neuf, auprès de la sas proprietes privees, réseau national immobilier, au capital de 40000 euros, 44 allée des cinq continents - zac le chêne ferré, 44120 vertou, rcs nantes n° 487 624 777 00040, carte professionnelle t et g n° cpi 4401 2016 000 010 388 cci nantes-saint nazaire. Garantie galian - 89 rue de la boétie, 75008 paris mandat réf : 409205 - le professionnel garantit et sécurise votre projet immobilier. Michel hornecker (ei) agent commercial - numéro rsac : beziers 824 253 710 les informations sur les risques auxquels ce bien est exposé sont disponibles sur le site géorisques : copropriété de 125 lots - dont 122 lots habitation.(). Michel hornecker (ei) agent commercial - numéro rsac : beziers 493044283 -.

À voir pour le même budget

Appartement 4 pièces 679500 €
679 500 €

Appartement 4 pièces 126 m²

Agde (34300)

Secteur rochelongue appartement de 126 m² baigné par le soleil donnant sur une terrasse de 70 m² avec une vue mer magnifique. Le plus de ce bien d 'exception, c 'est son garage de 40 m² communiquant directement avec l'appartement et ses 2 places de parkings privatives. Bien soumis au statut juridique de la copropriété. Nb de lots : 240 agent commercial rsac n * 490 193 232. Les informations sur les risques auxquels ce bien est exposé sont disponibles sur le site géorisques surface carrez : 126.75 m².

Appartement 2 pièces 862800 €
862 800 €

Appartement 2 pièces 59 m²

Agde (34300)

Village naturiste du cap d'agde, première destination naturiste en méditerranée. Un lieu d'exception, où liberté, bien-être et raffinement se rencontrent. Cela répond-il à vos attentes  ? Au coeur d'un cadre privilégié, découvrez ce duplex t2 lumineux de 59 m², pensé pour allier fonctionnalité et élégance. Vous bénéficierez d'un accès direct au rooftop, offrant une vue panoramique exceptionnelle sur le village naturiste ? Un véritable atout pour savourer l'environnement unique et le climat méditerranéen en toute sérénité. Ce bien recherché conjugue confort quotidien et art de vivre en bord de mer. Au rez-de-chaussée, une belle pièce de vie baignée de lumière naturelle accueille une cuisine ouverte, à la fois moderne et conviviale. À l'étage, une chambre confortable et une salle d'eau entièrement équipée s'inscrivent dans une atmosphère sobre et raffinée, propice à la détente. L'agencement soigné de ce bien offre un espace de vie fluide, où chaque mètre carré est optimisé pour votre confort. Un atout supplémentaire : une place de parking en sous-sol est incluse, un vrai plus dans ce secteur recherché. Ce bien vous séduit par sa superficie, son agencement ou son style ? Je suis à votre écoute pour vous accompagner et organiser une visite à votre convenance. Prix de vente : 862 800 euros (honoraires à la charge du vendeur). Plans, notice descriptive et informations complémentaires disponibles sur demande. Photos non contractuelles, dpe non requis. Selon l'article l. 561.5 du code monétaire et financier, pour l'organisation de la visite, la présentation d'une pièce d'identité vous sera demandée. Pour visiter et vous accompagner dans votre projet, contactez michel hornecker, au 06 99 40 50 21 ou par courriel à m.hornecker@proprietes-privees.com cette présente annonce a été rédigée sous la responsabilité éditoriale de michel hornecker agissant sous le statut d'agent commercial immatriculé au rsac beziers 824 253 710 spécialisé en vente du neuf, auprès de la sas proprietes privees, réseau national immobilier, au capital de 40000 euros, 44 allée des cinq continents - zac le chêne ferré, 44120 vertou, rcs nantes n° 487 624 777 00040, carte professionnelle t et g n° cpi 4401 2016 000 010 388 cci nantes-saint nazaire. Garantie galian - 89 rue de la boétie, 75008 paris mandat réf : 408928- le professionnel garantit et sécurise votre projet immobilier. Michel hornecker (ei) agent commercial - numéro rsac : beziers 824 253 710 les informations sur les risques auxquels ce bien est exposé sont disponibles sur le site géorisques : copropriété de 125 lots - dont 122 lots habitation.(). Michel hornecker (ei) agent commercial - numéro rsac : beziers 493044283 -.

Appartement 3 pièces 642200 €
642 200 €

Appartement 3 pièces 66 m²

Agde (34300)

Idéalement situé au sein du village naturiste du cap d'agde, découvrez cet appartement de type 3, ce bien saura séduire une clientèle exigeante en quête d'un pied-à-terre raffiné ou d'un investissement patrimonial de qualité. D'une superficie supérieure à 66 m², cet appartement se distingue par : une pièce de vie lumineuse offrant de beaux volumes, pensée pour conjuguer fonctionnalité et bien-être au quotidien. Des prestations soignées, créant une atmosphère à la fois moderne et chaleureuse. Deux chambres. Une salle d'eau entièrement équipée, alliant design et praticité. Le stationnement étant un luxe dans ce secteur, ce bien est vendu avec une place de parking privative, garantissant sécurité et facilité d'accès toute l'année. Profitez d'un accès immédiat aux plages, aux commerces et aux lieux de vie, tout en bénéficiant du calme de votre résidence. Ce bien correspond-il à vos critères de recherche (surface, standing, stationnement) ? Prix : 642 200 euros (honoraires à la charge du vendeur) dpe en cours. Pour visiter et vous accompagner dans votre projet, contactez michel hornecker, au 06 99 40 50 21 ou, par courriel à m.hornecker@proprietes-privees.com. Selon l'article l. 561.5 du code monétaire et financier, pour l'organisation de la visite, la présentation d'une pièce d'identité vous sera demandée. Cette présente annonce a été rédigée sous la responsabilité éditoriale de michel hornecker agissant sous le statut d'agent commercial immatriculé au rsac beziers 493044283 auprès de sas proprietes privees, au capital de 44 920 euros, zac le chêne ferré - 44 allée des cinq continents 44120 vertou; siret 487 624 777 00040, rcs nantes. Carte professionnelle transactions sur immeubles et fonds de commerce (t) et gestion immobilière (g) n°cpi 4401 2016 000 010 388 délivrée par la cci nantes - saint nazaire. Compte séquestre n°309 32 50 84 67 bpa saint-sebastien-sur-loire (44230). Garantie galian-smabtp - 89 rue de la boétie, 75008 paris - n°28137 j pour 2 000 000 euros pour t et 120 000 euros pour g. Assurance responsabilité civile professionnelle par galian-smabtp n° de police 28137. J mandat réf : 433099 le professionnel garantit et sécurise votre projet immobilier. Copropriété de 125 lots - dont 122 lots habitation.(). Michel hornecker (ei) agent commercial - numéro rsac : beziers 493044283 -.

Appartement 2 pièces 759000 €
759 000 €

Appartement 2 pièces 52 m²

Agde (34300)

Au coeur du village naturiste du cap d'agde, cette résidence à vocation touristique s'inscrit dans un environnement recherché. Situé au dernier étage, sur le rooftop, cet appartement t2 de 52,35 m² se distingue par la qualité de ses volumes, la fluidité de ses espaces et une conception pensée pour le confort et la sérénité. L'espace de vie se compose d'un séjour lumineux aux lignes épurées, intégrant une cuisine fonctionnelle et discrètement aménagée. À l'étage, la chambre et la salle d'eau entièrement équipée, aux finitions soignées, complètent cet ensemble harmonieux. Un atout rare complète ce bien : une place de parking privative, particulièrement recherché dans le secteur. Cet appartement correspond-il à vos attentes en termes d'espace, de prestations et de standing ? Je reste à votre disposition pour organiser une présentation et vous accompagner dans votre projet prix : 759 000 euros (honoraires à la charge du vendeur) dpe en cours. Pour visiter et vous accompagner dans votre projet, contactez michel hornecker, au 06 99 40 50 21 ou, par courriel à m.hornecker@proprietes-privees.com. Selon l'article l. 561.5 du code monétaire et financier, pour l'organisation de la visite, la présentation d'une pièce d'identité vous sera demandée. Cette présente annonce a été rédigée sous la responsabilité éditoriale de michel hornecker agissant sous le statut d'agent commercial immatriculé au rsac beziers 493044283 auprès de sas proprietes privees, au capital de 44 920 euros, zac le chêne ferré - 44 allée des cinq continents 44120 vertou; siret 487 624 777 00040, rcs nantes. Carte professionnelle transactions sur immeubles et fonds de commerce (t) et gestion immobilière (g) n°cpi 4401 2016 000 010 388 délivrée par la cci nantes - saint nazaire. Compte séquestre n°309 32 50 84 67 bpa saint-sebastien-sur-loire (44230). Garantie galian-smabtp - 89 rue de la boétie, 75008 paris - n°28137 j pour 2 000 000 euros pour t et 120 000 euros pour g. Assurance responsabilité civile professionnelle par galian-smabtp n° de police 28137. J mandat réf : 433296 le professionnel garantit et sécurise votre projet immobilier. Copropriété de 125 lots - dont 122 lots habitation.(). Michel hornecker (ei) agent commercial - numéro rsac : beziers 493044283 -.

Appartement 2 pièces 690600 €
690 600 €

Appartement 2 pièces 48 m²

Agde (34300)

Village naturiste du cap d'agde, première destination naturiste en méditerranée. Un lieu d'exception, où liberté, bien-être et raffinement se rencontrent. Cela répond-il à vos attentes  ? Au coeur d'un cadre privilégié, découvrez ce duplex t2 lumineux de plus de 49 m², pensé pour allier fonctionnalité et élégance. Vous bénéficierez d'un accès direct au rooftop, offrant une vue panoramique exceptionnelle sur le village naturiste, un véritable atout pour savourer l'environnement unique et le climat méditerranéen en toute sérénité. Ce bien recherché conjugue confort quotidien et art de vivre en bord de mer. Au rez-de-chaussée, une belle pièce de vie baignée de lumière naturelle accueille une cuisine ouverte, à la fois moderne et conviviale. À l'étage, une chambre confortable et une salle d'eau entièrement équipée s'inscrivent dans une atmosphère sobre et raffinée, propice à la détente. L'agencement soigné de ce bien offre un espace de vie fluide, où chaque mètre carré est optimisé pour votre confort. Un atout supplémentaire : une place de parking en sous-sol est incluse, un vrai plus dans ce secteur recherché. Ce bien vous séduit par sa superficie, son agencement ou son style ? Je suis à votre écoute pour vous accompagner et organiser une visite à votre convenance. Prix de vente : 690 600 euros (honoraires à la charge du vendeur). Plans, notice descriptive et informations complémentaires disponibles sur demande. Photos non contractuelles, dpe non requis. Selon l'article l. 561.5 du code monétaire et financier, pour l'organisation de la visite, la présentation d'une pièce d'identité vous sera demandée. Pour visiter et vous accompagner dans votre projet, contactez michel hornecker, au 06 99 40 50 21 ou par courriel à m.hornecker@proprietes-privees.com cette présente annonce a été rédigée sous la responsabilité éditoriale de michel hornecker agissant sous le statut d'agent commercial immatriculé au rsac beziers 824 253 710 spécialisé en vente du neuf, auprès de la sas proprietes privees, réseau national immobilier, au capital de 40000 euros, 44 allée des cinq continents - zac le chêne ferré, 44120 vertou, rcs nantes n° 487 624 777 00040, carte professionnelle t et g n° cpi 4401 2016 000 010 388 cci nantes-saint nazaire. Garantie galian - 89 rue de la boétie, 75008 paris mandat réf : 409217 - le professionnel garantit et sécurise votre projet immobilier. Michel hornecker (ei) agent commercial - numéro rsac : beziers 824 253 710 les informations sur les risques auxquels ce bien est exposé sont disponibles sur le site géorisques : copropriété de 125 lots - dont 122 lots habitation.(). Michel hornecker (ei) agent commercial - numéro rsac : beziers 493044283 -.

Appartement 2 pièces 798000 €
798 000 €

Appartement 2 pièces 53 m²

Agde (34300)

Village naturiste du cap d'agde, première destination naturiste en méditerranée. Un lieu d'exception, où liberté, bien-être et raffinement se rencontrent. Cela répond-il à vos attentes  ? Au coeur d'un cadre privilégié, découvrez ce duplex t2 lumineux de près de 54 m², pensé pour allier fonctionnalité et élégance. Vous bénéficierez d'un accès direct au rooftop, offrant une vue panoramique exceptionnelle sur le village naturiste, un véritable atout pour savourer l'environnement unique et le climat méditerranéen en toute sérénité. Ce bien recherché conjugue confort quotidien et art de vivre en bord de mer. Au rez-de-chaussée, une belle pièce de vie baignée de lumière naturelle accueille une cuisine ouverte, à la fois moderne et conviviale. À l'étage, une chambre confortable et une salle d'eau entièrement équipée s'inscrivent dans une atmosphère sobre et raffinée, propice à la détente. L'agencement soigné de ce bien offre un espace de vie fluide, où chaque mètre carré est optimisé pour votre confort. Un atout supplémentaire : une place de parking en sous-sol est incluse, un vrai plus dans ce secteur recherché. Ce bien vous séduit par sa superficie, son agencement ou son style ? Je suis à votre écoute pour vous accompagner et organiser une visite à votre convenance. Prix de vente : 798 000 euros (honoraires à la charge du vendeur). Plans, notice descriptive et informations complémentaires disponibles sur demande. Photos non contractuelles, dpe non requis. Selon l'article l. 561.5 du code monétaire et financier, pour l'organisation de la visite, la présentation d'une pièce d'identité vous sera demandée. Pour visiter et vous accompagner dans votre projet, contactez michel hornecker, au 06 99 40 50 21 ou par courriel à m.hornecker@proprietes-privees.com cette présente annonce a été rédigée sous la responsabilité éditoriale de michel hornecker agissant sous le statut d'agent commercial immatriculé au rsac beziers 824 253 710 spécialisé en vente du neuf, auprès de la sas proprietes privees, réseau national immobilier, au capital de 40000 euros, 44 allée des cinq continents - zac le chêne ferré, 44120 vertou, rcs nantes n° 487 624 777 00040, carte professionnelle t et g n° cpi 4401 2016 000 010 388 cci nantes-saint nazaire. Garantie galian - 89 rue de la boétie, 75008 paris mandat réf : 409192- le professionnel garantit et sécurise votre projet immobilier. Michel hornecker (ei) agent commercial - numéro rsac : beziers 824 253 710 les informations sur les risques auxquels ce bien est exposé sont disponibles sur le site géorisques : copropriété de 125 lots - dont 122 lots habitation.(). Michel hornecker (ei) agent commercial - numéro rsac : beziers 493044283 -.