197 résultats
Top placement immobilier locatif : studio meublé vendu 40% en dessous de sa valeur avec des loyers bruts garantis à 6%, sans impôt, ni csg et des charges de co pro réduites. Oui, vous avez bien lu ! Serenite : vous n'avez pas à vous occuper de la gestion de votre bien, vous recevez vos loyers tous les trimestres à dates fixes, sans payer de charges de co propriété securite : vos loyers sont garantis que votre bien soit loué ou pas par le gestionnaire et vous achetez votre appartement 40% en dessous de sa valeur réelle, vous êtes donc à l'abri d'une baisse du marché. Simplification : vos loyers sont défiscalisés et versés immédiatement : nous vous assistons dans vos déclarations fiscales annuelles. Rentabilite : la résidence dans laquelle se trouve votre bien offre de multiples services recherchés par les locataires. Sociabilisation : en achetant ce bien, vous contribuez à offrir un logement à un locataire dans un marché en pénurie. Si vous recherchez une résidence principale, loger un proche ou encore prendre à votre compte la gestion locative de ce logement, ce dernier n'est pas fait pour satisfaire vos attentes. Par contre, si vos attentes sont en conformité avec les avantages définis plus haut, appelez-nous pour avoir tous les renseignements sur cette opportunité patrimoniale.
Eligible Pinel + optimisé au déficit foncier - Déficit Foncier La rue du Nouveau Saint-Martin, présente de nombreux avantages pour ceux qui recherchent un endroit agréable à vivre. Son emplacement central offre un accès facile aux commodités : une variété de magasins, de restaurants et de lieux de divertissement. La rue se situe à proximité des sites historiques tels que la cathédrale Saint-Maclou et le musée Tavet-Delacour et de la nature avec le parc des Larris et le parc des Cordeliers à proximité. Référence agence : 0000.
Le 49 Cauchoix : Une résidence en travaux, sécurisée et moderne de 29 appartements, située au calme en retrait de la rue Cauchoix, et à 5 minutes en voiture de la gare d'Enghien les Bains et Montmorency. Vous êtes proches de tout : à 200 m à pied du parc Winston Churchill, à moins de 10 min à pied du centre ville de Deuil-la-Barre (95), des commerces et des écoles. Ce nouveau programme immobilier réalisé par Quanim, promoteur en Ile-de-France, propose des appartements neufs du studio au 5 pièces, s'ouvrant sur de spacieux espaces extérieurs privatifs : jardins, terrasses et / ou balcons. Une grande terrasse sur le toit d'un appartement 5 pièces offre une vue dégagée et un espace de vie en plus pour profiter des beaux jours. Avec une architecture élégante et contemporaine grâce à ses façades composées de pierre de Causse et d’enduit gratté fin, cette nouvelle résidence bénéficie d'une localisation privilégiée dans le centre ville de Deuil-la-Barre (Val d'Oise), à 10 min en voiture du lac et du Casino d'Enghien les Bains. Contactez-nous ou RDV sur notre Espace de vente : 49 rue Cauchoix à Deuil-la-Barre. * Conditions sur quanim. fr. Offre conditionnée à une signature notaire au plus tard le 31 / 12 / 2025. Les informations sur les risques auxquels ce bien est exposé sont disponibles sur le site Géorisques : .
Notre dernière réalisation, au coeur de Seine Parisii. La Résidence L'Amiral à Cormeilles-en-Parisis propose des appartements neufs avec des prestations haut de gamme. Située en lisière du quartier Seine Parisii, elle offre une proximité avec les écoles, transports, loisirs et commerces. Types de lots disponibles : appartements du studio au 5 pièces. Contactez-nous dès à présent au 01 55 18 70 00 pour découvrir notre résidence et rencontrez nos équipes. Les informations sur les risques auxquels ce bien est exposé sont disponibles sur le site Géorisques : .

Recevez en temps réel les dernières annonces correspondant à votre recherche
Du 01 / 12 / 2025 au 31 / 12 / 2025 : Frais de notaire offerts. voir conditions sur ca-immobilier. fr. LIVRAISON 1T 2027 – SAINT- DENIS (93) située entre l'aéroport Roissy Charles de Gaulle, le Stade de France, l'A86, le périphérique et 2 lignes de RER, la commune est jeune et dynamique, à l'image de ces nombreux bassins d'emploi (SNCF, Ventes Privées, Generali, Siemens, Orange…). Limitrophe avec Saint-Ouen, Aubervilliers ou l'Ile St Denis, le quartier « Les Lumières Pleyel » est en passe de devenir le hub le plus fréquenté du Grand Paris Express (lignes métro 14,15, 16 et 17 et en correspondance avec la ligne 13 et le RER D). Sa programmation mêle logements, équipements culturels, sportifs et de loisirs, espaces publics, commerces, hôtels et bureaux. Votre futur programme neuf propose des appartements du studio au 5 pièces duplex, baignés de lumière avec balcons, terrasses ou jardins d'hiver, avec vues dégagées sur le relief francilien. Les prestations sont soignées : du parquet stratifié et du carrelage 45 x 45cm dans les pièces de vie, des volets roulants dans les pièces principales, le confort thermique et acoustique renforcé, le chauffage collectif urbain, une salle de bains aménagée avec un meuble vasque intégré, baignoire ou douche, miroir rétroéclairé et de la faïence murale. Pour plus de sécurité, des portes palières serrure 5 points, un vidéophone écran couleur et des places de stationnement en sous-sol, selon typologie. Les rooftop de certains bâtiments sont aménagés en toits terrasses végétalisés et les pieds d'immeubles sont vivants et réservés à des espaces de vie, des restaurants et des commerces avec double hauteur ainsi qu'une crèche. * voir renseignements et conditions sur notre site . Les informations sur les risques auxquels ce bien est exposé sont disponibles sur le site Géorisques : .
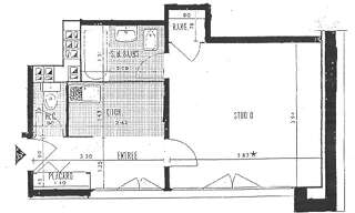
À quelques pas de la gare, dans une maison divisée en 4 appartements, studio en sousplex offrant une pièce à vivre, cuisine, salle d'eau + wc. Faibles charges. Travaux de décoration à prévoir. Honoraires inclus dans le prix : 8.42%. Logement à consommation énergétique excessive : classe G.
Bel appartement de type F1 en duplex comprenant : séjour avec coin cuisine équipée. À l'etage : dégagement avec placard, coin nuit, salle d'eau avec wc. Au calme dans un environnement privilégié. Idéal 1ére acquisition ou investisseur. Proposition d'aménagement virtuel non contractuelle en dernière photo. Honoraires inclus dans le prix : 7.26%.
Livraison immediate - saint-denis : résidence apogée - au cœur du village des athlètes - implantée en bords de seine à côté de la cité du cinéma et à quelques minutes à pied de la plus grande et plus interconnectée des gares du futur grand paris express; saint-denis pleyel (métro lignes 13,14, 15,16, 17 et red d). Cette résidence s’insère dans l’écoquartier universeine qui accueille de nombreux commerces, une crèche, un groupe scolaire, et 19 000 m² d’espaces verts et cheminements doux pensés comme des corridors de biodiversité. Apogée est un modèle de construction bas carbone et bioclimatique dont la conception environnementale et énergétique est au cœur du projet architectural. Nous vous proposons un large choix d’appartements du studio au 4 pièces, disposant pour la plupart d’un balcon ou d’une terrasse. Les étages élevés profitent de belles vues dégagées et un belvédère au 15e étage offre un panorama unique sur paris et alentours. Vous pouvez bénéficier pour l’acquisition de votre résidence principale de la tva réduite à 5,5% et du nouveau ptz (sous conditions). Les informations sur les risques auxquels ce bien est exposé sont disponibles sur le site géorisques : .
Travaux en cours ! Découvrez votre nouvelle adresse, à bezons, à quelques minutes du centre-ville ! La réalisation propose un choix d'appartements du studio au 5 pièces, aux espaces généreux avec balcons, terrasses ou loggias ainsi que des places de stationnement. Au calme d'un quartier résidentiel vous profiterez d'un cadre de vie idéal avec de vastes espaces arborés. La résidence vise la certification re2020 gage de confort et d'économies d'énergie au quotidien et bénéficie de la proximité immédiate d'un nouvel établissement scolaire et d'un centre de santé, venant compléter les commerces du centre-ville accessibles à pied pour votre plus grand confort. La ligne t2, offrant un accès direct à la gare de la défense en 15 minutes se trouve à 1km. En copromotion avec atland residentiel quelques appartements sont disponibles en tva réduite à 5,5% * voir conditions d'éligibilité complètes sur notre site internet. Pour toutes informations complémentaires, prenez contact avec nous ! Les informations sur les risques auxquels ce bien est exposé sont disponibles sur le site géorisques : .
NOUVEAU A BOUFFEMONT ! Spécial investissement LMNP ! Découvrez 'Castanea', une nouvelle résidence services Seniors et choisissez parmi une sélection d'appartements neufs et meublés. Vous pourrez ainsi vous construire un patrimoine sûr et garanti pour vivre ou investir ! Cette dernière, composée de 104 logements du studio au 3 pièces et proposant de nombreux services : restauration, piscine, espaces club. est gérée par un leader de la résidence services seniors Domitys. Pour toute information complémentaire, prenez contact avec nos conseillers de vente ! Pour toutes informations complémentaires, prenez contact avec nous ! Les informations sur les risques auxquels ce bien est exposé sont disponibles sur le site Géorisques : .
TRAVAUX EN COURS ! Découvrez notre programme d'exception à Deuil-la-Barre, situé en limite d'Enghien-les-Bains, et à seulement 600m des gares d'Enghien-les-Bains et de la Barre Ormesson, vous permettant de rejoindre Paris Gare du Nord en une dizaine de minutes. Idéalement situé, toutes les commodités du quotidien sont accessibles à avec notamment le marché d'Enghien à seulement 600m. De plus, de nombreuses infrastructures scolaires, de la maternelle au lycée, mais aussi divers commerces et services viennent compléter cette offre. Dans son écrin de verdure, la résidence se caractérise par une architecture contemporaine avec un épannelage en cascade, offrant ainsi de larges espaces extérieurs (balcons, terrasses et jardins privatifs), et pour certains, de belles vues dégagées. Elle se compose de beaux appartements, du studio au 5 pièces, dont un duplex et quelques magnifiques rooftops. Enfin, pour compléter votre confort, la réalisation profite d'une aire de jeux arborée, d'un parking en sous-sol et d'un local vélos. Tout y est réuni pour un quotidien des plus agréables. Renseignez-vous dès maintenant ! Pour toutes informations complémentaires, prenez contact avec nous ! Pour toutes informations complémentaires, prenez contact avec nous ! Les informations sur les risques auxquels ce bien est exposé sont disponibles sur le site Géorisques : .
Investissement actif immobilier sous bail commercial Loyer annuel HT : 4 026 Euro Charges générales : 151 Euro ANNUEL Taxe fonciere : 528 Euro Bail commercial renouvelé le 01 janvier 2017 pour une durée ferme de 11 ans soit jusqu'au 31 décembre 2027. VSP exploitait la résidence en location-gérance. Le fonds de commerce et les baux ont été cédés à VSP le 31-12-2022 (ancien exploitant : Appart City) Loyer payable mensuellement par l'exploitant à terme échu. Indexation annuelle. Appartement de type T1 de 20.50 m² habitables, situé au 2e étage, comprenant une entrée, un séjour avec placard, une cuisine et une salle d'eau avec WC. La résidence fut construite en 2008 et comporte 107 appartements, du studio à l'appartement 2 chambres. Pour plus d'informations contactez Efficience Groupe tel 06 07 97 52 91 Bénéficiez de notre pôle dédié à l'achat en neuf : service courtage en financement, gestion locative, accompagnement juridique et fiscal.
Travaux en cours ! Découvrez notre nouveau programme neuf dans le quartier du val notre dame, à argenteuil (95). Située à la jonction entre sartrouville, bezons et argenteuil, notre nouvelle résidence neuve vous permet de bénéficier du dynamisme de ces 3 communes. N'attendez plus pour découvrir nos appartements neufs, du studio au 5 pièces, offrant de beaux espaces extérieurs pour tous (terrasses, balcons, loggias et jardins). Profitez des avantages de la tva réduite à 5,5% pour habiter et du dispositif pinel pour investir. Pour toutes informations complémentaires, prenez contact avec nous ! Les informations sur les risques auxquels ce bien est exposé sont disponibles sur le site géorisques : .
Investissement - résidence "les sources" f1 comprenant : entrée avec placard, cuisine aménagée, séjour avec placard, salle de bains, wc. Cave et parking s / sol. Chauffage collectif. Vendu loué 590 / mois (490 + 100).
À saisir charmant studio meublé d'environ 28 m², avec coin nuit, cuisine équipée, salle de douches, wc, et jardinet d'environ 30 m². Bien en copropriété : 72 lots charges courantes : 720 / an pas de procédure en cours prix : 99 000 * honoraires à la charge du vendeur.
Cergy (95000) - residence les estudiales - christophe dumont vous propose ce studio composé d'une entrée, d'une pièce principale avec coin kitchenette, d'une salle d'eau avec wc. Le bien est situé à proximité des commerces, de l'université de cergy, de l'institut polytechnique saint-louis, école supérieure des sciences économiques et commerciales. Résidence recherchée. Dpe : e ges : b - montant estimé des dépenses annuelles d'énergie pour un usage standard entre 580 et 820 euros indexées aux années 2021,2022 et 2023. Pour visiter et vous accompagner dans votre projet, contactez christophe dumont, au 06 07 43 12 60 ou, par courriel à c.dumont@proprietes-privees.com. Selon l'article l. 561.5 du code monétaire et financier, pour l'organisation de la visite, la présentation d'une pièce d'identité vous sera demandée. Cette présente annonce a été rédigée sous la responsabilité éditoriale de christophe dumont agissant en qualité de conseiller immobilier indépendant sous portage salarial auprès de sas proprietes privees, au capital de 44 920 euros, zac le chêne ferré - 44 allée des cinq continents 44120 vertou; siret 487 624 777 00040, rcs nantes. Carte professionnelle transactions sur immeubles et fonds de commerce (t) et gestion immobilière (g) n°cpi 4401 2016 000 010 388 délivrée par la cci nantes - saint nazaire. Compte séquestre n°309 32 50 84 67 bpa saint-sebastien-sur-loire (44230). Garantie galian-smabtp - 89 rue de la boétie, 75008 paris - n°28137 j pour 2 000 000 euros pour t et 120 000 euros pour g. Assurance responsabilité civile professionnelle par galian-smabtp n° de police 28137. J mandat réf : 424510 - le professionnel garantit et sécurise votre projet immobilier. Prix : 87 000 hai (honoraires charge vendeur). Copropriété de 140 lots - dont 140 lots habitation. (). Charges annuelles : 706.4 euros. Les informations sur les risques auxquels ce bien est exposé sont disponibles sur le site géorisques : www. Georisques. Gouv. Fr.
Villiers le bel - venez découvrir un grand studio d'environ 31 m² habitable dans une résidence calme à 300m de l'arrêt de bus le plus proche - et à 12 minutes du rer d en voiture, à proximité des écoles et commerces. L'appartement est composé d'un grand séjour lumineux donnant sur espaces verts, une cuisinette ouverte aménagée et équipée, une salle de bain avec un cabinet de toilette. Affaire a saisir ! Une place de stationnement en sous-sol et une cave sont à disposition avec l'appartement. Prix : 89 000 euros honoraires charge vendeur ne tardez plus, votre nouvelle adresse est chez nous ! Classe energie : e 322 kwh / m2 par an classe climat : b 10 kg co2 / m2 / an montant moyen estimé des dépenses annuelles d'énergie pour un usage standard établi à partir des prix de l'énergie de l'année 2021 : entre 871 euros et 1179 euros par an pour visiter et vous accompagner dans votre projet, contactez hafida ayachi, au 07 69 26 57 82 ou, par courriel à h.ayachi@proprietes-privees.com. Selon l'article l. 561.5 du code monétaire et financier, pour l'organisation de la visite, la présentation d'une pièce d'identité vous sera demandée. Cette présente annonce a été rédigée sous la responsabilité éditoriale de hafida ayachi agissant sous le statut d'agent commercial immatriculé au rsac meaux 882326507 auprès de sas proprietes privees, au capital de 44 920 euros, zac le chêne ferré - 44 allée des cinq continents 44120 vertou; siret 487 624 777 00040, rcs nantes. Carte professionnelle transactions sur immeubles et fonds de commerce (t) et gestion immobilière (g) n°cpi 4401 2016 000 010 388 délivrée par la cci nantes - saint nazaire. Compte séquestre n°309 32 50 84 67 bpa saint-sebastien-sur-loire (44230). Garantie galian-smabtp - 89 rue de la boétie, 75008 paris - n°28137 j pour 2 000 000 euros pour t et 120 000 euros pour g. Assurance responsabilité civile professionnelle par galian-smabtp n° de police 28137. J mandat réf : 419144haya- le professionnel garantit et sécurise votre projet immobilier. Copropriété de 600 lots - dont 213 lots habitation. (). Charges annuelles : 786 euros. Hafida ayachi (ei) agent commercial - numéro rsac : meaux 882326507 -. Les informations sur les risques auxquels ce bien est exposé sont disponibles sur le site géorisques : www. Georisques. Gouv. Fr.
Au premier étage d'une résidence datant de 2011, a proximité immédiate de la gare de saint ouen l'aumône liesse et de ses commerces, nous vous proposons ce superbe appartement de type studio comprenant : entrée, séjour avec placard donnant sur très grande loggia de 12,40 m², une kitchenette et une salle de bain spacieuse avec wc. Vous l'apprécierez par ses prestations intérieures, sa luminosité naturelle par sa grande baie vitré et ses nombreux rangements. Il vous est fournis avec un parking boxable et 1 cave. À visiter au plus vite car il ne restera pas longtemps à la vente ! Bien soumis à copropriété comprenant 302 lots dont 101 lots d'habitation. Charges de copropriétés : 146,42 euros / mois comprenant chauffage et eau pour un montant de 86,17 euros / mois- pas de procédure en cours. Dpe : c/118 ges : b/9 - estimation des coûts annuel d'énergie : entre 240 euros et 280 euros par an. Pour visiter et vous accompagner dans votre projet, contactez jérémy sigaar, au 06 80 90 93 44 ou par courriel à j.sigaar@proprietes-privees.com cette présente annonce a été rédigée sous la responsabilité éditoriale de jérémy sigaar agissant sous le statut d'agent commercial immatriculé au rsac pontoise 832720205 auprès de la sas proprietes privees, réseau national immobilier, au capital de 40000 euros, 44 allée des cinq continents - zac le chêne ferré, 44120 vertou, rcs nantes n° 487 624 777 00040, carte professionnelle t et g n° cpi 4401 2016 000 010 388 cci nantes-saint nazaire. Garantie galian - 89 rue de la boétie, 75008 paris mandat n°391175. Prix comprenant 5990 euros d'honoraire maximum à la charge du vendeur- le professionnel garantit et sécurise votre projet immobilier. Copropriété de 302 lots - dont 101 lots habitation. (). Charges annuelles : 146.42 euros. Jérémy et jennifer sigaar (ei) agent commercial - numéro rsac : pontoise 832720205 -. Les informations sur les risques auxquels ce bien est exposé sont disponibles sur le site géorisques : www. Georisques. Gouv. Fr.
Iad France - Christopher Mertzig vous propose : * Opportunité Unique - Studio Cosy à Pierrelaye - Idéal 1ere acquisition ou Investissement locatif * En exclusivité, découvrez ce charmant studio offrant une surface de 20 m² avec un potentiel d'aménagement optimisé. Ce studio se compose d'une pièce unique pouvant servir de séjour et de chambre, idéal pour les personnes seules ou les étudiants à la recherche d'un premier logement. Son agencement bien pensé permet d'optimiser l'espace disponible pour un confort de vie optimal. Côté équipement, le logement est équipée de la fibre optique, assurant une connectivité haut débit pour travailler ou se divertir en toute tranquillité. De plus, des espaces de stockage intégrés facilitent le quotidien de ses occupants. Situé au cOEur de Pierrelaye, ce studio bénéficie d'une localisation stratégique proche des commerces, des transports en commun et des espaces verts pour des moments de détente en plein air. Le bien se trouve dans un bon état général, prêt à accueillir ses nouveaux occupants sans travaux à prévoir. Une occasion à saisir pour un investissement locatif judicieux ou pour un premier achat immobilier à petit budget. Ne manquez pas cette opportunité rare sur le marché, contactez nous dès maintenant pour organiser une visite et laissez-vous séduire par ce petit cocon à Pierrelaye. La presente annonce immobiliere vise 1 lot situé dans une copropriété de 4 lots au total et ne faisant l'objet d'aucune procédure en cours citée à l'article L. 721-1 du code de la construction et de l'habitation. Montant moyen mensuel de charges déclaré par le vendeur : 50€ par mois (soit 600 € annuel). Honoraires d'agence à la charge du vendeur. Information d'affichage énergétique sur ce bien : classe ENERGIE F indice 443 et classe CLIMAT C indice 14. Les informations sur les risques auxquels ce bien est exposé, y compris l'obligation légale de débroussaillement, sont disponibles sur le site Géorisques : La présente annonce immobilière a été rédigée sous la responsabilité éditoriale de M Christopher Mertzig mandataire indépendant en immobilier (sans détention de fonds), agent commercial de la SAS I@D France immatriculé au RSAC de PONTOISE sous le numéro 849302252, titulaire de la carte de démarchage immobilier pour le compte de la société I@D France SAS.
Iad france - marion page vous propose : enghien-les-bains / tour du lac - dans une résidence de standing des années 80, venez découvrir ce studio de 17 m² environ en rdc au calme. Vous bénéficierez d'un accès direct au parc privé de la résidence avec vue sur le lac d'enghien. Il se compose d'une entrée desservant une pièce principale, d'une kitchenette aménagée et équipée et une salle de bains avec wc. Points techniques : murs et sols refaits en 2020, interphone avec caméra couleur, chauffage électrique, faibles charges et dpe e. Studio idéal pour un investissement locatif ou une première acquisition, à visiter sans tarder ! La presente annonce immobiliere vise 1 lot situé dans une copropriété de 35 lots au total et ne faisant l'objet d'aucune procédure en cours citée à l'article l. 721-1 du code de la construction et de l'habitation. Montant moyen mensuel de charges déclaré par le vendeur : 36.56€ par mois (soit 438.72 € annuel). Honoraires d'agence à la charge du vendeur. Information d'affichage énergétique sur ce bien : classe energie e indice 397 et classe climat d indice 90. Les informations sur les risques auxquels ce bien est exposé, y compris l'obligation légale de débroussaillement, sont disponibles sur le site géorisques : la présente annonce immobilière a été rédigée sous la responsabilité éditoriale de mme marion page mandataire indépendant en immobilier (sans détention de fonds), agent commercial de la sas i@d france immatriculé au rsac de pontoise sous le numéro 879463552, titulaire de la carte de démarchage immobilier pour le compte de la société i@d france sas.
Optez pour le confort et la modernité dans une résidence à venir sur enghien-les-bains à proximité des transports, écoles et autres commodités. Immotech partners vous propose cet appartement offrant une cuisine ouverte sur séjour, 0 chambres, une salle d'eau ainsi que des wc. Un extérieur complète ce bien. Parking en sus. Frais de notaire réduits dans cette résidence moderne et sécurisée respectant les dernières normes environnementales. Prestations haut de gamme et choix de finitions encore possible ! Idéal 1er achat : - prêt à taux zéro (ptz), ou investisseurs : - eligible lli (défiscalisation), - loueur meublé non-professionnel (lmnp-lmp). Garanties légales : - dommages-ouvrage (décennale) - bon fonctionnement (biennale) - parfait achèvement - isolation phonique choisissez la sobriété énergétique : bâtiment basse consommation (bbc), rt2012 / re2020, faibles charges. Immotech partners vous propose plus de 4000 programmes neufs partout en france. Contactez-nous pour un accompagnement sur votre projet immobilier nos visuels sont non contractuels.
Optez pour le confort et la modernité dans une résidence à venir sur bezons à proximité des transports, écoles et autres commodités. Immotech partners vous propose cet appartement offrant une cuisine ouverte sur séjour, 0 chambres, une salle d'eau ainsi que des wc. Un extérieur complète ce bien. Parking en sus. Frais de notaire réduits dans cette résidence moderne et sécurisée respectant les dernières normes environnementales. Prestations haut de gamme et choix de finitions encore possible ! Idéal 1er achat : - prêt à taux zéro (ptz), ou investisseurs : - eligible lli (défiscalisation), - loueur meublé non-professionnel (lmnp-lmp). Garanties légales : - dommages-ouvrage (décennale) - bon fonctionnement (biennale) - parfait achèvement - isolation phonique choisissez la sobriété énergétique : bâtiment basse consommation (bbc), rt2012 / re2020, faibles charges. Immotech partners vous propose plus de 4000 programmes neufs partout en france. Contactez-nous pour un accompagnement sur votre projet immobilier nos visuels sont non contractuels.
Optez pour le confort et la modernité dans une résidence à venir sur bouffémont à proximité des transports, écoles et autres commodités. Immotech partners vous propose cet appartement offrant une cuisine ouverte sur séjour, 0 chambres, une salle d'eau ainsi que des wc. Un extérieur complète ce bien. Parking en sus. Frais de notaire réduits dans cette résidence moderne et sécurisée respectant les dernières normes environnementales. Prestations haut de gamme et choix de finitions encore possible ! Idéal 1er achat : - prêt à taux zéro (ptz), ou investisseurs : - eligible lli (défiscalisation), - loueur meublé non-professionnel (lmnp-lmp). Garanties légales : - dommages-ouvrage (décennale) - bon fonctionnement (biennale) - parfait achèvement - isolation phonique choisissez la sobriété énergétique : bâtiment basse consommation (bbc), rt2012 / re2020, faibles charges. Immotech partners vous propose plus de 4000 programmes neufs partout en france. Contactez-nous pour un accompagnement sur votre projet immobilier nos visuels sont non contractuels.
Optez pour le confort et la modernité dans une résidence à venir sur arnouville à proximité des transports, écoles et autres commodités. Immotech partners vous propose cet appartement offrant une cuisine ouverte sur séjour, 0 chambres, une salle d'eau ainsi que des wc. Un extérieur complète ce bien. Parking en sus. Frais de notaire réduits dans cette résidence moderne et sécurisée respectant les dernières normes environnementales. Prestations haut de gamme et choix de finitions encore possible ! Idéal 1er achat : - prêt à taux zéro (ptz), ou investisseurs : - eligible lli (défiscalisation), - loueur meublé non-professionnel (lmnp-lmp). Garanties légales : - dommages-ouvrage (décennale) - bon fonctionnement (biennale) - parfait achèvement - isolation phonique choisissez la sobriété énergétique : bâtiment basse consommation (bbc), rt2012 / re2020, faibles charges. Immotech partners vous propose plus de 4000 programmes neufs partout en france. Contactez-nous pour un accompagnement sur votre projet immobilier nos visuels sont non contractuels.
Optez pour le confort et la modernité dans une résidence à venir sur louvres à proximité des transports, écoles et autres commodités. Immotech partners vous propose cet appartement offrant une cuisine ouverte sur séjour, 0 chambres, une salle d'eau ainsi que des wc. Un extérieur complète ce bien. Parking en sus. Frais de notaire réduits dans cette résidence moderne et sécurisée respectant les dernières normes environnementales. Prestations haut de gamme et choix de finitions encore possible ! Idéal 1er achat : - prêt à taux zéro (ptz), ou investisseurs : - eligible lli (défiscalisation), - loueur meublé non-professionnel (lmnp-lmp). Garanties légales : - dommages-ouvrage (décennale) - bon fonctionnement (biennale) - parfait achèvement - isolation phonique choisissez la sobriété énergétique : bâtiment basse consommation (bbc), rt2012 / re2020, faibles charges. Immotech partners vous propose plus de 4000 programmes neufs partout en france. Contactez-nous pour un accompagnement sur votre projet immobilier nos visuels sont non contractuels.