1 résultats
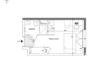
Iad france - thibault hutter vous propose : bormes-les-mimosas – la favière – studio rénové avec grande terrasse à 50 m des plages situé au coeur du quartier de la favière à bormes-les-mimosas, ce charmant studio de 21 m² entièrement rénové saura vous séduire par son emplacement privilégié et son confort moderne. Implanté au 2ᵉ et dernier étage d’une résidence sécurisée, l’appartement bénéficie d’un environnement privilégié tout en étant à proximité immédiate des commodités, des commerces, des restaurants et surtout des magnifiques plages accessibles en quelques minutes à pied. Le secteur de la favière est particulièrement apprécié pour son atmosphère conviviale, son port de plaisance, ses activités nautiques et sa qualité de vie exceptionnelle entre mer et nature. Ce studio optimisé et climatisé se compose d’une pièce de vie lumineuse avec espace cuisine aménagé ainsi qu'une salle de bains avec wc. L'espace de vie s’ouvre sur une spacieuse terrasse de 10 m², véritable prolongement de l’espace intérieur, idéale pour profiter de l'environnement, des repas en extérieur ou de moments de détente. Entièrement rénové et meublé, le bien ne nécessite aucun travaux et constitue une opportunité idéale aussi bien pour une résidence secondaire, un investissement locatif saisonnier ou un pied-à-terre en bord de mer. L'appartement possède des facilités de stationnement a proximité. Appartement a tres bon revenu locatif saisonnier. Les plus : revenu locatif ! Dernier étage résidence sécurisée climatisation grande terrasse de 10 m² appartement rénové, prêt à vivre et meuble plages et commodités accessibles à pied secteur très recherché et dynamique une opportunité rare sur le secteur. La presente annonce immobiliere vise 1 lot situé dans une copropriété de 86 lots au total et ne faisant l'objet d'aucune procédure en cours citée à l'article l. 721-1 du code de la construction et de l'habitation. Montant moyen mensuel de charges déclaré par le vendeur : 50€ par mois (soit 600 € annuel). Honoraires d'agence à la charge du vendeur. Information d'affichage énergétique sur ce bien : classe energie d indice 200 et classe climat a indice 2. Les informations sur les risques auxquels ce bien est exposé, y compris l'obligation légale de débroussaillement, sont disponibles sur le site géorisques : la présente annonce immobilière a été rédigée sous la responsabilité éditoriale de m thibault hutter mandataire indépendant en immobilier (sans détention de fonds), agent commercial de la sas i@d france immatriculé au rsac de toulon sous le numéro 510521875, titulaire de la carte de démarchage immobilier pour le compte de la société i@d france sas.
Autres annonces à proximité de La Crau (83260) avec vos critères
Sollies pont (hameau proche toutes commodités) jcg immo vous présente ce studio de 29,15 m² (carrez), en complément d’1 place de stationnement privative en extérieur. Le studio est idealement situé au cœur d’un hameau, au calme et à proximité de l'ensemble des commerces, transports et autres commodités. Il est situé au rez de chaussee d’une ancienne maison de ville rénovée de 2 étages dans une petite copropriété composée de 9 lots (dont 5 appartements). Il se compose : séjour avec coin cuisine de 25,07 m², 1 cellier de 1,64 m² et 1 salle d’eau avec wc de 2,44 m². À noter : une rénovation complète est à prévoir (électricité, chauffage, chauffe-eau, plomberie, sols, murs, isolation et peinture) ainsi que l’aménagement de la salle d’eau, cuisine et wc, une fenêtre neuve pvc en double vitrage est comprise dans le prix affiché. Prestations : huisseries pvc avec double vitrage (porte d’entrée), volets double battants, conduit de cheminée existant, eau de ville, tout à l’égout. Performances : dpe = d notre avis : nous avons aimé l’emplacement au cœur d’un hameau et au calme, le potentiel d’aménagement général, le format pour une personne célibataire ou un jeune couple, sans oublier la place de stationnement privative et sécurisée … et tout cela dans un cadre « campagne » à proximité immédiate de toutes les commodités essentielles et axes autoroutiers principaux. À visiter rapidement ! Ideal 1er achat ! Nbre de lots : 9 (dont 5 lots à usage d'habitation). Lot no 1 : 97 / 1000èmes de copropriété et de charges / lot no 8 : 12 / 1000èmes de copropriété et de charges taxes foncieres 2024 : 496 € (quote-part pour 3 lots). Montant estimé des dépenses annuelles d'énergie pour un usage standard : entre 640 € et 890 € par an. Prix moyens des énergies indexés au 2021,2022 et 2023. Consommation énergie primaire : 251 kwh / m2 / an. Les informations sur les risques auxquels ce bien est exposé sont disponibles sur le site géorisques : le prix affiché inclus les honoraires d'agence. Jacques de lacretelle immatriculé au rcs sous le no 820 251 809 rsac toulon no de police d’assurance allianz actif pro 60 594 67 retrouvez tout nos biens sur .
Sur La Farlède (83210), proche de toutes commodités, un studio en bas de villa. 25,08 m² comprenant séjour / cuisine, salle d'eau avec wc et stationnement. Climatisation. La cuisine est à aménager. Copropriété sans charges. Location possible pour 450€ HC selon notre estimation. Référence agence : 112.
Idéal investisseur ou 1er achat, T1 rénové avec goût, exposé sud au 3ème étage avec ascenseur. Vue dégagée, se composant : séjour avec placard donnant sur balcon, SdE, cuisine équipée. Place de parking privée. À voir rapidement ! Charges annuelles 720€. 50 lots de copropriété. Pas de procédure en cours.

Recevez en temps réel les dernières annonces correspondant à votre recherche
Nouveauté la Garde en Exclusivité, à proximité directe des Universités et commodités, dans une résidence étudiante avec services, un studio climatisé meublé libre de toute occupation de 20 m² environ en RDC d'immeuble donnant sur petite terrasse couverte. Idéal investisseur en recherche de haut rendements locatifs. Parkings collectifs sécurisés.
Iad france - yohann pike vous propose : appartement de type t 1 se situant au 2e et dernier étage d'un immeuble. L'entrée donne sur une cuisine séparée de 9 m². Vous accédez à la salle d'eau (avec wc) puis au salon / séjour de plus de 15 m². L'appartement est idéalement localisé à deux pas du centre ville historique de la vieille garde. Il saura vous séduire par son caractère authentique à proximité de toutes les commodités et de l'effervescence gardéenne. Idéal investisseur. Travaux à prévoir honoraires d'agence à la charge du vendeur. Information d'affichage énergétique sur ce bien : classe energie e indice 326 et classe climat b indice 10. Les informations sur les risques auxquels ce bien est exposé, y compris l'obligation légale de débroussaillement, sont disponibles sur le site géorisques : la présente annonce immobilière a été rédigée sous la responsabilité éditoriale de m yohann pike mandataire indépendant en immobilier (sans détention de fonds), agent commercial de la sas i@d france immatriculé au rsac de evry sous le numéro 789705167, titulaire de la carte de démarchage immobilier pour le compte de la société i@d france sas.
Vous recherchez un pied à terre offrant une vue mer à 180 degrés ? Orpi La Garde a le plaisir de vous présenter cet appartement T1 de 36 m² idéalement conçu, avec des prestations de qualité dans un environnement calme et verdoyant à quelques pas des commerces. Vous trouverez une belle terrasse exposée Est avec vue sur le port, Giens, et Porquerolles, idéale pour des moments conviviaux, équipé d'un point d'eau. L'appartement est vendu avec une place de stationnement privative ainsi qu'une cave attenante à l'appartement. Les plus : - Vue mer exceptionnelle - Climatisation - Appartement rénové dans lequel il n'y a qu'à poser ses valises Ne manquez pas cette opportunité exceptionnelle de vivre dans un cadre idyllique. Contactez-nous pour plus d'informations ou pour planifier une visite. Référence agence : 4561.
À quelques pas du village et proche du port et de la mer, appartement vue mer se composant comme suit hall d 'entée, coin nuit, 1 salle d 'eau, wc, séjour avec kitchinette, loggia fermée de 6 m², en annexe une place de parking privé Ses Atouts : La vue mer et dégagé, une superficie certes petite mais bien agencé, faible charge, la proximité du village mais aussi du port, et à l orée dans des bois, ideal pour la ballade Que ce soit pour y vivre à l'année, en faire un pied-à-terre ou réaliser un investissement locatif, cet appartement est une véritable opportunité dans un secteur. Exclusivité.
Iad france - audrey lacaze vous propose : appartement cosy – cœur de carqueiranne idéal premier achat – investissement locatif ou saisonnier ! Emplacement de reve : situé en plein centre-ville, proche de la place principale de carqueiranne, cet appartement lumineux et traversant de 34 m² vous séduira par son charme authentique et sa rénovation soignée. Un mélange parfait entre ancien et moderne : les tomettes d’époque et les faïences de salernes apportent une touche chaleureuse et unique à ce bien cosy et plein de cachet. Un agencement optimise : une entrée, un séjour spacieux, une cuisine lumineuse, une salle d’eau et un toilettes séparées. À deux pas du port et des plages ! Profitez de la mer et du dynamisme citadin, tout en étant proche de toutes les commodités. En voiture, vous êtes à seulement 15 minutes de la gare et de l’aéroport. Un investissement malin : que ce soit pour un premier achat, un investissement locatif (longue durée ou saisonnier) ou un pied à terre dans le sud cet appartement coche toutes les cases ! Ne passez pas à côté de cette opportunité ! Pour toute information complémentaire ou pour organiser une visite, contactez-moi vite je suis à votre disposition 7 jours sur 7. La presente annonce immobiliere vise 1 lot situé dans une copropriété de 3 lots au total et ne faisant l'objet d'aucune procédure en cours citée à l'article l. 721-1 du code de la construction et de l'habitation. Montant moyen mensuel de charges déclaré par le vendeur : 5.83€ par mois (soit 70 € annuel). Honoraires d'agence à la charge du vendeur. Bien non soumis au dpe. Les informations sur les risques auxquels ce bien est exposé, y compris l'obligation légale de débroussaillement, sont disponibles sur le site géorisques : la présente annonce immobilière a été rédigée sous la responsabilité éditoriale de mme audrey lacaze mandataire indépendant en immobilier (sans détention de fonds), agent commercial de la sas i@d france immatriculé au rsac de meaux sous le numéro 894020155, titulaire de la carte de démarchage immobilier pour le compte de la société i@d france sas.
Proche commodités, à 2 pas de la mer, dans ancienne Bâtisse réhabilitée, Studio de 23,21 m² avec parking privé clos, entièrement vendu aménagé et équipé. Aucuns travaux à prévoir. Idéal investisseur ou petit pied à terre secondaire. Copro : 7 lots. Charges : 108€ / an. Pas de procédure en cours.
Proche centre saint vincent, t1 bis composé : hall d'entrée, coin nuit, salle d'eau avec wc, séjour-cuisine et une loggia. Vendu entièrement meublé. Idéal location saisonnières. Une jolie vue dégagée sur la mer sans vis à vis. Charges : 492 € / an. Pas de procédure en cours.
À carqueiranne, les hauts des terrasses de la mer, au rez-de-chaussée, vue mer pour ce lumineux appartement de type t1 de 33 m², en parfait état, comprenant : cuisine / salon / séjour donnant sur véranda et terrasse de 15 m², salle d'eau avec wc, cave et place de parking privative dans copropriété au calme. Contact : germain chagniot - 06 15 52 05 50 le cabinet 3000 - agence immobilière au mourillon vous accompagne dans votre recherche d’appartement à acheter de toulon ouest à toulon est (ollioules, valbertrand, valbourdin, saint roch, claret, sainte anne, les lices, centre-ville, siblas, saint jean du var, la loubière, faron, aguillon, serinette, ameniers, la barre, la palasse, la barentine, petit bois, lamalgue, cap brun, pont de suve, sainte musse, le pradet, la garde, la valette. ).
Idéal investissement locatif ou usage mixte habitation / bureau ! Découvrez ce charmant appartement de 24 m², situé en rez-de-chaussée et exposé ouest, entièrement rénové avec goût et aucun travaux à prévoir, proche des commerces A proximité de l'université, de l'avenue 83, idéal investissement location étudiant.
Appartement t1 de 22 m² situé à la Valette du Var, composé d'un séjour avec cuisine équipée ouverte, une salle d'eau et vue dégagée. Localisation idéale, bus et commerces à proximité, université à 10 min. Idéal investisseur actuellement loué 400€ / mois. Le bien comprend 1 lot, et il est situé dans une copropriété de 3 lots (les charges courantes annuelles moyennes de copropriété sont de 200 € et le syndicat des copropriétaires ne fait pas l'objet d'une procédure citée à l'article L. 721-1 du code de la construction et de l'habitation). Les informations sur les risques auxquels ce bien est exposé sont disponibles sur le site Géorisques : Prix de vente : 91 000 € Honoraires charge vendeur Contactez votre conseiller SAFTI : Jessica MAZUT, Tél. : 07 61 17 85 58, E-mail : jessica.mazut@safti.fr - EI - Agent commercial immatriculé au RSAC de Toulon sous le numéro 509 891 727.
La valette du var 83160 studio lumineux refait à neuf en plein centre clé en main exclusivité jcg immo vous présente ce superbe studio entièrement refait à neuf, situé en centre ville, un emplacement ideal. Description pièce de vie lumineuse exposition ouest 27,21 m² belle pièce principale, offrant une lumière douce tout l’après-midi. Ses grandes fenêtres en double vitrage assurent confort thermique et acoustique. Cuisine aménagée et équipée salle de bain moderne en travertin avec douche à l’italienne situation situé au 2ᵉ étage sans ascenseur, au sein d’un petit immeuble calme. À deux pas des commerces, des bus et du stationnement. Notre avis un studio rare : rénové à neuf, très lumineux, il est possible de prendre un abonnement au parking jean-jaurès pour seulement 22 € par mois et à 2mn à pied. Loué auparavant 600 € meublé, il offre une rentabilité brute à 6,2% et une mise en location très rapide grâce à son emplacement stratégique. Parfait pour un investisseur ou un premier achat serein. Possibilité de vente meublée, pour un aménagement ou investissement clé en main ! Les plus - emplacement plein centre - proximité immédiate bus / commerces / services - entièrement refait à neuf - double vitrage - dpe en c - très lumineux - exposition ouest - charges faibles : env. 40€ / mois taxes foncière 650€ - proche parking jean-jaurès abonnement à 22 € / mois disponible contactez leslie guibert jcg immo rsac toulon no 512 302 431 assurance mma iard 775652125mma retrouvez tout nos biens sur .
Iad France - Sarah Rozière (06 99 86 19 42) vous propose : Appartement T1 de 19 m² environ – La Valette-du-Var – Résidence étudiante Stud’Avenue L’appartement proposé est un studio T1 de 16,06 m² environ habitables, fonctionnel et entièrement meublé. Il comprend une pièce à vivre lumineuse, une kitchenette équipée (plaque de cuisson, réfrigérateur, rangements), une salle d’eau moderne avec WC et sèche-serviettes, ainsi qu’un placard intégré. Grâce à son agencement optimisé et à ses prestations de qualité (volets roulants électriques, chauffage / climatisation par pompe à chaleur, double vitrage isolant), ce logement garantit un confort quotidien et une consommation énergétique maîtrisée. Découvrez la résidence Stud’Avenue, une résidence spécialement conçue pour les étudiants, situé au cOEur de La Valette-du-Var. Pensée pour conjuguer modernité, confort et praticité, cette résidence allie architecture contemporaine et cadre paysager agréable, offrant un environnement idéal pour bien vivre et réussir ses études. La résidence Stud’Avenue propose de nombreux espaces communs favorisant le bien-être et la convivialité : cafétéria de 90 m² environ, salle de fitness de 45 m² environ, espace de coworking de 60 m² environ, salle de détente avec billard, laverie et locaux vélos sécurisés. Un régisseur sur place assure l’accueil, la gestion locative et la sécurité, renforcée par un accès Vigik® et des parkings sécurisés. Certifiée NF Habitat HQE et RE 2020, la résidence offre un haut niveau de performance énergétique et de respect de l’environnement. L’environnement est un véritable atout : la résidence se situe à l’orée du campus de La Valette-du-Var / La Garde, à seulement quelques minutes à pied des bibliothèques universitaires, des centres commerciaux Avenue 83 et Grand Var, ainsi que des équipements sportifs et culturels. Les étudiants profitent d’un accès rapide aux transports : lignes de bus à proximité immédiate, gare de Toulon à 15 minutes, autoroutes A57 et A50, ainsi que l’aéroport de Toulon-Hyères à 16 minutes. Le cadre est dynamique et attractif, idéal tant pour y habiter que pour investir. Ne manquez pas cette opportunité rare d’acquérir un logement dans une résidence étudiante moderne et parfaitement située à La Valette-du-Var. Contactez-moi dès aujourd’hui pour obtenir plus d’informations. Honoraires d’agence à la charge du vendeur. Bien non soumis au DPE. Les informations sur les risques auxquels ce bien est exposé sont disponibles sur le site Géorisques : . La présente annonce immobilière a été rédigée sous la responsabilité éditoriale de Mlle Sarah Rozière EI (ID 83696), mandataire indépendant en immobilier (sans détention de fonds), agent commercial de la SAS I@D France immatriculé au RSAC de Clermont-Ferrand sous le numéro 978616993, titulaire de la carte de démarchage immobilier pour le compte de la société I@D France SAS. Retrouvez tous nos biens sur notre site internet. .
Dans une résidence fermée et proche du centre ville à pied, T1de 31 m² situé au 1er étage, avec coin cuisine, salle de bains, placard, hall et terrasse de 9 m². Une cave et une place de parking privative complète le tout Référence agence : 4700.
Studio au 1er étage (sans ascenseur), orienté au sud-ouest, situé au calme dans le quartier du Pin de Galle et bénéficiant d'une belle terrasse, d'une cave (au rez-de-chaussée) et d'une place de parking attitrée. Possibilité de se rendre à pied à la plage, ainsi qu'au centre-ville.
Nous vous proposons un bien immobilier unique idéal pour un investissement en loueur meublé non professionnel (lmnp) sous bail commercial. Ce type de placement offre de nombreux avantages fiscaux et un revenu locatif sécurisé. Ne convient pas pour une résidence principale ou secondaire ! Caractéristiques du bien : type de bien : studio localisation : 390 rue des fonds verts - 83220 le pradet année de construction : 1962 surface : 18.50 m² nombre de pièces : 1 etage : rdc etat général : bon etat dpe : f formule d'occupation : non gestionnaire : belambra informations financières : prix de vente : 49 485 eur loyer annuel garanti : 3 370eur ht rendement locatif brut : 6,8% taxe foncière : 360 eur charges de copropriété annuelle : 203 eur fin du bail commercial le 31 / 10 / 2024 avantages de l'investissement lmnp : revenu locatif sécurisé : le bien est loué sous bail commercial avec un loyer garanti. Régime fiscal attractif : amortissement du bien, déduction des charges, et réduction de la base imposable. Gestion simplifiée : le bail commercial inclut la gestion locative, ce qui réduit les contraintes pour l'investisseur. Pour plus d'informations ou pour organiser une visite, n'hésitez pas à nous contacter : téléphone : 02 21 67 52 61 adresse de l'agence : 21-23,21 rue du maréchal leclerc, 85100 les sables-d'olonne investissez en toute sérénité avec ce bien sous le statut lmnp et bénéficiez d'un rendement locatif attractif et sécurisé. Ne manquez pas cette opportunité exceptionnelle ! Les informations sur les risques auxquels ce bien est exposé sont disponibles sur le site géorisques : photos non contractuelles.
Le Pradet- Résidence Nature Park Entre mer, nature et esprit village, découvrez ce charmant appartement T1 situé dans la résidence sécurisée Nature Park, livrée en 2020. Un environnement verdoyant et apaisant, tout en restant à proximité immédiate des commerces, des transports et des plages du Pradet. Situé en rez-de-chaussée surélevé, ce T1 moderne et parfaitement agencé offre un vrai confort de vie : une entrée, une pièce de vie lumineuse avec cuisine aménagée et équipée, un coin nuit intelligemment intégré, une salle d'eau avec WC. Vous profiterez également d'une agréable terrasse d'environ 9 m², idéale pour les beaux jours ! Une place de parking privative complète ce bien. Le bien est actuellement loué en bail meublé jusqu'en septembre 2026, offrant une visibilité à court terme tout en laissant la possibilité de récupérer le logement pour un futur projet personnel. Un appartement récent, bien situé et agréable à vivre parfait pour se projeter à moyen terme. Le bien comprend 2 lots, et il est situé dans une copropriété de 23 lots (les charges courantes annuelles moyennes de copropriété sont de 640 € et le syndicat des copropriétaires ne fait pas l'objet d'une procédure citée à l'article L. 721-1 du code de la construction et de l'habitation). Les informations sur les risques auxquels ce bien est exposé sont disponibles sur le site Géorisques : Prix de vente : 173 000 € Honoraires charge vendeur Contactez votre conseiller SAFTI : Christelle BARES, Tél. : 06 73 30 94 15, E-mail : christelle.bares@safti.fr - EI - Agent commercial immatriculé au RSAC de TOULON sous le numéro 811 278 845.
À Toulon, ce programme immobilier neuf propose une résidence intimiste où nature et urbanité se rencontrent harmonieusement. Nichée au cœur du quartier Sainte-Musse, cette construction moderne de standing bénéficie d’un emplacement privilégié, à proximité des commerces et des établissements scolaires, offrant ainsi une accessibilité exemplaire. L’architecture de cette résidence se distingue par sa sobriété et son élégance, alliant un enduit blanc à des parements en bois, tout en intégrant un cœur d’îlot végétal. Les appartements neufs, allant de 1 à 4 pièces, s’adaptent à divers modes d'acquisition : résidence principale, secondaire ou investissement locatif. Les intérieurs traversants sont conçus pour maximiser l’espace et le confort, avec des cloisonnements réduits favorisant la fluidité des circulations. L’isolation thermique et phonique aux normes du neuf assure un bien-être optimal, préservant ainsi l’intimité de chaque occupant. Les espaces extérieurs privatifs, dotés de terrasses, offrent une extension des appartements, permettant d’aménager une pièce supplémentaire pour profiter pleinement de l'environnement extérieur. Découvrez également nos 60 autres résidences dans le 83 : Rendez-vous dans notre Agence Médicis Immobilier Neuf, 12 rue Dumont d'Urville, Toulon 83000. Les informations sur les risques auxquels ce bien est exposé sont disponibles sur le site Géorisques : .
Toulon est- au calme et proche toutes commodités, type 2 composé d'un séjour avec cuisine ouverte aménagée et équipée, une chambre, salle d'eau avec wc, cellier extérieur. Logement vendu tout équipé- prix : 87 000 eur.
Iad france - patrick soyere vous propose : situé au premier étage d’une petite copropriété, cet appartement se compose d’un salon, d’une cuisine, d’une chambre ainsi que d’une salle d’eau avec wc. Il dispose également d’un balcon, apportant un atout supplémentaire en extérieur. La cuisine est indépendante et peut être aménagée selon les besoins. La chambre offre un espace nuit confortable. Idéal pour un premier achat ou pour un investisseur, ce bien bénéficie d’un emplacement central, à proximité immédiate de toutes les commodités. La presente annonce immobiliere vise 1 lot situé dans une copropriété de 4 lots au total et ne faisant l'objet d'aucune procédure en cours citée à l'article l. 721-1 du code de la construction et de l'habitation. Montant moyen mensuel de charges déclaré par le vendeur : 30€ par mois (soit 360 € annuel). Honoraires d'agence à la charge du vendeur. Information d'affichage énergétique sur ce bien : classe energie d indice 257 et classe climat b indice 8. Les informations sur les risques auxquels ce bien est exposé, y compris l'obligation légale de débroussaillement, sont disponibles sur le site géorisques : la présente annonce immobilière a été rédigée sous la responsabilité éditoriale de m patrick soyere mandataire indépendant en immobilier (sans détention de fonds), agent commercial de la sas i@d france immatriculé au rsac de toulon sous le numéro 878463033, titulaire de la carte de démarchage immobilier pour le compte de la société i@d france sas.
Situé dans le quartier de La Palasse à Toulon, au sein d'une petite copropriété calme, ce studio offre un cadre de vie paisible. D'une surface de 34 m² au sol (18 m² hors loi Carrez), l'appartement est traversant, bénéficiant d'une bonne luminosité. La pièce de vie exposée au sud profite d'une agréable vue arborée. L'intérieur se compose d'une pièce principale fonctionnelle avec une kitchenette ainsi que d'une salle de bain avec baignoire. À l'étage une chambre en mezzanine mansardée. Les fenêtres en PVC double vitrage assurent une bonne isolation thermique et phonique. Le bien est à rafraîchir, offrant un beau potentiel d'aménagement et de personnalisation selon vos envies. La vente peut se faire meublée, incluant notamment canapé, four et machine à laver, constituant une solution clé en main idéale pour un premier achat ou un investissement locatif. En complément, l'appartement dispose d'une cave, apportant un espace de stockage appréciable. Emplacement toutes commodités, proximité immédiate des bus, commerces, pharmacies, boulangeries, de la gare, accès autoroute ainsi que d'une piste cyclable. Le bien comprend 1 lot, et il est situé dans une copropriété de 6 lots (les charges courantes annuelles moyennes de copropriété sont de 610 € et le syndicat des copropriétaires ne fait pas l'objet d'une procédure citée à l'article L. 721-1 du code de la construction et de l'habitation). Les informations sur les risques auxquels ce bien est exposé sont disponibles sur le site Géorisques : Prix de vente : 99 900 € Honoraires charge vendeur Contactez votre conseiller SAFTI : Corinne DEBBAUT, Tél. : 06 68 80 60 63, E-mail : corinne.debbaut@safti.fr - EI - Agent commercial immatriculé au RSAC de TOULON sous le numéro 994313120.
Iad france - mourtaloi said hassani vous propose : opportunité à saisir - toulon saint-jean-du-var données techniques : type de bien : studio. surface totale : 35 m². localisation : quartier saint-jean-du-var, toulon. étage : rez-de-chaussée. menuiseries : pvc. chauffage : électrique individuel. annexe : cave de 30 m². composition du lot : pièce principale : espace de vie de 25 m². cuisine : kitchenette ouverte sur séjour. sanitaire : salle de douche. stockage : cave privative de 30 m². données financières : taxe foncière : 1 000 € / an. charges de copropriété : 600 € / an (soit 50 € / mois). contactez-nous pour organiser une visite et obtenir des informations complémentaires. La presente annonce immobiliere vise 2 lots situés dans une copropriété de 11 lots au total et ne faisant l'objet d'aucune procédure en cours citée à l'article l. 721-1 du code de la construction et de l'habitation. Montant moyen mensuel de charges déclaré par le vendeur : 50€ par mois (soit 600 € annuel). Honoraires d'agence à la charge du vendeur. Information d'affichage énergétique sur ce bien : classe energie e indice 278 et classe climat b indice 8. Les informations sur les risques auxquels ce bien est exposé, y compris l'obligation légale de débroussaillement, sont disponibles sur le site géorisques : la présente annonce immobilière a été rédigée sous la responsabilité éditoriale de m mourtaloi said hassani mandataire indépendant en immobilier (sans détention de fonds), agent commercial de la sas i@d france immatriculé au rsac de toulon sous le numéro 921298014, titulaire de la carte de démarchage immobilier pour le compte de la société i@d france sas.