2 résultats
Investissement - résidence "les sources" f1 comprenant : entrée avec placard, cuisine aménagée, séjour avec placard, salle de bains, wc. Cave et parking s / sol. Chauffage collectif. Vendu loué 590 / mois (490 + 100).
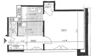
Iad France - Lucas Bono vous propose : Dans une belle résidence fermée de 1995, grand studio à Franconville - Idéal premier achat ou investissement locatif (appartement vendu loué fin du bail fin 2026) Située au 3ème étage sans ascenseur, cet appartement de plus 32 m² vous offre un espace de vie confortable et lumineux. Il est composé d'une entrée, d'un salle d'eau avec WC, d'une grande pièce a vivre avec son balcon et d'une cuisine séparé et d'une place de parking en sous sol Doté d'un système de ventilation mécanique, vous profiterez d'un confort optimal au quotidien. La résidence sécurisée avec digicode et interphone Situé à proximité de la gare Le Plessis Bouchard RER C ligne H, à seulement 5 minutes à pied et de toutes autre commodités. Les locataires actuels sont dans l'appartement depuis 15 ans, rentabilité à plus de 5,60. La presente annonce immobiliere vise 2 lots situés dans une copropriété de 300 lots au total et ne faisant l'objet d'aucune procédure en cours citée à l'article L. 721-1 du code de la construction et de l'habitation. Montant moyen mensuel de charges déclaré par le vendeur : 102.33€ par mois (soit 1228 € annuel). Honoraires d'agence à la charge du vendeur. Information d'affichage énergétique sur ce bien : classe ENERGIE D indice 248 et classe CLIMAT B indice 7. Les informations sur les risques auxquels ce bien est exposé, y compris l'obligation légale de débroussaillement, sont disponibles sur le site Géorisques : La présente annonce immobilière a été rédigée sous la responsabilité éditoriale de M Lucas Bono mandataire indépendant en immobilier (sans détention de fonds), agent commercial de la SAS I@D France immatriculé au RSAC de VERSAILLES sous le numéro 788739589, titulaire de la carte de démarchage immobilier pour le compte de la société I@D France SAS.
Autres annonces à proximité de Franconville (95130) avec vos critères
Exclusivite bonaparte promotion eligible pret a taux zero, loi pinel, frais de notaire reduits livraison 2t2026 l'appartement : un joli 2 pièces situé au premier étage composé : d'une entrée desservant un séjour avec cuisine ouverte donnant accès à un balcon; une chambres. Une salle de bain équipée avec wc. Une place de parking en sous-sol en sus obligatoire. La residence : résidence neuve, le plessis bouchard, respectant les normes bbc, rt 2012 avec ascenseur respectant les normes pmr, personnes à mobilité réduite architecture moderne, cadre de vie exceptionnel isolation phonique et thermique renforcées charges faibles, consommations individuelles / collectives transports train : a 15 minutes à pied de la gare franconville - le plessis-bouchard bus : différentes lignes de bus à 150m de la résidence voiture : à proximité de l’a15 prix : prix de l'appartement : 235 000 € prix parking en sous-sol 15 000€ (en sus obligatoire) prix total : 250 000€ les + bonaparte promotion : direct promoteur garantie constructeur 10 ans frais de notaire réduit 450 résidences en cours en idf, plus de 10.000 appartements le plus grand choix de résidences neuves en ile de france contactez rapidement votre conseiller poulain quentin 06 98 69 99 69.
Exclusivite bonaparte promotion eligible pret a taux zero, frais de notaire offerts livraison 4t2027 l'appartement : un joli 2 pièces situé au dernier étage avec terrasse composé : d'une entrée desservant un séjour avec cuisine ouverte donnant accès à une belle terrasse; une chambre. Une salle d'eau équipée et wc séparé. Une place de parking en sous-sol en sus obligatoire. La residence : résidence neuve, le plessis bouchard, respectant les normes bbc, rt 2012 avec ascenseur respectant les normes pmr, personnes à mobilité réduite architecture moderne, cadre de vie exceptionnel isolation phonique et thermique renforcées charges faibles, consommations individuelles / collectives transports train : a 15 minutes à pied de la gare franconville - le plessis-bouchard bus : différentes lignes de bus à 150m de la résidence voiture : à proximité de l’a15 prix : prix de l'appartement : 224 000 € prix parking en sous-sol 15 000€ (en sus obligatoire) prix total : 239 000€ les + bonaparte promotion : direct promoteur garantie constructeur 10 ans frais de notaire réduit 450 résidences en cours en idf, plus de 10.000 appartements le plus grand choix de résidences neuves en ile de france contactez rapidement votre conseiller poulain quentin 06 98 69 99 69.

Recevez en temps réel les dernières annonces correspondant à votre recherche
Au cœur de Val d’Oise, Ermont séduit pour sa qualité de vie, entre la forêt de Montmorency et le lac d’Enghien. Sereine et animée, la ville concentre un tissu commerçant dense et varié, de nombreux équipements culturels et sportifs, des espaces verts; et deux gares de RER C et Transilien J & H à quelques minutes à pied de ce projet d’envergure, et qui vous amène au centre de paris en moins de 30min * . Organisés autour d’un grand parc paysager, cette nouvelle résidence à l’architecture contemporaine et majestueuse met en scène de beaux espaces extérieurs, avec des expositions doubles ou traversantes pour les appartements familiaux. Terrasses, jardins et balcons prolongent des appartements soigneusement agencés. Déclinés du studio au 5 pièces, ils sauront répondre à tous vos projets pour habiter comme pour investir. À moins de 10 min * à pied du centre-ville À 15 min * à pied de la gare de Franconville - Le Plessis-Bouchard Jardin d’agrément paysager Jardins, balcons et terrasses plein ciel Large choix de surfaces Parking sécurisé en sous-sol Eligibilité à la TVA 5,5% * Source : ratp. fr * Source : google maps * voir conditions Les informations sur les risques auxquels ce bien est exposé sont disponibles sur le site Géorisques : .
Exclusivite bonaparte promotion contactez rapidement votre conseiller poulain quentin 06 98 69 99 69 eligible pret a taux zero, tva reduite, frais de notaire reduits livraison 3t 2027 l'appartement : un joli 2 pièces situé au premier étage traversant composé : d'un séjour avec cuisine ouverte donnant accès à un balcon; d'un dégagement avec placard, une chambre. Une salle de bain équipée et d’un wc séparé. Une place de parking en sous-sol en sus obligatoire. La residence : résidence neuve, ermont, respectant les normes re 2020 avec ascenseur respectant les normes pmr, personnes à mobilité réduite architecture moderne, cadre de vie exceptionnel isolation phonique et thermique renforcées charges faibles, consommations individuelles / collectives transports train : 4 gares sur la commune bus : différentes lignes de bus à proximité voiture : à proximité de l’a15 et la15 prix : prix de 233 804 € prix parking de l'appartement : en sous-sol 15 000€ (en sus obligatoire) prix total : 248 804 € les + bonaparte promotion : direct promoteur garantie constructeur 10 ans frais de notaire réduit 450 résidences en cours en idf, plus de 10.000 appartements le plus grand choix de résidences neuves en ile de france contactez rapidement votre conseiller quentin poulain au 06 98 69 99 69.
L’office notarial selas c² notaires vous propose : appartement à vendre en immo-interactif - adresse du bien : 22 rue simone veil 95370 montigny les cormeilles - immobilier. Notaires et l'office notarial c2 notaires vous proposent : appartement à vendre en immo-interactif - venez participer à cette vente en immo-interactif : au sein d'une résidence prisée et sécurisée, à 5min à pied de la gare de montigny-beauchamp, un studio totalement fonctionnel de 35 m² comprenant un vaste séjour lumineux avec coin dressing, une cuisine toute équipée ainsi qu'une salle d'eau avec wc. Une place de parking en sous sol complète ce bien. Caracteristiques : - emplacement idéal : proximité immédiate avec les commerces, écoles et transports. Gare de montigny-beauchamp à 5min à pied. - résidence de bon standing de 2020 par bouygues immobilier. Prisée et sécurisée, aux normes bbc. - ascenseur - orientation sud est - lumineux - double vitrage pvc + volets roulants - faibles charges - dpe c - meublé - fonctionnel et ergonomique - très bonne rentabilité locative - place de parking pour les primo-accédants ou les investisseurs, venez saisir cette opportunité sans plus attendre ! Copropriété de 98 lots. Quote-part moyenne du budget prévisionnel = 1200 € / an les informations sur les risques auxquels ce bien est exposé sont disponibles sur le site géorisques : georisques. Gouv. Fr. - conditions de la vente : le bien est présenté en immo-interactif à la hausse : - 1ère offre possible : à partir de 99 900,00 euros (honoraires de négociation inclus) - offres suivantes : multiples de 500 euros. - réception des offres du 05 07 20 25 20 : 00 au 06 07 20 25 20 : 00 sur le site immobilier. Notaires. - visites : sur rendez-vous. Contact : 01 61 35 07 67 - conditions de la vente : le bien est présenté en immo-interactif à la hausse : - 1ère offre possible : à partir de 99 900 euros (honoraires de négociation inclus) - offres suivantes : multiples de 500 euros. - réception des offres du 05 / 07 / 2025 à 20 : 00 au 06 / 07 / 2025 à 20 : 08 sur le site immo-interactif®. - annonce de l’étude selas c² notaires - notaires à saint-leu-la-forêt - n° siret : 83976292900025 - immo-interactif® : le système d'enchères immobilières sans contrainte, transparent et sécurisé, proposé par votre notaire.
Succes commercial - livraison 4t2025 eligible pret a taux zero, tva à 5.5%, frais de notaire reduits ! Contactez rapidement votre conseiller cédric badouraly 06 51 23 05 21 au coeur de la ville de montigny-les-comeilles, à proximité des commerces, des écoles et des transports, bonaparte promotion vous propose un magnifique 2 pièces d'une surface de plus de 50 m² situé au dernier étage. L'appartement se compose : d'une entrée sur la pièce de vie avec cuisine américaine donnant sur une grande terrasse de près de 12 m², grande chambre de plus de 16 m², salle de bains avec wc. Une place de parking complète ce bien. La residence : résidence neuve, respectant les normes bbc, rt2012, avec ascenseur respectant les normes pmr, personnes à mobilité réduite architecture moderne, cadre de vie exceptionnel isolation phonique et thermique renforcées charges faibles, consommations individuelles / collectives transports train : rer c (gare de montingy-beauchamp), ligne h et ligne j bus : différentes lignes de bus au pied de la résidence voiture : à proximité de l’a15 prix : prix de l'appartement : 215.000€ prix parking en sous-sol 12.000 € (en sus obligatoire) prix total : 227.000 € les + bonaparte promotion : direct promoteur garantie constructeur 10 ans frais de notaire réduit 450 résidences en cours en idf, plus de 10.000 appartements le plus grand choix de résidences neuves en ile de france pour obtenir des renseignements rapidement, contactez votre conseiller dédié bonaparte promotion cédric badouraly au 06 51 23 05 21 : et / ou rendez-vous en agence sur rdv : bonaparte promotion 100 rue martre 92110 clichy tel : 01 84 740 504.
Ermont centre-ville idéal profession libérale, investisseur ou résidence principale situé dans le secteur recherché de la rue stalingrad, à deux pas des commodités et des transports, ce spacieux t1 de 41 m² entièrement rénové offre de belles prestations : emplacement privilégié, à seulement 500 m des gares de cernay et ermont-halte grande pièce de vie lumineuse de 20 m² cuisine équipée (possibilité d'aménagement en salle d'attente pour une profession libérale) salle d'eau avec wc toutes commodités accessibles à pied : commerces, écoles, transports atouts supplémentaires : cave accès pmr configuration idéale pour profession libérale : grand couloir permettant une séparation des espaces photos supplémentaires sur demande contactez-nous rapidement pour organiser une visite ! Le bien comprend 2 lots, et il est situé dans une copropriété de 164 lots (les charges courantes annuelles moyennes de copropriété sont de 1038 € et le syndicat des copropriétaires ne fait pas l'objet d'une procédure citée à l'article l. 721-1 du code de la construction et de l'habitation). Les informations sur les risques auxquels ce bien est exposé sont disponibles sur le site géorisques : prix de vente : 168 000 € honoraires charge vendeur contactez votre conseiller safti : stéphane domenjoud, tél. : 06 65 35 94 47, e-mail : stephane.domenjoud@safti.fr - ei - agent commercial immatriculé au rsac de pontoise sous le numéro 835 271 057.
Ermont, en plein centre-ville, au rez-de-chaussée d'un immeuble datant de 1988, à proximité immédiate de tous les commerces et situé à seulement 3 minutes à pied de la gare de Cernay (lignes H et RER C). Ce grand F1 parfaitement rénové se compose d'une entrée, d'une cuisine équipée, d'un grand séjour de 22 m², ainsi que d'une salle de douche avec WC. Une cave accessible par l'ascenseur se trouve au sous-sol. Les professions libérales sont acceptées. L'appartement dispose d'un chauffage individuel au gaz, de fenêtres en PVC avec double vitrage, et de volets roulants électriques. Possibilité d'un box en option. Référence agence : 7913.
Optez pour le confort et la modernité dans une résidence à venir sur ermont à proximité des transports, écoles et autres commodités. Immotech partners vous propose cet appartement offrant une cuisine ouverte sur séjour, 0 chambres, une salle d'eau ainsi que des wc. Un extérieur complète ce bien. Parking en sus. Frais de notaire réduits dans cette résidence moderne et sécurisée respectant les dernières normes environnementales. Prestations haut de gamme et choix de finitions encore possible ! Idéal 1er achat : - prêt à taux zéro (ptz), ou investisseurs : - eligible lli (défiscalisation), - loueur meublé non-professionnel (lmnp-lmp). Garanties légales : - dommages-ouvrage (décennale) - bon fonctionnement (biennale) - parfait achèvement - isolation phonique choisissez la sobriété énergétique : bâtiment basse consommation (bbc), rt2012 / re2020, faibles charges. Immotech partners vous propose plus de 4000 programmes neufs partout en france. Contactez-nous pour un accompagnement sur votre projet immobilier nos visuels sont non contractuels.
Exclusivité bonaparte promotion éligible prêt à taux zéro – frais de notaire réduits livraison : 1er trimestre 2026 l’appartement : un joli 2 pièces en rez-de-chaussée de 45,82 m², bien agencé. Il est composé : d’un grand séjour avec cuisine ouverte de 27,13 m², d’une chambre confortable de 12,93 m², d’une salle de bain avec wc de 5,76 m². Une place de parking en sous-sol en sus obligatoire la résidence : les hauts du château – montigny-lès-cormeilles résidence neuve, dans un quartier résidentiel et historique, entre forêt, centre-ville et commerces, à proximité immédiate de la gare. Conforme re2020, haute qualité environnementale architecture élégante, esprit villageois normes pmr (personnes à mobilité réduite) isolation phonique & thermique renforcées charges faibles, copropriété sécurisée (vidéophone, digicode, local vélo…) ascenseur, parking en sous-sol, jardins paysagers transports train : gare de la frette - montigny (transilien j) à 1 km, saint-lazare en 22 min gare de montigny-beauchamp à 2,9 km (rer c / transilien h) bus : ligne 30-05 à 2 min à pied (arrêt église) voiture : accès rapide à l’a15 (1,4 km), a115 et francilienne prix : prix de l’appartement : 211 900 € prix parking en sous-sol : 15 000 € prix total : à partir de 226 900 € les + bonaparte promotion : direct promoteur garantie constructeur 10 ans frais de notaire réduit 450 résidences en cours en idf, plus de 10.000 appartements le plus grand choix de résidences neuves en ile de france contactez rapidement votre conseiller farau nicolas : 06 52 25 27 12.
Exclusivité bonaparte promotion éligible prêt à taux zéro – frais de notaire réduits livraison : 1er trimestre 2026 l’appartement : un joli 3 pièces en rez-de-jardin de 67 m², bien agencé. Il est composé : d’un grand séjour avec cuisine ouverte, de deux chambres déservies par une salle de bain, un wc séparé. Le bien est ouvert sur un magnifique extérieur avec une terasse et un abri de jardin. Une place de parking en sous-sol en sus obligatoire la résidence : les hauts du château – montigny-lès-cormeilles résidence neuve, dans un quartier résidentiel et historique, entre forêt, centre-ville et commerces, à proximité immédiate de la gare. Conforme re2020, haute qualité environnementale architecture élégante, esprit villageois normes pmr (personnes à mobilité réduite) isolation phonique & thermique renforcées charges faibles, copropriété sécurisée (vidéophone, digicode, local vélo…) ascenseur, parking en sous-sol, jardins paysagers transports train : gare de la frette - montigny (transilien j) à 1 km, saint-lazare en 22 min gare de montigny-beauchamp à 2,9 km (rer c / transilien h) bus : ligne 30-05 à 2 min à pied (arrêt église) voiture : accès rapide à l’a15 (1,4 km), a115 et francilienne prix : prix de l’appartement : 287 400 € prix parking en sous-sol : 15 000 € prix total : 302 400 € les + bonaparte promotion : direct promoteur garantie constructeur 10 ans frais de notaire réduit 450 résidences en cours en idf, plus de 10.000 appartements le plus grand choix de résidences neuves en ile de france contactez rapidement votre conseiller berkani wassim 07 83 85 12 49.
Iad france - damien carvalho soares vous propose : + cormeilles-en-parisis + les champs guillaume + somptueux studio moderne avec terrasse de 32 m² ! Découvrez ce charmant appartement situé dans la commune prisée de cormeilles-en-parisis. Disposant d'une superficie de 30 m², cet appartement de type studio est idéalement agencé pour offrir un cadre de vie confortable et fonctionnel. L'espace de vie principal regroupe une grande pièce à vivre avec une cuisine équipée ouverte, un coin nuit, un espace salle d'eau avec toilettes, et une agréable terrasse pour profiter des beaux jours. La terrasse est un véritable atout pour cet appartement, offrant un espace extérieur privatif pour se détendre en toute tranquillité. La résidence récente, construite en 2016, est en excellent état, gage d'une qualité de vie appréciable. Elle bénéficie de nombreux avantages et équipements modernes tels que la fibre optique, un ascenseur, un accès sécurisé avec digicode, interphone et porte blindée. L'appartement est chauffé par un système de chauffage collectif avec radiateurs fonctionnants au gaz naturel, assurant un confort thermique optimal. Les radiateurs répartis dans l'appartement garantissent une chaleur homogène et agréable tout au long de l'année. Pour votre véhicule, une place de parking privative est mise à disposition, ajoutant une commodité supplémentaire. Il est à noter que la résidence dispose d'une belle architecture avec 3 niveaux, offrant une ambiance conviviale. Situé dans un quartier calme et résidentiel, cet appartement est idéal pour un premier achat, un investissement locatif ou un pied-à-terre. Ne nécessitant aucun travaux, il est prêt à accueillir ses nouveaux occupants et à leur offrir un cadre de vie agréable. + coup de coeur assuré + la presente annonce immobiliere vise 2 lots situés dans une copropriété de 70 lots au total et ne faisant l'objet d'aucune procédure en cours citée à l'article l. 721-1 du code de la construction et de l'habitation. Montant moyen mensuel de charges déclaré par le vendeur : 90€ par mois (soit 1080 € annuel). Honoraires d'agence à la charge du vendeur. Information d'affichage énergétique sur ce bien : classe energie c indice 194 et classe climat c indice 14. Les informations sur les risques auxquels ce bien est exposé, y compris l'obligation légale de débroussaillement, sont disponibles sur le site géorisques : la présente annonce immobilière a été rédigée sous la responsabilité éditoriale de m damien carvalho soares mandataire indépendant en immobilier (sans détention de fonds), agent commercial de la sas i@d france immatriculé au rsac de pontoise sous le numéro 842 967 077, titulaire de la carte de démarchage immobilier pour le compte de la société i@d france sas.
Nous vous proposons un bien immobilier unique idéal pour un investissement en loueur meublé non professionnel (lmnp) sous bail commercial. Ce type de placement offre de nombreux avantages fiscaux et un revenu locatif sécurisé. « aucune possibilité d'acquisition en résidence principale ou secondaire » caractéristiques du bien : type de bien : chambre simple dans une résidence médicalisée localisation : cormeilles-en-parisis (95) surface : 23,12 m² etage : rdc année de construction : 2010 etat général : bon etat gestionnaire : steva informations financières : prix de vente : 133 288 eur loyer annuel garanti : 8500 eur ht rendement locatif brut : 6.4 % charges annuelles : 330 eur taxe foncière : 461 eur bail commercial jusqu'au 31 / 12 / 2032 avantages de l'investissement lmnp : revenu locatif sécurisé : le bien est loué sous bail commercial avec un loyer garanti. Régime fiscal attractif : amortissement du bien, déduction des charges, et réduction de la base imposable. Gestion simplifiée : le bail commercial inclut la gestion locative, ce qui réduit les contraintes pour l'investisseur. Pour plus d'informations ou pour organiser une visite, n'hésitez pas à nous contacter : téléphone : 02 21 67 52 61 adresse de l'agence : 21-23,21 rue du maréchal leclerc, 85100 les sables-d'olonne investissez en toute sérénité avec ce bien sous le statut lmnp et bénéficiez d'un rendement locatif attractif et sécurisé. Ne manquez pas cette opportunité exceptionnelle ! Les informations sur les risques auxquels ce bien est exposé sont disponibles sur le site géorisques : photos non contractuelles.
Iad France - Aurelie Leretaille vous propose : Centre-ville – Rue Pierre Brossolette Dans une charmante copropriété des années 40, de seulement 11 logements, aux charges très faibles, venez découvrir ce studio rénové, situé au 1er et dernier étage. 25 m² bien agencés comprenant : Une entrée accueillante, Une cuisine ouverte et équipée, parfaite pour vos repas du quotidien, Une salle d’eau avec WC, Un séjour lumineux avec un coin nuit fermé, idéal pour préserver votre intimité. À l’extérieur, profitez d’un cellier privatif de plus de 3 m² pour stocker facilement vos affaires. Localisation idéale : à deux pas du marché, des commerces et à seulement 10 minutes à pied de la gare de Cormeilles-en-Parisis (Ligne J). Atouts : emplacement premium, rénovation récente, dernier étage, faibles charges… un investissement parfait pour un premier achat ou un pied-à-terre. La presente annonce immobiliere vise 2 lots situés dans une copropriété de 16 lots au total et ne faisant l'objet d'aucune procédure en cours citée à l'article L. 721-1 du code de la construction et de l'habitation. Montant moyen mensuel de charges déclaré par le vendeur : 9.42€ par mois (soit 113.04 € annuel). Honoraires d'agence à la charge du vendeur. Information d'affichage énergétique sur ce bien : classe ENERGIE G indice 808 et classe CLIMAT C indice 27. Les informations sur les risques auxquels ce bien est exposé, y compris l'obligation légale de débroussaillement, sont disponibles sur le site Géorisques : La présente annonce immobilière a été rédigée sous la responsabilité éditoriale de Mme Aurelie Leretaille mandataire indépendant en immobilier (sans détention de fonds), agent commercial de la SAS I@D France immatriculé au RSAC de PONTOISE sous le numéro 883123051, titulaire de la carte de démarchage immobilier pour le compte de la société I@D France SAS.
Exclusivite bonaparte promotion contactez rapidement votre conseiller marc antoine : 06 99 78 21 24 eligible pret a taux zero, frais de notaire reduis livraison 3t 2026 l'appartement : un joli 2 pièces en rez-de-de-jardin composé : d'un grand séjour avec cuisine ouverte donnant accès à un jardin avec terrasse, une chambres. Une salle de bain équipée et d’un wc. Une place de parking en sous-sol en sus obligatoire. La residence : résidence neuve, beauchamp, respectant les normes hqe, re 2020 avec ascenseur respectant les normes pmr, personnes à mobilité réduite architecture moderne, cadre de vie exceptionnel isolation phonique et thermique renforcées charges faibles, consommations individuelles / collectives transports train : gare de mintigny beauchamp à 450 m bus : différentes à proximité immédiate voiture : à proximité de l’a115 prix : prix de 270 000 € prix parking en l'appartement : en sous-sol 15 400€ (en sus obligatoire) prix total : 285 400 € les + bonaparte promotion : direct promoteur garantie constructeur 10 ans frais de notaire réduit 450 résidences en cours en idf, plus de 10.000 appartements le plus grand choix de résidences neuves en ile de france contactez rapidement votre conseiller marc antoine : 06 99 78 21 24.
Exclusivite bonaparte promotion eligible pret a taux zero, frais de notaire reduits ! Contactez rapidement votre conseiller marc-antoine barbier 07 85 85 39 08 livraison : 2ème trimestre 2026 nous vous présentons chez bonaparte promotion ce bel appartement 2 pièces de 47 m². L'appartement se compose : d'une entrée avec un grand placard, d'un séjour avec cuisine américaine d'environ de 22 m², une chambre de 12 m², d'une salle de bains avec vasque et d'un wc séparé. 1 place de parking complète ce bien. Ce bien rare allie confort, modernité et fonctionnalité, avec des finitions de qualité et des espaces lumineux. Ne manquez pas cette opportunité unique d'acquérir un appartement dans un cadre de vie agréable ! Pour plus d'informations, n'hésitez pas à nous contacter. Votre futur chez-vous vous attend ! La residence : résidence neuve, la frette-sur-seine, respectant les normes re 2020 avec ascenseur respectant les normes pmr, personnes à mobilité réduite architecture moderne, cadre de vie exceptionnel isolation phonique et thermique renforcées charges faibles, consommations individuelles / collectives transports train : gare de « la frette – montigny » à 150 mètres transilien j vers paris-saint-lazare en 20 min. Bus : arrêt pontoise – gare de la frette-montigny à 100 mètres, ligne 30-32 arrêt place de la garecà 200 mètres lignes 30-34,30-38 et 95-20 voiture : à proximité de l'autoroute a15 et de d392 aéroport international de paris-charles de gaulle à 25 minutes porte maillot à 30 min prix : prix de l'appartement 290 000 € prix parking sous-sol 15 000€ (en sus obligatoire) prix total : 305 000€ les + bonaparte promotion : direct promoteur garantie constructeur 10 ans frais de notaire réduit 450 résidences en cours en idf, plus de 10.000 appartements le plus grand choix de résidences neuves en ile de france contactez rapidement votre conseiller marc-antoine barbier 07 85 85 39 08.
Découvrez en avant-première cette résidence intimiste de 36 logements, du studio au 4 pièces, avec balcons, terrasses ou jardins privatifs. Son architecture élégante et sa conception conforme à la RE 2025 garantissent confort et performance énergétique. Située à proximité du centre-ville, elle offre un cadre de vie agréable, proche des commerces et services, et bénéficie d'une excellente accessibilité avec la gare d'Ermont-Eaubonne (RER C, Transilien H et J) à 2 km. Les 5 premiers réservataires bénéficieront des frais de notaire offerts * . Faites une demande dès maintenant pour être recontacté. Les informations sur les risques auxquels ce bien est exposé sont disponibles sur le site Géorisques : .
Exclusivite bonaparte promotion eligible pret a taux zero, frais de notaire reduits ! Contactez rapidement votre conseiller marc-antoine barbier 07 85 85 39 08 livraison : 2t2026 nous vous présentons chez bonaparte promotion ce bel appartement 2 pièces de 40 m² avec loggia. L'appartement se compose : d'une entrée, d'un séjour avec cuisine américaine d'environ de 22 m² exposé sud-ouest, une chambre avec placard de 12,5 m², d'une salle de bains avec vasque et d'un wc. 1 place de parking complète ce bien. Ce bien rare allie confort, modernité et fonctionnalité, avec des finitions de qualité et des espaces lumineux. Ne manquez pas cette opportunité unique d'acquérir un appartement dans un cadre de vie agréable ! Pour plus d'informations, n'hésitez pas à nous contacter. Votre futur chez-vous vous attend ! La residence : résidence neuve, taverny, respectant les normes re 2020 avec ascenseur respectant les normes pmr, personnes à mobilité réduite architecture moderne, cadre de vie exceptionnel isolation phonique et thermique renforcées charges faibles, consommations individuelles / collectives transports train : gare de taverny, ligne h à 3 minutes à pied gare de vaucelles, ligne h à 10 minutes à pied bus : arrêt de bus «hôtel de ville - marché», lignes 95-03a et 95-03b. Voiture : à proximité de l'autoroute a115 prix : prix de l'appartement 224 000 € prix parking sous-sol 15 000€ (en sus obligatoire) prix total : 239 000€ les + bonaparte promotion : direct promoteur garantie constructeur 10 ans frais de notaire réduit 450 résidences en cours en idf, plus de 10.000 appartements le plus grand choix de résidences neuves en ile de france contactez rapidement votre conseiller marc-antoine barbier 07 85 85 39 08.
Centre ville, proche commerces et transports. Dans une résidence bien entretenue et sécurisée, venez découvir ce studio lumineux et parfaitement distribué comprendant : entrée, dressing, SdB-Wc, pièce de vie semi-ouverte sur cuisine équipée donnant sur une vaste terrasse plein Sud. En annexe, un box en S / s. Honoraires inclus dans le prix : 6.38%.
L'agence access immobilier vous présente en exclusivite, ce rez-de-jardin de plus de 29 m² avec terrasse, situé dans une jolie copropriété fermée / sécurisée à 600 mètres de la gare ermont / eaubonne (ligne h, j et c). Vous pourrez découvrir une entrée avec placard desservant la pièce de vie avec kitchenette de 20 m², salle de bains avec wc. Chauffage individuel électrique. Charges 83eur / mois (eau froide, entretien parties communes, espaces verts, syndic et assurance). Lumineux et situé dans un secteur idéal proche de toutes commodités. Cet appartement sera parfait pour un premier achat ou pour un investissement ! Contactez notre agence au 01 39 83 30 30 ou par mail à contact@access-immo95.fr. Les informations sur les risques auxquels ce bien est exposé sont disponibles sur le site géorisques : .
Situé dans la charmante commune d'Eaubonne (95600), ce studio de 35 m² constitue un investissement idéal grâce à sa proximité avec de nombreux commerces, la gare, écoles et espaces verts. Niché au 4ème étage avec ascenseur, cet appartement offre un cadre de vie paisible et pratique aux habitants souhaitant profiter d'un environnement calme et convivial, à quelques pas des commodités essentielles. Construit en 2015, ce studio lumineux se compose d'une pièce de vie agréable ouverte sur une cuisine équipée, ainsi que d'une salle d'eau avec wc. Egalement présent, une cave et deux balcons. Ce bien est actuellement loué. Le bien comprend 3 lots, et il est situé dans une copropriété de 120 lots (les charges courantes annuelles moyennes de copropriété sont de 1400 € et le syndicat des copropriétaires ne fait pas l'objet d'une procédure citée à l'article L. 721-1 du code de la construction et de l'habitation). Les informations sur les risques auxquels ce bien est exposé sont disponibles sur le site Géorisques : Prix de vente : 209 000 € Honoraires charge vendeur Contactez votre conseiller SAFTI : Steven NIVET, Tél. : 06 26 37 15 57, E-mail : steven.nivet@safti.fr - EI - Agent commercial immatriculé au RSAC de Châteauroux sous le numéro 977456904.
Dans une résidence recherchée pour son standing et son emplacement, proche de toutes les commodités eaubonnaises. Studio avec de belles prestations et une grande hauteur sous plafond comprenant entrée, séjour avec cuisine donnant sur terrasse, salle de bains avec wc. En annexe, une grande place de parking en sous-sol et une cave. Honoraires inclus dans le prix : 6.38%.
Iad France - Hassan Laabouss vous propose : Dans une résidence sécurisée et verdoyante, un grand studio lumineux de 34.3 m². Vous débuterez cette visite par une belle entrée desservant un séjour cosy et un espace nuit donnant sur le parc avec balcon. Une belle cuisine équipée et une salle de bains avec baignoire dans un état impeccable. Un excellent choix pour débuter ou pour un investissement locatif pour un bien à faibles charges et idéalement situé (commerces, écoles et transports). Un emplacement de parking en sous-sol vient compléter ce bien. La presente annonce immobiliere vise 2 lots situés dans une copropriété de 99 lots au total et ne faisant l'objet d'aucune procédure en cours citée à l'article L. 721-1 du code de la construction et de l'habitation. Montant moyen mensuel de charges déclaré par le vendeur : 135.33€ par mois (soit 1624 € annuel). Honoraires d'agence à la charge du vendeur. Information d'affichage énergétique sur ce bien : classe ENERGIE D indice 171 et classe CLIMAT D indice 35. Les informations sur les risques auxquels ce bien est exposé, y compris l'obligation légale de débroussaillement, sont disponibles sur le site Géorisques : La présente annonce immobilière a été rédigée sous la responsabilité éditoriale de M Hassan Laabouss mandataire indépendant en immobilier (sans détention de fonds), agent commercial de la SAS I@D France immatriculé au RSAC de PONTOISE sous le numéro 982247017, titulaire de la carte de démarchage immobilier pour le compte de la société I@D France SAS.