77 résultats
Située au cœur de Montigny-le-Bretonneux, dans le quartier authentique du "Village", cette nouvelle résidence remplit tous les critères d'une architecture avant-gardiste et d'espaces extérieurs spacieux, au service de prestations haut de gamme. Les matériaux choisis, tels que le parement de pierre, le béton matricé, les menuiseries extérieures en bois et aluminium, ainsi que les garde-corps en verre opalescent, sont utilisés conjointement avec une isolation acoustique efficace des façades. La majorité des appartements neufs offrent de multiples orientations, avec 90 % d'entre eux bénéficiant d'une double, triple ou quadruple exposition. Les séjours sont spacieux, parfois en double hauteur pour les plus grands appartements, et s'étendent sur des terrasses, jardins ou loggias, parfois agrémentés de toits-terrasses. Ces espaces extérieurs seront des lieux parfaits pour partager des moments chaleureux en famille ou entre amis dès les beaux jours. Ces appartements seront dotés de fonctionnalités connectées, et les halls d'entrée comprendront une bibliothèque partagée. Conçus pour être éco-énergétiques, ces appartements bénéficieront de finitions haut de gamme et offriront les meilleures normes de sécurité. Les espaces communs seront aménagés avec des petites places, des jardins et des espaces de rencontre partagés. Les résidents auront accès à plusieurs emplacements pour vélos, ainsi qu'à un atelier commun pour le gonflage et la réparation de vélos, et à des espaces réservés pour les poussettes. Chaque appartement disposera de son propre espace de stockage, sous forme de cave ou de cellier, pour ranger vins et objets personnels Découvrez également nos 100 autres résidences dans le 78 : Rendez-vous dans notre Agence Médicis Immobilier Neuf, 24 rue du Gouverneur Général Eboué, Issy-les-Moulineaux 92130. Les informations sur les risques auxquels ce bien est exposé sont disponibles sur le site Géorisques : .
Dernieres opportunites a saint-cyr-l’ecole (78) : dans le nouveau quartier "plaine de vie" dédié au confort et à la qualité de vie, vinci immobilier vous invite à découvrir "interieur parc" une nouvelle résidence élégante et à taille humaine répartie sur deux petits bâtiments. Vous serez séduits par des appartements du 2 au 5 pièces bénéficiant pour la plupart d’un prolongement extérieur avec des loggias et des terrasses. À moins de 100 mètres de la résidence, la ligne de bus 54 vous mèneront à la gare de saint-cyr-l’ecole. Vous pourrez rejoindre paris-montparnasse en 20 minutes (transilien n), la défense en 30 minutes (transilien u). À l’été 2022 dans le cadre du grand paris express, la desserte sera complétée par le tramway t13. Votre quotidien sera amélioré par les commerces de proximité et de nombreux équipements publics (groupe scolaire, crèche, parc…). Vous profiterez pour l’acquisition de votre résidence principale du nouveau ptz. La résidence répondra à la réglementation re 2020 et sera certifiée nf habitat. Les informations sur les risques auxquels ce bien est exposé sont disponibles sur le site géorisques : .
PROFITEZ DE LA TVA REDUITE ET DU NOUVEAU PTZ ! Green City Immobilier vous présente sa nouvelle résidence : « ONDULATION », située à Limay ! Limay, commune des Yvelines, est nichée sur les rives de la Seine, à moins de 50 km de Paris. Limay occupe une place idéale à l’ouest de la capitale. Au cœur d’un bassin d’activités performant et d’un territoire actif, la commune bénéficie d’un tissu économique fort avec plus de 100 000 emplois dans les environs. Les quelques 18 000 Limayens profitent d’un cœur de ville animé avec de nombreux commerces, un marché bi-hebdomadaire et une vie associative riche. Les familles apprécient la qualité des infrastructures scolaires, de la crèche au lycée. La résidence « Ondulation » est située rue Lafarge, dans un quartier paisible et à proximité du cœur de ville de Limay où se côtoient services et commerces du quotidien. L’environnement de la résidence procure un sentiment de tranquillité et de bien-être. Tout ici est pensé pour votre confort de vie, dans le respect de l’environnement. Chaque appartement de la résidence est pensé pour offrir une très grande fonctionnalité avec des séjours de grands volumes. Ils profitent également d’une luminosité exceptionnelle notamment grâce aux grandes baies vitrées donnant sur les extérieurs particulièrement généreux, véritables pièces supplémentaires prolongeant les appartements, avec balcons, grands jardins privatifs et vastes terrasses. N’attendez plus et contactez nos conseillez ! Les informations sur les risques auxquels ce bien est exposé sont disponibles sur le site Géorisques : .
Prochainement à Sartrouville : devenez propriétaire en bénéficiant d'une réduction du taux de TVA à 5,5% (sous conditions). Découvrez une résidence dans un tout nouveau quartier à proximité immédiate des commerces et écoles, avec une bonne accessibilité au RER A et aux Transilien L et J. 57 appartements du studio au 4 pièces et 4 maisons familiales avec jardin. Les logements disposent pour la plupart d’un espace extérieur (balcon, loggia, terrasse ou jardin privatif) et d’un parking. Contactez-nous dès à présent au 01 55 18 70 00 pour découvrir notre résidence et rencontrez nos équipes. Les informations sur les risques auxquels ce bien est exposé sont disponibles sur le site Géorisques : .

Recevez en temps réel les dernières annonces correspondant à votre recherche
NOUVEAU à Ville-d'Avray, au coeur d'un quartier résidentiel verdoyant entre forêt et parc classé. Une élégante résidence proposant des appartements neufs du 2 au 5 pièces. Chaque logement se prolonge d'un balcon, d'une terrasse ou d'un jardin privatif, avec vues sur un parc paysager d'inspiration anglaise. Architecture contemporaine, matériaux nobles, prestations haut de gamme et respect des normes RT 2012 s'unissent dans un cadre préservé dédié au confort et à la sérénité. La réalisation Les Villas d'Eugénie profite d'un environnement résidentiel privilégié, à quelques minutes à pied des sentiers boisés de la forêt de Fausses-Reposes et des allées du Domaine National de Saint-Cloud. La résidence bénéficie d'un emplacement privilégié à deux pas du coeur de ville, de ses commerces et équipements. Crèches, écoles, théâtre, médiathèque ou marché rythment un quotidien pratique et animé. Reliée à Paris, La Défense et Versailles par le Transilien, les bus et les grands axes, elle conjugue qualité de vie et mobilité. Une opportunité rare pour habiter un lieu d'exception ou réaliser un investissement patrimonial durable. Les informations sur les risques auxquels ce bien est exposé sont disponibles sur le site Géorisques : .
Au cœur de la charmante commune de Jouy-en-Josas, ce programme immobilier neuf s’épanouit dans un environnement verdoyant et paisible, idéal pour une vie de famille harmonieuse. Alliant douceur de vivre et praticité, la résidence profite d’un emplacement privilégié à seulement 200 mètres de la gare RER C et Transilien V, assurant une connexion rapide avec les principaux pôles d’activité de la région. Commerces, services de proximité et établissements scolaires sont aisément accessibles, facilitant le quotidien de chacun. Implantée dans un secteur résidentiel arboré, la résidence séduit par son architecture classique et élégante, agrémentée de corniches raffinées qui soulignent son cachet intemporel. Les appartements neufs, du 2 au 4 pièces, se distinguent par leurs volumes généreux et leur luminosité naturelle grâce à de larges baies vitrées qui invitent la lumière tout au long de la journée. Les prestations, soigneusement sélectionnées, garantissent un confort durable : parquet, salle de bain équipée, système Vigik, porte palière sécurisée et conformité à la norme RE 2020 pour une meilleure performance énergétique. Certains logements bénéficient également d’un bel espace extérieur, qu’il s’agisse d’un balcon ou d’une terrasse, véritable prolongement de la pièce de vie pour profiter pleinement des beaux jours. La résidence sécurisée intègre en outre un parking en sous-sol, offrant praticité et sérénité au quotidien. Une adresse rare où le charme villageois de Jouy-en-Josas se marie parfaitement au confort moderne d’un habitat neuf. Découvrez également nos 100 autres résidences dans le 78 : Rendez-vous dans notre Agence Médicis Immobilier Neuf, 24 rue du Gouverneur Général Eboué, Issy-les-Moulineaux 92130. Les informations sur les risques auxquels ce bien est exposé sont disponibles sur le site Géorisques : .
Nouveau à saint-germain-en-laye ! Soyez parmi les premiers à choisir votre appartement neuf ou votre maison sur les toits ! C'est dans la ville très cossue de saint-germain-en-laye que marignan, en association avec ogic, dévoilent leur nouvelle réalisation, dans le cadre unique du nouveau quartier "clos saint-louis", créé dans le prolongement du centre-ville, autour de l'ancien hôpital réhabilité. Menant au coeur battant du nouveau quartier, découvrez les appartements de grand standing de la résidence "acte iv - résidences ourches", pensés pour offrir des volumes généreux et lumineux. Soyez parmi les privilégiés à choisir votre futur bien immobilier, du studio au 5 pièces, à 850 m du rer a. Des maisons sur les toits, surplombant la vallée, prolongés de belles terrasses sauront rendre votre quotidien épatant ! Il fera bon vivre et se promener en toute sécurité dans ce vaste quartier, entièrement piéton et végétalisé, et profiter de l'animation des commerces, restaurants et nombreuses boutiques. Contactez vite un de nos conseillers pour découvrir tous nos logements neufs à saint-germain-en-laye et soyez parmi les premiers à choisir le logement de vos rêves ! Les informations sur les risques auxquels ce bien est exposé sont disponibles sur le site géorisques : .
Du 01 / 12 / 2025 au 31 / 12 / 2025 : frais de notaire offerts. Voir conditions sur ca-immobilier. Fr. Achetez votre appartement a 31 km de paris * découvrez la prochaine réalisation neuve de crédit agricole immobilier sur la commune de thiverval-grignon dans les yvelines. Située à 31 km de paris porte d’auteuil * , thiverval-grignon est un petit village authentique de très bonne notoriété, notamment reconnu pour son centre sportif et de loisirs de renommée internationale, ‘’le liberty country club’’. Facilement accessible par les autoroutes a13 et a12 et par la gare rer de plaisir grignon, thiverval-grignon offre une proximité avec les bassins d’emplois de plaisir, versailles et paris-la défense. Située à 7 min. En voiture de la gare de plaisir * , votre future résidence neuve signée crédit agricole immobilier prend place au cœur d’un cadre exceptionnel verdoyant. Attenante au ‘’liberty country club’’ * , la résidence offre un accès aux activités et équipements actuels et à venir du club : golf 18 trous, piscines intérieur et extérieur, terrains de tennis, sauna, spa, salle de sport, restaurant, bar, institut de beauté, parc de jeux intérieur pour enfants. Votre résidence propose des appartements du 2 au 4 pièces, aux vues dégagées, tous prolongés par une surface extérieure généreuse. En attique, les logements bénéficient de magnifiques terrasses plein ciel offrant un superbe panorama sur les golfs. Les appartements du rez-de-jardin bénéficient d’un jardin privatif et d’un accès direct sur le golf. Promoteur national et tout particulièrement présent en île-de-france depuis plus de 25 ans, crédit agricole immobilier vous propose, en tant qu'expert de la promotion immobilière, la résidence ‘’emin & sens’’ située à thiverval-grignon. N'hésitez pas à nous contacter pour votre projet de résidence principale ou d'investissement locatif en vefa dans les yvelines. * source google maps, temps indicatif * le ‘’liberty country club’’, situé 2 route de thiverval, 78850 thiverval-grignon, est un établissement de la société mouratoglou academy sasu, siégeant 37 rue la pérouse, 75016 paris, inscrite au rcs de paris sous le n° 410 939 136. Les services proposés par le liberty country club sont indépendants des services proposés par la copropriété emin & sens et le coût d’adhésion à ces services n’est pas compris dans les charges de la copropriété. Les résidents de la copropriété bénéficient d’un tarif privilégié (voir conditions auprès du liberty country club, tél. : 01 34 89 38 36). Les informations sur les risques auxquels ce bien est exposé sont disponibles sur le site géorisques : .
Offres exceptionnelles : propriétaire de votre 3 pièces à partir de 990e / mois + vos frais de notaire offerts jusqu'à 70 000 e * éligible a la tva a 5,5 % * situé entre les futurs quartiers « écopôle seine-aval » et « nouvelle centralité », ce projet est à 8 mn en transports en commun de la gare de poissy : rer a, transilien j et, dès 2024, le rer e qui reliera la défense en 14 mn seulement ! Ce programme rt 2012 compte 2 îlots de vie soigneusement paysagers. Dernières opportunités appartements de 3 pièces avec un parking. Ce programme neuf rt 2012 de 2 étages plus attique libère d'agréables prolongements extérieurs : jardins individuels avec terrasse, balcons, terrasses plein ciel. Livraison immédiate !* voir conditions et éligibilité sur lnc. Fr les informations sur les risques auxquels ce bien est exposé sont disponibles sur le site géorisques : .
Les 30 jours Flash ! Faites la meilleure affaire de fin d'année à Saint-Germain-en-Laye et emménagez immédiatement ! Jusqu'à 20 000 euros de remise et frais de notaire offerts. C'est dans la ville très cossue de Saint-Germain-en-Laye que Marignan, en association avec OGIC, dévoilent leur nouvelle réalisation, dans le cadre unique du nouveau quartier "Clos Saint-Louis", créé dans le prolongement du centre-ville, autour de l'ancien hôpital réhabilité. Découvrez les appartements de grand standing de la résidence "Acte II - Résidences Armagis", pensés pour offrir des volumes généreux baignés de lumière. Soyez parmi les privilégiés à choisir votre futur bien immobilier, du studio au 5 pièces, à 850 m du RER A. Il fera bon vivre et se promener en toute sécurité dans ce vaste quartier, entièrement piéton et végétalisé, et profiter de l'animation des commerces, restaurants et nombreuses boutiques. Contactez-vite un de nos conseillers pour découvrir tous nos appartements neufs à Saint-Germain-en-Laye ! Les informations sur les risques auxquels ce bien est exposé sont disponibles sur le site Géorisques : .
Les 30 jours Flash ! Faites la meilleure affaire de fin d'année à Saint-Germain-en-Laye et emménagez immédiatement ! Jusqu'à 20 000 euros de remise et frais de notaire offerts. C'est dans la ville très cossue de Saint-Germain-en-Laye que Marignan, en association avec OGIC, dévoilent leur nouvelle réalisation, dans le cadre unique du nouveau quartier "Clos Saint-Louis", créé dans le prolongement du centre-ville, autour de l'ancien hôpital réhabilité. Découvrez les appartements de grand standing de la résidence "Acte I - Résidences Désoyer", pensés pour offrir des volumes généreux baignés de lumière. Soyez parmi les privilégiés à choisir votre futur bien immobilier, du studio au 4 pièces, à 850 m du RER A. Il fera bon vivre et se promener en toute sécurité dans ce vaste quartier, entièrement piéton et végétalisé, et profiter de l'animation des commerces, restaurants et nombreuses boutiques. Contactez vite un de nos conseillers à Saint-Germain-en-Laye et concrétiser votre projet immobilier ! Les informations sur les risques auxquels ce bien est exposé sont disponibles sur le site Géorisques : .
Lancement commercial à gif-sur-yvette – paris saclay- appartements en residence principale eligibles aux prix maitrises ! Prenez rendez-vous au 06 24 63 17 34 pour découvrir en exclusivité, dans notre bulle de vente, "les jardins du moulon", une résidence élégante de 49 appartements signée greencity immobilier, au cœur du campus paris-saclay. Du t2 au t5, logements lumineux avec balcons, terrasses ou jardins privatifs environnement verdoyant face à la ferme du moulon proximité immédiate : grandes écoles (polytechnique, paris-saclay…), entreprises (cea, danone, thales…), rer b, future ligne 18, n118, commerces, écoles et équipements sportifs prestations de qualité : cuisines et salles de bains équipées, vastes terrasses bois, ascenseur, parking en sous-sol résidence écoresponsable : re2020 seuil 2025, label biosourcé, nf hqe, qualité de l’air et gestion énergétique optimisée que vous soyez jeune actif, famille, chercheur ou investisseur, c’est une opportunité rare au cœur d’un territoire d’avenir ! Contactez dès maintenant nos conseillers ! Les informations sur les risques auxquels ce bien est exposé sont disponibles sur le site géorisques : .
Les Balcons de Viroflay Découvrez une nouvelle résidence de standing idéalement située à Viroflay, au cœur d'un quartier résidentiel recherché. À proximité immédiate des commerces et des établissements scolaires, elle bénéficie d'une desserte exceptionnelle : la gare « Viroflay Rive Gauche » accessible à pied permet de rejoindre Paris en moins de 20 minutes et Versailles en seulement 5 minutes. Une résidence élégante et intimiste Les Balcons de Viroflay se composent d'un immeuble à l'architecture contemporaine, soignée et harmonieuse, ainsi que de deux maisons de ville disposant chacune d'un accès indépendant. Des appartements lumineux et confortables Du studio au 5 pièces, chaque logement a été pensé pour offrir confort et qualité de vie. Les intérieurs spacieux s'ouvrent sur de généreux espaces extérieurs : balcons, loggias, terrasses ou jardins privatifs, idéaux pour profiter de chaque saison. Une adresse rare et privilégiée Ce programme conjugue qualité architecturale, cadre de vie verdoyant et accessibilité directe vers les principaux bassins d'emploi de l'Ouest parisien. Informations pratiques Livraison : 1er trimestre 2028 Logements du studio au 5 pièces À partir de 252 000 € – surfaces dès 29 m² Éligible au PTZ 2025 Exemples de prix indicatifs : Studio : dès 29 m² à partir de 252 000 € 2 pièces : dès 37 m² à partir de 292 000 € 3 pièces : dès 57 m² à partir de 418 000 € 4 pièces : dès 81 m² à partir de 535 000 € 5 pièces : dès 95 m² à partir de 665 000 € Transports à proximité RER C Tramway T6 et futur Tram T12 Trains L, N et U.
Dès le 26 Septembre, vente privée à VIROFLAY Devenez propriétaire en Avant-première d'une résidence de standing Idéalement située au sein d'un quartier résidentiel recherché et parfaitement desservi, la résidence se trouve à proximité immédiate des commerces, des établissements scolaires et à seulement quelques minutes à pied de la gare « Viroflay Rive Gauche », offrant un accès rapide vers Paris (moins de 20 min) et Versailles (5 min). Cette résidence élégante et intimiste se compose d'un immeuble à l'architecture contemporaine et soignée ainsi que de deux maisons de ville avec accès indépendant. Du studio au 5 pièces, chaque logement offre de belles prestations et de généreux espaces extérieurs (balcons, loggias, terrasses ou jardins privatifs), pensés pour un confort de vie optimal. Une adresse rare, mêlant qualité architecturale, environnement privilégié et accessibilité directe aux bassins d'emploi de l'Ouest parisien. Contactez nous dès maintenant pour être les premiers informés ! Pour toutes informations complémentaires, prenez contact avec nous ! Les informations sur les risques auxquels ce bien est exposé sont disponibles sur le site Géorisques : .
Implanté dans un cadre calme et agréable, à seulement 30 minutes de Paris, ce programme immobilier neuf se situe à Saint-Cyr-l'École, une ville idéale pour concilier vie familiale et proximité urbaine. Bénéficiant d'une excellente accessibilité grâce à ses nombreux transports en commun, la commune offre également un environnement verdoyant à proximité des parcs, parfait pour des moments de détente en plein air. La résidence, sécurisée par badge Vigik et vidéophone, dévoile un hall d’entrée raffiné, décoré par un architecte d’intérieur. Elle propose une variété de logements neufs, allant des appartements, du studio au 4 pièces, aux maisons individuelles. Les espaces intérieurs, pensés pour un confort optimal, séduisent par leurs pièces spacieuses et lumineuses, sublimées par de larges baies vitrées. Ce programme immobilier s’illustre également par des prestations soignées : sols stratifiés, carrelages modernes, placards intégrés, double vitrage isolant, volets roulants en PVC, cuisines fonctionnelles (ouvertes ou fermées selon les plans) et salles de bains entièrement équipées. Chaque logement répond aux exigences de la norme environnementale RE 2020, garantissant une isolation thermique et phonique exemplaire. À l’extérieur, profitez des beaux jours sur des balcons, terrasses, ou jardins privatifs en rez-de-chaussée. Pour plus de praticité et de sécurité, la résidence intègre des parkings en sous-sol et un local à vélos. Un cadre de vie où sérénité, confort et modernité se rencontrent. Découvrez également nos 100 autres résidences dans le 78 : Rendez-vous dans notre Agence Médicis Immobilier Neuf, 24 rue du Gouverneur Général Eboué, Issy-les-Moulineaux 92130. Les informations sur les risques auxquels ce bien est exposé sont disponibles sur le site Géorisques : .
L'ancien hôtel du Château de Sautour, situé à environ quarante kilomètres de Paris, se transforme avec une rénovation complète, tout en préservant son architecture classique et son charme historique. Nichée dans un cadre verdoyant, cette propriété offre un cadre de vie exceptionnel. Les futurs résidents auront le choix parmi 12 appartements neufs, allant du 2 au 4 pièces, avec quelques-uns conçus en duplex. Cette réhabilitation permet d'investir dans un bâtiment chargé d'histoire, désormais prêt pour une nouvelle ère. La rénovation a permis de créer des appartements modernes et bien agencés, offrant un cadre de vie confortable et agréable. Chaque appartement bénéficie de pièces spacieuses et lumineuses, grâce à de grandes baies vitrées, et est doté d'équipements de qualité, offrant une atmosphère chaleureuse et accueillante. Les jardins communs de la résidence offrent un espace agréable pour se détendre et interagir avec les voisins. Cette réhabilitation répond à toutes les attentes, que ce soit pour un investissement ou pour l'acquisition d'une résidence principale ou secondaire. Découvrez également nos 100 autres résidences dans le 78 : Rendez-vous dans notre Agence Médicis Immobilier Neuf, 24 rue du Gouverneur Général Eboué, Issy-les-Moulineaux 92130. Les informations sur les risques auxquels ce bien est exposé sont disponibles sur le site Géorisques : .
À deux pas de la mairie et de la place du marché, découvrez votre nouvelle résidence « Cœur Chaville », une réalisation intimiste à l’architecture élégante et durable, composée d’appartements lumineux du studio au 5 pièces. Tous les logements disposent d’un espace extérieur : terrasses, balcons, jardins privatifs en rez-de-chaussée et rooftop. Pensés avec soin, ils bénéficient de prestations de grande qualité : parquet massif, menuiseries extérieures en aluminium, WC suspendus, volets roulants électriques et des caves pour tous les logements. Chaville est une commune résolument verte, avec une surface boisée de 156 hectares qui couvre la moitié de celle-ci. Entourée par les forêts domaniales de Meudon et de Fausses-Reposes, elle représente un patrimoine naturel idéal pour les Chavillois. Les informations sur les risques auxquels ce bien est exposé sont disponibles sur le site Géorisques : .
Découvrez une nouvelle résidence Kaufman & Broad à l’ architecture intemporelle. Les studios et 3 pièces, baignés de lumière, s'ouvrent tous sur un espace extérieur généreux – balcon ou grande terrasse plein ciel. Les intérieurs contemporains offrent des volumes optimisés avec cuisines ouvertes sur séjour et chambres avec rangements intégrés. À 300m de l'école Jules Ferry, 5 min * à pied des commerces et 25 min * de La Défense, profitez d'un cadre de vie idéal alliant tranquillité et proximité. Les accès aux autoroutes A13 / A14 et aux gares du Transilien (lignes J et N) à moins de 10 min * facilitent vos déplacements. Stationnement en sous-sol et espaces verts paysagers complètent ce havre de paix. Les informations sur les risques auxquels ce bien est exposé sont disponibles sur le site Géorisques : .
À Houdan, à 13 min * à pied de la gare Transilien et 56 minutes * de Paris-Montparnasse, découvrez un nouveau domaine résidentiel bercé de verdure accueillant deux bâtiments intimistes et des maisons jumelées et individuelles présentées en six modèles. Dans un cadre privilégié, rythmé d’un parc, d’une place, de jardins, de sentes piétonnes, d’une pommeraie, ces logements conjuguent confort moderne, équipements innovants et élégance architecturale traditionnelle. Les appartements, du 2 au 4 pièces, s’ouvrent tous sur des balcons ou des terrasses avec des vues dégagées et des orientations idéales. Les maisons individuelles ou jumelées d’une surface habitable de 80 à 102 m², composées de 3 à 4 chambres, sont livrées clés en mains avec un garage privatif et un jardin aménagé. Une adresse idéale pour habiter ou investir. Les informations sur les risques auxquels ce bien est exposé sont disponibles sur le site Géorisques : .
Visitez l'appartement témoin décoré et les derniers appartements neufs disponibles, dotés de terrasses ou balcons dans la nouvelle résidence, Les Terrasses de l'Odyssée, une adresse prisée dans le Club Village. Et emménagez fin 2025 à Montigny-le-Bretonneux (78) ! Ce programme immobilier neuf vous propose également des maisons sur les toits avec des terrasses privatives, comme une pièce de vie en plus pour aménager un coin cuisine, un espace détente, un salon de jardin. Côté transports, vous avez le choix : la ligne N pour rejoindre Paris – Montparnasse en 25 min, la ligne U relie La Défense en 31 min et le RER C. Parcs, écoles, complexe sportif et commerces se trouvent dans le quartier, à proximité des Terrasses de l'Odyssée. Vous aurez tout le loisir de tout faire à pied ou en vélo ! Différents locaux vélos seront proposés aux résidents, ainsi qu’un atelier vélo commun pour le gonflage, la réparation, dans un cœur d'îlot végétalisé et également des locaux poussettes. Les appartements neufs du 2 au 5 pièces seront connectés et les halls d’entrée accueilleront une bibliothèque partagée. Les Terrasses de l'Odyssée auront la certification NF Habitat HQE et une performance thermique RT 2012 – 20%. Les informations sur les risques auxquels ce bien est exposé sont disponibles sur le site Géorisques : .
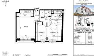
Appartements type 3 - residence neuve - villa muralis - avenue martin luther king à trappesresidence principale / ptz / frais de notaires reduits / lmnp-lmp / eligible tva 5.5% (primo-accédants selon ressources) au coeur d'une ville résolument tournée vers l'avenir avec son renouvellement urbain, la résidence villa muralis fait montre d'avangardisme grâce à son style élégant et contemporain. Chaque logement offre de beaux espaces lumineux et conviviaux. Tous les appartements s'ouvrent sur un balcon ou une terrasse. La résidence dont la livraison est récente, dispose d'un ascenseur. Ce dernier déssert tous les niveaux sous-sol compris. Les commerces et l'arrêt de bus se trouve à 2 pas. La gare à proximité permet également un accès rapide à paris. Chaque logement dispose de 2 places de parking en-sol. Il est possible d'acquérir en complément des places de stationnements. La résidence est sous garantie jusqu'en 2034. Prix du t3 avec parkings en sous-sol : à partir de 228 900 € (tva à 5.5%)visites sur demande : 02 99 78 30 00 dans une copropriété de 51 lots. Aucune procédure n'est en cours. Les informations sur les risques auxquels ce bien est exposé sont disponibles sur le site géorisques : georisques. Gouv. Fr.
Travaux en cours – dernières opportunités ! Profitez des derniers appartements disponibles dans une résidence intimiste à sartrouville, à seulement quelques minutes à pied de la gare rer a et des lignes l et j du transilien. Un charmant 2 pièces de 44 m², prolongé par de beaux espaces extérieurs, idéal pour un premier achat ou un investissement. Un 3 pièces de 60 m², avec une agréable pièce de vie d’environ 24 m², et deux grandes chambres de 11 et 13 m². Éligible au brs. Un spacieux 4 pièces de 101 m², offrant plus de 30 m² d’espace de vie et 3 belles chambres, dont une suite parentale de 20 m². Éligible au brs. Encore 2 parkings disponibles ! Située à proximité immédiate des établissements scolaires, d’un parc et de toutes les commodités, la résidence offre un cadre de vie calme et agréable aux portes de paris. Ne manquez pas ces dernières opportunités ! Les prix affichés sont en tva réduite (5.50 %). Les informations sur les risques auxquels ce bien est exposé sont disponibles sur le site géorisques : .
Succes commercial à chanteloup-les-vignes ! Devenez propriétaire d'un appartement neuf grâce à la tva réduite ! Chanteloup-les-vignes séduit par son cadre de vie verdoyant et son dynamisme grandissant. La ville connaît aujourd'hui un véritable renouveau urbain, avec de nombreux projets d'aménagement visant à moderniser et valoriser ses quartiers. C'est dans ce contexte porteur que s'inscrit notre nouvelle résidence, idéalement située à proximité immédiate des commerces, et de la future cité éducative simone veil. Facilement accessible, le clos champeau se trouve à quelques minutes de la gare de chanteloup-les-vignes (ligne j), permettant de rejoindre paris saint-lazare en environ 35 minutes * . Cette résidence à l'architecture contemporaine propose de beaux appartements, du studio au 4 pièces, pensés pour votre confort et dotés de généreux espaces extérieurs : balcons, terrasses ou jardins privatifs. Les derniers étages offrent de vastes terrasses plein ciel. Profitez de prix attractifs grâce à la tva réduite à 5,5 %, sous conditions d'éligibilité. Pour plus d'informations, contactez-nous d s maintenant. Pour toutes informations complémentaires, prenez contact avec nous ! Les informations sur les risques auxquels ce bien est exposé sont disponibles sur le site géorisques : .
Nouveau a rambouillet (78) - rue de la louvière, dans un quartier résidentiel, vinci immobilier et fair’ promotion réalisent la galopee une nouvelle résidence à l’architecture contemporaine avec des appartements du 2 pièces au 5 pièces prolongés par un balcon ou une terrasse, et quelques maisons 4 pièces avec jardin privatif. Vous profiterez également d’une halle commerçante et de nombreux espaces verts paysagers et qualitatifs. Les lignes de bus situées à seulement 250 mètres de la résidence vous mèneront en 5 minutes à la gare de rambouillet (transilien n). Vous pourrez ainsi rejoindre paris montparnasse en 33 minutes. Votre quotidien sera également facilité par la proximité immédiate du centre commercial de la giroderie, des équipements scolaires, publics et sportifs. Ne manquez pas cette opportunité unique de vivre dans un cadre exceptionnel ! Contacter dès maintenant l’un de nos commerciaux et obtenir plus d’informations. Sur vinci-immobilier. Com ou au 0 800 124 124 (appel et service gratuits). Les informations sur les risques auxquels ce bien est exposé sont disponibles sur le site géorisques : .
NOUVEAU : Découvrez notre résidence à NEAUPHLE-LE-CHATEAU Dominant la très chic campagne yvelinoise, nous vous proposons une nouvelle adresse de qualité, située dans le coeur de Neauphle-le-Château, face à l'église du village. Véritable témoin de l'histoire locale, cette charmante commune séduit par son ambiance paisible et son cadre de vie privilégié. À seulement 20 km de Versailles et à 15 minutes de Plaisir, Neauphle-le-Château conjugue harmonieusement patrimoine, nature et qualité de vie. Ses ruelles pittoresques, son marché de village, ses commerces de proximité et son école maternelle et primaire publique en font un lieu prisé des familles en quête d'un cadre de vie paisible. Idéale pour les actifs, la gare de Villiers-Neauphle-Pontchartrain, accessible en quelques minutes en voiture ou en bus, permet de rejoindre la gare de Paris-Montparnasse en seulement 33 minutes. Pour les automobilistes, les accès routiers sont optimisés avec la N12, qui mène directement à l'A12 et à l'A13, ou encore l'A86, permettant de rejoindre Paris et les principales villes de la région. Ce nouveau coeur de village se compose d'appartements allant du 2 au 4 pièces ainsi que de maisons de 4 et 5 pièces, idéales pour les familles en quête d'espace et de confort. Certains appartements bénéficient de vues dégagées sur la plaine, offrant une luminosité optimale et une ambiance sereine. Les matériaux de qualité, biosourcés, la conception moderne alliée à une architecture soignée et la fonctionnalité de chaque bien assurent un cadre de vie agréable et contemporain. Des places de parking en sous-sol sont attribuées à tous les logements. Bien plus qu'une simple adresse, c'est un véritable lieu de vie où chaque instant prend une saveur particulière. Entre l'authenticité de son centre-bourg, ses espaces verts et son accès direct à Paris, cette nouvelle adresse résidentielle représente une occasion rare de s'installer dans un environnement privilégié, tout en restant connecté aux essentiels et à toutes les grandes enseignes du parc commercial de Plaisir. Contactez vite un de nos conseillers pour choisir votre maison ou votre appartement neuf à Neauphle-le-Château ! Les informations sur les risques auxquels ce bien est exposé sont disponibles sur le site Géorisques : .