
Gestion locative en 2026 : faut-il encore passer par une agence ?
En 2026, la gestion locative n’est plus une simple question de confort. Elle conditionne la performance, la sécurité et la pérennité de l’investissement immobilier.
1 résultats
Venez visiter ce charmant appartement disponible en location à la roche sur foron. Ce bien vous offre une entrée, une cuisine séparé aménagée, un salon / séjour donnant sur le balcon, une chambre avec placard, une salle de bain et des wc séparés. Un garage en sous sol complète ce bien. Chauffage individuel gaz. Disponible de suite. Premier contact uniquement par message via l'annonce.
Autres annonces à proximité de La Roche-sur-Foron (74800) avec vos critères
St pierre dans residence recente bbc spacieux et lumineux t2 - terrasse 11 m² plein sud - cuisine equipée - 1chambre - 1 garage - chauffage et eau chaude dans les charges copropriété de 70 lots - dont 36 lots habitation. (pas de procédure en cours). Charges annuelles : 1200.00 euros.
Dans petite résidence de 3 logements Au calme T2 neuf meuble - cuisine équipé - 1 chambre - séjours cuisine - jardin privatif - terrasse - cave.
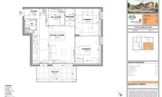
Venez découvrir ce charmant t3 en location à saint pierre en faucigny, situé dans une petite résidence calme. Cet appartement vous offre une entrée, une cuisine équipée ouverte sur salon / séjour et donnant sur la terrasse, 2 chambres et une salle de bain. 2 emplacements de stationnement privatif en extérieur viennent compléter ce bien. Disponible à partir du 21 février premier contact par message via l'annonce.

Recevez en temps réel les dernières annonces correspondant à votre recherche
Saint pierre ~dans résidence récente bbc de standing expo sud pour ce spacieux et lumineux t3 - terrasse 13 m² donnant sur le parc de la résidence - cuisine équipée - 2 chambres - garage - chauffage et eau chaude dans les charges - copropriété de 120 lots - dont 35 lots habitation. (pas de procédure en cours). Charges annuelles : 1500.00 euros.
Situé dans un environnement calme et verdoyant, cet appartement meublé de type 1 bis offre un cadre de vie agréable, à proximité de la nature tout en restant facilement accessible. Il se compose d'une entrée, d'une cuisine équipée, d'un salon-séjour lumineux, d'une salle de douche ainsi que d'un wc séparé. À l'étage, vous trouverez une chambre confortable. L'appartement bénéficie d'une belle luminosité grâce à ses ouvertures et d'une atmosphère chaleureuse. Une place de stationnement privative complète ce bien. Environnement paisible, parfait pour une personne seule ou un couple recherchant le calme tout en restant proche des commodités. Bail meublé loyer : 800€ + 120€ de provision pour charges soit 920€ / mois les provisions de charges comprennent : eau froide, électricité, wifi. Chauffage électrique honoraire agence : 495€ disponible immédiatement – à visiter sans tarder ! 1er contact uniquement par message via l'annonce, en retour vous recevrez une proposition de visite collective ainsi que les criteres de selection demandés.
Location Bonneville libre immédiatement. Entre particuliers appartement à louer de 47 m². Cette location T2 possède 1 chambre et est proposée à 800 euros charges incluses. Ce propriétaire utilise LocService pour sélectionner ses futurs locataires. Pour proposer directement votre candidature pour ce logement ET toutes les locations conformes à votre recherche, il suffit de vous inscrire sur LocService. Les propriétaires vous contactent directement et les locations sont certifiées sans frais d'agence. Comment ça marche ? 1/ Vous décrivez votre location idéale sur LocService 2 / Votre candidature est transmise aux propriétaires concernés 3 / Les propriétaires vous contactent directement. Vous réglez une seule fois 34 euros (29 euros pour les étudiants) pour toute la durée de votre recherche. Sans abonnement - Sans prélèvement - Sans commission. Depuis sa création en 2005, LocService a accompagné plus de 2,9 millions de particuliers. Pourquoi pas vous ?
REIGNIER - A louer, appartement 2 pièces en Duplex Meublé. Situé au dernier étage d'un petit immeuble de campagne, ce charmant appartement se compose d'une belle et vaste pièce de vie avec une cuisine moderne toute équipée, ouverte sur le séjour d'une surface totale de 30 m² au sol, une salle de douche avec WC, une chambre de 13 m², à l'étage, sous les toits, une mezzanine, de 12,84 m² au sol, permettant un petit coin lecture cocooning, un petit coin bureau, ou une chambre d'ami par exemple. Une cave est également disponible. L'appartement se situe à 15 minutes de l'accès autoroutier d'Etrembières, à 3 minutes en voiture de la gare de Reignier et à environs 35 minutes du centre de Genève. Disponible immédiatement (Ref : 38236) Afin de pouvoir étudier votre demande au plus vite, nous vous invitons à constituer dès à présent votre dossier de location et à nous l'envoyer à l'adresse-mail location@bouvet-cartier.immo Vous trouverez la liste des pièces à fournir en suivant ce lien : Loyer mensuel : 1085 € Provision pour charges mensuelle avec régularisation annuelle (incluant charges générales) : 25 € Soit un quittancement total de 1110 € Surface : 43,96 m² Dépôt de garantie : 2170 € Honoraires totaux charge locataire : 571,48 € (dont honoraires de réalisation d'état des lieux : 131,88 €) Consultez nos tarifs sur Les informations sur les risques auxquels ce bien est exposé sont disponibles sur le site Géorisques : .
Appartement de 74 m² à louer sur Contamine-sur-Arve Situé à 2 km du CHAL, proche entrée autoroute A40. Appartement au rez-de-chaussée avec balcon, dans maison de campagne. Chauffage au gaz. Cuisine équipée (four, lave-vaisselle, plaque gaz, hotte aspirante, réfrigérateur) Salle de bain avec rangement, douche, double vasque, toilette séparé Salon / Salle à manger avec cheminée décorative Deux chambres 2 places de parking Local rangement (en partage avec le propriétaire) Loyer 1300€ toutes charges comprises. Reste à charge du locataire : bouteille de gaz pour cuisine, téléphonie, internet. Chercher un logement, c'est l'enfer, alors on a créé 123 Loger pour vous simplifier la vie. Combien ça coûte ? Vous réglez le pass de 34 euros (29 euros pour les étudiants). Le pass est mensuel, votre profil reste actif tant que vous restez abonné-e. Sans engagement, vous pouvez vous désabonner très facilement. Nous offrons une garantie satisfait-e ou remboursé-e pendant 3 mois. Comment ça marche ? Sur 123 Loger, ce sont les propriétaires qui contactent les locataires et ça change tout. 1- Vous définissez vos critères : villes, surface, budget, etc 2- Vous décrivez votre profil locataire : CDI, étudiant, indépendant, revenus, garant, etc… Une fois pour toute ! 3- Les propriétaires consultent votre profil et vous contactent directement. À bientôt sur 123 Loger.
À 15 min de la douane de Croix de Rozon, 30 min du centre de Genève et de l'aéroport, sur le Salève au col de la Croisette 74560 La Muraz, au pied des pistes de ski de fond et des sentiers raquettes et piétons, bel appartement dans un corps de ferme, offrant un panorama exceptionnel sur le Mont-Blanc. Facile d'accès depuis Monnetier-Mornex ou Collonges sous Salève. Appartement triplex de 7 pièces en rez de jardin, location meublée offrant une cuisine entièrement équipée, une pièce de vie avec cheminée double foyer, une salle de douches hammam, un Wc indépendant, au 1er étage un deuxième salon avec balcon, au 2ème étage une chambre double, une chambre avec sa salle de douches et son poêle à bois donnant accès à une mezzanine offrant deux espaces couchage et une salle de bains ouverte. Garage, caves et buanderie. Chauffage au sol au rez. Loyer hors charges 2 545.40 EUR, pas de provisions de charges. Dépôt de garantie 5 090 EUR. Honoraires d'agence charge locataire 1 667.24EUR. Les informations sur les risques auxquels ce bien est exposé sont disponibles sur le site Géorisques : .
À louer, appartement t2 meublé situé à allonzier-la-caille, sur l'axe annecy / genève, à proximité immédiate de l'échangeur autoroutier. Cet appartement en très bon état offre une cuisine entièrement équipée, une salle de douche moderne et fonctionnelle. Situé dans une petite copropriété récente, cet appartement dispose également d'une place de parking privative. Bail meublé disponible à partir du 10 / 03 / 2026 loyer : 680€ + 20€ de provision pour charges soit 700€ / mois honoraire agence : 319€ 1er contact uniquement par message via l'annonce, en retour vous recevrez une proposition de visite collective ainsi que les criteres de selection demandés.
VETRAZ-MONTHOUX, à louer appartement 3 pièces de 66 m² en Rez de jardin, dans une copropriété de 2021, à proximité de l'école et des petits commerces de proximité. L'appartement se compose d'une entrée avec placards, d'une cuisine équipée ouverte sur le séjour et donnant sur un bel extérieur avec terrasse et jardin exposé plein sud. Deux chambres dont une avec placard, une salle de bains et un WC séparé. Une cave et un garage double en longueur complètent ce bien. Disponible début janvier 2026 Ref : 38508 Afin de pouvoir étudier votre demande au plus vite, nous vous invitons à constituer dès à présent votre dossier de location et à nous l'envoyer à l'adresse-mail location@bouvet-cartier.immo Vous trouverez la liste des pièces à fournir en suivant ce lien : Loyer mensuel : 1840 € Provision pour charges mensuelle avec régularisation annuelle (incluant charges générales, chauffage, eau chaude et eau froide, entretien des espaces verts) : 260 € Soit un quittancement total de 2100 € Taxe d'ordures ménagères facturée une fois par année : xxx€ (Base année : xxxx) Surface : 66,66 m² Dépôt de garantie : 1840 € Honoraires totaux charge locataire : 866,58 € (dont honoraires de réalisation d'état des lieux : 199,98 €) Consultez nos tarifs sur Les informations sur les risques auxquels ce bien est exposé sont disponibles sur le site Géorisques : .
Archamps loft 80 m² Comprenant entrée, une chambre, un salon, un coin bibliothèque, une salle de bains douche, balcon. Accès par un ascenseur, 1 place de parking. Genève : 10 min (en voiture) Technopole d'Archamps Crèche : 5 min (en voiture) École maternelle et élémentaire publique École Montessori Collège et Lycée de Saint-Julien-en-Genevois 10 min (en voiture) Vitam Parc : 7 minutes (en voiture) École de musique Cinéma Pathé Imax 4 min (en voiture) Le Grand Parc d'Andilly 7 minutes (en voiture) Boulangerie : 450 m Marché alimentaire du jeudi En vélo électrique Genève à 26 minutes Autoroute A40. à 2 minutes Aéroport international de Genève Cointrin à 19 km. Honoraires de 1 100 € TTC à la charge du locataire. Loyer de base 1600 € / mois. 250 € / mois de charges forfaitaires. Dépôt de garantie 1 850 €. Classe énergie C, Classe climat A Montant moyen estimé des dépenses annuelles d'énergie pour un usage standard, établi à partir des prix de l'énergie de l'année 2022 : entre 350.00 et 450.00 €. Les informations sur les risques auxquels ce bien est exposé sont disponibles sur le site Géorisques : georisques. gouv. fr.
Archamps, à louer appartement meublé libre immédiatement. Cette location T2 possède 1 chambre. Loyer demandé de particulier à particulier : 1.450 euros. Avantages du logement : - Stationnement - Grand séjour - Cuisine équipée - Cuisine indépendante - Balcon - Transport - Cave Ce propriétaire utilise LocService pour sélectionner ses futurs locataires. Pour proposer directement votre candidature pour ce logement ET toutes les locations conformes à votre recherche, il suffit de vous inscrire sur LocService. Les propriétaires vous contactent directement et les locations sont certifiées sans frais d'agence. Comment ça marche ? 1/ Vous décrivez votre location idéale sur LocService 2 / Votre candidature est transmise aux propriétaires concernés 3 / Les propriétaires vous contactent directement. Vous réglez une seule fois 34 euros (29 euros pour les étudiants) pour toute la durée de votre recherche. Sans abonnement - Sans prélèvement - Sans commission. Depuis sa création en 2005, LocService a accompagné plus de 2,9 millions de particuliers. Pourquoi pas vous ?
AU DERNIER ÉTAGE Venez découvrir cet appartement meublé de 2 pièces de 69 m² dont 44,83 m² Carrez. Il bénéficie d'une exposition sud-ouest. Il est situé au 3e et dernier étage d'un petit immeuble de bon standing. L'appartement offre une chambre, une cuisine américaine équipée, une salle de bains et des toilettes. Le chauffage est individuel. L'appartement est en bon état général. Un jardin collectif et un balcon l'agrémentent, un gain d'espace et de confort appréciable. Inclus : Cave et place de parking extérieure. Disponible à partir du 05 mars.
Vétraz monthoux (74100) au rez-de-chaussée appartement t2 meublé de 70 m², comprenant hall d'entrée, un grand séjour et cuisine, une grande chambre avec placard, salle de bains avec baignoire, place de parking privatif. Proximité immédiate des transports en commun, centre ville, centres commerciaux. Proche d'annemasse, ville la grand, ambilly, gaillard, mornex, monnetier, cranves sales, etrembières, bonne, et à dix minutes de la frontière suisse. Loyer : 1250 € * pour visiter et vous accompagner dans votre projet, contactez richard chantelly 07 49 43 05 22 selon l'article l. 561.5 du code monétaire et financier, pour l'organisation de la visite, la présentation d'une pièce d'identité vous sera demandée. Les informations sur les risques auxquels ce bien est exposé sont disponibles sur le site géorisques : cette présente annonce a été rédigée sous la responsabilité éditoriale de richard chantelly agissant sous le statut d'agent commercial immatriculé au ville du greffe : thonon-les-bains sous le numéro rsac n° 808 981 898 auprès de la sas immo reseau au capital de 10 000€ - réseau national immobilier sur internet, 44 allée des cinq continents - 44120 vertou - rne nantes 519 718 886. Carte professionnelle t et g n° cpi 3002 2018 000 024 971 cci de nantes-saint-nazaire (44) ; garantie par galian 89 rue de la boétie - 75008 paris n°171379g pour 120 000€ pour t. Assurance responsabilité civile professionnelle par galian n° de police 120 137 405 (réf. 36587) - le professionnel garantit et sécurise votre projet immobilier loyer : 1250 € * .
Vetraz Monthoux appartement T4 de 90 m² dans une petite copropriété de quatre appartements au calme. Situé au 1er étage, comprenant hall d'entrée, une belle pièce de vie, une cuisine équipée ouverte, trois chambres, une salle de bains avec baignoire, un wc séparé. À disposition 2 places de parking extérieures. Proximité immédiate des transports en commun, centre ville, centres commerciaux et activités. écoles primaires et maternelle, collèges et lycées Proche d'Annemasse, Ville la grand, Ambilly, Gaillard, Monnetier-Mornex Cranves sales, Etrembières, Bonne, et à dix minutes de la frontière Suisse. Honoraires de 1 170 € TTC à la charge du locataire. Loyer de base 1700 € / mois. 100 € / mois de charges forfaitaires. Dépôt de garantie 1 800 €. Classe énergie C, Classe climat A Montant moyen estimé des dépenses annuelles d'énergie pour un usage standard, établi à partir des prix de l'énergie de l'année 2024 : entre 980.00 et 1280.00 €. Les informations sur les risques auxquels ce bien est exposé sont disponibles sur le site Géorisques : georisques. gouv. fr.
Vetraz Monthoux (74100) au rez-de-chaussée appartement T2 meublé de 70 m² avec jardin, comprenant hall d'entrée, un grand séjour et cuisine, une grande chambre avec placard, salle de bains avec baignoire, place de parking privatif. Proximité immédiate des transports en commun, centre ville, centres commerciaux. Proche d'Annemasse, Ville la grand, Ambilly, Gaillard, Mornex, Monnetier, Cranves sales, Etrembières, Bonne, et à dix minutes de la frontière Suisse. Honoraires de 910 € TTC à la charge du locataire. Loyer de base 1250 € / mois. Dépôt de garantie 1 500 €. Classe énergie C, Classe climat A Montant moyen estimé des dépenses annuelles d'énergie pour un usage standard, établi à partir des prix de l'énergie de l'année 2024 : entre 550.00 et 750.00 €. Les informations sur les risques auxquels ce bien est exposé sont disponibles sur le site Géorisques : georisques. gouv. fr.
Dans une résidence récente de 2015 avec ascenseur, situé au 2ᵉ étage, ce bel appartement T2 meublé offre confort et modernité. Il se compose : d'une entrée avec placard, d'une cuisine équipée ouverte sur une agréable pièce de vie, d'une terrasse exposée ouest, idéale pour profiter de la lumière naturelle, d'un hall desservant un WC indépendant, une chambre avec placard intégré, et d'une salle de bains. Un garage en sous-sol et une place de stationnement privative en extérieur complète ce bien. Loyer mensuel charges comprises : 1'520€ (dont 80€ de provision de charges : chauffage et charges communes générales) Dépôt de garantie : 2'880€ Honoraires à la charge du locataire : 579,67€ TTC (dont 133,77€ pour l'état des lieux d'entrée).
Mont-saxonnex : a louer, très beau t2 meublé de 25 m² aux pieds des pistes de ski, refait à neuf, comprenant une grande entrée avec rangements, une chambre avec grand lit, une sdb, wc séparé, une belle pièce de vie, lumineuse avec coin cuisine équipée et aménagée avec accès belle terrasse bien exposée. 1 casier à ski. Dans une copropriété de 4 immeubles et de 186 lots au pied des pistes. À visiter ! Libre rapidement loyer mensuel : 505€cc (dont 70€ de charges : eau froide + tom + charges de copropriété) dépôt de garantie : 870€ honoraires edl + bail : 11 euros / m² charge locataire mafalda immobilier 04 50 53 50 38.
Mont-saxonnex : a louer, studio meublé de 18.48 m², composé d'une entrée avec lits superposés, une pièce de vie avec coin cuisine (micro-ondes, plaques de cuisson, frigo, lave-linge) et accès balcon, une sdb et un wc séparé. Le bien dispose d'un casier à ski et d'un parking commun à la résidence, composée de 106 lots au total. Disponible de suite. Loyer : 360€ cc / mois (50€ : eau froide + tom + charge de copro) dépôt de garantie : 700€ honoraires d'agence charge locataire : 11€ / m² 04 50 53 50 38.
Bien disponible à partir du 16 / 02 / 2026. Très bel appartement neuf et lumineux, situé en rez-de-chaussée, d'une superficie de 73,79 m². Il se compose d'une entrée avec placard, de WC séparés, d'une salle de bains, d'une chambre avec placard donnant accès à une terrasse, ainsi que d'une cuisine ouverte sur le séjour, ouvrant sur une spacieuse terrasse de 70 m². Loyer mensuel : 1 330 € Provision pour charges : 100 € / mois Dépôt de garantie : 2 660 € Honoraires TTC à la charge du locataire : 959,27 €, dont 221,37 € pour l'état des lieux. Chauffage électrique individuel Eau chaude individuelle.
VETRAZ MONTHOUX, dans une copropriété agréable, un appartement de deux pièces meublé à louer. Composé d'une belle pièce de vie lumineuse avec cuisine entièrement équipée donnant sur un balcon de plus de 10 m² exposé Ouest, d'une chambre avec rangement intégré et d'une salle de bain. Une place de parking privé en sous-sol complète la location. Disponible immédiatement Ref. 45532 Afin de pouvoir étudier votre demande au plus vite, nous vous invitons à constituer dès à présent votre dossier de location et à nous l'envoyer à l'adresse-mail location@bouvet-cartier.immo Vous trouverez la liste des pièces à fournir en suivant ce lien : Loyer mensuel : 1160€ Provision pour charges mensuelle avec régularisation annuelle (incluant charges générales, eau froide) : 70€ Soit un quittancement total de 1230€ Taxe d'ordures ménagères facturée une fois par année : 137€ (Base année : 2025) Surface : 44.45 m² Dépôt de garantie : 2320€ Honoraires totaux charge locataire : 577.85€ (dont honoraires de réalisation d'état des lieux : 133.35€) Consultez nos tarifs sur / Honoraires Les informations sur les risques auxquels ce bien est exposé sont disponibles sur le site Géorisques : .
CRANVES SALES, Route des Picolettes, bel appartement 3 pièces se composant d'une entrée, d'un séjour-cuisine (équipée), ouvrant sur une belle terrasse de 13 m². Une chambre parentale de 14.42 m² ouvert sur balcon avec grand placard et une seconde chambre avec rangements. Une salle de douche et un WC indépendant. Un garage, une place de parking privative et une cave viennent compléter cette location. Situé non loin du collèges de Cranves Sales, et à 10 minutes à pieds du centre village et des commerces de proximités. À environ 10 minutes en voiture de l'autoroute en direction de Genève. Disponible immédiatement Ref. 45515 Afin de pouvoir étudier votre demande au plus vite, nous vous invitons à constituer dès à présent votre dossier de location et à nous l'envoyer à l'adresse-mail location@bouvet-cartier.immo Vous trouverez la liste des pièces à fournir en suivant ce lien : Loyer mensuel : 1500 € Provision pour charges mensuelle avec régularisation annuelle (incluant charges de copropriété) : 110 € Soit un quittancement total de 1610 € Surface : 72 m² Dépôt de garantie : 3000 € Honoraires totaux charge locataire : 769.38 € (dont honoraires de réalisation d'état des lieux : 177.55 €) Consultez nos tarifs sur / Honoraires Les informations sur les risques auxquels ce bien est exposé sont disponibles sur le site Géorisques : .
Appartement de 50 m² à louer sur Cranves-Sales. Plein centre de Cranves-Sales. Suite parentale avec salle de bain composée d'une douche et d'une baignoire balnéo. Placard encastrés dans la chambre. Un petit balcon et un deuxième très grand vue Mont Blanc. Grande mezzanine avec une petite pièce dressing. Chauffage au sol. Ascenseur dans la résidence, garage porte électrique 2 places et cave. Chercher un logement, c'est l'enfer, alors on a créé 123 Loger pour vous simplifier la vie. Combien ça coûte ? Vous réglez le pass de 34 euros (29 euros pour les étudiants). Le pass est mensuel, votre profil reste actif tant que vous restez abonné-e. Sans engagement, vous pouvez vous désabonner très facilement. Nous offrons une garantie satisfait-e ou remboursé-e pendant 3 mois. Comment ça marche ? Sur 123 Loger, ce sont les propriétaires qui contactent les locataires et ça change tout. 1- Vous définissez vos critères : villes, surface, budget, etc 2- Vous décrivez votre profil locataire : CDI, étudiant, indépendant, revenus, garant, etc… Une fois pour toute ! 3- Les propriétaires consultent votre profil et vous contactent directement. À bientôt sur 123 Loger.

En 2026, la gestion locative n’est plus une simple question de confort. Elle conditionne la performance, la sécurité et la pérennité de l’investissement immobilier.

Le marché immobilier démarre 2026 dans une ambiance inédite. Ni effondrement, ni reprise franche, mais une transformation silencieuse des comportements. Acheteurs plus prudents, vendeurs contraints de s’adapter, crédit plus sélectif : ce début d’année marque un tournant discret mais décisif pour l’immobilier en France.

Prix au m², taux de crédit, régions en hausse, villes en correction et impact du DPE : le baromètre immobilier Lesiteimmo décrypte le marché français en décembre 2025.