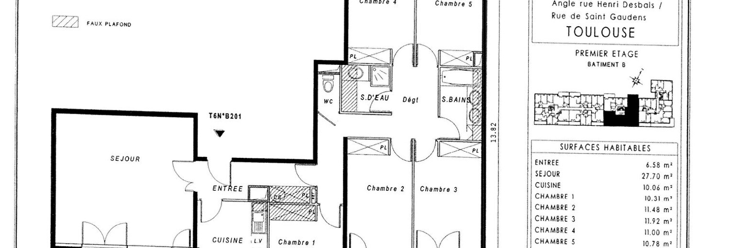
Toulouse 31100 métro mermoz à 1 min à pied, sans frais d'agence, location réservée aux salariés. Éligibilité calculée en fonction des ressources ainsi que de la composition familiale. Agréable et spacieux t6 récent (2011) traversant / double exposition de 120.25 m² situé en 1er étage sans ascenseur, 2 terrasses de 13 m², un garage. Commerces à deux pas (boulangerie, presse, boucherie, primeur etc. ) tramway à 2 stations de métro soit 3 minutes en métro des arènes. Sortie rocade numéro 26. Logement exposé sud est (vue sur rue côté séjour, cuisine et 3 chambres) ainsi que nord ouest concernant deux chambres. Une terrasse exposée sud est ainsi qu'une terrasse exposé nord ouest donnant à l'arrière de la résidence. L'appartement est carrelé et comprend; une entrée de 6.58 m² avec placard de rangement, un grand séjour de 27.70 m² avec porte fenêtre donnant accès à une première terrasse de 13 m², une cuisine séparée fermée de 10.06 m² non équipée, une partie privative / dégagement de 10.76 m² avec placard coulissant de rangement menant à une 1ère chambre de 10.31 m² avec placard coulissant aménagé, une seconde chambre de 11.48 m² avec placard coulissant de rangement, une troisième chambres de 11.92 m² avec placard coulissant de rangement aménagé, une quatrième chambre de 11 m² avec placard coulissant aménagé avec accès à la seconde terrasse de 13. M² donnant à l'arrière de la résidence, une cinquième chambre de 10.78 m² avec accès à la seconde terrasse de 13. M², un wc indépendant de 1.31 m², une salle de bains 4.79 m² avec meuble double vasque luminaire avec rangement, sèche serviette, une baignoire ainsi qu'une arrivée d'eau pour la machine à laver. Une salle d'eau de 3.56 m² comprenant un meuble vasque luminaire avec rangement, une cabine de douche ainsi qu'un sèche serviette. Chauffage individuel électrique radiant. Fibre optique. Les colocations etudiantes ne sont pas possible, logement reserve au salaries du secteur prive avec famille. Loyer : 1017.62 + 212 de charges soit 1229.62 charges comprises. Les charges comprennent l'eau froide, les ordures ménagères ainsi que les parties communes) logement situé au 159 rue henri desbals 31100 toulouse. Nestenn by solvimo toulouse rangueil nous contacter 06 67 18 10 14 envoi sms ou mail en indiquant t6 mermoz afin de recevoir le questionnaire d'éligibilité nous écrire : toulouse-rangueil@nestenn.com.
Les informations sur les risques auxquels ce bien est exposé sont disponibles sur le site Géorisques : www.georisques.gouv.fr
Mise en ligne:
Dernière mise à jour:
Référence de l'annonce: 5679Appartement t 4 toulouse bourrasol pour plus de renseignement, n'hésitez pas joindre le service location au o7.83. 78.60. 14 soit sms ou par mail contact@belotti-immobilier.fr appartement de type 4 au 7 ème étage 35 rue paul decamps 31300 toulouse quartier bourrasol. Comprend une entrée, une cuisine (plaques, hotte), un séjour, 3 chambres dont une avec placard, salle de douche, un cellier et un wc séparé. Une cave + un garage proche toutes commodités (tramway, métro, bus. ). Libre tout de suite ! À visiter ! Loyer mensuel 1000.00 euros + 136.00 euros de provisions sur charges comprenant la taxe d'ordure ménagère, charges copropriété, eau et le chauffage soit 1136.00 euros cc. 660.24 euros ttc d'honoraires à la charge du locataire au titre des honoraires de visites, de constitution de dossier, de rédaction du bail, ainsi que 146.72 euros ttc pour l'état des lieux d'entrée. Total : 806.96 euros les informations sur les risques auxquels ce bien est exposé sont disponibles sur le site géorisques : .

Saint cyprien - saint cyprien / rue de cugnaux : au premier étage d'un immeuble sécurisé, appartement t4 comprenant entrée avec placard, grand séjour donnant sur balcon, cuisine ouverte équipée, deux chambres avec placards, bureau, salle de bains et wc séparé. Climatisation. Parking en sous-sol et cave. Patrim : 05 61 99 08 08. Loyer de 995,00 euros par mois charges comprises dont 110,00 euros par mois de provision pour charges (soumis à la régularisation annuelle). Les honoraires charge locataire sont de 800,00 euros (soit 10,22 euros / m²) dont 227,25 euros pour état des lieux (soit 2,90 euros / m² ). Les informations sur les risques auxquels ce bien est exposé sont disponibles sur le site géorisques : .
À louer : Compans APPARTEMENT NON MEUBLE Magnifique appartement d'une surface de 42 m² en loi Carrez, cet appartement T2 très lumineux au 1er étage avec ascenseur dispose d'une terrasse d'environ 20 m² ainsi que d'une place de parking. Ce dernier est composé : d'une entrée avec placard, d'une grande chambre séparée d'environ 13 m² avec placard, d'une salle de bain avec sèche serviettes, baignoire et wc, d'une cuisine ouverte sur le salon et d'une très grande terrasse. Côté équipements, l'appartement dispose de volets électriques, d'un système d'alarme (pilotable via un système de DOMOTIC ), d'un réfrigérateur, de plaques vitro 4 feux, d'une hotte, d'un lave-linge A seulement 10 minutes à pied du métro ligne B station Compans Caffarelli et 20 minutes à pied de la place du Capitole l'immeuble est idéalement situé et à proximité immédiate de toutes commodités : rocade, lignes de bus (L1 + 63), station vélib, commerces, restaurants, navette aéroport etc. Vous pourrez également profiter du cadre arboré du jardin Japonais Pierre Baudis ainsi que du canal de Brienne pour vos promenades en famille ou activités sportives. Vous trouverez à proximité de la résidence de nombreux établissements scolaires et crèches (TBS, UT1, crèche Compans Caffarelli etc). Disponible à compter du 06 / 03 / 2026 Loyer hors charges : 831€ / mois Provisions sur charges : 76€ / mois Taxe d'ordures ménagères : 10€ / mois Frais d'agence : 13€ / m² soit 795.47€ Dépôt de garantie : 831€ Les informations sur les risques auxquels ce bien est exposé sont disponibles sur le site Géorisques : .
À louer 31100 toulouse, boulevard de larramet. Appartement meublé de type t4 de 71 m² au dernier étage avec une magnifique vue sur toulouse. Cuisine aménagée et équipée ouverte sur la pièce de vie, trois chambres, salle de bains, wc séparé, balcon, parking collectif, proche commerces et transports. Homekare : vente - location - gestion - syndic.
À louer 31100 toulouse, boulevard de larramet. Appartement meublé de type t4 de 71 m² au dernier étage avec une magnifique vue sur toulouse. Cuisine aménagée et équipée ouverte sur la pièce de vie, trois chambres, salle de bains, wc séparé, balcon, parking collectif, proche commerces et transports honoraires de 923 € ttc à la charge du locataire comprenant 213 € ttc pour l'état des lieux. Loyer de base 1100 € / mois. Provision sur charges 80 € / mois, régularisation annuelle. Dépôt de garantie 1 100 €. Classe énergie d, classe climat d montant estimé des dépenses annuelles d'énergie pour un usage standard : entre 1519.00 € et 2055.00 € sur les années 2021,2022 et 2023 (abonnements compris). Les informations sur les risques auxquels ce bien est exposé sont disponibles sur le site géorisques : georisques. Gouv. Fr. Homekare : vente - location - gestion - syndic.
France proprio vous propose : à louer en hypercentre de toulouse, quartier matabiau t3 meuble et renove appartement t3 meublé de 72 m², il se compose d'une cuisine américaine aménagée et équipée (frigo, four, plaques à induction et hotte aspirante, lave vaisselle), lave linge. Grand séjour lumineux, 2 chambres avec grands placards et d'une belle salle d'eau. De plus le logement possède une terrasse. Appt coup de coeur a visiter rapidement ! Disponible de suite ! Loyer : 1280 dont 80.00 de charges caution : 2340 honoraires locataires : 936.00 (comprenant 216 pour la réalisation de l'état des lieux). Référence annonce : l5763 france proprio 05 61 62 62 23 réseaux de conseillers immobilier partout en france. Transaction / location / gestion constituez votre dossier sur .