Logo LSI sombre

Appartement 3 Pièces 67 m² à louer à Rillieux-la-Pape (69140)
Photo N° 2
2

Location appartement 3 pièces 67 m² à Rillieux-la-Pape (69140)

909 € CC /mois

T3 de 67 m² à Rillieux-la-Pape à partir de 913,01

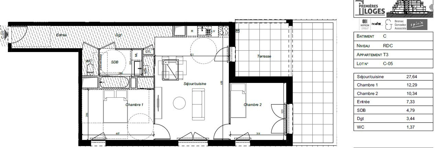
Au coeur de la dynamique commune de Rillieux-la-Pape, cette résidence neuve bénéficie d'un emplacement privilégié, à proximité immédiate des commerces, des écoles et des transports en commun. Lyon est facilement accessible grâce aux lignes de bus et aux principaux axes routiers. Lyon Métropole Habitat vous propose à la location des appartements modernes et lumineux, pensés pour votre confort quotidien, dans un environnement agréable et animé. Ce T3 de 67,2 m² situé en rez-de-chaussée offre des volumes confortables et une belle luminosité. Il se compose d'un spacieux séjour de plus de 27 m² avec cuisine ouverte, prolongé par une terrasse de 28,46 m² idéale pour partager des moments conviviaux en famille. L'appartement se compose également de deux chambres, dont l'une dispose d'un accès direct à la terrasse, ainsi que d'une salle de bains et de WC séparés. Loyer mensuel : 913,01 euros charges comprises (chauffage collectif). Sans frais d'agence. Loyer sous réserve d'éligibilité. Conditions d'éligibilité : logement soumis au plafond de ressources PLS. Dépôt de garantie : 663 euros Charges : 249,97 euros / mois DPE en cours. Pour plus d'informations, contactez-nous au 04 72 69 01 69 ou par e-mail à location@lmhabitat.fr.

Caractéristiques

Les plus de cette annonce
  • Ensoleillé
Confort
  • Chauffage Collectif
Pièces
  • 3 pièces
  • 2 chambres
  • Salle de bain
  • Cuisine ouverte
Superficies
  • Surface habitable : 67 m²

Consommation énergétique et gaz à effet de serre

Bilan énergétique (DPE)
NC
Bilan gaz à effet de serre (GES)
NC

Géorisques

Les informations sur les risques auxquels ce bien est exposé sont disponibles sur le site Géorisques : www.georisques.gouv.fr

A propos du prix de cet appartement

  • Loyer : 909 € CC /mois
  • Dépôt de garantie : 663 €

À propos de cette annonce

Mise en ligne:

Dernière mise à jour:

Référence de l'annonce: 245
Lmh Lyon Metropole Habitat
Afficher le numéro

À voir pour le même budget

Appartement 3 pièces 850 €
850 €

Appartement 3 pièces 45 m²

Sathonay-Camp (69580)

[Description] Plusse vous propose ce bel appartement meublé de 45 m², idéalement situé au 31 boulevard Castellane à Sathonay-Camp, dans un environnement calme et résidentiel, à proximité immédiate des commodités. Ce logement offre un cadre de vie agréable, alliant confort et fonctionnalité. Soigneusement aménagé, il est prêt à accueillir ses futurs occupants dans les meilleures conditions. Vous serez séduit par : Un séjour lumineux, offrant un espace de vie convivial et agréable au quotidien Seux chambres confortables avec rangements, idéale pour un repos optimal Une cuisine équipée, fonctionnelle et bien agencée Une salle d'eau pratique et bien entretenue Un appartement meublé avec goût, permettant une installation immédiate Ascenseur : NON Disponible à partir du 23 avril 2026. [Transport] L'appartement bénéficie d'un accès pratique aux transports : -Arrêt de bus « Castellane » à environ 2 minutes à pied (150 m), desservi par les lignes permettant de rejoindre rapidement Caluire-et-Cuire et Lyon -Gare de Sathonay-Rillieux à environ 10 minutes à pied (800 m), permettant de rejoindre la Part-Dieu en environ 15 minutes Accès rapide aux axes routiers pour rejoindre Lyon en moins de 20 minutes [Loyer - Caution - frais] Honoraires à la charge du locataire : 585 € TTC dont 135 € pour les frais d'état des lieux et 450 € pour les frais de visites, constitution du dossier et rédaction du bail. Dépôt de garantie : 1 580 € Montant du loyer charges comprises : 850 € / mois comprenant : Montant des charges : 60 € / mois (provision pour charges) Charges incluses : entretien des parties communes, taxe d'enlèvement des ordures ménagères Loyer hors charges : 790 € / mois Charges non incluses : eau chaude et froide, électricité, internet, chauffage Montant du loyer de référence majoré = 0€ Montant du loyer de base = 0€ / mois Montant éventuel du complément de loyer : 0€ / mois [Performance énergétique] Classement du logement en matière de performance énergétique : E : de 230 à 330 – 306 kWhEP / m². an Classement du logement en matière d'émissions de gaz à effet de serre : B : de 6 à 10 – 9 kg éqCO2 / m². an Un appartement fonctionnel et bien situé, idéal pour profiter d'un cadre de vie paisible tout en restant proche de Lyon. Société PLUSSE SAS - Numéro SIRET : 84888128000053 - Numéro RCS Lyon B 848 881 280.

Appartement 3 pièces 840 €
840 €

Appartement 3 pièces 82 m²

Caluire-et-Cuire (69300)

Caluire crepieux - 99 route de strasbourg - appartement duplex t3 meublé 82 m² comprenant une pièce de vie avec cuisine us équipée, deux chambres, dégagement et une salle de bains avec wc disponible de suite. Honoraire de location : 1064,70 € - dépôt de garantie : 1600 €.

Appartement 2 pièces 870 €
870 €
+4 %

Appartement 2 pièces 45 m²

Collonges-au-Mont-d'Or (69660)

Location appartement T2 à Collonges-au-Mont-d'Or de 45 m². Cet appartement de particulier est à louer non meublé pour un loyer de 870 € disponible immédiatement Avantages du logement : - Stationnement possible - Balcon ou terrasse - Sans vis-à-vis - Grand séjour - Cuisine équipée - Proximité transport - Proximité commerce Ce propriétaire utilise LocService pour sélectionner ses futurs locataires. Pour proposer directement votre candidature pour ce logement ET toutes les locations conformes à votre recherche, il suffit de vous inscrire sur LocService. Les propriétaires vous contactent directement et les locations sont certifiées sans frais d'agence. Comment ça marche ? 1/ Vous décrivez votre location idéale sur LocService 2 / Votre candidature est transmise aux propriétaires concernés 3 / Les propriétaires vous contactent directement. Vous réglez 29,00 € / mois. Sans engagement - Sans commission. Depuis sa création en 2005, LocService a accompagné plus de 2,9 millions de particuliers. Pourquoi pas vous ?

Appartement  1073 €
1 073 €

Appartement 78 m²

Caluire-et-Cuire (69300)

CALUIRE 25 / 27 RUE ANDRE LASSAGNE Vous rêvez d'un appartement alliant charme, confort, et praticité, venez découvrir ce bel appartement avec vue dégagée, Type 3 situé au 5éme étage avec ascenseur dans une résidence sécurisée et bien entretenue. D'une surface de 78 m², cet appartement offre une belle luminosité et une atmosphère chaleureuse. Le logement comprend une entrée, un séjour donnant accès sur un balcon, cuisine meublée et équipée (four, hotte, plaque de cuisson), deux chambres dont une donnant sur le balcon, un cellier, une salle de bains, WC indépendant. Vous disposez également d'une cave et d'un garage fermé. Chauffage collectif Disponible immédiatement Loyer 902.40 € + 171 € charges des parties communes, chauffage, eau froide et eau chaude. DPE nouvelle version Prix moyen annuel des énergies indexés sur les années 2021,2022, 2023 : entre 1770 € et 2450 €. "Les informations sur les aux risques auxquels ce bien est exposé sont disponibles sur le site Géorisques : ".

Appartement 3 pièces 761 €
761 €

Appartement 3 pièces 77 m²

Vaulx-en-Velin (69120)

À louer -t3 de 77.09 m² a vaulx-en-velin, avenue georges rouge - découvrez ce superbe trois pièce au cœur de vaulx-en-velin, situé avenue georges rouge, à proximité des transports de l'agglomération lyonnaise. Cet appartement spacieux de 77.09 m² se compose d'un grand séjour lumineux, d'une cuisine simple, de deux chambres confortables ainsi que d'une salle de bain fonctionnelle. Rare sur le secteur, ce logement allie espace et praticité. Ne manquez pas cette opportunité : contactez nous dès maintenant pour organiser une visite et concrétiser votre projet de location. Loyer de 761,00 euros par mois charges comprises dont 61,00 euros par mois de provision pour charges (soumis à la régularisation annuelle). Les honoraires charge locataire sont de 1 002,17 euros (soit 13,00 euros / m²) dont 231,27 euros pour état des lieux (soit 3,00 euros / m² ). Montant estimé des dépenses annuelles d'énergie pour un usage standard : entre 1 470 et 2 020 euros. Prix moyens des énergies indexés en 2023. Les informations sur les risques auxquels ce bien est exposé sont disponibles sur le site géorisques : .

Appartement 2 pièces 736 €
736 €

Appartement 2 pièces 58 m²

Vaulx-en-Velin (69120)

T2 + balcon vaulx-en-velin * location bail 1 an maximum * disponible de suite ! Pour visiter, déposez au préalable votre dossier de candidature via le site internet de notre agence, rubrique 'location', 'mon dossier en ligne' plateforme zelok, option gratuite uniquement) visite virtuelle à 360° disponible. Rue maurice audin, idéalement situé dans le centre-ville, à proximité immédiate des commodités (commerces, bus 57,52, c3, c8) et des écoles supérieures : ensa, entpe. Venez découvrir ce lumineux et spacieux t2 de 58 m² situé au 4ème étage avec ascenseur et donnant au calme en intérieur de copropriété. Entièrement rénové, il se compose d'une entrée avec placard et cellier, un grand séjour et une cuisine indépendante donnant accès à un balcon de 4.80 m², une chambre de 13.75 m², une salle de bains et des wc séparés. Chaudière individuelle au gaz. Fenêtres double vitrage pvc.