Logo LSI sombre

Appartement 3 Pièces 74 m² à louer à Rillieux-la-Pape (69140)
Photo N° 2
2

Location appartement 3 pièces 74 m² à Rillieux-la-Pape (69140)

912 € CC /mois

T3 de 74 m² à Rillieux-la-Pape à partir de 912,88 CC

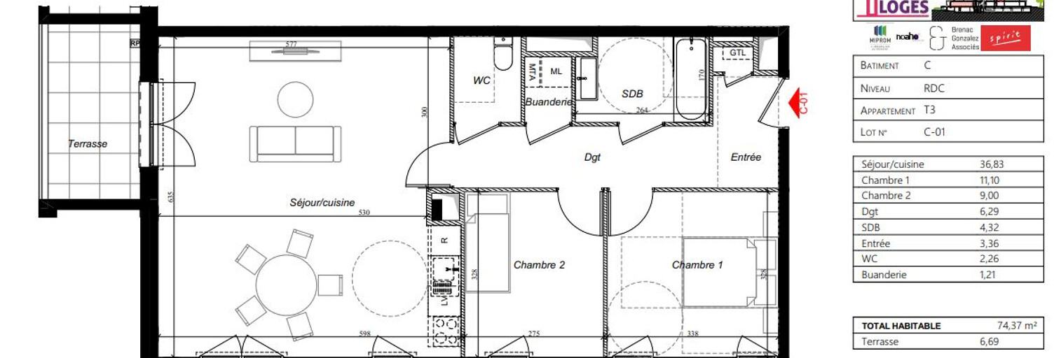
Au coeur de la dynamique commune de Rillieux-la-Pape, cette résidence neuve bénéficie d'un emplacement privilégié, à proximité immédiate des commerces, des écoles et des transports en commun. Lyon est facilement accessible grâce aux lignes de bus et aux principaux axes routiers. Lyon Métropole Habitat vous propose à la location des appartements modernes et lumineux, pensés pour votre confort quotidien, dans un environnement agréable et animé. Cet agréable T3 de 74,3 m², situé au rez-de-chaussée, bénéficie d'une belle luminosité et de volumes confortables. Il se compose d'un vaste séjour de plus de 36 m² avec cuisine ouverte, s'ouvrant sur une terrasse de 7 m², parfaite pour profiter de moments conviviaux en famille. L'espace nuit comprend deux chambres, une salle de bains, des WC séparés et une buanderie. Loyer mensuel : 912,88 euros charges comprises (chauffage collectif). Sans frais d'agence. Loyer sous réserve d'éligibilité. Conditions d'éligibilité : logement soumis au plafond de ressources PLS. Dépôt de garantie : 659 euros Charges : 252,94 euros / mois DPE en cours. Pour plus d'informations, contactez-nous au 04 72 69 01 69 ou par e-mail à location@lmhabitat.fr.

Caractéristiques

Les plus de cette annonce
  • Ensoleillé
  • Terrasse
Confort
  • Chauffage Collectif
Pièces
  • 3 pièces
  • 2 chambres
  • Salle de bain
  • Cuisine ouverte
Superficies
  • Surface habitable : 74 m²

Consommation énergétique et gaz à effet de serre

Bilan énergétique (DPE)
NC
Bilan gaz à effet de serre (GES)
NC

Géorisques

Les informations sur les risques auxquels ce bien est exposé sont disponibles sur le site Géorisques : www.georisques.gouv.fr

A propos du prix de cet appartement

  • Loyer : 912 € CC /mois
  • Dépôt de garantie : 659 €

À propos de cette annonce

Mise en ligne:

Dernière mise à jour:

Référence de l'annonce: 233
Lmh Lyon Metropole Habitat
Afficher le numéro

À voir pour le même budget

Appartement 3 pièces 793 €
793 €

Appartement 3 pièces 58 m²

Rillieux-la-Pape (69140)

Pinel - rillieux la pape est une commune du grand lyon, situé à moins de 10km de lyon. Cette commune est située entre caluire et vancia avec une proximité immédiate au parc de loisirs vanciaventure et le site naturel grand meribel-jonage, paradis pour la baignade et des échappées en vtt. La résidence at home, au 2609 route de strasbourg, est proche du quartier historique de perica-village rythmée par ses nombreux commerces. Venez découvrir cet appartement t3 de 58.67 m². Situé au 1er étage, il se compose d'une entrée avec placard, une pièce de vie de 26.26 m² avec cuisine meublée ouverte sur un balcon de 10.28 m² orientée nord, de deux chambres de 12.61 m² et 10.58 m² avec placard, une salle de bain et un wc séparé avec emplacement lave-linge. Chauffage individuel gaz. 1 garage en sous-sol "les informations sur les risques auxquels ce bien est exposé sont disponibles sur le site géorisques : ".

Appartement 3 pièces 840 €
840 €

Appartement 3 pièces 82 m²

Caluire-et-Cuire (69300)

Caluire crepieux - 99 route de strasbourg - appartement duplex t3 meublé 82 m² comprenant une pièce de vie avec cuisine us équipée, deux chambres, dégagement et une salle de bains avec wc disponible de suite. Honoraire de location : 1064,70 € - dépôt de garantie : 1600 €.

Appartement 3 pièces 870 €
870 €
-99 %

Appartement 3 pièces 71 m²

Miribel (01700)

À MIRIBEL, limitrophe NEYRON, au 2ème étage sans ascenseur, d'une copropriété fermée et sécurisée, un appartement de type T3 d'une surface d'environ 71,37 m², composé d'une entrée avec placard, une cuisine, une loggia, un séjour avec balcon, dégagement, 2 chambres dont une avec un placard mural, une salle de bains et un WC indépendant. Une cave vient compléter cette location. Loyer mensuel hors charges de 800 euros + provisions mensuelles sur charges de 70 euros soumises à régularisation annuelle comprenant dépenses relatives aux charges communes générales, dépenses relatives au chauffage, dépenses relatives aux frais de location - entretien - et télérelève des répartiteurs de frais de chauffage. Honoraires partagés entre bailleur et locataire : Honoraires de location (TTC) à la charge du locataire 927,81 euros dont 214,11 euros de frais d'état des lieux. Dépôt de garantie à verser par le locataire : 1 mois de loyer HC soit 800 euros.

Appartement 2 pièces 785 €
785 €

Appartement 2 pièces 51 m²

Cailloux-sur-Fontaines (69270)

À louer dans résidence de standing, appartement t2 de 51 m² comprenant une cuisine équipée, un salon salle à manger, une chambre avec placard mural, salle d'eau avec douche à l'italienne et wc séparé. Chauffage et eau chaude individuel électrique. Garage en sous-sol. Appartement calme. Résidence fermée avec un portail motorisé. Loyer hc : 720 €, provisions sur charges (régularisation annuelle) : 65 €, tom : 7 € dépôt de garantie : 720 € et honoraires : 660 € dont 153 € d'état des lieux. Location soumise à acceptation de la garantie loyer impayés les informations sur les risques auxquels ce bien est exposé sont disponibles sur le site géorisques atrium conseil immobilier jonathan lebre 06 66 93 44 93 pour une réponse plus rapide merci de privilégier la prise de contact par mail en répondant via l'annonce. Logement disponible dès maintenant copropriété de 15 lots (pas de procédure en cours). Charges annuelles : 750.00 euros.

Appartement 2 pièces 870 €
870 €
+4 %

Appartement 2 pièces 45 m²

Collonges-au-Mont-d'Or (69660)

Location appartement à Collonges au Mont d'Or de 45 m². Cet appartement F2 de particulier est à louer pour un loyer de 870 euros. Disponible à partir du 01 / 03 / 26 Avantages du logement : - Stationnement - Grand séjour - Cuisine équipée - Balcon - Transport - Proche commerce - Sans vis-à-vis Ce propriétaire utilise LocService pour sélectionner ses futurs locataires. Pour proposer directement votre candidature pour ce logement ET toutes les locations conformes à votre recherche, il suffit de vous inscrire sur LocService. Les propriétaires vous contactent directement et les locations sont certifiées sans frais d'agence. Comment ça marche ? 1/ Vous décrivez votre location idéale sur LocService 2 / Votre candidature est transmise aux propriétaires concernés 3 / Les propriétaires vous contactent directement. Vous réglez une seule fois 34 euros (29 euros pour les étudiants) pour toute la durée de votre recherche. Sans abonnement - Sans prélèvement - Sans commission. Depuis sa création en 2005, LocService a accompagné plus de 2,9 millions de particuliers. Pourquoi pas vous ?

Appartement 2 pièces 736 €
736 €

Appartement 2 pièces 58 m²

Vaulx-en-Velin (69120)

T2 + balcon vaulx-en-velin * location bail 1 an maximum * disponible de suite ! Pour visiter, déposez au préalable votre dossier de candidature via le site internet de notre agence, rubrique 'location', 'mon dossier en ligne' plateforme zelok, option gratuite uniquement) visite virtuelle à 360° disponible. Rue maurice audin, idéalement situé dans le centre-ville, à proximité immédiate des commodités (commerces, bus 57,52, c3, c8) et des écoles supérieures : ensa, entpe. Venez découvrir ce lumineux et spacieux t2 de 58 m² situé au 4ème étage avec ascenseur et donnant au calme en intérieur de copropriété. Entièrement rénové, il se compose d'une entrée avec placard et cellier, un grand séjour et une cuisine indépendante donnant accès à un balcon de 4.80 m², une chambre de 13.75 m², une salle de bains et des wc séparés. Chaudière individuelle au gaz. Fenêtres double vitrage pvc.