Logo LSI sombre

Appartement 3 Pièces 65 m² à louer à Izon (33450)
Photo N° 2
Photo N° 3
3

Location appartement 3 pièces 65 m² à Izon (33450)

912 € CC /mois

T3 IZON Rez-de-Chaussée avec Jardin

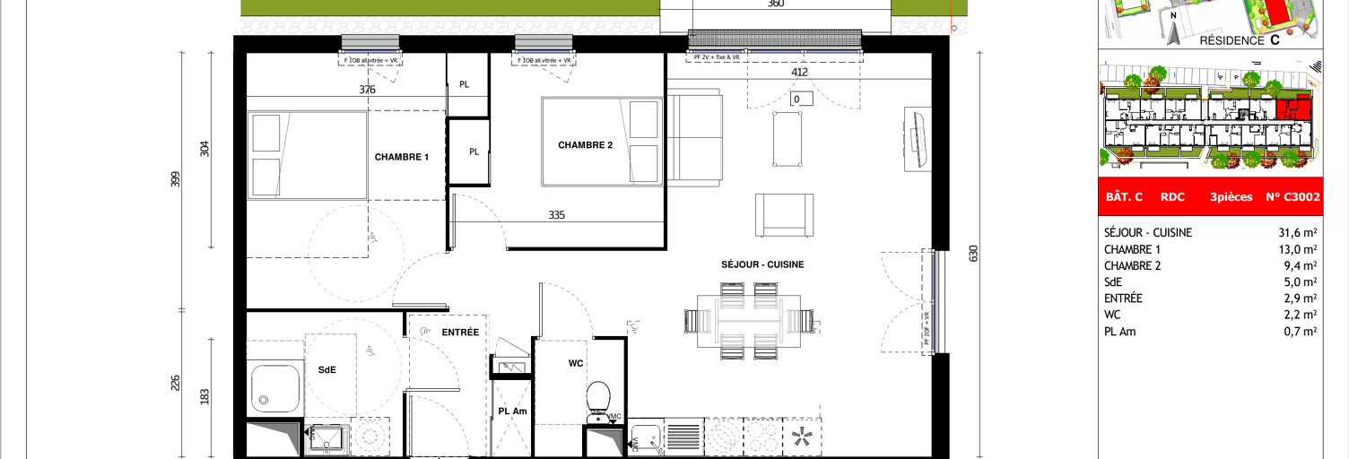
Immobilière atlantic aménagement (bailleur social) vous propose un appartement de type 3 au sein de notre résidence récente à izon, 23 avenue de cavernes. Situé au rez-de-chaussée avec jardin de 26 m². L'appartement est composé d'un séjour donnant sur une terrasse, une cuisine non aménagée non équipée, une salle d'eau, deux chambres et un wc séparé. Eau froide et eau chaude comprise dans les charges en provision. Proche de toutes commodités. Candidature sur dossier. Contact uniquement par mail (réponse à l'annonce). La visite du logement sera possible si votre dossier est retenu.

Caractéristiques

Les plus de cette annonce
  • Cave
  • Terrasse
Pièces
  • 3 pièces
  • 2 chambres
  • 1 WC
  • WC séparés
  • Salle d'eau
Superficies
  • Surface habitable : 65 m²
Etat
  • Etat general : Très Bon

Consommation énergétique et gaz à effet de serre

Bilan énergétique (DPE)
NC
Bilan gaz à effet de serre (GES)
NC

Géorisques

Les informations sur les risques auxquels ce bien est exposé sont disponibles sur le site Géorisques : www.georisques.gouv.fr

A propos du prix de cet appartement

  • Loyer : 912 € CC /mois
  • Dont :
  • Provisions pour charges avec régularisation annuelle : 113 €

À propos de cette annonce

Mise en ligne:

Dernière mise à jour:

Référence de l'annonce: LLI IZON
Atlantic Aménagement Neuf agence immobilière à La Rochelle (17000)
Atlantic Aménagement Neuf
Afficher le numéro

À voir pour le même budget

Appartement 2 pièces 980 €
980 €

Appartement 2 pièces 55 m²

Saint-Sulpice-et-Cameyrac (33450)

Appartement F2 de particulier à louer sur St Sulpice et Cameyrac. Disponibilité au 15 / 12 / 25 pour cette location meublée de 55 mètres carré proposée à 980 euros par mois. Ce propriétaire utilise LocService pour sélectionner ses futurs locataires. Pour proposer directement votre candidature pour ce logement ET toutes les locations conformes à votre recherche, il suffit de vous inscrire sur LocService. Les propriétaires vous contactent directement et les locations sont certifiées sans frais d'agence. Comment ça marche ? 1/ Vous décrivez votre location idéale sur LocService 2 / Votre candidature est transmise aux propriétaires concernés 3 / Les propriétaires vous contactent directement. Vous réglez une seule fois 34 euros (29 euros pour les étudiants) pour toute la durée de votre recherche. Sans abonnement - Sans prélèvement - Sans commission. Depuis sa création en 2005, LocService a accompagné plus de 2,9 millions de particuliers. Pourquoi pas vous ?

Appartement 2 pièces 950 €
950 €

Appartement 2 pièces 57 m²

Saint-Sulpice-et-Cameyrac (33450)

Saint-sulpice-et-cameyrac, 750 euro + charges 200 euro appartement t2 tres bon etat 57 m². Avec terrasse 30 m² + jardin clos + parking. Comprenant entree, salon, cuisine amenagee, 1 chambre, salle d'eau, wc. Proche commodites. Caution : 2 mois hc. Nous contacter ladp 05 56 04 04 04 fd 220 euro - mis a jour le 18 / 01 / 26 - loyer hors charges.