Logo LSI sombre

Appartement 3 Pièces 71 m² à louer à Bourg-Achard (27310)
Photo N° 2
2

Location appartement 3 pièces 71 m² à Bourg-Achard (27310)

780 € CC /mois

BOURG ACHARD - SECTEUR MAIRIE

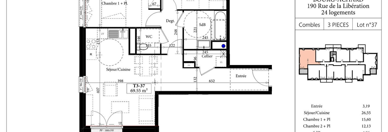
Bourg-achard - secteur mairie à louer, appartement f3 situé dans une résidence neuve avec ascenseur et parking, idéalement placée en plein coeur de bourg-achard, à proximité immédiate des commerces et de la mairie. Un appartement comprenant : séjour avec balcon et rangement, espace cuisine aménagée (meubles hauts et bas, emplacement plaque, hotte, évier et 2 branchements machine), dégagement, 2 chambres, salle de bains (baignoire et meuble vasque), wc. Chauffage et eau chaude individuel gaz - eau froide individuelle. Ascenseur - interphone. Deux emplacements de stationnement couverts.

Caractéristiques

Les plus de cette annonce
  • Ascenseur
  • Parking
  • Meublé
Confort
  • Chauffage Individuel
  • Chauffage Gaz
Pièces
  • 3 pièces
  • 2 chambres
  • Salle d'eau
  • Salle de bain
  • Cuisine aménagée
Superficies
  • Surface habitable : 71 m²
Extérieur
  • Balcon
Environnement
  • Quartier : MAIRIE
Sécurité
  • Interphone

Consommation énergétique et gaz à effet de serre

Bilan énergétique (DPE)
Bilan gaz à effet de serre (GES)

Géorisques

Les informations sur les risques auxquels ce bien est exposé sont disponibles sur le site Géorisques : www.georisques.gouv.fr

A propos du prix de cet appartement

  • Loyer : 780 € CC /mois
  • Dont :
  • Provisions pour charges avec régularisation annuelle : 90 €
  • Honoraires Locataires : 785 €
  • Dont :
    honoraires pour état des lieux : 214 €
  • Dépôt de garantie : 690 €

À propos de cette annonce

Mise en ligne:

Dernière mise à jour:

Référence de l'annonce: 2018-lot37
Leloup Immobilier
Afficher le numéro

Appartement similaires à louer Bourg-Achard (27310)

Appartement 3 pièces 740 €
740 €

Appartement 3 pièces 63 m²

Bourg-Achard (27310)

Bourg-achard - secteur mairie à louer, appartement situé dans une résidence neuve avec ascenseur et parkings, idéalement placée en plein coeur de bourg-achard, à proximité immédiate des commerces et de la mairie. Un appartement 3 pièces comprenant : séjour avec balcon, espace cuisine aménagée (meubles hauts et bas, emplacement plaque, hotte, évier et branchement machine), dégagement, cellier avec branchement machine, 2 chambres, salle de bains (baignoire et meuble vasque), wc. Chauffage et eau chaude individuel gaz - eau froide individuelle. Ascenseur - interphone. Deux emplacements de stationnement couvert.

Appartement 3 pièces 770 €
770 €

Appartement 3 pièces 65 m²

Bourg-Achard (27310)

Bourg-achard - secteur mairie à louer, appartement f3 situé dans une résidence neuve avec ascenseur et parking, idéalement placée en plein coeur de bourg-achard, à proximité immédiate des commerces et de la mairie. Un appartement comprenant : séjour avec balcon et rangement, espace cuisine aménagée (meubles hauts et bas, emplacement plaque, hotte, évier et 2 branchements machine), dégagement, 2 chambres, salle de bains (baignoire et meuble vasque), wc. Chauffage et eau chaude individuel gaz - eau froide individuelle. Ascenseur - interphone. Deux emplacements de stationnement couverts.

Appartement 3 pièces 760 €
760 €

Appartement 3 pièces 64 m²

Bourg-Achard (27310)

Bourg-achard - secteur mairie à louer, appartement situé dans une résidence neuve avec ascenseur et parkings, idéalement placée en plein coeur de bourg-achard, à proximité immédiate des commerces et de la mairie. Un appartement comprenant : séjour avec balcon, espace cuisine aménagée (meubles hauts et bas, emplacement plaque, hotte, évier et branchement machine), dégagement, cellier avec branchement machine, 2 chambres, salle de bains (baignoire et meuble vasque), wc. Chauffage et eau chaude individuel gaz - eau froide individuelle. Ascenseur - interphone. Deux emplacements de stationnement couvert.

À voir pour le même budget

Appartement 2 pièces 625 €
625 €

Appartement 2 pièces 40 m²

Bourg-Achard (27310)

Bourg-achard - secteur mairie à louer, appartement f2 situé dans une résidence neuve avec ascenseur et parking, idéalement placée en plein coeur de bourg-achard, à proximité immédiate des commerces et de la mairie. Un appartement comprenant : séjour avec balcon et rangement, espace cuisine aménagée (meubles hauts et bas, emplacement plaque, hotte, évier et 2 branchements machine), chambre, salle d'eau (douche, meuble vasque et wc). Chauffage et eau chaude individuel gaz - eau froide individuelle. Ascenseur - interphone. Un emplacement de stationnement extérieur * assurance habitation à 11.46 euros / mois.

Appartement 3 pièces 740 €
740 €

Appartement 3 pièces 63 m²

Bourg-Achard (27310)

Bourg-achard - secteur mairie à louer, appartement situé dans une résidence neuve avec ascenseur et parkings, idéalement placée en plein coeur de bourg-achard, à proximité immédiate des commerces et de la mairie. Un appartement 3 pièces comprenant : séjour avec balcon, espace cuisine aménagée (meubles hauts et bas, emplacement plaque, hotte, évier et branchement machine), dégagement, cellier avec branchement machine, 2 chambres, salle de bains (baignoire et meuble vasque), wc. Chauffage et eau chaude individuel gaz - eau froide individuelle. Ascenseur - interphone. Deux emplacements de stationnement couvert.

Appartement 2 pièces 635 €
635 €

Appartement 2 pièces 43 m²

Bourg-Achard (27310)

Bourg achard - secteur mairie dans une résidence neuve avec ascenseur, un appartement f2 comprenant : un séjour avec balcon et rangement, espace cuisine aménagée (meubles hauts et bas, emplacement plaque, hotte, évier et 2 branchements machine), chambre, salle d'eau (douche, meuble vasque et wc). Chauffage et eau chaude individuel gaz - eau froide individuelle. Interphone. L'appartement dispose également d'une place de stationnement couverte. * assurance habitation à 11.46 euros / mois.

Appartement 3 pièces 760 €
760 €

Appartement 3 pièces 64 m²

Bourg-Achard (27310)

Bourg-achard - secteur mairie à louer, appartement situé dans une résidence neuve avec ascenseur et parkings, idéalement placée en plein coeur de bourg-achard, à proximité immédiate des commerces et de la mairie. Un appartement comprenant : séjour avec balcon, espace cuisine aménagée (meubles hauts et bas, emplacement plaque, hotte, évier et branchement machine), dégagement, cellier avec branchement machine, 2 chambres, salle de bains (baignoire et meuble vasque), wc. Chauffage et eau chaude individuel gaz - eau froide individuelle. Ascenseur - interphone. Deux emplacements de stationnement couvert.

Appartement 2 pièces 660 €
660 €

Appartement 2 pièces 43 m²

Bourg-Achard (27310)

Bourg-achard - secteur mairie à louer, appartement f2 situé dans une résidence neuve avec ascenseur et parking, idéalement placée en plein coeur de bourg-achard, à proximité immédiate des commerces et de la mairie. Un appartement comprenant : séjour avec balcon et rangement, espace cuisine aménagée (meubles hauts et bas, emplacement plaque, hotte, évier et 2 branchements machine), chambre, salle d'eau (douche, meuble vasque et wc). Chauffage et eau chaude individuel gaz - eau froide individuelle. Ascenseur - interphone. Un emplacement de stationnement extérieur * assurance habitation à 11.46 euros / mois.

Appartement 2 pièces 680 €
680 €

Appartement 2 pièces 50 m²

Bourg-Achard (27310)

Bourg-achard - secteur mairie à louer, appartement f2 situé dans une résidence neuve avec ascenseur et parking, idéalement placée en plein coeur de bourg-achard, à proximité immédiate des commerces et de la mairie. Un appartement comprenant : séjour avec balcon et rangement, espace cuisine aménagée (meubles hauts et bas, emplacement plaque, hotte, évier et 2 branchements machine), chambre, salle d'eau (douche, meuble vasque et wc). Chauffage et eau chaude individuel gaz - eau froide individuelle. Ascenseur - interphone. Un emplacement de stationnement extérieur * assurance habitation à 11.46 euros / mois.