Logo LSI sombre

Appartement 1 Pièce 29 m² à louer à Tours (37100)
Photo N° 2
2

Location appartement 1 pièce 29 m² à Tours (37100)

570 € CC /mois

Location appartement 1 pièce 29 m² à Tours (37100)

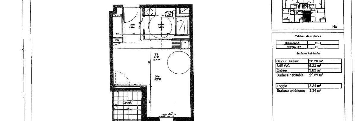
TOURS NORD / EXCLUSIVITÉ - GRAND STUDIO À LOUER : Appartement neuf T1 situé à Tours, dans le quartier dynamique de la ville. Ce bien, d'une superficie de 29 m², se trouve au premier étage d'un bâtiment moderne. L'appartement se compose d'une pièce principale spacieuse de 20,26 m², idéale pour aménager un coin salon et un espace de travail. La cuisine est aménagée et équipée. Vous disposerez également d'une salle d'eau et de toilettes. Ce bien est doté d'un chauffage collectif au gaz. L'eau chaude, l'eau froide sont également collectifs, ce qui simplifie la gestion. L'appartement bénéficie d'un balcon, parfait pour profiter de l'extérieur. Un emplacement de parking est également inclus, facilitant le stationnement. Situé dans la commune de Tours, le bien bénéficie d'un emplacement privilégié à proximité de plusieurs établissements, notamment le lycée Vaucanson et le lycée Sainte-Marguerite. Côté transports, vous accédez facilement à cinq lignes de bus ainsi que la ligne A du tramway (arrêt Monconseil), accessibles au pied de la résidence, facilitant ainsi vos déplacements au quotidien. Envie d'en savoir plus sur cet appartement à louer ? Contactez votre agence Citya Charles Gille. Ce T1 est une opportunité à ne pas manquer pour ceux qui recherchent un logement moderne et bien situé à Tours. Le bien est soumis au statut de la copropriété. Loyer de 570,00 euros par mois charges comprises dont 150,00 euros par mois de provision pour charges (soumis à la régularisation annuelle). Soit avec Assurance Habitation et Assistance * ( 18.00 euros ) : 588,00 euros. Les honoraires charge locataire sont de 323,29 euros (soit 11,00 euros / m²) dont 88,17 euros pour état des lieux (soit 3,00 euros / m² ). Vous pouvez consulter les barèmes d'honoraires à l'adresse suivante : -location Montant estimé des dépenses annuelles d'énergie pour un usage standard : entre 180 et 244 euros. Prix moyens des énergies indexés en 2021. Les informations sur les risques auxquels ce bien est exposé sont disponibles sur le site Géorisques : * Service facultatif. Contribution annuelle "attentats" non comprise. Voir conditions en agence.

Caractéristiques

Les plus de cette annonce
  • Ascenseur
  • Parking
Confort
  • Chauffage Collectif
  • Chauffage Gaz
Pièces
  • 1 pièce
  • Salle d'eau
Superficies
  • Surface habitable : 29 m²
Extérieur
  • Balcon
Etat
  • Etat general : Habitable

Consommation énergétique et gaz à effet de serre

Bilan énergétique (DPE)
NC
Bilan gaz à effet de serre (GES)
NC

Géorisques

Les informations sur les risques auxquels ce bien est exposé sont disponibles sur le site Géorisques : www.georisques.gouv.fr

A propos du prix de cet appartement

  • Loyer : 570 € CC /mois
  • Honoraires Locataires : 323 €
  • Dont :
    honoraires pour état des lieux : 88,17 €
  • Dépôt de garantie : 419 €

À propos de cette annonce

Mise en ligne:

Dernière mise à jour:

Référence de l'annonce: GES82540063-33
Citya Charles Gille agence immobilière à Tours (37)
Citya Charles Gille
Afficher le numéro

Appartement similaires à louer Tours (37100)

Appartement 1 pièces 573 €
573 €

Appartement 1 pièce 30 m²

Tours (37000)

Tours - nous vous proposons dans la résidence l'hotel des lettres, un appartement récent t1 de 30.67 m². Situé au 2ème étage avec ascenseur, il comprend une entrée, un séjour de 21.37 m² avec cuisine ouverte, une salle d'eau avec wc. Chauffage et eau chaude individuels, entretien parties communes, ascenseur et espaces verts communs, compris dans les provisions sur charges mensuelles et donnant lieu à une régularisation annuelle. Disponible de suite contacter philippine 02 47 70 15 21 gli + pinel.

Appartement 1 pièces 505 €
505 €

Appartement 1 pièce 23 m²

Tours (37000)

Beau studio meublé quartier des halles proche fac des tanneurs disponible de suite ! Tours centre, quartier des halles vieux tours, proximité de la faculté de lettres, beau studio meublé en parfait état donnant sur cour intérieure et en retrait par rapport à la rue. Calme et sans vis à vis il est composé d'une pièce principale avec coin jour et coin nuit, espace cuisine avec bar et salle de douche avec wc. Idéal pour étudiant. À rajouter par mois 15 euros pour les o. M. (fgi) les informations sur le risque auxquels ce bien est exposé sont disponibles sur le site géorisques : .

Appartement 1 pièces 550 €
550 €
-8 %

Appartement 1 pièce 21 m²

Tours (37000)

Iad france - séverine ladoire vous propose : appartement en plein coeur de tours, situé rue jean macé - idéal pour une vie citadine paisible et à proximité immédiate des commodités et transports. Au sein d'un immeuble des années 30 en très bon état général, cet appartement situé au 1er étage, vous séduira dès votre entrée par sa jolie pièce de vie lumineuse avec un espace cuisine ouvert pour profiter pleinement de l'espace et d'une optimisation idéale. Un lit mezzanine dans cette pièce vous permettra tout le confort et l'intimité idéal sans réduire l'espace de vie, une jolie salle d'eau avec wc complète cet appartement. Côté équipements, l'appartement dispose d'une entrée sécurisée avec interphone, d'un système de chauffage électriques avec une très bonne classe énergétique en c et a, un sèche serviette dans sa pièce d'eau, du rangement, ainsi que de tout l'équipement nécessaire pour une location en meublé. Tout cela au sein d'une petite copropriété agréable et paisible. Idéalement situé à proximité immédiate des grands axes cet appartement vous offre la possibilité de profiter pleinement de la ville ainsi que des commerces essentiels à proximités, sans nuisances, dans une petite rue de tours. Libre de suite, contactez moi dès maintenant pour planifier une visite. Information d'affichage énergétique sur ce bien : classe energie c indice 171 et classe climat a indice 5. Les informations sur les risques auxquels ce bien est exposé, y compris l'obligation légale de débroussaillement, sont disponibles sur le site géorisques : la présente annonce immobilière a été rédigée sous la responsabilité éditoriale de mme séverine ladoire mandataire indépendant en immobilier (sans détention de fonds), agent commercial de la sas i@d france immatriculé au rsac de tours sous le numéro 890877194, titulaire de la carte de démarchage immobilier pour le compte de la société i@d france sas. Location meublée. Montant du loyer mensuel charges comprises : 550.00 euros / mois. Charges forfaitaires : 50.00 euros / mois. Zone soumise à encadrement : non. Dépôt de garantie : 500 euros. Honoraires ttc à la charge du locataire : 148 euros (soit 7€ / m²).

À voir pour le même budget

Appartement 2 pièces 600 €
600 €

Appartement 2 pièces 31 m²

Tours (37000)

Entièrement meublé, proche de la faculté des Tanneurs - Vieux Tours - Nous vous proposons un appartement meublé situé Rue commerce offrant une entrée avec placard, une grande pièce de vie avec un espace cuisine, une salle d'eau, wc, une chambre en mezzanine. Chauffage et eau chaude individuels électriques. Les charges comprennent l'eau froide, la taxe des ordures ménagères, l'entretien des parties communes du bâtiment. Renseignements (O671754841) Sandra Ferreira - Les informations sur les risques auxquels ce bien est exposé sont disponibles sur le site Géorisques : . Montant estimé des dépenses annuelles d'énergie pour un usage standard : entre 570 et 820 euros. Prix moyens des énergies indexés en 2021.

Appartement 1 pièces 500 €
500 €
-4 %

Appartement 1 pièce 22 m²

Tours (37000)

T1 - 22 m² - Hyper centre de Tours - charmante résidence À LOUER : Découvrez cet appartement T1 idéalement situé en plein cœur de Tours, dans le secteur hyper centre. Avec une superficie de 22 m², cet espace optimisé est parfait pour une personne seule ou un couple cherchant à profiter de la vie citadine. Situé au deuxième étage d'un immeuble avec ascenseur, cet appartement vous offre un accès facile et pratique. Vous serez séduit par sa kitchenette fonctionnelle, qui vous permettra de préparer vos repas en toute simplicité. La pièce principale est lumineuse et accueillante, offrant un cadre de vie agréable. La salle d'eau, bien agencée, est équipée d'une douche, vous garantissant confort et praticité au quotidien. Le chauffage individuel électrique par radiateur vous assure une température agréable tout au long de l'année. L'emplacement est un véritable atout : à proximité immédiate, vous trouverez de nombreux commerces, supermarchés, boulangeries, pharmacies et établissements scolaires, tous accessibles en moins de 500 mètres. Les transports en commun sont également à portée de main, facilitant vos déplacements dans la ville et au-delà. Ne manquez pas cette opportunité de vivre dans un appartement au cœur de l'animation de Tours, où tout est à portée de main. Contactez-nous dès maintenant pour organiser une visite et découvrir votre futur chez-vous ! . Le bien est soumis au statut de la copropriété. Loyer de 500,00 euros par mois charges comprises dont 38,00 euros par mois de provision pour charges (soumis à la régularisation annuelle). Soit avec Assurance Habitation et Assistance * ( 18.00 euros ) : 518,00 euros. Les honoraires charge locataire sont de 251,79 euros (soit 11,00 euros / m²) dont 68,67 euros pour état des lieux (soit 3,00 euros / m² ). Vous pouvez consulter les barèmes d'honoraires à l'adresse suivante : -location Montant estimé des dépenses annuelles d'énergie pour un usage standard : entre 430 et 630 euros. Prix moyens des énergies indexés en 2023. Les informations sur les risques auxquels ce bien est exposé sont disponibles sur le site Géorisques : * Service facultatif. Contribution annuelle "attentats" non comprise. Voir conditions en agence.

Appartement 1 pièces 620 €
620 €
+10 %

Appartement 1 pièce 23 m²

Tours (37000)

À LOUER : Appartement T1 situé dans la charmante ville de Tours, en plein coeur du quartier historique. Ce bien immobilier, d'une superficie de 23 m², est idéal pour une personne seule cherchant un logement confortable et fonctionnel. L'appartement se compose d'une pièce principale lumineuse, offrant un espace de vie agréable et convivial. La disposition des lieux permet d'optimiser l'espace, tout en garantissant un cadre de vie agréable. Ce T1 est entièrement meublé, ce qui vous permettra de vous installer rapidement sans avoir à vous soucier de l'achat de mobilier. La localisation de cet appartement est un atout majeur. Tours est une ville dynamique, riche en culture et en histoire, offrant de nombreuses commodités à proximité. Vous trouverez des commerces, des restaurants et des transports en commun facilement accessibles, facilitant ainsi vos déplacements au sein de la ville et vers les environs. Pour les étudiants, la faculté des Tanneurs n'est qu'à quelques minutes à pied. Ce T1 est une opportunité à ne pas manquer pour ceux qui recherchent un logement pratique et bien situé. N'hésitez pas à nous contacter pour plus d'informations ou pour organiser une visite. Loyer de 620,00 euros par mois charges comprises dont 20,00 euros par mois de provision pour charges (soumis à la régularisation annuelle). Soit avec Assurance Habitation et Assistance * ( 18.00 euros ) : 638,00 euros. Les honoraires charge locataire sont de 253,00 euros (soit 11,00 euros / m²) dont 69,00 euros pour état des lieux (soit 3,00 euros / m² ). Vous pouvez consulter les barèmes d'honoraires à l'adresse suivante : -location Montant estimé des dépenses annuelles d'énergie pour un usage standard : entre 470 et 670 euros. Prix moyens des énergies indexés en 2025. Les informations sur les risques auxquels ce bien est exposé sont disponibles sur le site Géorisques : * Service facultatif. Contribution annuelle "attentats" non comprise. Voir conditions en agence.

Appartement 1 pièces 540 €
540 €
+2 %

Appartement 1 pièce 18 m²

Tours (37000)

À LOUER : Studio meublé sans vis-à-vis de 19 m² au sol, refait à neuf cet été, au 2ème étage d'un immeuble en hyper centre situé dans le centre historique de Tours donnant sur la Place de Châteauneuf avec vue sur la tour Charlemagne et la Basilique St-Martin. À 2 mn à pied de la place Plumereau connue pour ses cafés et restaurants et à 500m de la faculté des Tanneurs. Entièrement équipé avec plaque de cuisson en vitrocéramique, micro-ondes, canapé-lit, table à manger, bureau, placard, fenêtre double vitrage, radiateur à inertie thermique, interphone. Disponible de suite. Si vous recherchez un appartement pratique, bien situé et prêt à vivre, cet appartement T1 à Tours est fait pour vous. N'hésitez pas à nous contacter pour plus d'informations ou pour organiser une visite. Le bien est soumis au statut de la copropriété. Loyer de 540,00 euros par mois charges comprises dont 20,00 euros par mois de provision pour charges (soumis à la régularisation annuelle). Soit avec Assurance Habitation et Assistance * ( 18.00 euros ) : 558,00 euros. Les honoraires charge locataire sont de 198,00 euros (soit 11,00 euros / m²) dont 54,00 euros pour état des lieux (soit 3,00 euros / m² ). Vous pouvez consulter les barèmes d'honoraires à l'adresse suivante : -location Montant estimé des dépenses annuelles d'énergie pour un usage standard : entre 250 et 390 euros. Prix moyens des énergies indexés en 2021. Les informations sur les risques auxquels ce bien est exposé sont disponibles sur le site Géorisques : * Service facultatif. Contribution annuelle "attentats" non comprise. Voir conditions en agence.

Appartement 1 pièces 486 €
486 €

Appartement 1 pièce 16 m²

Tours (37000)

T1 meublé - hyper centre TOURS - chauffage collectif - Ascenseur - Proche commerces et transports. À LOUER : Appartement T1 situé en hyper centre de Tours, dans un quartier dynamique et animé. Ce bien d'une superficie de 16 m² est idéal pour une personne seule ou un étudiant à la recherche d'un logement pratique et fonctionnel. L'appartement est entièrement meublé, offrant un confort immédiat. Il se compose d'une pièce principale lumineuse, équipée d'une kitchenette, parfaite pour préparer vos repas quotidiens. La salle d'eau est moderne et bien agencée, garantissant un espace agréable pour votre hygiène personnelle. Le chauffage est collectif, avec un système à gaz et des radiateurs, assurant une chaleur douce et homogène durant les mois plus frais. Situé au premier étage d'un immeuble avec ascenseur, cet appartement bénéficie d'un accès facilité. L'immeuble est sécurisé, avec un interphone pour votre tranquillité d'esprit. L'appartement est idéalement situé à proximité de nombreux commerces, transports en commun, et services essentiels. À moins de 500 mètres, vous trouverez plusieurs supermarchés ainsi que la Faculté des Tanneurs à quelques pas. Pour vos besoins de santé, plusieurs pharmacies sont également accessibles à proximité. Ce logement est parfait pour ceux qui souhaitent profiter de la vie urbaine tout en ayant un chez-soi confortable. N'attendez plus pour visiter cet appartement qui allie praticité et emplacement privilégié. Le bien est soumis au statut de la copropriété. Loyer de 486,00 euros par mois charges comprises dont 75,00 euros par mois de provision pour charges (soumis à la régularisation annuelle). Soit avec Assurance Habitation et Assistance * ( 18.00 euros ) : 504,00 euros. Les honoraires charge locataire sont de 186,34 euros (soit 11,00 euros / m²) dont 50,82 euros pour état des lieux (soit 3,00 euros / m² ). Vous pouvez consulter les barèmes d'honoraires à l'adresse suivante : -location Montant estimé des dépenses annuelles d'énergie pour un usage standard : entre 280 et 440 euros. Prix moyens des énergies indexés en 2015. Les informations sur les risques auxquels ce bien est exposé sont disponibles sur le site Géorisques : * Service facultatif. Contribution annuelle "attentats" non comprise. Voir conditions en agence.

Appartement 1 pièces 600 €
600 €

Appartement 1 pièce 41 m²

Tours (37000)

À LOUER PROCHE FAC DES TANNEURS : Appartement T1 situé dans le quartier prisé du Vieux Tours, au cœur de la ville. Ce bien d'une superficie de 41 m² se trouve au deuxième étage d'une résidence bien entretenue, offrant un cadre de vie agréable et pratique. L'appartement se compose d'une pièce principale lumineuse, idéale pour un aménagement personnalisé selon vos goûts. La cuisine, séparée et aménagée, est fonctionnelle. Vous y trouverez également une salle d'eau équipée d'une douche, garantissant un confort optimal. Le système de chauffage est individuel, alimenté au gaz, avec des radiateurs pour une chaleur douce et homogène durant les mois plus frais. Situé dans un secteur dynamique, cet appartement bénéficie d'un accès facile aux commerces de proximité, vous permettant de profiter de toutes les commodités nécessaires au quotidien. De plus, les transports en commun, notamment le tramway, sont à proximité, facilitant vos déplacements dans la ville et au-delà. Son emplacement et ses caractéristiques en font un choix idéal pour une personne seule ou un couple souhaitant s'installer dans un quartier vivant et agréable. N'attendez plus pour découvrir ce bien qui pourrait devenir votre nouveau chez-vous. Le bien est soumis au statut de la copropriété. Loyer de 600,00 euros par mois charges comprises dont 20,00 euros par mois de provision pour charges (soumis à la régularisation annuelle). Soit avec Assurance Habitation et Assistance * ( 18.00 euros ) : 618,00 euros. Les honoraires charge locataire sont de 464,64 euros (soit 11,25 euros / m²) dont 126,72 euros pour état des lieux (soit 3,07 euros / m² ). Vous pouvez consulter les barèmes d'honoraires à l'adresse suivante : -location Montant estimé des dépenses annuelles d'énergie pour un usage standard : entre 1 020 et 1 440 euros. Prix moyens des énergies indexés en 2023. Les informations sur les risques auxquels ce bien est exposé sont disponibles sur le site Géorisques : * Service facultatif. Contribution annuelle "attentats" non comprise. Voir conditions en agence.