
Foncier intelligent : quand la donnée redessine la carte de l’immobilier
Le foncier n’est plus seulement une question de surface : il devient un actif stratégique piloté par la…
11 résultats
Réalisez votre rêve sur ce dernier lot de ce petit lotissement à deux pas du centre-ville de Dax. Maison d’en France vous propose cette jolie maison de 90 m², composée d’une belle pièce de vie de près de 43 m², baignée de lumière grâce à sa double orientation. La cuisine semi ouverte se double d’un cellier, indispensable des maisons d’aujourd’hui. Un véritable de gage de fonctionnalité ! Le côté nuit se compose de trois belles chambres avec placards intégrés, une salle de bains avec douche à l’italienne. WC séparé. Ce futur nid douillet répondra à toutes vos attentes. Ce modèle peut également se décliner en locatif. Le système de chauffage suggéré (PAC Air / Air) vous assurera le plus grand confort dans le respect des nouvelles normes environnementales, tout en vous assurant de très substantielles économies, tant en chauffage qu’en rafraîchissement. Ce projet vous est proposé « tout compris » hors peintures et cuisine. Terrain viabilisé de 634 m², selon disponibilité de notre partenaire foncier. Non mandaté pour la vente du terrain. Prix incluant maison + terrain + frais de notaire + terrassement + raccordements à partir de 253 000 euros. Dommages-ouvrage et garanties de parfait achèvement et de livraison à prix et délais convenus incluses. Pour plus de renseignements, n'hésitez pas à joindre Katherine FERRERE, votre conseillère Maisons d'en France Sud-Ouest. Référence : KF-DAX-652.
À DAX, sur une jolie parcelle dans un quartier résidentiel, découvrez cet exemple de projet de construction, modulable et personnalisable à souhait. Celui ci est composé de 3 chambres, une belle pièce à vivre lumineuse, 1 salle d'eau avec grande douche à l'italienne, et un cellier. Le prix comprend le terrain, les frais de notaire, la construction prête à décorer, les raccordements, la taxe de raccordement au tout à l'égout. Plus d'informations auprès de votre conseillère Elisabeth Da Cunha Assurance dommages ouvrage et garantie de livraison incluses. Non mandatée pour la vente du terrain - Sous réserve de disponibilité auprès de notre partenaire foncier. Ref : EDC-DX-1025.
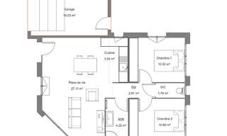
Maison d’en France Sud-Ouest vous propose ce beau projet de 111 m² habitables, plus un garage et une terrasse couverte, sur un nouveau lotissement, à Dax. Construisez à proximité du centre-ville, dans un quartier calme, résidentiel et desservi par les transports en commun. À deux pas vous bénéficierez de commerces et services. Cette future construction est composée d’une belle pièce de vie de près de 47 m², baignée de lumière grâce à sa double orientation. La cuisine semi ouverte permet un accès direct au cellier et au garage. Un véritable de gage de fonctionnalité ! Une confortable terrasse couverte prolonge ce bel espace de vie. Côté nuit : deux chambres avec placards intégrés, une salle de bains avec douche et baignoire et une suite parentale dotée d’une salle d’eau privative recevront aisément un couple et deux enfants. WC séparé. Votre futur nid douillet répondra à toutes vos attentes. Le système de chauffage suggéré vous assurera le plus grand confort dans le respect des nouvelles normes environnementales, tout en vous assurant de très substantielles économies, tant en chauffage qu’en rafraîchissement. Ce projet vous est proposé « tout compris » hors peintures et cuisine. Terrain viabilisé de 500 m², selon disponibilité de notre partenaire foncier. Non mandaté pour la vente du terrain. Maison + terrain + frais de notaire + terrassement + raccordements à partir de 322 000 euros. Dommages-ouvrage et garanties de parfait achèvement et de livraison à prix et délais convenus incluses. Pour plus de renseignements, n'hésitez pas à joindre Katherine, votre conseillère Maisons d'en France Sud-Ouest. Référence : KF-DAX-619.
Maison d’en France Sud-Ouest vous propose cette jolie maison de 80 m² sur un nouveau lotissement, à Dax. Construisez à proximité du centre-ville, dans un quartier calme, résidentiel et desservi par les transports en commun. À deux pas vous bénéficierez de commerces et services. Ce projet de construction, confortable, fonctionnelle et lumineuse, est composée d’une belle pièce de vie baignée de lumière grâce à sa triple orientation. La cuisine semi ouverte permet un accès direct au cellier. Un véritable de gage de fonctionnalité ! Côté nuit : trois chambres avec placards intégrés recevront aisément un couple et deux enfants. WC séparé, salle de bains équipée. Votre futur nid douillet répondra à toutes vos attentes. Idéal pour un premier achat. Le système de chauffage suggéré vous assurera le plus grand confort dans le respect des nouvelles normes environnementales, tout en vous assurant de très substantielles économies, tant en chauffage qu’en rafraîchissement. Ce projet vous est proposé « tout compris » hors peintures et cuisine. Terrain viabilisé de 500 m², selon disponibilité de notre partenaire foncier. Non mandaté pour la vente du terrain. Maison + terrain + frais de notaire + terrassement + raccordements à partir de 225 800 euros. Dommages-ouvrage et garanties de parfait achèvement et de livraison à prix et délais convenus incluses. Pour plus de renseignements, n'hésitez pas à joindre Katherine, votre conseillère Maisons d'en France Sud-Ouest. Référence : KF-DAX-618.

Recevez en temps réel les dernières annonces correspondant à votre recherche
À Dax, toute en douceur de vie, cette maison s'inscrit naturellement dans une architecture en L, permettant ainsi une séparation judicieuse entre l'espace jour et l'espace nuit. Le séjour traversant et les différentes possibilités d'accès maison permettent diverses implantations dans le respect de l'orientation et de la nature environnante. Cette maison dispose de 3 chambres et une salle d'eau avec douche italienne + 2 vasques. L'espace jour donne accès à une cuisine ouverte communicante avec un cellier, une terrasse permet de profiter pleinement du jardin. Idéalement situé à DAX, proche des commodités. Tarif comprenant Maison + Terrain hors frais de notaire et frais annexes Pour + de renseignements n'hésitez pas à contacter votre conseiller commercial au 06 75 39 89 60.
.Découvrez votre futur havre de paix au cœur du quartier apprécié de Saubagnacq, au sud-ouest de Dax. Idéalement situé à quelques minutes du centre-ville, ce projet bénéficie d’un emplacement stratégique à proximité des transports, commerces, écoles, et toutes les commodités nécessaires à votre quotidien. Adresse : Rue du Grand Biaou - 40100 Dax Accessibilité : Centre-ville de Dax : à 3 km Arrêt de bus “Château d’eau” (ligne 5) : à 400 m Établissements scolaires : dans un rayon de 2 km Centre commercial Dax Porte Sud : à 2,5 km Nichés au cœur d’un environnement verdoyant. Cet écrin de nature offre un cadre de vie spacieux, paisible, et propice à la sérénité. Ici, vous aurez la liberté de concevoir votre futur cocon dans un lieu où il fait bon vivre et s’épanouir. Pour ce projet nous proposons une maison de 80 m² composé d'une pièce à vivre très lumineuse de 35 m² avec une cuisine ouverte sur la salle à manger et le salon. Un couloir dessert 3 chambres et une salle d'eau de 5 m² avec douche italienne et 1 vasque. La maison idéale pour un couple et un enfant ! Terrain entièrement viabilisé de 404 m². Prix comprenant Terrain + maison. Hors frais de notaire et frais annexes. Pour plus de renseignements, n’hésitez pas à joindre votre conseiller Fabrice : Maisons d'en France St Paul les Dax.
À dax, au cœur d'un quartier résidentiel, maisons d'en france, constructeur de maisons sur mesure, vous propose ce projet de construction à l'agencement moderne ! Cette maison de 85 m² dispose d'une spacieuse & lumineuse pièce de vie de 40 m² donnant sur une terrasse, de 3 belles chambres et d'une buanderie. L'ensemble du projet est modulable ! Plan, prestations, mode de chauffage, revêtements. Pour plus d'information, contactez votre conseillère, marlène dubertrand à l'agence de saint paul les dax terrain viabilisé de 595 m², frais de notaire. Maison (hors peinture ), assurance dommages ouvrages, garantie de livraison, terrassement & raccordements. Non mandaté pour la vente du terrain - sous réserve de disponibilité auprès de notre partenaire foncier. Ref : dax - md.
Sur Dax situé dans un emplacement dynamique et pratique, maison évolutive et lumineuse. Cette maison de 70 m² habitable est composée d'une belle pièce à vivre lumineuse avec une cuisine ouverte sur la salle à manger et le salon donnant sur une grande terrasse. Un couloir dessert 2 chambres et une salle d'eau avec douche italienne et 1 vasque. La maison idéale pour un premier achat. Terrain de 464 m² proche du centre ville. Collège, écoles et commodités principales à proximité. Pour plus de renseignements, n’hésitez pas à joindre Fabrice : Maisons d'en France St Paul les Dax. Prix, comprenant, maison, branchements frais de notaire et taxes.
À dax, maisons d'en france, constructeur de maisons sur mesure, vous propose ce projet de construction à l'agencement moderne ! Cette maison de 85 m² dispose d'une spacieuse & lumineuse pièce de vie donnant sur une terrasse, de 3 belles chambres et d'une buanderie. L'ensemble du projet est modulable ! Plan, prestations, mode de chauffage, revêtements. Pour plus d'information, contactez votre conseillère, marlène dubertrand à l'agence de saint paul les dax terrain viabilisé de 363 m², frais de notaire. Maison (hors peinture ), assurance dommages ouvrages, garantie de livraison, terrassement & raccordements à partir de 217 000 euros. Non mandaté pour la vente du terrain - sous réserve de disponibilité auprès de notre partenaire foncier. Ref : dax - md.
Derniers lots disponibles sur ce lotissement idéalement situé à Dax. Maison d’en France vous propose de construire cette maison neuve aux allures contemporaines et originales. D’une superficie de 92 m² elle est composée d’une belle pièce de vie de 46 m² baignée de lumière grâce à ses larges baies vitrées, dont une en pan coupé. La cuisine semi ouverte permet un accès direct au cellier et au garage de près de 20 m². Un véritable de gage de fonctionnalité ! Côté nuit : trois chambres avec placards intégrés recevront aisément un couple et deux enfants. WC séparé, salle de bains équipée d’une double vasque, d’une baignoire et d’une spacieuse douche. Doté d'un réglage pièce par pièce, le système de chauffage réversible proposé vous assurera le plus grand confort tout en vous assurant de substantielles économies. Plan, disposition, système de chauffage, tout reste entièrement personnalisable selon vos envies, vos besoins, votre budget. Maison + terrain + frais de notaire + terrassement + raccordements à partir de 243 000 euros. Dommages-ouvrage et garanties de parfait achèvement et de livraison à prix et délais convenus sont incluses. Prix ferme et définitif. Terrain appartenant à un partenaire foncier, sous réserve des disponibilités. Non mandaté pour la vente du terrain. Pour plus de renseignements, n’hésitez pas à joindre Katherine, votre conseillère Maisons d’en France. Référence : KF-DAX-423.
À 15 minutes de dax, sur la commune de saugnac et cambran, maisons d'en france vous propose cette construction neuve de 100 m², avec garage, disposant une spacieuse pièce de vie de plus de 35 m² permettant un aménagement moderne. Une buanderie est également proposée, permettant un bel espace de rangement. Le coin nuit dispose 2 belles chambres ainsi qu'une salle d'eau. Une suite parentale avec espace dressing & salle d'eau privative vient compléter l'ensemble. Maisons d'en france vous offre la possibilité de personnaliser l'ensemble du projet : plan, distribution, différents systèmes de chauffage, prestations. Nous créons avec vous, la maison qui vous ressemble. Pour plus de renseignements, n'hésitez pas à joindre votre conseillère, marlène dubertrand. Terrain de 750 m², selon disponibilité de notre partenaire foncier. Compris terrain, frais de notaire, terrassement, branchements & maison. Référence : cambran-md.
Autres annonces à proximité de Dax (40100) avec vos critères
Projet de Construction sur mesure Maisons d'En France, constructeur de maisons sur mesure, vous propose ce projet de construction à l'agencement moderne ! Cette maison dispose d'une spacieuse & lumineuse pièce de vie donnant sur une terrasse, de 3 belles chambres& d'un garage. L'ensemble du projet est modifiable ! Plan, prestations, mode de chauffage, revêtements. Pour plus d'information, contactez votre conseillère, Marlène DUBERTRAND à l'agence de Saint Paul les Dax Le prix comprend le montant du terrain, des frais de notaire, de la construction (hors peinture) ainsi que le montant du terrassement & des raccordements. L'assurance Dommages Ouvrages ainsi que la garantie de livraison sont également comprises. Non mandaté pour la vente du terrain - Sous réserve de disponibilité auprès de notre partenaire foncier. Ref : MD-Seyresse.
Idéalement situé à Seyresse, en bordure de la ville de Dax, à proximité de l’A63, Maison d’en France Sud-Ouest a déniché pour vous un beau terrain de 486 m² niché au cœur d’un futur lotissement à taille humaine. Commerces, services, bus, école à proximité. Le village, très dynamique, est doté de nombreuses associations sportives et culturelles. Maison d'en France Sud-Ouest vous propose de construire cette maison neuve aux allures contemporaines et originales. D’une superficie de 92 m² elle est composée d’une belle pièce de vie de 46 m² baignée de lumière grâce à ses larges baies vitrées, dont une en pan coupé. La cuisine semi ouverte permet un accès direct au cellier et au garage de près de 20 m². Un véritable de gage de fonctionnalité ! Côté nuit : trois chambres avec placards intégrés recevront aisément un couple et deux enfants. WC séparé, salle de bains équipée d’une double vasque, d’une baignoire et d’une spacieuse douche. Doté d'un réglage pièce par pièce, le système de chauffage réversible proposé vous assurera le plus grand confort tout en vous assurant de substantielles économies. Plan, disposition, système de chauffage, tout reste entièrement personnalisable selon vos envies, vos besoins, votre budget. Maison + terrain + frais de notaire + branchements à partir de 260 000 €. Terrain appartenant à un partenaire foncier, sous réserve des disponibilités. Non mandaté pour la vente du terrain. Pour plus de renseignements, n’hésitez pas à joindre Katherine, votre conseillère Maisons d’en France. Référence : KF-SEYR-858.
À seyresse, maisons d'en france a sélectionné pour vous un terrain de 500 m². Fonctionnelle & lumineuse, notre modèle mimosa offre une pièce de vie de 33 m² avec une triple exposition. Un emplacement de cellier judicieux, proche de l'entrée & de la cuisine pour faciliter le quotidien. L'espace nuit dispose de 3 chambres avec placard & une salle d'eau ainsi qu'un wc indépendant. Ce projet de construction est suggéré avec un mode de chauffage réversible, permettant autant un mode de chauffage qu'un rafraichissement, pour un confort optimal. Ce projet vous est proposé « tout compris » '( hors peintures et cuisine). Terrain viabilisé de 500 m², selon disponibilité de notre partenaire foncier. Non mandaté pour la vente du terrain. Maison + terrain + frais de notaire + terrassement + raccordements. Pour plus de renseignements, n'hésitez pas à joindre marlène, votre conseillère maisons d'en france sud-ouest à saint paul les dax référence : md-seyresse.
À 2 mns de dax, maisons d'en france vous propose ce projet de construction realiste aux toutes dernières normes, situé sur un très joli terrain déjà viabilisé. Ce projet chiffré comprend : - cette jolie maison d'habitation de 112 m² avec beau séjour traversant ouvert sur sa vaste cuisine, un cellier, une spacieuse salle d'eau, 3 chambres aux volumes généreux, ainsi qu'un bureau de 9 m². L'habitation est équipée de 2 wc pour un confort optimal. Le mode de chauffage ainsi que la production d'eau chaude au moyen d'une pompe à chaleur dernière génération. En prêt à décorer, carrelage 45x45 (hors chambres). La maison pourra etre modulable et personnalisable a souhait ! - un garage de 16 m² - le terrain - les frais de notaire - frais de raccordements, - taxes de tout à l'égout ainsi que la taxe d'aménagement également incluses le prix comprend aussi les différentes garanties d'achèvement et de livraison à prix et délais convenus, et dommages ouvrage sans franchise. Non mandatée pour réaliser la vente du terrain, sous réserve de la disponibilité du terrain de notre partenaire foncier. Plus d'information auprès de votre conseillère nadège genovese, maisons d'en france sud-ouest, constructeur de maisons individuelles depuis près de 40 ans dans les landes et le pays basque.
Idéalement situé à Seyresse, en bordure de la ville de Dax, à proximité de l’A63, Maison d’en France Sud-Ouest a déniché pour vous un beau terrain de 486 m² niché au cœur d’un futur lotissement à taille humaine. Commerces, services, bus, école à proximité. Le village, très dynamique, est doté de nombreuses associations sportives et culturelles. Maison d'en France Sud-Ouest vous propose de construire cette confortable et lumineuse maison de 84 m² habitables. Elle est composée d’une belle pièce de vie de près de 40 m² baignée de lumière grâce à ses larges baies vitrées. Cuisine semi ouverte, cellier et garage à vélos complètent harmonieusement l’ensemble. Un véritable de gage de fonctionnalité ! Côté nuit : une suite parentale avec sa salle d'eau privative qui répond aux normes PMR et deux chambres avec placards intégrés recevront aisément un couple et deux enfants. WC séparé, salle de bains équipée d’une simple vasque d’une baignoire. Doté d'un réglage pièce par pièce, le système de chauffage réversible proposé vous assurera le plus grand confort tout en vous assurant de substantielles économies. Cette proposition répond aux normes PMR indispensables pour un investissement locatif. Mais elle est également idéale comme maison principale. Plan, disposition, système de chauffage, tout reste entièrement personnalisable selon vos envies, vos besoins, votre budget. Maison (dommage-ouvrage et garantie de livraison inclus) + terrain + frais de notaire + branchements à partir de 240 000 €. Terrain appartenant à un partenaire foncier, sous réserve des disponibilités. Non mandaté pour la vente du terrain. Pour plus de renseignements, n’hésitez pas à joindre Katherine, votre conseillère Maisons d’en France. Référence : KF-SEYR-859.
Proche de Dax, sur la commune de Oeyreluy, Maisons d'en France ST PAUL LES DAX vous propose cet exemple de projet de construction entièrement modulable et personnalisable, tant au niveau des plans que des prestations. Celui ci est composé de 3 chambres et d'une belle pièce de vie confortable et lumineuse. Sa forme en L apporte originalité et vous abrite sur une terrasse couverte de 23 m². Répondant aux dernières normes environnementales, il sera, de plus, économe en énergie ! Le prix comprend le terrain, la construction, les frais de notaire, les raccordements, et la taxe de raccordement aux égouts. Plus de renseignements n'hésitez pas à joindre de votre conseiller Fabrice Nougué - Maisons d'en France St Paul les Dax Assurance dommages ouvrage et garantie de livraison incluses. Non mandaté pour la vente du terrain - Sous réserve de disponibilité auprès de notre partenaire foncier.
Projet de construction sur mesure rare sur le secteur, à oeyreluy, a 10 minutes de dax, maisons d'en france, constructeur de maisons sur mesure, vous propose ce projet de construction à l'agencement moderne sur un terrain de 500 m². Cette maison de 100 m² dispose d'une spacieuse & lumineuse pièce de vie d'environ 45 m² donnant sur une terrasse, de 3 belles chambres dont une suite parentale avec son espace dressing et sa salle d'eau privative. Un garage complète l'ensemble. L'ensemble du projet est modifiable ! Plan, prestations, mode de chauffage, revêtements. Contactez vite marlène dubertrand, agence de saint paul les dax, afin qu'elle vous guide dans les démarches et vous accompagne dans ce projet de construction personnalisé, aux normes re2020. Le prix comprend le montant du terrain, des frais de notaire, de la construction (hors peinture) ainsi que le montant du terrassement & des raccordements & assainissement. L'assurance dommages ouvrages ainsi que la garantie de livraison sont également compris. Plusieurs autres lots sont disponibles. Non mandaté pour la vente du terrain - sous réserve de disponibilité auprès de notre partenaire foncier. Ref : md-oeyreluy.
Projet de construction. À 10 minutes de dax, maisons d'en france, constructeur de maisons, vous propose notre modèle mimosa de 85 m² disposant d' une belle pièce de vie avec une cuisine ouverte et cellier attentant, pour une superficie de 38 m². L'espace nuit est lui composé de 3 belles chambres avec placards, un wc séparé et une salle d'eau. Vous serez séduit par la luminosité de la pièce de vie et l'optimisation de l'aménagement. Pour plus d'information, contactez vite, marlène dubertrand à l'agence de saint paul les dax, qui vous guidera dans vos démarches et vous accompagnera dans la création de votre projet, aux normes re 2020. Le prix comprend le terrain viabilisé, frais de notaire. Maison (hors peinture ), assurance dommages ouvrages, garantie de livraison, terrassement & raccordements. Projet proposé sur un terrain de 500 m² - plusieurs autres lots sont disponibles. Non mandaté pour la vente du terrain - sous réserve de disponibilité auprès de notre partenaire foncier. Ref : oeyreluy - md.
À Narrosse, toute en douceur de vie, cette maison s'inscrit naturellement dans une architecture en L, permettant ainsi une séparation judicieuse entre l'espace jour et l'espace nuit. Le séjour traversant et les différentes possibilités d'accès maison permettent diverses implantations dans le respect de l'orientation et de la nature environnante. Cette maison dispose de 3 chambres et une salle d'eau avec douche italienne + 2 vasques. L'espace jour donne accès à une cuisine ouverte communicante avec un cellier, une terrasse permet de profiter pleinement du jardin. Idéalement situé à Narrosse, proche des commodités. Tarif comprenant Maison + Terrain + frais de notaire et frais annexes Pour + de renseignements n'hésitez pas à contacter votre conseiller commercial au 06 75 39 89 60.
À Narrosse, à une dizaine de minutes du centre de Dax, Maisons d'en France Sud Ouest, votre constructeur dans les Landes, vous propose la construction de votre maison neuve avec 3 chambres à partir de 201 000€ (terrain + maison). Sur un terrain de 515 m², cette maison vous fera profiter de 3 chambres, avec placard intégré et d'une belle pièce de vie de 38 m². Le salon-cuisine ouverte, d'une superficie de 38 m², est baignée de lumière naturelle grâce à sa double exposition. Vous avez un projet de construction d'une maison neuve proche de Dax ? Venez nous rencontrer pour échanger sur vos envies et nous vous accompagnerons pour la recherche foncière et la conception du plan de votre maison sur mesure. Devenez propriétaires de votre maison neuve 3 chambres à Narrosse, à partir de 201000€ (terrain + maison, garantie d'achèvement et de livraison à prix et délais convenus incluses; assurance dommages-ouvrage incluse, hors adaptation au sol et branchements et frais de notaire - non mandaté pour réaliser la vente du terrain vu avec nos partenaires - visuel non contractuel). Référence : JPB.
Nous vous proposons aujourd'hui une maison neuve de près de 100 m² avec terrasse couverte de plus de 14 m² sur un terrain de 554 m² à Narrosse Au sein de cette division de parcelles de seulement 6 lots, cette opportunité de projet de maison au sein d'un environnement calme et protégé présente de nombreux atouts dont celui d'être localisé à moins de 10 minutes du coeur de Dax. Pour atout majeur, cette maison aura l'art de concilier fonctionnalité et confort avec trois chambres, dont une suite parentale avec salle d'eau et dressing. Une salle de bain commune comprenant baignoire et double vasque viendra compléter la partie nuit. Côté jour, un salon-séjour-cuisine d'une surface généreuse de plus de 43 m² donnant sur la terrasse couverte exposée Sud Ouest offrira à votre espace de vie une belle luminosité. Un cellier adjacent à votre hall d'entrée avec placard vous donnera un espace de rangement complémentaire. Le système de chauffage vous est proposé en gainable, type T ONE avec climatisation, tout en vous permettant d'assurer à moindre coût la production d'eau chaude sanitaire. Carrelage compris dans la zone jour, centralisation électrique pour l'ensemble des volets roulants avec domotique dernier cri. La construction de votre maison respectera la RE 2020 et aura pour conséquence directe de réduire vos factures d'énergie sur le court et long terme. Possible d'adapter les plans à vos envies et / ou d'ajouter un garage en complément par exemple (prix à adapter en fonction). Il restera à votre charge les touches finales, à savoir les peintures, le parquet dans les chambres, la cuisine, les clôtures et le portail. Le prix comprend : - Terrain + maison - garantie d'achèvement et de livraison à prix et délais convenus incluse - DO incluse - Frais de notaire inclus - Estimation viabilisation et raccordements incluse - Taxes PFAC et aménagement incluses - visuel non contractuel - Non mandaté pour réaliser la vente du terrain - Selon disponibilité de notre partenaire foncier - Les informations sur les risques auxquels ce bien est exposé sont disponibles dur le site Géorisques / Pour toutes informations complémentaires, n'hésitez pas à contacter Ludwig MOLL Référence : LM1-NARROSSE.
Nous vous proposons aujourd'hui une maison neuve de près de 100 m² avec terrasse couverte de plus de 14 m² sur un terrain de 479 m² à Narrosse Au sein de ce lotissement à taille réduite, cette opportunité de projet de maison au sein d'un environnement calme et protégé présente de nombreux atouts dont celui d'être localisé aux portes de Dax et de toute les commodités nécessaires. Pour atout majeur, cette maison aura l'art de concilier fonctionnalité et confort avec trois chambres, dont une suite parentale avec salle d'eau et dressing. Une salle de bain commune comprenant baignoire et double vasque viendra compléter la partie nuit. Côté jour, un salon-séjour-cuisine d'une surface généreuse de plus de 43 m² donnant sur la terrasse couverte exposée Sud Ouest offrira à votre espace de vie une belle luminosité. Un cellier adjacent à votre hall d'entrée avec placard vous donnera un espace de rangement complémentaire. Le système de chauffage vous est proposé en gainable, type T ONE avec climatisation, tout en vous permettant d'assurer à moindre coût la production d'eau chaude sanitaire. Carrelage compris dans la zone jour, centralisation électrique pour l'ensemble des volets roulants avec domotique dernier cri. La construction de votre maison respectera la RE 2020 et aura pour conséquence directe de réduire vos factures d'énergie sur le court et long terme. Possible d'adapter les plans à vos envies et / ou d'ajouter un garage en complément par exemple (prix à adapter en fonction). Il restera à votre charge les touches finales, à savoir les peintures, le parquet dans les chambres, la cuisine, les clôtures et le portail. Le prix comprend : - Terrain + maison - garantie d'achèvement et de livraison à prix et délais convenus incluse - DO incluse - Frais de notaire inclus - Raccordements inclus - Taxes PFAC et aménagement incluses - visuel non contractuel - Non mandaté pour réaliser la vente du terrain - Selon disponibilité de notre partenaire foncier - Les informations sur les risques auxquels ce bien est exposé sont disponibles dur le site Géorisques / Pour toutes informations complémentaires, n'hésitez pas à contacter Ludwig MOLL Référence : LM-1NARROSSE.
Maisons d'en France vous propose aujourd'hui une maison neuve située dans un petit lotissement, au calme, à Narrosse. À 10 minutes du coeur de Dax, toutes les commodités sont accessibles depuis votre futur lieu de vie ! Ce projet neuf de plus de 60 m² (agrandissable et ajustable à souhait) vous est proposé avec un garage attenant de 15 m² (adaptable également) pouvant intégrer une voiture sur un terrain de 479 m². Cette maison aura pour atout majeur de concilier fonctionnalité et confort avec deux chambres, une salle d'eau et un WC dans la zone nuit. Côté jour, un salon-séjour-cuisine lumineux d'une surface de plus de 30 m² pourrait donner sur une terrasse et offrir une visibilité sur toute la longueur de votre terrain, exposé plein SUD. Le système de chauffage serait proposé avec clim réversible. Le carrelage est compris dans la zone jour. La construction de votre maison respectera la RE 2020 ce qui lui permettra de bénéficier entre autre, d'une domotique dernier cri. Il restera à votre charge les touches finales, à savoir les parquets, la peinture, la cuisine, les clôtures et portail. Le prix comprend : - Terrain + maison - garantie d'achèvement et de livraison à prix et délais convenus incluse - DO incluse - Frais de notaire inclus - Raccordements inclus - Taxes PFAC et aménagement incluses - visuel non contractuel - Non mandaté pour réaliser la vente du terrain - Selon disponibilité de notre partenaire foncier - Les informations sur les risques auxquels ce bien est exposé sont disponibles dur le site Géorisques / Le terrain est vendu par un de nos partenaires fonciers et sa disponibilité est ainsi limitée dans le temps. Pour toute information complémentaire, n'hésitez pas à contacter Ludwig MOLL Référence : LM-2NARROSSE.
Nous vous proposons aujourd'hui une maison neuve de plus de 110 m² habitable avec garage d'environ 23 m², et terrasse non couverte de 25 m², stratégiquement positionnée au cœur de l'architecture. Ce projet de maison vous est proposé au sein d'une division de parcelles de seulement 6 lots, dans un environnement calme et protégé à moins de 10 minutes du cœur de Dax. L'aménagement de cette maison a été pensé pour concilier fonctionnalité et confort avec trois chambres dont une suite parentale déportée comprenant douche à l'italienne, double vasque et WC suspendu. Une seconde salle d'eau, commune aux deux autres chambres, viendra compléter la seconde zone nuit avec WC à part. Côté jour, un salon-séjour (à toit cathédral) -cuisine-entrée d'une surface dépassant les 46 m² offrira à votre espace de vie une belle luminosité par l'intermédiaire de ses deux baies vitrées dont une donnant sur la terrasse. Un cellier de 7 m², stratégiquement positionné entre le garage et la cuisine viendrait agrémenter de rangement l'espace jour. Le système de chauffage vous est proposé en gainable avec climatisation. Carrelage et parquet dans les chambres inclus, centralisation électrique pour l'ensemble des volets roulants. La construction de votre maison respectera la RE 2020 ce qui lui permettra de bénéficier entre autre, d'une domotique dernier cri ainsi que d'une faible consommation d'énergie. Possible d'adapter les plans à vos envies, gain ou retrait de surfaces et / ou pièces (prix à adapter en fonction). Le prix comprend : - Terrain + maison - garantie d'achèvement et de livraison à prix et délais convenus incluse - DO incluse - Frais de notaire inclus - raccordements inclus - Taxes PFAC et aménagement incluses - visuel non contractuel - Non mandaté pour réaliser la vente du terrain - Selon disponibilité de notre partenaire foncier - Les informations sur les risques auxquels ce bien est exposé sont disponibles dur le site Géorisques / Il restera à votre charge les touches finales, à savoir les peintures, la cuisine, les clôtures (déjà disposées partiellement) et le portail. Pour toute information complémentaire, n'hésitez pas à contacter Ludwig MOLL, conseiller habitat Maisons d'en France. Référence annonce : LM2-NARROSSE.

Le foncier n’est plus seulement une question de surface : il devient un actif stratégique piloté par la…

Construire plus vite, mieux et avec moins d’impact : tel est le pari de la construction modulaire. Entre…

Elles ne consomment presque rien, offrent un confort maximal et se valorisent plus vite : les maisons…