Logo LSI sombre

Maison 112 m² à construire Arenthon (74800)
Photo N° 2
Photo N° 3
Visite 3D
3

Vente maison à construire 112 m² Arenthon (74800)

510 000 €

Votre maison neuve ARTIS à Arenthon

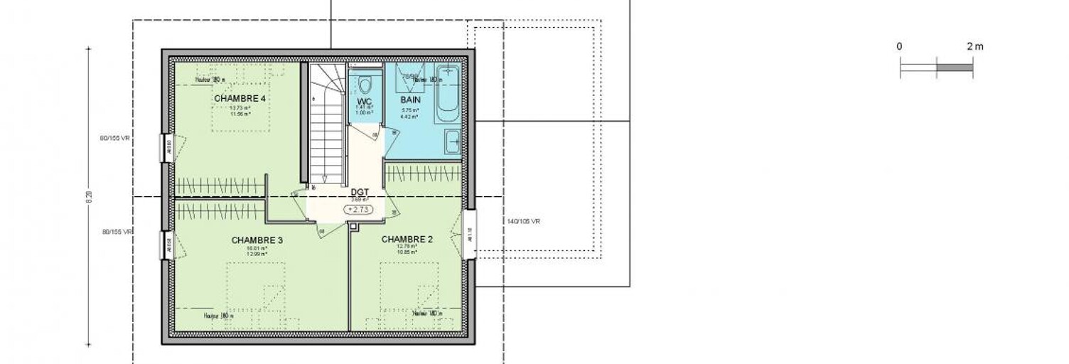
Belle exclusivité sur un secteur ultra calme et ensoleillé de Arenthon. Terrain plat de 612 m² donnant sur l'agricole. Découvrez ce projet de construction d'une maison Artis ! Artis est constructeur de maisons individuelles depuis près de 35 ans en Pays de Savoie et Pays de Gex. Choisir Artis pour votre projet, c'est bénéficier de toutes les garanties d'un Contrat de Construction de Maison Individuelle et du suivi rigoureux par nos équipes de votre parcours de construction ! Généreuse en espaces annexes et en rangements, la Spirit multiplie les possibilités ! Coin cuisine, repas et salon s'étendent sur un beau volume, complété d'un bureau ou d'une chambre de plain-pied. À l'étage les rangements optimisent l'espace des 3 chambres. Le garage est accolé. Une seconde salle d'eau est aménageable au rez de chaussée. Contactez-nous ! Prix : 510 000 € comprenant terrain + frais de notaire + estimatif des taxes, budget VRD, maison hors finitions. Etude de sol déjà réalisée. REF : BFR - ARENTHON 7.

Caractéristiques

Les plus de cette annonce
  • Garage
  • Ensoleillé
  • Jardin
  • Calme
Pièces
  • 5 pièces
  • 4 chambres
  • Salle d'eau
Superficies
  • Surface habitable : 112 m²
Certifications
  • RT2012

Consommation énergétique et gaz à effet de serre

Bilan énergétique (DPE)
NC
Bilan gaz à effet de serre (GES)
NC

Géorisques

Les informations sur les risques auxquels ce bien est exposé sont disponibles sur le site Géorisques : www.georisques.gouv.fr

A propos du prix de cette maison

  • 510 000 € (soit 4 554 € / m²)

À propos de cette annonce

Mise en ligne:

Dernière mise à jour:

Référence de l'annonce: BFR_-_ARENTHON_7
Artis agency.type.constructeur à Épagny Metz-Tessy (74)
Artis
Afficher le numéro

À voir pour le même budget

Maison 4 pièces 472000 €
472 000 €

Maison à construire 4 pièces 93 m²

Arenthon (74800)

Secteur calme d'arenthon, terrain plat d'environ 600 m². Découvrez ce projet de construction d'une maison artis ! Artis est constructeur de maisons individuelles depuis près de 35 ans en pays de savoie et pays de gex. Choisir artis pour votre projet, c'est bénéficier de toutes les garanties d'un contrat de construction de maison individuelle et du suivi rigoureux par nos équipes de votre parcours de construction ! Disponible en 2 ou 4 pans, le modèle easy sweet est compacte et très bien conçue : son garage est intégré, et l'espace de vie ouvre sur l'extérieur. À l'étage, profitez de 3 grandes chambres et d'une salle de bains. Contactez-nous ! Prix : 472 000 € comprenant terrain + frais de notaire + estimatif taxes + budget vrd + projet maison hors finitions. Etude de sol déjà réalisée. Ref : bfr - arenthon 8.

Maison 5 pièces 543400 €
543 400 €

Maison à construire 5 pièces 112 m²

Faucigny (74130)

Découvrez votre maison neuve dans la charmante commune de faucigny avec une vue dégagée sur les montagnes. Découvrez ce projet de construction d'une maison artis ! Artis est constructeur de maisons individuelles depuis près de 35 ans en pays de savoie et pays de gex. Choisir artis pour votre projet, c'est bénéficier de toutes les garanties d'un contrat de construction de maison individuelle et du suivi rigoureux par nos équipes de votre parcours de construction ! Généreuse en espaces annexes et en rangements, la spirit multiplie les possibilités ! Coin cuisine, repas et salon s'étendent sur un beau volume, complété d'un bureau ou d'une chambre de plain-pied. À l'étage les rangements optimisent l'espace des 3 chambres. Le garage est accolé. Une seconde salle d'eau est aménageable au rez de chaussée. Contactez-nous ! Prix maison : 543'400 € comprenant terrain + frais de notaire + budget vrd + projet maison hors décorations. Ref annonce : ame-faucigny-favre.

Maison 5 pièces 524830 €
524 830 €

Maison à construire 5 pièces 110 m²

Faucigny (74130)

Venez découvrir votre maison neuve sur la commune de Faucigny dans un lieu calme proche des axes autoroutes et avec une vue dégagée sur les montagnes. Découvrez ce projet de construction d'une maison Artis ! Artis est constructeur de maisons individuelles depuis plus de 35 ans en Pays de Savoie et Pays de Gex, et vous accompagne à chaque étape de votre projet. Choisir Artis pour votre maison, c'est bénéficier de toutes les garanties d'un Contrat de Construction de Maison Individuelle (CCMI) et d'un suivi rigoureux assuré par nos équipes tout au long de votre parcours de construction. Le modèle SPIRIT 110 sur sous-sol, d'une surface de 110 m², séduit par sa conception fonctionnelle et ses volumes généreux, avec de nombreux espaces annexes et des rangements bien pensés. Au sous-sol, vous profitez d'un garage ainsi que de deux caves, idéales pour le stockage et l'organisation du quotidien. Au rez-de-jardin, la maison s'ouvre sur une belle pièce de vie d'environ 35 m², agréable et conviviale, complétée par un bureau, parfait pour le télétravail ou une pièce polyvalente. Enfin, le dernier niveau propose trois chambres et une salle de bains, pour un espace nuit confortable et bien séparé. Contactez-nous pour en savoir plus et étudier votre projet ! Prix maison : 524 830€ comprenant terrain + frais de notaire + budget VRD + projet maison hors décorations. REF ANNONCE : AME-FAUCIGNY-FAV.

Maison 5 pièces 516000 €
516 000 €

Maison à construire 5 pièces 106 m²

Contamine-sur-Arve (74130)

Venez découvrir votre projet de construction sur la commune de contamine sur arve sur un terrain plat exposition plein sud et proche de toutes les commodités. Découvrez ce projet de construction d'une maison artis ! Artis est constructeur de maisons individuelles depuis près de 35 ans en pays de savoie et pays de gex. Choisir artis pour votre projet, c'est bénéficier de toutes les garanties d'un contrat de construction de maison individuelle et du suivi rigoureux par nos équipes de votre parcours de construction ! Architecture de style et maison de famille, découvrez le modèle hermès 111 : - un garage accolé qui donne sur une vaste pièce de vie au rez-de-jardin, - à l'étage, une salle de bains et 4 chambres spacieuses. Contactez-nous ! Prix maison : 516'000 € comprenant terrain + frais de notaire + budget vrd + projet maison hors décorations. Ref annonce : ame-contamine-anne.

Maison  572600 €
572 600 €

Maison à construire 136 m²

Marcellaz (74250)

Maisons optimales vous propose votre future maison sur mesure selon vos envies, sur la commune de marcellaz à proximité de geneve sur un terrain plat et viabilisé de 550 m². Sur cette annonce nous vous présentons une maison de 136 m² avec garage. Elle se compose au rdc d'une belle pièce de vie de 65 m² avec une cuisine ouverte, d'un cellier, d'un wc et d'un garage. À l'étage 3 chambres dont une suite parentale avec dressing et salle d'eau, 1 bureau + 1 wc et une salle de bains. Les prestations sont de qualités avec des menuiseries de grande dimension, 1 baie de plus de 5 mètre équipée d'un brise soleil, wc suspendus, carrelage 60x60, isolation à fort déphasage pour le confort d'été, etc. L'ensemble maison terrain fn vrd : 572600 euros (hors cuisine, peintures et taxes).

Maison 5 pièces 464400 €
464 400 €

Maison à construire 5 pièces 100 m²

Marcellaz (74250)

Découvrez votre maison neuve dans ce lotissement à 2 mins à pied du bourg au calme avec une belle exposition. Découvrez ce projet de construction d'une maison Artis ! Artis est constructeur de maisons individuelles depuis près de 35 ans en Pays de Savoie et Pays de Gex. Choisir Artis pour votre projet, c'est bénéficier de toutes les garanties d'un Contrat de Construction de Maison Individuelle et du suivi rigoureux par nos équipes de votre parcours de construction ! Généreuse en espaces annexes et en rangements, la Spirit multiplie les possibilités ! Coin cuisine, repas et salon s'étendent sur un beau volume, complété d'un bureau ou d'une chambre de plain-pied. À l'étage les rangements optimisent l'espace des 3 chambres. Le garage est accolé. Une seconde salle d'eau est aménageable au rez de chaussée. Contactez-nous ! Prix maison : 464'400 € comprenant terrain + frais de notaire + budget VRD + projet maison hors décorations. Ref : AME-MARCELLAZ-AVO.