Logo LSI sombre

Terrain  845 m² à vendre à Rognes (13840)
Photo N° 2
Photo N° 3
3

Vente terrain 845 m² Rognes (13840)

287 000 €

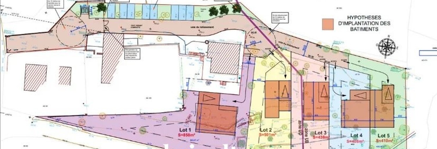
Terrain constructible 845m² viabilisé Rognes 13840

Bienvenue chez Abriculteurs, l'agence familiale qui s'engage à un service d'exception. Découvrez une présentation soignée de ce bien : un plan détaillé pour vous projeter. Faites confiance à notre expertise pour transformer vos projets immobiliers en réussites remarquables. Nous vous proposons à la vente plusieurs terrains à bâtir, entièrement viabilisés et libres de constructeur, au cœur du charmant village de Rognes (13840). Ces parcelles se trouvent dans une résidence privée, verdoyante et sécurisée, composée de seulement six lots. Vous y découvrirez un cadre de vie paisible, idéal pour les familles souhaitant construire la maison de leurs rêves dans un environnement privilégié, calme et intime. Les terrains bénéficient d'un emplacement recherché, à proximité immédiate de toutes les commodités. L'un d'eux, d'une superficie de 845 m² avec une emprise au sol de 250 m², est proposé au prix de 304 500 €. Une autre parcelle d'une superficie différente est disponible au prix de 210 000€ (honoraires agence inclus) avec permis déposé pour 90 m². Venez imaginer votre futur chez-vous dans un lieu préservé, alliant nature, sécurité et confort de vie. Prix de vente : 273 333 000 € TTC (hors honoraires agence) Honoraires à la charge de l'acquéreur de 14 500 € représentant un total de 287 000 € (honoraires d'agence inclus), soit 5 % du prix de vente. Ce bien a retenu votre intérêt ? Pour organiser la visite avec nous, rien de plus simple, prenez rendez-vous en ligne au moment qui vous convient le mieux. Les informations sur les risques auxquels ce bien est exposé sont disponibles sur le site Géorisques : Annonce rédigée sous la responsabilité éditoriale de Mme PEFFERT Laura, agent commercial (EI), immatriculé au RSAC de Salon-de-Provence sous le n° 904 617 404, sans détention de fonds, agissant pour le compte de la SARL Abriculteurs immobilier, au capital de 5 000 €, immatriculée sous le SIREN n° 837 704 584, titulaire de la carte professionnelle n° CPI 7501 2018 000 025 842 délivrée par la CCI de Paris Île-de-France, dont le représentant légal est M. Adrien Piot, ayant son siège social au 12 rue des Halles, 75001 Paris. Les informations sur les risques auxquels ce bien est exposé sont disponibles sur le site .

Caractéristiques

Les plus de cette annonce
  • Jardin
  • Bien d'exception
  • Calme

A propos du prix de ce terrain

  • Prix : 287 000 € (soit 340 € / m²)
  • Prix hors honoraires acquéreur : 273 333 €

À propos de cette annonce

Mise en ligne:

Dernière mise à jour:

Référence de l'annonce: LPVT130684513840
Abriculteurs agence immobilière à Paris (75)
Abriculteurs
Afficher le numéro

À voir pour le même budget

Terrain  304000 €
304 000 €

Terrain 845 m²

Rognes (13840)

Iad France - Romain Mouny vous propose : ROGNES (13840) – Terrains à bâtir viabilisés dans résidence privée et sécurisée – Vue & cadre privilégié Au cOEur d’un environnement résidentiel recherché, dans un lotissement intimiste de seulement 6 lots, découvrez les deux dernières parcelles disponibles, entièrement viabilisées et libres constructeur. Situés dans une résidence privée, arborée et sécurisée, ces terrains offrent un cadre de vie paisible, idéal pour concrétiser un projet familial dans un secteur privilégié, à proximité immédiate des commodités du village. Les lots disponibles : Lot n°1 – Environ 845 m² Emprise au sol jusqu’à 340 m² environ. Possibilité de construction de deux habitations selon projet. Prix : 304 500 € HAI (dont 5 % d’honoraires à charge acquéreur). Lot n°4 – 408 m² Emprise au sol jusqu’à 163 m² environ. Prix : 210 000 € HAI (dont 5 % d’honoraires à charge acquéreur). Les atouts du projet : Résidence confidentielle - Environnement verdoyant et calme - Vue dégagée depuis les hauteurs - Terrains entièrement viabilisés - Libre choix du constructeur - Proximité immédiate du centre de Rognes Un cadre naturel préservé, une atmosphère sereine et la liberté de concevoir une maison à votre image. Il ne reste que ces deux lots, alors contactez-moi dès maintenant pour en profiter ! Honoraires d'agence à la charge de l'acquéreur. Prix honoraires inclus : 304000 euros. Prix hors honoraires : 290000 euros. Honoraires TTC à la charge de l'acquéreur (4,83% du prix du bien hors honoraires) : 14000 euros. Bien non soumis au DPE. Les informations sur les risques auxquels ce bien est exposé, y compris l'obligation légale de débroussaillement, sont disponibles sur le site Géorisques : La présente annonce immobilière a été rédigée sous la responsabilité éditoriale de M Romain Mouny mandataire indépendant en immobilier (sans détention de fonds), agent commercial de la SAS I@D France immatriculé au RSAC de Salon-de-Provence sous le numéro 482574704, titulaire de la carte de démarchage immobilier pour le compte de la société I@D France SAS.

Terrain  250000 €
250 000 €

Terrain 1073 m²

La Roque-d'Anthéron (13640)

M-OI La Roque-d'Anthéron vous propose à la vente en exclusivité plusieurs lots à bâtir dans le lotissement "Le hameau de la source". L'adresse du bien, la vidéo de visite virtuelle et toutes les informations financières sont disponibles en ligne sur le site de Mon Office Immobilier avec la référence 4982 (Lien direct sur les photos) Situation et contexte : Situé sur l'avenue Sainte-Anne de Goiron, à proximité du centre du village, ces terrains vous offrent un cadre naturel exceptionnel tout en étant proches des commodités. Avantages extérieurs : Le lot 1 bénéficie d'une superficie de 1 073 m² avec une emprise au sol possible de 161 m². Vous avez la possibilité de construire une maison en R + 1 et le terrain est piscinable. Le terrain, viabilisé, est plat, très ensoleillé et orienté vers le sud, avec des espaces communs arborés et aménagés. Prestations complémentaires : Le terrain est viabilisé, il est doté de toutes les installations nécessaires pour accueillir votre future maison, dans un environnement calme et bien structuré. - À votre service : Anthony SANS - 06 17 57 00 16 Agent commercial Mon Office Immobilier immatriculé au RSAC de Aix en provence - N°821128758 Référence annonce : 4982-ASA Le prix indiqué comprend les honoraires à la charge de l'acheteur d'un montant de 4.17% inclus dans le prix affiché. Les informations sur les risques auxquels ce bien est exposé sont disponibles sur le site Géorisques : Le bien est soumis au statut de la copropriété. Dans une copropriété de 9 lots. Sans procédure en cours. Environ 120 € de charges annuelles de copropriété.

Terrain  230000 €
230 000 €

Terrain 578 m²

Le Puy-Sainte-Réparade (13610)

Profitez du pret a taux zero en investissant sur le puy ste reparade, aux abords d'une zone boisée et d'un canal, proche d'un domaine viticole de renommé international, nous vous proposons un terrain constructible d'environ 578 m² dans un lotissement de 31 lots. Surface de plancher maximum 200 m². Viabilités en bordure. Libre constructeur.

Terrain  250000 €
250 000 €

Terrain 558 m²

Le Puy-Sainte-Réparade (13610)

Profitez du pret a taux zero en investissant sur le puy ste reparade aux abords d'une zone boisée et d'un canal, proche d'un domaine viticole de renommé international, nous vous proposons un terrain constructible d'environ 558 m² dans un lotissement de 31 lots. Surface de plancher maximum 200 m². Viabilités en bordure. Libre constructeur.

Terrain  230000 €
230 000 €

Terrain 469 m²

Le Puy-Sainte-Réparade (13610)

Le puy ste reparade, aux abords d'une zone boisée et d'un canal et à proximité d'un domaine viticole de renom, nous vous proposons un terrain constructible d'environ 469 m² dans un lotissement de 31 lots. Surface de plancher maximum 200 m². Viabilités en bordure. Libre constructeur.

Terrain  262000 €
262 000 €

Terrain 445 m²

Lambesc (13410)

Lambesc, rare à la vente dans un quartier résidentiel superbe terrain de 445 m² avec cos de 0,20 libre constructeur. 1.