Logo LSI sombre

Retour
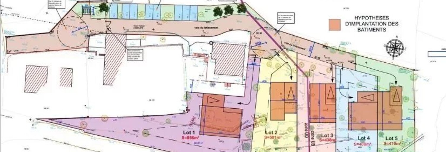
Terrain  845 m² à vendre à Rognes (13840)

Photo N° 2

Photo N° 3
3

Vente terrain 845 m² Rognes (13840)

304 500 €

Terrain constructible 845m² viabilisé Rognes 13840

Terrain constructible 845 m² viabilisé Rognes 13840 Bienvenue chez Abriculteurs, l’agence familiale qui s’engage à un service d’exception. Découvrez une présentation soignée de ce bien : des photos pro, un plan détaillé et une visite virtuelle immersive pour vous projeter. Faites confiance à notre expertise pour transformer vos projets immobiliers en réussites remarquables. Nous vous proposons à la vente plusieurs terrains à bâtir, entièrement viabilisés et libres de constructeur, au cœur du charmant village de Rognes (13840). Ces parcelles se trouvent dans une résidence privée, verdoyante et sécurisée, composée de seulement six lots. Vous y découvrirez un cadre de vie paisible, idéal pour les familles souhaitant construire la maison de leurs rêves dans un environnement privilégié, calme et intime. Les terrains bénéficient d’un emplacement recherché, à proximité immédiate de toutes les commodités. L’un d’eux, d’une superficie de 845 m² avec une emprise au sol de 250 m², est proposé au prix de 304 500 euros. Une autre parcelle d'une superficie différente est disponible au prix de 210 000euros (honoraires agence inclus). Venez imaginer votre futur chez-vous dans un lieu préservé, alliant nature, sécurité et confort de vie. Prix de vente : 290 000 euros TTC (hors honoraires agence) Honoraires à la charge de l'acquéreur de 14 500 euros représentant un total de 304 500 euros (honoraires d'agence inclus), soit 5 % du prix de vente. Ce bien a retenu votre intérêt ? Pour organiser la visite avec nous, rien de plus simple, prenez rendez-vous en ligne au moment qui vous convient le mieux. Les informations sur les risques auxquels ce bien est exposé sont disponibles sur le site Géorisques : Annonce rédigée sous la responsabilité éditoriale de Mme PEFFERT Laura, agent commercial (EI), immatriculé au RSAC de Salon-de-Provence sous le n° 904 617 404, sans détention de fonds, agissant pour le compte de la SARL Abriculteurs immobilier, au capital de 5 000 euros, immatriculée sous le SIREN n° 837 704 584, titulaire de la carte professionnelle n° CPI 7501 2018 000 025 842 délivrée par la CCI de Paris Île-de-France, dont le représentant légal est M. Adrien Piot, ayant son siège social au 12 rue des Halles, 75001 Paris.

Caractéristiques

Les plus de cette annonce
  • Jardin
  • Calme

A propos du prix de ce terrain

  • Prix : 304 500 € (soit 360 € / m²)
  • Prix hors honoraires acquéreur : 290 000 €

À propos de cette annonce

Mise en ligne:

Dernière mise à jour:

Référence de l'annonce: LPVT3307

Abriculteurs agence immobilière à Paris (75)
Abriculteurs
Afficher le numéro

À voir pour le même budget

Terrain  250000 €
250 000 €

Terrain 1073 m²

La Roque-d'Anthéron (13640)
Terrain  250000 €
250 000 €

Terrain 558 m²

Le Puy-Sainte-Réparade (13610)
Terrain  262000 €
262 000 €

Terrain 445 m²

Lambesc (13410)