
Le baromètre immobilier : Décembre 2025 – Le Site Immo
Prix au m², taux de crédit, régions en hausse, villes en correction et impact du DPE : le baromètre immobilier Lesiteimmo décrypte le marché français en décembre 2025.
5 résultats
Iad France - Virginie Pincini vous propose : Opportunité Rare - Terrain à Bâtir de 1117 m² à Les Moutiers-en-Retz Réseaux sur voie. Dans un hameau calme, boisé et recherché des Moutiers en Retz, découvrez ce magnifique terrain constructible de 1117 m², idéal pour votre projet personnalisé de construction principale ou secondaire. Situation privilégiée. En voiture 5 minutes du centre des Moutiers en Retz et ses commodités, 7 minutes des plages. 25 minutes de Pornic et 45 minutes de l'aéroport Nantes Atlantique. Le terrain se situe dans un secteur résidentiel offrant un cadre de vie paisible, idéal pour profiter d'un environnement entre nature, océan et commodités. Projet de construction réalisé avec le constructeur TRECOBAT dans le strict respect du cahier des charges. Honoraires d'agence à la charge du vendeur. Bien non soumis au DPE. Les informations sur les risques auxquels ce bien est exposé, y compris l'obligation légale de débroussaillement, sont disponibles sur le site Géorisques : La présente annonce immobilière a été rédigée sous la responsabilité éditoriale de Mme Virginie Pincini mandataire indépendant en immobilier (sans détention de fonds), agent commercial de la SAS I@D France immatriculé au RSAC de Saint-Nazaire sous le numéro 812439503, titulaire de la carte de démarchage immobilier pour le compte de la société I@D France SAS.
Iad france - soizic radigois vous propose : opportunité rare - terrain à bâtir de 900 m² à les moutiers-en-retz réseaux sur voie. Dans un hameau calme, boisé et recherché des moutiers en retz, découvrez ce magnifique terrain constructible de 900 m², idéal pour votre projet personnalisé de construction principale ou secondaire. Situation privilégiée. En voiture 5 minutes du centre des moutiers en retz et ses commodités, 7 minutes des plages. 25 minutes de pornic et 45 minutes de l'aéroport nantes atlantique. Le terrain se situe dans un secteur résidentiel offrant un cadre de vie paisible, idéal pour profiter d'un environnement entre nature, océan et commodités. Projet de construction réalisé avec le constructeur trecobat dans le strict respect du cahier des charges. Honoraires d'agence à la charge du vendeur. Bien non soumis au dpe. Les informations sur les risques auxquels ce bien est exposé, y compris l'obligation légale de débroussaillement, sont disponibles sur le site géorisques : la présente annonce immobilière a été rédigée sous la responsabilité éditoriale de mme soizic radigois mandataire indépendant en immobilier (sans détention de fonds), agent commercial de la sas i@d france immatriculé au rsac de saint nazaire sous le numéro 807638929, titulaire de la carte de démarchage immobilier pour le compte de la société i@d france sas.
Iad france - soizic radigois vous propose : opportunité rare - terrain à bâtir de 1007 m² à les moutiers-en-retz réseaux sur voie. Dans un hameau calme, boisé et recherché des moutiers en retz, découvrez ce magnifique terrain constructible de 1007 m², idéal pour votre projet personnalisé de construction principale ou secondaire. Situation privilégiée. En voiture 5 minutes du centre des moutiers en retz et ses commodités, 7 minutes des plages. 25 minutes de pornic et 45 minutes de l'aéroport nantes atlantique. Le terrain se situe dans un secteur résidentiel offrant un cadre de vie paisible, idéal pour profiter d'un environnement entre nature, océan et commodités. Projet de construction réalisé avec le constructeur trecobat dans le strict respect du cahier des charges. Honoraires d'agence à la charge du vendeur. Bien non soumis au dpe. Les informations sur les risques auxquels ce bien est exposé, y compris l'obligation légale de débroussaillement, sont disponibles sur le site géorisques : la présente annonce immobilière a été rédigée sous la responsabilité éditoriale de mme soizic radigois mandataire indépendant en immobilier (sans détention de fonds), agent commercial de la sas i@d france immatriculé au rsac de saint nazaire sous le numéro 807638929, titulaire de la carte de démarchage immobilier pour le compte de la société i@d france sas.
Iad france - soizic radigois vous propose : opportunité rare - terrain à bâtir de 836 m² à les moutiers-en-retz réseaux sur voie. Dans un hameau calme, boisé et recherché des moutiers en retz, découvrez ce magnifique terrain constructible de 836 m², idéal pour votre projet personnalisé de construction principale ou secondaire. Situation privilégiée. En voiture 5 minutes du centre des moutiers en retz et ses commodités, 7 minutes des plages. 25 minutes de pornic et 45 minutes de l'aéroport nantes atlantique. Le terrain se situe dans un secteur résidentiel offrant un cadre de vie paisible, idéal pour profiter d'un environnement entre nature, océan et commodités. Projet de construction réalisé avec le constructeur trecobat dans le strict respect du cahier des charges. Honoraires d'agence à la charge du vendeur. Bien non soumis au dpe. Les informations sur les risques auxquels ce bien est exposé, y compris l'obligation légale de débroussaillement, sont disponibles sur le site géorisques : la présente annonce immobilière a été rédigée sous la responsabilité éditoriale de mme soizic radigois mandataire indépendant en immobilier (sans détention de fonds), agent commercial de la sas i@d france immatriculé au rsac de saint nazaire sous le numéro 807638929, titulaire de la carte de démarchage immobilier pour le compte de la société i@d france sas.

Recevez en temps réel les dernières annonces correspondant à votre recherche
Iad France - Virginie Pincini vous propose : Opportunité Rare - Terrain à Bâtir de 1098 m² à Les Moutiers-en-Retz Réseaux sur voie. Dans un hameau calme, boisé et recherché des Moutiers en Retz, découvrez ce magnifique terrain constructible de 1098 m², idéal pour votre projet personnalisé de construction principale ou secondaire. Situation privilégiée. En voiture 5 minutes du centre des Moutiers en Retz et ses commodités, 7 minutes des plages. 25 minutes de Pornic et 45 minutes de l'aéroport Nantes Atlantique. Le terrain se situe dans un secteur résidentiel offrant un cadre de vie paisible, idéal pour profiter d'un environnement entre nature, océan et commodités. Projet de construction réalisé avec le constructeur TRECOBAT dans le strict respect du cahier des charges. Honoraires d'agence à la charge du vendeur. Bien non soumis au DPE. Les informations sur les risques auxquels ce bien est exposé, y compris l'obligation légale de débroussaillement, sont disponibles sur le site Géorisques : La présente annonce immobilière a été rédigée sous la responsabilité éditoriale de Mme Virginie Pincini mandataire indépendant en immobilier (sans détention de fonds), agent commercial de la SAS I@D France immatriculé au RSAC de Saint-Nazaire sous le numéro 812439503, titulaire de la carte de démarchage immobilier pour le compte de la société I@D France SAS.
Autres annonces à proximité de Les Moutiers-en-Retz (44760) avec vos critères
Iad france - lucie boue vous propose : secteur bourgneuf en retz - terrain à bâtir de 676 m² ce beau terrain idéalement exposé est proche des commodités et dans un secteur calme. - libre de constructeur - zone ub - compteur d'eau installé et raccordement au tout à l'égout - terrain clôturé a prévoir : *viabilisation en électricité et télécom, les réseaux sont à proximité * raccordement honoraires d'agence à la charge du vendeur. Bien non soumis au dpe. Les informations sur les risques auxquels ce bien est exposé, y compris l'obligation légale de débroussaillement, sont disponibles sur le site géorisques : la présente annonce immobilière a été rédigée sous la responsabilité éditoriale de mme lucie boue mandataire indépendant en immobilier (sans détention de fonds), agent commercial de la sas i@d france immatriculé au rsac de saint nazaire sous le numéro 452564842, titulaire de la carte de démarchage immobilier pour le compte de la société i@d france sas.
Situé dans la charmante commune balnéaire de La Bernerie-en-Retz (44760), ce terrain à bâtir de 1024 m² bénéficie d'un emplacement privilégié à seulement 500 mètres de la plage de la Boutinadière-Crève Coeur. Niché dans un environnement préservé, ce quartier résidentiel recherché offre une parfaite harmonie entre tranquillité et accessibilité, avec des commerces, services et commodités à proximité immédiate. L'accès rapide à des chemins menant directement à la plage permet des moments privilégiés au bord de l'océan, dans une localisation sécurisée, idéale pour construire sans risque de submersion marine. D'une surface idéale pour une construction sur mesure, ce terrain de 1024 m² présente une façade de 25 mètres et une profondeur de 30 mètres, avec un CES de 0.50. Ce terrain non viabilisé dispose des réseaux (électricité, eau, assainissement et télécom) à proximité immédiate pour une viabilisation simplifiée. Parfait pour un projet de construction personnalisé, ce terrain à bâtir en second rideau offre un cadre paisible, propice à la réalisation d'une résidence principale ou secondaire à La Bernerie-en-Retz. Les informations sur les risques auxquels ce bien est exposé sont disponibles sur le site Géorisques : Prix de vente : 317 000 € Honoraires charge vendeur Contactez votre conseiller SAFTI : Dominique FLEURY, Tél. : 06 58 64 58 46, E-mail : dominique.fleury@safti.fr - EI - Agent commercial immatriculé au RSAC de LA ROCHE-SUR-YON sous le numéro 521 318 113.
Situé à 3 km de la mer vous profiterez d'un terrain de loisir clos de 221 m² avec son mobil'home tout confort et tout équipé, exposé sud-est. Dans un parc résidentiel de loisir offrant divers activités estivales durant la saison. Piscine ouverte de juin à septembre. Mobil'home de 35 m² qui comprend : une pièce de vie avec cuisine, 3 chambres, salle d'eau et wc indépendant, terrasse couverte et semi fermé + un chalet bois de 15 m² aménagé avec douche et wc. Les informations sur les risques auxquels ce bien est exposé sont disponibles sur le site géorisques : prix de vente : 113 000 € honoraires charge vendeur contactez votre conseiller safti : dominique fleury, tél. : 06 58 64 58 46, e-mail : dominique.fleury@safti.fr - ei - agent commercial immatriculé au rsac de la roche-sur-yon sous le numéro 521 318 113.
En exclusivité, découvrez ce beau terrain à bâtir de 700 m² déjà en grande partie clôturé, situé en plein cœur du bourg de villeneuve-en-retz 44580, au calme et en troisième rideau, hors lotissement. Vous profiterez d'un environnement paisible tout en étant à proximité immédiate des commodités : - école, bar-tabac et épicerie à 7 minutes à pied - distributeur de pain et pizzas à 3 minutes à pied - port du collet à 7 minutes pour votre bateau - machecoul-saint-même, sainte-pazanne à 10 minutes (super u, collèges) - les plages de la bernerie-en-retz à 15 minutes - pornic à 20 minutes - noirmoutier, le périphérique nantais et l'aéroport à 30 minutes - saint-nazaire à 35 minutes terrain non viabilisé (raccordements à prévoir), avec tout-à-l'égout présent. Libre de constructeur. Possibilité d'une emprise au sol jusqu'à 60%. Argile faible. Idéal pour celles et ceux qui recherchent la tranquillité, tout en restant proche de la côte atlantique. Pour plus d'informations ou organiser une visite, contactez-moi. Les informations sur les risques auxquels ce bien est exposé sont disponibles sur le site géorisques : prix de vente : 89 900 € honoraires charge vendeur contactez votre conseiller safti : damien marchand, tél. : 06 01 15 28 07, e-mail : damien.marchand@safti.fr - ei - agent commercial immatriculé au rsac de nantes sous le numéro 893 184 929.
Chaumes en retz - a 5 minutes du bourg. Très belle parcelle de 1091 m² située en premier rideau, dans une impasse au calme. Façade de 25,58 mètres. Prévoir viabilisation assainissement autonome. Libre de constructeur cette annonce a été rédigée par kevin lamour, agent commercial indépendant immatriculé au rsac de st nazaire sous le n°932713449 pour l'agence compliss'immo située à saint jean de boiseau.
Profitez du ptz et de la baisse des taux pour votre futur projet de construction sur un terrain à bâtir de 381 m² non viabilisé (réseaux en façade) situé sur la commune de saint-hilaire-de-chaléons 44680 en hameau, proche de la commune de sainte pazanne et du bord de mer (les moutiers en retz, la bernerie et pornic) libre de constructeur pour votre futur projet d'une maison de plain pied ou r + 1 prix de vente 88 500 euros dont 5,99 % honoraires inclus à la charge de l'acquéreur soit 83 500 euros net vendeur pour visiter et vous accompagner dans votre projet, contacter patrice vasseux au 06 51 35 24 61 ou par mail : p.vasseux@proprietes-privees.com selon l'article l. 561.5 du code monétaire et financier, pour l'organisation de la visite, la présentation d'une pièce d'identité vous sera demandée. Cette présente annonce a été rédigée sous la responsabilité éditoriale de patrice vasseux agissant sous le statut d'agent commercial immatriculé au rsac nantes2016ac00022 auprès de sas proprietes privees, au capital de 44 920 euros, zac le chêne ferré - 44 allée des cinq continents 44120 vertou; siret 487 624 777 00040, rcs nantes. Carte professionnelle transactions sur immeubles et fonds de commerce (t) et gestion immobilière (g) n° cpi 4401 2016 000 010 388 délivrée par la cci nantes-saint nazaire. Compte séquestre n° 309 32 50 84 67 bpa saint-sebastien-sur-loire (44230) ; garantie galian-smabtp - 89 rue de la boétie, 75008 paris - n° 28137 j pour 2 000 000 euros pour t et 120 000 euros pour g. Assurance responsabilité civile professionnelle par galian-smabtp n° de police 28137. J mandat réf : 421766 - le professionnel garantit et sécurise votre projet immobilier. (5.99 % honoraires ttc à la charge de l'acquéreur.) patrice vasseux (ei) agent commercial - numéro rsac : nantes2016ac00022 -. Les informations sur les risques auxquels ce bien est exposé sont disponibles sur le site géorisques : www. Georisques. Gouv. Fr.
Iad france - lucie boue vous propose : terrain à bâtir dans un hameau, à chaumes en retz - cadre verdoyant et calme. Beau et grand terrain arboré, situé dans un hameau paisible sur le secteur de chéméré, idéal pour les amoureux de la nature et de la tranquillité. Ce grand terrain offre un environnement agréable, parfait pour réaliser votre projet de construction dans un cadre naturel et sain. * une partie en zone ubm avec une limite d'implantation et une autre partie en zone a. * libre de constructeur * non viabilisé contactez-moi pour plus de renseignements ! Honoraires d'agence à la charge du vendeur. Bien non soumis au dpe. Les informations sur les risques auxquels ce bien est exposé, y compris l'obligation légale de débroussaillement, sont disponibles sur le site géorisques : la présente annonce immobilière a été rédigée sous la responsabilité éditoriale de mme lucie boue mandataire indépendant en immobilier (sans détention de fonds), agent commercial de la sas i@d france immatriculé au rsac de saint nazaire sous le numéro 452564842, titulaire de la carte de démarchage immobilier pour le compte de la société i@d france sas.
Profitez du ptz et de la baisse des taux pour votre futur projet de construction sur un terrain à bâtir de 425 m² non viabilisé (réseaux en façade) situé sur la commune de saint-hilaire-de-chaléons 44680 en hameau, proche de la commune de sainte pazanne et du bord de mer (les moutiers en retz, la bernerie etc. ) libre de constructeur pour votre futur projet d'une maison de plain pied ou r + 1 prix de vente 79 990 euros dont 5,25 % honoraires inclus à la charge de l'acquéreur soit 76 000 euros net vendeur pour visiter et vous accompagner dans votre projet, contacter patrice vasseux au 06 51 35 24 61 ou par mail : p.vasseux@proprietes-privees.com selon l'article l. 561.5 du code monétaire et financier, pour l'organisation de la visite, la présentation d'une pièce d'identité vous sera demandée. Cette présente annonce a été rédigée sous la responsabilité éditoriale de patrice vasseux agissant sous le statut d'agent commercial immatriculé au rsac nantes2016ac00022 auprès de sas proprietes privees, au capital de 44 920 euros, zac le chêne ferré - 44 allée des cinq continents 44120 vertou; siret 487 624 777 00040, rcs nantes. Carte professionnelle transactions sur immeubles et fonds de commerce (t) et gestion immobilière (g) n° cpi 4401 2016 000 010 388 délivrée par la cci nantes-saint nazaire. Compte séquestre n° 309 32 50 84 67 bpa saint-sebastien-sur-loire (44230) ; garantie galian-smabtp - 89 rue de la boétie, 75008 paris - n° 28137 j pour 2 000 000 euros pour t et 120 000 euros pour g. Assurance responsabilité civile professionnelle par galian-smabtp n° de police 28137. J mandat réf : 421767 - le professionnel garantit et sécurise votre projet immobilier. (5.25 % honoraires ttc à la charge de l'acquéreur.) patrice vasseux (ei) agent commercial - numéro rsac : nantes2016ac00022 -.
Iad France - Kevin Foucault vous propose : Terrain à bâtir 425 m² à Saint Hilaire de Chaléons Belle parcelle rectangulaire de 425 m², non viabilisé mais possédant tous les réseaux nécessaires en bordure de terrain. Grâce à sa façade de plus de 20 mètres une maison de plein pied ou à étage est réalisable avec une exposition Sud Ouest sur le jardin. Idéalement situé au carrefour de Sainte Pazanne, Arthon en Retz et Le pellerin vous bénéficierez d'un environnement calme et boisé tout en profitant des commerces et services de ces différentes communes dans un rayon de 10 minutes. Honoraires d'agence à la charge du vendeur. Bien non soumis au DPE. Les informations sur les risques auxquels ce bien est exposé, y compris l'obligation légale de débroussaillement, sont disponibles sur le site Géorisques : La présente annonce immobilière a été rédigée sous la responsabilité éditoriale de M Kevin Foucault mandataire indépendant en immobilier (sans détention de fonds), agent commercial de la SAS I@D France immatriculé au RSAC de NANTES sous le numéro 921412706, titulaire de la carte de démarchage immobilier pour le compte de la société I@D France SAS.
Situé dans le bourg sur la commune de bouin, à 5min de la mer et de ses ports de pêche, 10min de villeneuve-en-retz, 20min de pornic, 20min des plages vendéennes, 50min de nantes. Cyrille martineau vous propose ce beau terrain constructible non viabilisé de 786 m², idéal pour concrétiser votre future construction. Placé en second rideau, il offre un cadre paisible tout en bénéficiant de la proximité immédiate des commerces et des commodités. La parcelle d'environ 21m de large et 33m de profondeur, est clos sur trois côtés, vous permettant d'imaginer facilement l'implantation de votre habitation. Une belle opportunité pour donner vie à votre projet résidentiel dans un environnement pratique et agréable. Une visite s'impose ! Les informations sur les risques auxquels ce bien est exposé sont disponibles sur le site géorisques : prix de vente : 68 800 € honoraires charge vendeur contactez votre conseiller safti : cyrille martineau, tél. : 06 42 84 44 39, e-mail : cyrille.martineau@safti.fr - ei - agent commercial immatriculé au rsac de la roche-sur-yon sous le numéro 887 793 263.
Découvrez ce grand terrain constructible de 1695 m² situé à bouin, dans un environnement calme et agréable, à proximité du bourg et des commodités. Le terrain est uniquement viabilisé en eau et dispose d'une étude de sol déjà réalisée. Idéal pour votre projet de construction, résidence principale ou secondaire. Une belle opportunité pour s'installer sur la côte vendéenne, entre marais et océan. Les informations sur les risques auxquels ce bien est exposé sont disponibles sur le site géorisques : prix de vente : 66 000 € honoraires charge vendeur contactez votre conseiller safti : lucas raballand, tél. : 06 32 33 88 15, e-mail : lucas.raballand@safti.fr - ei - agent commercial immatriculé au rsac de la roche-sur-yon sous le numéro 933604274.
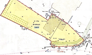
Terrain constructible de 786 m², en partie clos et sans vis à vis, libre de constructeur (lot A). À viabiliser; les réseaux (eau, électricité, assainissement) sont proches, facilitant les travaux de raccordement. Plan du lot disponible en annexe. 20m de façade et l'etude de sol ne révèle pas de surcoût sur la constrcution (rare pour le secteur). Honoraires à la charge du vendeur. Lien georisques : pour plus d'informations techniques, la consultation du plan et l'organisation d'une visite.
PORNIC, à 1,3 km de la plage de la fontaine aux bretons, ce très joli terrain vous offre la liberté de construire la maison dont vous rêvez ! Libre de constructeur, venez imaginer votre future habitation ! Référence agence : 3112.
Terrains viabilisés de 321 m² à 507 m², libres de constructeur sur la commune de Pornic, en Loire-Atlantique. Découvrez notre nouvelle opération de 10 lots "Les Jardins de Roxane" située route de Saint-Père-en-Retz. Ville côtière pittoresque à seulement 25 minutes de Saint-Nazaire et moins d'une heure de Nantes. Sa proximité avec la mer offre un savoureux mélange touristique et résidentiel, on y distingue d'ailleurs presque 40% de résidences secondaires. Ce qui en fait une destination touristique par excellence ainsi qu'un bel endroit où vivre à l'année. Acheter un terrain à Pornic c'est également bénéficier de nombreuses activités culturelles et sportives. C'est bien plus qu'une destination de vacances idylliques. C'est un endroit propice pour y vivre. Pornic propose à ses habitants un large éventail de services et équipements indispensables au quotidien : Écoles, collèges, hypermarché, supermarchés, magasins de vêtements, boulangeries, pharmacies, restaurants, cabinet médical. Retrouvez l'ensemble de nos lots disponibles sur notre site internet.
À proximité des commodités, terrain constructible viabilisé en eau seulement et un empierrement sur le côté avec une bonne exposition et une magnifique vue la faune et la flore. Honoraires à la charge du vendeur. Lien géorisque : / .
Iad France - Mickaële Jaulin vous propose : Terrain à Bâtir de 383 m² à Chaumes-en-Retz entièrement clôturé, emplacement en campagne proche de toutes commoditées (5 mns en voiture) dans un cadre calme et verdoyant, ce terrain offre un potentiel pour concrétiser votre projet de construction sur-mesure. Les viabilités essentielles telles que l'eau potable sont déjà connectées au terrain, la mise en place d'une micro station est à prévoir, garantissant ainsi une gestion autonome des eaux usées, à viabiliser en électricité (coffret électrique vide en place) Vous souhaitez en savoir plus sur ce terrain à bâtir à Chaumes-en-Retz et envisagez la construction de votre futur maison contactez moi pour programmer une visite. Honoraires d'agence à la charge du vendeur. Bien non soumis au DPE. Les informations sur les risques auxquels ce bien est exposé, y compris l'obligation légale de débroussaillement, sont disponibles sur le site Géorisques : La présente annonce immobilière a été rédigée sous la responsabilité éditoriale de Mme Mickaële Jaulin mandataire indépendant en immobilier (sans détention de fonds), agent commercial de la SAS I@D France immatriculé au RSAC de Saint-Nazaire sous le numéro 853783165, titulaire de la carte de démarchage immobilier pour le compte de la société I@D France SAS.
Situé en plein centre-bourg de saint-hilaire-de-chaléons, ce terrain à bâtir libre de constructeur d'environ 483 m² représente une belle opportunité pour concrétiser votre projet de construction dans un environnement pratique et verdoyant. Vous profiterez d'un emplacement privilégié au cœur du bourg et à quelques minutes de la gare sncf. Ce terrain offre un cadre calme et préservé, tout en bénéficiant de la proximité immédiate des commerces, écoles, services municipaux et vie locale accessibles à pied, permettant un quotidien facile et agréable. Ce terrain offre de multiples possibilités d'aménagement permettant d'imaginer une maison familiale avec jardin ou un projet patrimonial, tout en profitant d'un emplacement privilégié au cœur de la commune. Les atouts : libre de constructeur emplacement central dans le bourg a 500 mètres de la gare sncf commerces, écoles et services à pied pour plus d'informations ou organiser une visite, contactez-moi dès maintenant. Les honoraires d'agence sont à la charge de l'acquéreur, soit 7,51% ttc du prix hors honoraires. Les informations sur les risques auxquels ce bien est exposé sont disponibles sur le site géorisques : www. Georisques. Gouv. Fr. Réseau immobilier capifrance - votre agent commercial (rsac n°921 222 576 - greffe de saint nazaire) audrey gautier entrepreneur individuel 06 33 63 66 02 - réf. 945403.
Ce terrain à bâtir est situé à 1km de toutes les commodités, il est vendu non-viabilisé et libre de constructeur. Avec une exposition idéale (Sud-Ouest), il vous permettra de réaliser votre projet de vie avec peu de contraintes urbanistiques puisqu'il est situé en zone Ub du PLU. De plus, la parcelle possède un puits pour l'arrosage. Enfin, il permet d'avoir un emprise au sol de 60% de la parcelle et possède un chemin d'accès privatif. Pour visiter ce terrain situé dans son écrin de verdure, un seul numéro : 02 85 52 84 94. Référence du bien : 1747C.
Pornic 44210 sainte marie bourg terrain constructible (en cours de division) a pornic, dans le charmant bourg de sainte-marie, ce terrain de 713 m², en 2ème rideau, offre un cadre idéal. Il permet la construction d'une maison de plain-pied, à proximité immédiate du stade, des écoles, des commerces, et de la plage. Prix : 280 000 euros hai dont 4 % d'honoraires). Soit 269 230 euros hors honoraires. Travaux d'aménagement et de viabilisation à prévoir. Une belle opportunité dans un secteur très recherché ! Budget 280 000 euros hai (dont 4 % d'honoraires à la charge de l'acquéreur) soit 269 230 euros hors honoraires. Parcelle permettant la construction d'une maison de plain pied exclusivement. Bénéficiant d'un double garage. En zone ub du plu pour visiter et vous accompagner dans votre projet, contactez laurence galland, au 06 03 00 41 28 ou, par courriel à l.galland@proprietes-privees.com. Selon l'article l. 561.5 du code monétaire et financier, pour l'organisation de la visite, la présentation d'une pièce d'identité vous sera demandée. Cette présente annonce a été rédigée sous la responsabilité éditoriale de laurence galland agissant sous le statut d'agent commercial immatriculé au rsac saint nazaire 878553627 auprès de sas proprietes privees, au capital de 44 920 euros, zac le chêne ferré - 44 allée des cinq continents 44120 vertou; siret 487 624 777 00040, rcs nantes. Carte professionnelle transactions sur immeubles et fonds de commerce (t) et gestion immobilière (g) n°cpi 4401 2016 000 010 388 délivrée par la cci nantes - saint nazaire. Compte séquestre n°309 32 50 84 67 bpa saint-sebastien-sur-loire (44230). Garantie galian-smabtp - 89 rue de la boétie, 75008 paris - n°28137 j pour 2 000 000 euros pour t et 120 000 euros pour g. Assurance responsabilité civile professionnelle par galian-smabtp n° de police 28137. J mandat réf : 438 895 - le professionnel garantit et sécurise votre projet immobilier. (4.00 % honoraires ttc à la charge de l'acquéreur.) les informations sur les risques auxquels ce bien est exposé sont disponibles sur le site géorisques : www. Georisques. Gouv. Fr.
AJP immobilier : Emplacement idéal à proximité immédiate du super U et du bourg, 6 terrains à bâtir viabilisés (eau, électricité, télécom, tout à l'égout) de 392 m² à 416 m² en premier rideau et libre de constructeur. Possibilité construction maison plain-pied ou étage. Contactez nous pour plus de renseignements et documentations. Référence 3313bg (7.50 % d'honoraires TTC à la charge de l'acquéreur.).

Prix au m², taux de crédit, régions en hausse, villes en correction et impact du DPE : le baromètre immobilier Lesiteimmo décrypte le marché français en décembre 2025.

Le marché immobilier débute 2026 dans une phase d’équilibre. Taux de crédit autour de 3 %, stabilisation des prix, pouvoir d’achat en reconstruction et comparatif de départements : découvrez notre baromètre bimestriel Janvier–Février 2026 pour comprendre où et comment acheter intelligemment.

Acheter maintenant ou attendre encore ? En 2026, cette hésitation peut coûter plus cher qu’une décision imparfaite. Marché plus rationnel, crédit sélectif, prix segmentés : pourquoi l’attentisme devient parfois la vraie erreur immobilière.