8 résultats
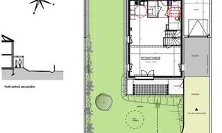
À vendre - Maison de village de 171 m² avec grange aménageable -A proximité de Vif belle maison se trouvant à Saint-Martin-de-la-Cluze (38650) Exposition plein sud | Jardin | Terrasse | 5 chambres | Atelier | Panneaux solaires | Pompe à chaleur Située dans un environnement calme et verdoyant, découvrez cette spacieuse maison mitoyenne de 171 m², exposée plein sud, implantée sur une parcelle de 1 147 m². Elle offre de très belles prestations, de vastes volumes et un potentiel d'aménagement supplémentaire grâce à une grange attenante. Agencement intérieur : 5 chambres, dont une suite parentale et une chambre aménagée avec salle d'eau privative (douche, meuble vasque, WC), idéale pour une activité de chambre d'hôte. Toutes les chambres disposent de placards. Une salle de bain principale avec baignoire, double vasque et WC. Une deuxième salle d'eau avec douche, meuble simple vasque et WC. Un salon en demi-niveau, une salle à manger lumineuse et une cuisine équipée. Un cellier, une buanderie et une cave complètent l'ensemble. Dépendance : Une grange de 100 m² à fort potentiel, avec une toiture refaite en 2008, comprenant déjà un atelier aménagé. Nombreuses possibilités d'aménagement : habitation, gîte, espace professionnel ou créatif. Extérieurs : Une belle terrasse bien exposée (exposition Sud). Et une terrasse côté jardin. Un jardin arboré, sans vis-à-vis disposant d'un abri de jardin et un accès à l'eau de source. Deux places de parking privatives. Confort & équipements : Poêle de masse scandinave + pompe à chaleur pour un confort thermique optimal. Fenêtres et volets roulants en aluminium côté sud, double vitrage bois avec volets bois sur l'autre façade. Panneaux solaires (25 m²) couvrant la totalité des dépenses en électricité et bois. Taxe foncière : 1 145 €. Localisation : Saint-Martin-de-la-Cluze est une commune agréable, à moins de 30 minutes de Grenoble, avec un accès facile aux grands axes. Vous y trouverez le calme, la nature et un cadre de vie paisible, idéal pour une résidence principale ou un projet touristique. Contact : Mme Julie ALLEMAND au 06 71 85 65 93 ou mail : espaceimmo38.allemand@gmail.com Les honoraires sont à la charge du vendeur. La présente annonce immobilière a été rédigée par Mme ALLEMAND Julie, immatriculée au RCS de Grenoble sous le n° 811988682 Les informations obligatoires sur les risques auxquels ce bien peut être exposé sont disponibles sur le site Géorisques : - LSI_1766553860.
VIF, rue Champollion Maison de type 5 pièces plus cuisine d'environ 109 m². Au rez-de-chaussée un espace polyvalent d'environ 14 m² pouvant faire office de buanderie, un accès direct à un jardin privatif d’environ 34 m², un grand garage de 26 m². Au 1er étage une cuisine fonctionnelle d’environ 10 m², ouverte sur un balcon de 6 m², un bel espace salon / salle à manger de 25 m². Au 2e étage une première chambre d’environ 9 m², deux autres chambres d’environ 10 m² chacune, une salle de bain et un dressing indépendant. Chauffage au gaz, DPE Cat. C montant estimé des dépenses d'énergie pour un usage standard entre 1490 € et 2060 € (prix moyens des énergies indexés sur les années 2021,2022, 2023 (abonnements compris). Prix : 259 000 € Hono. Charge Vendeur.
Iad france - rachel di maria vous propose : vif le crozet _ maison individuelle 196 m² _ parcelle 1796 m² nichée dans un écrin de verdure, cette maison individuelle pleine de charme offre un cadre de vie paisible et privilégié, où la nature s’invite au quotidien. Édifiée sur une belle parcelle arborée de 1 796 m², elle séduira les amateurs d’authenticité, d’espace et de douceur de vivre. La maison développe 196 m² habitables répartis sur plusieurs niveaux, offrant une organisation idéale pour une grande famille : au rdc : une véritable entrée, un salon secondaire au coin de la cheminée, deux chambres dont une avec espace salle d'eau, une buanderie, un wc et un atelier. Au premier : une pièce de vie chaleureuse avec cuisine, séjour et salle à manger, trois chambres, une salle de bain, un deuxième wc. Les combles aménagés viennent compléter l’ensemble, offrant un espace cosy supplémentaire : salle de jeux, coin détente, bureau ou chambre d’appoint selon vos envies. À l’extérieur, le jardin arboré, soigneusement entretenu, crée une véritable atmosphère bucolique, propice à la détente, aux moments partagés en famille et aux longues soirées d’été. Vous apprécierez également l'espace barbecue abrité. Terrain piscinable et constructible. Chauffage au fuel (chaudière récente), poêle à bois, cheminée à foyer ouvert, menuiseries double vitrage aluminium et simple vitrage au rdc, assainissement collectif, taxe foncière : 2542€ une maison rare, chaleureuse et généreuse, idéale pour ceux qui recherchent le charme, l’espace et la nature, sans compromis sur le confort de vie. Honoraires d'agence à la charge du vendeur. Information d'affichage énergétique sur ce bien : classe energie e indice 281 et classe climat e indice 67. Les informations sur les risques auxquels ce bien est exposé, y compris l'obligation légale de débroussaillement, sont disponibles sur le site géorisques : la présente annonce immobilière a été rédigée sous la responsabilité éditoriale de mme rachel di maria mandataire indépendant en immobilier (sans détention de fonds), agent commercial de la sas i@d france immatriculé au rsac de grenoble sous le numéro 809693583, titulaire de la carte de démarchage immobilier pour le compte de la société i@d france sas.
Iad France - Karla Curi vous propose : VIF- Avenue de la Gare- Située sur la commune de Vif, à proximité de toutes commodités, cette maison de ville, mitoyenne des deux côtés, allie espace et confort. Dès l’entrée, vous serez séduit par une grande pièce de vie de plus de 50 m² composée d’une salle à manger, d'un WC indépendant, d’une cuisine équipée avec de nombreux rangements et d’un salon lumineux donnant directement accès à un extérieur privatif de 150 m² environ. Cet espace comprend une piscine, un coin barbecue, un cabanon et un agréable espace vert. À l’étage, vous trouverez une première chambre spacieuse avec son dressing de plus de 2,56 m², ainsi qu’un WC indépendant situé à proximité. Une seconde chambre, équipée d’un rangement et d’un petit espace mezzanine, offre un aménagement fonctionnel. La troisième chambre, une véritable suite parentale de plus de 20 m² au sol, séduit par ses rangements encastrés, son puits de lumière, sa cheminée et sa baignoire, créant une atmosphère chaleureuse et intimiste. Enfin, a bout du couloir et après avoir monté quelques marches, une quatrième chambre avec rangements s'offre à vous. Elle bénéficie d’un accès direct à l’extérieur. Au dernier niveau de la maison, une spacieuse salle de bain vous attend, agrémentée d’une grande douche à l’italienne, d’un espace buanderie, de nombreux rangements et d’un sèche-serviette. La maison est équipée d’un système de chauffage au gaz avec une chaudière à condensation récente (2022), d’une aspiration centralisée et d’une VMC pour un bien-être au quotidien. Deux places de stationnement ainsi qu'une cave spacieuse viennent parfaire ce bien. Taxe foncière : 1395 euros Attention : Le bien sera disponible à partir de juillet 2026. Honoraires d'agence à la charge du vendeur. Information d'affichage énergétique sur ce bien : classe ENERGIE C indice 161 et classe CLIMAT C indice 21. Les informations sur les risques auxquels ce bien est exposé, y compris l'obligation légale de débroussaillement, sont disponibles sur le site Géorisques : La présente annonce immobilière a été rédigée sous la responsabilité éditoriale de Mme Karla Curi mandataire indépendant en immobilier (sans détention de fonds), agent commercial de la SAS I@D France immatriculé au RSAC de GRENOBLE sous le numéro 894252360, titulaire de la carte de démarchage immobilier pour le compte de la société I@D France SAS.

Recevez en temps réel les dernières annonces correspondant à votre recherche
Iad France - Jérôme Errico vous propose : Une maison pour une vie de famille épanouie, entre dedans et dehors - à Vif (38450) - 4 chambres - Bureau - Piscine - Jardin - Terrasse - Plus qu’une maison, un lieu où créer vos plus beaux souvenirs ! Dans un environnement résidentiel très calme et verdoyant, découvrez cette belle maison familiale de 208 m² habitables, rénovée avec goût et sans travaux, érigée sur trois niveaux, est lovée au cOEur d’une parcelle arborée de 925 m² avec piscine enterrée. Une maison rare, pensée pour accueillir chaque membre de la famille et offrir un véritable art de vivre. Le rez-de-chaussée – Le cOEur de la vie quotidienne - L'espace des adultes A votre arrivée, vous êtes accueillis dans une entrée spacieuse et lumineuse, puis vous vous dirigez vers la belle pièce de vie avec de larges ouvertures et une double orientation (Est et Sud) en accès direct avec l'extérieur. Le séjour double est propice à vos moments de détente ainsi qu'aux grandes tablées du week-end. La véranda baignée de lumière devient une extension naturelle de la cuisine, parfaite pour prolonger les beaux jours quelle que soit la saison et s'ouvre sur la terrasse en bois. La cuisine, conviviale et fonctionnelle, vous permet de préparer vos plats quotidiens et mijoter vos meilleurs plats culinaires. Une suite parentale récente avec des rangements muraux et une salle d’eau privative offre un confort optimal au couple. Le local technique, avec la présence de la machinerie de la piscine, donne accès à une mezzanine qui offre un espace de stockage important, ainsi qu'au jardin côté piscine. L’étage – Le refuge familial Un escalier mène à l’espace nuit, véritable cocon de sérénité. Il accueille 3 chambres, dont 1 avec une mezzanine, lumineuses, spacieuses et confortables, adaptées à la vie de famille, ainsi qu’une salle d'eau en teck avec un espace toilettes. Un bureau complète le niveau. Un étage pensé pour les enfants, les ados ou tout simplement pour offrir à chacun son espace de tranquillité. Le sous-sol – Des espaces supplémentaires Polyvalent et modulable, ce niveau offre de multiples possibilités : salle de jeux pour les enfants, home cinéma, salle de sport, deux chambres d'amis supplémentaires ou bureau indépendant pour télétravailler. Faîtes votre choix ! Une salle d'eau et des toilettes, apportent un confort pratique au quotidien. Une grande cave, par laquelle vous pouvez rejoindre la terrasse et la véranda par une rampe, offre des espaces de stockage supplémentaires et complète ce niveau. Un art de vivre dedans-dehors À l’extérieur, le jardin clos et arboré est une véritable invitation à la convivialité. La piscine enterrée, ensoleillée et sécurisée, devient le théâtre des journées d’été. La terrasse accueille repas et la pergola vos soirées entre amis, tandis que chaque saison offre son charme : lecture au soleil d’automne, repas de printemps ou bains de soleil estivaux. Un abri de jardin offre une nouvelle fois un espace de stockage confortable. La cour vous permet de stationner confortablement plusieurs véhicules. Une situation idéale : la maison se situe à proximité immédiate des commodités (650m du centre de Vif) : commerces, transports, écoles, collège et des axes de communication, tout en préservant un environnement très calme et verdoyant. Une maison rare, où confort, espace et art de vivre se conjuguent au quotidien. Venez la découvrir, et laissez-vous séduire par son potentiel et ses promesses de moments inoubliables. Honoraires d'agence à la charge du vendeur. Information d'affichage énergétique sur ce bien : classe ENERGIE C indice 115 et classe CLIMAT B indice 9. Les informations sur les risques auxquels ce bien est exposé, y compris l'obligation légale de débroussaillement, sont disponibles sur le site Géorisques : La présente annonce immobilière a été rédigée sous la responsabilité éditoriale de M Jérôme Errico mandataire indépendant en immobilier (sans détention de fonds), agent commercial de la SAS I@D France immatriculé au RSAC de GRENOBLE sous le numéro 903516490, titulaire de la carte de démarchage immobilier pour le compte de la société I@D France SAS.
Iad France - Nadine Simler vous propose : Elégante demeure d'Exception du XIXe siècle, d'une superficie de 237 m², située au cOEur de Vif - Cette maison de caractère, chargée d'histoire, allie le charme de l'ancien à des prestations modernes pour offrir un cadre de vie unique et raffiné. La demeure se compose de 7 pièces principales, dont 5 magnifiques chambres, idéales pour accueillir une grande famille ou pour aménager des espaces de travail ou de loisirs. L'intérieur respire l'élégance et le confort, avec une salle à manger, un séjour lumineux, deux salles d'eau, une salle de bain, une cuisine spacieuse et une buanderie pratique. L'extérieur de la maison ne manque pas de charme non plus, avec une belle terrasse offrant un espace extérieur privilégié pour profiter des journées ensoleillées. L'ensemble est implanté sur un terrain de 504 m², offrant un magnifique cadre de verdure et un environnement paisible. Dans un excellent état global, cette demeure bénéficie de nombreux équipements et commodités pour un confort de vie optimal. Vous pourrez profiter des équipements de confort tels que la fibre optique, le chauffage individuel au gaz naturel, des menuiseries en double vitrage récentes. De plus, la maison dispose d'un sous sol complet ainsi que d'un spacieux garage pour abriter votre véhicule en toute sécurité. Située plein sud, cette demeure bénéficie d'une exposition idéale pour profiter de la luminosité naturelle tout au long de la journée. Son emplacement central à Vif vous permettra de rejoindre rapidement les commerces, les écoles et les différents points d'intérêt de la commune. Cette maison de maître, pleine de cachet et d'authenticité, est une véritable pépite immobilière à découvrir sans plus attendre. Laissez-vous séduire par son charme intemporel et ses prestations haut de gamme. Un véritable coup de cOEur en perspective ! Visite virtuelle disponible sur demande. Honoraires d'agence à la charge du vendeur. Information d'affichage énergétique sur ce bien : classe ENERGIE E indice 233 et classe CLIMAT E indice 51. Les informations sur les risques auxquels ce bien est exposé, y compris l'obligation légale de débroussaillement, sont disponibles sur le site Géorisques : La présente annonce immobilière a été rédigée sous la responsabilité éditoriale de Mme Nadine Simler mandataire indépendant en immobilier (sans détention de fonds), agent commercial de la SAS I@D France immatriculé au RSAC de grenoble sous le numéro 789277811, titulaire de la carte de démarchage immobilier pour le compte de la société I@D France SAS.
Iad France - Stéphane Gandit vous propose : Charmante Maison Traditionnelle de 120 m² + dépendance de 40 m² sur un Terrain de 1000 m² à Vif Située dans la paisible commune de Vif, cette maison traditionnelle offre un cadre de vie idyllique pour toute la famille. Construite avec de très bon matériaux et rénovée entièrement avec soin, elle se dresse sur un terrain verdoyant de 1000 m² offrant espace et tranquillité. Au rez-de-chaussée, vous trouverez un bel espace de vie comprenant un salon, une salle à manger, une cuisine équipée, un toilette, et à l’étage trois chambres confortables dont 2 donnant sur un balcon terrasse, une salle de bain et un toilette. La maison bénéficie également d'une terrasse pour profiter des beaux jours en toute intimité. Les équipements sont de qualité avec notamment la fibre optique pour une connexion internet rapide et fiable. La sécurité est assurée avec une entrée sécurisée anti-intrusion. Le chauffage individuel au gaz naturel (Chaudière FRISQUET remplacée en 2021) ainsi que l’installation de 2 panneaux solaires pour la production de l’eau chaude sanitaire, garantit un confort optimal tout au long de l'année. La toiture à également été entièrement refaite en 2019. Côté dépendance, un studio de 40 m² aux normes PMR indépendant construit en 2016 avec tous le confort moderne, cuisine équipée, salon salle a manger et salle d’eau avec douche à l’italienne, Wc, Hall avec grand placard, avec chauffage individuelle climatisation réversible. Et une belle terrasse. De plus une annexe atelier ou stockage d’environ 20 m² est présente sur le terrain. Pour votre véhicule, un garage est à votre disposition ainsi que plusieurs places de parking sur la propriété. Si vous recherchez un lieu paisible pour vous ressourcer, cette maison est faite pour vous. Ne manquez pas cette opportunité rare d'acquérir une maison traditionnelle rénovée avec goût à Vif. Contactez-nous dès maintenant pour organiser une visite. Honoraires d'agence à la charge du vendeur. Information d'affichage énergétique sur ce bien : classe ENERGIE D indice 145 et classe CLIMAT D indice 30. Les informations sur les risques auxquels ce bien est exposé, y compris l'obligation légale de débroussaillement, sont disponibles sur le site Géorisques : La présente annonce immobilière a été rédigée sous la responsabilité éditoriale de M Stéphane Gandit mandataire indépendant en immobilier (sans détention de fonds), agent commercial de la SAS I@D France immatriculé au RSAC de Vienne sous le numéro 440884450, titulaire de la carte de démarchage immobilier pour le compte de la société I@D France SAS.
Iad france - valentine zekhnini vous propose : maison individuelle de 200 m² – terrain constructible de 2300 m² environ- 5 chambres avec leur salle d'eau- garage - atelier- un appartement t2 indépendant. Dans un environnement calme et verdoyant, découvrez cette belle maison en excellent état, implantée sur un terrain de 2 392 m² sans vis-à-vis, à proximité immédiate de la nature et des sentiers de randonnée. La pièce de vie principale, située à l’étage, se compose d’une cuisine équipée récente ouverte sur un séjour lumineux, avec accès à une grande terrasse offrant une vue dégagée sur la campagne. Ce niveau comprend également deux chambres, une salle de bains, une salle d’eau et des wc séparés. À l’étage supérieur, deux grandes suites avec salle d’eau et wc assurent confort et intimité. En rez-de-chaussée, un appartement t2 indépendant avec terrasse et accès jardin constitue un vrai plus, idéal pour un projet locatif ou pour recevoir. Vous bénéficiez également d’un grand garage de 55 m², d’un atelier de 27 m² et d’une buanderie. Maison économe (dpe c / c) avec pompe à chaleur récente, panneaux solaires (revente d’électricité) et équipements confortables. Le gua : écoles, commerces, activités. Vif à 10 min. Un bien rare à découvrir sans tarder. Honoraires d'agence à la charge du vendeur. Information d'affichage énergétique sur ce bien : classe energie c indice 154 et classe climat c indice 12. Les informations sur les risques auxquels ce bien est exposé, y compris l'obligation légale de débroussaillement, sont disponibles sur le site géorisques : la présente annonce immobilière a été rédigée sous la responsabilité éditoriale de mme valentine zekhnini mandataire indépendant en immobilier (sans détention de fonds), agent commercial de la sas i@d france immatriculé au rsac de grenoble sous le numéro 852751486, titulaire de la carte de démarchage immobilier pour le compte de la société i@d france sas.
Autres annonces à proximité de Vif (38450) avec vos critères
Iad france - marie-rose gilles (06 98 85 33 80) vous propose : votre maison individuelle neuve lumineuse et ensoleillée à saint-paul-de-varces et profitez des frais de notaire réduits. Bénéficiant d'une situation privilégiée, vous serez à 5 minutes à pied des écoles, à 10 minutes en voiture des commerces et à 20 minutes de grenoble. Les prestations de cette belle maison plein sud - ouest : - chauffage et la production d’eau chaude sanitaire sera assuré par une pompe à chaleur air-eau. - vre - wc suspendu - porte palière anti-effraction, niveau a2p * - peinture sur les murs - carrelage 45x45 dans les pièces de vie - revêtement stratifié dans les chambres contactez moi pour toute information complémentaire. Nous pourrons nous rendre sur place pour mieux visualiser l'emplacement de la maison. Honoraires d’agence à la charge du vendeur. Bien non soumis au dpe. Les informations sur les risques auxquels ce bien est exposé sont disponibles sur le site géorisques : . La présente annonce immobilière a été rédigée sous la responsabilité éditoriale de mlle marie-rose gilles ei (id 83761), mandataire indépendant en immobilier (sans détention de fonds), agent commercial de la sas i@d france immatriculé au rsac de grenoble sous le numéro 478110612, titulaire de la carte de démarchage immobilier pour le compte de la société i@d france sas. Retrouvez tous nos biens sur notre site internet. .
Iad France - Jessica Sanfilippo vous propose : Saint Paul de Varces - Impasse / Maison individuelle / Construction récente 2015 - RT 2012 / Terrain 1900 m² / Habitable : 143 m² + Surface annexes : 71 m² = Total 214 m² / Jardin - Terrasse - Piscine / Belles prestations / Trois chambres - Mezzanine / Garage - Abri voiture - Cellier / Dépendance de 40 m² Située sur la commune de Saint Paul de Varces, cette maison bénéficie d'un agencement et d’un emplacement idéal pour son calme, l’absence de vis-à-vis et un ensoleillement optimisé. Venez découvrir cette belle maison familiale récente avec sa piscine, sa terrasse avec pergola et son jardin paysagé. Rez-de-chaussée Dès que vous franchirez la porte d’entrée, vous serez accueilli dans une entrée avec placard et WC. Dans le prolongement, le salon-séjour lumineux avec cuisine ouverte offre une superficie totale de 53 m². Cette pièce de vie s’ouvre sur la terrasse et la piscine grâce à une grande baie vitrée. À l’opposé, vous accédez au cellier 14 m² et au garage de 27 m², apportant confort et praticité au quotidien. À l’étage Un escalier mène à une mezzanine de 15 m², idéale pour un coin bureau ou détente. Un dégagement dessert les trois chambres, chacune équipée de placards intégrés. Les surfaces sont généreuses : 13 m², 17 m², et 23 m² (dont 5 m² en surface utile) avec accès à un balcon. Une belle salle de bain d’environ 7 m² avec douche et vasque, ainsi qu’un WC séparé, complètent cet étage. L’agencement est parfaitement pensé avec une séparation claire entre l’espace jour et l’espace nuit. Extérieur Un bel espace piscine avec terrasse et pergola vous permettra de profiter pleinement des beaux jours. Le terrain de 1 900 m² est soigneusement aménagé et offre un cadre paisible et verdoyant. Vous disposerez également d’un abri voiture en plus du garage. Caractéristiques techniques et confort : - Construction RT 2012 - Volets et menuiseries aluminium / bois, durables et esthétiques - Chauffage au sol sur les deux niveaux - Pompe à chaleur + poêle à bois - Isolation performante des murs et des combles Pour plus de renseignements, contactez-moi ! En cas d’indisponibilité, laissez-moi un message — de préférence par SMS — et je vous rappellerai dès que possible. Honoraires d'agence à la charge du vendeur. Information d'affichage énergétique sur ce bien : classe ENERGIE B indice 71 et classe CLIMAT A indice 2. Les informations sur les risques auxquels ce bien est exposé, y compris l'obligation légale de débroussaillement, sont disponibles sur le site Géorisques : La présente annonce immobilière a été rédigée sous la responsabilité éditoriale de Mme Jessica Sanfilippo mandataire indépendant en immobilier (sans détention de fonds), agent commercial de la SAS I@D France immatriculé au RSAC de GRENOBLE sous le numéro 883992745, titulaire de la carte de démarchage immobilier pour le compte de la société I@D France SAS.
Iad france - marie-rose gilles (06 98 85 33 80) vous propose : votre maison individuelle neuve lumineuse et ensoleillée à saint-paul-de-varces et profitez des frais de notaire réduits. Bénéficiant d'une situation privilégiée, vous serez à 5 minutes à pied des écoles, à 10 minutes en voiture des commerces et à 20 minutes de grenoble. Les prestations de cette belle maison plein sud - est : - chauffage et la production d’eau chaude sanitaire sera assuré par une pompe à chaleur air-eau. - vre - wc suspendu - porte palière anti-effraction, niveau a2p * - peinture sur les murs - carrelage 45x45 dans les pièces de vie - revêtement stratifié dans les chambres contactez moi pour toute information complémentaire. Nous pourrons nous rendre sur place pour mieux visualiser l'emplacement de la maison. Honoraires d’agence à la charge du vendeur. Bien non soumis au dpe. Les informations sur les risques auxquels ce bien est exposé sont disponibles sur le site géorisques : . La présente annonce immobilière a été rédigée sous la responsabilité éditoriale de mlle marie-rose gilles ei (id 83761), mandataire indépendant en immobilier (sans détention de fonds), agent commercial de la sas i@d france immatriculé au rsac de grenoble sous le numéro 478110612, titulaire de la carte de démarchage immobilier pour le compte de la société i@d france sas. Retrouvez tous nos biens sur notre site internet. .
Iad france - marie-rose gilles (06 98 85 33 80) vous propose : votre maison individuelle neuve lumineuse et ensoleillée à saint-paul-de-varces et profitez des frais de notaire réduits. Bénéficiant d'une situation privilégiée, vous serez à 5 minutes à pied des écoles, à 10 minutes en voiture des commerces et à 20 minutes de grenoble. Les prestations de cette belle maison plein sud : - chauffage et la production d’eau chaude sanitaire sera assuré par une pompe à chaleur air-eau. - vre - wc suspendu - porte palière anti-effraction, niveau a2p * - peinture sur les murs - carrelage 45x45 dans les pièces de vie - revêtement stratifié dans les chambres contactez moi pour toute information complémentaire. Nous pourrons nous rendre sur place pour mieux visualiser l'emplacement de la maison. Honoraires d’agence à la charge du vendeur. Bien non soumis au dpe. Les informations sur les risques auxquels ce bien est exposé sont disponibles sur le site géorisques : . La présente annonce immobilière a été rédigée sous la responsabilité éditoriale de mlle marie-rose gilles ei (id 83761), mandataire indépendant en immobilier (sans détention de fonds), agent commercial de la sas i@d france immatriculé au rsac de grenoble sous le numéro 478110612, titulaire de la carte de démarchage immobilier pour le compte de la société i@d france sas. Retrouvez tous nos biens sur notre site internet. .
Iad France - Cécile Fiol vous propose : Saint Paul de Varces, découvrez cette belle maison individuelle de 130 m² sur 1200 m² de terrain avec piscine. À l'entrée de la commune, tout proche de Varces, au sein d'un secteur calme et résidentiel (hors lotissement), cette maison très bien entretenue saura vous séduire par son exposition ensoleillée et sa magnifique vue sur les montagnes. Le rez-de-chaussée vous propose : - un lumineux séjour ouvert sur une cuisine équipée donnant tous deux sur les extérieurs, - 1 cellier, - 1 chambre avec rangements, - une salle d'eau avec wc. À l’étage vous trouverez : - 3 belles chambres dont une de 17 m² avec rangements, - 1 salle de bain, - 1 wc indépendant. Le très beau jardin de 1200 m² plat, clos et arboré offre une piscine 9 * 4, sans aucun vis-à-vis, pour profiter des beaux jours en toute tranquillité. Un garage de 25 m² avec porte motorisée, également accessible depuis la maison, dispose d'un petit atelier et des rangements en mezzanine. Un appentis vous offre également un espace de stockage supplémentaire. La grande cour extérieure permet le stationnement de nombreux véhicules et de manOEuvrer aisément. Pour votre confort, de nombreux travaux ont été réalisés en 2024, permettant notamment d'atteindre une bonne performance énergétique (DPE classe C) : - fenêtres double vitrage, - PAC réversible air / air au rez-de-chaussée, - poêle à bois, - radiateurs à inertie à l'étage, - changement de la VMC. Le tableau électrique a été refait en 2024. Cette maison, qui n'attend que vous, se trouve dans une rue calme et en impasse, située à 3 minutes à pied des commerces de proximité (boulangerie, épicerie, tabac, salon de coiffure, cabinet infirmier). À moins de 5 minutes en voiture du centre de Varces et à 3 minutes des axes routiers menant à Grenoble en 10 minutes. Honoraires d'agence à la charge du vendeur. Information d'affichage énergétique sur ce bien : classe ENERGIE C indice 170 et classe CLIMAT A indice 5. Les informations sur les risques auxquels ce bien est exposé, y compris l'obligation légale de débroussaillement, sont disponibles sur le site Géorisques : La présente annonce immobilière a été rédigée sous la responsabilité éditoriale de Mme Cécile Fiol mandataire indépendant en immobilier (sans détention de fonds), agent commercial de la SAS I@D France immatriculé au RSAC de GRENOBLE sous le numéro 839517471, titulaire de la carte de démarchage immobilier pour le compte de la société I@D France SAS.
Iad france - marie-rose gilles (06 98 85 33 80) vous propose : votre maison individuelle neuve à saint-paul-de-varces et profitez des frais de notaire réduits. Bénéficiant d'une situation privilégiée, vous serez à 5 minutes à pied des écoles, à 10 minutes en voiture des commerces et à 20 minutes de grenoble. Les prestations de cette belle maison plein sud : - chauffage et la production d’eau chaude sanitaire sera assuré par une pompe à chaleur air-eau. - vre - wc suspendu - porte palière anti-effraction, niveau a2p * - peinture sur les murs - carrelage 45x45 dans les pièces de vie - revêtement stratifié dans les chambres contactez moi pour toute information complémentaire. Nous pourrons nous rendre sur place pour mieux visualiser l'emplacement de la maison. Honoraires d’agence à la charge du vendeur. Bien non soumis au dpe. Les informations sur les risques auxquels ce bien est exposé sont disponibles sur le site géorisques : . La présente annonce immobilière a été rédigée sous la responsabilité éditoriale de mlle marie-rose gilles ei (id 83761), mandataire indépendant en immobilier (sans détention de fonds), agent commercial de la sas i@d france immatriculé au rsac de grenoble sous le numéro 478110612, titulaire de la carte de démarchage immobilier pour le compte de la société i@d france sas. Retrouvez tous nos biens sur notre site internet. .
Iad France - Cloé Dimier vous propose : Villa d’architecte contemporaine avec vue montagne – Saint-Paul-de-Varces- Charrière chaude Découvrez cette superbe villa d’architecte de 2019, située dans un cadre verdoyant et paisible au cOEur de Saint-Paul-de-Varces, à seulement quelques minutes de toutes commodités et des accès vers Grenoble. Nichée dans un environnement calme, elle offre une vue dégagée sur les montagnes, un cadre de vie idéal pour les amoureux de la nature et du confort moderne. D’une surface habitable d’environ 150 m² organisée sur 3 niveaux, cette maison contemporaine a été pensée pour offrir des espaces ouverts et lumineux. Elle se compose au rez-de-chaussée, d'une entrée, d'un accès au garage, d'une suite parentale avec salle d'eau et d' une buanderie avec un WC Au demi niveau inferieur une vaste pièce de vie conviviale, comprenant un salon, une salle à manger et une cuisine ouverte entièrement équipée, le tout donnant sur une superbe terrasse de 80 m², parfaite pour profiter des beaux jours. À l’étage, vous trouverez deux chambres avec placards de rangement, ainsi qu’une spacieuse salle de bain équipée d’une baignoire d’angle balnéo et d’un second WC. La propriété dispose également : d’un garage d’un stationnement possible pour 3 véhicules, d’une dépendance attenante d’environ 22 m² accessible depuis l'extérieur et l'intérieur (salle à manger) offrant de multiples possibilités (studio, bureau, atelier, salle de jeux, etc.). Édifiée sur un terrain de 435 m², cette villa combine esthétisme, fonctionnalité et performance énergétique. Le chauffage au sol est assuré par une pompe à chaleur récente, pour un confort optimal et une consommation maîtrisée (environ 125 € par mois d’électricité et chauffage). La taxe foncière s’élève à 1 350 € par an. Les atouts : Maison récente (2019) et très bien entretenue Vue imprenable sur les montagnes Grande terrasse de 80 m² Chauffage au sol par pompe à chaleur Dépendance avec entrée indépendante aménageable de 22 m² Garage et stationnements Environnement calme et verdoyant Localisation : Charrière chaude, Saint-Paul-de-Varces (38760) Un charmant village recherché, entre nature et proximité urbaine, à seulement 20 minutes de Grenoble. Honoraires d'agence à la charge du vendeur. Information d'affichage énergétique sur ce bien : classe ENERGIE B indice 82 et classe CLIMAT A indice 2. Les informations sur les risques auxquels ce bien est exposé, y compris l'obligation légale de débroussaillement, sont disponibles sur le site Géorisques : La présente annonce immobilière a été rédigée sous la responsabilité éditoriale de Mme Cloé Dimier mandataire indépendant en immobilier (sans détention de fonds), agent commercial de la SAS I@D France immatriculé au RSAC de GRENOBLE sous le numéro 921621215, titulaire de la carte de démarchage immobilier pour le compte de la société I@D France SAS.
Iad france - frederic surre vous propose : saint-georges-de-commiers – 38450 – maison t5 + studio – 152 m² cette maison d’architecte lumineuse construite en 1995, implantée sur un terrain de 890 m², offre 4 chambres ainsi qu’un studio indépendant. Vous profiterez également d’un salon avec vue dominante, d’une cuisine équipée et d’une salle à manger ouvrant sur une terrasse partiellement couverte et un agréable espace vert. Grand garage double, buanderie et cave complètent l’ensemble. À proximité : école primaire et maternelle, transports scolaires pour collège et lycée, pharmacie, pôle médical, commerces, sncf et tag. Grenoble à 20 minutes. Honoraires d'agence à la charge du vendeur. Information d'affichage énergétique sur ce bien : classe energie d indice 215 et classe climat d indice 31. Les informations sur les risques auxquels ce bien est exposé, y compris l'obligation légale de débroussaillement, sont disponibles sur le site géorisques : la présente annonce immobilière a été rédigée sous la responsabilité éditoriale de m frederic surre mandataire indépendant en immobilier (sans détention de fonds), agent commercial de la sas i@d france immatriculé au rsac de grenoble sous le numéro 404713901, titulaire de la carte de démarchage immobilier pour le compte de la société i@d france sas.
Iad france - frederic surre vous propose : saint-georges-de-commiers – maison + terrain constructible – 155 m² (t4 + annexes) - située dans le hameau de saint-pierre, cette maison de 81 m² habitables, implantée sur une parcelle d’environ 1 165 m², se compose comme suit : à l’étage : trois chambres, avec combles au-dessus. Au rez-de-chaussée : salon et cuisine ouvrant sur une terrasse abritée équipée d’un four à pain. Accès direct au terrain depuis la terrasse. En rez-de-jardin (niveau inférieur) : 73 m² supplémentaires comprenant : garage, atelier, cave, chenil, débarras et poulailler. Une parcelle d’environ 600 m² peut être détachée, tout en conservant un terrain confortable pour la maison. Honoraires d'agence à la charge du vendeur. Information d'affichage énergétique sur ce bien : classe energie f indice 361 et classe climat e indice 60. Les informations sur les risques auxquels ce bien est exposé, y compris l'obligation légale de débroussaillement, sont disponibles sur le site géorisques : la présente annonce immobilière a été rédigée sous la responsabilité éditoriale de m frederic surre mandataire indépendant en immobilier (sans détention de fonds), agent commercial de la sas i@d france immatriculé au rsac de grenoble sous le numéro 404713901, titulaire de la carte de démarchage immobilier pour le compte de la société i@d france sas.
Iad France - Diane Cohade vous propose : Superbe maison de caractère à Le Gua - 4 chambres, 1 bureau - Balcon et Terrasses - Caves - Jardin clos. Bienvenue dans cette magnifique maison de caractère située à Le Gua, alliant charme de l'ancien et confort moderne. Construite vers 1900 environ et rénovée avec des matériaux de qualité, cette maison saura combler les amateurs d'authenticité et de tranquillité. Dès l'entrée, vous serez séduit par le cachet préservé de cette demeure. Le rez-de-chaussée propose un bureau idéal pour le télétravail, une cuisine spacieuse et lumineuse, une salle de bain avec douche et baignoire ainsi qu'un wc, un agréable salon avec poêle à granulé et résille au sol électrique. Chaque pièce a été pensée pour offrir un espace de vie confortable et chaleureux. À l'étage, vous trouverez 3 belles chambres, dont une suite parentale avec dressing, ainsi qu'une salle d'eau supplémentaire. Chaque chambre offre un espace de rangement bien pensé et une luminosité naturelle appréciable. L'extérieur de la maison est un véritable havre de paix avec un balcon offrant une vue dégagée et 2 charmantes terrasses propices à la détente et aux repas en extérieur dont une couverte au premier étage. Le jardin est un véritable atout pour profiter des beaux jours en toute tranquillité. Un préau vous permettra de profiter des extérieur et d'y créer un espace convivial pour les réunions de familles et les soirées en amis avec la possibilité de créer une grande cuisine d'été avec arrivée d'eau et électricité. Cette demeure bénéficie d'un emplacement idéal, au calme, tout en étant proche des commodités et des axes de transport. De plus, elle est équipée de la fibre optique pour une connectivité optimale. Cette maison unique, aux finitions soignées et à l'ameublement de qualité, saura vous séduire par son charme et son confort. Une visite s'impose pour découvrir ce véritable bijou immobilier à Le Gua. Honoraires d'agence à la charge du vendeur. Information d'affichage énergétique sur ce bien : classe ENERGIE D indice 194 et classe CLIMAT B indice 6. Les informations sur les risques auxquels ce bien est exposé, y compris l'obligation légale de débroussaillement, sont disponibles sur le site Géorisques : La présente annonce immobilière a été rédigée sous la responsabilité éditoriale de Mme Diane Cohade mandataire indépendant en immobilier (sans détention de fonds), agent commercial de la SAS I@D France immatriculé au RSAC de GRENOBLE sous le numéro 820714855, titulaire de la carte de démarchage immobilier pour le compte de la société I@D France SAS.
C'est dans un environnement paisible au pied du Vercors que votre agence Stéphane Plaza immobilier Vif vous propose cette belle maison familiale aux multiples possibilités d'aménagement. Edifiée sur un terrain de plus de 1800 m² elle se compose de la sorte : Le rez-de-chaussée, dispose d'un hall d'entrée desservant une cuisine équipée donnant sur un espace vie lumineux de près de 40 m². Côté nuit, quatre belles chambres de plus de 12 m² chacune, une salle d'eau et toilettes séparés. À l'étage, vous trouverez deux autres chambres, dont une de plus de 15 m², une deuxième salle d'eau et un second toilette. Vous aurez également la possibilité d'aménager deux chambres supplémentaires. Le sous-sol de plus de 110 m² vous permettra d'y stationner des véhicules ou d'y créer des espaces supplémentaires. Vous apprécierez, sa grande terrasse exposée sud-ouest qui vous permettra de profiter pleinement de l'extérieur et de la vue dégagée, et son environnement calme ! Avec la possibilité de créer jusqu'à trois appartements, et en profitant d'aides de l'état sans conditions de revenu pour réaliser les travaux de rénovation énergétique, cette grande maison présente des atouts incomparables ! Une visite virtuelle est disponible, contactez Charlotte pour y accéder ou pour plus de renseignements!
Commune du GUA, très belle maison traditionnelle de 1994, sur un terrain soigné entièrement clôturé de 1000 m², d'une surface d'habitation de plus de 150 m², entrée, une cuisine entièrement aménagée avec véranda ouverte sur séjour, un salon avec une cheminée, possibilité de créer une chambre supplémentaire au RDC, dressing, à l'étage 4 chambres, sdb, toilettes. Garage, piscine, très belle terrasse exposée en Est et Sud, les prestations de ce bien sont de grandes qualités, triple vitrages, pompe à chaleur, panneaux solaires. Mérite votre regard. Honoraires à la charge du vendeur. Classe énergie B, Classe climat A Montant estimé des dépenses annuelles d'énergie pour un usage standard : entre 980.00 € et 1370.00 € sur les années 2021,2022 et 2023 (abonnements compris). Les informations sur les risques auxquels ce bien est exposé sont disponibles sur le site Géorisques : georisques. gouv. fr.
EXCLUSIVITE - Stéphanie STOLTZ (o7 61 29 o1 41) vous propose une belle maison de 125 m² loi Carrez (146 m² surface habitable) sur 800 m² de terrain dans un lotissement très calme avec une magnifique vue dégagée sur les massifs du Vercors, Belledonne et du Taillefer. Bel espace extérieur planté de diverses essences d'arbres et emplacement privilégié à découvrir rapidement ! Ce bien vous séduira par son bel espace de vie de 36 m² donnant sur une grande terrasse, une cuisine équipée semi-ouverte sur séjour, 4 chambres avec placards, un espace bureau-bibliothèque avec balcon exposé sud, une salle de bains avec baignoire, douche, vasque et fenêtre, 2 wc avec fenêtres. En annexes bénéficiez d'une buanderie de 21 m² (surface habitable), un garage de 28 m², un appentis pour véhicules. Grenier aménageable. Huisseries double vitrage, fibre optique, alarme, réserve d'eau extérieure de 500 litres, composteur. Ligne de bus 45,25 et C14 à proximité. Chauffage au gaz au sol au RDC et radiateurs à l'étage (chaudière changée en 2020), poele à bois, panneaux thermiques pour la production d'eau chaude (2020). DPE classe C / GES classe C. Aucune anomalie électrique, aucune anomalie de gaz. Charges de copropriété : 120€ / an Taxe foncière : 2294€ La présente annonce immobilière a été rédigée par Stéphanie, agent commercial en immobilier immatriculé au RSAC de Grenoble sous le numéro 844 305 201. Les honoraires sont à la charge du vendeur. Les informations obligatoires sur les risques auxquels ce bien peut être exposé sont disponibles sur le site Géorisques : - LSI_1766553861.
Propriétés-privées - nicolas abonnenc vous présente cette maison familiale de charme de166 m² sur un terrain 860 m² à varces-allières-et-risset située dans un environnement calme, cette magnifique maison traditionnelle de 166 m², édifiée en 1999, séduit par ses volumes généreux, sa qualité d'entretien et son excellent confort de vie. Implantée sur un terrain clos de 860 m², elle offre un cadre idéal pour une vie familiale épanouie. - un intérieur spacieux et fonctionnel la maison s'organise sur trois niveaux, pensés pour allier confort et praticité. Au rez-de-chaussée : vous serez immédiatement séduit par une spacieuse pièce de vie de 41 m², regroupant une cuisine aménagée et équipée et un séjour lumineux, idéal pour partager des moments conviviaux. Une chambre, ainsi qu'une salle d'eau avec wc, complètent ce niveau. Au premier étage : un palier dessert trois belles chambres, dont une avec un grand placard mural, une salle de bains et un wc indépendant. Au dernier niveau : une grande pièce polyvalente pouvant être aménagée selon vos envies : suite parentale, salle de jeux ou bureau. À l'extérieur, vous profiterez d'une agréable terrasse. Le vaste terrain de 860 m² offre de nombreuses possibilités d'aménagement : jardin paysager, espace jeux, potager ou piscine. La maison dispose d'un grand garage, intégrant un espace buanderie et une mezzanine de stockage. Plusieurs véhicules peuvent également être stationnés dans la cour, sécurisée par un portail. Confort et prestations : - chauffage au gaz de ville avec radiateurs - cheminée à insert - fibre optique - vmc - excellente exposition sud / ouest / est - construction traditionnelle sur vide sanitaire - bonne performance énergétique - maison entretenue a visiter sans tarder ! Prix : 485 000 euros ttc honoraires à la charge du vendeur. Dpe : c ges : c estimation des coûts annuels : entre 1880 euros et 2610 euros par an prix moyens des énergies indexés sur les années 2021,2022, 2023. Pour visiter et vous accompagner dans votre projet, contactez nicolas abonnenc, au o682618661 ou, par courriel à n.abonnenc@proprietes-privees.com. Selon l'article l. 561.5 du code monétaire et financier, pour l'organisation de la visite, la présentation d'une pièce d'identité vous sera demandée. Cette présente annonce a été rédigée sous la responsabilité éditoriale de nicolas abonnenc agissant sous le statut d'agent commercial immatriculé au rsac grenoble 918 096 603 auprès de sas proprietes privees, au capital de 44 920 euros, zac le chêne ferré - 44 allée des cinq continents 44120 vertou; siret 487 624 777 00040, rcs nantes. Carte professionnelle transactions sur immeubles et fonds de commerce (t) et gestion immobilière (g) n°cpi 4401 2016 000 010 388 délivrée par la cci nantes - saint nazaire. Compte séquestre n°309 32 50 84 67 bpa saint-sebastien-sur-loire (44230). Garantie galian-smabtp - 89 rue de la boétie, 75008 paris - n°28137 j pour 2 000 000 euros pour t et 120 000 euros pour g. Assurance responsabilité civile professionnelle par galian-smabtp n° de police 28137. J mandat réf : 432962 - le professionnel garantit et sécurise votre projet immobilier. Nicolas abonnenc (ei) agent commercial - numéro rsac : grenoble 918 096 603 -. Les informations sur les risques auxquels ce bien est exposé sont disponibles sur le site géorisques : nicolas abonnenc (ei) agent commercial - numéro rsac : grenoble 918 096 603 -.
Iad France - Diane Cohade vous propose : Magnifique maison traditionnelle de 166 m² sur un terrain de 862 m² à Varces-Allières-et-Risset - 5 chambres (ou 4 chambres et 1 bureau) - garage - jardin clos - Découvrez cette somptueuse maison traditionnelle située à Varces-Allières-et-Risset, offrant un cadre de vie exceptionnel pour les amoureux de l'espace et du confort. Construite en 1999, cette propriété est idéalement agencée sur deux étages pour une fonctionnalité optimale. Au rez-de-chaussée, vous trouverez un spacieux séjour lumineux de 29 m², une cuisine équipée et aménagée, une salle d'eau avec WC et une chambre. Au premier étage, un palier dessert 3 chambres supplémentaires, dont 1 avec un grand placard mural, une salle de bain et un wc séparé complète ce niveau. Au dernier étage une grande pièce pouvant être agencée en suite parentale, salle de jeu ou bureau à votre convenance. L'extérieur de la maison vous réserve de belles surprises avec sa terrasse offrant un espace idéal pour se détendre et profiter du soleil. Le grand terrain de 862 m² permet d'envisager de nombreux aménagements extérieurs personnalisés. Vous disposerez également d'un grand garage carrelé avec espace buanderie et point d'eau avec une mezzanine de stockage, ainsi que plusieurs places pour stationner vos véhicules en toute sécurité au niveau de la cour goudronnée et son portail manuel (arrivée d'électricité prévue). Côté confort, cette maison dispose de nombreux équipements tels que la fibre optique, un système de VMC, une cheminée à insert et une chauffage au gaz de ville avec radiateurs. Vous pourrez également profiter d'une exposition idéale avec les orientations Sud, Ouest et Est. Maison de construction traditionnelle avec une bonne performance énergétique, sur vide sanitaire, toiture entretenue (démoussage. ) dépassées en alu et révision des chenaux en 2022. Idéalement située, cette maison offre un cadre de vie paisible, à proximité de toutes les commodités nécessaires pour votre quotidien. Les amoureux de la nature apprécieront les espaces verts environnants. Ne laissez pas passer l'opportunité de devenir propriétaire de cette magnifique maison traditionnelle à Varces-Allières-et-Risset. Contactez-moi dès aujourd'hui pour organiser une visite ! Honoraires d'agence à la charge du vendeur. Information d'affichage énergétique sur ce bien : classe ENERGIE C indice 178 et classe CLIMAT C indice 21. Les informations sur les risques auxquels ce bien est exposé, y compris l'obligation légale de débroussaillement, sont disponibles sur le site Géorisques : La présente annonce immobilière a été rédigée sous la responsabilité éditoriale de Mme Diane Cohade mandataire indépendant en immobilier (sans détention de fonds), agent commercial de la SAS I@D France immatriculé au RSAC de GRENOBLE sous le numéro 820714855, titulaire de la carte de démarchage immobilier pour le compte de la société I@D France SAS.
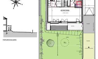
Iad France - Cloé Dimier vous propose : À Vendre – Spacieuse Maison Familiale avec Dépendances, Terrain Garage – Saint-Martin-de-la-Cluze (Le Pigeonnier) Située dans un cadre naturel exceptionnel, cette maison de caractère d’environ 184 m² habitables (Loi Carrez) et 224 m² (Utiles) vous séduira par ses volumes, ses nombreuses possibilités d’aménagement, et son environnement privilégié. Le tout sur une parcelle clôturée et arborée de 1 586 m². Mitoyenne par l'Ouest, sans aucun vis à vis la maison s’organise sur deux niveaux + combles aménageables, idéale pour un projet familial, bi-famille, locatif, gîtes. Bien divisé en deux entités totalement indépendantes. Le logement se compose de deux appartements distincts, chacun disposant de sa propre entrée, de son coin cuisine et de sa salle d'eau, ainsi que de compteurs séparés. Cette configuration offre une grande flexibilité d'exploitation : location longue durée classique, location meublée, location saisonnière (type Airbnb), colocation ou mix des formules selon vos besoins. Parfait pour investisseurs cherchant un rendement optimisé (possibilité de louer les deux unités simultanément) ou pour occupants souhaitant loger de la famille tout en générant un revenu locatif. (facile à réunir ou à louer séparément). Composition de la maison : Rez-de-chaussée : Logement 1 Entrée commune desservant deux habitations distinctes Première habitation composée de : Cuisine indépendante Salon / séjour Une chambre Salle d’eau WC indépendant Cuisine d’été récente avec accès direct à une terrasse extérieure Buanderie / chaufferie avec deux pompes à chaleur (une par logement) Cave en sous-sol À l’étage : Logement 2 Spacieuse pièce de vie avec cuisine ouverte, séjour, salle à manger et balcon (Climatisation dans la pièce) Trois chambres, dont une avec balcon Salle d’eau WC indépendant Nombreux rangements Combles aménageables Prestations techniques : Chauffage central par radiateurs alimentés par pompes à chaleur récentes x2 (Une par logement) Production d’eau chaude via PAC Double vitrage sur l’ensemble de la maison Volets bois ou électriques selon les pièces Fosse septique avec champ d’épandage conforme Taxe foncière 2025 : 1 181 € Puits dans le jardin, idéal pour l’arrosage Dépendances et extérieurs : Garage indépendant fermé de 42 m² Petite dépendance pouvant servir d’atelier de jardin Terrain clôturé supplémentaire, parfait pour accueillir des animaux (chiens, etc.) Nombreuses places de stationnement sur un vaste parking Deux portails d’accès (un électrique et l'autre manuel) Propriété entièrement clôturée Jardin arboré et bien entretenu À 7 min de l'autoroute A51 et 10 min de Monestier et Vif, ce bien rare aux portes du Trièves combine espace, potentiel et tranquillité (Hameau du pigeonnier situé à 6km du village de Saint Martin de la cluze). Une opportunité à ne pas manquer ! Contactez-moi pour plus d’informations ou organiser une visite Honoraires d'agence à la charge du vendeur. Information d'affichage énergétique sur ce bien : classe ENERGIE D indice 220 et classe CLIMAT B indice 7. Les informations sur les risques auxquels ce bien est exposé, y compris l'obligation légale de débroussaillement, sont disponibles sur le site Géorisques : La présente annonce immobilière a été rédigée sous la responsabilité éditoriale de Mme Cloé Dimier mandataire indépendant en immobilier (sans détention de fonds), agent commercial de la SAS I@D France immatriculé au RSAC de GRENOBLE sous le numéro 921621215, titulaire de la carte de démarchage immobilier pour le compte de la société I@D France SAS.
À vendre - Maison de village de 171 m² avec grange aménageable - Saint-Martin-de-la-Cluze (38650) Exposition plein sud | Jardin | Terrasse | 5 chambres | Atelier | Panneaux solaires | Pompe à chaleur Située dans un environnement calme et verdoyant, découvrez cette spacieuse maison mitoyenne de 171 m², exposée plein sud, implantée sur une parcelle de 1 147 m². Elle offre de très belles prestations, de vastes volumes et un potentiel d'aménagement supplémentaire grâce à une grange attenante (atelier, gîte, chambre d'hôte, local,. ). Agencement intérieur : 5 chambres, dont une suite parentale et une chambre aménagée avec salle d'eau privative (douche, meuble vasque, WC), idéale pour une activité de chambre d'hôte. Toutes les chambres disposent de placards. Une salle de bain principale avec baignoire, double vasque et WC. Une deuxième salle d'eau avec douche, meuble simple vasque et WC. Un salon en demi-niveau, une salle à manger lumineuse et une cuisine équipée. Un cellier, une buanderie et une cave complètent l'ensemble. Dépendance : Une grange de 100 m² à fort potentiel, avec une toiture refaite en 2008, comprenant déjà un atelier aménagé. Nombreuses possibilités d'aménagement : habitation, gîte, espace professionnel ou créatif. Extérieurs : Une belle terrasse bien exposée (exposition Sud). Et une terrasse côté jardin. Un jardin arboré, sans vis-à-vis disposant d'un abri de jardin et un accès à l'eau de source. Deux places de parking privatives. Confort & équipements : Poêle de masse scandinave + pompe à chaleur pour un confort thermique optimal. Fenêtres et volets roulants en aluminium côté sud, double vitrage bois avec volets bois sur l'autre façade. Panneaux solaires (25 m²) couvrant la totalité des dépenses en électricité et bois. Taxe foncière : 1 145 €. Localisation : Saint-Martin-de-la-Cluze est une commune agréable, à moins de 30 minutes de Grenoble, avec un accès facile aux grands axes. Vous y trouverez le calme, la nature et un cadre de vie paisible, idéal pour une résidence principale ou un projet touristique. Contact : Mme Julie ALLEMAND au 06 71 85 65 93 ou mail : espaceimmo38.allemand@gmail.com Les honoraires sont à la charge du vendeur. La présente annonce immobilière a été rédigée par Mme ALLEMAND Julie, immatriculée au RCS de Grenoble sous le n° 811988682 Les informations obligatoires sur les risques auxquels ce bien peut être exposé sont disponibles sur le site Géorisques : - LSI_1766553860.