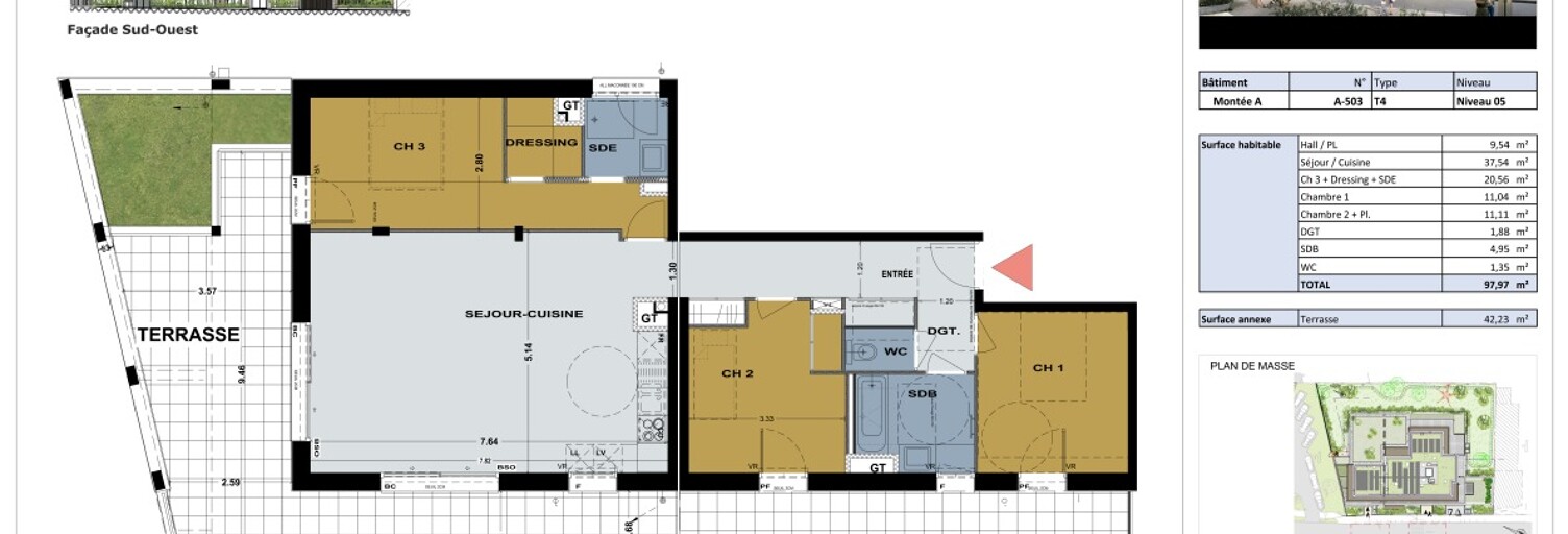
T4 dernier étage avec terrasse de 42 m² – Meylan Ce T4 de 97,97 m², situé au 5ᵉ et dernier étage, combine de très beaux volumes intérieurs et une large terrasse de 42,23 m², offrant un véritable prolongement extérieur. L'appartement bénéficie d'une distribution parfaitement pensée et d'espaces lumineux, idéaux pour un confort de vie quotidien. ⭐ Un agencement équilibré et moderne Séjour / cuisine de 37,54 m², ouvrant largement sur la terrasse Chambre 3 + dressing + salle d'eau privative : 20,56 m² → un véritable espace parental complet Deux autres chambres : • CH1 : 15,07 m² • CH2 : 11,14 m² Salle de bains : 4,95 m² La pièce de vie, orientée vers l'extérieur, bénéficie d'une excellente luminosité et d'accès directs à la terrasse. Une belle terrasse de 42,23 m² Profondeur et largeur permettant plusieurs aménagements : repas, détente, plantes, mobilier extérieur Orientation agréable et véritable ouverture vers le ciel Accès depuis le séjour et belle continuité visuelle avec l'intérieur Cet extérieur généreux est un véritable atout rare pour un dernier étage. Prestations intérieures soignées Comme pour les appartements précédents, les éléments techniques issus de la notice générale s'appliquent : Menuiseries aluminium Brise-soleil orientables motorisés sur les baies du séjour Volets roulants motorisés dans les chambres Carrelage 60×60 cm dans les pièces principales Parquet stratifié dans les chambres Salles d'eau / salle de bain équipées (meuble vasque, miroir, applique, faïence toute hauteur) WC suspendu Chauffage collectif avec régulation individuelle Logement connecté (pilotage thermostat, volets…) Porte palière sécurisée Un appartement de standing, idéal pour une famille ou un projet patrimonial Volumes confortables, suite parentale complète, grande terrasse et dernier étage : ce T4 réunit toutes les qualités recherchées pour un lieu de vie lumineux, spacieux et agréable au quotidien.
Les informations sur les risques auxquels ce bien est exposé sont disponibles sur le site Géorisques : www.georisques.gouv.fr
Mise en ligne:
Dernière mise à jour:
Référence de l'annonce: 120264_A503
MEYLAN, au calme d'un magnifique parc et dans une résidence fermée, en dernier étage, très bel et vaste appartement bénéficiant d'une triple exposition et de terrasses et balcons offrant une très belle vue sur différents massifs. Triple séjour, cuisine familiale avec annexe, et coin nuit séparé composé de 4 chambres, salle de bain et salle d'eau. Garage, place de stationnement privative extérieure et cave.
À VENDRE - Au cur de la Résidence SAINT MURY de MEYLAN, réputée pour son beau parc fleuri et arboré, sa piscine et ses courts de tennis : magnifique appartement de 140 m² au 2ème étage avec ascenseur - Hall d'entrée avec toilettes invités - Elégant salon de 45 m² avec double exposition et de généreuses baies vitrées donnant sur un balcon filant de 56 m²( qui profite à l'ensemble des pièces de ce bien) - Chacune des pièces offre ainsi de belles vues sur le Parc privé de la copropriété et au delà sur les massifs montagneux - La cuisine de 10 m², à moderniser, est précédée d'un pertinent cellier et elle est également dotée d'un accès direct au balcon -Cet appartement compte trois chambres : Une grande chambre parentale de 31 m² avec rangements - Une chambre avec cabinet de toilette - Une chambre, actuellement dédiée à un bureau contigu au séjour - Une salle de bains - Appartement fonctionnel comptant de nombreux placards, penderies et divers rangements - Possibilité d'acquérir un garage de 24 m² avec lumière et prise électrique proche de l'immeuble - Un studio indépendant en rez de jardin avec très jolie vue sur le Parc est également disponible en plus du prix - Tous ces lots sont soumis au régime de copropriété - 260 lots - Charges courantes annuelles de 7 029.47 / an, incluant : le chauffage, eaux froide et chaude, gardien et entretien de la copropriété offrant piscine et tennis - Bien recherché rare à la vente - Travaux de rafraîchissement à prévoir - Excellente situation au calme et proches des commodités et du Lycée du GRESIVAUDAN - MEYLAN - 500 000.
Au sein d'une résidence haut de gamme de 2025 au coeur de toutes les commodités, superbe appartement de type T5 de 123,69 m² situé au 5ème et dernier étage avec ascenseur, bénéficiant d'une vue splendide sur la chaîne de Belledonne. Il présente un volume généreux, un hall d'entrée, une spacieuse pièce de vie de 49,44 m² avec cuisine ouverte donnant sur une magnifique terrasse de 36 m² exposition Sud / Est, 4 chambres avec placards dont 1 suite parentale avec salle d'eau, une salle-de-bains, deux toilettes indépendants et une buanderie. Il offre de belles prestations (chauffage gaz individuel avec plancher chauffant hydraulique, chaudière à condensation, volets roulants à commande électrique et centralisée, toiture végétalisée, panneaux photovoltaïques, etc. ). Possibilité d'acquérir une cave pour 3000 € et un garage en sous-sol pour 18 000 €. Copropriété de 71 lots. À découvrir rapidement ! Pour toute information et pour planifier une visite, contactez-nous au O4.76. 52.53. 54. Les informations sur les risques auxquels ce bien est exposé sont disponibles sur le site Géorisques : . Dans une copropriété de 71 lots. Aucune procédure n'est en cours. DPE vierge. Les informations sur les risques auxquels ce bien est exposé sont disponibles sur le site Géorisques : georisques. gouv. fr.
Résidence Saint-Mury, en dernier étage avec ascenseur, bel appartement de 144,36 m² exposé Est / Sud, très lumineux et bénéficiant d'une jolie vue. Actuellement configuré en séjour double et 3 chambres, vous pouvez très facilement retrouver la 4ème chambre en remontant une cloison. La cuisine indépendante est entièrement équipée et profite d'un cellier. Le coin chambre dispose d'1 salle de bains, d'1 salle d'eau et d'1 WC indépendant. Toutes les pièces ouvrent sur un large balcon filant de 46 m² permettant de profiter de l'extérieur pour les repas. L'appartement a été refait en 2020, climatisé (séjour et 1 chambre) et les huisseries ont été changées en alu double vitrage avec volets électriques. Résidence recherchée, sécurisée (gardien et portail copropriété fermé), au milieu d'un magnifique parc arboré avec tennis et piscine. Possibilité d'acheter un grand garage en sous-sol (en plus, pour 25 000 €). À découvrir sans tarder ! Honoraires inclus de 4.6% TTC à la charge de l'acquéreur. Prix hors honoraires 597 500 €. Dans une copropriété de 20 lots. Quote-part moyenne du budget prévisionnel 6 600 € / an. Aucune procédure n'est en cours. Classe énergie D, Classe climat D Montant estimé des dépenses annuelles d'énergie pour un usage standard : entre 2700.00 € et 3720.00 € sur les années 2021,2022 et 2023 (abonnements compris). Les informations sur les risques auxquels ce bien est exposé sont disponibles sur le site Géorisques : georisques. gouv. fr.
MEYLAN, découvrez ce superbe appartement de 122,94 m² situé dans une résidence de standing au coeur d'un parc avec piscine, tennis et gardien. Composé d'un hall, un séjour, une cuisine aménagée (ouverture possible) avec office, trois chambres, une salle de bains et une salle d'eau, WC indépendant et nombreux rangements. Balcon de 40,87 m², accessible depuis toutes les pièces exposées Sud et Ouest avec de magnifiques vues sur les massifs de Belledonne et Vercors. Les travaux à prévoir offrent un énorme potentiel, idéal pour créer un bien à votre image. Emplacement exceptionnel dans un cadre verdoyant et calme, afin de profiter de la nature tout en étant proche des commodités. Garage double avec porte motorisée en option. Visite virtuelle disponible.
Saint-Mury, Résidence recherchée avec gardien, au milieu d'un magnifique parc arboré (tennis et piscine), bel appartement de 140 m² bénéficiant d'une jolie vue sur les espaces verts et d'une triple exposition Est / Nord / Ouest. Sa belle pièce de vie d'angle ouvre sur un large balcon filant (environ 50 m²) permettant des espaces repas et détente. La cuisine indépendante peut être ouverte sur le séjour, présence de 3 chambres dont une vaste suite parentale avec salle de bains et WC, possibilité d'une deuxième salle d'eau et nombreux rangements. L'appartement est lumineux, les huisseries ont été changées en alu double vitrage avec volets électriques, néanmoins il va nécessiter une remise au goût du jour. Possibilité d'acheter un grand garage en sous-sol, en sus du prix. À découvrir sans tarder ! Honoraires à la charge du vendeur. Dans une copropriété de 20 lots. Aucune procédure n'est en cours. Classe énergie D, Classe climat D Montant estimé des dépenses annuelles d'énergie pour un usage standard : entre 1930.00 € et 2650.00 € sur les années 2021,2022 et 2023 (abonnements compris). Les informations sur les risques auxquels ce bien est exposé sont disponibles sur le site Géorisques : georisques. gouv. fr.