54 résultats
À quelques pas des plages de sable fin et du cœur animé de valras-plage, la résidence luminéa s’intègre avec élégance dans un environnement paisible, entre nature et mer. son architecture contemporaine, aux teintes blanches et taupe, s’inspire des nuances méditerranéennes : façades rythmées, parements de pierre, garde-corps dorés et terrasses boisées. entourée d’espaces verts paysagers. ce t2 en rez-de-chaussée d’environ 44 m² séduit par ses volumes bien pensés et son confort moderne. le séjour-cuisine d’environ 20 m² s’ouvre sur une terrasse en bois d’environ 10 m², idéale pour les repas d’été. la chambre d’environ 13 m² et le rangement intégré complètent cet espace fonctionnel et lumineux. prestations de qualité : pompe à chaleur, carrelage 45x45, double vitrage pvc, volets roulants motorisés, salle de bains équipée avec sèche-serviette, alarme connectée, cuisine aménagée et résidence certifiée nf habitat re2020. un logement contemporain et serein, à deux pas de la mer. luminéa – le privilège d’un quotidien lumineux entre mer et nature. prix : 191900€ place de parking en sus 3000€ remise des clés : 3ème trimestre 2027 avantages du neuf : frais de notaire réduits (2.5%) isolation thermique renforcée isolation phonique entre étages charges réduites car bâtiment basse consommation re 2020 garantie constructeur 10 ans éligible au prêt à taux zéro personnalisez votre logement au gré de vos envies. possibilité d’exonération partielle ou total de la taxe foncière pendant 2 ans les + bonaparte promotion : -un accompagnement d’experts -un savoir-faire de plus de 19 ans -un gain de temps ! Recherche d’appartements personnalisée -un interlocuteur unique -un prix direct promoteur -une étude de financement -un accès à plus de 150 résidences en cours sur la région pour obtenir des renseignements rapidement, contactez votre conseiller dédié bonaparte promotion : yoann donnadieu 07 44 42 61 01 et / ou rendez-vous en agence sur rdv : bonaparte promotion 357 av. Du professeur etienne antonelli 34000 montpellier tel : 04 34 48 01 55 .
Contact : yoann donnadieu 07 44 42 61 01 valras plage - t3 proche de la mer dans un cadre de vie préservé et proche de toutes les commodités et de la mer découvrez cette belle résidence. t3 d'une superficie de 60 m². belle pièce de vie de 30 m² donnant sur un balcon de 18 m². il dispose de 2 chambres, d'une salle de bain, d'un wc et de placards de rangement. prestations : résidence sécurisée, digicode, stationnements en s / sol, sèche serviette dans les sdb etc. prix : 254 000€ 2 stationnement en sus : 28 000€ livraison 4t2027. avantages du neuf : frais de notaire réduits (2.5%) isolation thermique renforcée isolation phonique entre étages charges réduites car bâtiment basse consommation et rt2012 ou re2020 garantie constructeur 10 ans éligible au prêt à taux zéro, tva 5.5% ou à la loi pinel * personnalisez votre logement au gré de vos envies. possibilité d’exonération partielle ou total de la taxe foncière pendant 2 ans les + bonaparte promotion : -un accompagnement d’experts -un savoir-faire de plus de 15 ans -un gain de temps ! Recherche d’appartements personnalisée -un interlocuteur unique -un prix direct promoteur -une étude de financement -un accès à plus de 150 résidences en cours sur la région le plus grand choix de résidences neuves dans votre région : bonaparte promotion. Fr .
À quelques pas des plages de sable fin et du cœur animé de valras-plage, la résidence luminéa s’intègre avec élégance dans un environnement paisible, entre nature et mer. son architecture contemporaine, aux teintes blanches et taupe, s’inspire des nuances méditerranéennes : façades rythmées, parements de pierre, garde-corps dorés et terrasses boisées. entourée d’espaces verts paysagers. ce t3 en rez-de-chaussée d’environ 68 m² combine volumes généreux et confort haut de gamme. le séjour-cuisine d’environ 28 m² s’ouvre sur une large terrasse en bois de 25 m², idéale pour les repas d’été et les moments de détente. les deux chambres de 11 et 13 m² profitent d’une belle luminosité et d’un agencement optimal. un grand rangement indépendant, pensé pour accueillir les équipements du quotidien, permet d’installer aisément lave-linge et sèche-linge, tout en conservant un espace buanderie fonctionnel. prestations de standing : pompe à chaleur, carrelage grand format 45x45, double vitrage pvc, volets roulants motorisés, cuisine aménagée et équipée, salle de bains élégante avec sèche-serviette, alarme connectée et certification nf habitat re2020. un appartement lumineux et durable, parfait pour vivre à l’année ou profiter de la douceur du littoral. luminéa – le privilège d’un quotidien lumineux entre mer et nature. prix : 264900€ place de parking en sus 3000€ remise des clés : 3ème trimestre 2027 avantages du neuf : frais de notaire réduits (2.5%) isolation thermique renforcée isolation phonique entre étages charges réduites car bâtiment basse consommation re 2020 garantie constructeur 10 ans éligible au prêt à taux zéro personnalisez votre logement au gré de vos envies. possibilité d’exonération partielle ou total de la taxe foncière pendant 2 ans les + bonaparte promotion : -un accompagnement d’experts -un savoir-faire de plus de 19 ans -un gain de temps ! Recherche d’appartements personnalisée -un interlocuteur unique -un prix direct promoteur -une étude de financement -un accès à plus de 150 résidences en cours sur la région pour obtenir des renseignements rapidement, contactez votre conseiller dédié bonaparte promotion : yoann donnadieu 07 44 42 61 01 et / ou rendez-vous en agence sur rdv : bonaparte promotion 357 av. Du professeur etienne antonelli 34000 montpellier tel : 04 34 48 01 55 .
Contact : arnaud le guyader 07 44 43 69 00 à quelques pas des plages de sable fin et du cœur animé de valras-plage, la résidence luminéa s’intègre avec élégance dans un environnement paisible, entre nature et mer. son architecture contemporaine, aux teintes blanches et taupe, s’inspire des nuances méditerranéennes : façades rythmées, parements de pierre, garde-corps dorés et terrasses boisées. Entourée d’espaces verts paysagers. ce t4 d’environ possède une terrasse plein sud d’environ 16 m² : un plan ultra-désirable qui maximise la vie dedans / dehors. Le séjour-cuisine s’ouvre par une grande porte-fenêtre 3 vantaux sur la terrasse — effet “pièce supplémentaire” garanti. Côté nuit : 3 chambres spacieuses de 11 à 12 m², une salle de bains et une salle d’eau suplémentaire, wc séparé. Atout rare : un grand rangement d’environ 6 m² faisant office de buanderie (pratique pour lave-linge et sèche-linge). prestations de qualité et confort moderne : volets roulants motorisés, menuiseries double vitrage, carrelage grand format, pompe à chaleur (séjour), rangements optimisés, alarme connectée. Le tout dans une résidence récente à l’esprit méditerranéen, à deux pas de la mer — la super affaire pour qui cherche espace, lumière et terrasse plein sud. luminéa – le privilège d’un quotidien lumineux entre mer et nature. prix : 334900€ place de parking en sus 3000€ remise des clés : 3ème trimestre 2027 contact : bonaparte promotion – 07 44 43 69 00 avantages du neuf : frais de notaire réduits (2.5%) isolation thermique renforcée isolation phonique entre étages charges réduites car bâtiment basse consommation re 2020 garantie constructeur 10 ans éligible au prêt à taux zéro personnalisez votre logement au gré de vos envies. possibilité d’exonération partielle ou total de la taxe foncière pendant 2 ans les + bonaparte promotion : -un accompagnement d’experts -un savoir-faire de plus de 19 ans -un gain de temps ! Recherche d’appartements personnalisée -un interlocuteur unique -un prix direct promoteur -une étude de financement -un accès à plus de 150 résidences en cours sur la région pour obtenir des renseignements rapidement, contactez votre conseiller dédié bonaparte promotion : arnaud le guyader 07 44 43 69 00 et / ou rendez-vous en agence sur rdv : bonaparte promotion 357 av. Du professeur etienne antonelli 34000 montpellier tel : 04 34 48 01 55 .

Recevez en temps réel les dernières annonces correspondant à votre recherche
Iad France - Corinne Rouyer (06 33 91 84 03) vous propose : Venez découvrir cet appartement de 3 pièces avec balcon idéalement située, dans un environnement résidentiel et à moins de 200 mètres de la plage et proche des commerces. Deux portillons piétons permettent un accès par la rue Camille Founjut et le chemin de l'Oranger (desserte proche plage-mer). La résidence est accessible depuis la rue Camille Founjut et le chemin de l'Oranger, Accès véhicules aux stationnements via la rue Camille Founjut, Accès piétons via un portillon sur le chemin de l'Oranger. Honoraires d’agence à la charge du vendeur. Bien non soumis au DPE. Les informations sur les risques auxquels ce bien est exposé sont disponibles sur le site Géorisques : . La présente annonce immobilière a été rédigée sous la responsabilité éditoriale de Mme Corinne Rouyer EI (ID 61495), mandataire indépendant en immobilier (sans détention de fonds), agent commercial de la SAS I@D France immatriculé au RSAC de Clermont-Ferrand sous le numéro 851754317, titulaire de la carte de démarchage immobilier pour le compte de la société I@D France SAS. Retrouvez tous nos biens sur notre site internet. .
Valras-Plage - Studio d'environ 18 m², idéalement situé en centre-ville, à quelques pas des commerces et de la plage. Ce studio, situé au 1er étage d'un immeuble avec ascenseur, comprend une entrée avec coin-couchette, un séjour avec kitchenette, ainsi qu'une salle d'eau avec WC. Bien soumis au statut juridique de la copropriété. Nbre de lots : 40. Montant annuel quote-part du budget prévisionnel vendeur : 580 EUR. Copropriété faisant l'objet d'un plan de sauvegarde : Non. Syndicat est soumis à une procédure d'alerte ou de redressement : Non. Prix : 69 000 EUR (Honoraires d'agence TTC à la charge exclusive du vendeur). Consulter notre barème d'honoraires : .
Situé à Valras-Plage, à deux pas des commerces, des commodités et de la plage, découvrez ce charmant appartement d'environ 33 m², idéal pour une résidence secondaire ou un investissement locatif en bord de mer. Situé au 1er étage, cet appartement offre une agréable vue sur la mer et se compose d'un séjour lumineux avec cuisine ouverte, créant un espace de vie convivial et fonctionnel. La partie nuit comprend un petit espace nuit fermé indépendant, permettant d'optimiser les couchages et d'accueillir famille ou amis. Vous apprécierez également la terrasse fermée de 12 m², véritable espace supplémentaire utilisable toute l'année, parfaite pour profiter de la luminosité et de l'air marin. Ce bien dispose de prestations très recherchées : - Une place de parking privative - Une cave en rdc, idéale pour le rangement du matériel de plage ou vélos Son emplacement privilégié, proche de la mer et de toutes les commodités, en fait un bien particulièrement attractif pour les vacances, la location saisonnière ou un pied-à-terre au bord de la mer.
Valras-Plage - Studio cabine d'environ 26 m², situé sur le port avec une superbe vue sur le port et la mer. En 4ème étage d'un immeuble avec ascenseur, il est composé d'une entrée, d'un coin cabine avec lits superposés, d'un agréable séjour avec cuisine avec vue sur port et mer, d'une salle d'eau et WC. Le bien est vendu meublé. Bien soumis au statut juridique de la copropriété. Nbre de lots : 28. Montant annuel quote-part du budget prévisionnel vendeur : 850 euro;. Copropriété faisant l'objet d'un plan de sauvegarde : Non. Syndicat est soumis à une procédure d'alerte ou de redressement : Non. Prix : 105 000 euros (Honoraires d'agence TTC à la charge exclusive du vendeur). Consulter notre barème d'honoraires : .
À Valras-Plage, station balnéaire prisée du littoral méditerranéen, ce programme immobilier neuf bénéficie d’un emplacement exceptionnel à seulement 500 mètres de la plage et à proximité immédiate des commerces et services du centre-ville. Cette adresse recherchée permet de profiter pleinement de la douceur de vivre en bord de mer, avec toutes les commodités accessibles à pied et une accessibilité optimale au quotidien. La résidence séduit par son architecture contemporaine aux teintes inspirées du coquillage nacré, parfaitement intégrée dans son environnement côtier. Elle propose des appartements neufs de 2 et 3 pièces, adaptés aussi bien à un projet de résidence principale qu’à un investissement locatif à fort potentiel. Les logements offrent des volumes généreux, des agencements intelligemment pensés pour optimiser chaque espace, ainsi qu’une luminosité naturelle maximale garantissant confort et intimité. Certains appartements disposent même d’une suite parentale, renforçant le standing de l’ensemble. De larges baies vitrées prolongent les pièces de vie vers une terrasse privative, idéale pour recevoir, se détendre ou savourer les soirées méditerranéennes. Prestations soignées, confort du neuf et localisation premium font de ce programme immobilier neuf à Valras-Plage une opportunité rare pour investir ou s’installer à deux pas de la mer. Découvrez également nos 146 autres résidences dans le 34 : Rendez-vous dans notre Agence Médicis Immobilier Neuf, 18 place du Nombre d'Or, Montpellier 34000. Les informations sur les risques auxquels ce bien est exposé sont disponibles sur le site Géorisques : .
À Valras-Plage, station balnéaire prisée du littoral méditerranéen, ce programme immobilier neuf bénéficie d’un emplacement exceptionnel à seulement 500 mètres de la plage et à proximité immédiate des commerces et services du centre-ville. Cette adresse recherchée permet de profiter pleinement de la douceur de vivre en bord de mer, avec toutes les commodités accessibles à pied et une accessibilité optimale au quotidien. La résidence séduit par son architecture contemporaine aux teintes inspirées du coquillage nacré, parfaitement intégrée dans son environnement côtier. Elle propose des appartements neufs de 2 et 3 pièces, adaptés aussi bien à un projet de résidence principale qu’à un investissement locatif à fort potentiel. Les logements offrent des volumes généreux, des agencements intelligemment pensés pour optimiser chaque espace, ainsi qu’une luminosité naturelle maximale garantissant confort et intimité. Certains appartements disposent même d’une suite parentale, renforçant le standing de l’ensemble. De larges baies vitrées prolongent les pièces de vie vers une terrasse privative, idéale pour recevoir, se détendre ou savourer les soirées méditerranéennes. Prestations soignées, confort du neuf et localisation premium font de ce programme immobilier neuf à Valras-Plage une opportunité rare pour investir ou s’installer à deux pas de la mer. Découvrez également nos 146 autres résidences dans le 34 : Rendez-vous dans notre Agence Médicis Immobilier Neuf, 18 place du Nombre d'Or, Montpellier 34000. Les informations sur les risques auxquels ce bien est exposé sont disponibles sur le site Géorisques : .
Iad France - Aurélie Durand vous propose : Appartement de Standing à Valras-Plage Dans une résidence construite en 2007 et équipée d’un ascenseur, découvrez cet appartement T2 de 49 m² situé au premier étage. Il se trouve à proximité des commerces, des restaurants, des activités de loisirs et non loin de la plage. L’appartement se compose d’une pièce de vie donnant sur une grande terrasse de 26 m², d’une cuisine fonctionnelle avec son cellier, d’une chambre confortable ainsi que d’une salle d’eau comprenant le WC. L’ensemble est climatisé grâce à une climatisation réversible et adapté aux personnes à mobilité réduite. La résidence est sécurisée par un digicode. L’appartement est vendu avec une place de parking privative. La presente annonce immobiliere vise 2 lots situés dans une copropriété de 98 lots au total et ne faisant l'objet d'aucune procédure en cours citée à l'article L. 721-1 du code de la construction et de l'habitation. Montant moyen mensuel de charges déclaré par le vendeur : 110€ par mois (soit 1320 € annuel). Honoraires d'agence à la charge du vendeur. Information d'affichage énergétique sur ce bien : classe ENERGIE B indice 92 et classe CLIMAT A indice 3. Les informations sur les risques auxquels ce bien est exposé, y compris l'obligation légale de débroussaillement, sont disponibles sur le site Géorisques : La présente annonce immobilière a été rédigée sous la responsabilité éditoriale de Mme Aurélie Durand mandataire indépendant en immobilier (sans détention de fonds), agent commercial de la SAS I@D France immatriculé au RSAC de BEZIERS sous le numéro 838 008 670, titulaire de la carte de démarchage immobilier pour le compte de la société I@D France SAS.
Dans une résidence en cours de construction, découvrez ce t3 de 59,71 m², au deuxième étage, une exposition nord recherchée en bord de mer, pour un intérieur tempéré et confortable, même aux plus fortes chaleurs. Situé à seulement 150 mètres de la plage et à quelques minutes à pied des commerces et services, il permet de profiter de la vie balnéaire tout en restant proche du centre-ville. Le stationnement étant un luxe dans ce secteur, ce bien est vendu avec deux places de parking privatives, garantissant sécurité et facilité d'accès toute l'année. Profitez d'un accès immédiat aux plages, aux commerces et aux lieux de vie, tout en bénéficiant du calme de votre résidence. Ce bien correspond-il à vos critères de recherche (surface, standing, stationnement) ? Contactez-moi. Prix : 270 000 euros (honoraires à la charge du vendeur) dpe en cours. Pour visiter et vous accompagner dans votre projet, contactez michel hornecker, au 06 99 40 50 21 ou, par courriel à m.hornecker@proprietes-privees.com. Selon l'article l. 561.5 du code monétaire et financier, pour l'organisation de la visite, la présentation d'une pièce d'identité vous sera demandée. Cette présente annonce a été rédigée sous la responsabilité éditoriale de michel hornecker agissant sous le statut d'agent commercial immatriculé au rsac beziers 493044283 auprès de sas proprietes privees, au capital de 44 920 euros, zac le chêne ferré - 44 allée des cinq continents 44120 vertou; siret 487 624 777 00040, rcs nantes. Carte professionnelle transactions sur immeubles et fonds de commerce (t) et gestion immobilière (g) n°cpi 4401 2016 000 010 388 délivrée par la cci nantes - saint nazaire. Compte séquestre n°309 32 50 84 67 bpa saint-sebastien-sur-loire (44230). Garantie galian-smabtp - 89 rue de la boétie, 75008 paris - n°28137 j pour 2 000 000 euros pour t et 120 000 euros pour g. Assurance responsabilité civile professionnelle par galian-smabtp n° de police 28137. J mandat réf : 438294 le professionnel garantit et sécurise votre projet immobilier. Copropriété de 80 lots - dont 46 lots habitation. Charges annuelles : 1000 euros. Michel hornecker (ei) agent commercial - numéro rsac : beziers 493044283 -. Les informations sur les risques auxquels ce bien est exposé sont disponibles sur le site géorisques : www. Georisques. Gouv. Fr.
Dans une résidence en cours de construction, découvrez ce t3 de 63,10 m², au deuxième étage, exposé plein ouest, offrant une belle luminosité. Situé à seulement 150 mètres de la plage et à quelques minutes à pied des commerces et services, il permet de profiter de la vie balnéaire tout en restant proche du centre-ville. Le stationnement étant un luxe dans ce secteur, ce bien est vendu avec deux places de parking privatives, garantissant sécurité et facilité d'accès toute l'année. Profitez d'un accès immédiat aux plages, aux commerces et aux lieux de vie, tout en bénéficiant du calme de votre résidence. Ce bien correspond-il à vos critères de recherche (surface, standing, stationnement) ? Contactez-moi. Prix : 292 000 euros (honoraires à la charge du vendeur) dpe en cours. Pour visiter et vous accompagner dans votre projet, contactez michel hornecker, au 06 99 40 50 21 ou, par courriel à m.hornecker@proprietes-privees.com. Selon l'article l. 561.5 du code monétaire et financier, pour l'organisation de la visite, la présentation d'une pièce d'identité vous sera demandée. Cette présente annonce a été rédigée sous la responsabilité éditoriale de michel hornecker agissant sous le statut d'agent commercial immatriculé au rsac beziers 493044283 auprès de sas proprietes privees, au capital de 44 920 euros, zac le chêne ferré - 44 allée des cinq continents 44120 vertou; siret 487 624 777 00040, rcs nantes. Carte professionnelle transactions sur immeubles et fonds de commerce (t) et gestion immobilière (g) n°cpi 4401 2016 000 010 388 délivrée par la cci nantes - saint nazaire. Compte séquestre n°309 32 50 84 67 bpa saint-sebastien-sur-loire (44230). Garantie galian-smabtp - 89 rue de la boétie, 75008 paris - n°28137 j pour 2 000 000 euros pour t et 120 000 euros pour g. Assurance responsabilité civile professionnelle par galian-smabtp n° de police 28137. J mandat réf : 438291 le professionnel garantit et sécurise votre projet immobilier. Copropriété de 80 lots - dont 46 lots habitation. Charges annuelles : 1000 euros. Michel hornecker (ei) agent commercial - numéro rsac : beziers 493044283 -. Les informations sur les risques auxquels ce bien est exposé sont disponibles sur le site géorisques : www. Georisques. Gouv. Fr.
Dans une résidence en cours de construction, découvrez ce t3 de 60,11 m², au deuxième étage, exposé plein ouest, offrant une belle luminosité. Situé à seulement 150 mètres de la plage et à quelques minutes à pied des commerces et services, il permet de profiter de la vie balnéaire tout en restant proche du centre-ville. Le stationnement étant un luxe dans ce secteur, ce bien est vendu avec deux places de parking privatives, garantissant sécurité et facilité d'accès toute l'année. Profitez d'un accès immédiat aux plages, aux commerces et aux lieux de vie, tout en bénéficiant du calme de votre résidence. Ce bien correspond-il à vos critères de recherche (surface, standing, stationnement) ? Contactez-moi. Prix : 276 000 euros (honoraires à la charge du vendeur) dpe en cours. Pour visiter et vous accompagner dans votre projet, contactez michel hornecker, au 06 99 40 50 21 ou, par courriel à m.hornecker@proprietes-privees.com. Selon l'article l. 561.5 du code monétaire et financier, pour l'organisation de la visite, la présentation d'une pièce d'identité vous sera demandée. Cette présente annonce a été rédigée sous la responsabilité éditoriale de michel hornecker agissant sous le statut d'agent commercial immatriculé au rsac beziers 493044283 auprès de sas proprietes privees, au capital de 44 920 euros, zac le chêne ferré - 44 allée des cinq continents 44120 vertou; siret 487 624 777 00040, rcs nantes. Carte professionnelle transactions sur immeubles et fonds de commerce (t) et gestion immobilière (g) n°cpi 4401 2016 000 010 388 délivrée par la cci nantes - saint nazaire. Compte séquestre n°309 32 50 84 67 bpa saint-sebastien-sur-loire (44230). Garantie galian-smabtp - 89 rue de la boétie, 75008 paris - n°28137 j pour 2 000 000 euros pour t et 120 000 euros pour g. Assurance responsabilité civile professionnelle par galian-smabtp n° de police 28137. J mandat réf : 438290 le professionnel garantit et sécurise votre projet immobilier. Copropriété de 80 lots - dont 46 lots habitation. Charges annuelles : 1000 euros. Michel hornecker (ei) agent commercial - numéro rsac : beziers 493044283 -. Les informations sur les risques auxquels ce bien est exposé sont disponibles sur le site géorisques : www. Georisques. Gouv. Fr.
Dans une résidence en cours de construction, découvrez ce t3 de 58,56 m², au deuxième étage, exposé plein sud, offrant une belle luminosité. Situé à seulement 150 mètres de la plage et à quelques minutes à pied des commerces et services, il permet de profiter de la vie balnéaire tout en restant proche du centre-ville. Le stationnement étant un luxe dans ce secteur, ce bien est vendu avec deux places de parking privatives, garantissant sécurité et facilité d'accès toute l'année. Profitez d'un accès immédiat aux plages, aux commerces et aux lieux de vie, tout en bénéficiant du calme de votre résidence. Ce bien correspond-il à vos critères de recherche (surface, standing, stationnement) ? Contactez-moi. Prix : 280 000 euros (honoraires à la charge du vendeur) dpe en cours. Pour visiter et vous accompagner dans votre projet, contactez michel hornecker, au 06 99 40 50 21 ou, par courriel à m.hornecker@proprietes-privees.com. Selon l'article l. 561.5 du code monétaire et financier, pour l'organisation de la visite, la présentation d'une pièce d'identité vous sera demandée. Cette présente annonce a été rédigée sous la responsabilité éditoriale de michel hornecker agissant sous le statut d'agent commercial immatriculé au rsac beziers 493044283 auprès de sas proprietes privees, au capital de 44 920 euros, zac le chêne ferré - 44 allée des cinq continents 44120 vertou; siret 487 624 777 00040, rcs nantes. Carte professionnelle transactions sur immeubles et fonds de commerce (t) et gestion immobilière (g) n°cpi 4401 2016 000 010 388 délivrée par la cci nantes - saint nazaire. Compte séquestre n°309 32 50 84 67 bpa saint-sebastien-sur-loire (44230). Garantie galian-smabtp - 89 rue de la boétie, 75008 paris - n°28137 j pour 2 000 000 euros pour t et 120 000 euros pour g. Assurance responsabilité civile professionnelle par galian-smabtp n° de police 28137. J mandat réf : 438269 le professionnel garantit et sécurise votre projet immobilier. Copropriété de 80 lots - dont 46 lots habitation. Charges annuelles : 1000 euros. Michel hornecker (ei) agent commercial - numéro rsac : beziers 493044283 -. Les informations sur les risques auxquels ce bien est exposé sont disponibles sur le site géorisques : www. Georisques. Gouv. Fr.
Iad france - catherine turlier vous propose : a valras proche des commerces et de la mer, appartement (2010) au rez de chaussée de 70 m² habitables, dans une résidence sécurisée avec une magnifique piscine, un grand local à vélos (en commun), et une place de parking privée. L'appartement se compose d'une cuisine équipée et aménagée ouverte sur une belle pièce à vivre (32 m²), 2 chambres avec rangements (11 m² et 9 m²), une salle de bain avec une baignoire (7 m²), une cabine de douche et un wc (3 m²). Vous pourrez apprécier la loggia couverte (12 m²) exposée sud. Climatisation réversible. Possibilité d'acquérir un garage (17 m²) accolé à l'appartement en supplément. Aucun travaux a prévoir, une visite s'impose. La presente annonce immobiliere vise 2 lots situés dans une copropriété de 101 lots au total et ne faisant l'objet d'aucune procédure en cours citée à l'article l. 721-1 du code de la construction et de l'habitation. Montant moyen mensuel de charges déclaré par le vendeur : 108.33€ par mois (soit 1300 € annuel). Honoraires d'agence à la charge du vendeur. Information d'affichage énergétique sur ce bien : classe energie b indice 97 et classe climat a indice 3. Les informations sur les risques auxquels ce bien est exposé, y compris l'obligation légale de débroussaillement, sont disponibles sur le site géorisques : la présente annonce immobilière a été rédigée sous la responsabilité éditoriale de mme catherine turlier mandataire indépendant en immobilier (sans détention de fonds), agent commercial de la sas i@d france immatriculé au rsac de beziers sous le numéro 381895143, titulaire de la carte de démarchage immobilier pour le compte de la société i@d france sas.
Idéalement situé, cet appartement t2 d'environ 29 m², au 1er étage avec ascenseur d'une résidence sécurisée, offre un cadre de vie agréable et pratique. Il se compose d'une entrée avec placard, d'une chambre, d'une salle d'eau avec douche, ainsi que d'un séjour lumineux avec coin cuisine, ouvrant sur une loggia d'environ 8 m² bénéficiant d'une vue sur la mer. Une place de parking privative à l'intérieur de la résidence complète ce bien. Emplacement privilégié : tout se fait à pied (commerces, plages, transports), idéal pour une résidence principale, secondaire ou un investissement locatif. À visiter sans tarder ! Prix de vente : 134000 euros fai dpe d ges a montant estimé des dépenses annuelles d'énergie pour un usage standard entre 561 euros et 759 euros indexées aux années 2021,2022 et 2023 pour visiter et vous accompagner dans votre projet, contactez warda thuault, au 07 85 02 02 66 ou, par courriel à wa.thuault@proprietes-privees.com. Selon l'article l. 561.5 du code monétaire et financier, pour l'organisation de la visite, la présentation d'une pièce d'identité vous sera demandée. Cette présente annonce a été rédigée sous la responsabilité éditoriale de warda thuault agissant sous le statut d'agent commercial immatriculé au rsac agen 848264438 auprès de sas proprietes privees, au capital de 44 920 euros, zac le chêne ferré - 44 allée des cinq continents 44120 vertou; siret 487 624 777 00040, rcs nantes. Carte professionnelle transactions sur immeubles et fonds de commerce (t) et gestion immobilière (g) n°cpi 4401 2016 000 010 388 délivrée par la cci nantes - saint nazaire. Compte séquestre n°309 32 50 84 67 bpa saint-sebastien-sur-loire (44230). Garantie galian-smabtp - 89 rue de la boétie, 75008 paris - n°28137 j pour 2 000 000 euros pour t et 120 000 euros pour g. Assurance responsabilité civile professionnelle par galian-smabtp n° de police 28137. J mandat réf : 436010- le professionnel garantit et sécurise votre projet immobilier. Warda thuault (ei) agent commercial - numéro rsac : agen 848264438 -. Les informations sur les risques auxquels ce bien est exposé sont disponibles sur le site géorisques : www. Georisques. Gouv. Fr.
Situé au premier étage, au calme et sans vis-à-vis, offrant un cadre de vie agréable et confortable. Sa belle exposition est apporte une luminosité naturelle. Le bien se compose d'un séjour spacieux et lumineux avec accès au balcon, ainsi que d'une chambre ouvrant également sur l'extérieur, créant une continuité agréable entre les espaces de vie. La cuisine est prête à être aménagée selon vos envies. La salle de bains est équipée avec mobilier et robinetterie de qualité. Côté praticité, la résidence dispose de deux espaces dédiés au stationnement des vélos, situés en rez-de-chaussée et sécurisés. Le bien bénéficie d'un cadre d'acquisition particulièrement avantageux, permettant une optimisation des frais liés à l'achat, conformément aux dispositions en vigueur. Un contexte budgétaire favorable sur les premières années offre une réelle souplesse pour organiser sereinement vos aménagements et équipements. Habitant sérignan, à proximité immédiate de votre futur appartement, je me tiens personnellement à votre disposition pour répondre à toutes vos questions, organiser les visites et vous accompagner pas à pas dans votre projet. Pour visiter ou obtenir davantage d'informations, contactez-moi directement au 06 99 40 50 99. Disponibilités flexibles afin de s'adapter à votre emploi du temps. Chaque question est légitime. Je suis là pour vous écouter, vous guider et vous rassurer à chaque étape, afin que vous puissiez avancer en toute sérénité. Prix : 196 000 euros (honoraires à la charge du vendeur) dpe en cours. Pour visiter et vous accompagner dans votre projet, contactez michel hornecker, au 06 99 40 50 21 ou, par courriel à m.hornecker@proprietes-privees.com. Selon l'article l. 561.5 du code monétaire et financier, pour l'organisation de la visite, la présentation d'une pièce d'identité vous sera demandée. Cette présente annonce a été rédigée sous la responsabilité éditoriale de michel hornecker agissant sous le statut d'agent commercial immatriculé au rsac beziers 493044283 auprès de sas proprietes privees, au capital de 44 920 euros, zac le chêne ferré - 44 allée des cinq continents 44120 vertou; siret 487 624 777 00040, rcs nantes. Carte professionnelle transactions sur immeubles et fonds de commerce (t) et gestion immobilière (g) n°cpi 4401 2016 000 010 388 délivrée par la cci nantes - saint nazaire. Compte séquestre n°309 32 50 84 67 bpa saint-sebastien-sur-loire (44230). Garantie galian-smabtp - 89 rue de la boétie, 75008 paris - n°28137 j pour 2 000 000 euros pour t et 120 000 euros pour g. Assurance responsabilité civile professionnelle par galian-smabtp n° de police 28137. J mandat réf : 435597 le professionnel garantit et sécurise votre projet immobilier. Copropriété de 80 lots - dont 46 lots habitation. Charges annuelles : 1000 euros. Michel hornecker (ei) agent commercial - numéro rsac : beziers 493044283 -. Les informations sur les risques auxquels ce bien est exposé sont disponibles sur le site géorisques : www. Georisques. Gouv. Fr.
Iad France - Corinne Blanc (06 22 58 22 10) vous propose : Appartement vue mer à Valras-Plage – Résidence sécurisée avec ascenseur A quelques pas des plages et des commerces, découvrez cet appartement vue mer, Dès l’entrée, vous découvrirez un espace fonctionnel et bien pensé, comprenant un dégagement avec débarras intégré et un WC indépendant. La pièce de vie lumineuse accueille une cuisine américaine moderne, ouverte sur une loggia fermée, véritable atout du bien, offrant une vue sur la mer. Côté nuit, la suite parentale propose un espace avec une salle d’eau contemporaine, équipée d’une douche à l’italienne et de meubles double vasque. ? Appartement prêt à vivre ? Aucun travaux à prévoir ? Prêt à louer immédiatement ? Surface Loi Carrez : 26,59 m² environ ? Surface avec loggia fermée : environ 33 m² environ N'hésitez pas à me contacter pour plus de renseignements. La présente annonce immobilière vise 1 lot principal situé dans une copropriété formant 87 lots au total ne faisant l'objet d'aucune procédure en cours et d'un montant de charges d’environ 100 € par mois (soit 1200 € annuel) déclaré par le vendeur. Honoraires d’agence à la charge du vendeur. Information d'affichage énergétique sur ce bien : classe ENERGIE E indice 294 et classe CLIMAT B indice 9. Les informations sur les risques auxquels ce bien est exposé sont disponibles sur le site Géorisques : . La présente annonce immobilière a été rédigée sous la responsabilité éditoriale de Mlle Corinne Blanc EI (ID 27263), mandataire indépendant en immobilier (sans détention de fonds), agent commercial de la SAS I@D France immatriculé au RSAC de Béziers sous le numéro 437 569 767, titulaire de la carte de démarchage immobilier pour le compte de la société I@D France SAS. Le présent bien est commercialisé dans le cadre d'une délégation de mandat. Retrouvez tous nos biens sur notre site internet. .
Laissez-vous séduire par ce magnifique appartement vue mer, idéalement situé au cœur de Valras-Plage, à seulement quelques pas des plages et des commerces. Niché dans une résidence sécurisée avec ascenseur et parking, cet appartement réunit tous les critères recherchés dans cette station balnéaire prisée. Dès l'entrée, l'atmosphère est chaleureuse et fonctionnelle avec un dégagement équipé d'un débarras et un WC indépendant. La pièce de vie baignée de lumière vous invite à la détente, avec sa cuisine américaine moderne, ouverte sur une loggia fermée offrant une vue panoramique à couper le souffle sur la mer un véritable tableau vivant, été comme hiver. Côté nuit, la suite parentale propose un espace intime et élégant, avec sa salle d'eau contemporaine, dotée d'une douche à l'italienne et de meubles double vasque. Prêt à vivre, prêt à louer, sans aucuns travaux. Un bien rare, idéal pour résidence principale, pied-à-terre en bord de mer ou investissement locatif à forte rentabilité. Un véritable coup de cœur, à découvrir sans tarder pour s'offrir une qualité de vie exceptionnelle entre ciel et mer. Bien soumis au statut juridique de la Copropriété. Nb de lots : 87. Charges annuelles de copropriété (Montant moyen annuel quote-part du budget prévisionnel vendeur) : 100 €. Pas de procédure en cours. Surface CARREZ : 26.59 m² Honoraires à la charge du vendeur - BEATRICE DUSSAP - Tel : 07 88 22 47 34 - beatrice.dussap@santoni.fr -Conseiller Indépendant RSAC N° 882 504 640 Les informations sur les risques auxquels ce bien est exposé sont disponibles sur le site Géo risques.
Dans une résidence en cours de construction, découvrez ce t2 de 41,52 m², au 1er étage, exposé est, offrant une belle luminosité. Il comprend un séjour-cuisine et une chambre, tous deux donnant sur la terrasse, idéale pour profiter de l'extérieur. À seulement 150 mètres de la plage et à quelques minutes à pied des commerces et services, cet appartement permet de profiter pleinement de la vie balnéaire tout en restant proche du centre-ville. Le stationnement, rare dans ce secteur, est inclus grâce à une place de parking privative, garantissant sécurité et facilité d'accès toute l'année. Profitez d'un accès immédiat aux plages, aux commerces et aux lieux de vie, tout en bénéficiant du calme de votre résidence. Ce bien correspond-il à vos critères de recherche (surface, standing, stationnement) ? Prix : 185 000 euros (honoraires à la charge du vendeur) dpe en cours. Pour visiter et vous accompagner dans votre projet, contactez michel hornecker, au 06 99 40 50 21 ou, par courriel à m.hornecker@proprietes-privees.com. Selon l'article l. 561.5 du code monétaire et financier, pour l'organisation de la visite, la présentation d'une pièce d'identité vous sera demandée. Cette présente annonce a été rédigée sous la responsabilité éditoriale de michel hornecker agissant sous le statut d'agent commercial immatriculé au rsac beziers 493044283 auprès de sas proprietes privees, au capital de 44 920 euros, zac le chêne ferré - 44 allée des cinq continents 44120 vertou; siret 487 624 777 00040, rcs nantes. Carte professionnelle transactions sur immeubles et fonds de commerce (t) et gestion immobilière (g) n°cpi 4401 2016 000 010 388 délivrée par la cci nantes - saint nazaire. Compte séquestre n°309 32 50 84 67 bpa saint-sebastien-sur-loire (44230). Garantie galian-smabtp - 89 rue de la boétie, 75008 paris - n°28137 j pour 2 000 000 euros pour t et 120 000 euros pour g. Assurance responsabilité civile professionnelle par galian-smabtp n° de police 28137. J mandat réf : 433607 le professionnel garantit et sécurise votre projet immobilier. Copropriété de 80 lots - dont 46 lots habitation. Charges annuelles : 1000 euros. Michel hornecker (ei) agent commercial - numéro rsac : beziers 493044283 -. Les informations sur les risques auxquels ce bien est exposé sont disponibles sur le site géorisques : www. Georisques. Gouv. Fr.
Dans une résidence en cours de construction, découvrez ce t1 de 29,66 m², au troisième étage, exposé plein sud, offrant une belle luminosité. Situé à seulement 150 mètres de la plage et à quelques minutes à pied des commerces et services, il permet de profiter de la vie balnéaire tout en restant proche du centre-ville. Le stationnement étant un luxe dans ce secteur, ce bien est vendu avec une place de parking privative, garantissant sécurité et facilité d'accès toute l'année. Profitez d'un accès immédiat aux plages, aux commerces et aux lieux de vie, tout en bénéficiant du calme de votre résidence. Ce bien correspond-il à vos critères de recherche (surface, standing, stationnement) ? Prix : 154 000 euros (honoraires à la charge du vendeur) dpe en cours. Pour visiter et vous accompagner dans votre projet, contactez michel hornecker, au 06 99 40 50 21 ou, par courriel à m.hornecker@proprietes-privees.com. Selon l'article l. 561.5 du code monétaire et financier, pour l'organisation de la visite, la présentation d'une pièce d'identité vous sera demandée. Cette présente annonce a été rédigée sous la responsabilité éditoriale de michel hornecker agissant sous le statut d'agent commercial immatriculé au rsac beziers 493044283 auprès de sas proprietes privees, au capital de 44 920 euros, zac le chêne ferré - 44 allée des cinq continents 44120 vertou; siret 487 624 777 00040, rcs nantes. Carte professionnelle transactions sur immeubles et fonds de commerce (t) et gestion immobilière (g) n°cpi 4401 2016 000 010 388 délivrée par la cci nantes - saint nazaire. Compte séquestre n°309 32 50 84 67 bpa saint-sebastien-sur-loire (44230). Garantie galian-smabtp - 89 rue de la boétie, 75008 paris - n°28137 j pour 2 000 000 euros pour t et 120 000 euros pour g. Assurance responsabilité civile professionnelle par galian-smabtp n° de police 28137. J mandat réf : 433581 le professionnel garantit et sécurise votre projet immobilier. Copropriété de 80 lots - dont 46 lots habitation. Charges annuelles : 1000 euros. Michel hornecker (ei) agent commercial - numéro rsac : beziers 493044283 -. Les informations sur les risques auxquels ce bien est exposé sont disponibles sur le site géorisques : www. Georisques. Gouv. Fr.
Dans une résidence en cours de construction, découvrez ce t2 de 41,43 m², au 1er étage, exposé est, offrant une belle luminosité. Il comprend un séjour-cuisine et une chambre, tous deux donnant sur la terrasse, idéale pour profiter de l'extérieur. À seulement 150 mètres de la plage et à quelques minutes à pied des commerces et services, cet appartement permet de profiter pleinement de la vie balnéaire tout en restant proche du centre-ville. Le stationnement, rare dans ce secteur, est inclus grâce à une place de parking privative, garantissant sécurité et facilité d'accès toute l'année. Profitez d'un accès immédiat aux plages, aux commerces et aux lieux de vie, tout en bénéficiant du calme de votre résidence. Ce bien correspond-il à vos critères de recherche (surface, standing, stationnement) ? Prix : 191 000 euros (honoraires à la charge du vendeur) dpe en cours. Pour visiter et vous accompagner dans votre projet, contactez michel hornecker, au 06 99 40 50 21 ou, par courriel à m.hornecker@proprietes-privees.com. Selon l'article l. 561.5 du code monétaire et financier, pour l'organisation de la visite, la présentation d'une pièce d'identité vous sera demandée. Cette présente annonce a été rédigée sous la responsabilité éditoriale de michel hornecker agissant sous le statut d'agent commercial immatriculé au rsac beziers 493044283 auprès de sas proprietes privees, au capital de 44 920 euros, zac le chêne ferré - 44 allée des cinq continents 44120 vertou; siret 487 624 777 00040, rcs nantes. Carte professionnelle transactions sur immeubles et fonds de commerce (t) et gestion immobilière (g) n°cpi 4401 2016 000 010 388 délivrée par la cci nantes - saint nazaire. Compte séquestre n°309 32 50 84 67 bpa saint-sebastien-sur-loire (44230). Garantie galian-smabtp - 89 rue de la boétie, 75008 paris - n°28137 j pour 2 000 000 euros pour t et 120 000 euros pour g. Assurance responsabilité civile professionnelle par galian-smabtp n° de police 28137. J mandat réf : 433610 le professionnel garantit et sécurise votre projet immobilier. Copropriété de 80 lots - dont 46 lots habitation. Charges annuelles : 1000 euros. Michel hornecker (ei) agent commercial - numéro rsac : beziers 493044283 -. Les informations sur les risques auxquels ce bien est exposé sont disponibles sur le site géorisques : www. Georisques. Gouv. Fr.
Iad France - Pierre Magerand (06 37 21 92 42) vous propose : Appartement T4 avec balcon à Valras-Plage. Située chemin du Carreyrou à Valras-Plage, la résidence Azuréa allie architecture contemporaine et esprit méditerranéen. À seulement quelques minutes à pied des plages et du cOEur de la station, cette adresse offre un cadre de vie agréable et calme au sein d’un environnement résidentiel préservé. Disponible 2027. Un appartement raffiné : Situé au 1 er étage, cet appartement T4 de 81 m² environ habitables se prolonge par un balcon de 16 m² environ. - Séjour / cuisine de 25 m² environ. - Trois chambres confortables. - Salle de bain et salle d'eau modernes. - Annexe incluse : un parking. De belles prestations : - Chauffage du séjour par pompe à chaleur monosplit. - Volets roulants motorisés et menuiseries PVC double vitrage. - Résidence sécurisée avec ascenseur, vidéophone et stationnements. L’art de vivre à Valras-Plage : - À moins de 10 minutes à pied des plages et du front de mer. - Commerces, restaurants, marché et services accessibles à pied. - À proximité du port de plaisance et de la réserve naturelle des Orpellières. - Accès rapide à Béziers, à l’A9 et aux axes vers Montpellier et Narbonne. - Station balnéaire conviviale, idéale pour une résidence principale, un pied-à-terre ou un investissement locatif. N’hésitez pas à me contacter pour plus d’informations ou pour un accompagnement sur mesure. Honoraires d’agence à la charge du vendeur. Bien non soumis au DPE. Les informations sur les risques auxquels ce bien est exposé sont disponibles sur le site Géorisques : . La présente annonce immobilière a été rédigée sous la responsabilité éditoriale de M. Pierre Magerand EI (ID 86098), mandataire indépendant en immobilier (sans détention de fonds), agent commercial de la SAS I@D France immatriculé au RSAC de Cusset sous le numéro 938729175, titulaire de la carte de démarchage immobilier pour le compte de la société I@D France SAS. Retrouvez tous nos biens sur notre site internet. .
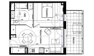
Iad France - Pierre Magerand (06 37 21 92 42) vous propose : Appartement T3 avec balcon à Valras-Plage. Située chemin du Carreyrou à Valras-Plage, la résidence Azuréa allie architecture contemporaine et esprit méditerranéen. À seulement quelques minutes à pied des plages et du cOEur de la station, cette adresse offre un cadre de vie agréable et calme au sein d’un environnement résidentiel préservé. Disponible 2027. Un appartement raffiné : Situé au 3 ème étage, cet appartement T3 de 67 m² environ habitables se prolonge par un balcon de 25 m² environ. - Séjour / cuisine de 28 m² environ. - Deux chambres confortables. - Salle de bain moderne. - Annexe incluse : un parking. De belles prestations : - Chauffage du séjour par pompe à chaleur monosplit. - Volets roulants motorisés et menuiseries PVC double vitrage. - Résidence sécurisée avec ascenseur, vidéophone et stationnements. L’art de vivre à Valras-Plage : - À moins de 10 minutes à pied des plages et du front de mer. - Commerces, restaurants, marché et services accessibles à pied. - À proximité du port de plaisance et de la réserve naturelle des Orpellières. - Accès rapide à Béziers, à l’A9 et aux axes vers Montpellier et Narbonne. - Station balnéaire conviviale, idéale pour une résidence principale, un pied-à-terre ou un investissement locatif. N’hésitez pas à me contacter pour plus d’informations ou pour un accompagnement sur mesure. Honoraires d’agence à la charge du vendeur. Bien non soumis au DPE. Les informations sur les risques auxquels ce bien est exposé sont disponibles sur le site Géorisques : . La présente annonce immobilière a été rédigée sous la responsabilité éditoriale de M. Pierre Magerand EI (ID 86098), mandataire indépendant en immobilier (sans détention de fonds), agent commercial de la SAS I@D France immatriculé au RSAC de Cusset sous le numéro 938729175, titulaire de la carte de démarchage immobilier pour le compte de la société I@D France SAS. Retrouvez tous nos biens sur notre site internet. .