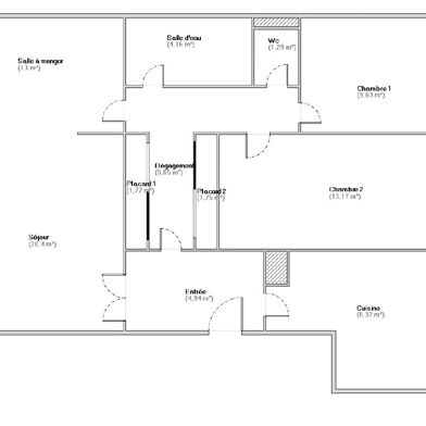
L’office notarial mdcc versailles notaires, selarl, scp vous propose : appartement à vendre en immo-interactif - adresse du bien : 19 avenue jean jaurès 78210 st cyr l ecole - vente immo-interactive notariale (appel d'offres à la hausse avec un minimum de 239 000 €) du vendredi 22 novembre 2024 à 12 h30 au samedi 23 novembre 12 h30. Description du bien saint-cyr-l'ecole - appartement- quartier de la mairie au 2ème étage d'un petit immeuble collectif de 3 étages en meulière, appartement très lumineux traversant (sud-nord) de 80,08 m² comprenant : salle à manger avec cuisine, 2 chambres, grand séjour, salle d'eau avec wc. Situé à 9 min à pieds de la gare et à proximité des commerces et écoles. Vue imprenable sur l'ecole militaire. Appartement en bon état. Fenêtres en double vitrage neuves. Chauffage électrique individuel / convecteurs neufs. Faibles charges. Procedure a suivre pour s'inscrire et pouvoir effectuer une offre : 1°) visite du bien contacter l'office mdcc versailles notaires (mme amélie delaitre) pour planifier une visite dès maintenant ou pour plus d'informations au 01 39 24 82 82 ou mail : mdcc.versailles@78001.notaires.fr 2°) demande d'agrément 3°) offre - reception pendant 24 h : 22 / 11 / 2024 à 12 h 30 au 23 / 11 / 2024 à 12 h30.1ère offre possible : 239 000€ (commission d'agence inclus) offre suivante : minimum 3 000 € au dessus. Offre à déposer sur le site immobilier. Notaires. Elle sera alors visible par les autres enchérisseurs qui pourront surenchérir. - visites : sur rendez-vous. Contact : 01 39 24 82 82 - conditions de la vente : le bien est présenté en immo-interactif à la hausse : - 1ère offre possible : à partir de 239 000 euros (honoraires de négociation inclus) - offres suivantes : multiples de 3 000 euros. - réception des offres du 22 / 11 / 2024 à 12 : 30 au 23 / 11 / 2024 à 12 : 30 sur le site immo-interactif®. - annonce de l’étude mdcc versailles notaires, selarl - notaires à versailles - n° siret : 97846870000015 - immo-interactif® : le système d'enchères immobilières sans contrainte, transparent et sécurisé, proposé par votre notaire.
Les informations sur les risques auxquels ce bien est exposé sont disponibles sur le site Géorisques : www.georisques.gouv.fr
Mise en ligne:
Dernière mise à jour:
Référence de l'annonce: IMMEUBLE SAINT CYR L'ECOLEÀ vendre : appartement t4 lumineux à saint-cyr-l'école – proche versailles spacieux • fonctionnel • bien situé dans une petite copropriété calme et bien entretenue, découvrez ce bel appartement familial aux volumes généreux et à l'ambiance chaleureuse. Emplacement recherché idéalement situé à saint-cyr-l'école, à proximité immédiate : • gare et transports (accès rapide à versailles et paris) • commerces de quartier • écoles et services un intérieur agréable à vivre • entrée accueillante • grand salon / séjour lumineux • cuisine équipée, fonctionnelle et conviviale • 3 belles chambres confortables • 1 salle de bains atouts complémentaires • cave • place de stationnement privative • ambiance cosy, atmosphère paisible un cadre de vie agréable, un emplacement idéal, et un appartement prêt à accueillir votre nouveau projet de vie. N'attendez plus pour venir le découvrir : une visite pourrait bien être un vrai coup de cœur ! Nombre de lots de la copropriété : 115, montant moyen annuel de la quote-part de charges (budget prévisionnel) : 3300€ soit 275€ par mois. Les honoraires d'agence sont à la charge de l'acquéreur, soit 4,09% ttc du prix hors honoraires. Le diagnostic de performance énergétique (dpe) a été réalisé selon une méthode valable mais non fiable et non-opposable. Les informations sur les risques auxquels ce bien est exposé sont disponibles sur le site géorisques : www. Georisques. Gouv. Fr. Réseau immobilier capifrance - votre agent commercial (rsac n°489 244 012 - greffe de versailles) patrick renan entrepreneur individuel 06 16 72 04 08 - réf. 916096.

Nouveau programme à saint-cyr-l'ecole cette nouvelle résidence bénéficie d'un emplacement privilégié, alliant dynamisme urbain et cadre verdoyant. À deux pas de la gare multimodale (rer c, lignes n, u et tram t13), elle offre un accès rapide à paris et versailles. Le quartier, quant à lui, propose de nombreux commerces de proximité, des écoles réputées, des espaces verts et des équipements culturels, parfaits pour une vie de famille épanouie. La ville, marquée par un riche patrimoine historique et un environnement soigné, séduit par son équilibre entre tranquillité résidentielle et vitalité locale. Une adresse idéale pour conjuguer confort, praticité et qualité de vie. La résidence propose 24 logements du 2 au 4 pièces avec parking en sous-sol. Bénéficiant des dernières normes énergétiques (re2025), ses appartements modernes, confortables et lumineux vous combleront, votre famille et vous. Les informations sur les risques auxquels ce bien est exposé sont disponibles sur le site géorisques : .
Nouveaux appartements mis en vente les 6,7 et 8 février offre exceptionnelle : frais de notaire offerts * éligible au lli en commercialisation dans le centre-ville de saint-cyr-l'école. Ce programme immobilier neuf les nouveaux constructeurs s'affirme par une belle identité architecturale néoclassique. Il accueille des appartements du studio au 3 pièces avec balcon, loggia, terrasse et jardin individuel. Résidence neuve sécurisée avec parking privatif en sous-sol. 2 locaux d'activités en rez-de-chaussée. Toutes structures d'enseignement (de la crèche au lycée) dans les 1 000 m. Nombreuses commodités à distance piétonne : supermarché, marché couvert, parc public, cinéma, bibliothèque. Arrêt de bus à 50 m de la réalisation. Gare (rer c, transilien n, u et tram 13 express) de saint-cyr-l'école à 1 km ou à 5 min en bus. Accès à l'a12 à 4,7 km, à l'a13 à 9 km et à l'a86 à 12 km. Pôles d'emploi de versailles et de saint-quentin-en-yvelines rapidement accessibles. * voir conditions sur lnc. Fr les informations sur les risques auxquels ce bien est exposé sont disponibles sur le site géorisques : .
Votre futur chez-vous au cœur du quartier de l'Abbaye à Saint-Cyr-l'École Situé au 2ème étage avec ascenseur d'une résidence sécurisée et conviviale avec gardien, cet appartement T3 de 64,50 m² offre un cadre de vie agréable et fonctionnel, au sein d'un quartier résidentiel recherché. Dès l'entrée, vous trouverez des WC séparés ainsi qu'un placard de rangement. L'agencement est fluide et bien pensé. Le séjour de 25,4 m², bénéficiant d'une double exposition sud-est, offre un espace de vie confortable et donne accès à une loggia de 7,5 m². La cuisine indépendante, aménagée et équipée, permet de cuisiner à l'écart de l'espace de vie. Un dégagement dessert ensuite deux chambres avec rangements intégrés et une salle de bains (quelques rafraîchissements à prévoir). Un quotidien pratique et serein, tout est accessible à pied : - commerces de proximité, - écoles (de la crèche au lycée), - professionnels de santé, - gare SNCF (lignes C, U et N vers Paris et La Défense en moins de 30 minutes). - un arrêt de bus à 50 m complète l'offre de transports vers Versailles, Saint-Quentin-en-Yvelines ou Plaisir. Les points forts : - 1 place de parking en sous-sol sécurisé - Résidence calme avec local vélo - Quartier familial et recherché de l'Abbaye avec un joli parc central - Proximité immédiate de Versailles et de Saint-Quentin-en-Yvelines Un bien fonctionnel et agréable à vivre, idéal pour une résidence principale comme pour un investissement. Contactez-moi pour organiser une visite et découvrir si cet appartement correspond à votre projet. Nombre de lots de la copropriété : 195, Montant moyen annuel de la quote-part de charges (budget prévisionnel) : 1920€ soit 160€ par mois. Les honoraires sont à la charge du vendeur. Les informations sur les risques auxquels ce bien est exposé sont disponibles sur le site Géorisques : www. georisques. gouv. fr. Réseau Immobilier CAPIFRANCE - Votre agent commercial (RSAC N°447 964 313 - Greffe de VERSAILLES) Angélique PLÉAU Entrepreneur Individuel 06 62 25 16 18 - Réf. 912818.
ST CYR L'ECOLE, hotel de ville, à 6 min a pied de la Gare appartement 3 pièces de 67 m² comprenant une entrée dégagement, pièce de vie sur balcon de 10 m², cuisine semi-ouverte, 2 chambres, salle de bains, wc. Petite copropriété. Une cave ainsi que deux emplacements de parking complètent ce bien. Proposition d'aménagement virtuel non contractuelle en dernière photo. Honoraires inclus dans le prix : 5.2%.
Situé à Saint-Cyr-l'École (78210), cet appartement T4 offre un cadre de vie privilégié, proche des écoles, lycées, collèges, crèches, ainsi que des transports en commun tels que bus et train.( 6 min de la gare de St Cyr - l'Ecole).Les commerces sont à 8 minutes à pieds (600m). Doté d'une façade en béton et d'un parking extérieur, il bénéficie d'une exposition Sud-Est, d'un balcon et d'une cave, offrant des espaces extérieurs appréciables. À l'intérieur, la résidence construite en 1965 propose une surface habitable de 80 m², Carrez, et répartie en 4 pièces, avec un salon double, une cuisine équipée et aménagée (datant de 2007), 2 chambres parquetées, avec placards, possiblité d'une 3 è chambre. Les menuiseries en double vitrage et les équipements tels que l'interphone, le digicode et la fibre optique assurent un confort et une sécurité appréciables. La cuisine équipée et aménagée, les chambres avec placard, la salle de bains avec baignoire, douche cabine et lavabos, ainsi que les WC séparés complètent les aménagements intérieurs de ce bien au sol en parquet et carrelage, offrant un cadre de vie fonctionnel et agréable. Un grand balcon orienté sud est donne une belle luminosité à la pièce de vie. Un local à vélos est existant, ainsi qu'une cave et un emplacement de parking extérieur. Le ravalement a été réalisé en 2025, tous les ouvrants en double vitrage sont neufs, et les volets roulants également. Les compteurs électriques ont été repris en 2025. N'hésitez pas et venez découvrir cet appartement fonctionnel, lumineux, qui n'attend que vous ! Contactez moi, ce sera avec grand plaisir ! Le bien comprend 3 lots, et il est situé dans une copropriété de 1 ? 218 lots (les charges courantes annuelles moyennes de copropriété sont de 3784 € et le syndicat des copropriétaires ne fait pas l'objet d'une procédure citée à l'article L. 721-1 du code de la construction et de l'habitation). Les informations sur les risques auxquels ce bien est exposé sont disponibles sur le site Géorisques : Prix de vente : 220 500 € Honoraires charge vendeur Contactez votre conseiller SAFTI : Virginie UHRICH, Tél. : 06 13 85 95 87, E-mail : virginie.uhrich@safti.fr - EI - Agent commercial immatriculé au RSAC de VERSAILLES sous le numéro 879 793 164.

Nouveau programme à saint-cyr-l'ecole éligible au dispositif jeanbrun cette nouvelle résidence bénéficie d'un emplacement privilégié, alliant dynamisme urbain et cadre verdoyant. À deux pas de la gare multimodale (rer c, lignes n, u et tram t13), elle offre un accès rapide à paris et versailles. Le quartier, quant à lui, propose de nombreux commerces de proximité, des écoles réputées, des espaces verts et des équipements culturels, parfaits pour une vie de famille épanouie. La ville, marquée par un riche patrimoine historique et un environnement soigné, séduit par son équilibre entre tranquillité résidentielle et vitalité locale. Une adresse idéale pour conjuguer confort, praticité et qualité de vie. La résidence propose 24 logements du 2 au 4 pièces avec parking en sous-sol. Bénéficiant des dernières normes énergétiques (re2025), ses appartements modernes, confortables et lumineux vous combleront, votre famille et vous. Les informations sur les risques auxquels ce bien est exposé sont disponibles sur le site géorisques : .
Iad France - Nicolas Paris vous propose : Appartement familial (3 / 4 chambres) dans le quartier en renouveau de la Fontaine Saint-Martin à Saint-Cyr-l’École. Sur une surface de 92 m², l’appartement offre un grand séjour double, une cuisine avec cellier, une salle de bain, une salle de douche, et trois chambres. Une quatrième chambre est aménageable dans le séjour double. Un balcon filant orienté sud, le long du séjour et de deux chambres, offre un espace extérieur. Une grande cave de 25 m² complète le bien offrant une surface d’atelier ou de stockage. Une place de parking est associée à l’appartement. La copropriété a bénéficié d’une rénovation en 2025 (votée et payée) avec des fenêtres PVC récentes et des volets roulants pour chaque appartement. Le bien nécessite une remise en état globale (sols, murs, électricité, plomberie, cuisine). L’appartement est très proche des établissements scolaires (de la maternelle au Lycée), d’un centre commercial et d’un supermarché, et bénéficie d’une ligne de bus direct gare de Saint-Cyr l’Ecole. Charges de copropriété : 390€ / mois Taxe foncière : 172€ / mois La presente annonce immobiliere vise 2 lots situés dans une copropriété de 1218 lots au total et ne faisant l'objet d'aucune procédure en cours citée à l'article L. 721-1 du code de la construction et de l'habitation. Montant moyen mensuel de charges déclaré par le vendeur : 390€ par mois (soit 4680 € annuel). Honoraires d'agence à la charge du vendeur. Information d'affichage énergétique sur ce bien : classe ENERGIE D indice 148 et classe CLIMAT D indice 30. Les informations sur les risques auxquels ce bien est exposé, y compris l'obligation légale de débroussaillement, sont disponibles sur le site Géorisques : La présente annonce immobilière a été rédigée sous la responsabilité éditoriale de M Nicolas Paris mandataire indépendant en immobilier (sans détention de fonds), agent commercial de la SAS I@D France immatriculé au RSAC de NANTERRE sous le numéro 538602343, titulaire de la carte de démarchage immobilier pour le compte de la société I@D France SAS.
Nouveaux appartements mis en vente les 6,7 et 8 février offre exceptionnelle : frais de notaire offerts * éligible au lli en commercialisation dans le centre-ville de saint-cyr-l'école. Ce programme immobilier neuf les nouveaux constructeurs s'affirme par une belle identité architecturale néoclassique. Il accueille des appartements du studio au 3 pièces avec balcon, loggia, terrasse et jardin individuel. Résidence neuve sécurisée avec parking privatif en sous-sol. 2 locaux d'activités en rez-de-chaussée. Toutes structures d'enseignement (de la crèche au lycée) dans les 1 000 m. Nombreuses commodités à distance piétonne : supermarché, marché couvert, parc public, cinéma, bibliothèque. Arrêt de bus à 50 m de la réalisation. Gare (rer c, transilien n, u et tram 13 express) de saint-cyr-l'école à 1 km ou à 5 min en bus. Accès à l'a12 à 4,7 km, à l'a13 à 9 km et à l'a86 à 12 km. Pôles d'emploi de versailles et de saint-quentin-en-yvelines rapidement accessibles. * voir conditions sur lnc. Fr les informations sur les risques auxquels ce bien est exposé sont disponibles sur le site géorisques : .