Challes les Eaux, commune reconnue pour sa belle qualité de vie, son casino, ses commerces et restaurants, dans un secteur calme au centre de la commune. Nous vous proposons un appartement neuf de type 4 de 113,60 m² comprenant une cave. Il bénéficie d'une belle et spacieuse pièce de vie avec cuisine de plus de 51 m². Vous serez séduit par sa terrasse généreuse de 83,50 m² avec une vue dégagée sur les massifs de la région. Les 3 chambres de 11 m² à 14 m² vous offriront un superbe confort de vie. Prestations haut de gamme avec double isolation pour le confort été / hiver, chaudière individuelle basse consommation au gaz de ville, volets roulants avec centralisation, carrelage 60x60cm et parquet stratifié dans les chambres. Garages en option et possibilité de garage double en profondeur. Construction RT 2012, accessible au prêt à taux 0% et possibilité loi Pinel zone B1. C'est pour vous l'opportunité d'acquérir un logement neuf de qualité au tarif de la transaction ! Ce magnifique programme situé sur les hauteurs proches de l'église, au calme, vous offre une vue exceptionnelle dominante et un agréable confort de vie. Proximité immédiate du centre-ville, de ses commerces, et à deux pas de nombreuses activités : plan d'eau, cinéma, mini-golf, restaurant, casino. Contact : LD IMMOBILIER - 07 86 53 23 97 1.
Les informations sur les risques auxquels ce bien est exposé sont disponibles sur le site Géorisques : www.georisques.gouv.fr
Mise en ligne:
Dernière mise à jour:
Référence de l'annonce: 22"le domaine de beauvoir" est un nouveau programme immobilier situé sur la partie dominante de challes les eaux, à proximité de toutes les commodités. - logement exceptionnel de type 4, sur les toits, au dernier étage, de 121,30 m² bénéficiant d'une terrasse de plus de 110 m² offrant des vue sur les paysages alentours. La qualité des prestations associé au soin apporté à la performance énergétique font de cet appartement un lieu de vie idéal. Le bien est soumis au statut de la copropriété, la copropriété comporte 39 lots. Honoraires à la charge du vendeur. Le bien est à vendre par l'intermédiaire de l'agent commercial olivier bruchon. Vous pouvez consulter les barèmes d'honoraires à l'adresse suivante : . Dpe ancienne version. Les informations sur les risques auxquels ce bien est exposé sont disponibles sur le site géorisques : .
Challes les Eaux, commune reconnue pour sa belle qualité de vie, son casino, ses commerces et restaurants dans un secteur calme et proche des commodités au centre de la commune. Nous vous proposons un appartement neuf de type 4 de 121 m² comprenant une cave, il bénéficie d'une belle et spacieuse pièce de vie avec cuisine de 57 m². Vous serez séduit par sa terrasse généreuse de 116 m² avec une vue dégagée sur les massifs de la région. Les 3 chambres 12,8 m², 13,43 m² et 13,8 m² vous offriront un superbe confort de vie. Prestations haut de gamme avec double isolation pour le confort été / hiver, chaudière individuelle à basse consommation au gaz de ville, volets roulants avec centralisation, carrelage 60x60cm et parquet stratifié dans les chambres. Tous les appartements sont équipés soit de jardins, terrasses spacieuses et balcon. Garages en option et possibilité de garages doubles en profondeur. Construction RT 2012, accessible au prêt à taux 0% et possibilité loi Pinel zone B1, c'est pour vous l'opportunité d'un logement neuf de qualité au tarif de la transaction ! Ce magnifique programme situé sur les hauteurs proches de léglise, au calme, vous offre une vue exceptionnelle dominante sur tous les massifs de la région et un agréable confort de vie. Proximité immédiate du centre-ville et de ses commerces, à deux pas de nombreuse activité : plan deau, cinéma, mini-golf, restaurant, casino. Contact : LD IMMOBILIER - 07 86 53 23 97 - 1.
Idéalement situé à Challes-les-Eaux, dans un environnement calme et résidentiel, découvrez ce superbe T5 avec magnifique terrasse de plus de 80 m², exposée Sud et Ouest ! Il est situé dans une résidence récente, à taille humaine. Caractéristiques du bien : Grande pièce de vie de plus de 60 m², lumineuse et ouverte, orientée Sud Quatre chambres confortables dont une suite parentale avec dressing et salle d'eau Une salle de bains Un WC séparé Un cellier intérieur, idéal pour optimiser le rangement Une immense terrasse au dernier étage de 81 m², parfaite pour profiter du soleil toute la journée En annexes : Une cave de 2,42 m² Une place de parking. Possibilité d'acheter un garage en supplément. Des prestations haut de gamme : Isolation performante Chauffage économe conforme RE2020 Architecture moderne et espaces extérieurs soignés Résidence calme, entourée de nature Informations pratiques : À seulement 15 min à pied du centre-ville de Challes-les-Eaux À proximité immédiate : écoles, commerces, cinéma, médiathèque, bus, voies rapides, thermes, plan d'eau, sentiers, hôpital Médipole… Chambéry à 15 minutes en voiture Prix de vente : 599 000 € Offrez-vous un havre de paix alliant modernité, espace et tranquillité, au cœur d'un cadre naturel préservé à Challes-les-Eaux. Les informations sur les risques auxquels ce bien est exposé sont disponibles sur : georisques. gouv. fr Honoraires à la charge du vendeur - Nombre de lots dans la copropriété : 32 - Les informations sur les risques auxquels ce bien est exposé sont disponibles sur le site Géorisques : .

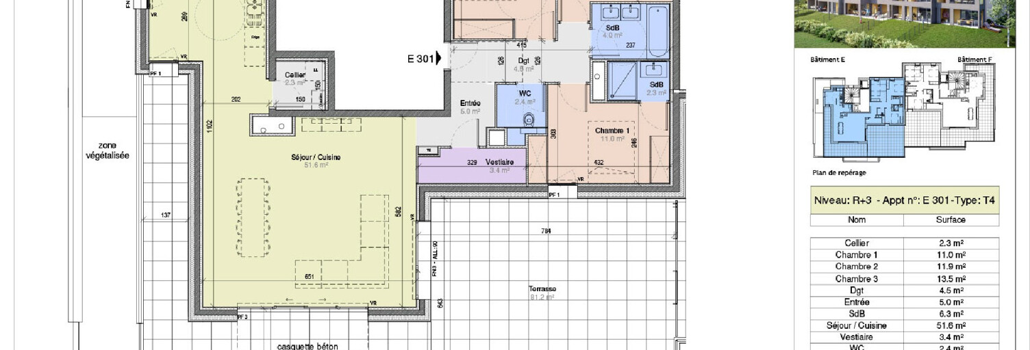
Unique t4 neuf de 86 m² avec terrasse de 38 m². Chauffage au sol dv alu. Garage, pkg.
Challes les Eaux, commune reconnue pour sa belle qualité de vie, son casino, ses commerces et restaurants dans un secteur calme et proche des commodités au centre de la commune. Nous vous proposons un appartement neuf de type 4 de 121 m² comprenant une cave, il bénéficie d'une belle et spacieuse pièce de vie avec cuisine de 57 m². Vous serez séduit par sa terrasse généreuse de 116 m² avec une vue dégagée sur les massifs de la région. Les 3 chambres 12,8 m², 13,43 m² et 13,8 m² vous offriront un superbe confort de vie. Prestations haut de gamme avec double isolation pour le confort été / hiver, chaudière individuelle à basse consommation au gaz de ville, volets roulants avec centralisation, carrelage 60x60cm et parquet stratifié dans les chambres. Tous les appartements sont équipés soit de jardins, terrasses spacieuses et balcon. Garages en option et possibilité de garages doubles en profondeur. Construction RT 2012, accessible au prêt à taux 0% et possibilité loi Pinel zone B1, c'est pour vous l'opportunité d'un logement neuf de qualité au tarif de la transaction ! Ce magnifique programme situé sur les hauteurs proches de léglise, au calme, vous offre une vue exceptionnelle dominante sur tous les massifs de la région et un agréable confort de vie. Proximité immédiate du centre-ville et de ses commerces, à deux pas de nombreuse activité : plan deau, cinéma, mini-golf, restaurant, casino. Contact : LD IMMOBILIER - 07 86 53 23 97 - 1.
Challes les Eaux, commune reconnue pour sa belle qualité de vie, son casino, ses commerces et restaurants dans un secteur calme et proche des commodités au centre de la commune. Nous vous proposons un appartement neuf de type 4 de 119,1 m² en dernier étage comprenant une cave et une terrasse de 122,5 m² avec une vue dégagée sur tous les massifs environnants, notamment Belledonnes et Granier. Il bénéficie d'une magnifique pièce de vie avec cuisine de plus de 57 m², de 3 belles chambres spacieuses, 2 sdb, un cellier et un grand dressing. Prestations haut de gamme avec double isolation pour le confort été / hiver, chaudière individuelle basse consommation au gaz de ville, volets roulants avec centralisation, carrelage 60x60cm et parquet stratifié dans les chambres. Tous les appartements sont équipés soit de jardins, terrasses spacieuses et balcon. Garage en option et possibilité de garage double en profondeur. Ce magnifique programme situé sur les hauteurs proche de l'église, au calme, vous offre une vue exceptionnelle dominante et un agréable confort de vie. Proximité immédiate du centre-ville, à deux pas de nombreuses activités. Construction RT 2012, accessible au prêt à taux 0% et possibilité loi Pinel zone B1, c'est pour vous l'opportunité d'un logement neuf de qualité au tarif de la transaction ! Contact : LD IMMOBILIER - 07 86 53 23 97 1.
Soyez les premiers à découvrir notre nouveau programme : ilosêns. La savoisienne habitat et vinci immobilier s'associent sur ce nouveau projet au cœur de challes-les-eaux. Prenez contact dès à présent avec nos équipes commerciales afin d'obtenir plus d'informations ! Les informations sur les risques auxquels ce bien est exposé sont disponibles sur le site géorisques : .
"le domaine de beauvoir" est un nouveau programme immobilier situé sur la partie dominante de challes les eaux, à proximité de toutes les commodités. - logement exceptionnel de type 4, sur les toits, au dernier étage, de 121,30 m² bénéficiant d'une terrasse de plus de 110 m² offrant des vue sur les paysages alentours. La qualité des prestations associé au soin apporté à la performance énergétique font de cet appartement un lieu de vie idéal. Le bien est soumis au statut de la copropriété, la copropriété comporte 39 lots. Honoraires à la charge du vendeur. Le bien est à vendre par l'intermédiaire de l'agent commercial olivier bruchon. Vous pouvez consulter les barèmes d'honoraires à l'adresse suivante : . Dpe ancienne version. Les informations sur les risques auxquels ce bien est exposé sont disponibles sur le site géorisques : .