1 résultats
Iad France - Cecile Paulin vous propose : Saint-Pierre-la-Mer – 2 pièces avec balcons, parking et tennis, à moins de 10 minutes de la plage à pied À vendre à Saint-Pierre-la-Mer, station balnéaire recherchée, appartement 2 pièces de 26 m² situé au sein d’une résidence appréciée, offrant un cadre idéal pour profiter pleinement de la mer, en résidence secondaire ou en investissement locatif. L’appartement se compose d’un séjour lumineux avec coin repas, d’une cuisine fonctionnelle, d’une chambre séparée, d’une salle d’eau avec WC, ainsi que de deux balcons distincts, de part et d’autre de l’appartement, apportant lumière et aération naturelle, parfaits pour les beaux jours. Situé à moins de 10 minutes à pied de la plage et des commerces, il permet de profiter facilement de la station sans contrainte, que ce soit pour les week-ends ou les vacances. Le bien peut être vendu avec son mobilier, permettant une mise en location immédiate ou une installation sans contrainte. Une place de stationnement privative complète ce bien. Ensemble sain et bien entretenu, avec potentiel de personnalisation, idéal pied-à-terre en bord de mer. Visite sur rendez-vous. La presente annonce immobiliere vise 2 lots situés dans une copropriété de 363 lots au total et ne faisant l'objet d'aucune procédure en cours citée à l'article L. 721-1 du code de la construction et de l'habitation. Montant moyen mensuel de charges déclaré par le vendeur : 56.5€ par mois (soit 678 € annuel). Honoraires d'agence à la charge du vendeur. Bien non soumis au DPE. Les informations sur les risques auxquels ce bien est exposé, y compris l'obligation légale de débroussaillement, sont disponibles sur le site Géorisques : La présente annonce immobilière a été rédigée sous la responsabilité éditoriale de Mme Cecile Paulin mandataire indépendant en immobilier (sans détention de fonds), agent commercial de la SAS I@D France immatriculé au RSAC de Narbonne sous le numéro 852201011, titulaire de la carte de démarchage immobilier pour le compte de la société I@D France SAS.
Autres annonces à proximité de Fleury (11560) avec vos critères
Nouveaute : appartement t2 a proximite de la plage - narbonne-plage découvrez ce charmant appartement t2 rénové 25.21 m², situé dans l'un des secteurs les plus recherchés de la station pour sa proximité immédiate avec la plage de sable fin. Ce bien constitue une opportunité idéale pour un pied-à-terre balnéaire ou un investissement locatif stratégique, où le mode de vie "tout à pied" est privilégié. Atouts principaux du bien : proximité immédiate du bord de mer : accès direct à la plage et aux commerces en moins d'une minute à pied. L'emplacement est le point fort majeur de cet appartement. Espace de vie agrandi et lumineux : l'ancien balcon a été intégré à la surface habitable pour créer une vaste loggia vitrée. Ce gain d'espace transforme la pièce de vie en un salon profond, spacieux et baigné de lumière naturelle tout au long de l'année. Agencement optimisé : l'appartement se compose d'une pièce de vie généreuse avec kitchenette, d'une chambre séparée pour un confort nocturne optimal et d'une salle d'eau entretenue. État et entretien : logement soigné et parfaitement entretenu, prêt à être habité ou loué immédiatement sans aucun travaux à prévoir. Cadre de vie et secteur : profitez d'un cadre de vie privilégié entre mer et massif de la clape. L'appartement bénéficie d'une situation géographique idéale au coeur de l'animation estivale tout en restant dans un environnement calme. Informations techniques : surface : environ 30 m² type : t2 avec loggia intégrée étage : 1er étage non soumis au dpe un bien rare sur le marché par son optimisation et son emplacement stratégique au bord de l'eau. Pour toute information complémentaire ou pour organiser une visite, merci de me contacter directement par téléphone. Er et vous accompagner dans votre projet, contactez karine pla, au 06 50 25 26 47 ou, par courriel à k.pla@proprietes-privees.com. Selon l'article l. 561.5 du code monétaire et financier, pour l'organisation de la visite, la présentation d'une pièce d'identité vous sera demandée. Cette présente annonce a été rédigée sous la responsabilité éditoriale de karine pla agissant sous le statut d'agent commercial immatriculé au rsac narbonne 439 996 398 auprès de sas proprietes privees, au capital de 44 920 euros, zac le chêne ferré - 44 allée des cinq continents 44120 vertou; siret 487 624 777 00040, rcs nantes. Carte professionnelle transactions sur immeubles et fonds de commerce (t) et gestion immobilière (g) n°cpi 4401 2016 000 010 388 délivrée par la cci nantes - saint nazaire. Compte séquestre n°309 32 50 84 67 bpa saint-sebastien-sur-loire (44230). Garantie galian-smabtp - 89 rue de la boétie, 75008 paris - n°28137 j pour 2 000 000 euros pour t et 120 000 euros pour g. Assurance responsabilité civile professionnelle par galian-smabtp n° de police 28137. J mandat réf : 443827 - le professionnel garantit et sécurise votre projet immobilier. Copropriété de 696 lots - dont 480 lots habitation. Charges annuelles : 600 euros. Karine pla (ei) agent commercial - numéro rsac : narbonne 439 996 398 -. Les informations sur les risques auxquels ce bien est exposé sont disponibles sur le site géorisques : www. Georisques. Gouv. Fr.
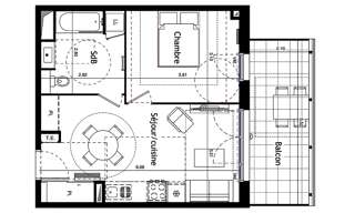
Iad France - Patrick Capolino vous propose : Bel Appartement de 2 Pièces - Bonne rentalité pour investisseurs Emplacement Idéal. Cet appartement charmant et lumineux de 2 pièces est situé au cOEur de Narbonne plage, à 50 mètres de la Mer à proximité des commerces, des transports en commun et des principaux centres d'intérêt de la ville. Doté d'une superficie de 30 m², cet appartement offre un espace de vie confortable pour un couple ou une personne seule à la recherche d'un logement pratique et bien situé. L'appartement comprend une chambre spacieuse, une salle d'eau avec douche, un WC et une cuisine fonctionnelle entièrement équipée. Le séjour, baigné de lumière naturelle, est l'endroit idéal pour se détendre et profiter d'agréables moments de tranquillité donnant sur un balcon d'environ 9 m² avec une superbe vue. L'appartement est en bon état général, offrant un cadre de vie agréable et accueillant. Côté confort, vous bénéficierez de nombreux équipements modernes tels que la fibre optique, la climatisation réversible et la ventilation mécanique, assurant des conditions de vie optimales tout au long de l'année. La résidence est sécurisée et fermée, offrant un sentiment de tranquillité et de sérénité à ses résidents. L'appartement est situé au 3ème étage d'un immeuble de 3 niveaux construit dans les années 1980. Il dispose d'une exposition nord est, offrant une luminosité naturelle agréable. De plus, vous bénéficierez d'une place de parking sécurisée, offrant un stationnement pratique au quotidien et primordial pendant les périodes estivales. Idéalement situé, cet appartement offre un accès facile aux commodités quotidiennes ainsi qu'aux principaux axes de communication de la ville. C'est une opportunité rare de devenir propriétaire d'un bien confortable et bien situé au cOEur de Narbonne plage N'attendez plus pour visiter cet appartement, parfait pour un premier achat ou un investissement locatif. Contactez-nous dès maintenant pour organiser une visite La presente annonce immobiliere vise 2 lots situés dans une copropriété de 13 lots au total et ne faisant l'objet d'aucune procédure en cours citée à l'article L. 721-1 du code de la construction et de l'habitation. Montant moyen mensuel de charges déclaré par le vendeur : 83.33€ par mois (soit 1000 € annuel). Honoraires d'agence à la charge du vendeur. Information d'affichage énergétique sur ce bien : classe ENERGIE E indice 273 et classe CLIMAT B indice 10. Les informations sur les risques auxquels ce bien est exposé, y compris l'obligation légale de débroussaillement, sont disponibles sur le site Géorisques : La présente annonce immobilière a été rédigée sous la responsabilité éditoriale de M Patrick Capolino mandataire indépendant en immobilier (sans détention de fonds), agent commercial de la SAS I@D France immatriculé au RSAC de BEZIERS sous le numéro 442995825, titulaire de la carte de démarchage immobilier pour le compte de la société I@D France SAS.
Iad France - Frédéric Adamiste vous propose : Opportunité à Saisir - Charmant Appartement 2 Pièces à Narbonne, à Deux Pas de la Plage ! À la recherche d'un pied-à-terre ou d'un investissement locatif sur la côte Méditerranéenne ? Ne cherchez plus, cet appartement de 26 m², idéalement situé à Narbonne, à seulement 100m de la plage, est fait pour vous. Ce coquet appartement de type T2 se trouve au 2ème étage d'un immeuble de 4 niveaux construit en 1981. Doté d'une chambre agréable, d'une salle d'eau avec WC, d'une kitchenette équipée, ainsi que d'un espace salon accueillant, il offre tout le confort nécessaire pour un séjour agréable. L'exposition Est de l'appartement permet de profiter d'une belle luminosité tout au long de la journée. De plus, la résidence sécurisée avec digicode et espaces de stockage vous garantit tranquillité et sérénité. Un avantage majeur de ce bien est sa proximité immédiate avec la plage, offrant ainsi un cadre de vie agréable et des moments de détente inégalés. Bien que datant de 1981, cet appartement est en bon état général, ne nécessitant aucun travaux immédiats. Le stationnement n'est pas un souci, car vous avez la possibilité de garer votre véhicule à proximité. De plus, les commerces, restaurants et attractions touristiques se trouvent à quelques pas seulement. Cet appartement compact mais fonctionnel, est un petit bijou rare sur le marché narbonnais. Que vous recherchiez une résidence secondaire, un investissement locatif saisonnier ou un premier achat, cette opportunité est à ne pas manquer. Contactez-nous dès maintenant pour organiser une visite et laissez-vous séduire par le charme de ce bel appartement à Narbonne, entre mer et ville. La presente annonce immobiliere vise 1 lot situé dans une copropriété de 423 lots au total et ne faisant l'objet d'aucune procédure en cours citée à l'article L. 721-1 du code de la construction et de l'habitation. Montant moyen mensuel de charges déclaré par le vendeur : 62.42€ par mois (soit 749 € annuel). Honoraires d'agence à la charge du vendeur. Bien non soumis au DPE. Les informations sur les risques auxquels ce bien est exposé, y compris l'obligation légale de débroussaillement, sont disponibles sur le site Géorisques : La présente annonce immobilière a été rédigée sous la responsabilité éditoriale de M Frédéric Adamiste mandataire indépendant en immobilier (sans détention de fonds), agent commercial de la SAS I@D France immatriculé au RSAC de NARBONNE sous le numéro 993864677, titulaire de la carte de démarchage immobilier pour le compte de la société I@D France SAS.

Recevez en temps réel les dernières annonces correspondant à votre recherche
Idéalement situé à seulement 300 mètres de la plage, entièrement rénové et équipé du chauffage, ce bien a été le logement coup de coeur toutes saisons sur les plateformes de locations, avant de devenir une résidence principale à l'année. Situé au 1er étage d'une résidence à taille humaine de seulement deux niveaux, ce bien dispose d'une pièce de vie lumineuse et optimisée comprenant une kitchenette fonctionnelle, un espace salon confortable ainsi qu'un coin salle à manger au niveau de la loggia avec vue sur le massif de la clappe. La chambre indépendante permet de profiter d'un espace nuit agréable et bien distinct. La salle de bain est équipée d'une baignoire, idéale pour se détendre après une journée en bord de mer. L'appartement dispose de plus d'un système de chauffage, garantissant un confort optimal en toute saison. La résidence bénéficie également d'un espace vert commun offrant un cadre calme, reposant et convivial. À seulement 300 m de la mer, ce bien possède en outre d'un parking privatif, un véritable atout dans le secteur. Idéal pour une résidence principal, secondaire ou un investissement locatif toute saison en bord de mer, ce bien combine proximité immédiate de la plage, confort moderne et excellent état. À saisir sans tarder ! Budget 99 500 euros, honoraires à charge vendeur inclus. Dpe : c. Ges : a. Montant estimé des dépenses annuelles d'énergie pour un usage standard entre 430 et 630 euros indexées aux années 2021,2022 et 2023. Pour visiter et vous accompagner dans votre projet, contactez cyril galera, au 06 03 66 27 41 ou, par courriel à cy.galera@proprietes-privees.com. Selon l'article l. 561.5 du code monétaire et financier, pour l'organisation de la visite, la présentation d'une pièce d'identité vous sera demandée. Cette présente annonce a été rédigée sous la responsabilité éditoriale de cyril galera agissant en qualité de conseiller immobilier indépendant sous portage salarial auprès de sas proprietes privees, au capital de 44 920 euros, zac le chêne ferré - 44 allée des cinq continents 44120 vertou; siret 487 624 777 00040, rcs nantes. Carte professionnelle transactions sur immeubles et fonds de commerce (t) et gestion immobilière (g) n°cpi 4401 2016 000 010 388 délivrée par la cci nantes - saint nazaire. Compte séquestre n°309 32 50 84 67 bpa saint-sebastien-sur-loire (44230). Garantie galian-smabtp - 89 rue de la boétie, 75008 paris - n°28137 j pour 2 000 000 euros pour t et 120 000 euros pour g. Assurance responsabilité civile professionnelle par galian-smabtp n° de police 28137. J mandat réf : 441 079 - le professionnel garantit et sécurise votre projet immobilier. Les informations sur les risques auxquels ce bien est exposé sont disponibles sur le site géorisques : www. Georisques. Gouv. Fr.
Vinassan – investissement locatif sécurisé avec locataire en place appartement t2 de 43,55 m² avec piscine et parking sécurisé prix : 119 950 € hai déjà loué : 449 € / mois rentabilité brute : 4,49 % un investissement serein et sans travaux ! Situé dans une résidence privée et sécurisée avec piscine, cet appartement en rez-de-chaussée offre un cadre paisible, sans vis-à-vis, idéal pour un locataire stable. Les atouts du bien : locataire en place, offrant des revenus immédiats et une stabilité locative aucun travaux à prévoir – état impeccable résidence recherchée avec piscine place de parking sécurisée incluse exposition ouest – belle luminosité proximité de l'autoroute – accès rapide à narbonne charges annuelles : 985 € taxe foncière : 743 € visites uniquement sur dossier validé (attestation de financement demandée). Visite le mardi à partir de 18h. Contactez-moi dès maintenant pour plus d'infos ! Nombre de lots de la copropriété : 124, montant moyen de la quote-part annuelle de charges (budget prévisionnel) : 985€ soit 82€ par mois. Les honoraires sont à la charge du vendeur. Les informations sur les risques auxquels ce bien est exposé sont disponibles sur le site géorisques : www. Georisques. Gouv. Fr. Contactez patricia dewet entrepreneur individuel, agent commercial optimhome (rsac n°981 818 222 greffe de narbonne) 06 50 73 00 37 (réf. 579092 ).
Iad France - Sarah Rozière (06 99 86 19 42) vous propose : Appartement T2 avec balcon à Valras-Plage. Située chemin du Carreyrou à Valras-Plage, la résidence Azuréa allie architecture contemporaine et esprit méditerranéen. À seulement quelques minutes à pied des plages et du cOEur de la station, cette adresse offre un cadre de vie agréable et calme au sein d’un environnement résidentiel préservé. Disponible 2027. Un appartement raffiné : Situé au 1 er étage, cet appartement T2 de 44 m² environ habitables se prolonge par un balcon de 10 m² environ. - Séjour / cuisine de 20 m² environ. - Une chambre confortable. - Salle de bain moderne. - Annexe incluse : un parking. De belles prestations : - Chauffage du séjour par pompe à chaleur monosplit. - Volets roulants motorisés et menuiseries PVC double vitrage. - Résidence sécurisée avec ascenseur, vidéophone et stationnements. L’art de vivre à Valras-Plage : - À moins de 10 minutes à pied des plages et du front de mer. - Commerces, restaurants, marché et services accessibles à pied. - À proximité du port de plaisance et de la réserve naturelle des Orpellières. - Accès rapide à Béziers, à l’A9 et aux axes vers Montpellier et Narbonne. - Station balnéaire conviviale, idéale pour une résidence principale, un pied-à-terre ou un investissement locatif. N’hésitez pas à me contacter pour plus d’informations ou pour un accompagnement sur mesure. Honoraires d’agence à la charge du vendeur. Bien non soumis au DPE. Les informations sur les risques auxquels ce bien est exposé sont disponibles sur le site Géorisques : . La présente annonce immobilière a été rédigée sous la responsabilité éditoriale de Mlle Sarah Rozière EI (ID 83696), mandataire indépendant en immobilier (sans détention de fonds), agent commercial de la SAS I@D France immatriculé au RSAC de Clermont-Ferrand sous le numéro 978616993, titulaire de la carte de démarchage immobilier pour le compte de la société I@D France SAS. Retrouvez tous nos biens sur notre site internet. .
Iad France - Corinne Rouyer (06 33 91 84 03) vous propose : Venez Découvrir cet appartement de 2 pièces dans une résidence idéalement située, dans un environnement résidentiel et à moins de 200 mètres de la plage. Il est proche du centre-ville de Valras-Plage et des commerces de proximité. La résidence est sécurisée par une clôture bordant toute l'opération, Un portail d'entrée est prévu pour le passage des véhicules, Deux portillons piétons permettent un accès par la rue Camille Founjut et le chemin de l'Oranger (desserte proche plage-mer). La résidence est accessible depuis la rue Camille Founjut et le chemin de l'Oranger, Accès véhicules aux stationnements via la rue Camille Founjut, Accès piétons via un portillon sur le chemin de l'Oranger. Honoraires d’agence à la charge du vendeur. Bien non soumis au DPE. Les informations sur les risques auxquels ce bien est exposé sont disponibles sur le site Géorisques : . La présente annonce immobilière a été rédigée sous la responsabilité éditoriale de Mme Corinne Rouyer EI (ID 61495), mandataire indépendant en immobilier (sans détention de fonds), agent commercial de la SAS I@D France immatriculé au RSAC de Clermont-Ferrand sous le numéro 851754317, titulaire de la carte de démarchage immobilier pour le compte de la société I@D France SAS. Retrouvez tous nos biens sur notre site internet. .
Situé dans une résidence récente, sécurisée et très recherchée, découvrez ce charmant appartement de 44 m² en rez-de-chaussée, offrant un cadre de vie agréable et pratique. Il se compose d'une entrée avec placard, d'un séjour lumineux avec cuisine ouverte et climatisation, d'une chambre confortable ainsi que d'une salle d'eau avec WC. Vous profiterez également d'une belle terrasse en bois couverte, idéalement orientée Sud-Ouest, prolongée par un agréable jardinet, parfait pour vos moments de détente. Un box individuel sécurisé complète ce bien. La résidence dispose d'une belle piscine, très appréciée des résidents. Idéalement situé, vous trouverez un supermarché à seulement 100 mètres, ainsi que les transports en commun, une mairie annexe et divers commerces à proximité. La plage est accessible en seulement 10 minutes à pied. Un bien idéal pour une résidence principale, secondaire ou un investissement locatif. À visiter sans tarder ! Nombre de lots de la copropriété : 68, Montant moyen de la quote-part annuelle de charges (budget prévisionnel) : 820€ soit 68€ par mois. Les honoraires sont à la charge du vendeur. Les informations sur les risques auxquels ce bien est exposé sont disponibles sur le site Géorisques : www. georisques. gouv. fr. Contactez Benjamin JEAN Entrepreneur Individuel, Agent commercial OptimHome (RSAC N°539 897 363 Greffe de BEZIERS) 06 19 92 29 85 (réf. 604078 ).
Les Embruns est un programme neuf situé à Valras-Plage, à seulement 150 mètres de la mer et proche du centre-ville, des commerces et de tous les services. Il propose des appartements du studio au 4 pièces, avec de grandes terrasses, dont certaines tropéziennes atteignant 60 m². Chaque logement bénéficie de prestations modernes, comme une pompe à chaleur réversible. Un large choix de finitions est proposé avec la gamme "Cœur de vie", permettant une personnalisation adaptée aux besoins de chacun. Idéal pour une résidence secondaire ou un investissement locatif clé en main avec notre pack « Location Meublée ». Contactez-nous dès à présent au 01 55 18 70 00 pour découvrir notre résidence et rencontrez nos équipes. Les informations sur les risques auxquels ce bien est exposé sont disponibles sur le site Géorisques : .
Iad France - Cyrille Figureau (07 67 91 82 91) vous propose : À vendre – Charmant appartement 2 pièces avec vue mer Venez découvrir ce bel appartement de 41 m² environ, idéalement situé à quelques pas de la mer, au sein d’une résidence calme et recherchée. Baigné de lumière grâce à son exposition sud, cet appartement offre une vue mer imprenable depuis le séjour et la terrasse, parfaite pour profiter pleinement des couchers de soleil sur la Méditerranée. Il se compose de : Un séjour lumineux ouvrant sur une terrasse avec vue mer, Une cuisine ouverte Une chambre agréable, Une salle d’eau moderne avec toilettes. Ce bien est idéal pour une résidence secondaire ou un investissement locatif saisonnier, grâce à sa proximité immédiate des plages, commerces et restaurants. Un véritable coup de cOEur pour les amoureux de la mer et du Sud ! photos non contractuelles disponible 2027 Honoraires d’agence à la charge du vendeur. Bien non soumis au DPE. Les informations sur les risques auxquels ce bien est exposé sont disponibles sur le site Géorisques : . La présente annonce immobilière a été rédigée sous la responsabilité éditoriale de M. Cyrille Figureau EI (ID 76688), mandataire indépendant en immobilier (sans détention de fonds), agent commercial de la SAS I@D France immatriculé au RSAC de Clermont -Ferrand sous le numéro 521703322, titulaire de la carte de démarchage immobilier pour le compte de la société I@D France SAS. Retrouvez tous nos biens sur notre site internet. .
Iad France - Sarah Rozière (06 99 86 19 42) vous propose : Appartement T2 avec balcon à Valras-Plage. Située chemin de l’Oranger, à seulement 150 mètres de la plage, la résidence contemporaine Les Embruns conjugue élégance architecturale et qualité de vie préservée. Entre mer et nature, cette adresse offre un cadre de vie authentique, paisible et lumineux au cOEur de Valras-Plage, charmante station balnéaire à taille humaine. Disponible 2027. Un appartement raffiné : Situé au 2 ème étage, cet appartement T2 de 41 m² environ habitables se prolonge par un balcon de 12 m² environ. - Séjour / cuisine de 22 m² environ. - Une chambre confortable. - Salle de bains moderne équipée. - Annexe incluse : un parking extérieur. De belles prestations : - Volets roulants électriques et menuiseries PVC double vitrage pour une isolation renforcée. - Chauffage électrique individuel et ballon thermodynamique collectif pour l’eau chaude sanitaire. - Résidence sécurisée avec accès par digicode et local à vélos sécurisé. L’art de vivre à Valras-Plage : - À 150 m de la plage et 5 minutes à pied des Halles Marty. - Commerces, restaurants et port de plaisance accessibles à pied. - Environnement préservé entre les dunes des Orpellières et le littoral méditerranéen. - Transports beeMob vers Béziers et navette gratuite en saison. - Station balnéaire vivante toute l’année, conjuguant authenticité et modernité. N’hésitez pas à me contacter pour plus d’informations ou pour un accompagnement sur mesure. Honoraires d’agence à la charge du vendeur. Bien non soumis au DPE. Les informations sur les risques auxquels ce bien est exposé sont disponibles sur le site Géorisques : . La présente annonce immobilière a été rédigée sous la responsabilité éditoriale de Mlle Sarah Rozière EI (ID 83696), mandataire indépendant en immobilier (sans détention de fonds), agent commercial de la SAS I@D France immatriculé au RSAC de Clermont-Ferrand sous le numéro 978616993, titulaire de la carte de démarchage immobilier pour le compte de la société I@D France SAS. Retrouvez tous nos biens sur notre site internet. .
Iad France - Sarah Rozière (06 99 86 19 42) vous propose : Appartement T2 avec balcon à Valras-Plage. Située chemin de l’Oranger, à seulement 150 mètres de la plage, la résidence contemporaine Les Embruns conjugue élégance architecturale et qualité de vie préservée. Entre mer et nature, cette adresse offre un cadre de vie authentique, paisible et lumineux au cOEur de Valras-Plage, charmante station balnéaire à taille humaine. Disponible 2027. Un appartement raffiné : Situé au 1 er étage, cet appartement T2 de 41 m² environ habitables se prolonge par un balcon de 12 m² environ. - Séjour / cuisine de 22 m² environ. - Une chambre confortable. - Salle de bains moderne équipée. - Annexe incluse : un parking extérieur. De belles prestations : - Volets roulants électriques et menuiseries PVC double vitrage pour une isolation renforcée. - Chauffage électrique individuel et ballon thermodynamique collectif pour l’eau chaude sanitaire. - Résidence sécurisée avec accès par digicode et local à vélos sécurisé. L’art de vivre à Valras-Plage : - À 150 m de la plage et 5 minutes à pied des Halles Marty. - Commerces, restaurants et port de plaisance accessibles à pied. - Environnement préservé entre les dunes des Orpellières et le littoral méditerranéen. - Transports beeMob vers Béziers et navette gratuite en saison. - Station balnéaire vivante toute l’année, conjuguant authenticité et modernité. N’hésitez pas à me contacter pour plus d’informations ou pour un accompagnement sur mesure. Honoraires d’agence à la charge du vendeur. Bien non soumis au DPE. Les informations sur les risques auxquels ce bien est exposé sont disponibles sur le site Géorisques : . La présente annonce immobilière a été rédigée sous la responsabilité éditoriale de Mlle Sarah Rozière EI (ID 83696), mandataire indépendant en immobilier (sans détention de fonds), agent commercial de la SAS I@D France immatriculé au RSAC de Clermont-Ferrand sous le numéro 978616993, titulaire de la carte de démarchage immobilier pour le compte de la société I@D France SAS. Retrouvez tous nos biens sur notre site internet. .
Iad France - Elise Lopez Verdera vous propose : En exclusivité sur Valras-Plage Adresse rare à 50 m de la mer, résidence privée avec piscine. Face à un accès direct à la plage, au sein d’une résidence privée, sécurisée et entièrement rénovée, ce studio + cabine au charme contemporain offre un cadre de vie privilégié entre mer et élégance. Situé au premier étage, l’appartement bénéficie d’une exposition sud-ouest, d’une vue dégagée sur la piscine, d’une vue mer latérale et d’un environnement verdoyant grâce au jardin soigneusement entretenu de la résidence. L’intérieur a été entièrement repensé avec raffinement et rénové dans son intégralité. L’appartement séduit par la qualité de ses prestations, son agencement optimisé et son atmosphère chaleureuse : - cuisine spacieuse, meublée et entièrement équipée, aux lignes modernes et fonctionnelle - pièce de vie lumineuse qui accueille un espace salon confortable avec canapé convertible et un véritable espace salle à manger - nombreux rangements intégrés, pensés pour un confort au quotidien - chambre cabine indépendante avec matelas neufs - Salle d’eau élégante aux finitions soignées - WC séparés L’appartement bénéficie d’une climatisation amovible, de menuiseries neuves, de volets roulants électriques neufs et la fibre optique est installée. Cadre privilégié : Piscine au sein de la résidence, Espace vert paysager, local à vélo, parking privé vendu avec l’appartement. Un bien vendu clé en main : L’appartement est vendu partiellement meublé. Seuls la table, les chaises, la télévision et quelques éléments décoratifs seront retirés. La presente annonce immobiliere vise 2 lots situés dans une copropriété de 110 lots au total et ne faisant l'objet d'aucune procédure en cours citée à l'article L. 721-1 du code de la construction et de l'habitation. Montant moyen mensuel de charges déclaré par le vendeur : 83€ par mois (soit 996 € annuel). Honoraires d'agence à la charge du vendeur. Information d'affichage énergétique sur ce bien : classe ENERGIE D indice 217 et classe CLIMAT B indice 8. Les informations sur les risques auxquels ce bien est exposé, y compris l'obligation légale de débroussaillement, sont disponibles sur le site Géorisques : La présente annonce immobilière a été rédigée sous la responsabilité éditoriale de Mme Elise Lopez Verdera mandataire indépendant en immobilier (sans détention de fonds), agent commercial de la SAS I@D France immatriculé au RSAC de BEZIERS sous le numéro 822150249, titulaire de la carte de démarchage immobilier pour le compte de la société I@D France SAS.
À 100 m de la plage et des commerces, dans une résidence calme vue dégagée, construite en 2003 comprenant 12 lots, situé au 1er étage, appartement de type 2 d'une superficie de 33.59 m² loi carrez (39.95 m² surface sol), terrasse sud ouest, salon séjour coin cuisine, une chambre, cellier SDE WC loggia terrasse de 6.2 m², chauffage pompe à chaleur réversible, garage (prise voiture électrique et portail télécommandé) non attenant à la copropriété de 17 m² et place parking privative N'hésitez pas à visiter au plus tôt. Inter-agence acceptée!
Idéalement situé, cet appartement t2 d'environ 29 m², au 1er étage avec ascenseur d'une résidence sécurisée, offre un cadre de vie agréable et pratique. Il se compose d'une entrée avec placard, d'une chambre, d'une salle d'eau avec douche, ainsi que d'un séjour lumineux avec coin cuisine, ouvrant sur une loggia d'environ 8 m² bénéficiant d'une vue sur la mer. Une place de parking privative à l'intérieur de la résidence complète ce bien. Emplacement privilégié : tout se fait à pied (commerces, plages, transports), idéal pour une résidence principale, secondaire ou un investissement locatif. À visiter sans tarder ! Prix de vente : 134000 euros fai dpe d ges a montant estimé des dépenses annuelles d'énergie pour un usage standard entre 561 euros et 759 euros indexées aux années 2021,2022 et 2023 pour visiter et vous accompagner dans votre projet, contactez warda thuault, au 07 85 02 02 66 ou, par courriel à wa.thuault@proprietes-privees.com. Selon l'article l. 561.5 du code monétaire et financier, pour l'organisation de la visite, la présentation d'une pièce d'identité vous sera demandée. Cette présente annonce a été rédigée sous la responsabilité éditoriale de warda thuault agissant sous le statut d'agent commercial immatriculé au rsac agen 848264438 auprès de sas proprietes privees, au capital de 44 920 euros, zac le chêne ferré - 44 allée des cinq continents 44120 vertou; siret 487 624 777 00040, rcs nantes. Carte professionnelle transactions sur immeubles et fonds de commerce (t) et gestion immobilière (g) n°cpi 4401 2016 000 010 388 délivrée par la cci nantes - saint nazaire. Compte séquestre n°309 32 50 84 67 bpa saint-sebastien-sur-loire (44230). Garantie galian-smabtp - 89 rue de la boétie, 75008 paris - n°28137 j pour 2 000 000 euros pour t et 120 000 euros pour g. Assurance responsabilité civile professionnelle par galian-smabtp n° de police 28137. J mandat réf : 436010- le professionnel garantit et sécurise votre projet immobilier. Warda thuault (ei) agent commercial - numéro rsac : agen 848264438 -. Les informations sur les risques auxquels ce bien est exposé sont disponibles sur le site géorisques : www. Georisques. Gouv. Fr.
NOUVELLE RESIDENCE À VALRAS-PLAGE Découvrez en exclusivité une résidence intimiste de seulement 39 logements, signée GreenCity Immobilier, idéalement située à Valras-Plage, charmante station balnéaire du sud de la France. Du T2 au T4, chaque appartement bénéficie d’un cadre de vie ensoleillé et apaisant, à quelques minutes à pied des plages, du port de plaisance, des commerces, des écoles et des infrastructures sportives. Pensée pour offrir un confort durable et une qualité de vie optimale, la résidence propose des prestations de qualité pour votre bien-être : • Conception optimisée : orientations étudiées, excellente isolation thermique et acoustique • Confort et sécurité : vidéophone, parkings en sous-sol, local vélos sécurisé • Démarche responsable : construction conforme à la RE 2020, choix de matériaux durables, gestion énergétique performante Que vous soyez à la recherche d’une résidence principale, d’un pied-à-terre en bord de mer ou d’un investissement locatif, cette résidence vous offre un art de vivre entre authenticité méditerranéenne et confort moderne. N'attendez plus et contactez nos conseillers ! Les informations sur les risques auxquels ce bien est exposé sont disponibles sur le site Géorisques : .
T2 avec terrasse et parking Rez-de-chaussée Proche mer À vendre, appartement T2 de 43,45 m² situé au rez-de-chaussée, dans un quartier calme proche de la mer, des commerces et de toutes commodités. Surface lumineuse et bien agencée Cuisine équipée et salle de bain moderne Terrasse de 10 m² pour profiter de l'extérieur Place de parking privée sécurisée Accès facile, sans escalier Idéal pour résidence principale ou investissement. Bien soumis au statut juridique de la copropriété. Nb de lots : 39. Pas de procédure en cours. Surface Carrez : 43,21 m² Prix TTC et honoraires à charge vendeur Agent commercial RSAC n° 815 292 297 Les informations sur les risques liés à ce bien sont disponibles sur le site Géorisques.
Laissez-vous séduire par ce magnifique appartement vue mer, idéalement situé au cœur de Valras-Plage, à seulement quelques pas des plages et des commerces. Niché dans une résidence sécurisée avec ascenseur et parking, cet appartement réunit tous les critères recherchés dans cette station balnéaire prisée. Dès l'entrée, l'atmosphère est chaleureuse et fonctionnelle avec un dégagement équipé d'un débarras et un WC indépendant. La pièce de vie baignée de lumière vous invite à la détente, avec sa cuisine américaine moderne, ouverte sur une loggia fermée offrant une vue panoramique à couper le souffle sur la mer un véritable tableau vivant, été comme hiver. Côté nuit, la suite parentale propose un espace intime et élégant, avec sa salle d'eau contemporaine, dotée d'une douche à l'italienne et de meubles double vasque. Prêt à vivre, prêt à louer, sans aucuns travaux. Un bien rare, idéal pour résidence principale, pied-à-terre en bord de mer ou investissement locatif à forte rentabilité. Un véritable coup de cœur, à découvrir sans tarder pour s'offrir une qualité de vie exceptionnelle entre ciel et mer. Bien soumis au statut juridique de la Copropriété. Nb de lots : 87. Charges annuelles de copropriété (Montant moyen annuel quote-part du budget prévisionnel vendeur) : 100 €. Pas de procédure en cours. Surface CARREZ : 26.59 m² Honoraires à la charge du vendeur - BEATRICE DUSSAP - Tel : 07 88 22 47 34 - beatrice.dussap@santoni.fr -Conseiller Indépendant RSAC N° 882 504 640 Les informations sur les risques auxquels ce bien est exposé sont disponibles sur le site Géo risques.
Iad france - johanna baali vous propose : gestion 100% belambra - special investisseur vous cherchez un placement immobilier sans aucune gestion ni aléa ? À gruissan (les ayguades), investissez dans ce t2 de 35,57 m² + terrasse, situé au sein du village vacances belambra, à deux pas de la plage. Important : investissement locatif uniquement ce bien est vendu sous bail commercial avec l'exploitant. Le propriétaire ne dispose pas de la jouissance du bien (occupation personnelle impossible). Il s'agit d'un produit de placement financier immobilier. Une opportunite 'zero souci' le bail commercial en cours vous garantit : revenus locatifs trimestriels garantis : loyers versés par belambra, que le logement soit occupé ou non. Gestion intégrale : l'exploitant gère tout (locataires, entretien, remplissage). Vous ne vous occupez de rien. Fiscalité avantageuse : statut lmnp (loueur meublé non professionnel) permettant des revenus peu ou pas fiscalisés grâce à l'amortissement comptable. Le bien appartement t2 fonctionnel de 35 m² avec une terrasse de 9 m², vendu meublé et équipé. La résidence offre des prestations premium (piscine, espaces verts, parking privé, accès plage) qui assurent la pérennité de l'exploitation touristique. Idéal pour se constituer un patrimoine ou un complément de retraite sécurisé sans les contraintes de la gestion locative classique. Dossier complet (montant des loyers, charges, bail) disponible sur demande après premier contact. La presente annonce immobiliere vise 146 lots situés dans une copropriété de 290 lots au total et ne faisant l'objet d'aucune procédure en cours citée à l'article l. 721-1 du code de la construction et de l'habitation. Montant moyen mensuel de charges déclaré par le vendeur : 0€ par mois (soit 0 € annuel). Honoraires d'agence à la charge du vendeur. Information d'affichage énergétique sur ce bien : classe energie e indice 319 et classe climat b indice 10. Les informations sur les risques auxquels ce bien est exposé, y compris l'obligation légale de débroussaillement, sont disponibles sur le site géorisques : la présente annonce immobilière a été rédigée sous la responsabilité éditoriale de mme johanna baali mandataire indépendant en immobilier (sans détention de fonds), agent commercial de la sas i@d france immatriculé au rsac de narbonne sous le numéro 880059746, titulaire de la carte de démarchage immobilier pour le compte de la société i@d france sas.
À quelques pas des plages de sable fin et du cœur animé de valras-plage, la résidence luminéa s’intègre avec élégance dans un environnement paisible, entre nature et mer. son architecture contemporaine, aux teintes blanches et taupe, s’inspire des nuances méditerranéennes : façades rythmées, parements de pierre, garde-corps dorés et terrasses boisées. entourée d’espaces verts paysagers. ce t3 en rez-de-chaussée d’environ 68 m² combine volumes généreux et confort haut de gamme. le séjour-cuisine d’environ 28 m² s’ouvre sur une large terrasse en bois de 25 m², idéale pour les repas d’été et les moments de détente. les deux chambres de 11 et 13 m² profitent d’une belle luminosité et d’un agencement optimal. un grand rangement indépendant, pensé pour accueillir les équipements du quotidien, permet d’installer aisément lave-linge et sèche-linge, tout en conservant un espace buanderie fonctionnel. prestations de standing : pompe à chaleur, carrelage grand format 45x45, double vitrage pvc, volets roulants motorisés, cuisine aménagée et équipée, salle de bains élégante avec sèche-serviette, alarme connectée et certification nf habitat re2020. un appartement lumineux et durable, parfait pour vivre à l’année ou profiter de la douceur du littoral. luminéa – le privilège d’un quotidien lumineux entre mer et nature. prix : 264900€ place de parking en sus 3000€ remise des clés : 3ème trimestre 2027 avantages du neuf : frais de notaire réduits (2.5%) isolation thermique renforcée isolation phonique entre étages charges réduites car bâtiment basse consommation re 2020 garantie constructeur 10 ans éligible au prêt à taux zéro personnalisez votre logement au gré de vos envies. possibilité d’exonération partielle ou total de la taxe foncière pendant 2 ans les + bonaparte promotion : -un accompagnement d’experts -un savoir-faire de plus de 19 ans -un gain de temps ! Recherche d’appartements personnalisée -un interlocuteur unique -un prix direct promoteur -une étude de financement -un accès à plus de 150 résidences en cours sur la région pour obtenir des renseignements rapidement, contactez votre conseiller dédié bonaparte promotion : yoann donnadieu 07 44 42 61 01 et / ou rendez-vous en agence sur rdv : bonaparte promotion 357 av. Du professeur etienne antonelli 34000 montpellier tel : 04 34 48 01 55 .
Iad France - Catherine Ernst vous propose : Gruissan – Les Ayguades Appartement 2 pièces avec véranda et grande terrasse de 30 m² plein Sud – Résidence avec piscine Situé dans le secteur recherché des Ayguades à Gruissan, à seulement 10 minutes à pied de la plage, découvrez ce charmant appartement 2 pièces d’environ 23 m² habitables, complété par une véranda climatisée de 9 m² et surtout une magnifique terrasse de 30 m² exposée plein Sud, idéale pour profiter pleinement du climat méditerranéen. En rez-de-jardin, l’appartement offre un espace extérieur rare pour ce type de bien. Il se compose de : une entrée avec placard, une salle d’eau, un WC indépendant, une chambre avec placard, un séjour avec coin cuisine, une véranda climatisée prolongeant agréablement la pièce de vie. Prestations : climatisation réversible volets roulants électriques Situé au sein d’une résidence privée et sécurisée avec piscine, le bien dispose également d’une place de parking privative et numérotée à l’intérieur de la résidence. Vendu meublé et entièrement équipé, cet appartement est idéal pour : un pied-à-terre à la mer, ou un investissement locatif saisonnier. Un bien rare dans ce secteur, offrant un extérieur exceptionnel à quelques minutes de la plage. La presente annonce immobiliere vise 2 lots situés dans une copropriété de 236 lots au total et ne faisant l'objet d'aucune procédure en cours citée à l'article L. 721-1 du code de la construction et de l'habitation. Montant moyen mensuel de charges déclaré par le vendeur : 58€ par mois (soit 696 € annuel). Honoraires d'agence à la charge du vendeur. Information d'affichage énergétique sur ce bien : classe ENERGIE C indice 189 et classe CLIMAT A indice 5. Les informations sur les risques auxquels ce bien est exposé, y compris l'obligation légale de débroussaillement, sont disponibles sur le site Géorisques : La présente annonce immobilière a été rédigée sous la responsabilité éditoriale de Mme Catherine Ernst mandataire indépendant en immobilier (sans détention de fonds), agent commercial de la SAS I@D France immatriculé au RSAC de NARBONNE sous le numéro 983309949, titulaire de la carte de démarchage immobilier pour le compte de la société I@D France SAS.
Iad France - Maxime Leclaire vous propose : Jolie Appartement T2 Moderne avec Terrasse à Nissan-lez-Enserune Découvrez ce magnifique appartement T2 situé au cOEur de Nissan-lez-Enserune, dans une Impasse calme et recherché., Cet appartement de 45 m² Rénové en 2022 offre un cadre de vie paisible et confortable. L'espace de vie se compose d'un salon lumineux de 20 m² donnant accès à une superbe terrasse de 40 m², idéale pour profiter des beaux jours et des moments de détente en extérieur. La cuisine fonctionnelle de 10 m² est équipée et offre tout le nécessaire pour préparer de délicieux repas. La chambre de 13 m² Avec sa salle d'eau vous accueille dans un espace intime et douillet. Vous disposerez également d'un WC indépendant pour plus de commodité. L'appartement est en excellent état, offrant un intérieur moderne et bien entretenu. Les équipements tels que la fibre optique, la climatisation réversible, le câble TV, et la ventilation mécanique assurent un confort optimal au quotidien. Cet appartement bénéficie d'une exposition est, offrant une belle luminosité naturelle tout au long de la journée. Il est situé au 1er étage d'un immeuble d'un étage, ce qui garantit tranquillité et intimité. Pour votre confort, un garage est inclus, vous permettant de stationner votre véhicule en toute sécurité. Les extérieurs sont parfaitement entretenus et la résidence ne manque pas de charme. Proche de toutes les commodités, des commerces, des écoles et des transports en commun, cet appartement est idéalement situé pour une vie pratique et agréable. Ne manquez pas cette opportunité unique d'acquérir un appartement moderne, confortable et bien situé à Nissan-lez-Enserune. Contactez-nous dès maintenant pour organiser une visite. Honoraires d'agence à la charge du vendeur. Information d'affichage énergétique sur ce bien : classe ENERGIE D indice 187 et classe CLIMAT A indice 5. Les informations sur les risques auxquels ce bien est exposé, y compris l'obligation légale de débroussaillement, sont disponibles sur le site Géorisques : La présente annonce immobilière a été rédigée sous la responsabilité éditoriale de M Maxime Leclaire mandataire indépendant en immobilier (sans détention de fonds), agent commercial de la SAS I@D France immatriculé au RSAC de Béziers sous le numéro 517446159, titulaire de la carte de démarchage immobilier pour le compte de la société I@D France SAS.
Iad france - sylvain alvarez vous propose : valras-plage – rez-de-chaussée – 45 m² – cour 30 m² – 1 chambre + bureau à valras-plage, à moins de 100 mètres de la mer, cet appartement en rez-de-chaussée bénéficie d’un emplacement recherché, idéal pour profiter pleinement du littoral. D’une surface d’environ 45 m², il propose une pièce de vie lumineuse, agréable et bien agencée, avec un accès direct vers l’extérieur. Une porte-fenêtre ouvre sur une cour privative d’environ 30 m², un véritable atout pour aménager un espace détente, partager des repas en extérieur ou même stationner un véhicule. L’espace nuit se compose d’une chambre, complétée par un bureau, parfait pour le télétravail ou un couchage d’appoint. Une salle d’eau moderne vient compléter l’ensemble. L’appartement a été entièrement rénové : cuisine neuve, salle d’eau neuve, sols en parquet water-resist, menuiseries pvc double vitrage neuves. À deux pas du centre-ville (5 minutes à pied) et avec un grand parking à proximité immédiate, il combine parfaitement confort et praticité. les + : • à moins de 100 m de la plage • cour privative de 30 m² • 1 chambre + bureau • menuiseries neuves • aucun travaux à prévoir • compteurs individuels • façade et parties communes rénovées contactez-moi pour organiser une visite. Sylvain alvarez iadfrance, votre conseiller immobilier sur valras-plage et alentours. Avis de valeur offert dans tout l'hérault et l'aude. Me contacter uniquement pour plus d'informations, entièrement ouvert au partage d'affaire, agence et particulier ne pas déranger les propriétaires, merci de votre compréhension. Honoraires d'agence à la charge du vendeur. Information d'affichage énergétique sur ce bien : classe energie e indice 291 et classe climat c indice 11. Les informations sur les risques auxquels ce bien est exposé, y compris l'obligation légale de débroussaillement, sont disponibles sur le site géorisques : la présente annonce immobilière a été rédigée sous la responsabilité éditoriale de m sylvain alvarez mandataire indépendant en immobilier (sans détention de fonds), agent commercial de la sas i@d france immatriculé au rsac de béziers sous le numéro 897493979, titulaire de la carte de démarchage immobilier pour le compte de la société i@d france sas.
Iad france - julien koob vous propose : t2 narbonne plage a deux pas des plages. Narbonne plage, emplacement privilégié pour ce charmant pavillon de type 2 comprenant un séjour avec cuisine us, une chambre et une jolie salle d'eau. Agréable balcon et sa petite vue mer et clape très dégagée. Place de parking privative. Résidence avec piscine. Faibles charges de copropriété. Excellent rapport qualité prix. Une visite s'impose ! La presente annonce immobiliere vise 2 lots situés dans une copropriété de 565 lots au total et ne faisant l'objet d'aucune procédure en cours citée à l'article l. 721-1 du code de la construction et de l'habitation. Montant moyen mensuel de charges déclaré par le vendeur : 54.17€ par mois (soit 650 € annuel). Honoraires d'agence à la charge du vendeur. Information d'affichage énergétique sur ce bien : classe energie c indice 215 et classe climat a indice 6. Les informations sur les risques auxquels ce bien est exposé, y compris l'obligation légale de débroussaillement, sont disponibles sur le site géorisques : la présente annonce immobilière a été rédigée sous la responsabilité éditoriale de m julien koob mandataire indépendant en immobilier (sans détention de fonds), agent commercial de la sas i@d france immatriculé au rsac de narbonne sous le numéro 909193880, titulaire de la carte de démarchage immobilier pour le compte de la société i@d france sas.