Logo LSI sombre

Appartement 2 Pièces 39 m² à vendre à Cucq (62780)
Photo N° 2
2

Vente appartement 2 pièces 39 m² Cucq (62780)

216 000 €

Appartement en frais réduits

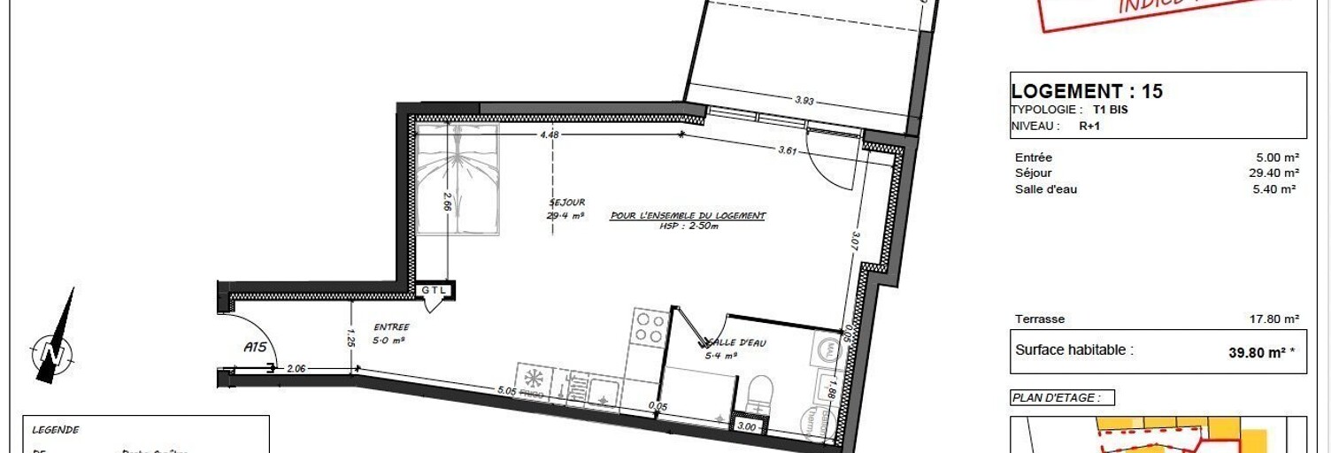
Villa léonie – lot 15 | t1 bis de 39,80 m² extensible – bord de mer à cucq à deux pas des plages de cucq, proche le touquet, le lot 15 séduit par ses volumes et son extérieur exceptionnel. Ce t1 bis de 39,80 m² propose une pièce de vie de 29,40 m² particulièrement spacieuse et une terrasse de 17,80 m², rare pour ce type de bien. Un appartement idéal en pied-à-terre côtier ou en investissement. Option de réunion de lots le lot 15 peut être réuni avec le lot 14 voisin (48,50 m²) pour constituer un appartement traversant nord-sud de 88,30 m² habitables, cumulant plus de 26 m² d'espaces extérieurs entre terrasse et loggia. Une opportunité de créer un bien de prestige sur mesure. Modifications de plans envisageables selon l'avancement des travaux et les contraintes techniques validées par le maître d'œuvre. D'autres typologies d'appartements sont disponibles dans le programme. Informations pratiques localisation : cucq, proche le touquet statut : ouvert à la réservation livraison prévisionnelle : fin 2027 frais de notaire réduits garanties décennale et dommages-ouvrage plans et notice descriptive disponibles sur demande pour visiter et vous accompagner dans votre projet, contactez christelle herlem 06 83 68 32 11 honoraires à la charge du vendeur prix de vente 216 000 € selon l'article l. 561.5 du code monétaire et financier, pour l'organisation de la visite, la présentation d'une pièce d'identité vous sera demandée. Les informations sur les risques auxquels ce bien est exposé sont disponibles sur le site géorisques : cette présente annonce a été rédigée sous la responsabilité éditoriale de christelle herlem agissant sous le statut d'agent commercial immatriculé au ville du greffe : douai sous le numéro rsac n° 921 757 076 auprès de la sas immo reseau au capital de 10 000€ - réseau national immobilier sur internet, 44 allée des cinq continents - 44120 vertou - rne nantes 519 718 886. Carte professionnelle t et g n° cpi 3002 2018 000 024 971 cci de nantes-saint-nazaire (44) ; garantie par galian – 89 rue de la boétie - 75008 paris n°171379g pour 120 000€ pour t. Assurance responsabilité civile professionnelle par galian n° de police 120 137 405 (réf. 38991) - le professionnel garantit et sécurise votre projet immobilier prix de vente 216 000 € honoraires à la charge du vendeur surface carrez : 39.8 m² prix de vente 216 000 € honoraires à la charge du vendeur.

Caractéristiques

Les plus de cette annonce
  • Terrasse
Confort
  • Chauffage Individuel
Pièces
  • 2 pièces
  • 1 chambre
  • Salle d'eau
Superficies
  • Surface habitable : 39 m²
Environnement
  • Quartier : centre ville
  • Situation : mer

Consommation énergétique et gaz à effet de serre

Bilan énergétique (DPE)
NC
Bilan gaz à effet de serre (GES)
NC

Géorisques

Les informations sur les risques auxquels ce bien est exposé sont disponibles sur le site Géorisques : www.georisques.gouv.fr

A propos du prix de cet appartement

  • Prix : 216 000 € (soit 5 538 € / m²)
  • Honoraires à charge vendeur

À propos de cette annonce

Mise en ligne:

Dernière mise à jour:

Référence de l'annonce: 3011443864
Immo Réseau agence immobilière à Vertou (44120)
Immo Réseau
Afficher le numéro

Appartement similaires à acheter Cucq (62780)

Appartement 2 pièces 215000 €
215 000 €

Appartement 2 pièces 38 m²

Cucq (62780)

Situé au coeur de la station balnéaire animée et prisée de stella plage, cet appartement 2 pièces cabine de 38 m² + balcon 5 m² / cave et parking est une véritable invitation à la détente. Belle pièce de vie lumineuse avec coin cuisine et grand placard de rangement balcon spacieux et agréable, vue sur les dunes le hall d'entrée dessert une chambre confortable avec dressing, un coin cabine idéal pour lits superposés, une salle de bain avec douche ainsi qu'un wc séparé. L'appartement est vendu avec une cave + une place de stationnement résidence très calme en parfait état / faibles charges plage à 50m, commerces, restaurants et animations à quelques pas ? Tout se fait à pied ! Coup de coeur assuré ! Contactez-moi pour organiser une visite ! Bien vendu soumis au statut de la copropriété. Nombre de lots : 131 lots dont 51 à usage d'habitation montant annuel des charges payées par les vendeurs : euros 700 euros / an comprenant les charges communes de l'immeuble et fond travaux pas de procédure en cours. Prix : 215 000 euros fai. Honoraires : 10 000 euros ttc (4.88%) charge acquéreur, soit 205 000 euros hors honoraires dpe d ges b montant estimé des dépenses annuelles d'énergie pour un usage standard entre 750 et 1040 euros indexées aux années 2021,2022 et 2023 pour visiter et vous accompagner dans votre projet, contactez adrien westeel, au 07 70 00 54 70 ou, par courriel à a.westeel@proprietes-privees.com. Selon l'article l. 561.5 du code monétaire et financier, pour l'organisation de la visite, la présentation d'une pièce d'identité vous sera demandée. Cette présente annonce a été rédigée sous la responsabilité éditoriale de adrien westeel agissant sous le statut d'agent commercial immatriculé au rsac 789581022 auprès de sas proprietes privees, au capital de 44 920 euros, zac le chêne ferré - 44 allée des cinq continents 44120 vertou; siret 487 624 777 00040, rcs nantes. Carte professionnelle transactions sur immeubles et fonds de commerce (t) et gestion immobilière (g) n°cpi 4401 2016 000 010 388 délivrée par la cci nantes - saint nazaire. Compte séquestre n°309 32 50 84 67 bpa saint-sebastien-sur-loire (44230). Garantie galian-smabtp - 89 rue de la boétie, 75008 paris - n°28137 j pour 2 000 000 euros pour t et 120 000 euros pour g. Assurance responsabilité civile professionnelle par galian-smabtp n° de police 28137. J mandat réf : 444090 - le professionnel garantit et sécurise votre projet immobilier. (4.88 % honoraires ttc à la charge de l'acquéreur.) copropriété de 131 lots - dont 51 lots habitation. Charges annuelles : 666 euros. Adrien westeel (ei) agent commercial - numéro rsac : 789581022 -.

Appartement 2 pièces 206000 €
206 000 €
+1 %

Appartement 2 pièces 39 m²

Cucq (62780)

Découvrez sans tarder ce nouveau programme neuf à stella-plage, en plein coeur de la station et de ses commerces. Résidence de 10 logements, du studio au type 3 cabine. Livraison prévue 2ème semestre 2027. Contactez-nous pour plus d'informations.

À voir pour le même budget

Appartement 2 pièces 199900 €
199 900 €

Appartement 2 pièces 47 m²

Cucq (62780)

La commune de Cucq, signifiant “hauteur, colline” en préceltique, tient son nom de sa géographie, le village étant initialement situé sur une dune. La particularité de Cucq réside aujourd’hui dans sa composition, plurielle. Les Dunes d’Eloa, résidence de 54 logements du T2 au T4, vient s’installer à l’extrémité sud de l’avenue François Godin, axe majeur de la région qui lie le centre de Cucq au Touquet-Paris-Plage, en traversant la forêt et le golf.

Appartement 2 pièces 185500 €
185 500 €

Appartement 2 pièces 38 m²

Cucq (62780)

Venez découvrir ce T2 situé au 1er étage d'une résidence récente, avec ascenseur. L'appartement est actuellement loué. Il est composé d'une entrée donnant sur la pièce à vivre, cuisine ouverte et équipée, un balcon, une belle chambre, salle de bains et wc. Une place de stationnement privatif couvert et sécurisé vient compléter cet appartement. N'hésitez pas à contacter l'Agence du Golf si vous souhaitez en savoir plus. Suivez nous sur Facebook et Instagram pour ne pas rater nos jeux concours et événements. =.

Appartement 2 pièces 179000 €
179 000 €

Appartement 2 pièces 31 m²

Cucq (62780)

Dans une résidence recherchée avec ascenseur, à seulement 50 mètres de la plage, découvrez ce bel appartement T2 de 31,50 m² habitables, en excellent état général. Descriptif : L'appartement se compose d'un séjour lumineux ouvrant sur un balcon, d'une cuisine aménagée, d'une chambre confortable, ainsi que d'une salle d'eau avec WC. Le bien bénéficie actuellement d'un aperçu mer depuis le balcon (vue temporaire). À noter : un projet de construction à proximité viendra ultérieurement modifier cet aperçu (information donnée en toute transparence). Annexes et prestations : o Balcon o Grande cave o Place de parking privative o Résidence calme et bien entretenue o Aucun travaux à prévoir Surface habitable : 31,50 m²Bien rare sur le secteur, idéal pied-à-terre, résidence secondaire ou investissement locatif. Les risques naturels et technologiques sont visibles sur le site Contactez-nous au 03 21 94 60 65 ou au 06 44 24 21 79.

Appartement 2 pièces 230000 €
230 000 €

Appartement 2 pièces 41 m²

Cucq (62780)

Villa léonie – lot 11 | t2 traversant 41,90 m² – bord de mer_cucq à moins de 2 km des plages, la résidence villa léonie propose un cadre de vie privilégié alliant confort, luminosité et vie extérieure. Le lot 11 est un t2 traversant de 41,90 m² particulièrement bien orienté, avec deux espaces extérieurs distincts : une terrasse de 18,80 m² et une loggia de plus de 6 m². Le logement comprend une chambre de 11,70 m² et une salle d'eau de 5,40 m². Option de réunion de lots ce bien offre une flexibilité rare : il peut être réuni avec le lot 12 (t2 de 38,10 m²) pour constituer un appartement de plus de 80 m² habitables, à double exposition et avec plusieurs espaces extérieurs. Détail du lot 12 : séjour de 22,80 m², chambre de 10,40 m², salle d'eau de 4,90 m², loggia de 5,70 m². Des modifications intérieures restent envisageables selon l'avancement des travaux et les contraintes techniques. Plans et notice descriptive fournie sur demande. Pour visiter et vous accompagner dans votre projet, contactez christelle herlem 06 83 68 32 11 honoraires à la charge du vendeur prix de vente 230 000 € selon l'article l. 561.5 du code monétaire et financier, pour l'organisation de la visite, la présentation d'une pièce d'identité vous sera demandée. Les informations sur les risques auxquels ce bien est exposé sont disponibles sur le site géorisques : cette présente annonce a été rédigée sous la responsabilité éditoriale de christelle herlem agissant sous le statut d'agent commercial immatriculé au ville du greffe : douai sous le numéro rsac n° 921 757 076 auprès de la sas immo reseau au capital de 10 000€ - réseau national immobilier sur internet, 44 allée des cinq continents - 44120 vertou - rne nantes 519 718 886. Carte professionnelle t et g n° cpi 3002 2018 000 024 971 cci de nantes-saint-nazaire (44) ; garantie par galian – 89 rue de la boétie - 75008 paris n°171379g pour 120 000€ pour t. Assurance responsabilité civile professionnelle par galian n° de police 120 137 405 (réf. ) - le professionnel garantit et sécurise votre projet immobilier prix de vente 230 000 € honoraires à la charge du vendeur prix de vente 230 000 € honoraires à la charge du vendeur.

Appartement 2 pièces 206000 €
206 000 €
+1 %

Appartement 2 pièces 39 m²

Cucq (62780)

Découvrez sans tarder ce nouveau programme neuf à stella-plage, en plein coeur de la station et de ses commerces. Résidence de 10 logements, du studio au type 3 cabine. Livraison prévue 2ème semestre 2027. Contactez-nous pour plus d'informations.

Appartement 2 pièces 191700 €
191 700 €

Appartement 2 pièces 36 m²

Cucq (62780)

En exclusité ! Découvrez ce charmant appartement de 36 m² idéalement situé en plein coeur de Stella, tout en bénéficiant d'un environnement calme, à seulement 500 mètres de la plage. Situé au 1er étage d'une résidence sécurisée, ce bien offre un agréable balcon bien exposé avec une vue dégagée, parfait pour profiter des beaux jours en toute tranquillité. L'appartement se compose d'un séjour avec cuisine ouverte, d'une chambre, d'une salle de bain ainsi que de WC séparés. Une cave et une place de parking viennent compléter ce bien. Quelques travaux de rafraîchissement permettront de révéler tout son potentiel et d'en faire un pied-à-terre idéal ou un investissement de qualité. Contactez nous rapidement pour plus d'informations : 03 21 94 60 65 !