Logo LSI sombre

Commerce 1 Pièce 63 m² à louer à Paris 1 (75001)
1

Location commerce 1 pièce 63 m² à Paris 1 (75001)

16 000 € CC /mois

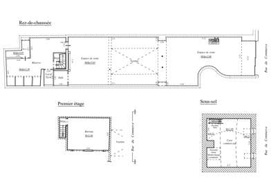
Local commercial à louer – Paris 1er arrondissement – À rénover entièrement

Votre agence Arthurimmo de Limeil-Brevannes vous présente ce local commercial. Situé au cœur des halles dans le prestigieux 1er arrondissement de Paris, ce local commercial offre un fort potentiel après rénovation complète. Il se compose au rez-de-chaussée d’un local commercial avec sous-sol, idéal pour une boutique, un atelier ou une galerie. Cet immeuble bénéficie d’un emplacement exceptionnel au cœur de la capitale, à proximité immédiate des commerces, des transports et des sites emblématiques de Paris. Il est libre de toute occupation et offre de nombreuses possibilités de valorisation. Le loyer sera déterminé en fonction du projet du locataire. Le dépôt de garantie est à définir. Les travaux seront à la charge du preneur.

Caractéristiques

Les plus de cette annonce
  • Meublé
Confort
  • Chauffage Electrique
Pièces
  • 1 pièce
Superficies
  • Surface habitable : 63 m²
Environnement
  • Quartier : Halles
Etat
  • Etat general : A rénover

Consommation énergétique et gaz à effet de serre

Bilan énergétique (DPE)
NC
Bilan gaz à effet de serre (GES)
NC

Géorisques

Les informations sur les risques auxquels ce bien est exposé sont disponibles sur le site Géorisques : www.georisques.gouv.fr

A propos du prix de ce commerce

    Zone soumise à encadrement des loyers

  • Loyer : 16 000 € CC /mois
  • Dont :
  • Loyer de base : 15 000 €
  • Charges :
  • Provisions pour charges avec régularisation annuelle : 1 000 €
  • Honoraires Locataires : 1 940 €
  • Dont honoraires pour état des lieux : 500 €
  • Dépôt de garantie : 30 000 €

À propos de cette annonce

Mise en ligne:

Dernière mise à jour:

Référence de l'annonce: 86426054
Arthurimmo.com Yerres agence immobilière à Yerres (91330)
Arthurimmo.com Yerres
Afficher le numéro

À voir pour le même budget

Commerce  14424 €
14 424 €
+1 %

Commerce 149 m²

Paris 15 (75015)

L'agence sadone vous propose en location pure un local commercial situé rue du commerce à paris 15, au coeur d'un quartier très recherché et animé, bénéficiant d'un fort passage piéton et d'un environnement commerçant de qualité. Le local bénéficie d'une surface totale d'environ 150 m², comprenant un rez-de-chaussée de 121,8 m² offrant un bel espace commercial, un sous-sol de 11,6 m² idéal pour le stockage ou un local technique, ainsi qu'un étage de 16,5 m² pouvant être aménagé en bureau ou espace administratif. Le bien dispose d'un beau linéaire de façade assurant une excellente visibilité sur la rue du commerce. La configuration des volumes permet une grande liberté d'aménagement selon l'activité envisagée. Enseignes à proximité : - pierre hermé - sfr - yellow korner - marionnaud - palais des thés - linvosges activités autorisées : toutes activités sauf nuisance (pas d'extraction). Idéal pour achat vente et or, galerie d'art, enseigne de prêt-à-porter, linge de maison, literie, chocolatier, pâtissier. Conditions financières : - bail commercial 3 / 6/9 ans - dépôt de garantie 2 termes de loyers soit 6 mois de loyer hcht soit 84.996 € - loyer 170.000€ hcht / an - charges : 3100€ / an - taxe foncière charge preneur - gapd demandée entre 4 et 9 mois en fonction du dossier - honoraires : 30% ht d'une période annuelle de loyer hcht soit 51.000€ ht (soit 61.200€ ttc) charge preneur contact : laetitia grossmann 06 10 71 45 89 laetitia grossmann (ei) agent commercial - numéro rsac : 87932462200015 -.

Commerce  17250 €
17 250 €

Commerce 543 m²

Paris 10 (75010)

Iad france - daniel de brito (06 61 11 16 40) vous propose : * disponibilite immediate * local commercial a louer 543 m² environ * paris 10 quartier goncourt - canal saint martin * dans quartier commerçant du 10ème (hôpital saint louis ) - métro ligne 2 - station colonel fabien adresse : 9 avenue claude vellefaux surface : local de 543 m² environ type de bail : 3/6 / 9 loyer : 15 750 € / mois ht-hc, soit 189000 €ht / an charges : provision pour charges 1500 € / mois, soit 18 000 € / an régime fiscal : ir, avec assujettissement à la tva taxe foncière : 6047€ pour 2023 frais d’acte : a la charge du preneur frais etat des lieux : a la charge du preneur périodicité des paiements : trimestriel à échoir dépôt de garantie : 3 mois de loyer ht hc honoraires à la charge du preneur : 3 mois de loyer hc ttc activités autorisées : tout sauf restauration avec extraction et licence 4 autres infos : façade linéaire 30 m environ avec deux bateau sur trottoir. Double entrée. Accès véhicule possible - 10 places de parking disponible en sous-sol disponible 7 jours / 7 - contactez-moi pour effectuer une visite information d'affichage énergétique sur le bien associé à cette annonce : dpe ns indice et ges ns indice. La présente annonce immobilière a été rédigée sous la responsabilité éditoriale de m. Daniel de brito (id 44531), agent commercial mandataire en immobilier immatriculé au registre spécial des agents commerciaux (rsac) du tribunal de commerce de bobigny sous le numéro 790628085 retrouvez tous nos biens sur notre site internet. .

Commerce 3 pièces 13000 €
13 000 €

Commerce 3 pièces 54 m²

Paris 18 (75018)

Local commercial - Rue du Poteau - Paris 18e - Métro Jules Joffrin (ligne 12) Situé en rez-de-chaussée sur la très commerçante rue du Poteau à Paris 18e, ce local commercial bénéficie d’un emplacement recherché au cœur d’un quartier vivant, à proximité immédiate des transports et des commerces. D’une surface de 54 m², ce local offre un bel espace d’accueil lumineux permettant l’installation de plusieurs postes de travail en open space, complété par un bureau indépendant, un espace arrière aménagé avec kitchenette ainsi qu’un WC avec évier. La grande vitrine de 4,40 mètres de largeur sur 2,45 mètres de hauteur assure une excellente visibilité depuis la rue. Le local se prête parfaitement à de nombreuses activités professionnelles ou commerciales, avec une autorisation tous commerces à l’exception des activités alimentaires nécessitant une extraction. Fonctionnel et agréable, ce bien constitue une opportunité idéale pour implanter ou développer votre activité dans un secteur dynamique du 18e arrondissement. Disponibilité à compter du 30 septembre 2026, visites possibles dès maintenant. Conditions financières : Loyer trimestriel : 12 500€ HT HC Charges locatives trimestrielles : 500€ Dépôt de garantie : 12 500€ HT Honoraires à la charge du locataire : 30% HT du loyer annuel hors charges soit 15 000€ HT Notre barème d'honoraires est disponible sur notre site internet.